Скачать Типовой проект 902-2-434.87 Альбом II. Технология производства. Внутренние водопровод и канализация. Отопление и вентиляцияДата актуализации: 01.01.2021
|
| Обозначение: | Типовой проект 902-2-434.87 |
| Обозначение англ: | 902-2-434.87 |
| Статус: | заменен |
| Название рус.: | Альбом II. Технология производства. Внутренние водопровод и канализация. Отопление и вентиляция |
| Дата добавления в базу: | 01.09.2013 |
| Дата актуализации: | 01.01.2021 |
| Дата введения: | 01.10.1987 |
| Дата окончания срока действия: | 01.03.1993 |
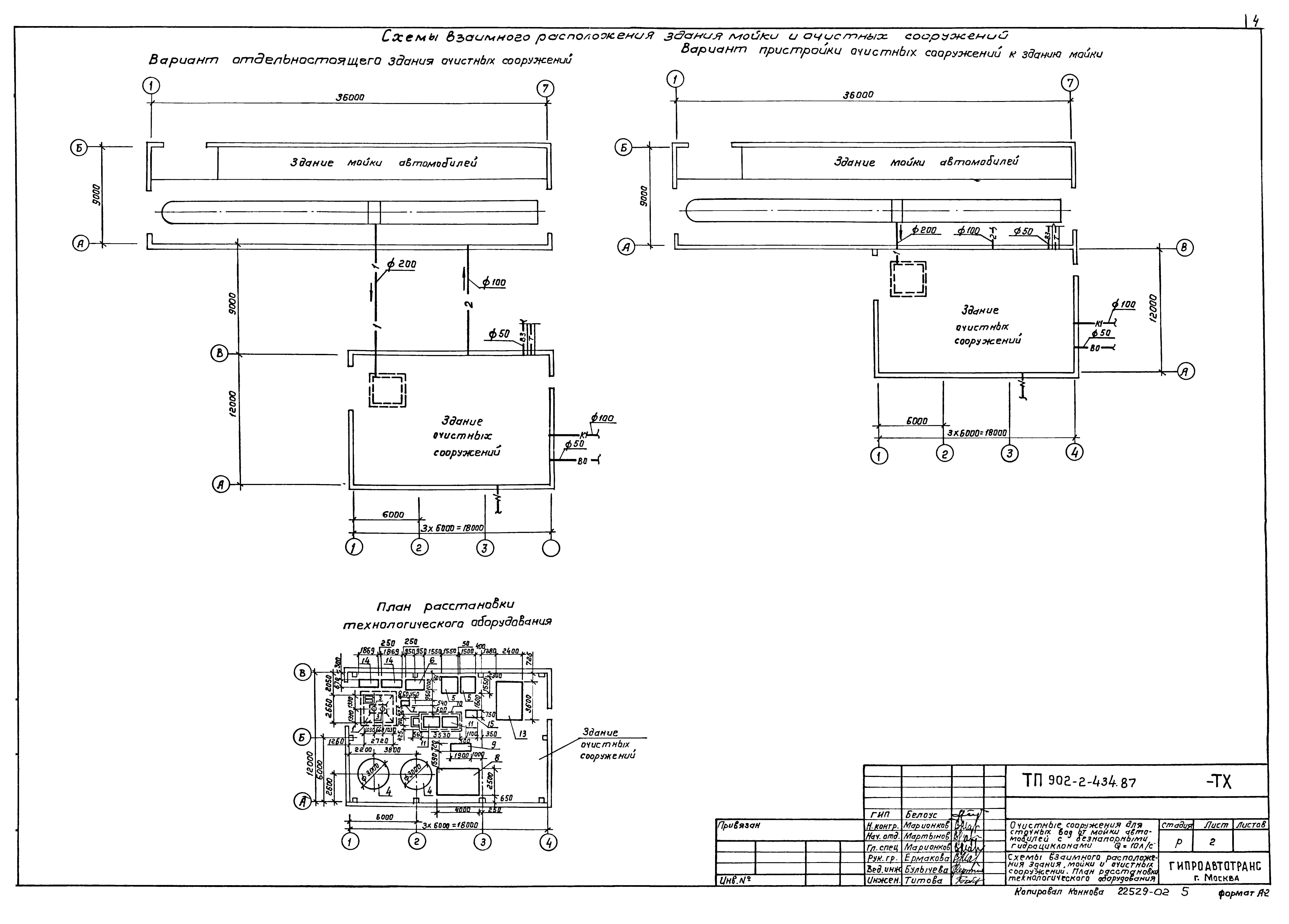
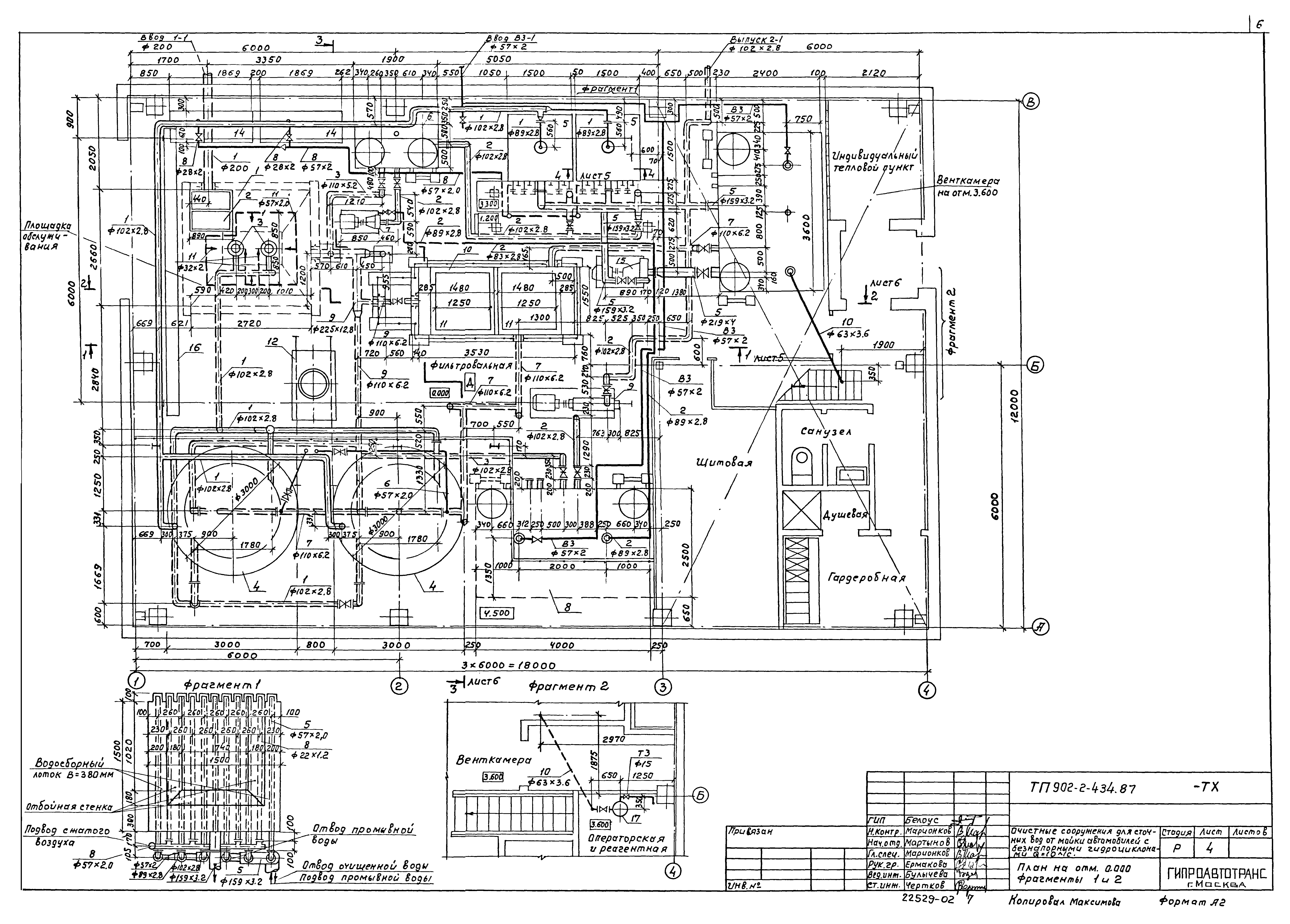
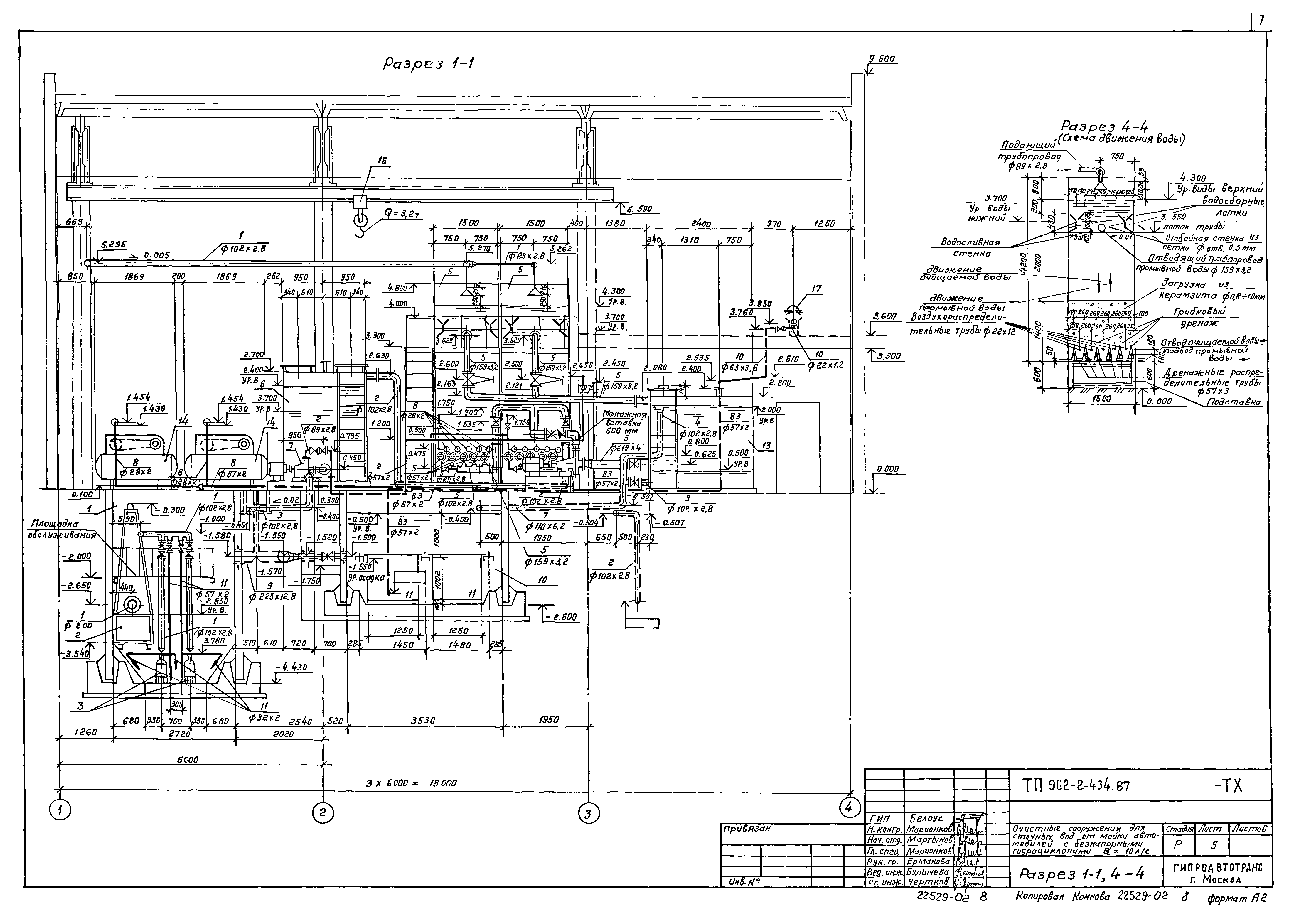
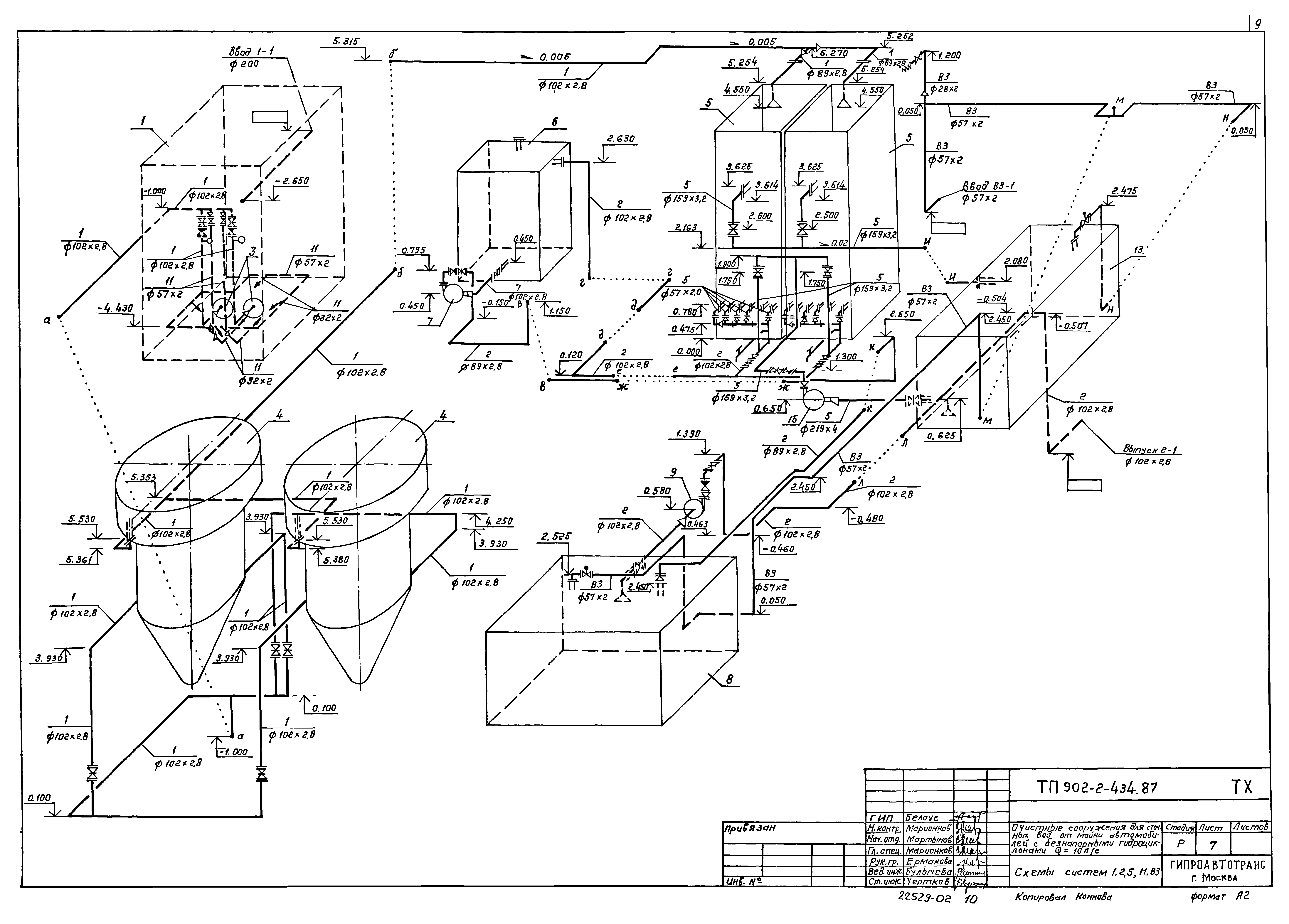
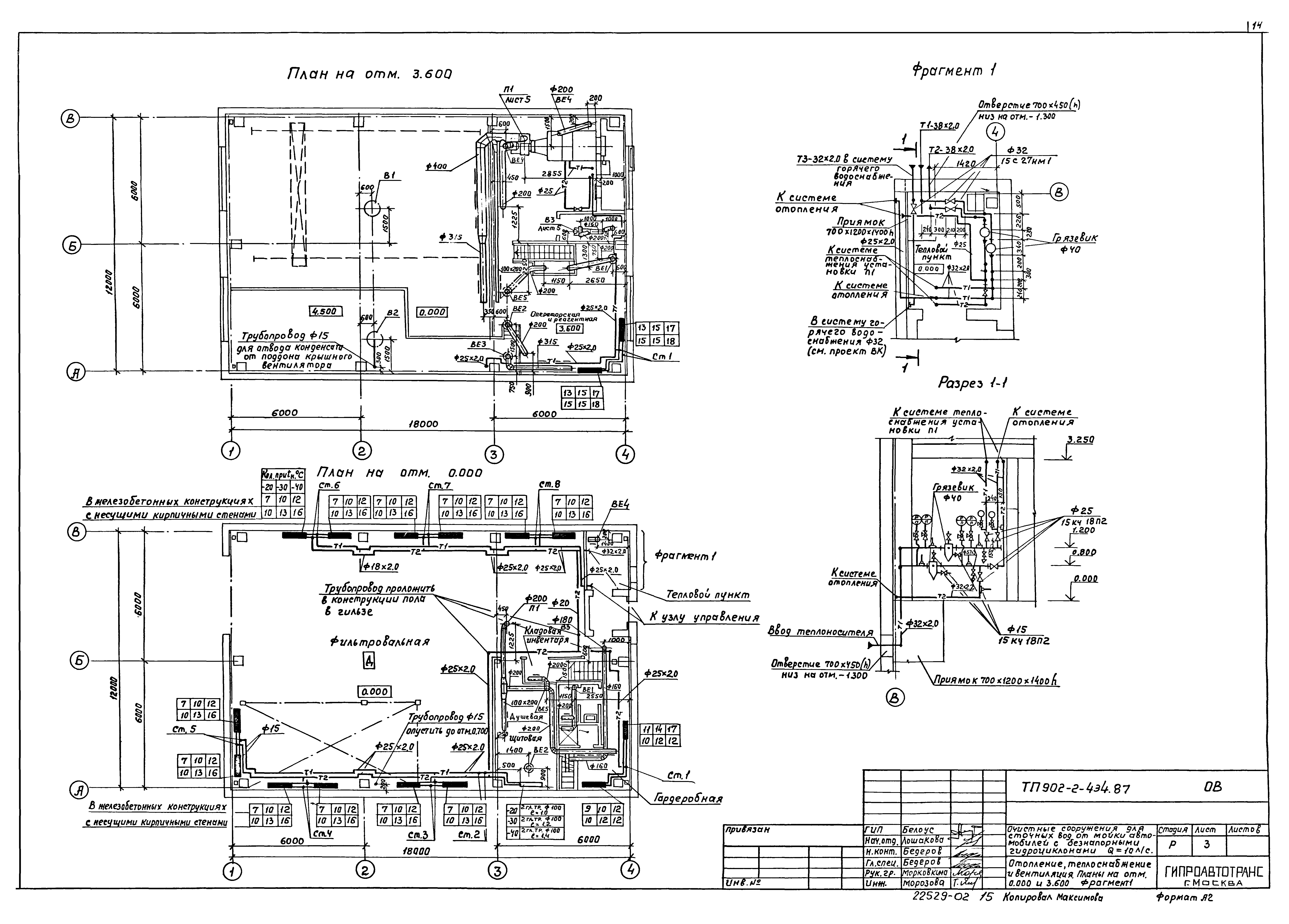
| Оглавление: | ТП 902-2-434.87-ТХ Технологическая часть ТП 902-2-434.87-ТХ-1 Общие данные ТП 902-2-434.87-ТХ-2 Схема взаимного расположения здания мойки и очистных сооружений. План расстановки технологического оборудования ТП 902-2-434.87-ТХ-3 Технологическая схема очистки сточных вод ТП 902-2-434.87-ТХ-4 План на отм. 0.000. Фрагменты 1 и 2 ТП 902-2-434.87-ТХ-5 Разрез 1-1,4-4 ТП 902-2-434.87-ТХ-6 Разрезы 2-2,3-3 ТП 902-2-434.87-ТХ-7 Схемы систем 1,2,3,11,В3 ТП 902-2-434.87-ТХ-8 Схемы систем 3,4,6,7,8,9,10 ТП 902-2-434.87-ВК Водоснабжение и канализация ТП 902-2-434.87-ВК-1 Общие данные. Планы на отм. 0.000;3.600. Схемы систем ВО,Т3,К1 ТП 902-2-434.87-ОВ Отопление и вентиляция ТП 902-2-434.87-ОВ-1 Общие данные (начало) ТП 902-2-434.87-ОВ-2 Общие данные (окончание) ТП 902-2-434.87-ОВ-3 Отопление, теплоснабжение и вентиляция. Планы на отм. 0.000 и 3.600. Фрагмент 1 ТП 902-2-434.87-ОВ-4 Схемы узла управления, системы отопления, теплоснабжения установки П1 систем вентиляции П1;В1...В3;ВЕ1...ВЕ5 ТП 902-2-434.87-ОВ-5 Установка систем П1,В3 |
| Разработан: | Гипроавтотранс |
| Утверждён: | 01.10.1987 Минавтотранс РСФСР (Russian Federation Minavtotrans 11) |
| Издан: | ЦИТП Госстроя СССР (CITP, Gosstroy (USSR) 1988 г. ) |
| Заменяет собой: | |
| Чем заменён: |

















