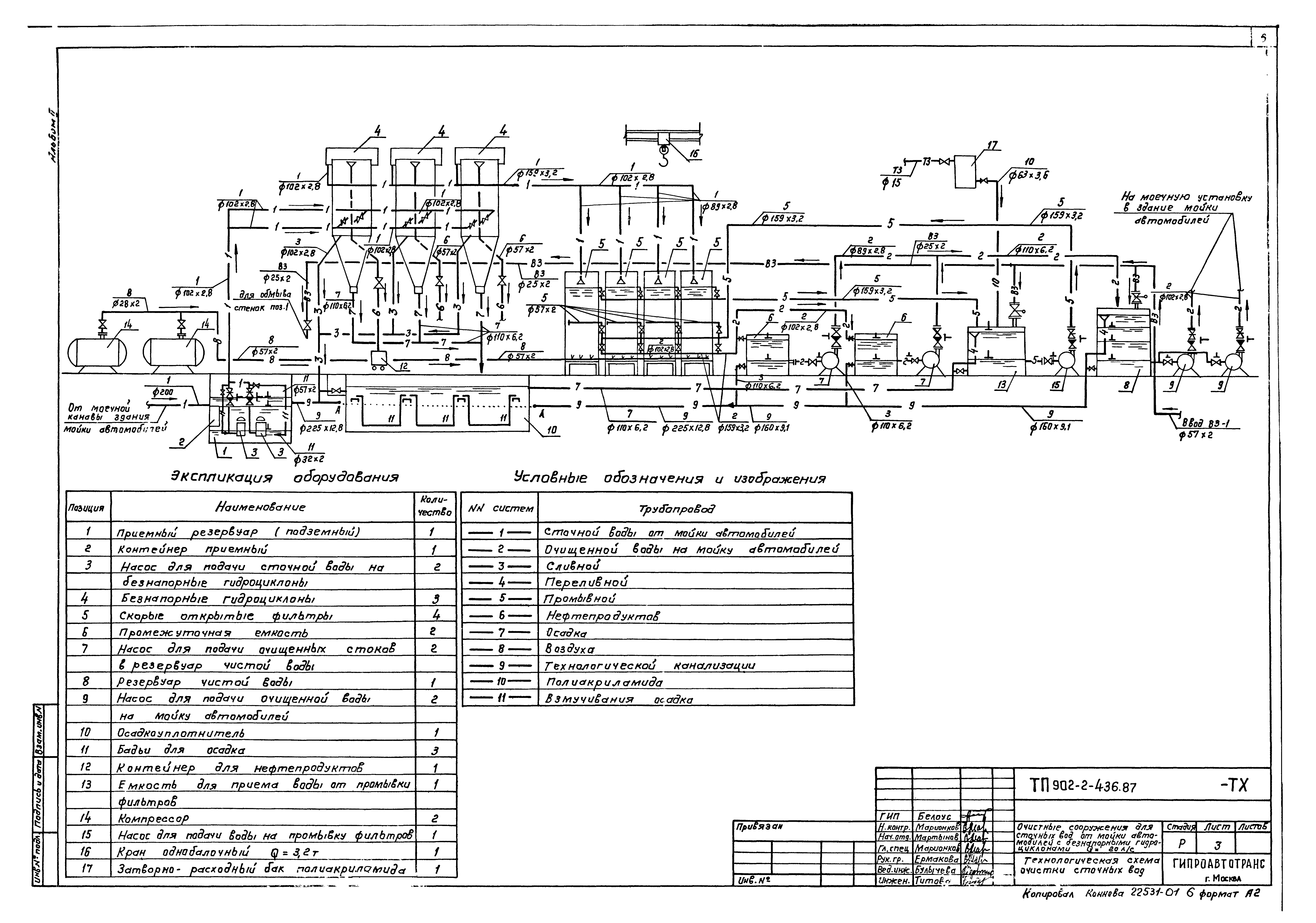
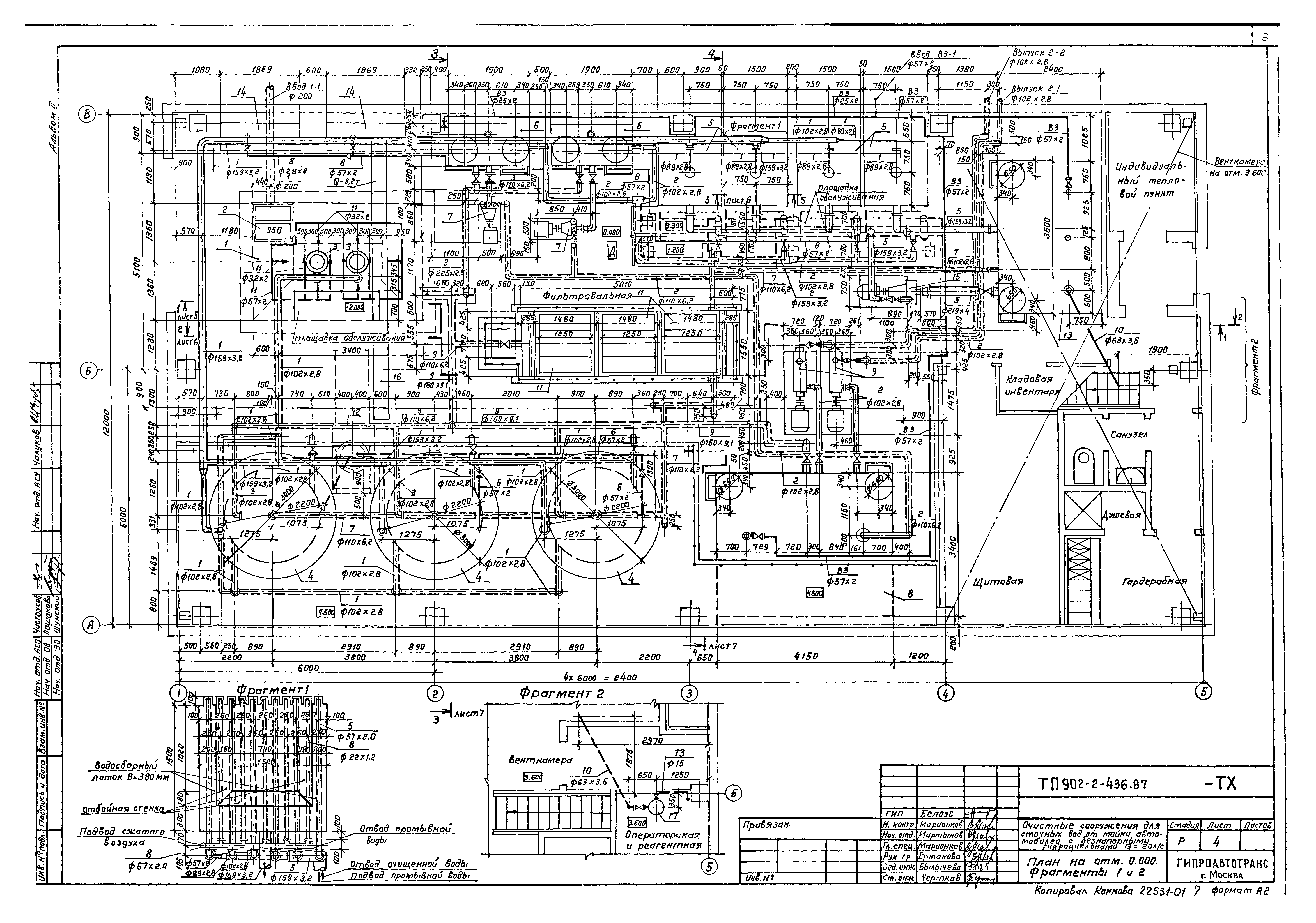
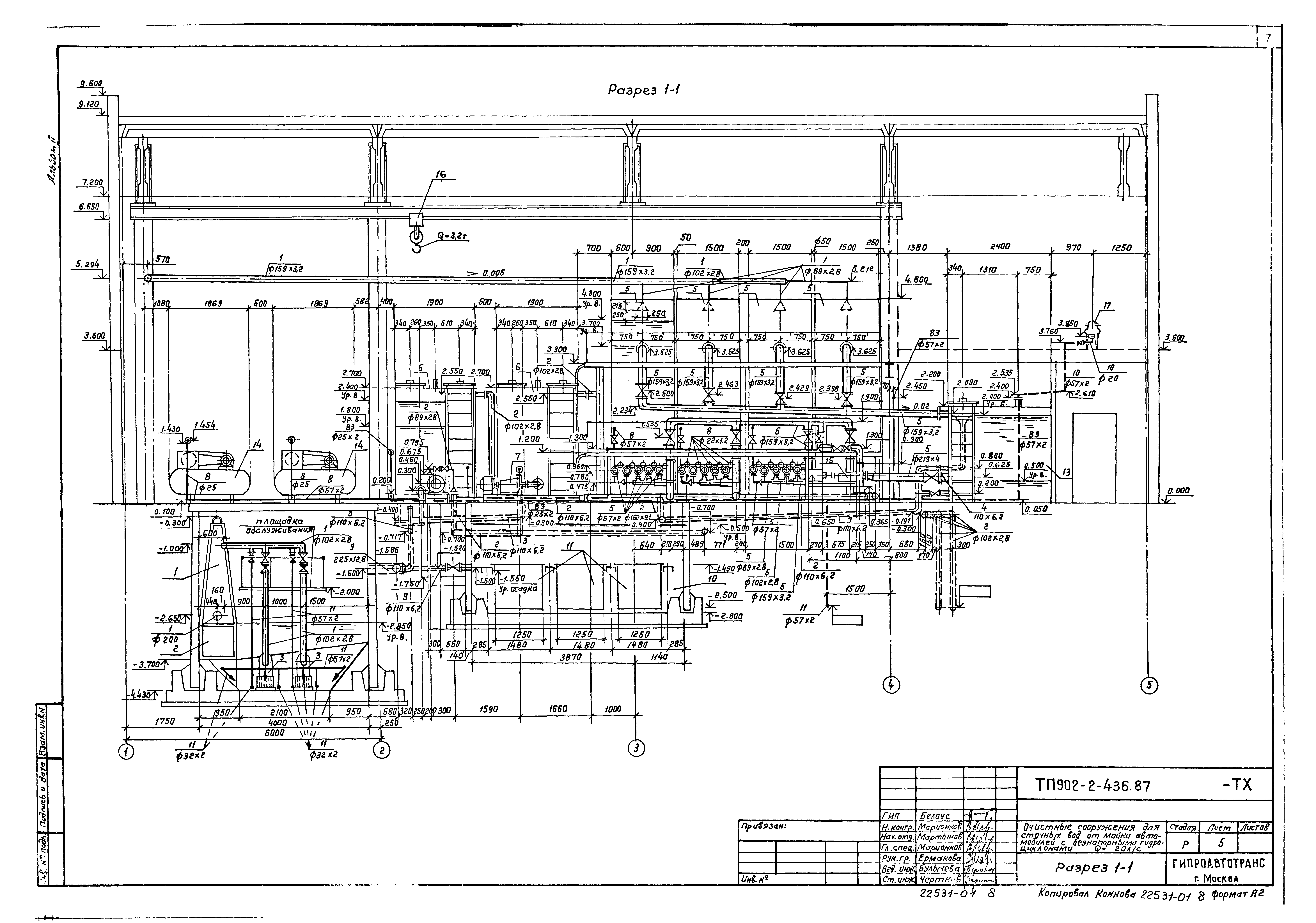
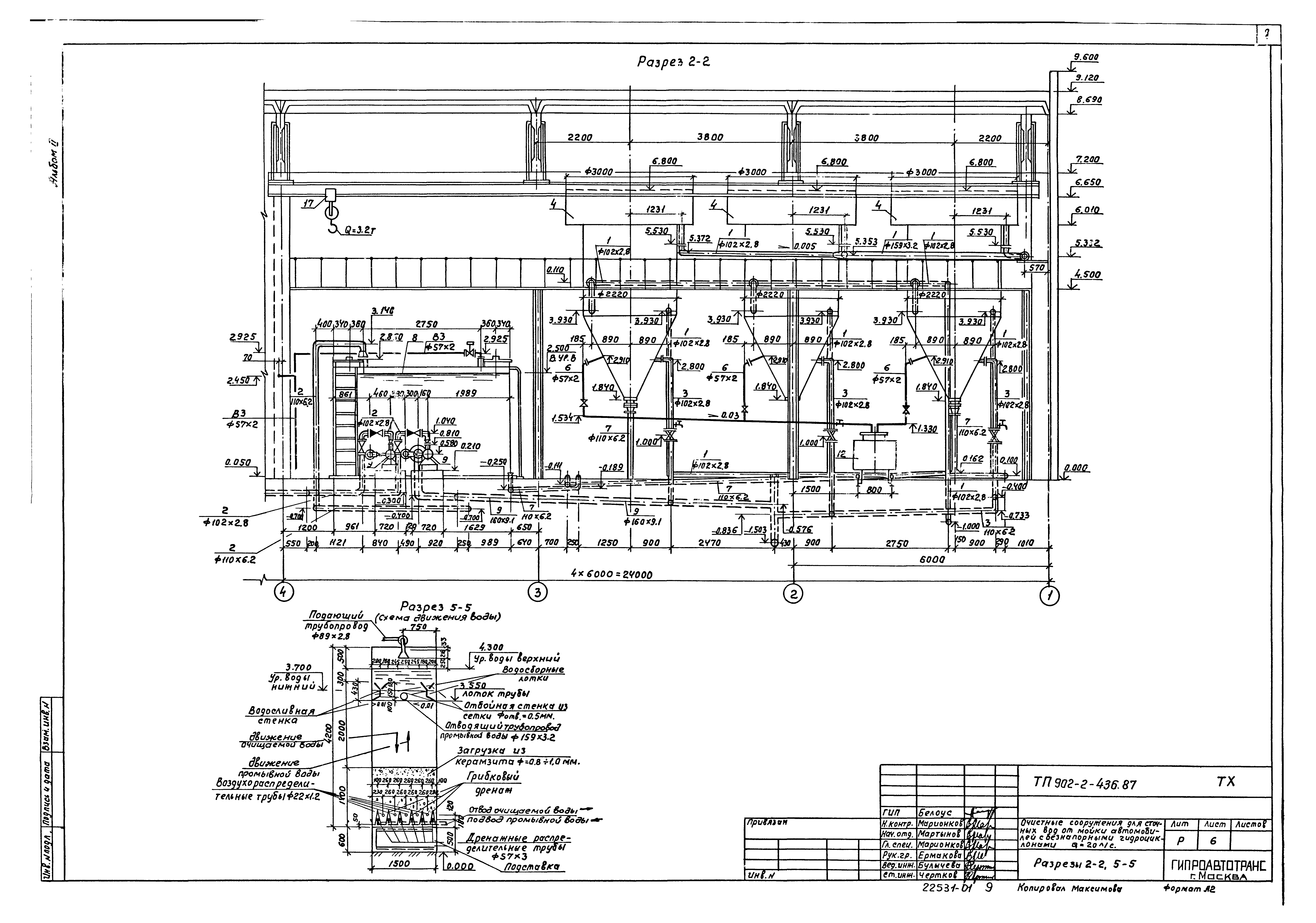
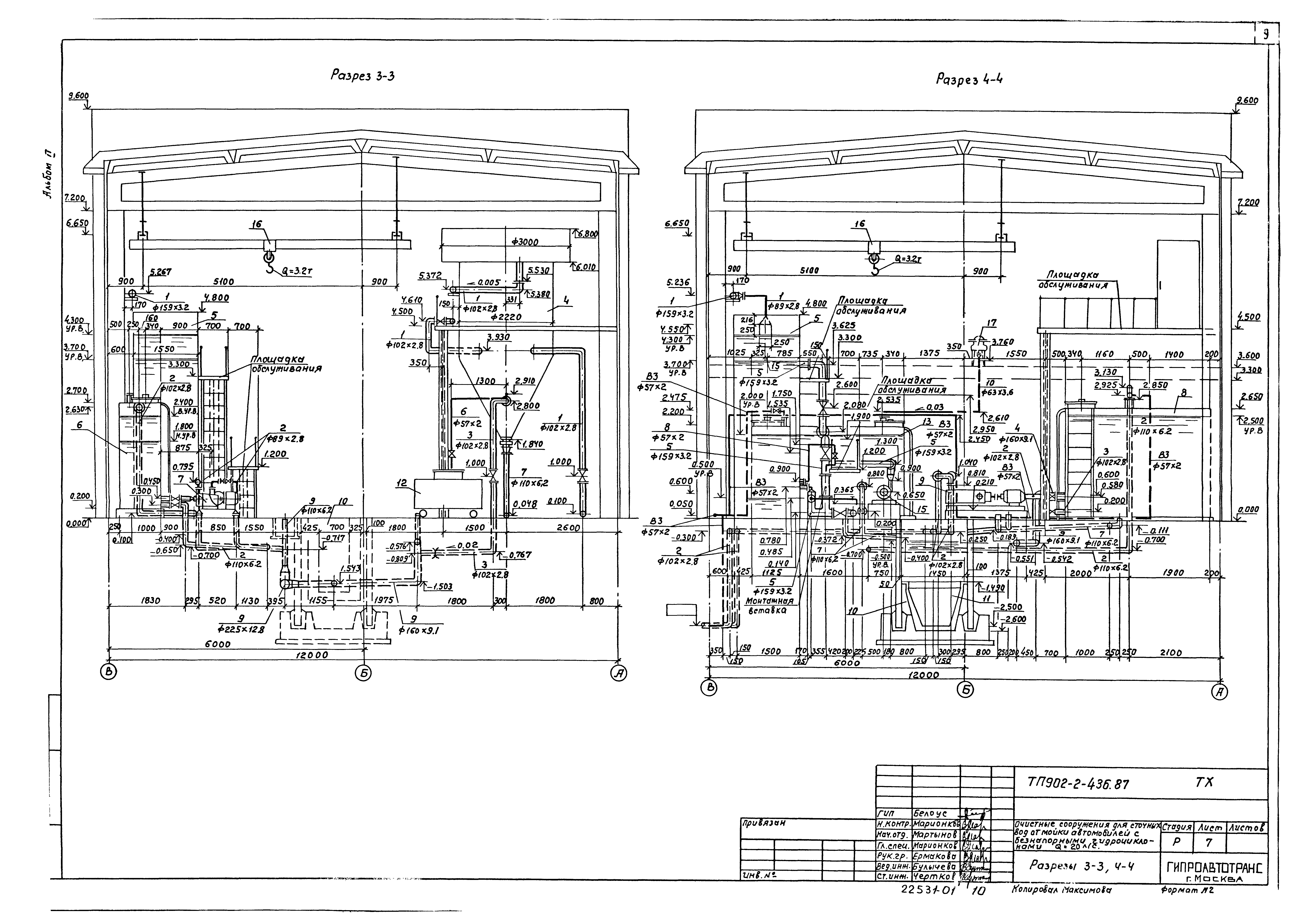
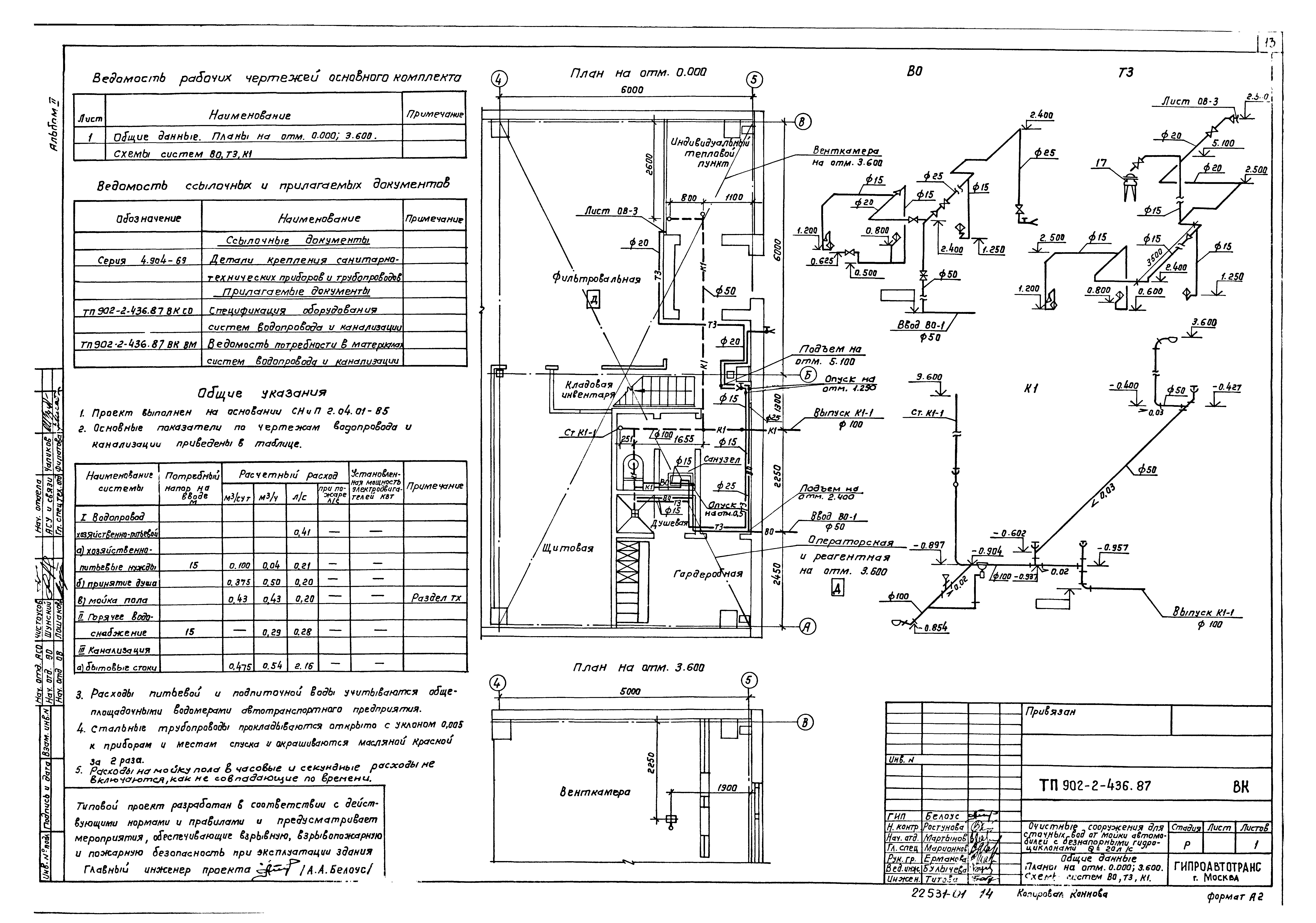
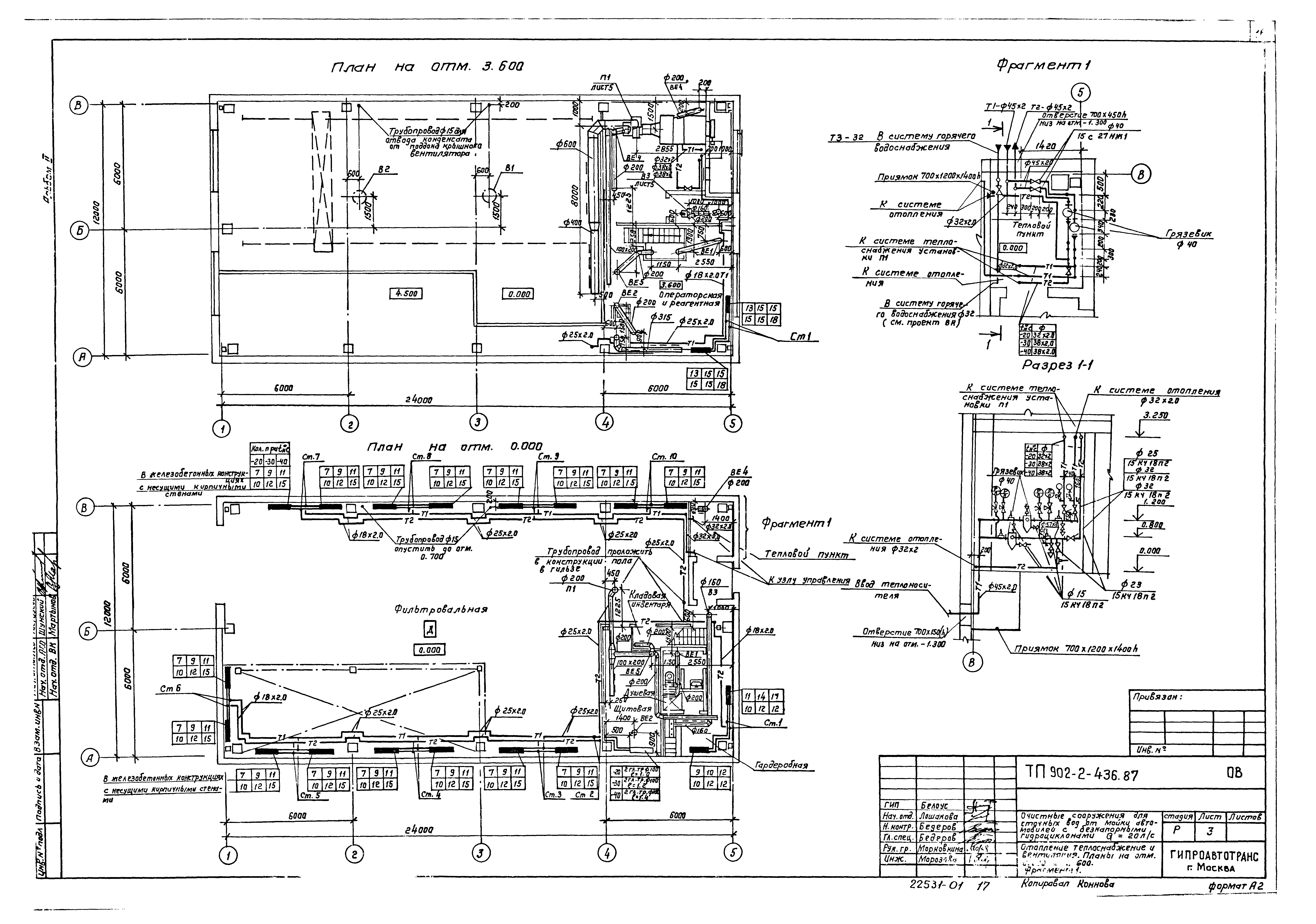
Скачать Типовой проект 902-2-437.87 Альбом II. Технология производства. Внутренние водопровод и канализация. Отопление и вентиляция (из ТП 902-2-436.87)Дата актуализации: 01.01.2021
|
| Обозначение: | Типовой проект 902-2-437.87 |
| Обозначение англ: | 902-2-437.87 |
| Статус: | заменен |
| Название рус.: | Альбом II. Технология производства. Внутренние водопровод и канализация. Отопление и вентиляция (из ТП 902-2-436.87) |
| Дата добавления в базу: | 01.09.2013 |
| Дата актуализации: | 01.01.2021 |
| Дата введения: | 01.10.1987 |
| Дата окончания срока действия: | 01.06.1993 |
| Разработан: | Гипроавтотранс |
| Утверждён: | 01.10.1987 Минавтотранс РСФСР (Russian Federation Minavtotrans 11) |
| Заменяет собой: | |
| Чем заменён: |


















