Скачать Типовой проект 902-3-4 Альбом I. Технологическая, санитарно-техническая, электротехническая части, нестандартизированное оборудованиеДата актуализации: 01.01.2021
|
| Обозначение: | Типовой проект 902-3-4 |
| Обозначение англ: | 902-3-4 |
| Статус: | действует |
| Название рус.: | Альбом I. Технологическая, санитарно-техническая, электротехническая части, нестандартизированное оборудование |
| Дата добавления в базу: | 01.09.2013 |
| Дата актуализации: | 01.01.2021 |
| Дата введения: | 30.11.1979 |
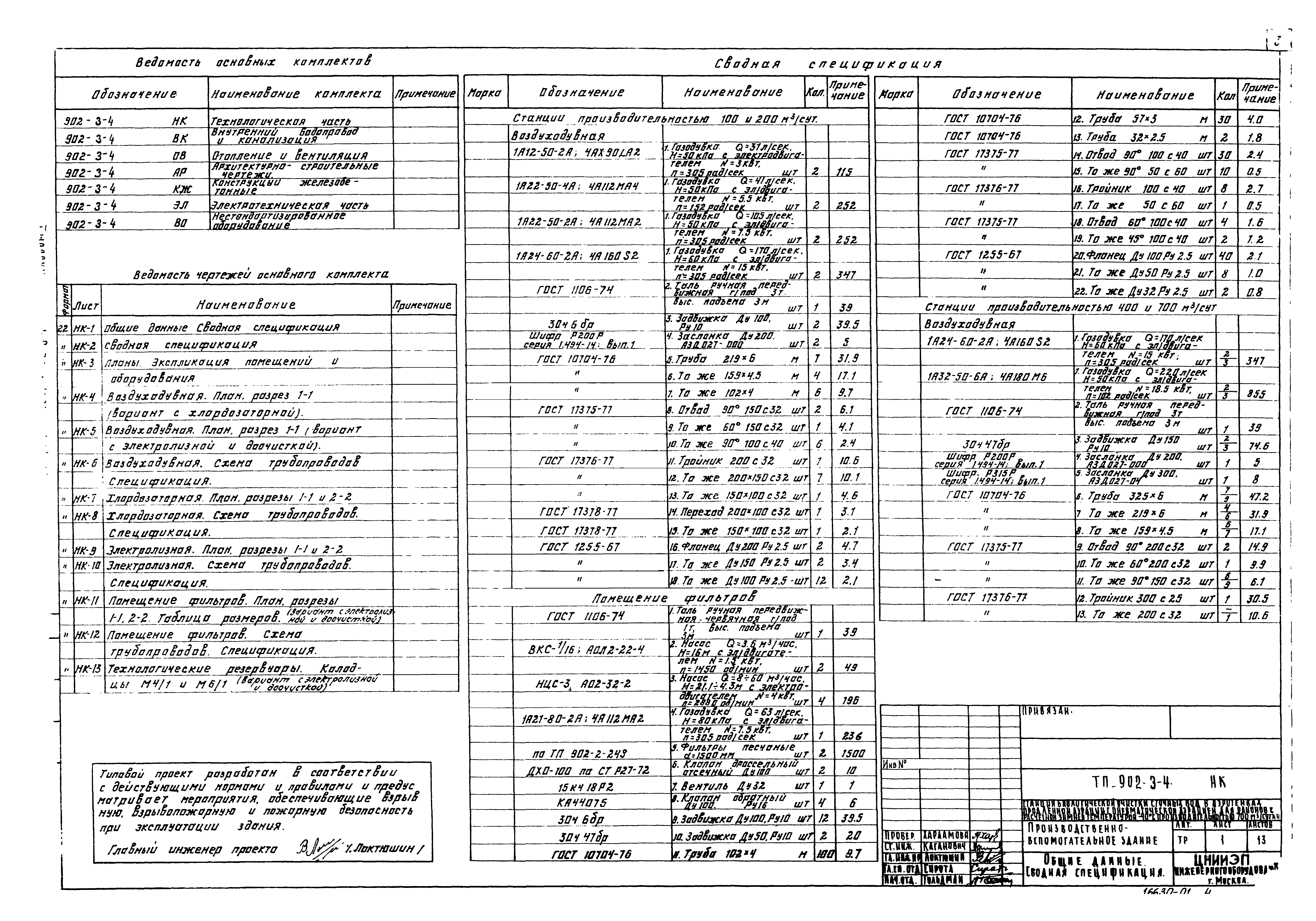
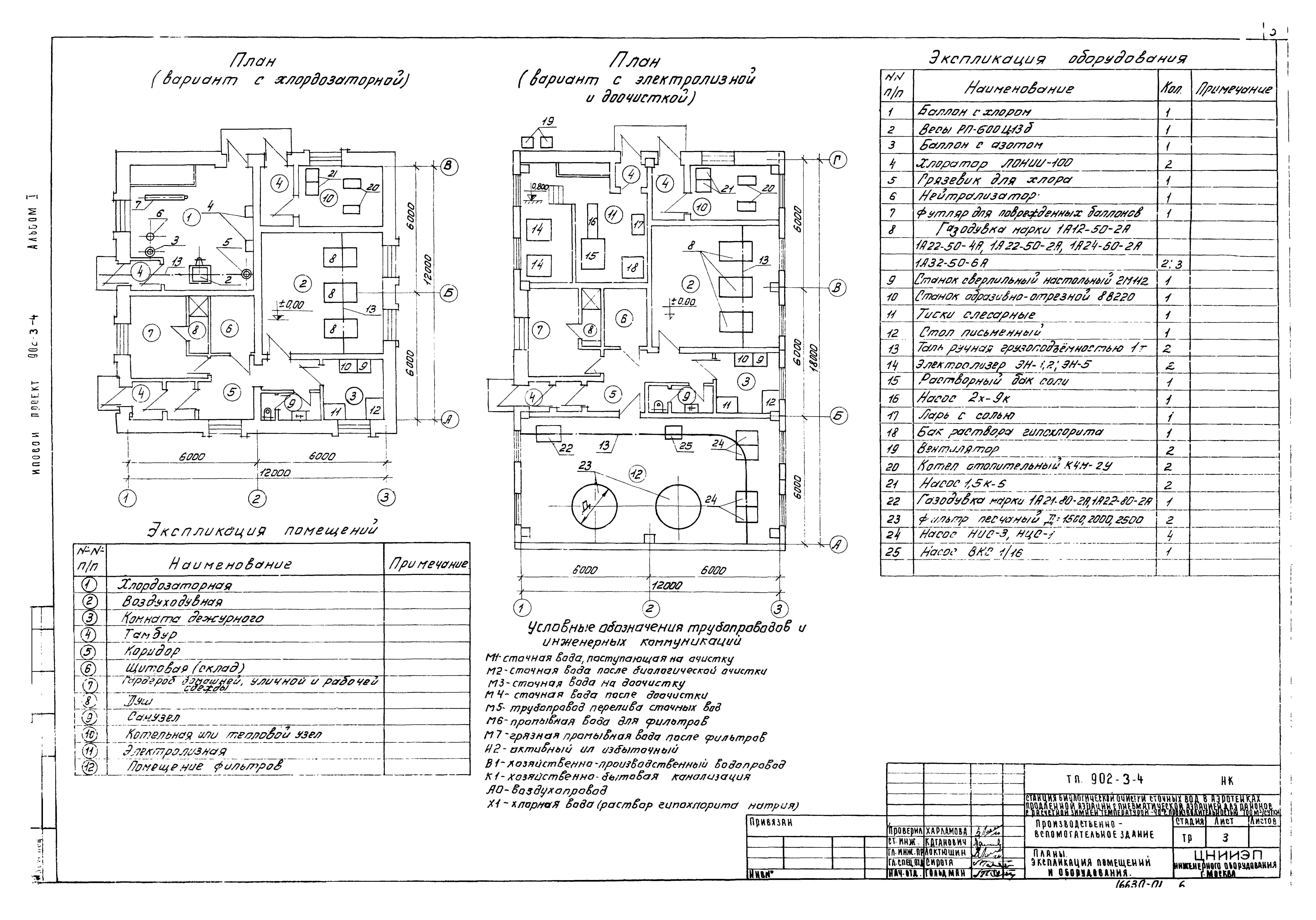
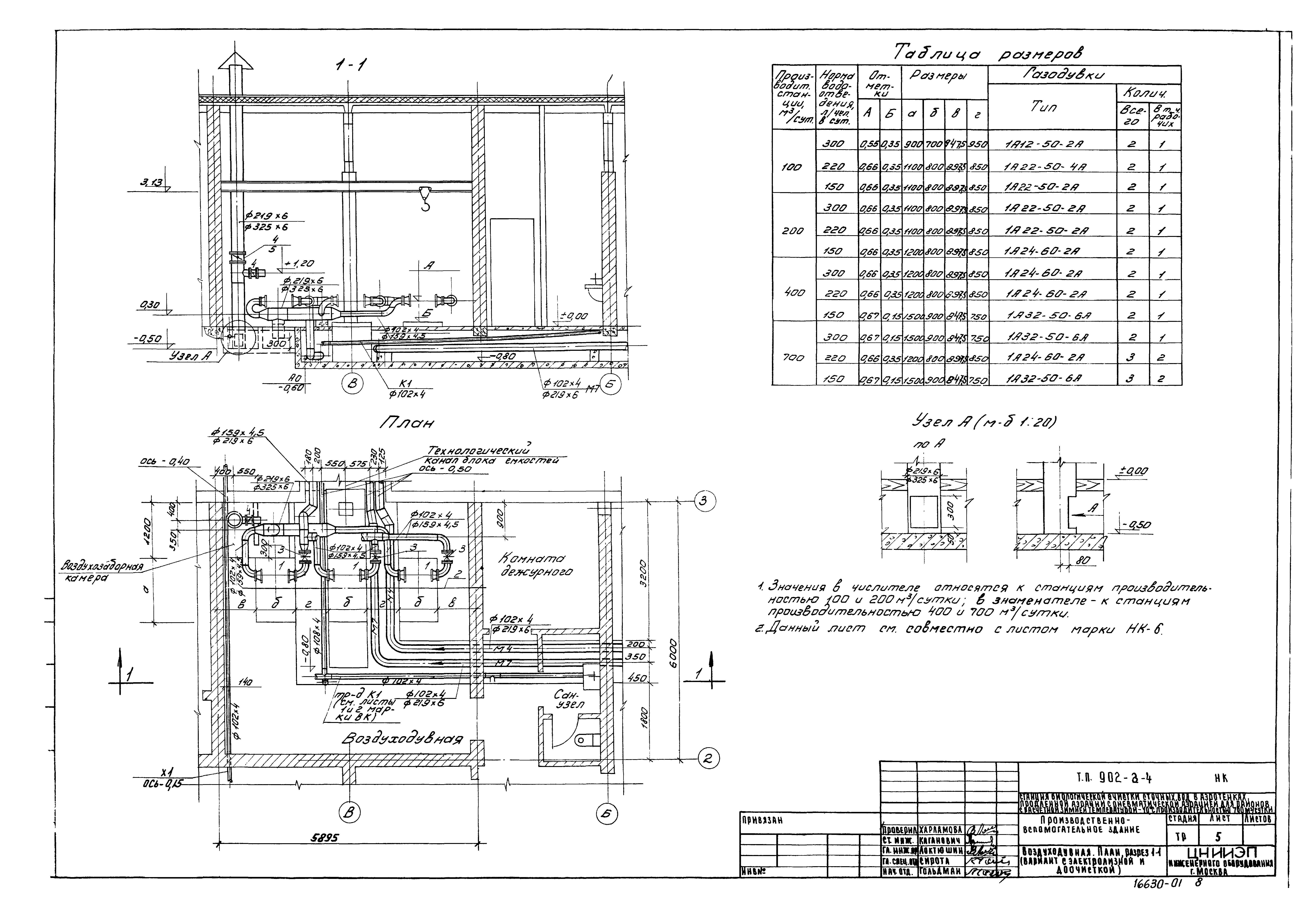
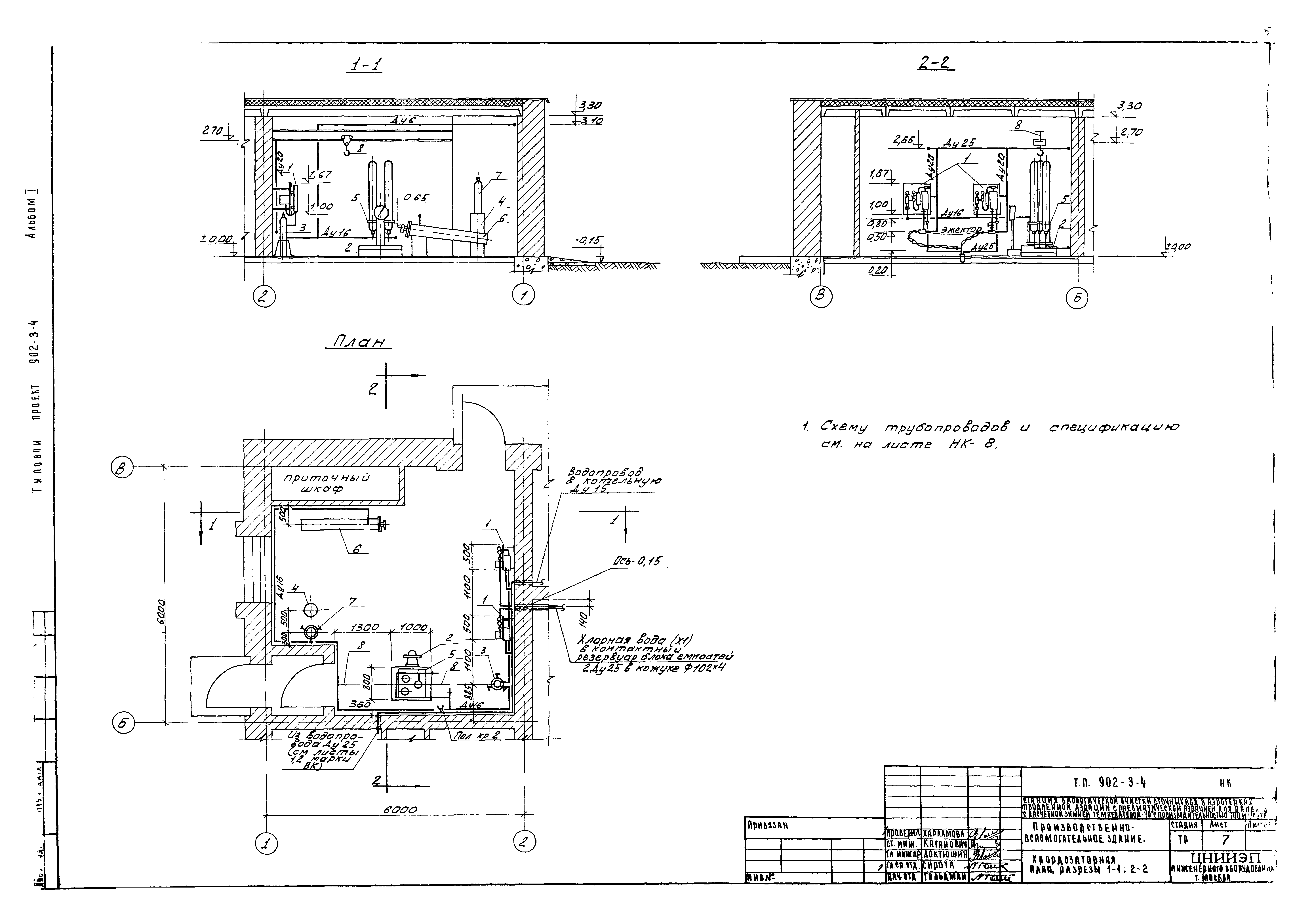
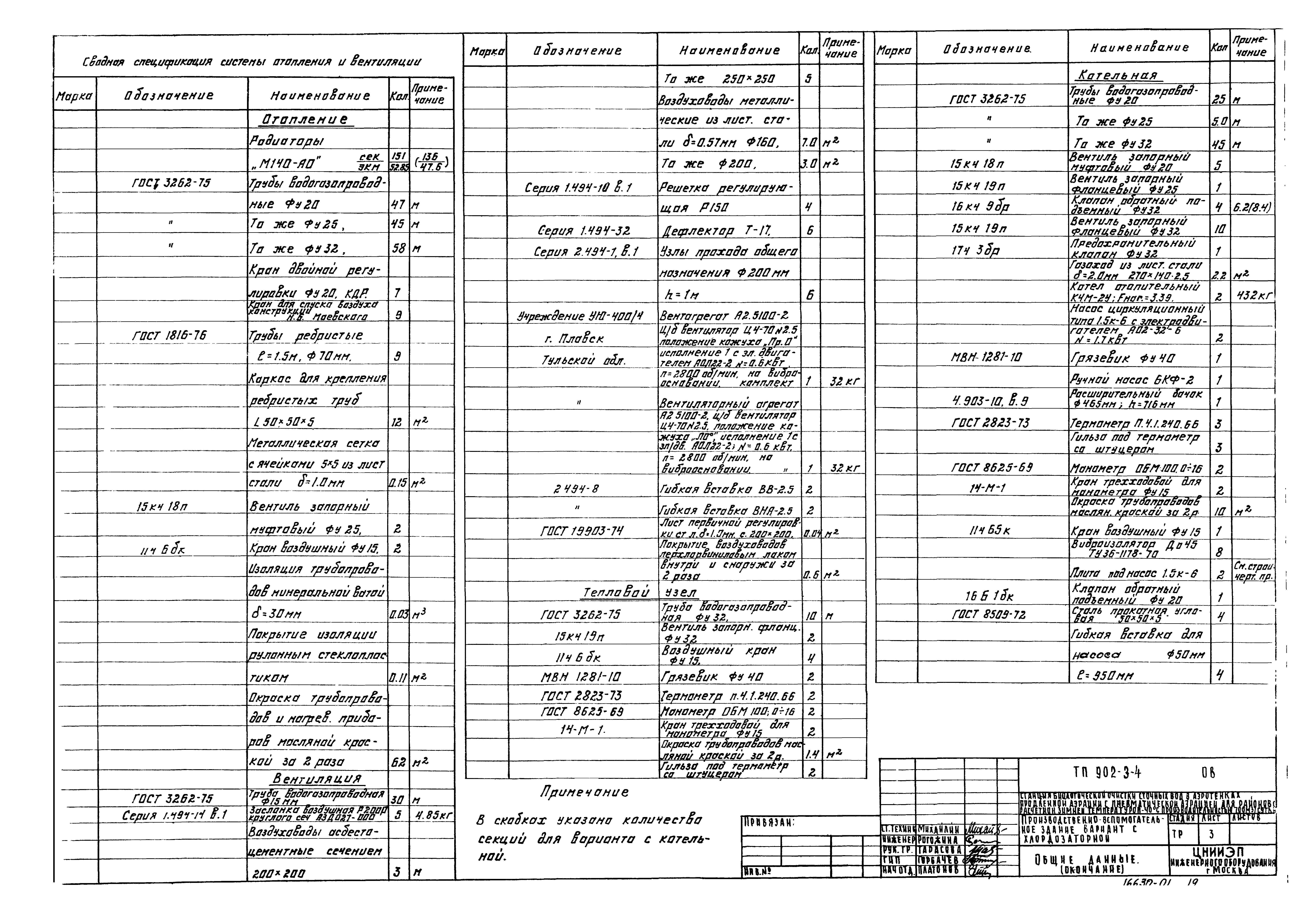
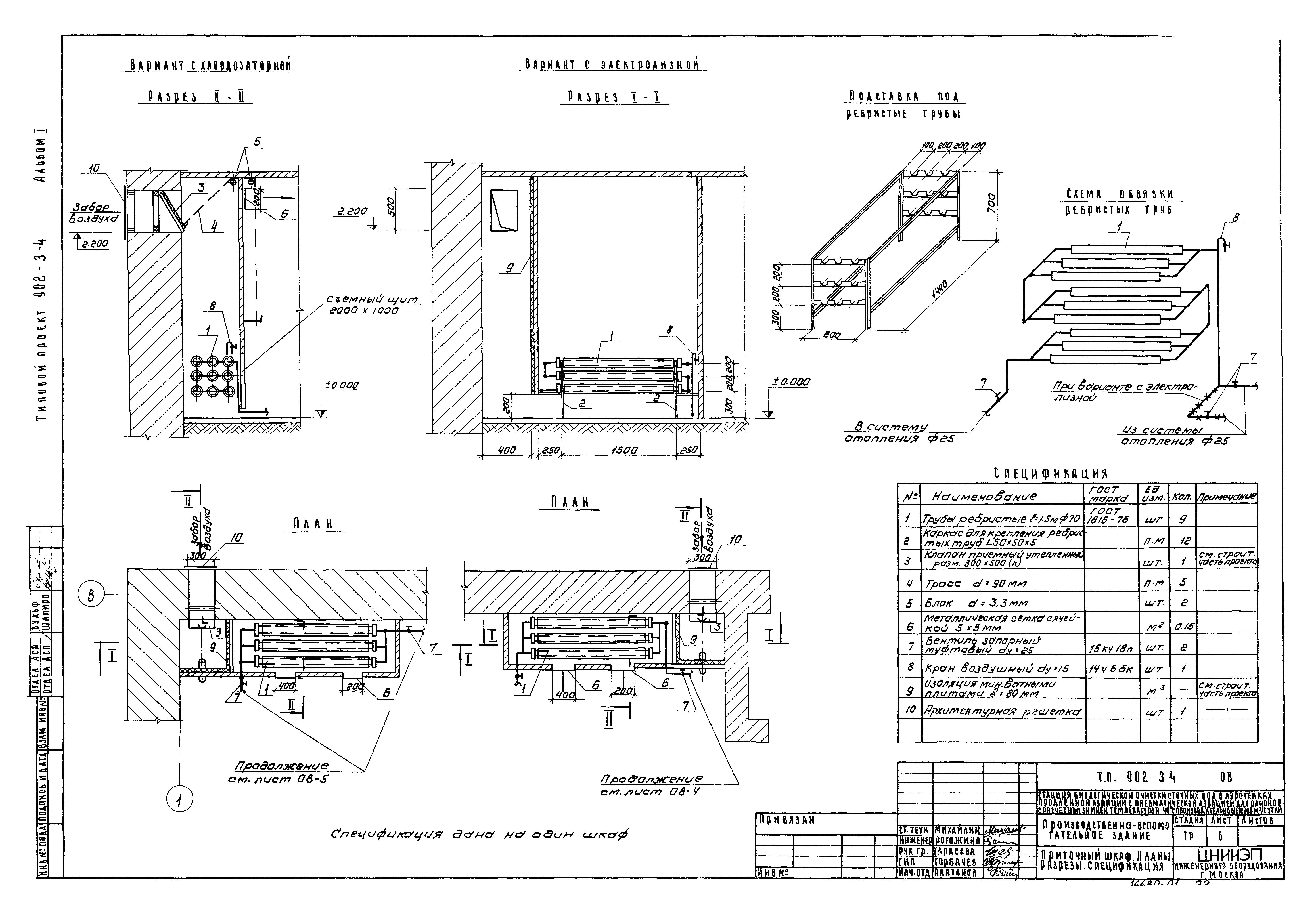
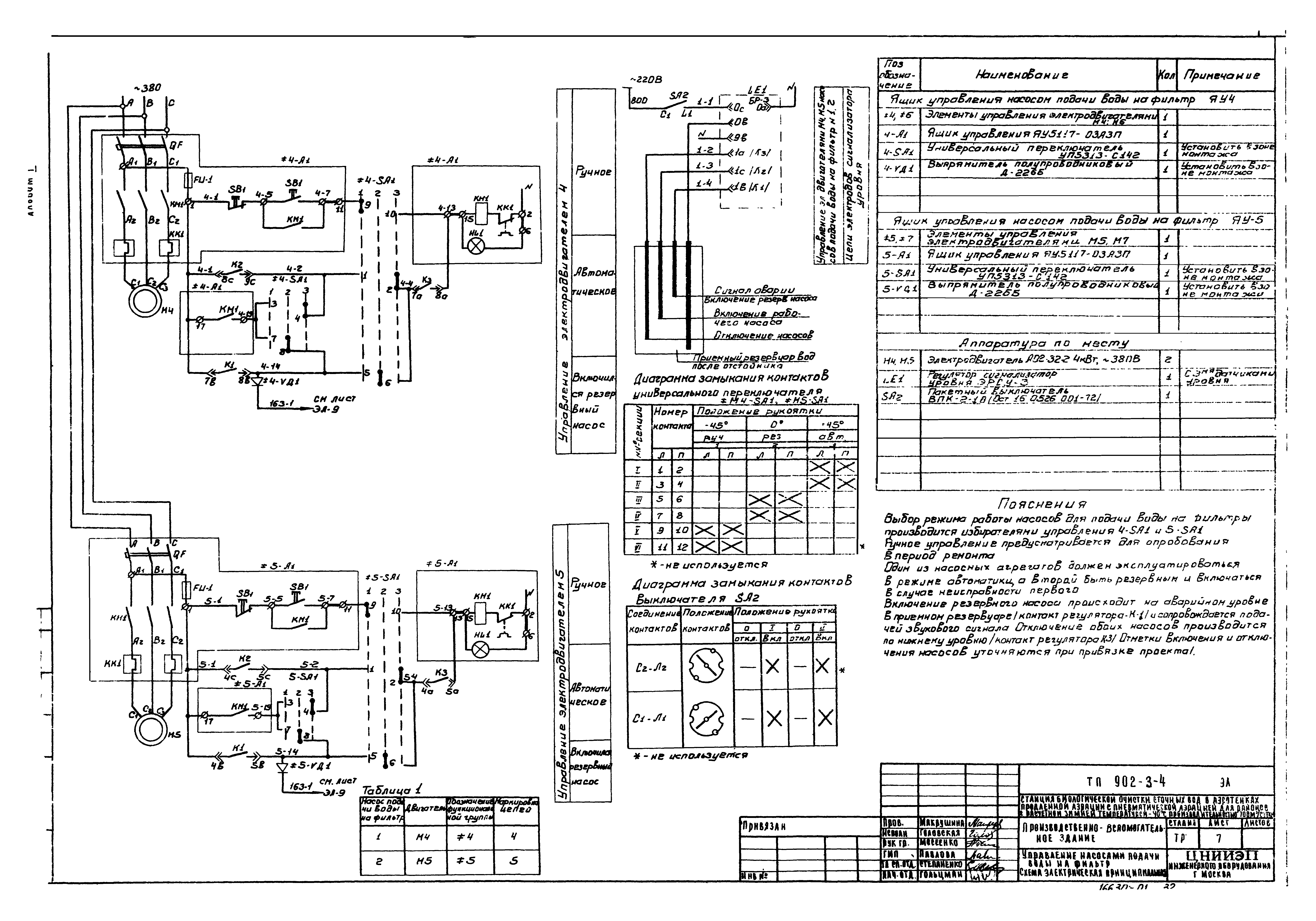
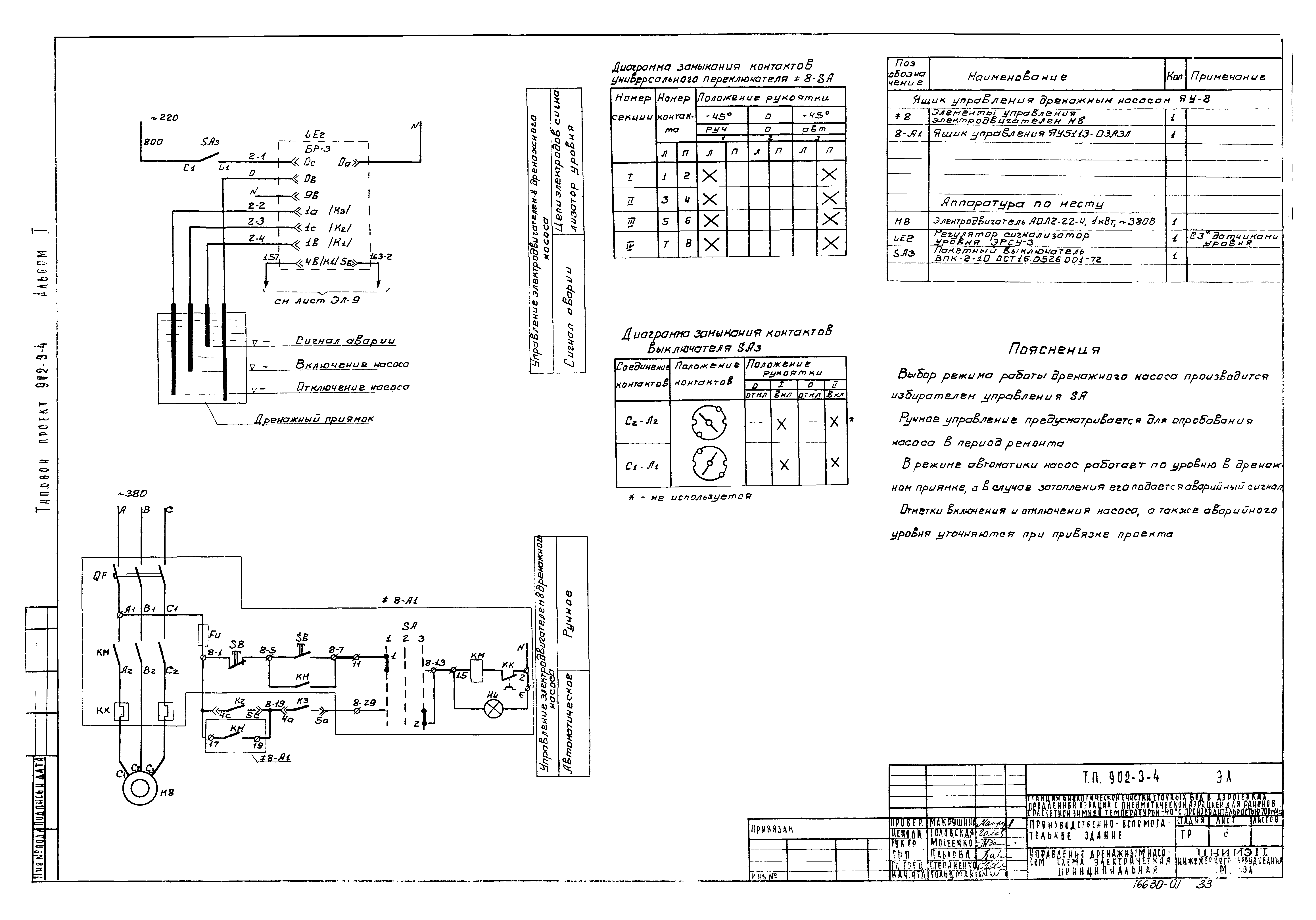
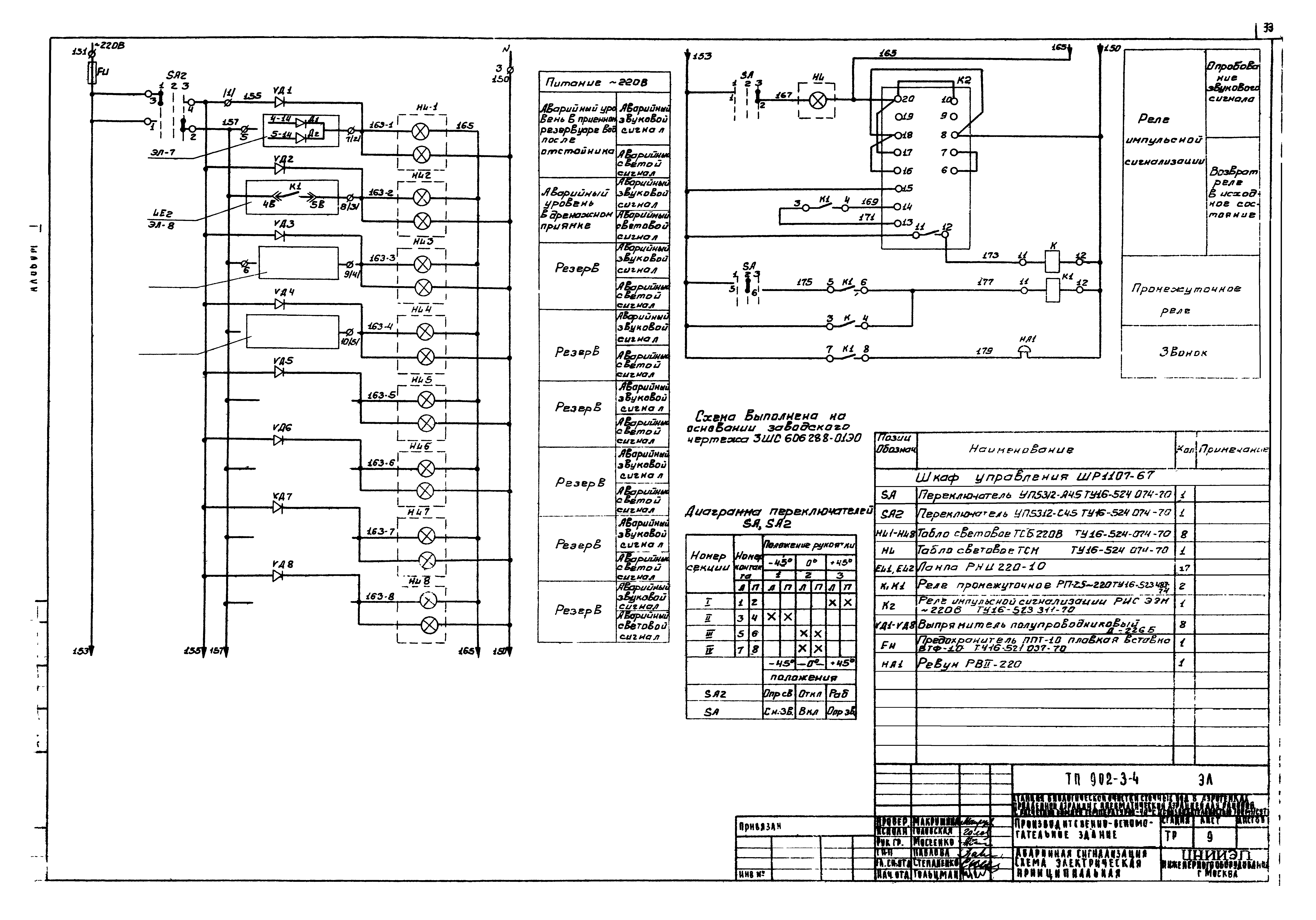
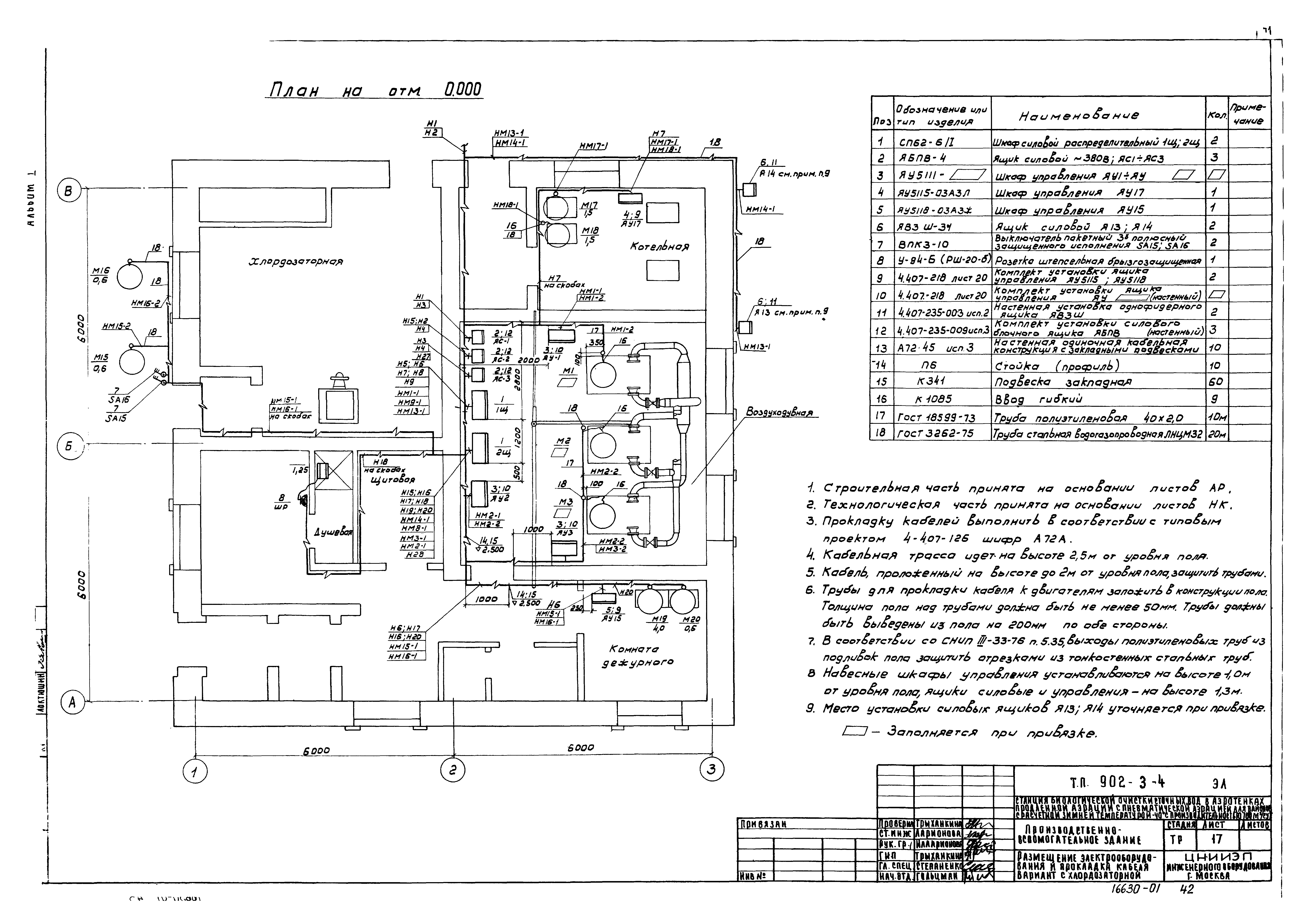
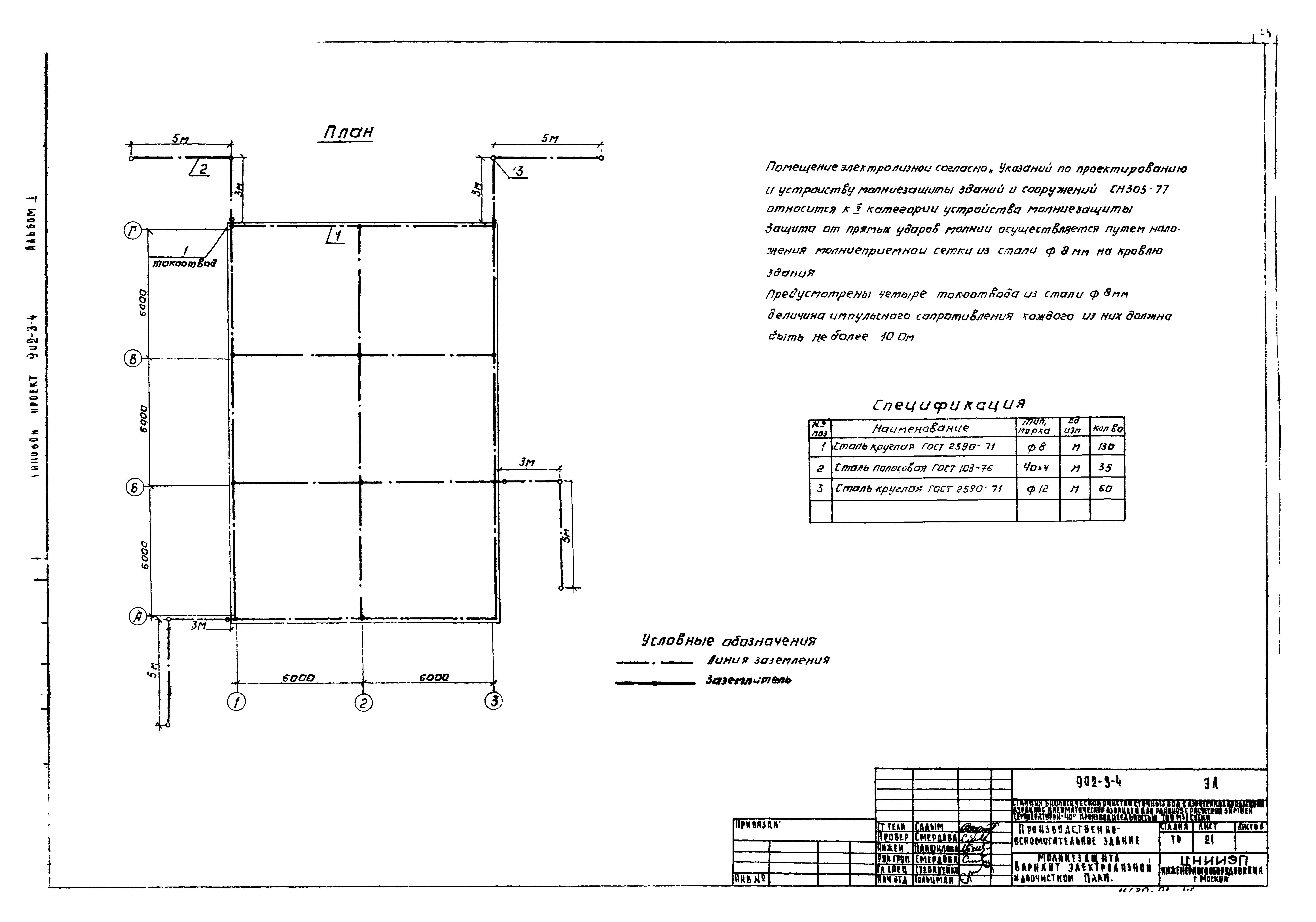
| Оглавление: | ТП 902-3-4 Содержание альбома ТП 902-3-4-НК Технологическая часть ТП 902-3-4-НК-1 Общие данные. Сводная спецификация ТП 902-3-4-НК-2 Сводная спецификация. Продолжение ТП 902-3-4-НК-3 Планы. Экспликация помещений и оборудования ТП 902-3-4-НК-4 Воздуходувная. План, разрез 1-1 (вариант с хлордозаторной) ТП 902-3-4-НК-5 Воздуходувная. План, разрез 1-1 (вариант с электролизной и доочисткой ТП 902-3-4-НК-6 Воздуходувная. Схема трубопроводов. Спецификация ТП 902-3-4-НК-7 Хлордозаторная. План, разрезы 1-1,2-2 ТП 902-3-4-НК-8 Хлордозаторная. Схема трубопроводов. Спецификация ТП 902-3-4-НК-9 Электролизная. План, разрезы 1-1,2-2 ТП 902-3-4-НК-10 Электролизная. Схема трубопроводов. Спецификация ТП 902-3-4-НК-11 Помещение фильтров. План, разрезы 1-1;2-2. Таблица размеров. (Вариант с электролизной и доочисткой) ТП 902-3-4-НК-12 Помещение фильтров. Схема трубопроводов. Спецификация ТП 902-3-4-НК-13 Технологические резервуары. Колодцы М4/1 и М6/1. (Вариант с электролизной и доочисткой) ТП 902-3-4-ОВ Санитарно-техническая часть ТП 902-3-4-ОВ-1 Общие данные (начало) ТП 902-3-4-ОВ-2 Общие данные (продолжение) ТП 902-3-4-ОВ-3 Общие данные (окончание) ТП 902-3-4-ОВ-4 План на отметке 0.000. Схемы систем отопления и вентиляции. Тепловой узел. (Вариант с электролизной и доочисткой) ТП 902-3-4-ОВ-5 План на отметке 0.000. Схемы систем отопления и вентиляции. Тепловой узел. (Вариант с хлордозаторной) ТП 902-3-4-ОВ-6 Приточный шкаф. План. Разрезы. Спецификация ТП 902-3-4-ОВ-7 Компоновка котельной. Планы. Разрез 1-1. Тепловая схема. Спецификация ТП 902-3-4-ВК-1 Общие данные. Сводная спецификация систем водопровода и канализации ТП 902-3-4-ВК-1 Планы. Схемы трубопроводов водопровода (В1) и канализации (К1) ТП 902-3-4-ЭЛ Электротехническая часть ТП 902-3-4-ЭЛ-1 Общие данные ТП 902-3-4-ЭЛ-2 Ведомость электрооборудования, изделий и материалов (начало) ТП 902-3-4-ЭЛ-3 Ведомость электрооборудования, изделий и материалов (окончание) ТП 902-3-4-ЭЛ-4 Ведомость электрооборудования, изделий и материалов электроосвещения (начало) ТП 902-3-4-ЭЛ-5 Ведомость электрооборудования, изделий и материалов электроосвещения (окончание) ТП 902-3-4-ЭЛ-6 Питание электрооборудования. Схема принципиальная электрическая ТП 902-3-4-ЭЛ-7 Управление насосами подачи воды на фильтр. Схема электрическая принципиальная ТП 902-3-4-ЭЛ-8 Управление дренажным насосом. Схема электрическая принципиальная ТП 902-3-4-ЭЛ-9 Аварийная сигнализация. Схема электрическая принципиальная ТП 902-3-4-ЭЛ-10 Схема подключения электрооборудования (начало) ТП 902-3-4-ЭЛ-11 Схема подключения электрооборудования (окончание) ТП 902-3-4-ЭЛ-12 Таблица 2. выбора плавких вставок предохранителей шкафов СПБ2. Схема подключения приборов технологического контроля ТП 902-3-4-ЭЛ-13 Кабельный журнал (начало) ТП 902-3-4-ЭЛ-14 Кабельный журнал (окончание) ТП 902-3-4-ЭЛ-15 Размещение электрооборудования и прокладка кабеля. Вариант с электролизной и доочисткой ТП 902-3-4-ЭЛ-16 Размещение электрооборудования и прокладка кабеля. Помещение фильтров ТП 902-3-4-ЭЛ-17 Размещение электрооборудования и прокладка кабеля. Вариант с хлордозаторной ТП 902-3-4-ЭЛ-18 Электрическое освещение. Вариант с электролизной и доочисткой. План на отметке 0.000 ТП 902-3-4-ЭЛ-19 Электрическое освещение. Вариант с хлордозаторной. План на отметке 0.000 ТП 902-3-4-ЭЛ-20 Заземление. Вариант с электролизной и доочисткой. План на отметке 0.000 ТП 902-3-4-ЭЛ-21 Молниезащита. Вариант с электролизной и доочисткой. План ТП 902-3-4-ЭЛ-22 Заземление. Молниезащита. Вариант с хлордозаторной. План на отметке 0.000 ТП 902-3-4-ЭЛ-23 Попанельная спецификация и опросный лист для заказа шкафа ШР1107-67 ТП 902-3-4-ЭЛ-24 План на отметке 0.000 с нанесение сетей связи и радиофикации ТП 902-3-4 Нестандартизированное оборудование ТП 902-3-4-805.00.000.ВО Нейтрализатор. Чертеж общего вида ТП 902-3-4-806.00.000.ВО Грязевик для хлора. Чертеж общего вида ТП 902-3-4-807.00.000.ВО Подставка на весах для трех баллонов. Чертеж общего вида. Лист 1 ТП 902-3-4-807.00.000.ВО Подставка на весах для трех баллонов. Чертеж общего вида. Лист 2 ТП 902-3-4-808.00.000.ВО Футляр для поврежденных баллонов. Чертеж общего вида. Лист 1 ТП 902-3-4-808.00.000.ВО Футляр для поврежденных баллонов. Расчеты. Чертеж общего вида. Лист 2 |
| Разработан: | ЦНИИЭП |
| Утверждён: | 06.08.1979 Госгражданстрой (Gosgrazhdanstroy 173) |























































