Скачать Типовой проект 902-3-4 Альбом III. Архитектурно-строительная часть. Вариант с электролизной и доочисткойДата актуализации: 01.01.2021
|
| Обозначение: | Типовой проект 902-3-4 |
| Обозначение англ: | 902-3-4 |
| Статус: | действует |
| Название рус.: | Альбом III. Архитектурно-строительная часть. Вариант с электролизной и доочисткой |
| Дата добавления в базу: | 01.09.2013 |
| Дата актуализации: | 01.01.2021 |
| Дата введения: | 30.11.1979 |
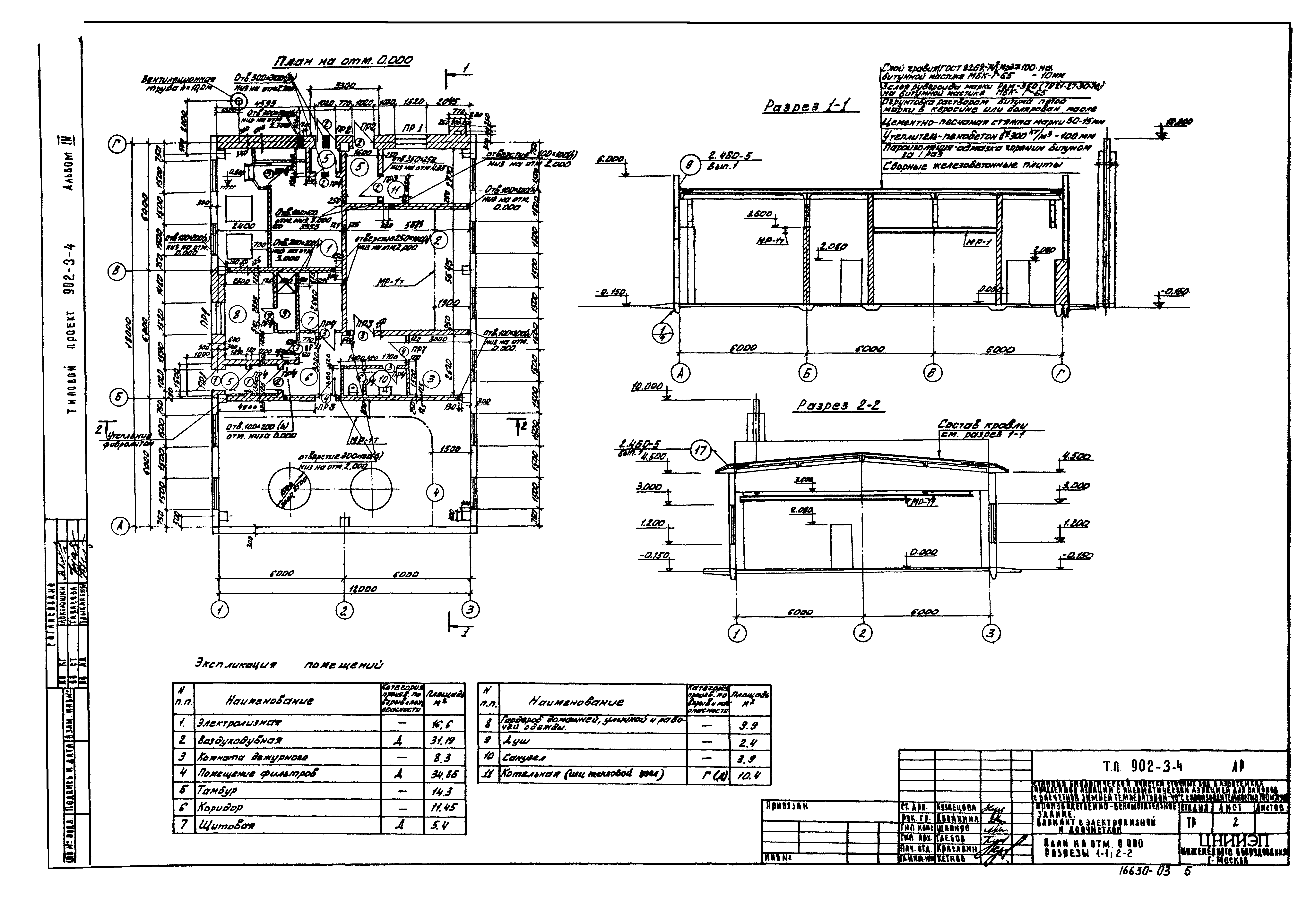
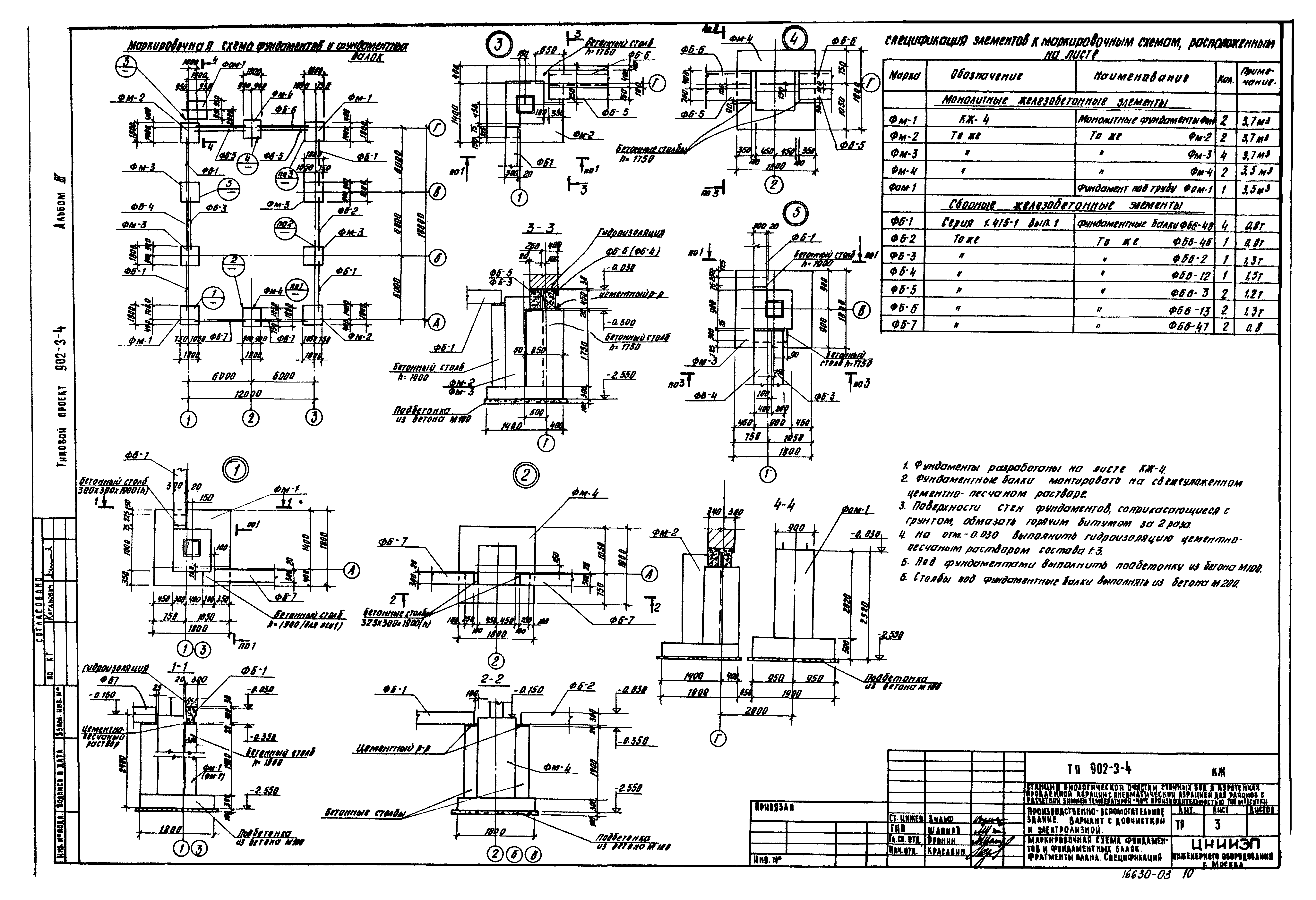
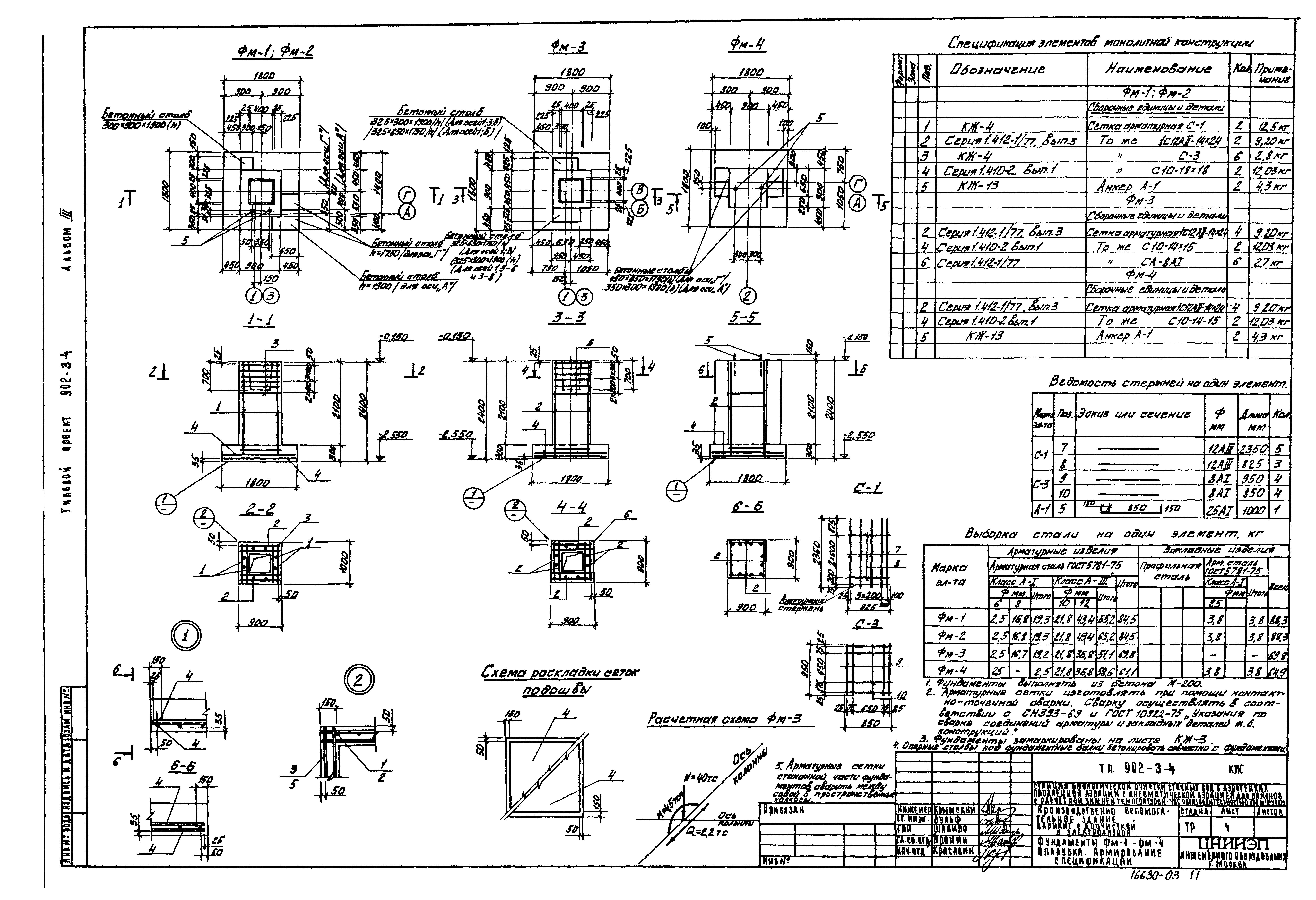
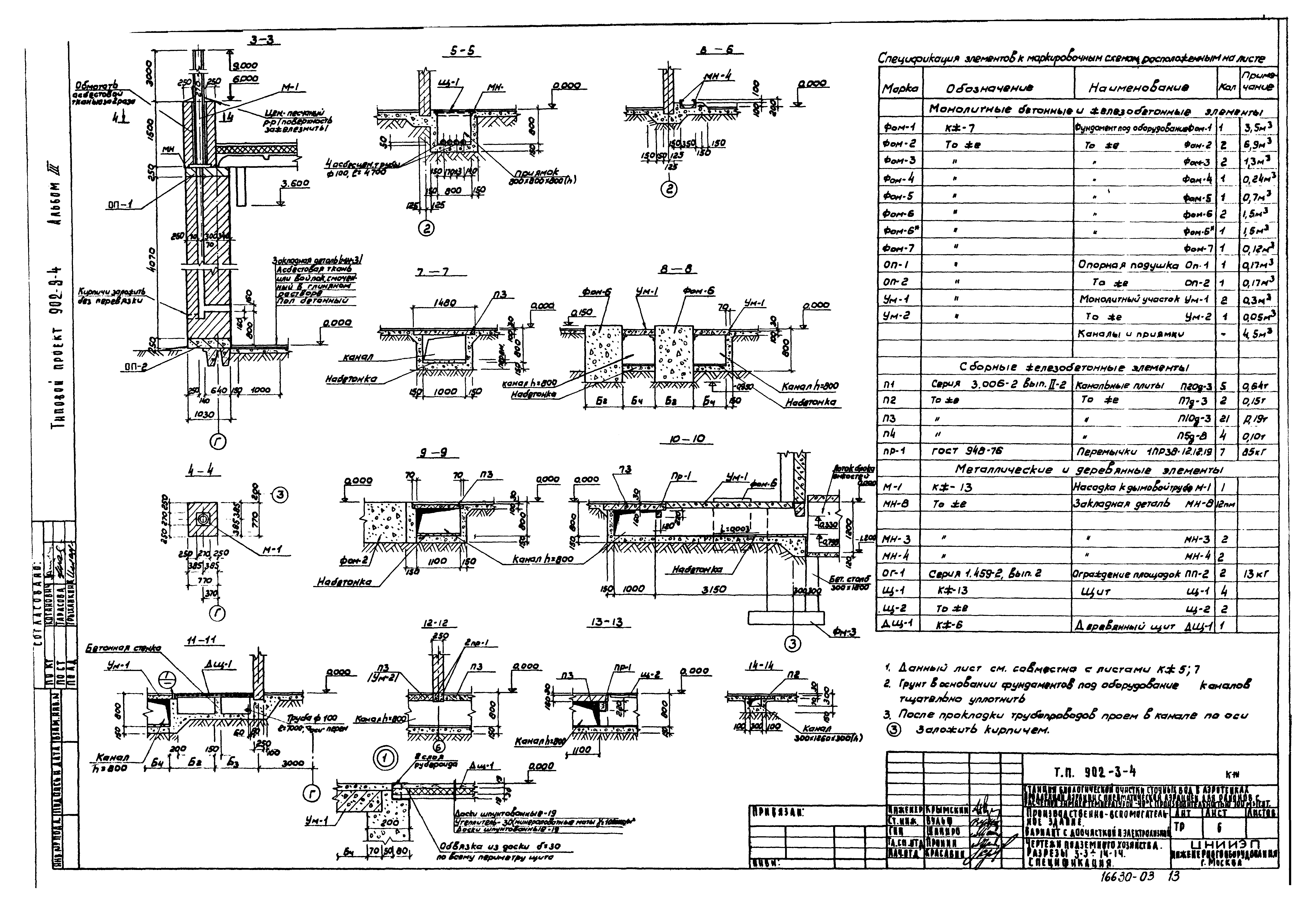
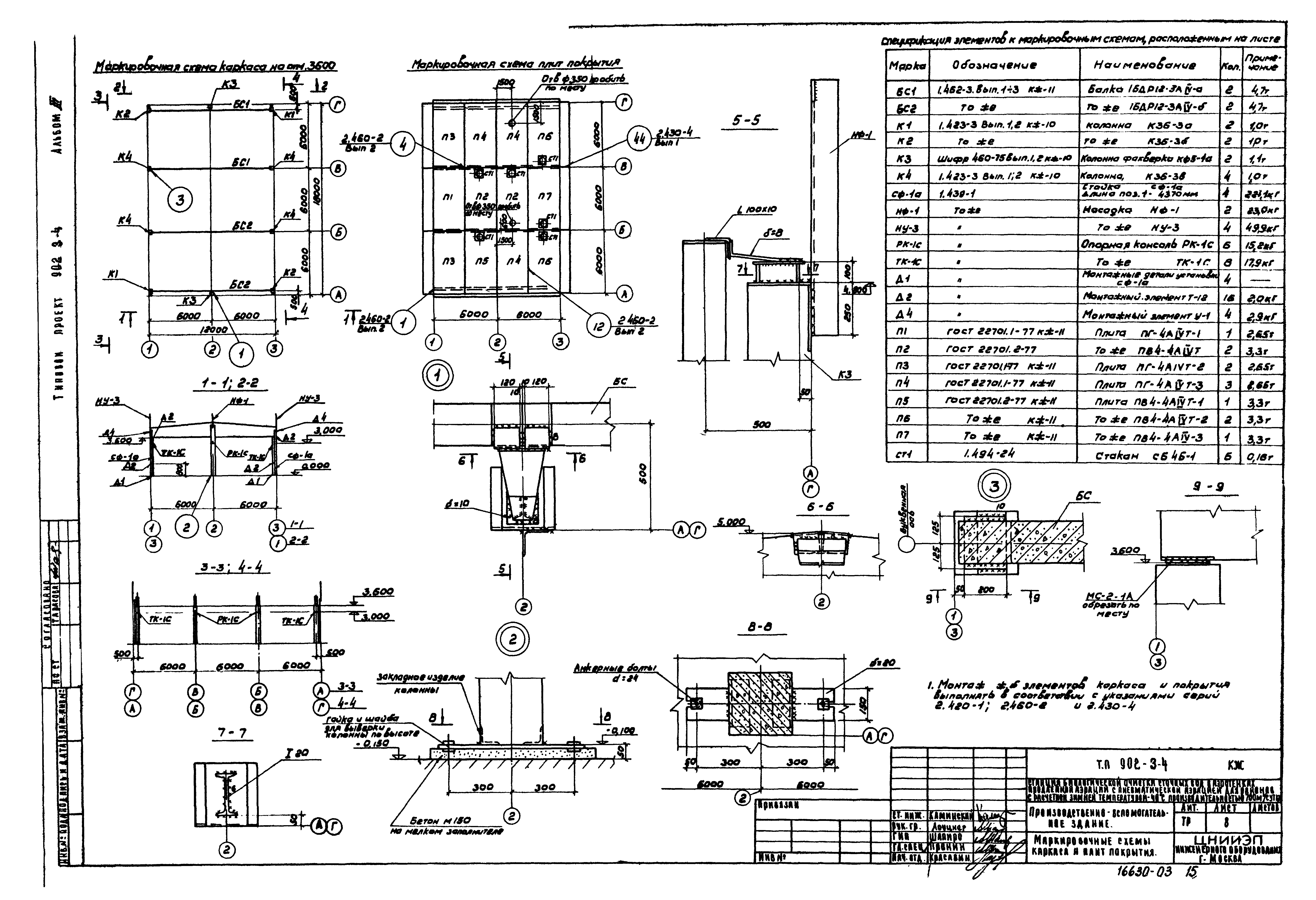
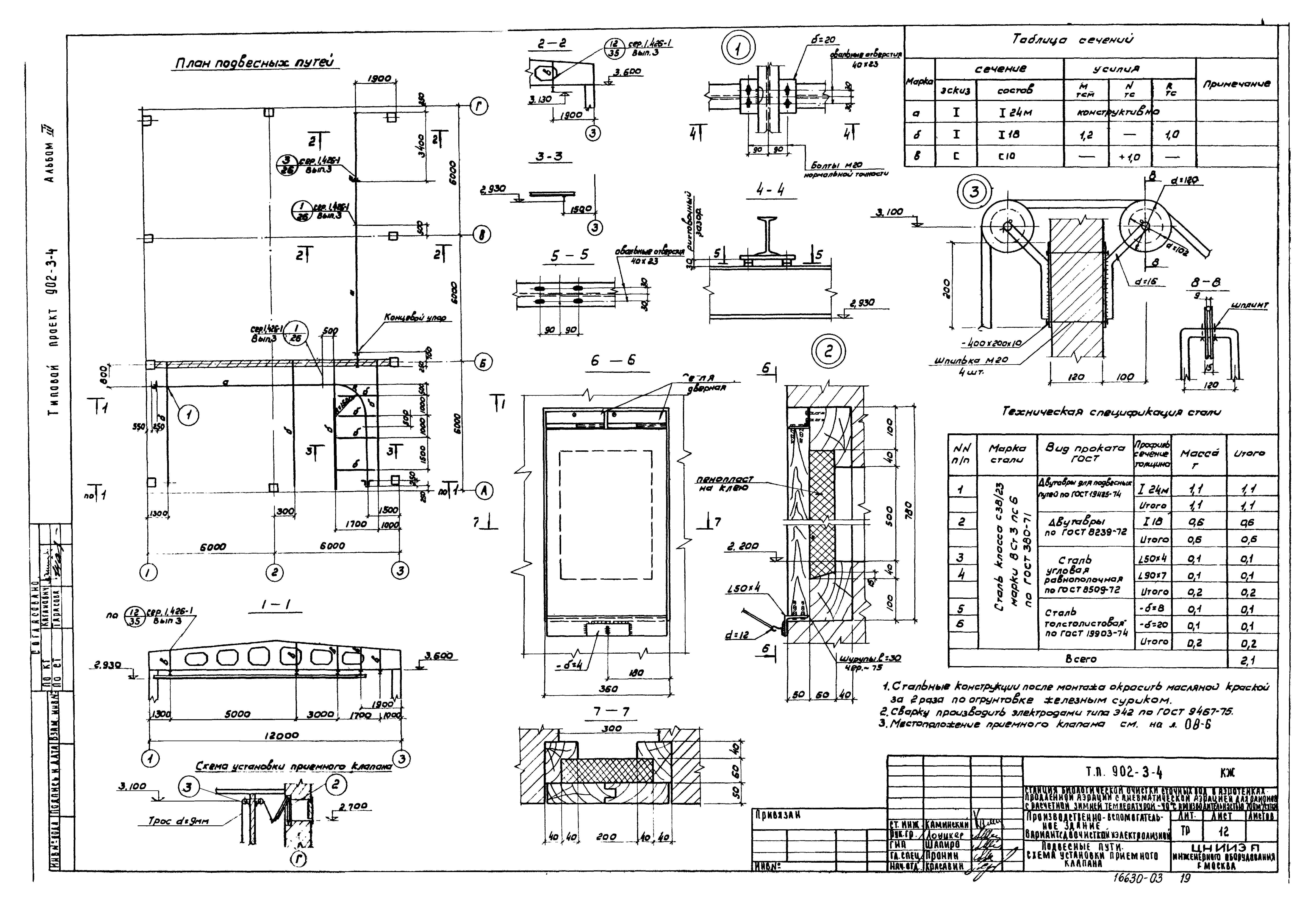
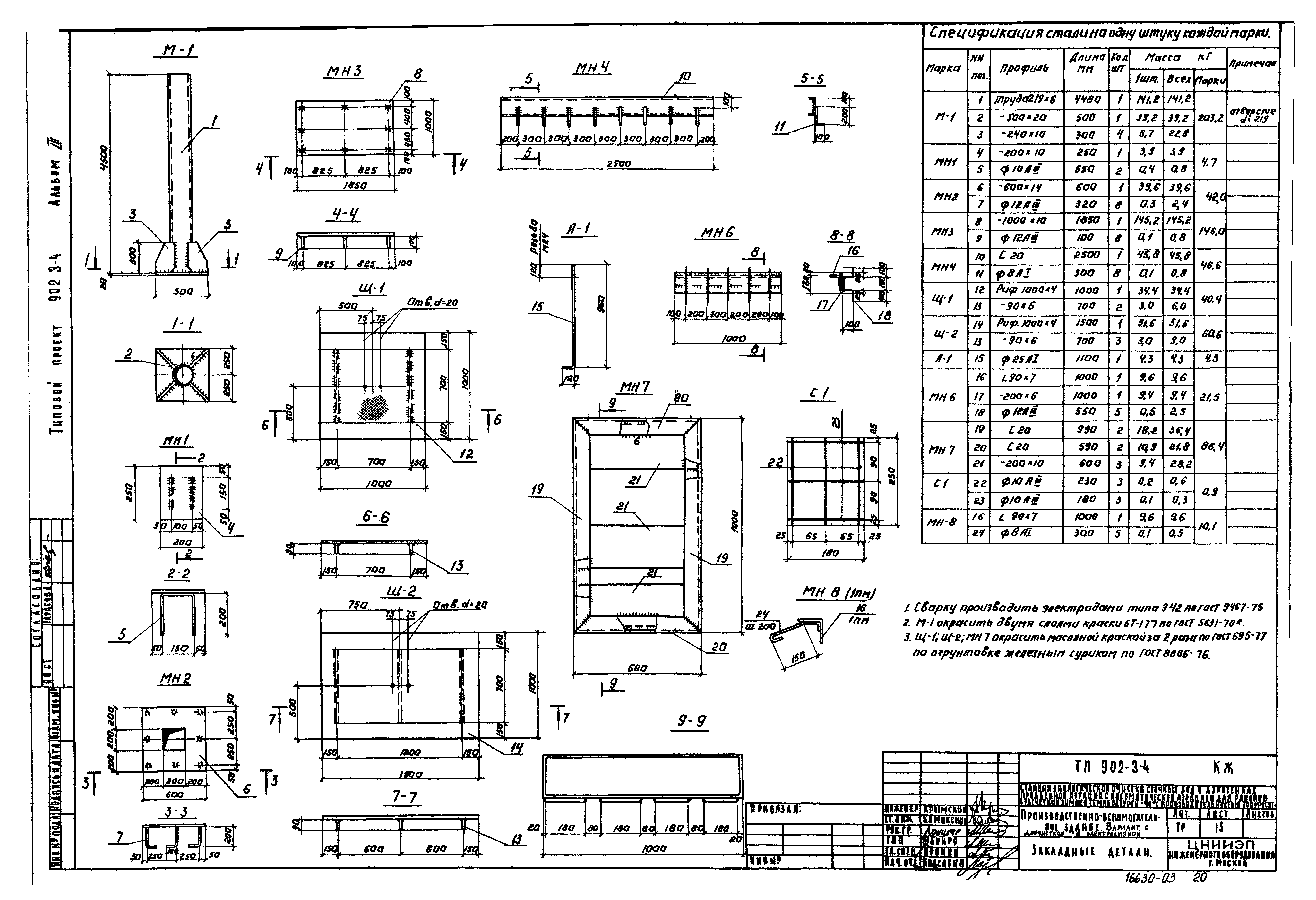
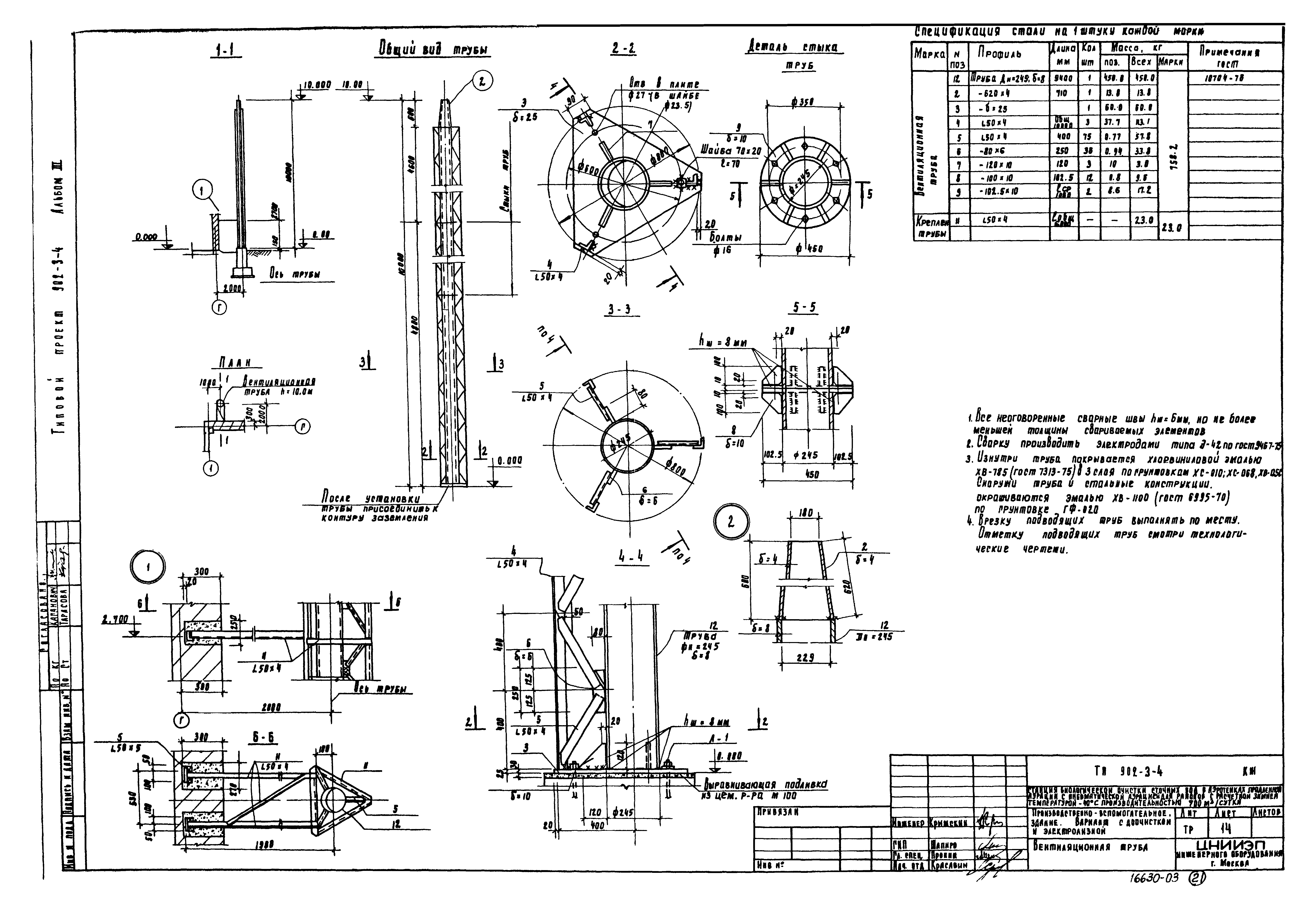
| Оглавление: | ТП 902-3-4 Содержание альбома ТП 902-3-4-АР Архитектурно-строительная часть ТП 902-3-4-АР-1 Общие данные ТП 902-3-4-АР-2 План на отметке 0.000. Разрезы 1-1;2-2 ТП 902-3-4-АР-3 Фасады А-Г;Г-А;1-3;3-1 ТП 902-3-4-АР-4 Экспликация полов. План полов, план кровли. Ведомость отделки помещений ТП 902-3-4-КЖ Конструкции железобетонные ТП 902-3-4-КЖ-1 Общие данные (начало) ТП 902-3-4-КЖ-2 Общие данные (продолжение) ТП 902-3-4-КЖ-3 Маркировочная схема фундаментов и фундаментных балок. Фрагменты плана. Спецификация ТП 902-3-4-КЖ-4 Фундаменты ФМ1-ФМ4. Опалубка. Армирование. Спецификации ТП 902-3-4-КЖ-5 Чертежи подземного хозяйства. План фундаментов под оборудование. План каналов. План перекрытия каналов. Разрезы 1-1;2-2 ТП 902-3-4-КЖ-6 Чертежи подземного хозяйства. Разрезы 3-3÷14-14. Спецификация ТП 902-3-4-КЖ-7 Чертежи подземного хозяйства. Фундаменты под оборудование. Спецификация ТП 902-3-4-КЖ-8 Маркировочные схемы каркаса и плит покрытия ТП 902-3-4-КЖ-9 Маркировочные схемы стеновых панелей ТП 902-3-4-КЖ-10 Сборные элементы К-1÷К-4. Опалубочный чертеж ТП 902-3-4-КЖ-11 Расположение дополнительных закладных изделий в плитах и балках ТП 902-3-4-КЖ-12 Подвесные пути. Схема установки приемного клапана ТП 902-3-4-КЖ-13 Закладные детали ТП 902-3-4-КЖ-14 Вентиляционная труба |
| Разработан: | ЦНИИЭП |
| Утверждён: | 06.08.1979 Госгражданстрой (Gosgrazhdanstroy 173) |




















