Скачать Типовой проект 505-53 Альбом I. Пояснительная запискаДата актуализации: 01.01.2021
|
| Обозначение: | Типовой проект 505-53 |
| Обозначение англ: | 505-53 |
| Статус: | действует |
| Название рус.: | Альбом I. Пояснительная записка |
| Дата добавления в базу: | 01.09.2013 |
| Дата актуализации: | 01.01.2021 |
| Дата введения: | 19.02.1975 |
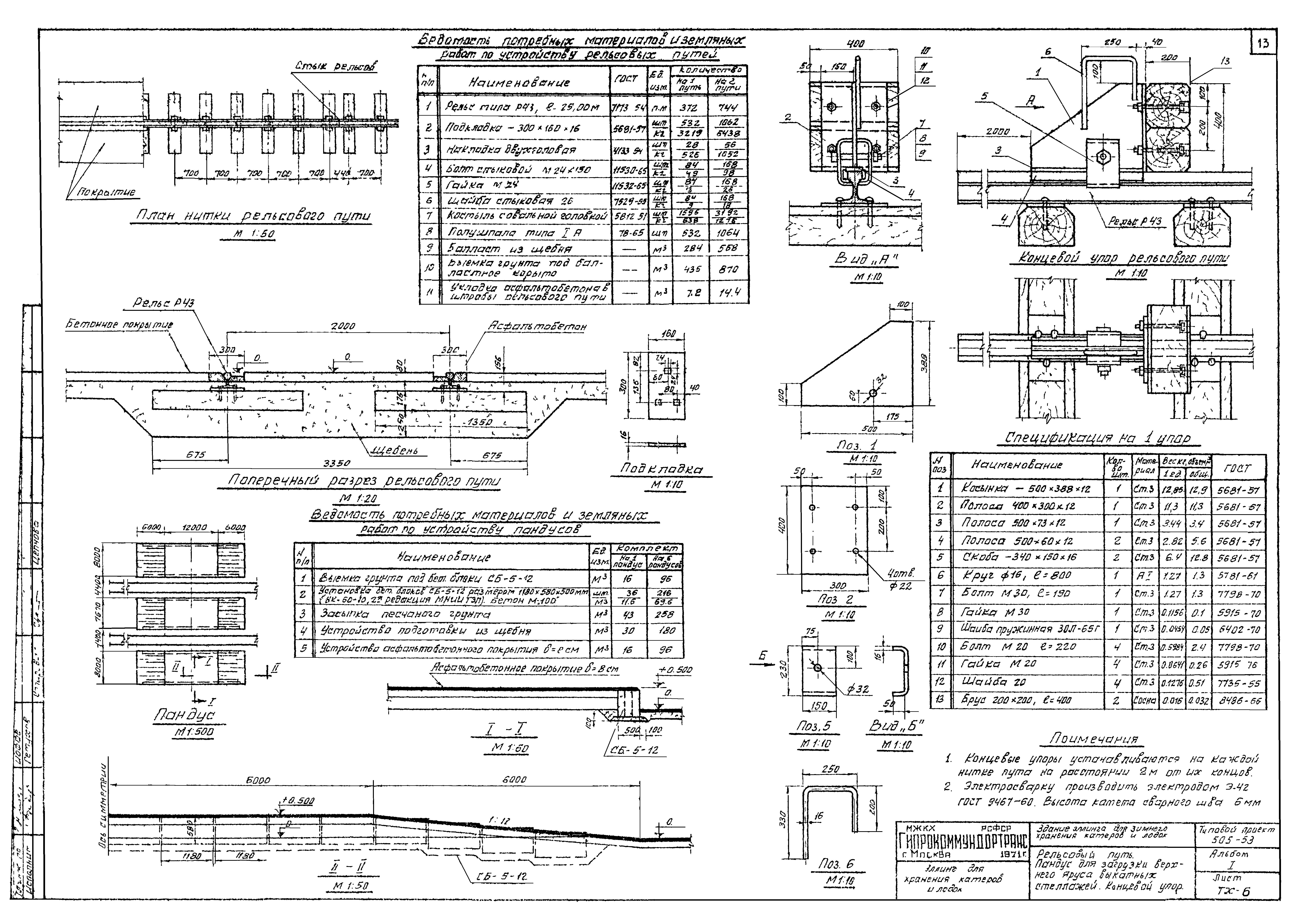
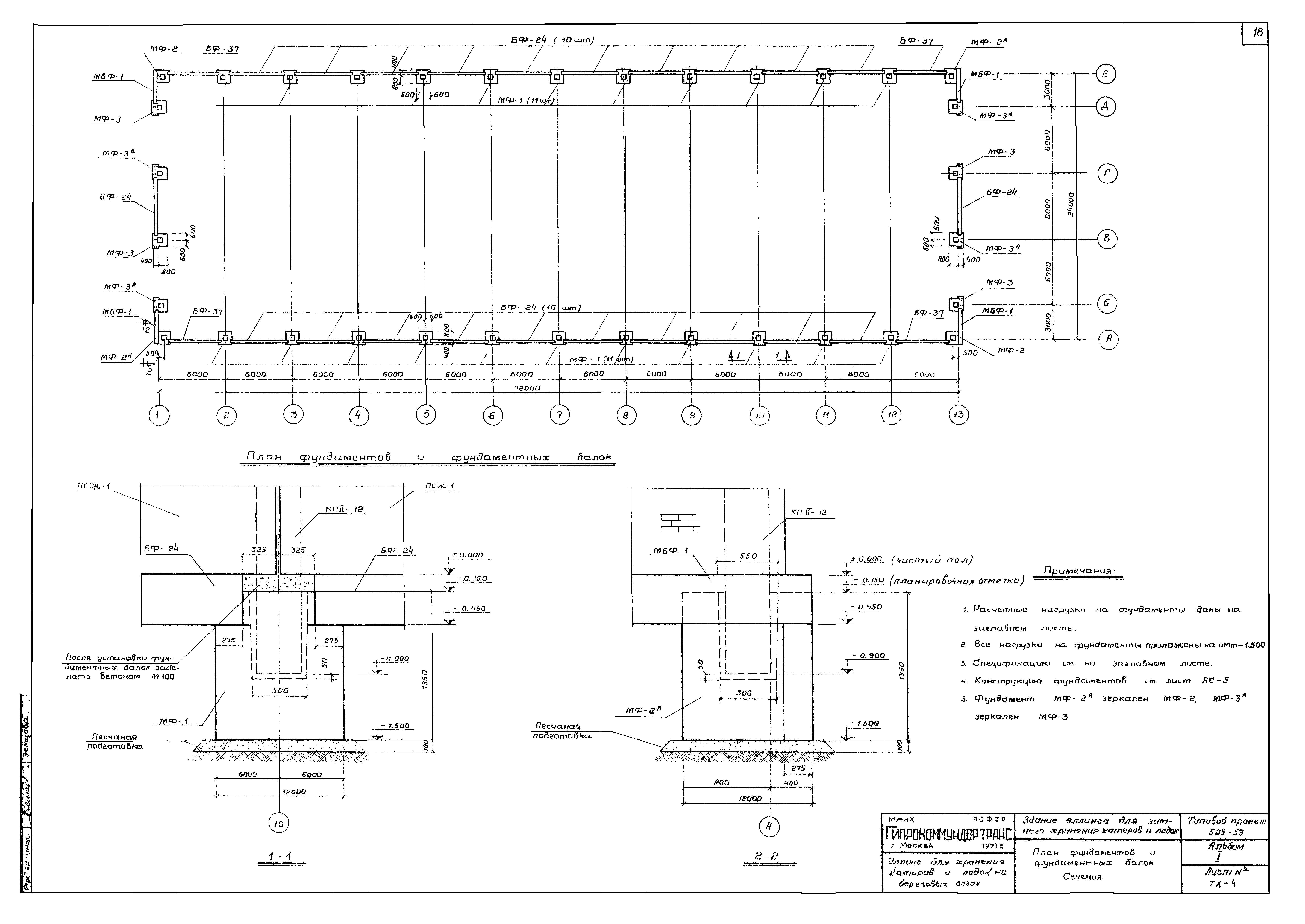
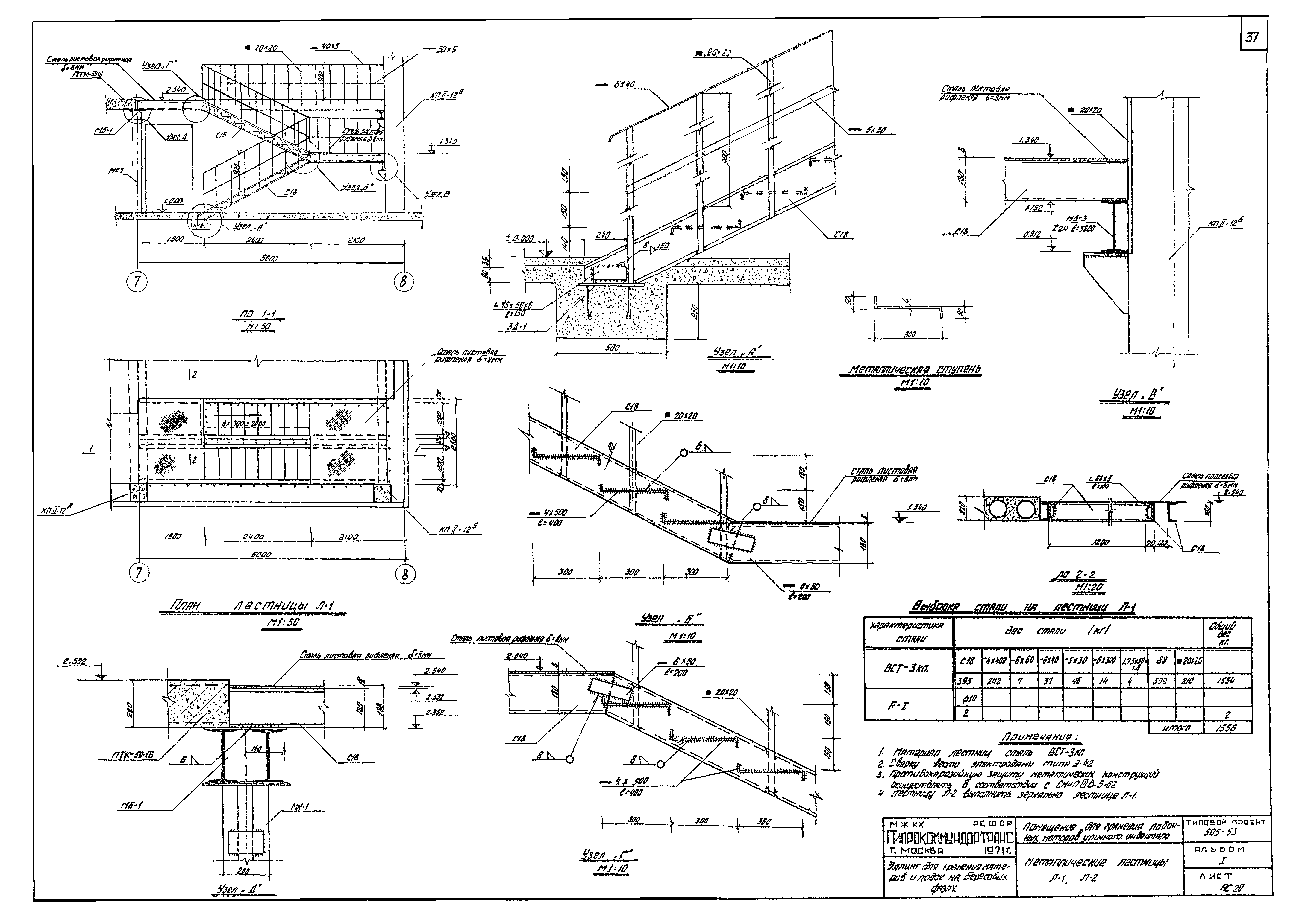
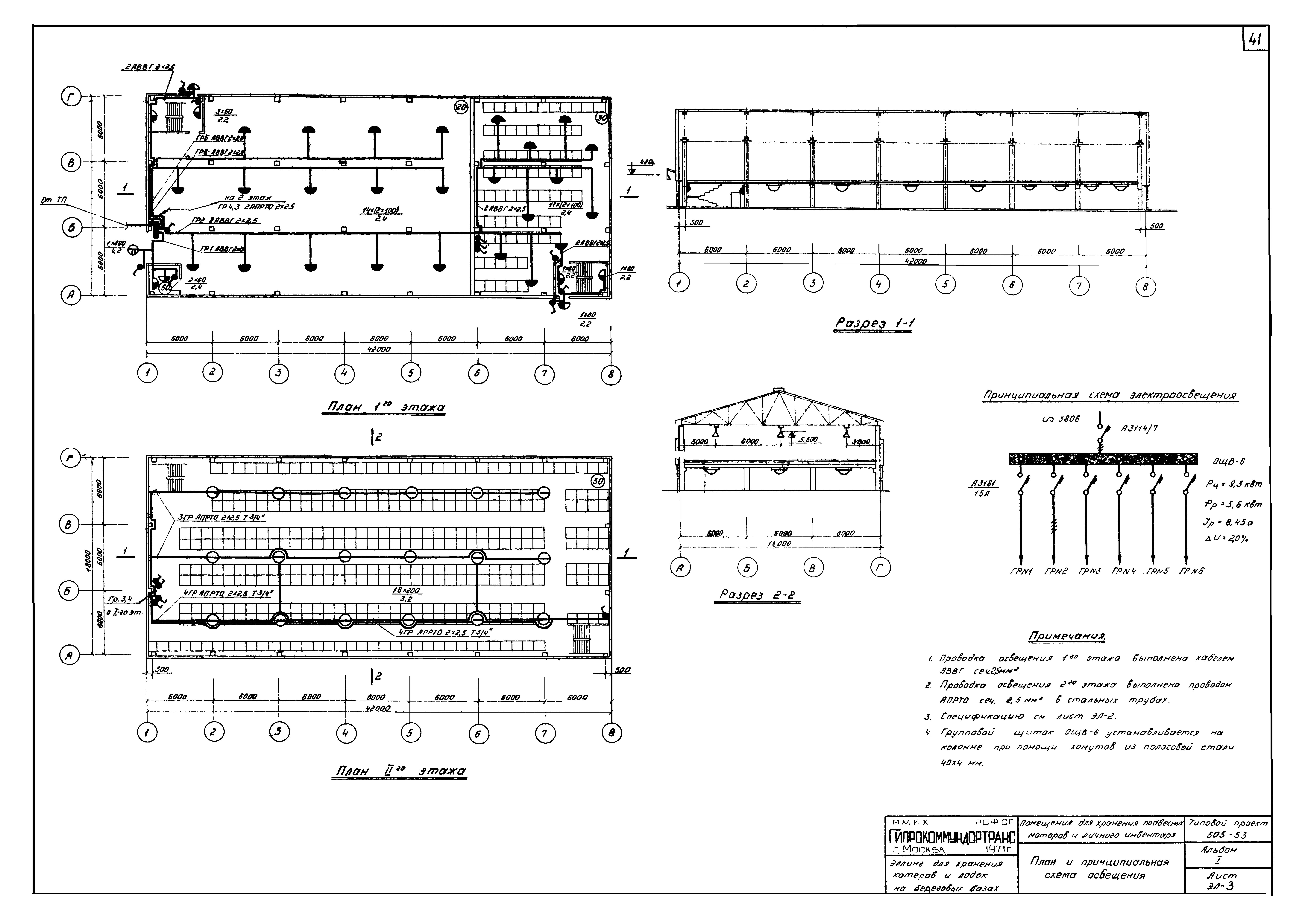
| Оглавление: | ТП 505-53 Титульный лист ТП 505-53 Перспективы ТП 505-53 Содержание альбома ТП 505-53 Пояснительная записка ТП 505-53 Здание эллинга для хранения катеров и лодок ТП 505-53-ТХ Технологическая часть ТП 505-53-ТХ-1 Заглавный лист ТП 505-53-ТХ-2 Технологическая схема загрузки стеллажей эллинга ТП 505-53-ТХ-3 Расстановка стеллажей в здании эллинга ТП 505-53-ТХ-4 Стационарные стеллажи. Конструктивный чертеж. Спецификация ТП 505-53-ТХ-5 Стационарные стеллажи. Узлы ТП 505-53-ТХ-6 Рельсовый путь. Пандус для загрузки верхнего яруса выкатных стеллажей. Концевой упор ТП 505-53-ТХ-7 Технические решения на проектирование выкатных стеллажей и индивидуальных переносных кильблоков ТП 505-53-АС Архитектурно-строительная часть ТП 505-53-АС-1 Заглавный лист ТП 505-53-АС-2 Фасады. Фрагменты фасадов ТП 505-53-АС-3 План. Разрезы ТП 505-53-АС-4 План фундаментов и фундаментных балок. Сечения ТП 505-53-АС-5 Монолитные фундаменты МФ-1;МФ-2;МФ-3. Монолитная балка М5Ф-1 ТП 505-53-АС-6 План силового пола ТП 505-53-АС-7 Монтажный план колонн. Разрезы ТП 505-53-АС-8 Схема элементов продольных и торцевых фахверков ТП 505-53-АС-9 Схема стальных конструкций покрытия ТП 505-53-ЭЛ Электротехническая часть ТП 505-53-ЭЛ-1 План и принципиальная схема электроосвещения ТП 505-53-ЭЛ-2 Электроосвещение. Заказная спецификация. Условные обозначения ТП 505-53 Помещение для хранения моторов и личного инвентаря ТП 505-53-ТХ Технологическая часть ТП 505-53-ТХ-8 Кронштейн для установки подвесного лодочного мотора. Рундук для хранения личного инвентаря ТП 505-53-АС Архитектурно-строительная часть ТП 505-53-АС-10 Заглавный лист ТП 505-53-АС-11 Фасады. Фрагменты фасадов ТП 505-53-АС-12 Планы. Разрезы ТП 505-53-АС-13 План фундаментов и фундаментных балок. Сечения ТП 505-53-АС-14 Монтажные железобетонные фундаменты МФ-1,МФ-2 ТП 505-53-АС-15 Монтажный план колонн и металлических балок. Разрезы ТП 505-53-АС-16 Схема элементов продольных и торцевых фахверков ТП 505-53-АС-17 Схема стальных конструкций покрытия ТП 505-53-АС-18 План перекрытия. Сечения ТП 505-53-АС-19 Металлическая колонна МК-1. Металлические балки МБ-1,МБ-2 ТП 505-53-АС-20 Металлические лестницы Л-1,Л-2 ТП 505-53-АС-21 Колонны КПII12А,КПII-12Б ТП 505-53-АС-22 Узлы крепления элементов фахверка 1,2,3,4,5. Оконная рама "б" ТП 505-53-АС-23 Узлы крепления элементов фахверка 6,7,8,9,10,11 ТП 505-53-ЭЛ Электротехническая часть ТП 505-53-ЭЛ-3 План и принципиальная схема освещения ТП 505-53-ЭЛ-4 Электроосвещение. Заказная спецификация. Условные обозначения |
| Разработан: | Гипрокоммундортранс Минжилкомхоза РСФСР |
| Утверждён: | 08.10.1973 МЖКХ РСФСР (28-ТД) |









































