Скачать Серия 1.436-4 Выпуск 1. Рабочие чертежи переплетов. Марка КМДата актуализации: 01.01.2021
|
| Обозначение: | Серия 1.436-4 |
| Обозначение англ: | Series 1.436-4 |
| Статус: | не действует |
| Название рус.: | Выпуск 1. Рабочие чертежи переплетов. Марка КМ |
| Дата добавления в базу: | 01.09.2013 |
| Дата актуализации: | 01.01.2021 |
| Дата введения: | 01.07.1971 |
| Дата окончания срока действия: | 01.06.1982 |
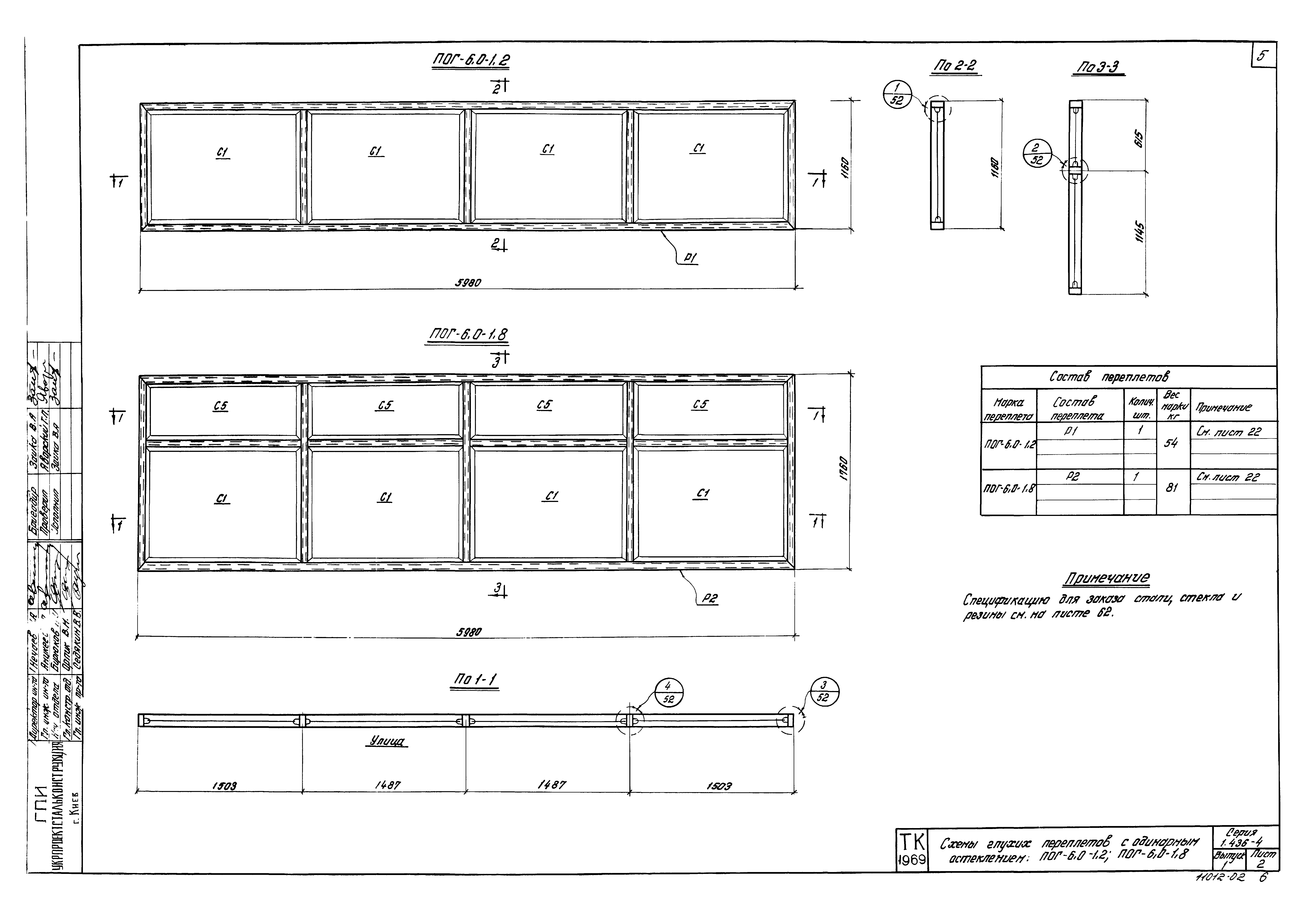
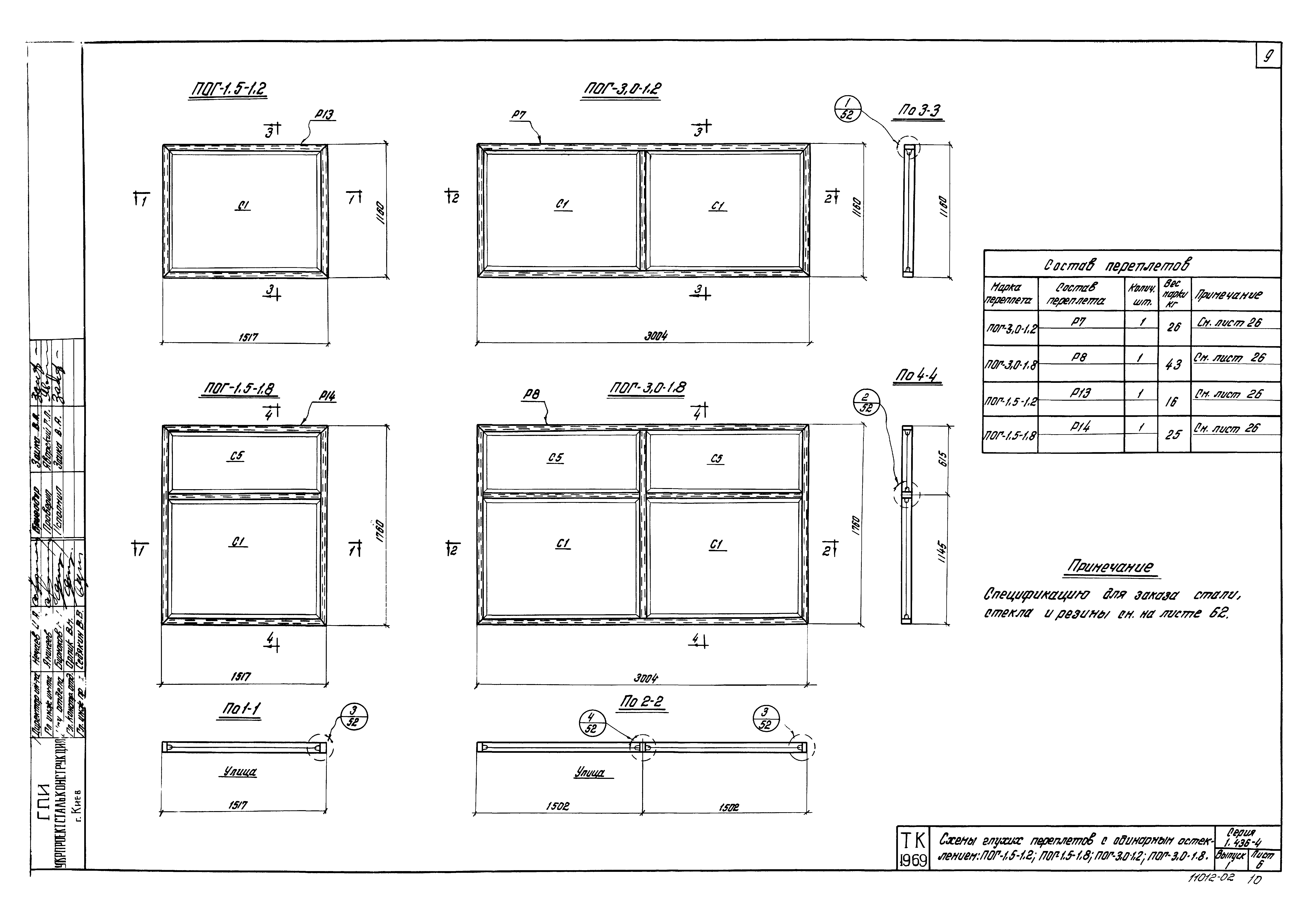
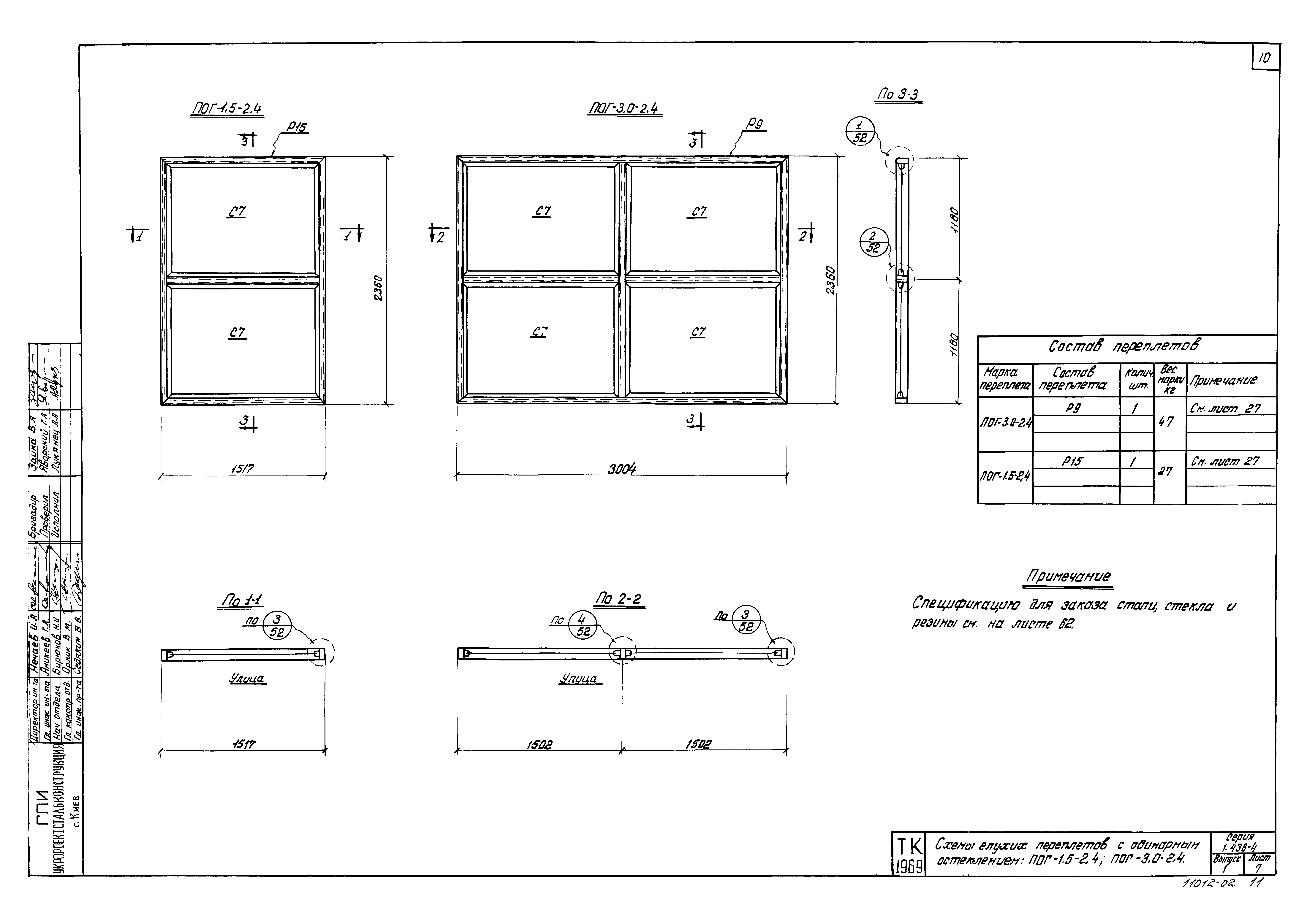
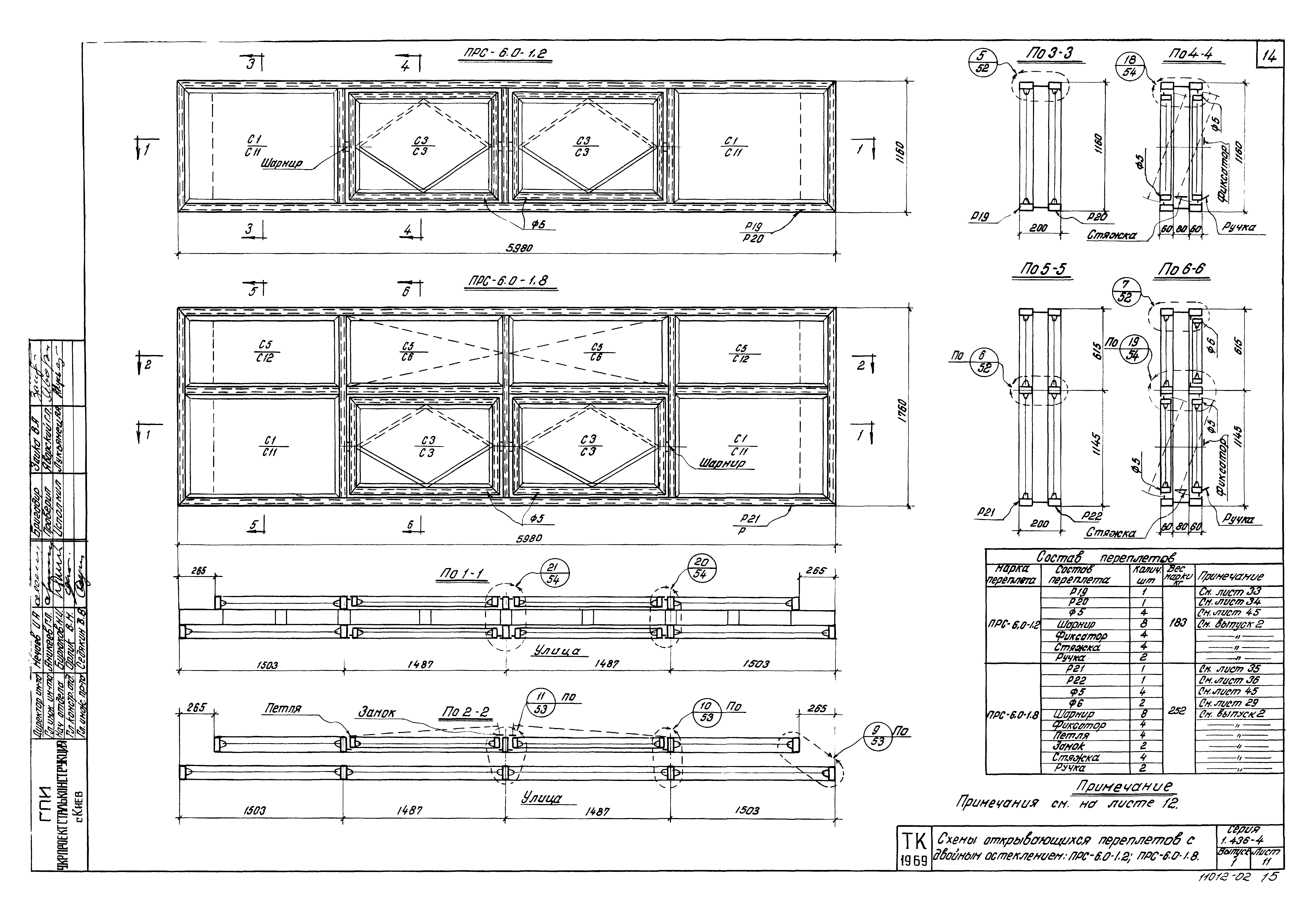
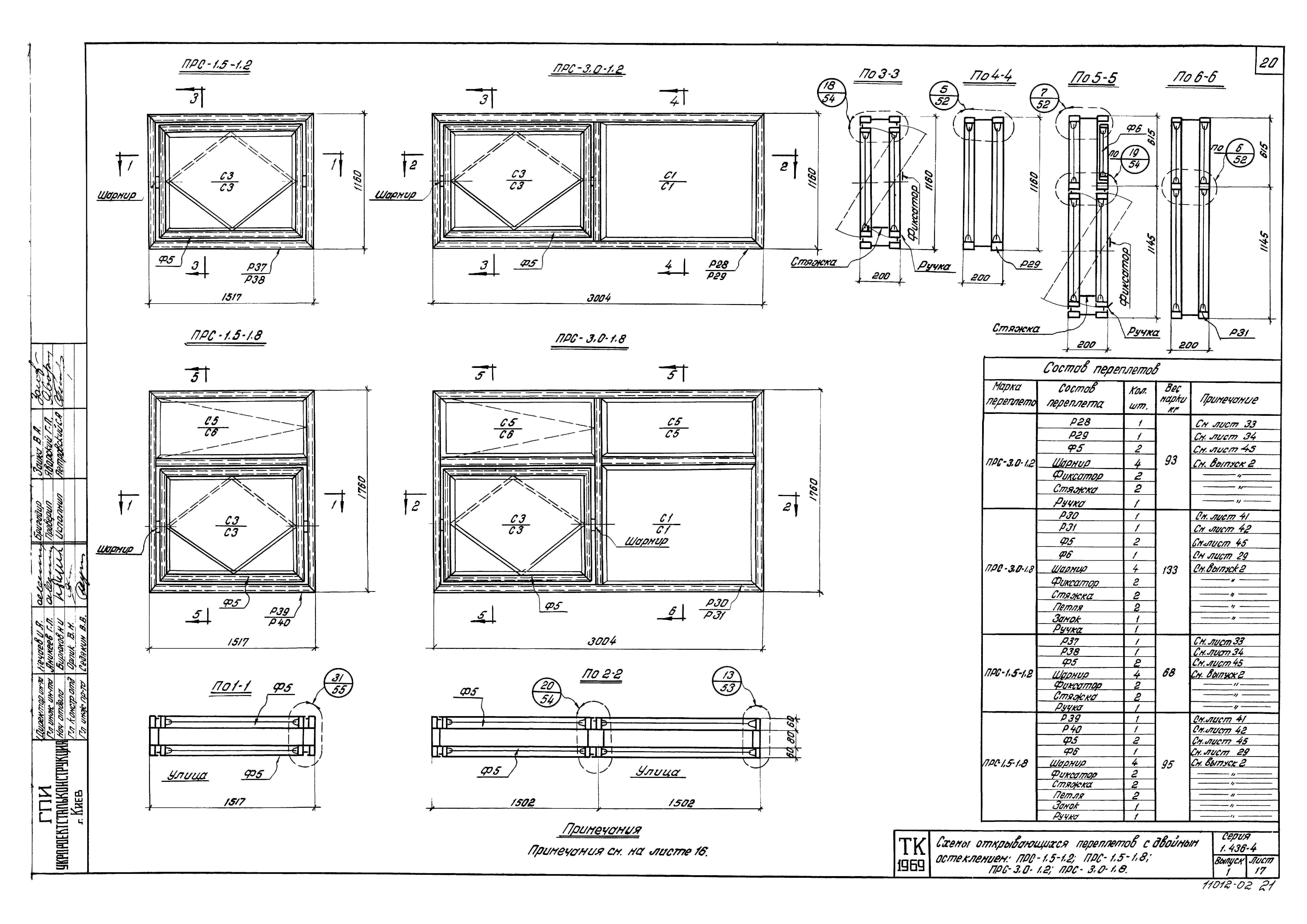
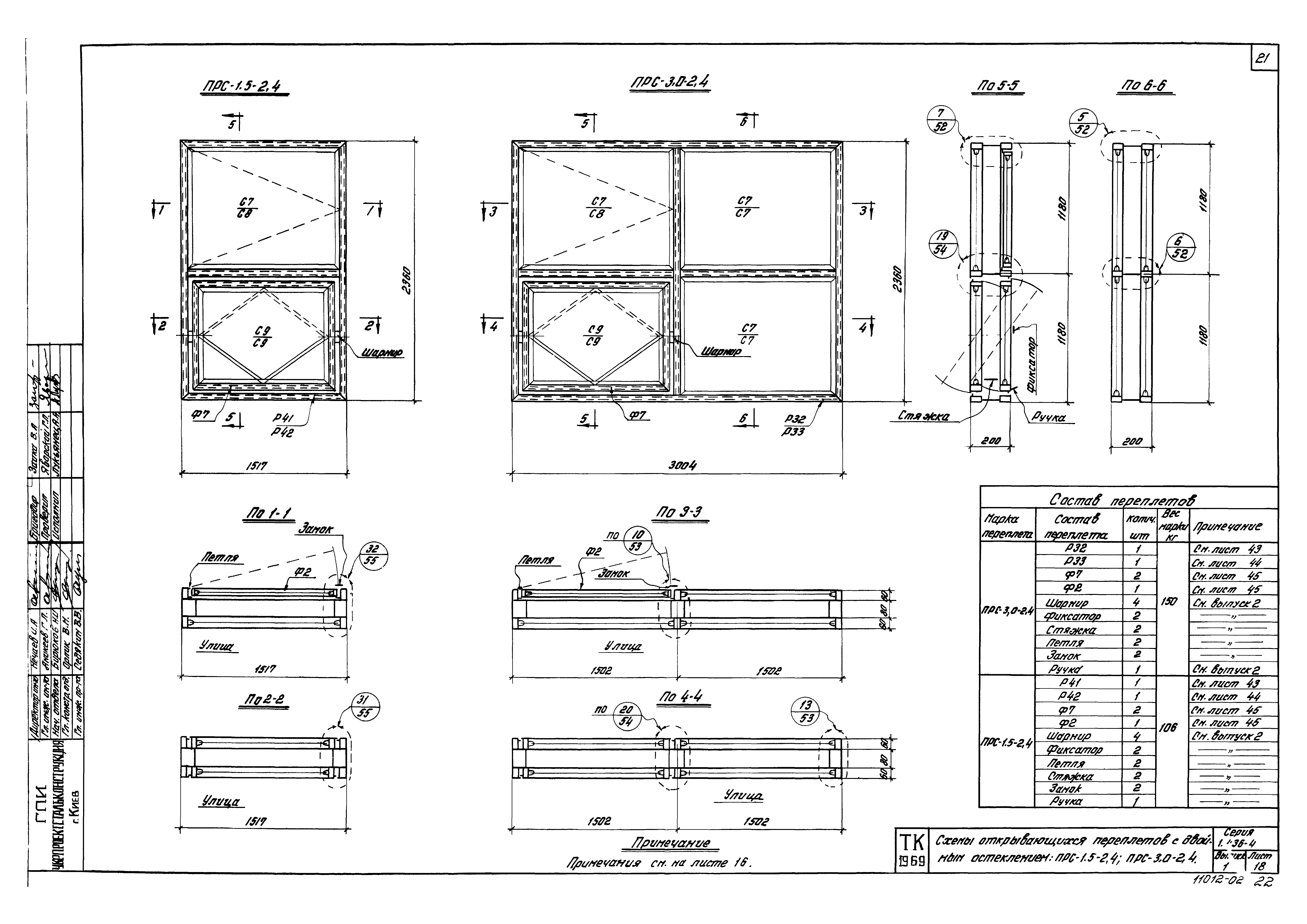
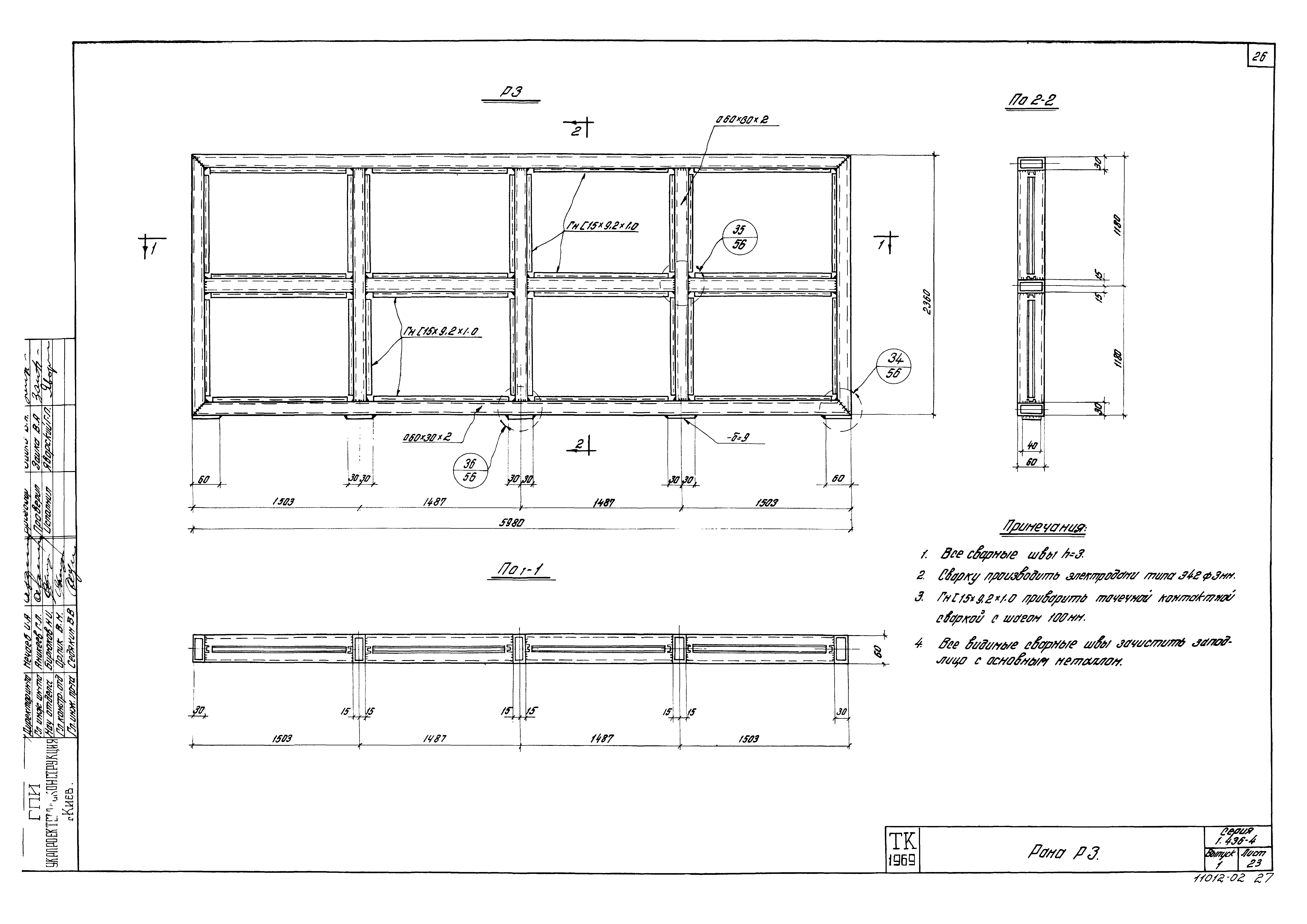
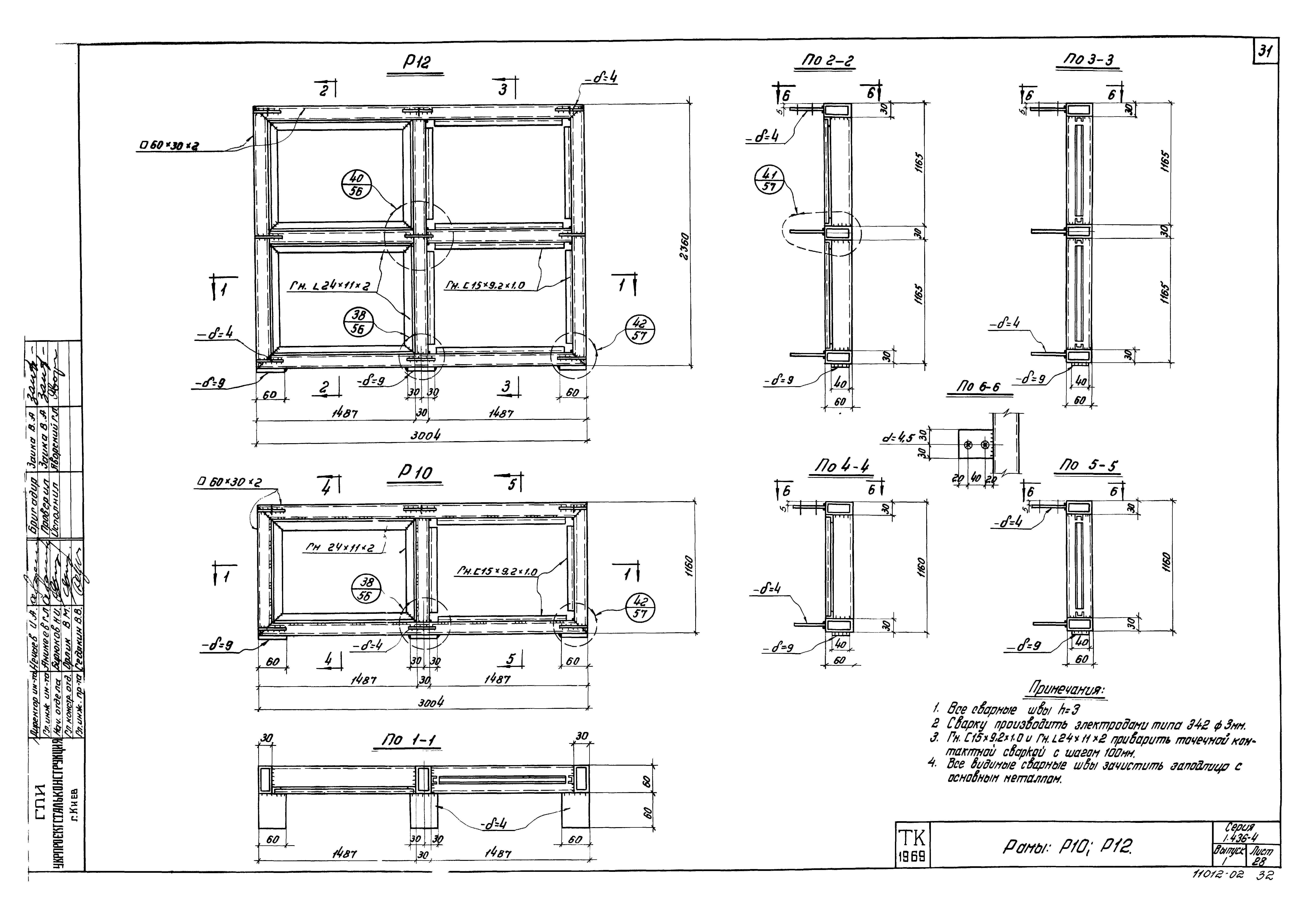
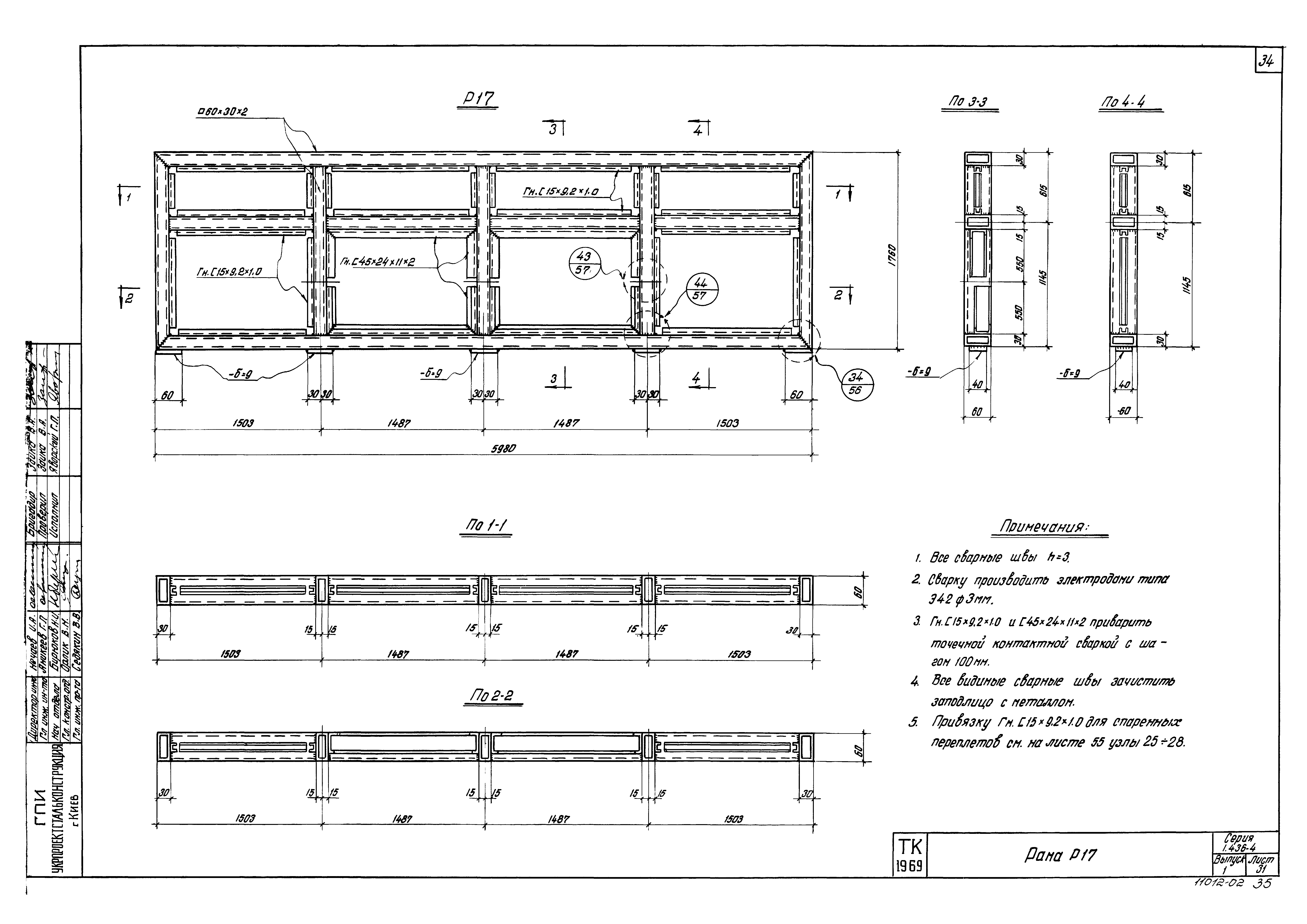
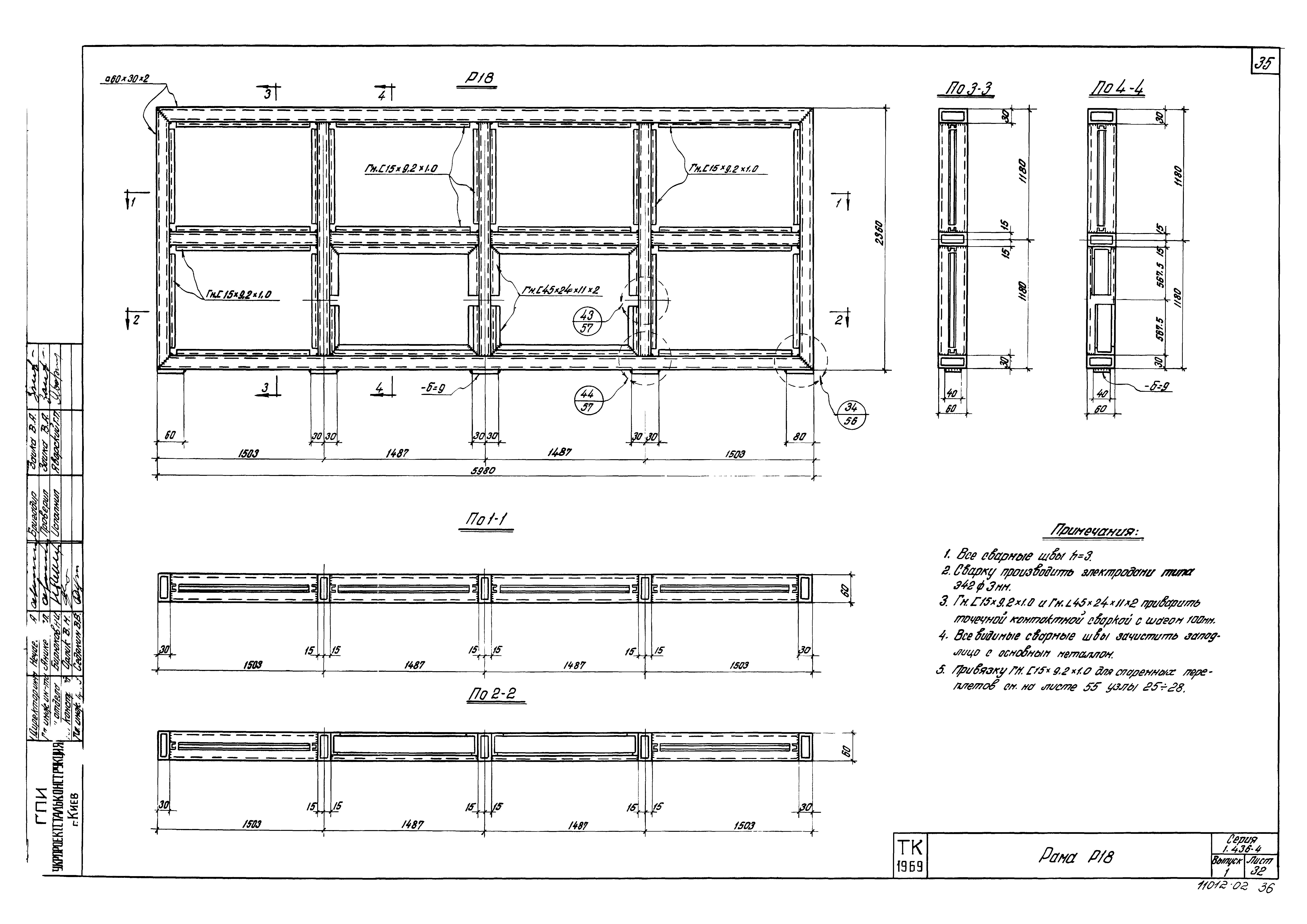
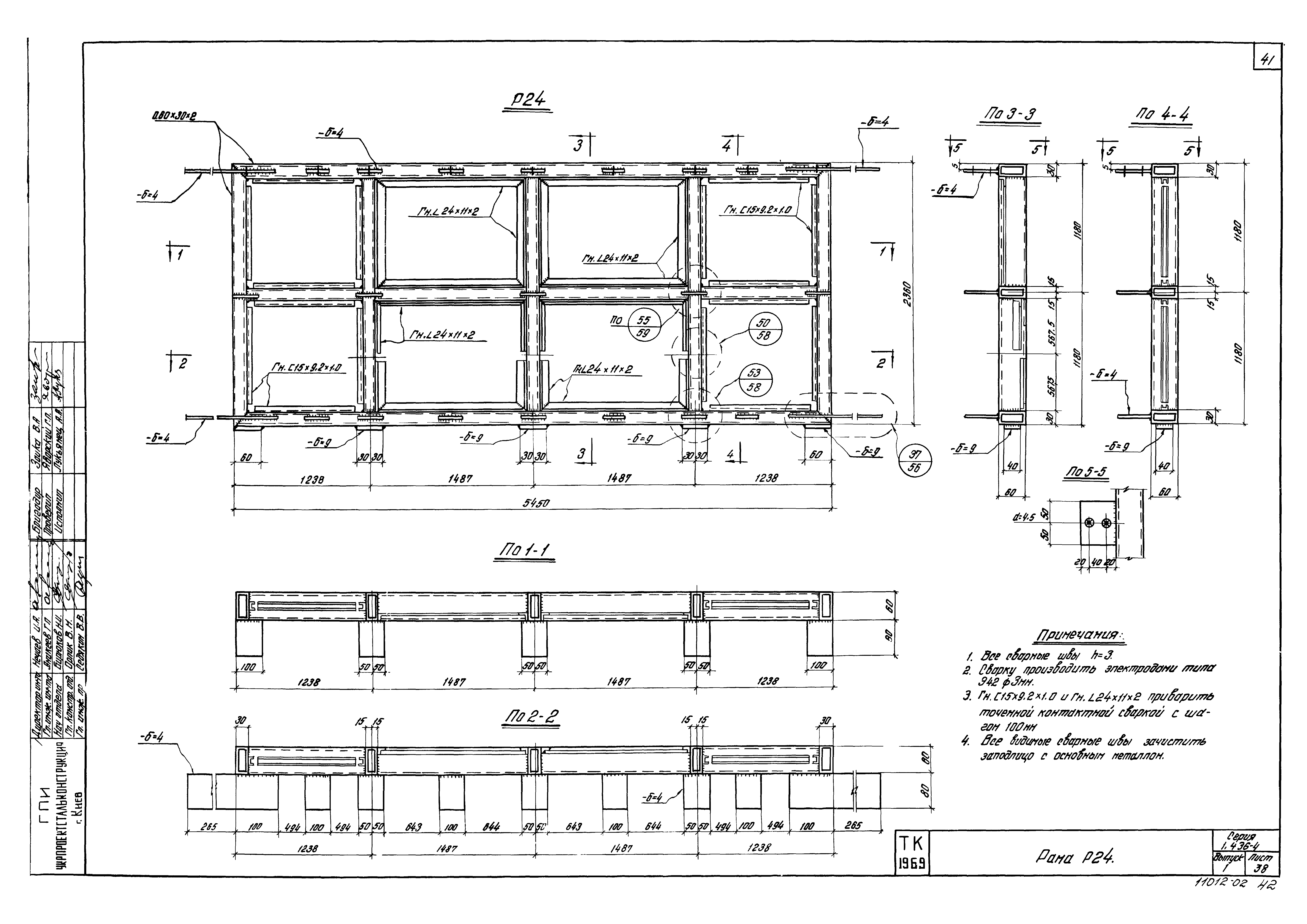
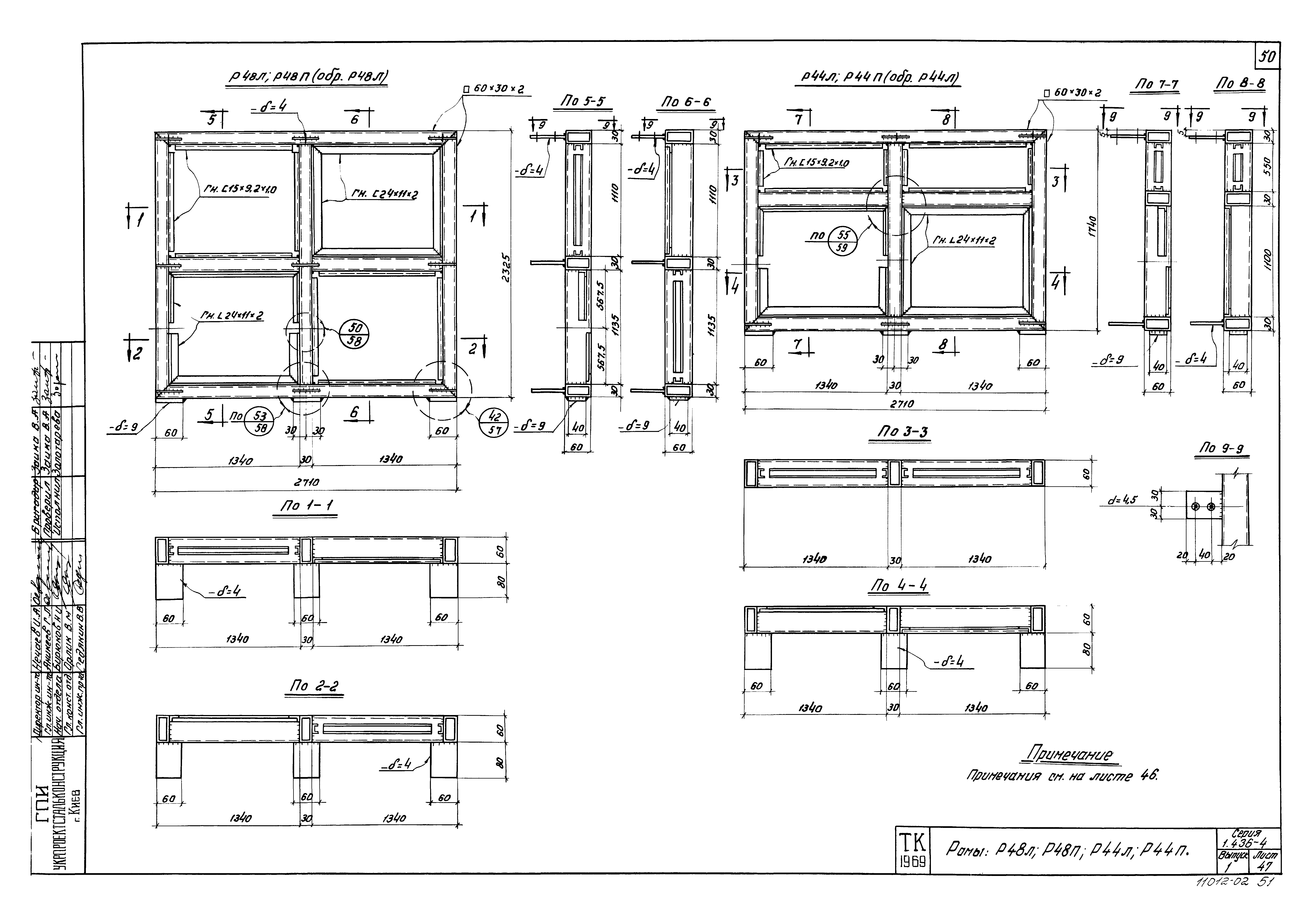
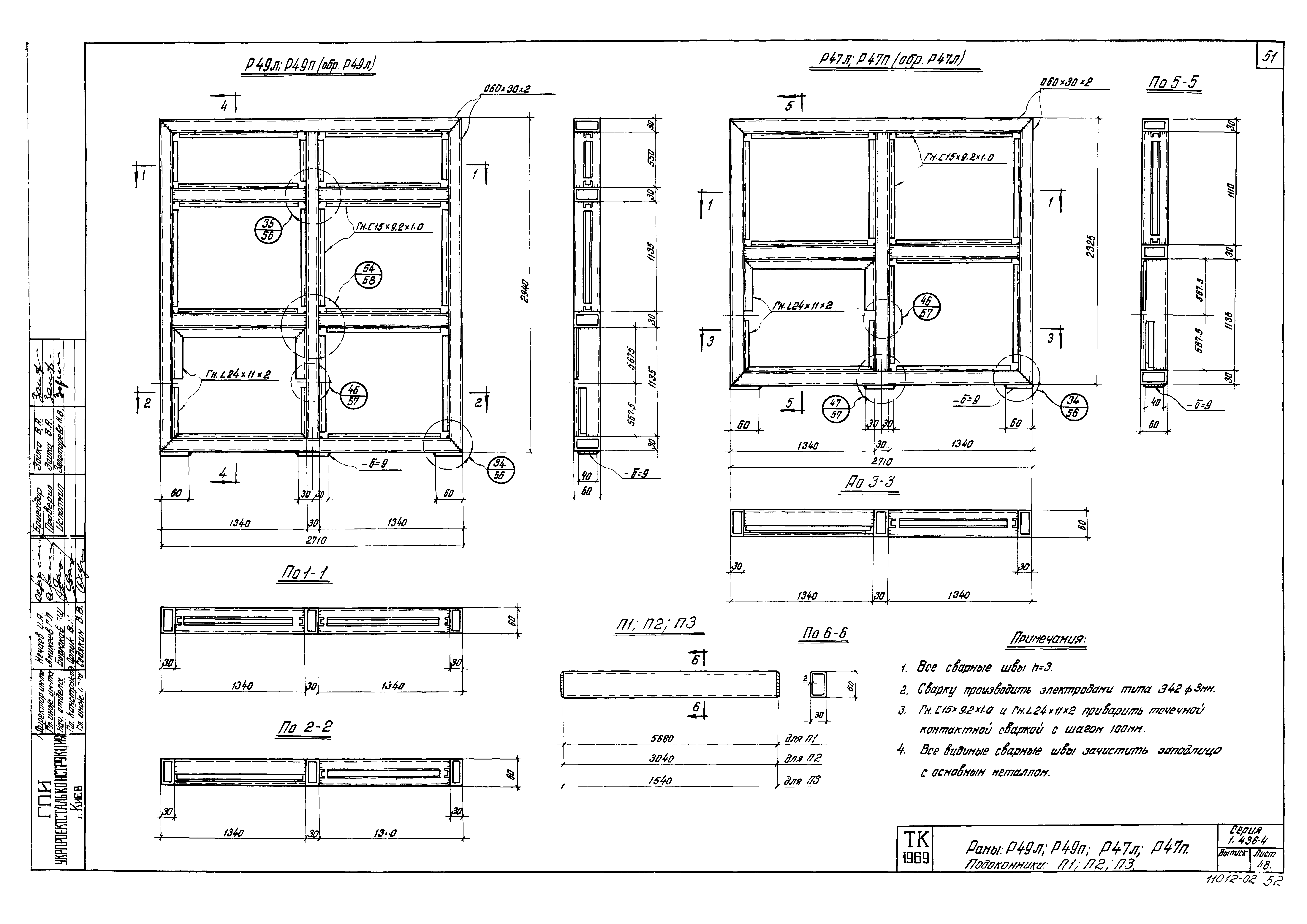
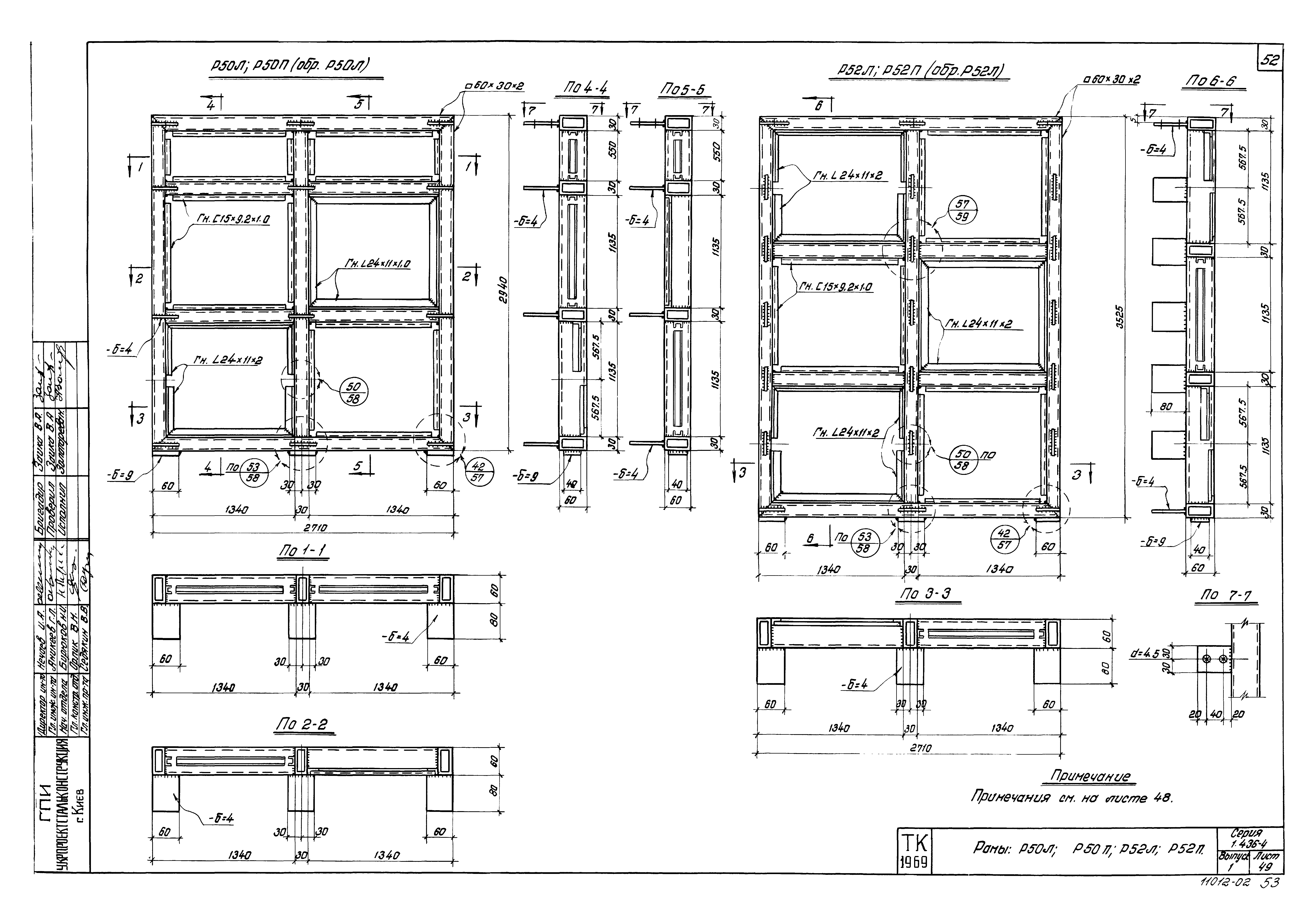
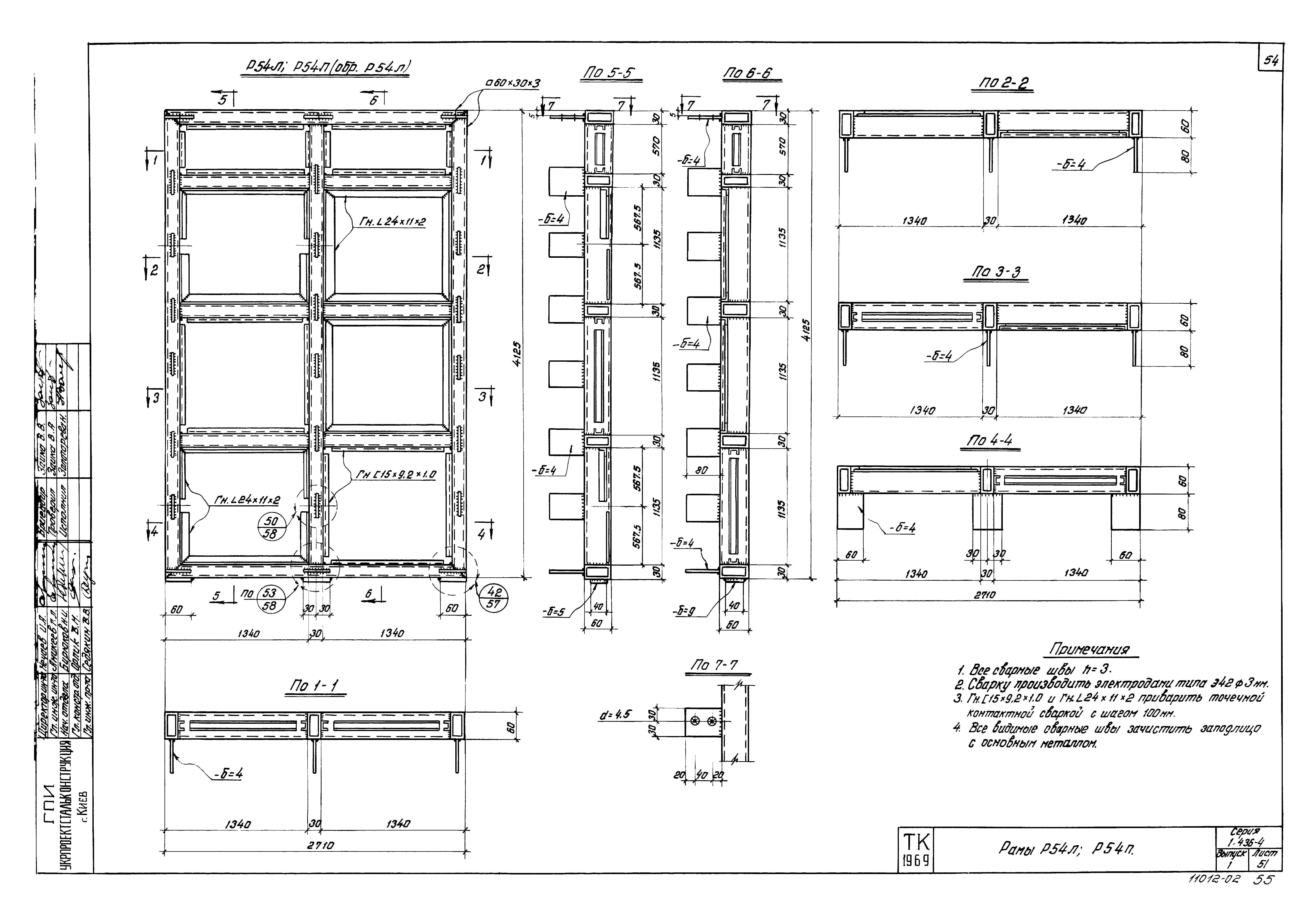
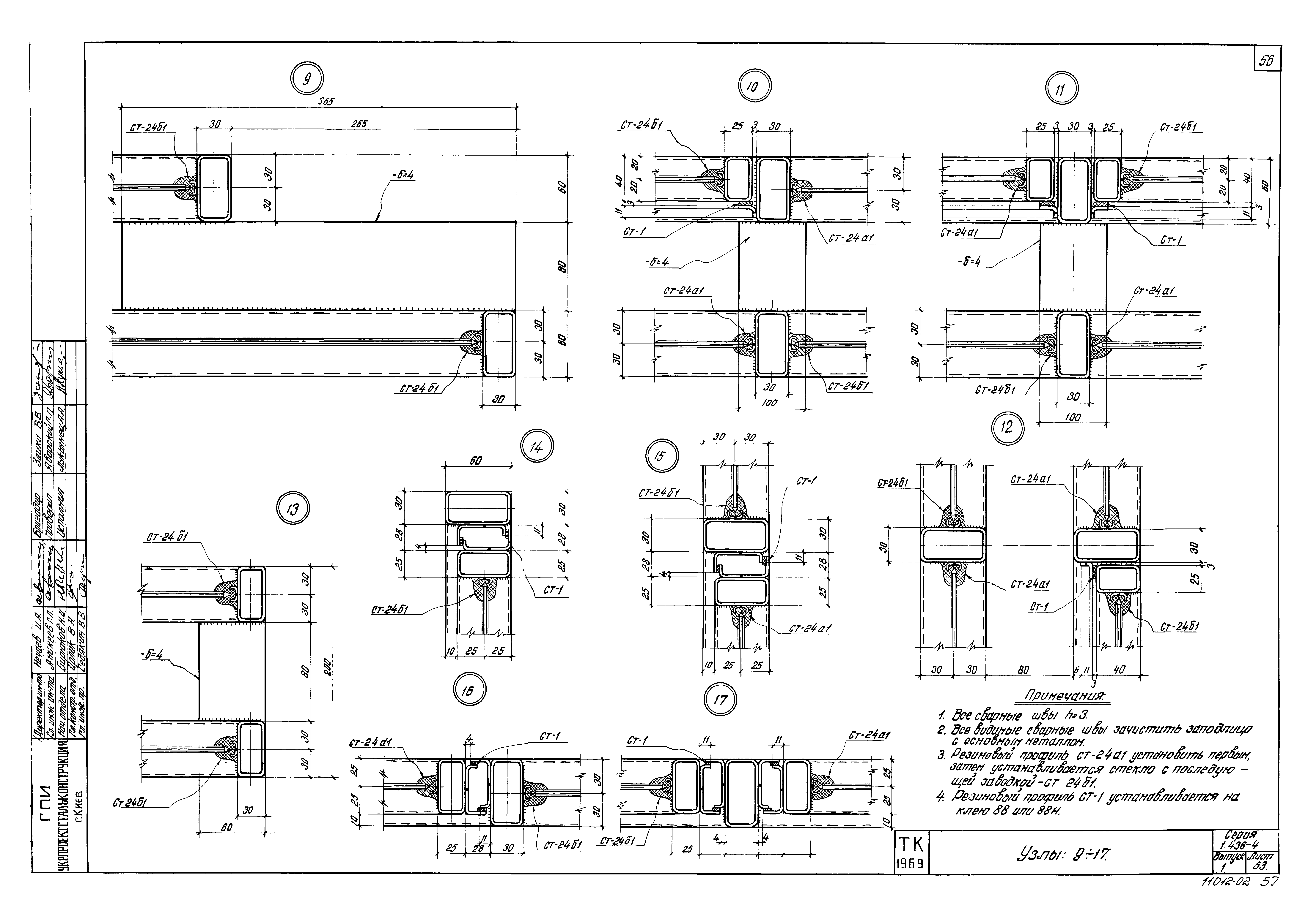
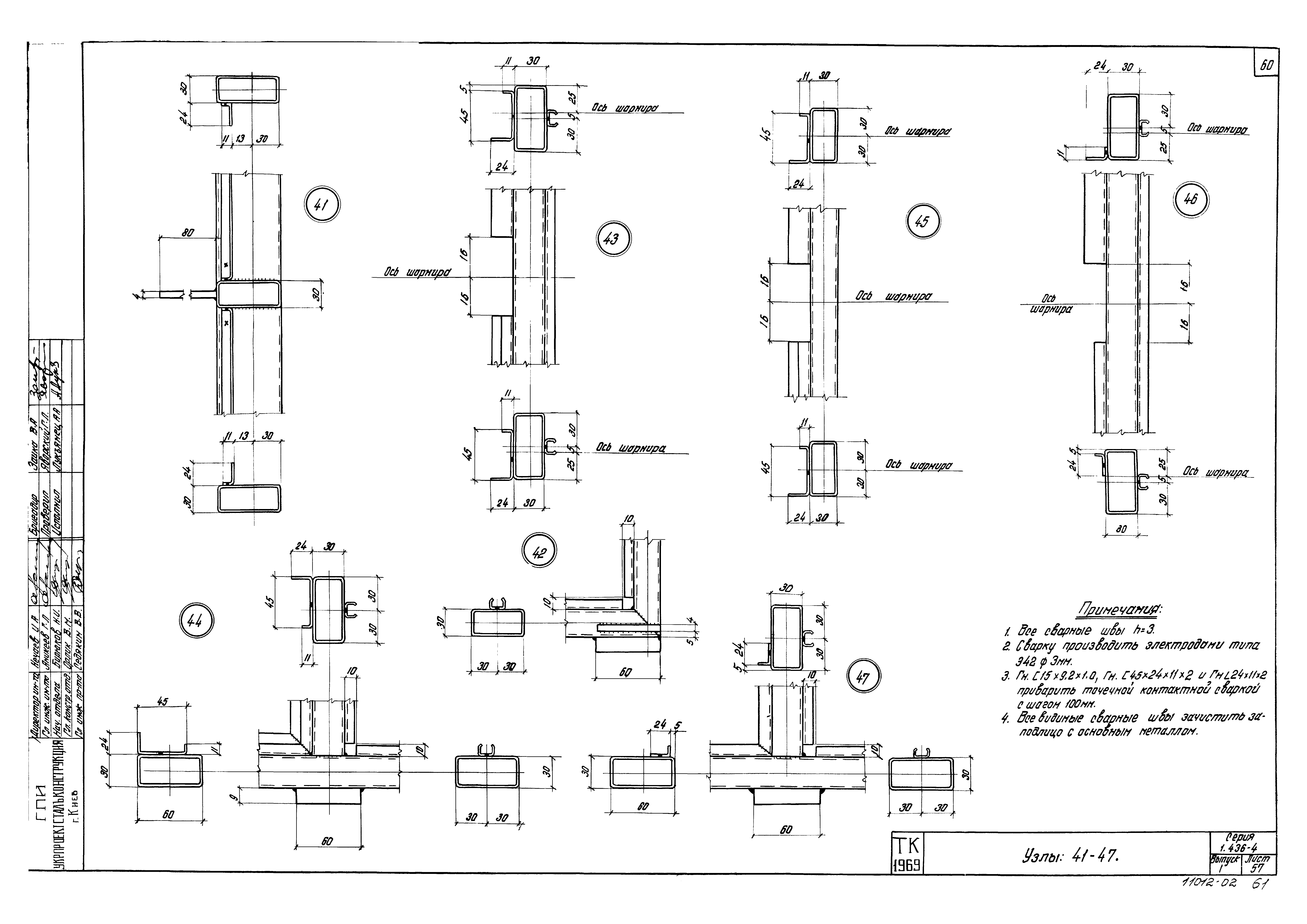
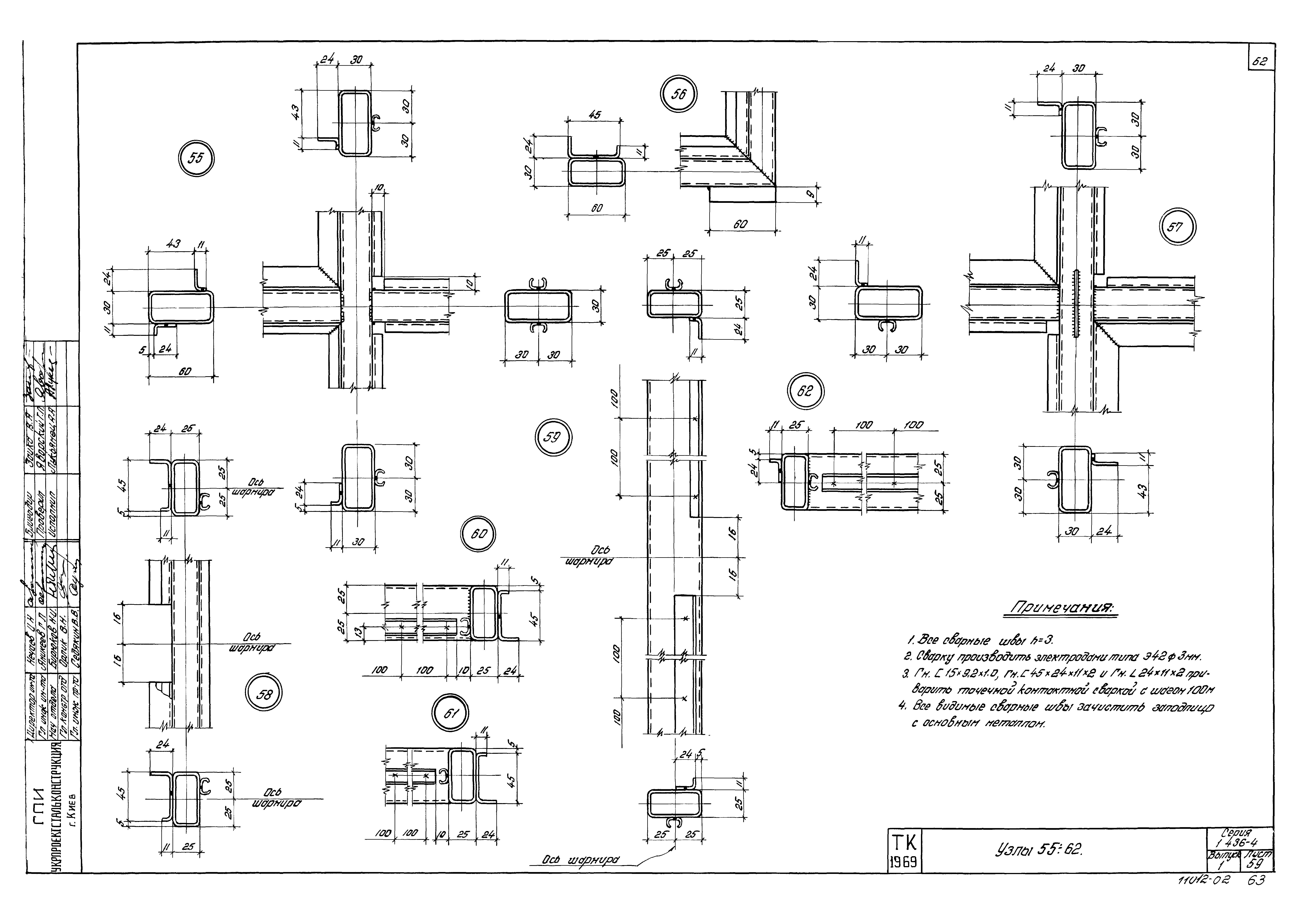
| Оглавление: | 1.436-4 Номенклатура стальных переплетов 1.436-4 Схемы глухих переплетов с одинарным остекленением ПОГ-6-0-1.2,ПОГ-6-0-1.8 1.436-4 Схема глухого переплета с одинарным остекленением ПОГ-6-0-2.4. Ветровой ригельВР-1 1.436-4 Схемы глухих переплетов с двойным остекленением ПРГ-6-0-1.2,ПРГ-6-0-1.8 1.436-4 Схема глухого переплета с двойным остекленением ПРГ-6-0-2.4 1.436-4 Схемы глухих переплетов с одинарным остекленением ПОГ-1.5-0-1.2,ПОГ-1.5-0-1.8,ПОГ-3.0-0-1.2,ПОГ-3.0-0-1.8 1.436-4 Схемы глухих переплетов с одинарным остекленением ПОГ-1.5-0-2.4,ПОГ-3.0-0-2.4 1.436-4 Схемы глухих переплетов с двойным остекленением ПРГ-3.0-0-1.2,ПРГ-3.0-0-1.8,ПРГ-3.0-0-2.4 1.436-4 Схемы открывающихся переплетов с одинарным остекленением ПОС-6.0-1.2,ПОС-6.0-1.8 1.436-4 Схема открывающегося переплета с одинарным остекленением ПОС-6.0-2.4 1.436-4 Схемы открывающихся переплетов с двойным остекленением ПРС-6.0-1.2,ПРС-6.0-1.8 1.436-4 Схема открывающегося переплета с двойным остекленением ПРС-6.0-2.4 1.436-4 Схемы открывающихся переплетов с двойным остекленением ПСС-6.0-1.2,ПСС-6.0-1.8 1.436-4 Схема открывающегося переплета с двойным остекленением ПСС-6.0-2.4 1.436-4 Схемы открывающихся переплетов с одинарным остекленением ПОС-1.5-1.2,ПОС-1.5-1.8,ПОС-3.0-1.8 1.436-4 Схемы открывающихся переплетов с одинарным остекленением ПОС-1.5-2.4,ПОС-3.0-2.4 1.436-4 Схемы открывающихся переплетов с двойным остекленением ПРС-1.5-1.2,ПРС-1.5-1.8,ПРС-3.0-1.8 1.436-4 Схемы открывающихся переплетов с двойным остекленением ПРС-1.5-2.4,ПРС-3.0-2.4 1.436-4 Схемы открывающихся переплетов с двойным остекленением ПРС-2.7-1.8Л,ПРС-2.7-1.8П,ПРС-2.7-1.2Л,ПРС-2.7-1.2П,ПРС-2.7-2.4Л,ПРС-2.7-2.4П 1.436-4 Схемы открывающихся переплетов с двойным остекленением ПРС-2.7-3.0Л,ПРС-2.7-3.0П,ПРС-2.7-3.6Л,ПРС-2.7-3.6П 1.436-4 Схемы открывающихся переплетов с двойным остекленением ПРС-2.7-4.2Л,ПРС-2.7-4.2П 1.436-4 Рамы Р1;Р2 1.436-4 Рама Р3 1.436-4 Рамы Р4;Р5 1.436-4 Рама Р6 1.436-4 Рамы Р7;Р8;Р12;Р14 1.436-4 Рамы Р9;Р15 ветровой ригель ВР1 1.436-4 Рамы Р10;Р12 1.436-4 Рама Р11. Фрамуга Ф6 1.436-4 Рамы Р16;Р25;Р34 1.436-4 Рама Р17 1.436-4 Рама Р18 1.436-4 Рамы Р19,Р28,Р37 1.436-4 Рамы Р20,Р29,Р38 1.436-4 Рама Р21 1.436-4 Рама Р22 1.436-4 Рама Р23 1.436-4 Рама Р24 1.436-4 Рамы Р26;Р35 1.436-4 Рамы Р27;Р36 1.436-4 Рамы Р30;Р39 1.436-4 Рамы Р31;Р40 1.436-4 Рамы Р32;Р41 1.436-4 Рамы Р33;Р42 1.436-4 Фрамуги Ф1-Ф5;Ф7-Ф11 1.436-4 Рамы Р43Л;Р43П;Р45Л;Р45П;Р46Л;Р46П 1.436-4 Рамы Р48Л;Р48П;Р44Л;Р44П 1.436-4 Рамы Р49Л;Р49П;Р47Л;Р47П. Подоконники П1,П2,П3 1.436-4 Рамы Р50Л;Р50П;Р52Л;Р52П 1.436-4 Рамы Р51Л;Р51П;Р53Л;Р53П 1.436-4 Рамы Р54Л;Р54П 1.436-4 Узлы 1-8 1.436-4 Узлы 9-17 1.436-4 Узлы 18-24 1.436-4 Узлы 25-33 1.436-4 Узлы 34-40 1.436-4 Узлы 41-47 1.436-4 Узлы 48-54 1.436-4 Узлы 55-62 1.436-4 Вариант крепления стекла с помощью алюминиевого штопика. Слезники К1-К5. Варианты нащельников ЕС1-НС7,НА1-НА7 1.436-4 Стальные и резиновые профили 1.436-4 Спецификация для заказа материалов и механизмов ручного открывания на один переплет |
| Разработан: | Промстройпроект Укрпроектстальконструкция |
| Утверждён: | 10.05.1971 Госстрой СССР (Государственный комитет Совета Министров СССР по делам строительства) (USSR Gosstroy 38) |
| Чем заменён: |
|




































































