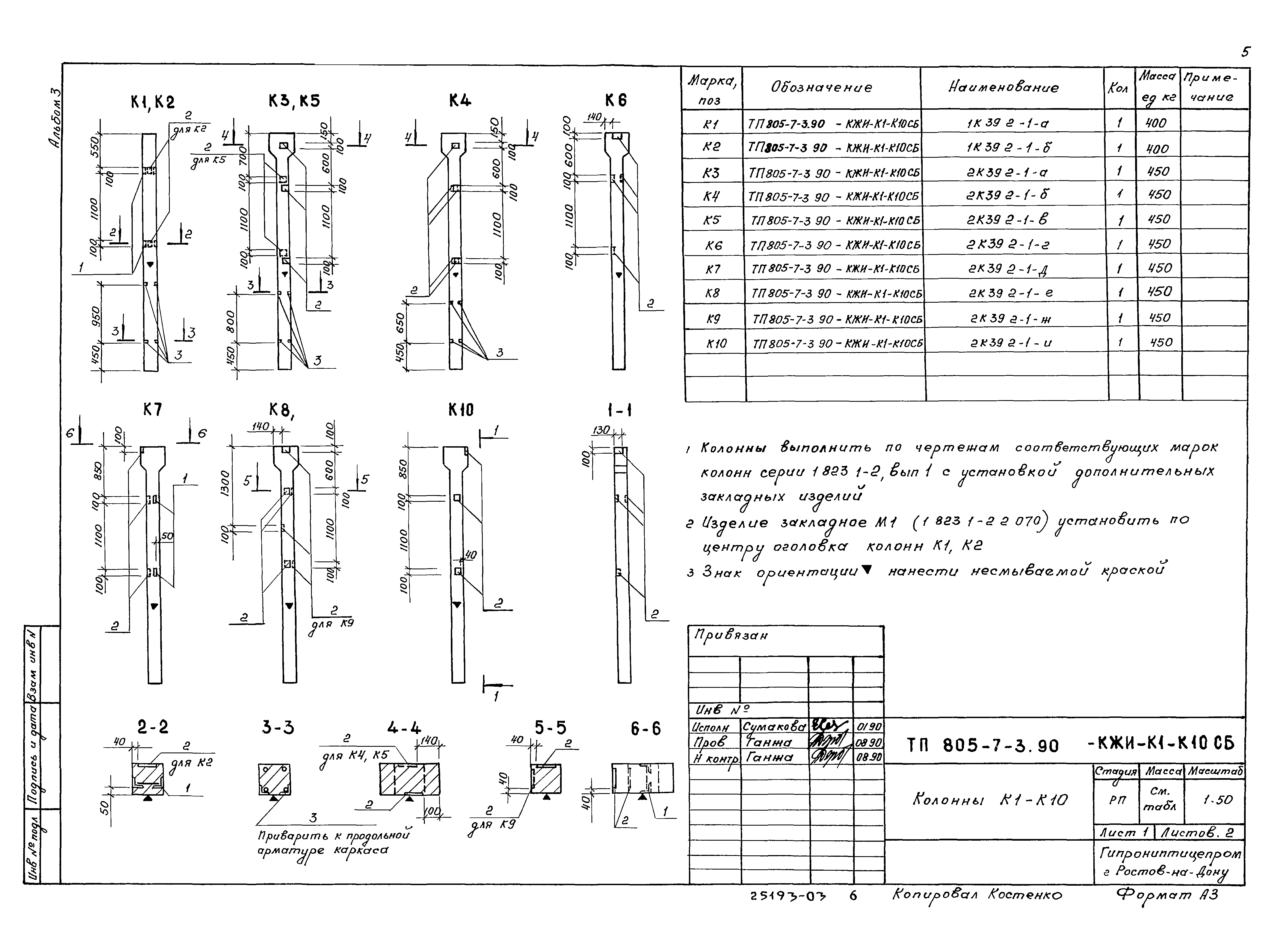
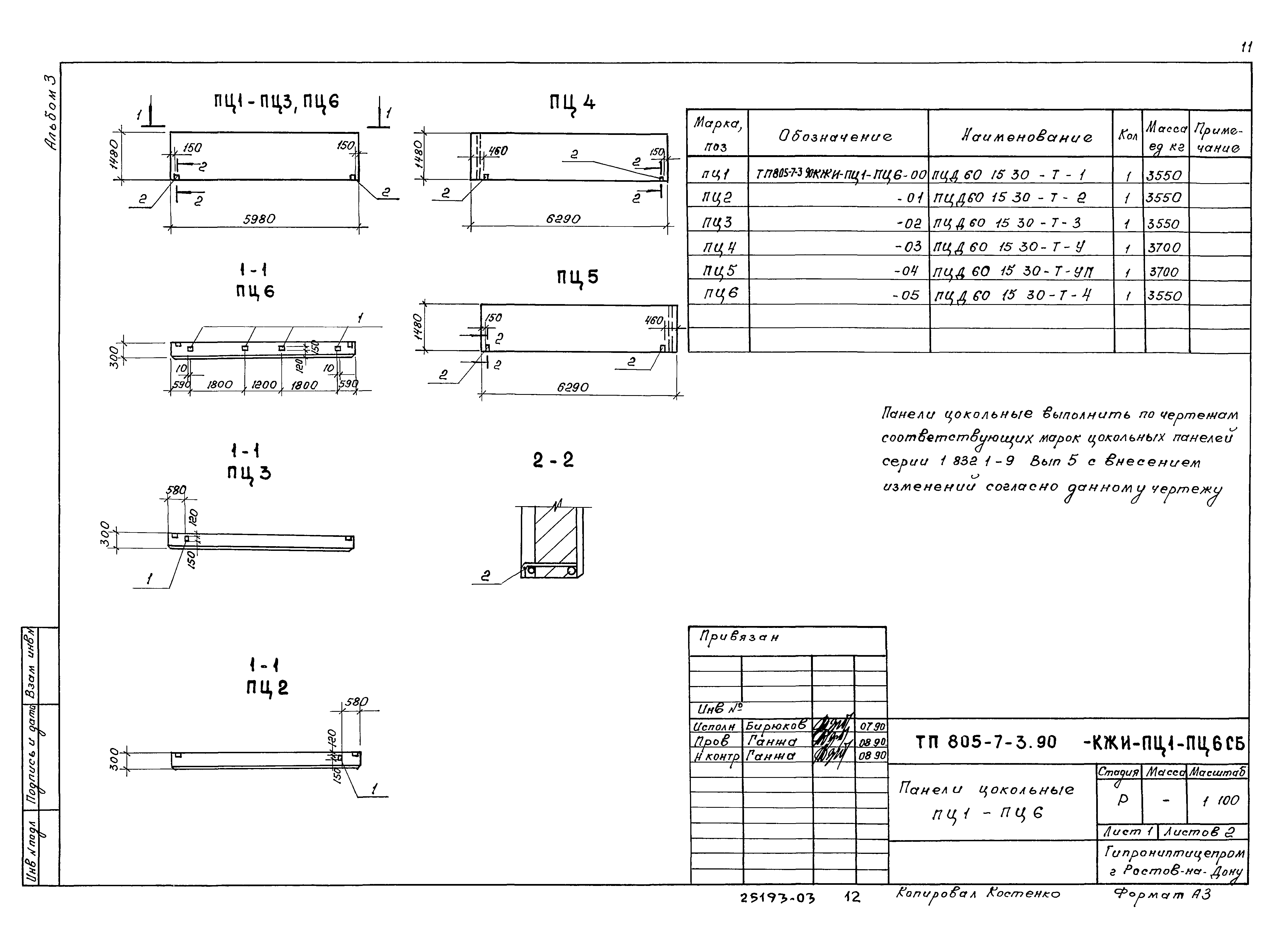
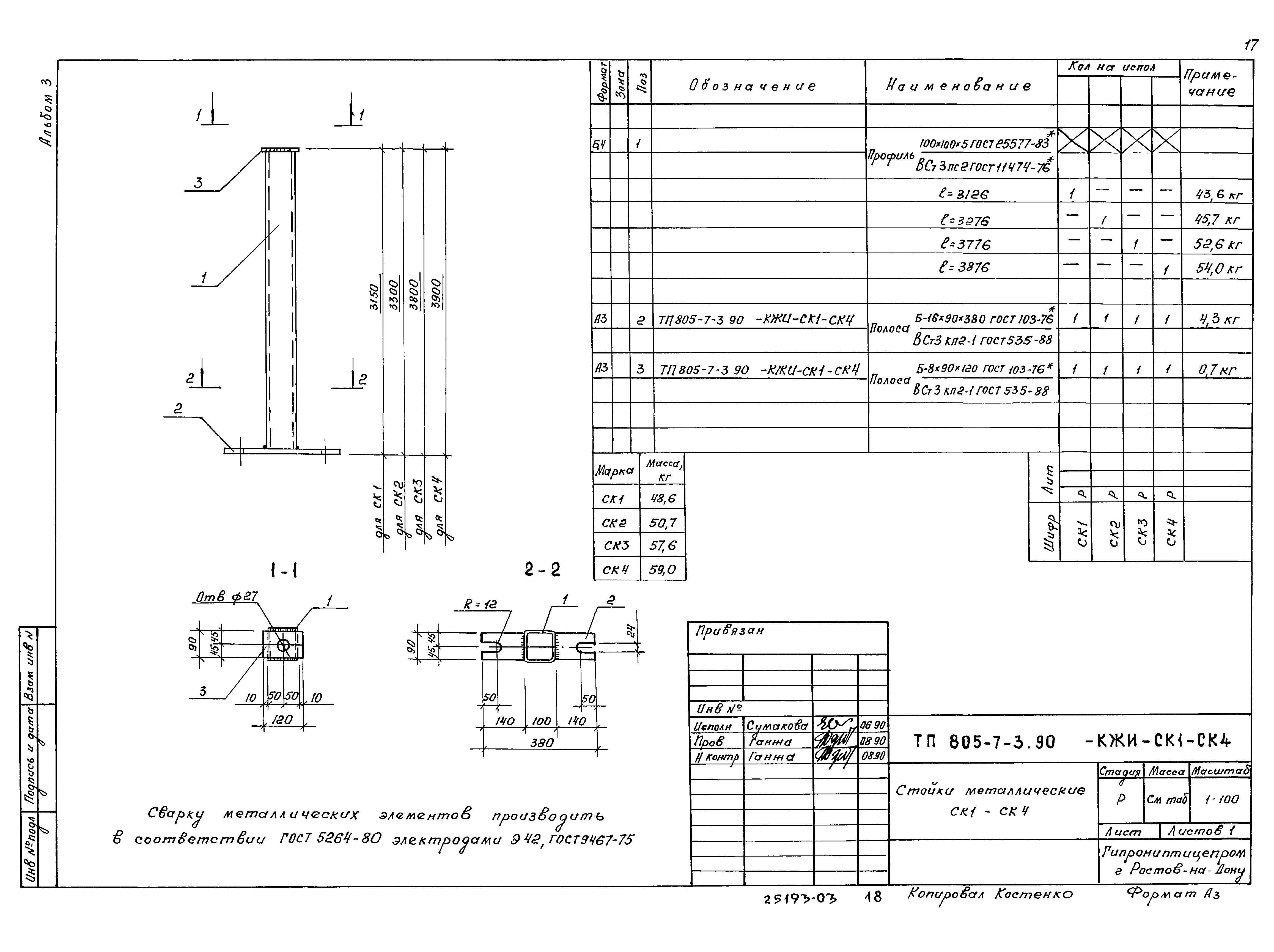
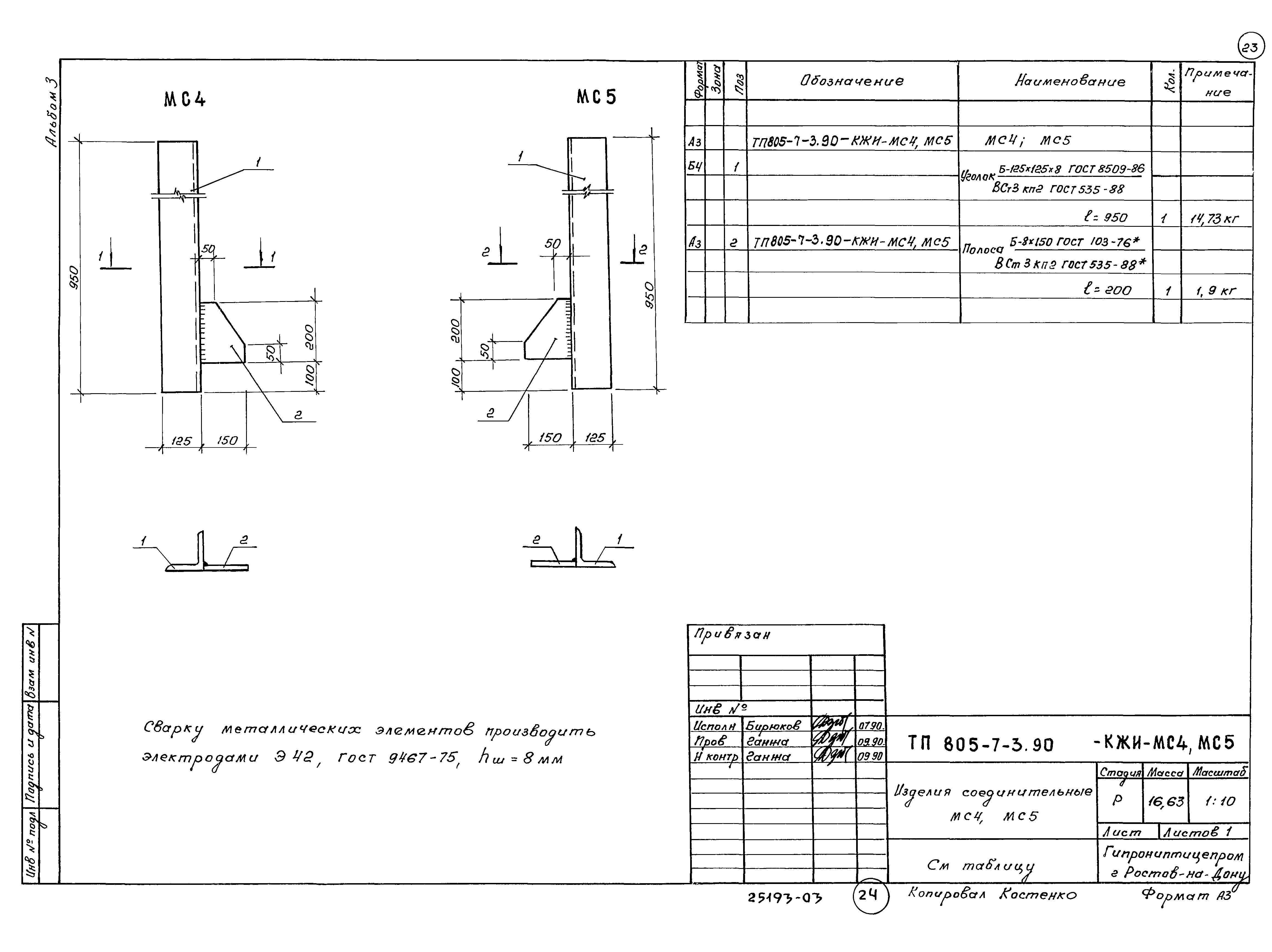
Скачать Типовой проект 805-7-3.90 Альбом 3. Изделия конструкций железобетонныхДата актуализации: 01.01.2021
|
| Обозначение: | Типовой проект 805-7-3.90 |
| Обозначение англ: | 805-7-3.90 |
| Статус: | не определен законодательством |
| Название рус.: | Альбом 3. Изделия конструкций железобетонных |
| Дата добавления в базу: | 01.09.2013 |
| Дата актуализации: | 01.01.2021 |
| Дата введения: | 08.07.1991 |
| Дата окончания срока действия: | 30.06.2003 |
| Разработан: | Гипрониптицепром |
| Утверждён: | 01.07.1991 Главагропромнаучпроект Госкомиссии СМ СССР по продовольствию и закупкам (30) |























