Скачать Типовой проект 704-1-50 Альбом II. Рабочие чертежи КМ понтонаДата актуализации: 01.01.2021
|
| Обозначение: | Типовой проект 704-1-50 |
| Обозначение англ: | 704-1-50 |
| Статус: | не действует |
| Название рус.: | Альбом II. Рабочие чертежи КМ понтона |
| Дата добавления в базу: | 01.09.2013 |
| Дата актуализации: | 01.01.2021 |
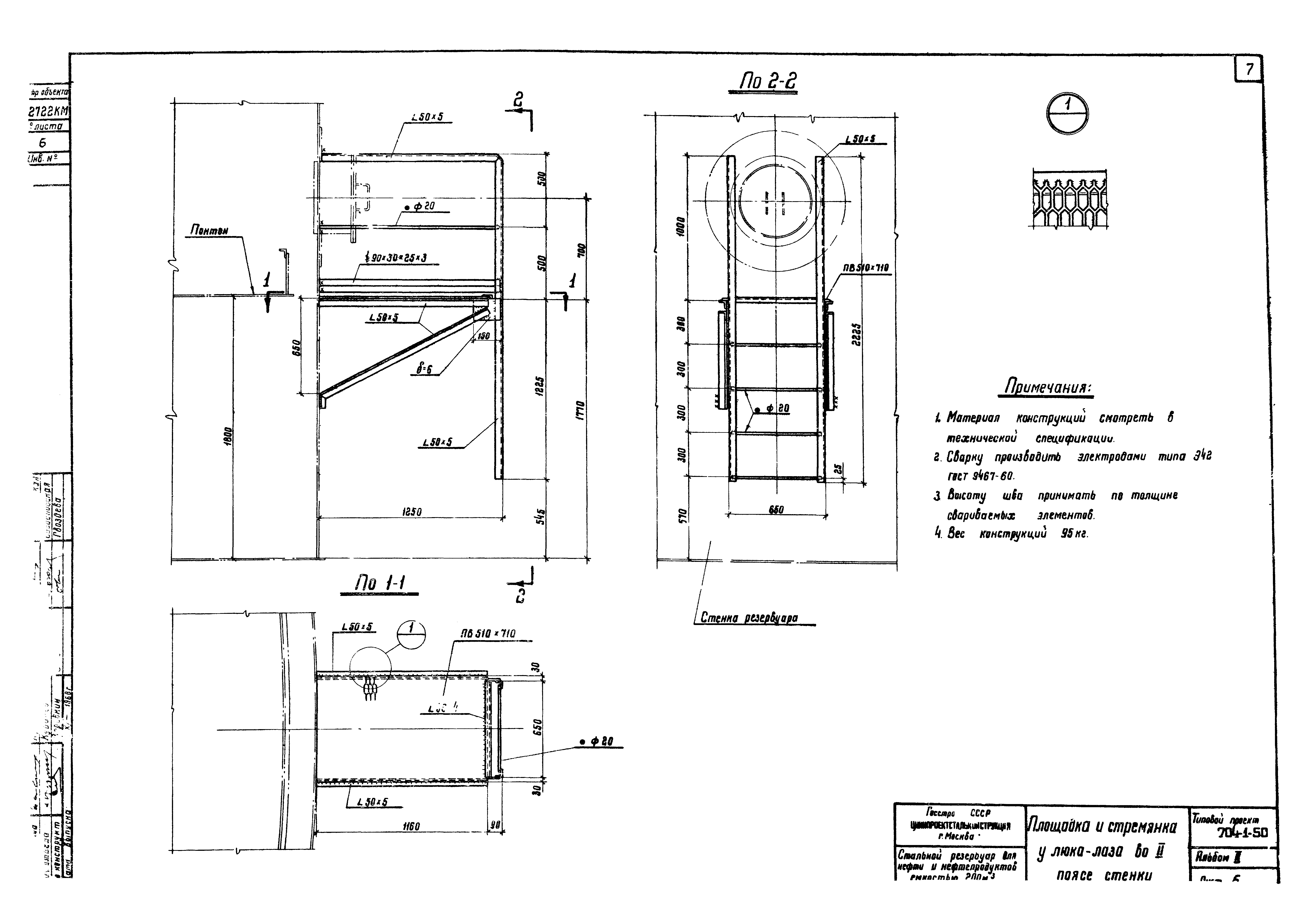
| Оглавление: | ТП 704-1-50 Содержание альбома 2 и пояснительная записка ТП 704-1-50 Техническая спецификация стали и материалов на понтон ТП 704-1-50 Понтон. План и разрез ТП 704-1-50 Понтон. Днище и узлы ТП 704-1-50 Кронштейн ТП 704-1-50 Площадка и стремянка у люка-лаза во 2 поясе стенки ТП 704-1-50 Люк пробоотборника в 1 поясе стенки Ду250 ТП 704-1-50 Люк-лаз во 2 поясе стенки Ду500 ТП 704-1-50 Патрубок для УДУ, Ду500 ТП 704-1-50 Патрубок в понтоне для кожуха пробоотборника и трубы ручного замера Ду350 ТП 704-1-50 Патрубок огневого предохранителя Ду100,Ду150 ТП 704-1-50 Кожух пробоотборника Ду200 ТП 704-1-50 Труба ручного замера Ду200 ТП 704-1-50 Петлевой затвор |
| Разработан: | ЦНИИпроектстальконструкция |
| Утверждён: | 29.12.1969 ЦНИИпроектстальконструкция (TsNIIprojectstalkonstruktsiya 221) |
















