Скачать Типовой проект 704-1-135 Альбом I. Сооружения склада. ЧертежиДата актуализации: 01.01.2021
|
| Обозначение: | Типовой проект 704-1-135 |
| Обозначение англ: | 704-1-135 |
| Статус: | действует |
| Название рус.: | Альбом I. Сооружения склада. Чертежи |
| Дата добавления в базу: | 01.09.2013 |
| Дата актуализации: | 01.01.2021 |
| Дата введения: | 25.03.1978 |
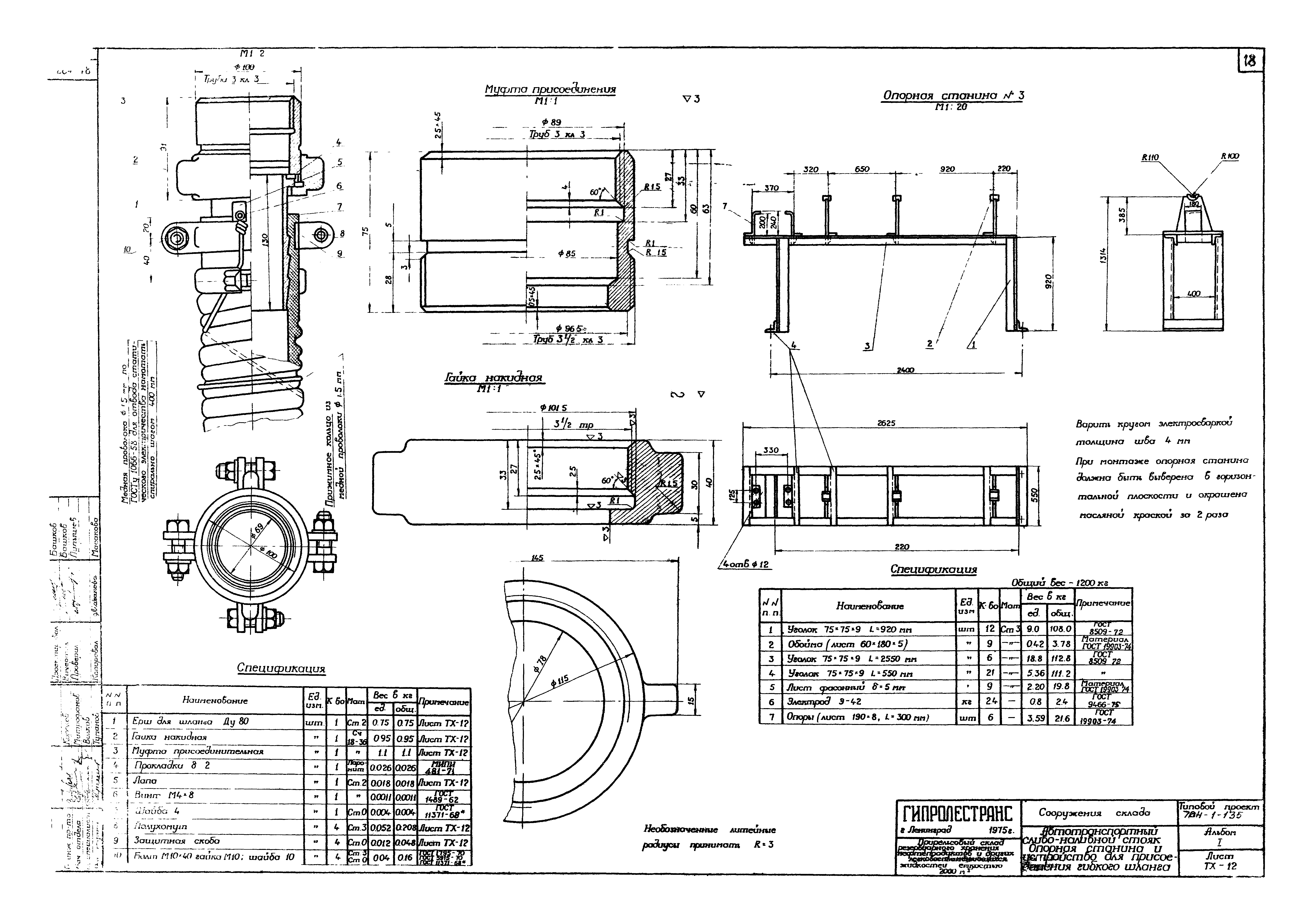
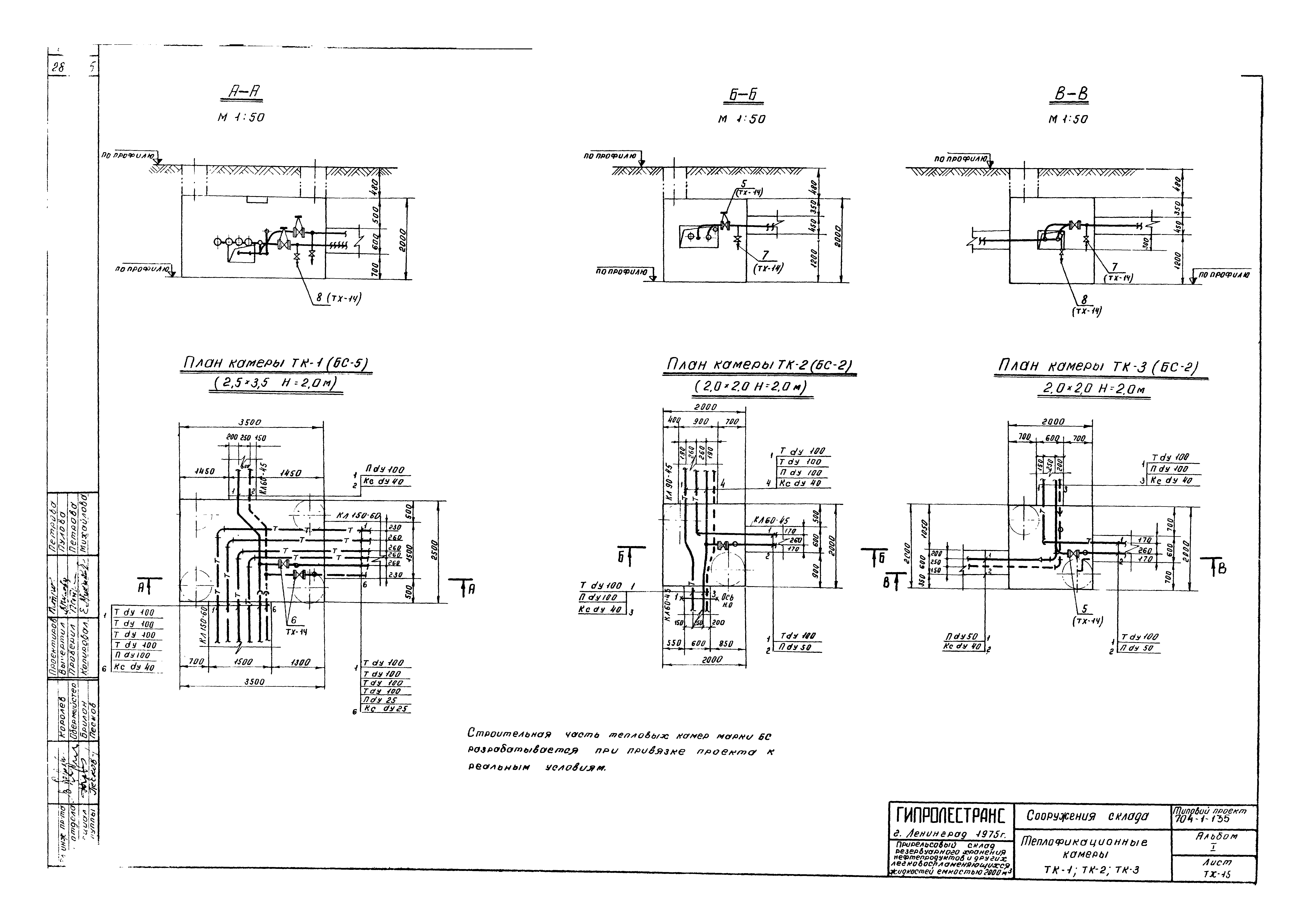
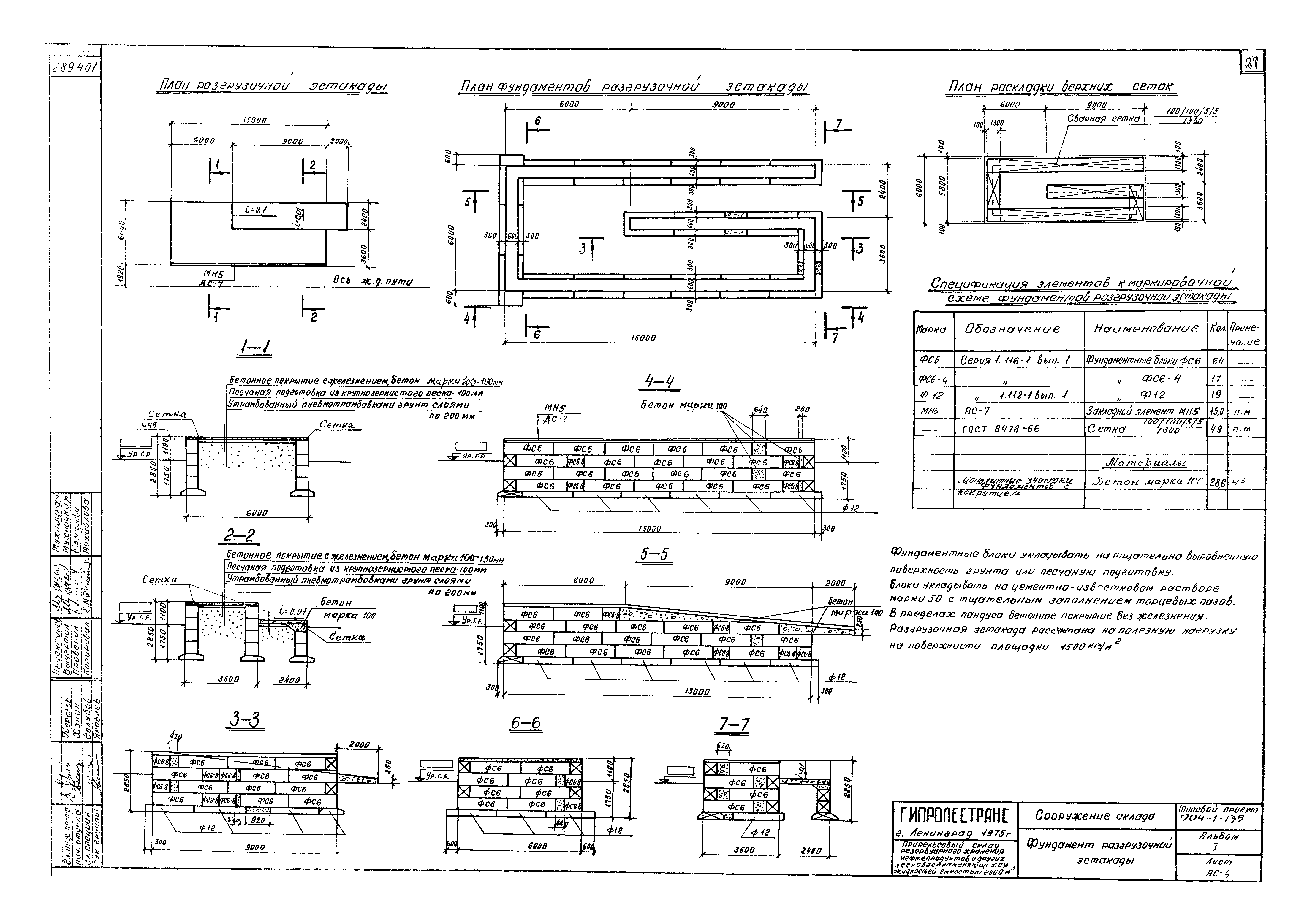
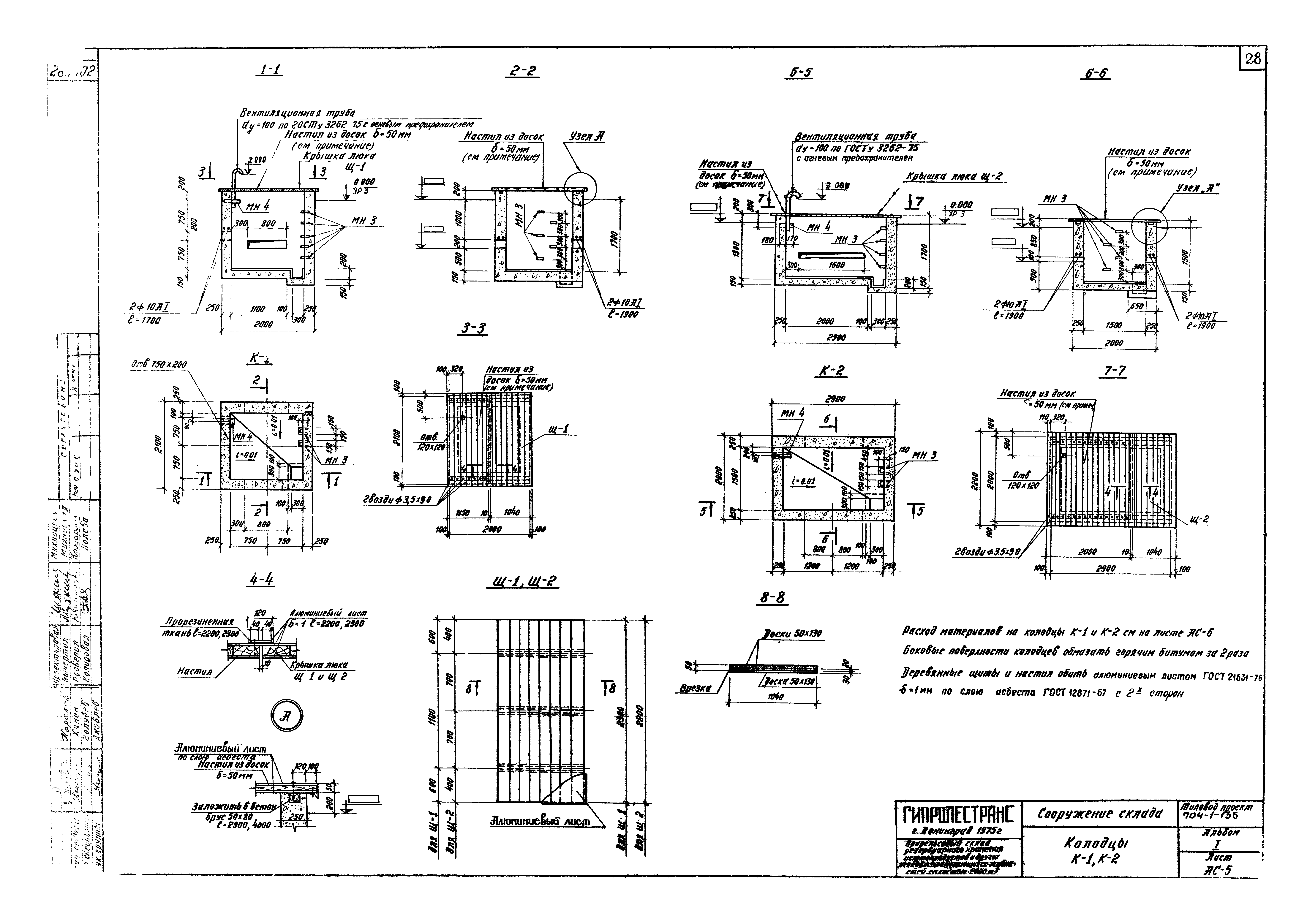
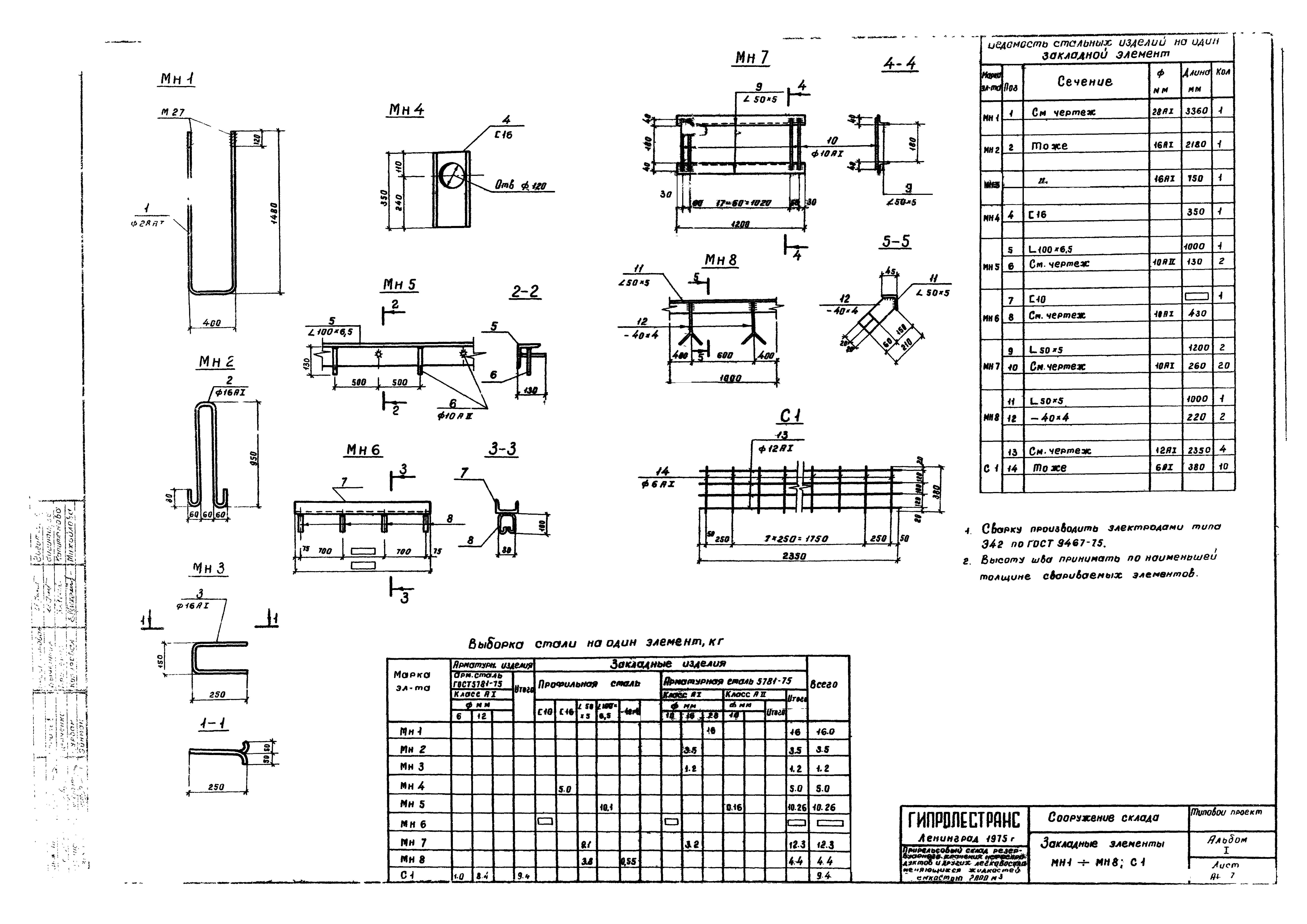
| Оглавление: | ТП 704-1-135 Титульный лист ТП 704-1-135 Содержание альбома ТП 704-1-135 Пояснительная записка ТП 704-1-135-ГП-1 Нормативный генеральный план ТП 704-1-135-ГП-2 Поперечные разрезы, обвалований, дорожных одежд, лотков и объемы работ ТП 704-1-135-ГП-3 Лестницы через обвалование ТП 704-1-135-ТХ Технологическая часть ТП 704-1-135-ТХ-1 Заглавный лист ТП 704-1-135-ТХ-2 Технологическая схема трубопроводов ТП 704-1-135-ТХ-3 Техплан ТП 704-1-135-ТХ-4 Наружные трубопроводы. Разрезы 1-1 и 2-2 ТП 704-1-135-ТХ-5 Наружные трубопроводы. Разрезы 3-3÷12-12 ТП 704-1-135-ТХ-6 Сливной стояк Ду100 ТП 704-1-135-ТХ-7 Автотранспортный сливо-наливной стояк. Общий вид. Спецификация ТП 704-1-135-ТХ-8 Автотранспортный сливо-наливной стояк. Узлы 1,2,3,4,6,7,8 ТП 704-1-135-ТХ-9 Автотранспортный сливо-наливной стояк. Уел 5, конструкция опоры стойки, план стояка ТП 704-1-135-ТХ-10 Автотранспортный сливо-наливной стояк. Детали ТП 704-1-135-ТХ-11 Автотранспортный сливо-наливной стояк. Компоновка оборудования. Спецификация ТП 704-1-135-ТХ-12 Автотранспортный сливо-наливной стояк. Опорная станция и устройство для присоединения гибкого шланга ТП 704-1-135-ТХ-13 Автотранспортный сливо-наливной стояк. Детали ТП 704-1-135-ТХ-14 План трассы и монтажная схема трубопроводов. Спецификация на трубы, арматуру и строительные конструкции ТП 704-1-135-ТХ-15 Теплофикационные камеры ТК-1,ТК-2,ТК-3 ТП 704-1-135-ТХ-16 Теплофикационные камеры ТК-4,ТК-5 ТП 704-1-135-ТХ-17 Сечение каналов А-А,Б-Б,В-В,Г-Г ТП 704-1-135-АС Строительная часть ТП 704-1-135-АС-1 Заглавный лист ТП 704-1-135-АС-2 Монтажные схемы фундаментов ТП 704-1-135-АС-3 Монолитные фундаменты ФМ-1÷ФМ-6. Фундамент Ф-1 ТП 704-1-135-АС-4 Фундамент разгрузочной эстакады ТП 704-1-135-АС-5 Колодцы К-1,К-2 ТП 704-1-135-АС-6 Отстойник. Маслоуловитель ТП 704-1-135-АС-7 Закладные элементы МН-1÷МН-8,С-1 ТП 704-1-135-АС-8 Монорельс. Узлы и детали ТП 704-1-135-ВК Водопровод и канализация ТП 704-1-135-ВК-1 Заглавный лист ТП 704-1-135-ВК-2 Примерный план с сетями и сооружениями водопровода и канализации ТП 704-1-135-ВК-3 Дождеприемный колодец с устройством для выпуска атмосферных вод из обвалования. Рычажный механизм подъема хлопушки. Общий вид установки. Спецификация ТП 704-1-135-ВК-4 Дождеприемный колодец с устройством для выпуска атмосферных вод из обвалования ТП 704-1-135-ВК-5 Рычажный механизм подъема хлопушки. Детали ТП 704-1-135-ЭЛ Электротехническая часть ТП 704-1-135-ЭЛ-1 План расположения наружных электрических сетей. Заземление ТП 704-1-135-ЭЛ-2 Молниезащита ТП 704-1-135-ЭЛ-3 Наружное электроосвещение. План ТП 704-1-135-ЭЛ-4 План сети пожарной сигнализации. Установка извещателя на столбе |
| Разработан: | Гипролестранс |
| Утверждён: | 16.07.1976 Минлеспром СССР (USSR Minlesprom 58) |








































