Скачать Типовой проект 704-1-135 Альбом II. Производственное здание. ЧертежиДата актуализации: 01.01.2021
|
| Обозначение: | Типовой проект 704-1-135 |
| Обозначение англ: | 704-1-135 |
| Статус: | действует |
| Название рус.: | Альбом II. Производственное здание. Чертежи |
| Дата добавления в базу: | 01.09.2013 |
| Дата актуализации: | 01.01.2021 |
| Дата введения: | 25.03.1978 |
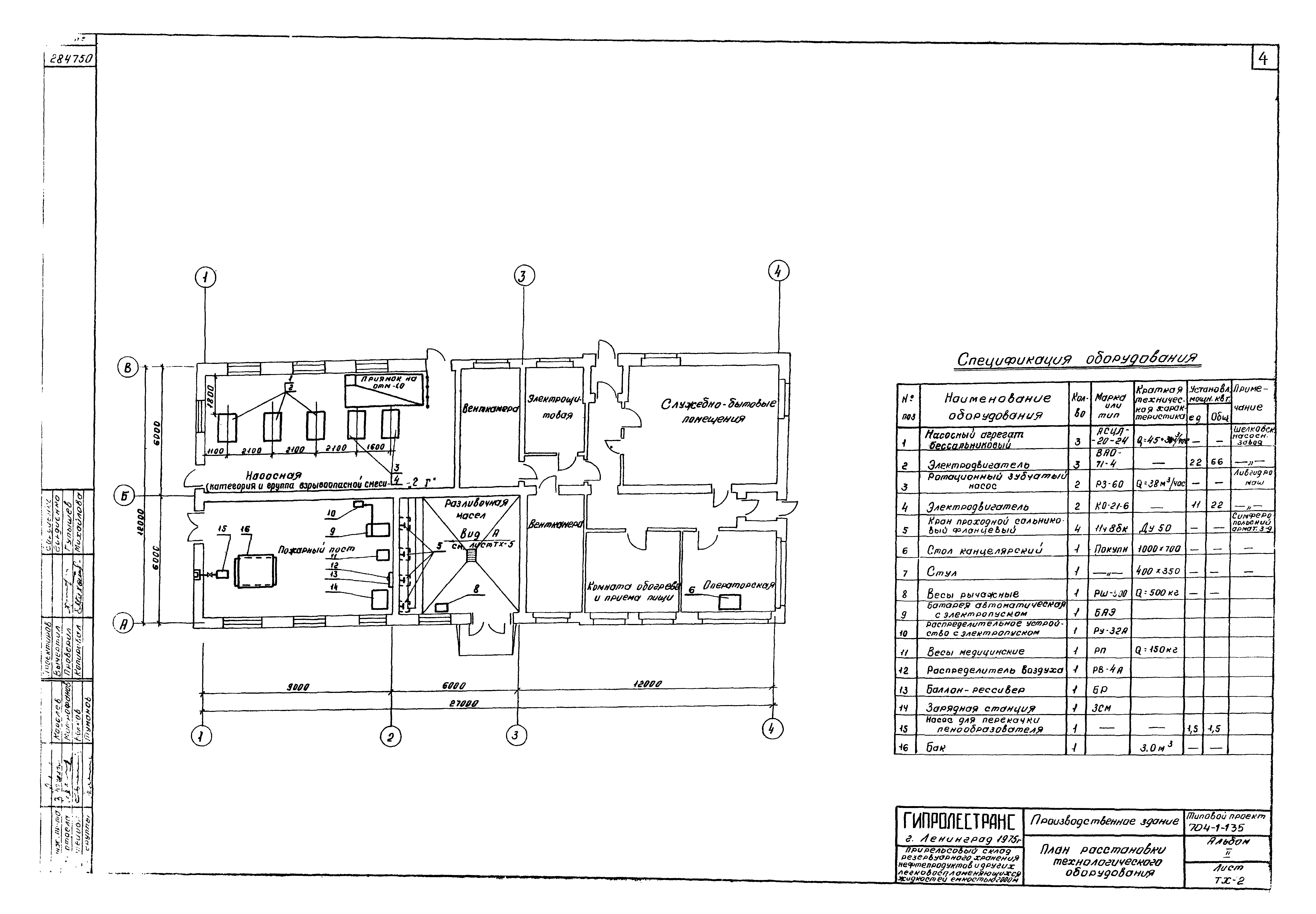
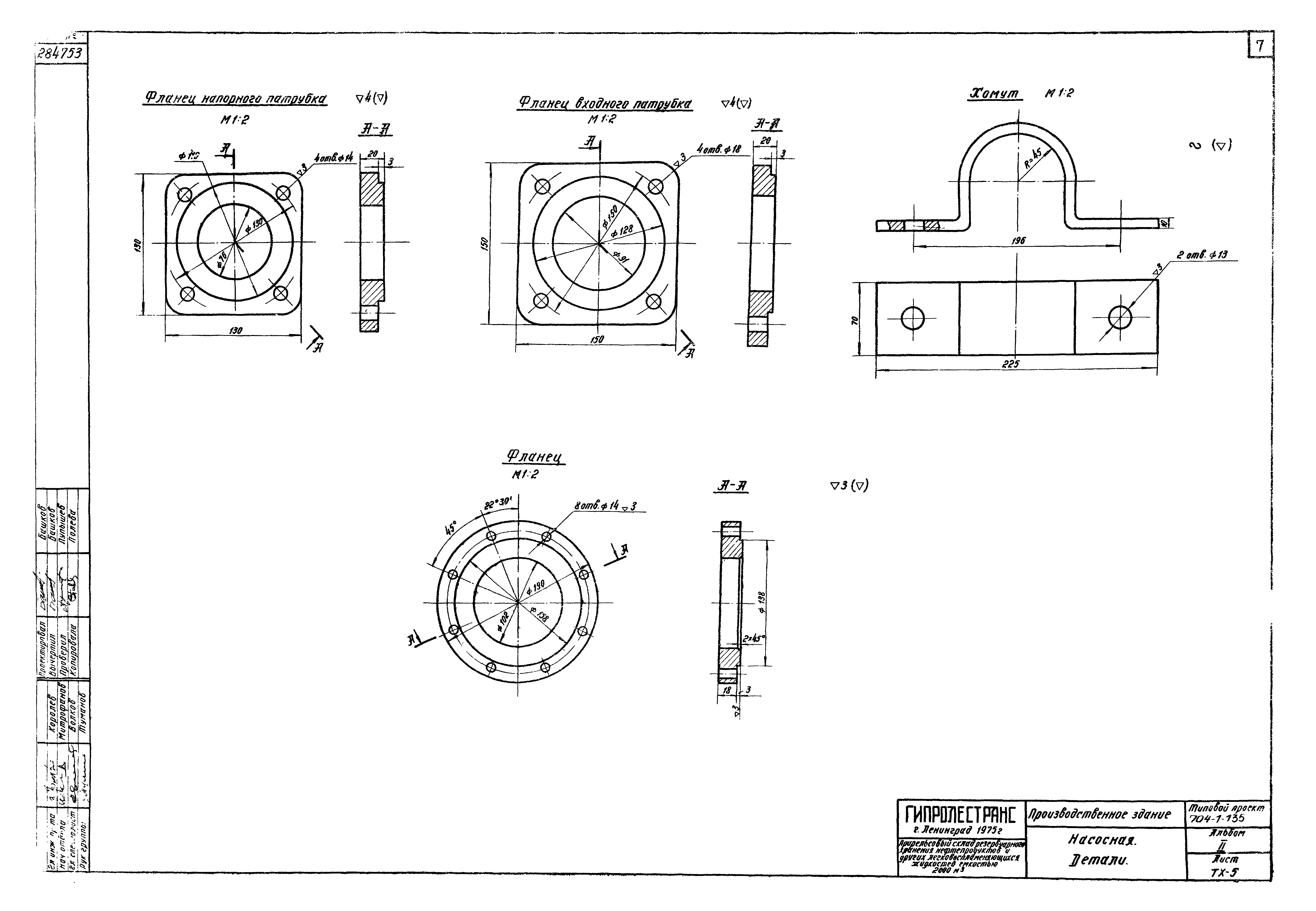
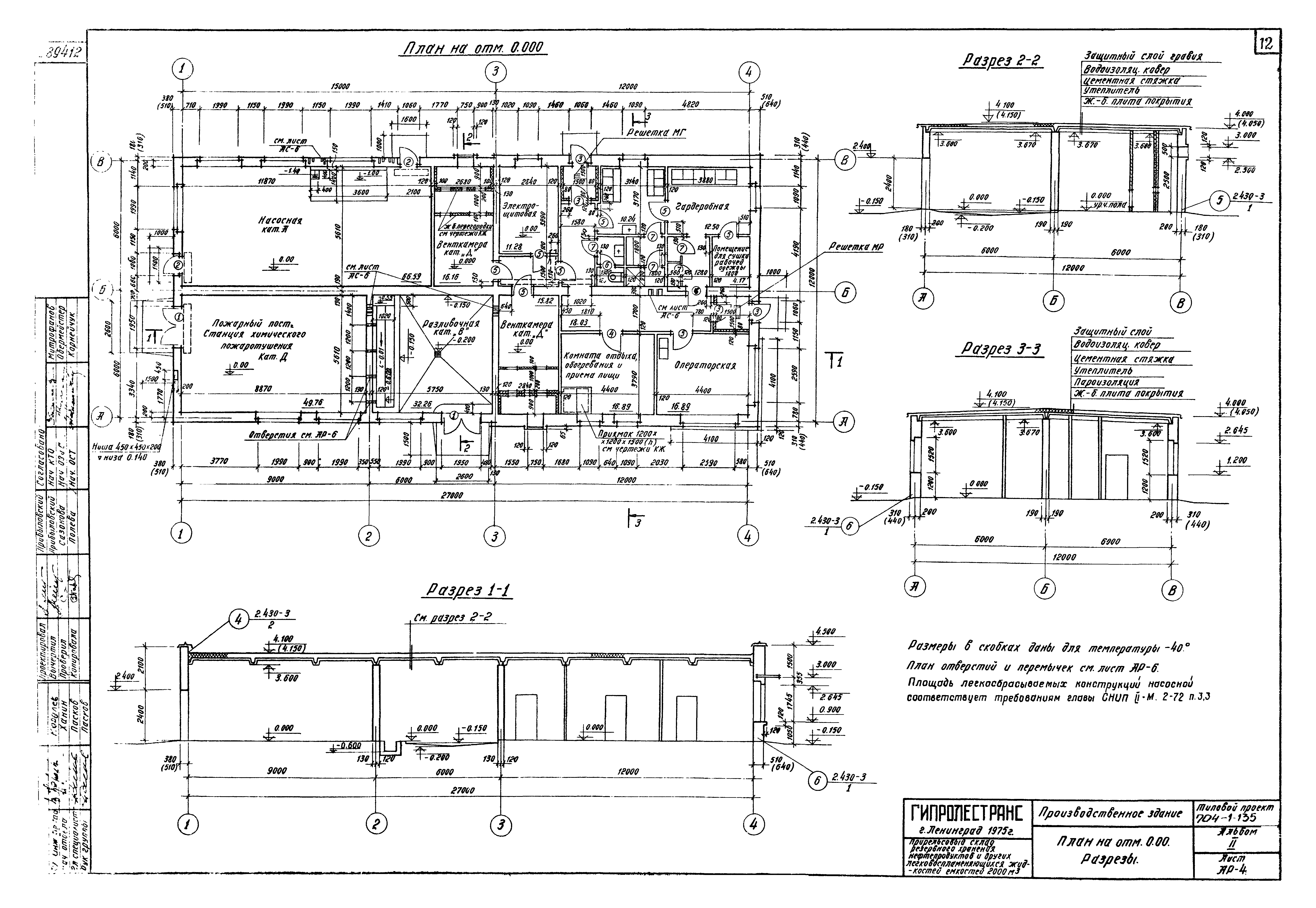
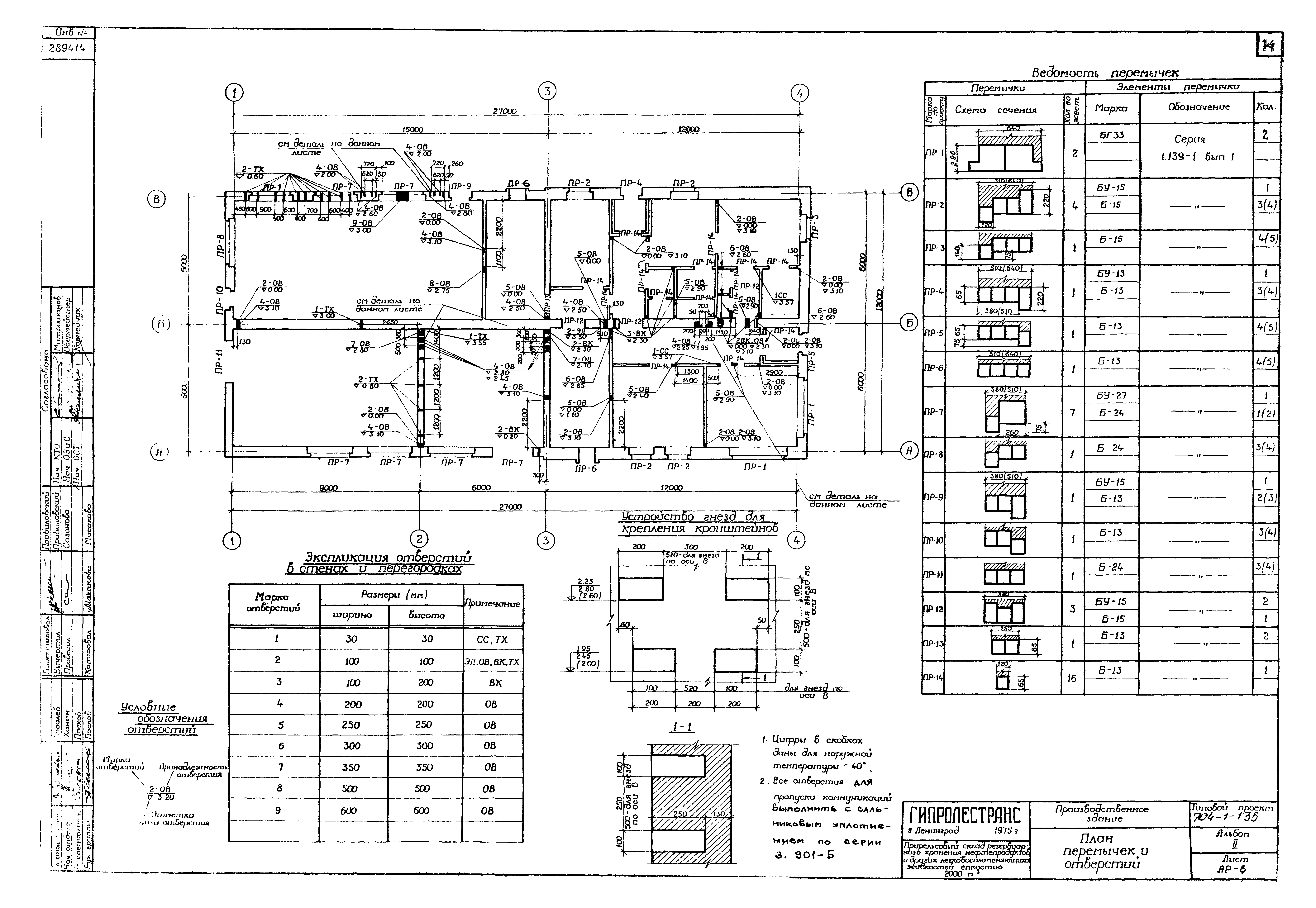
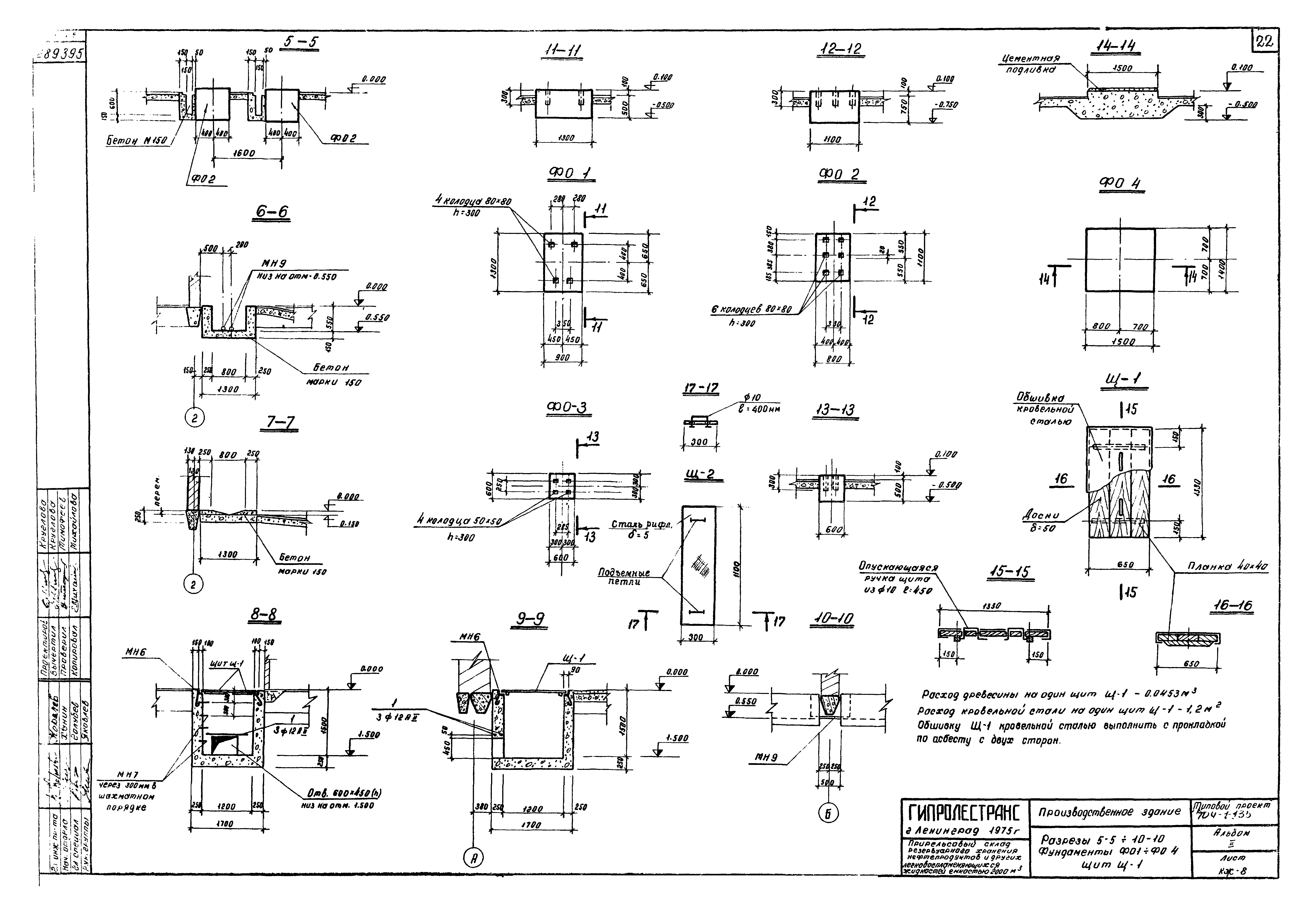
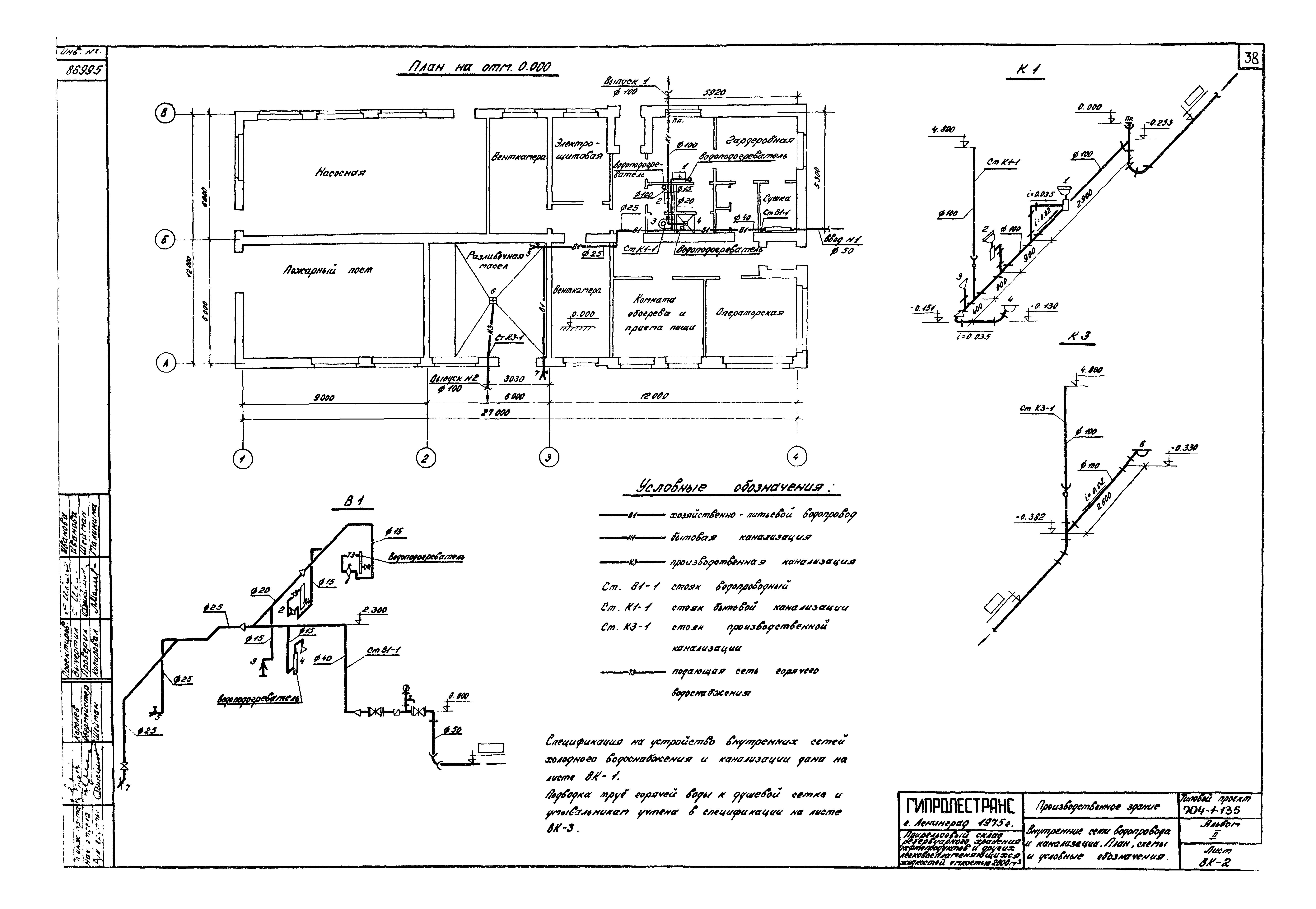
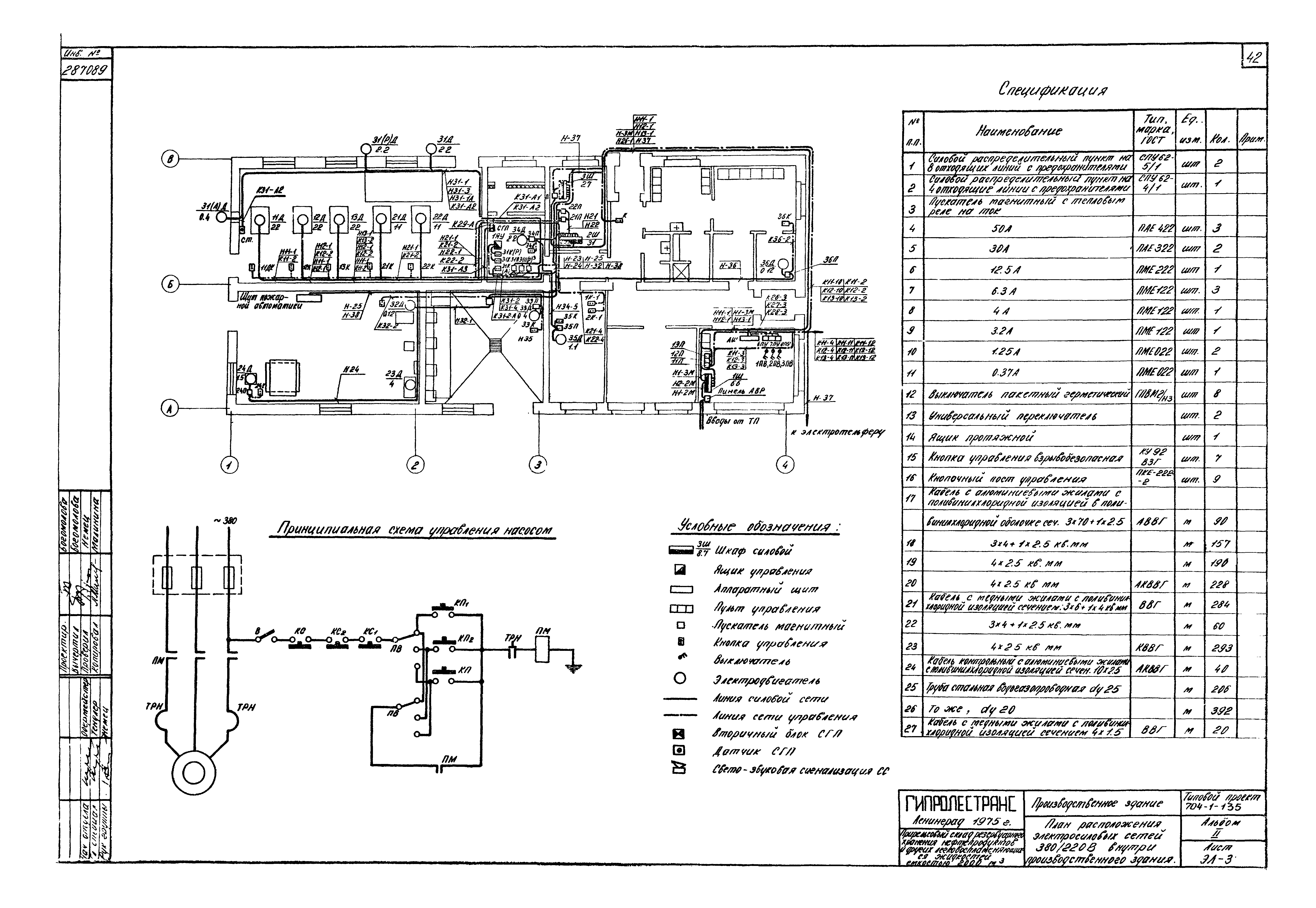
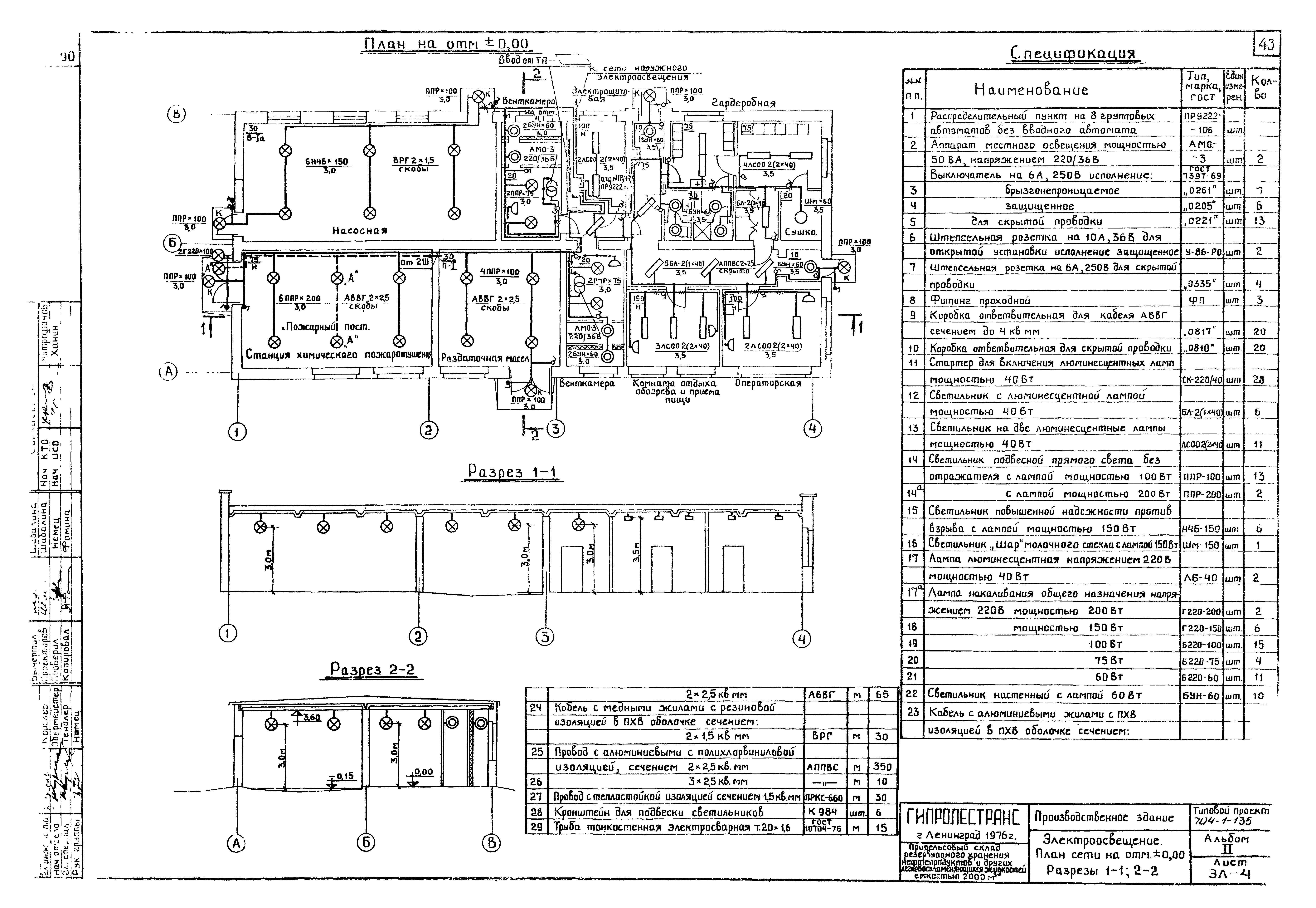
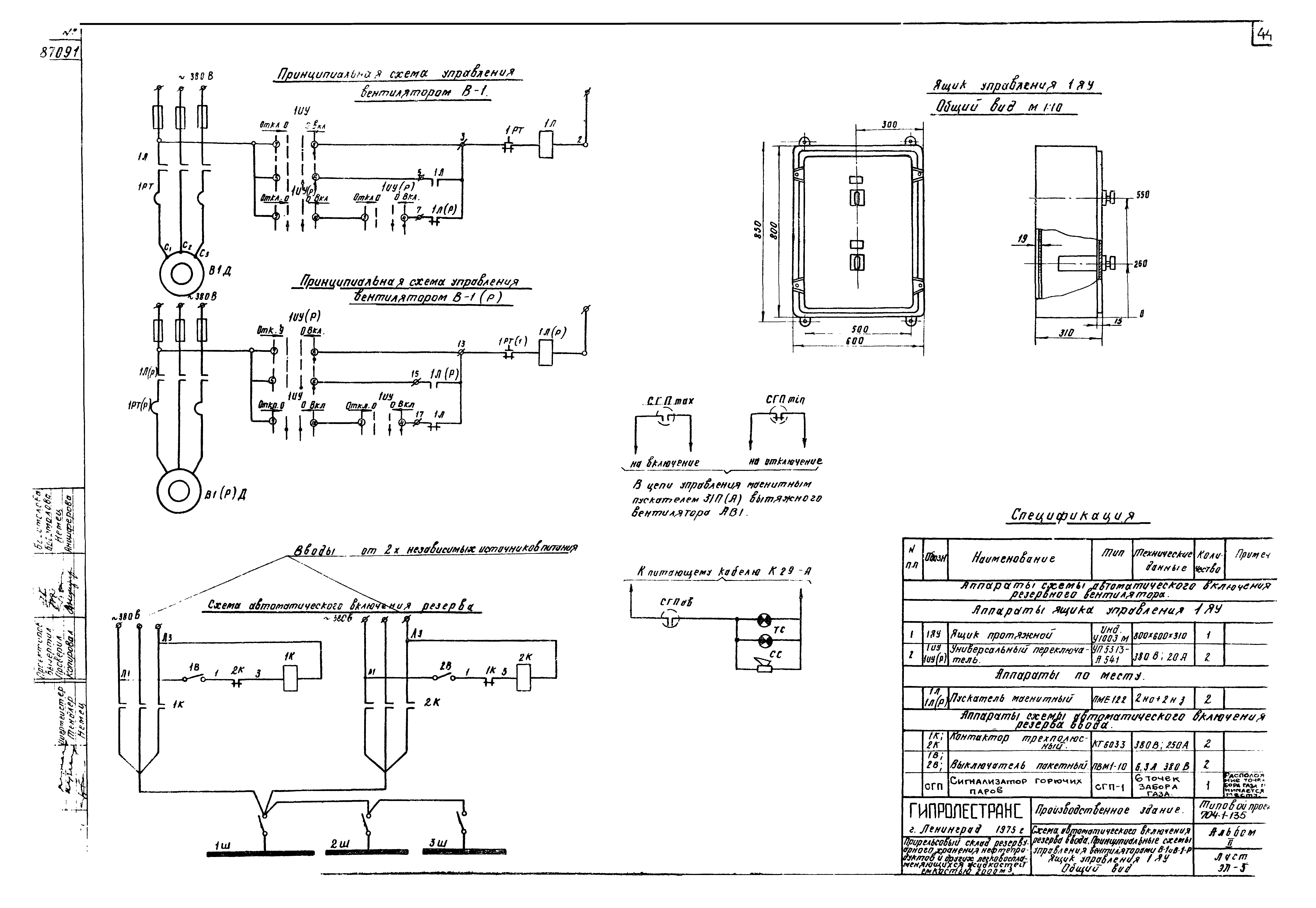
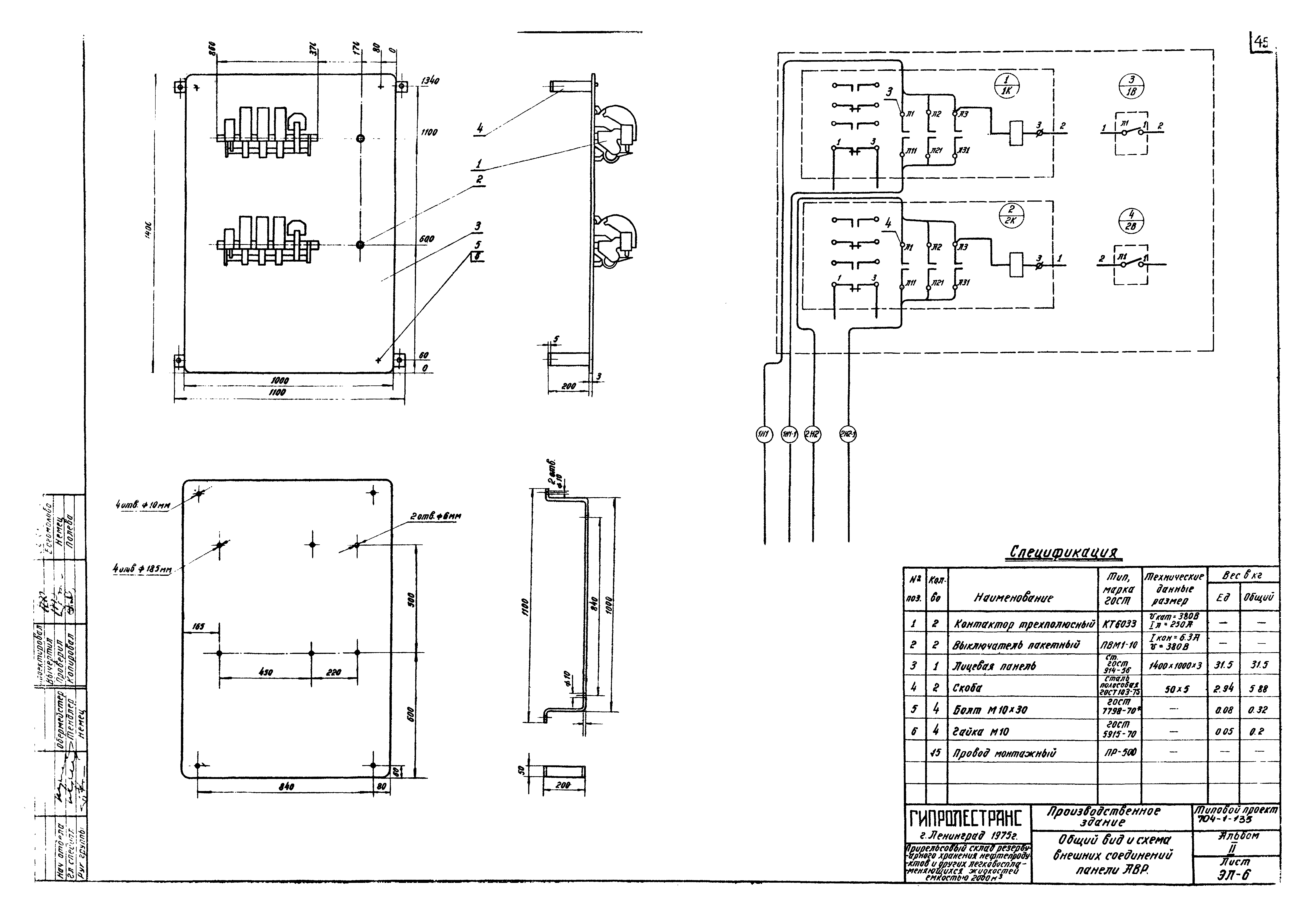
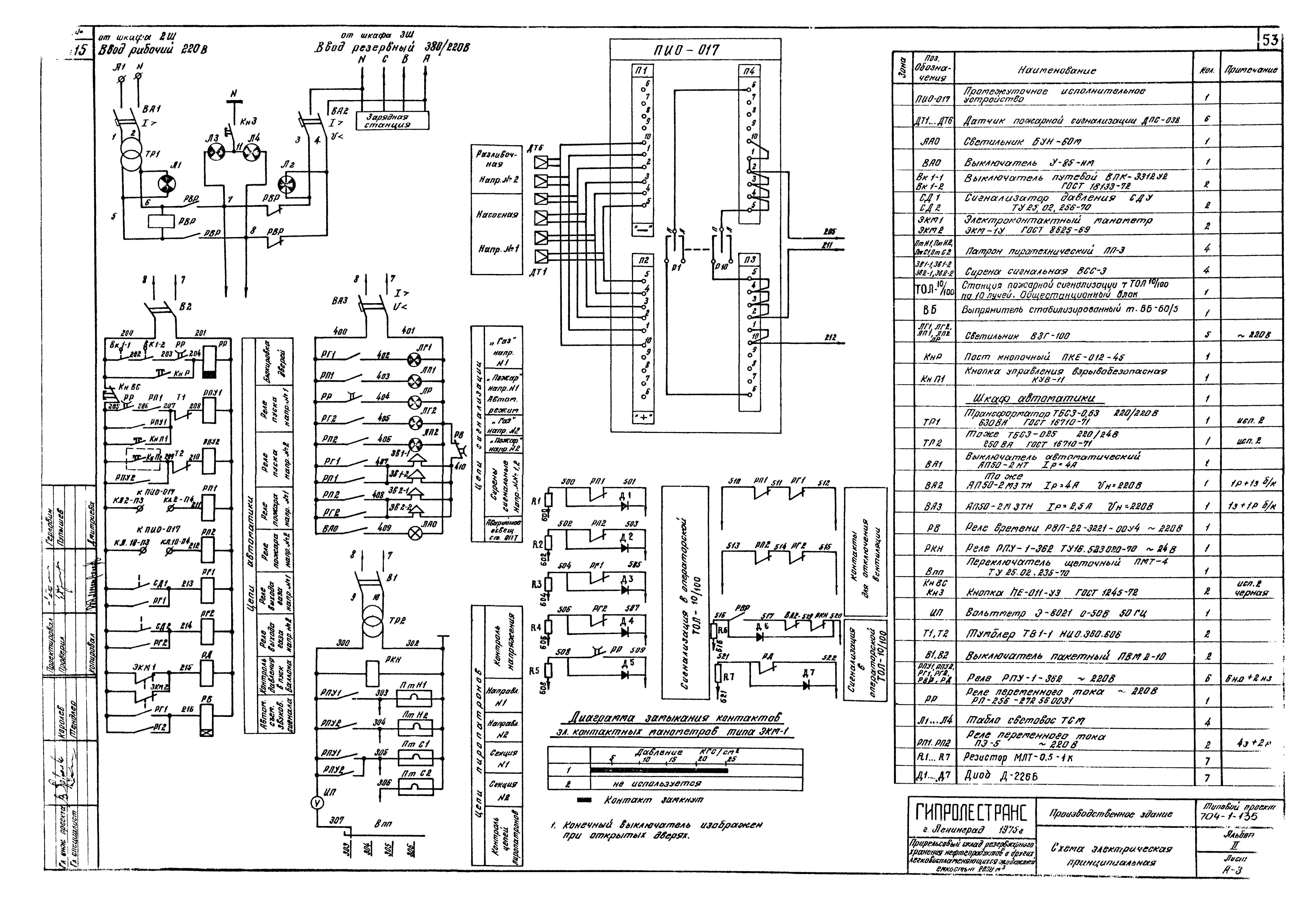
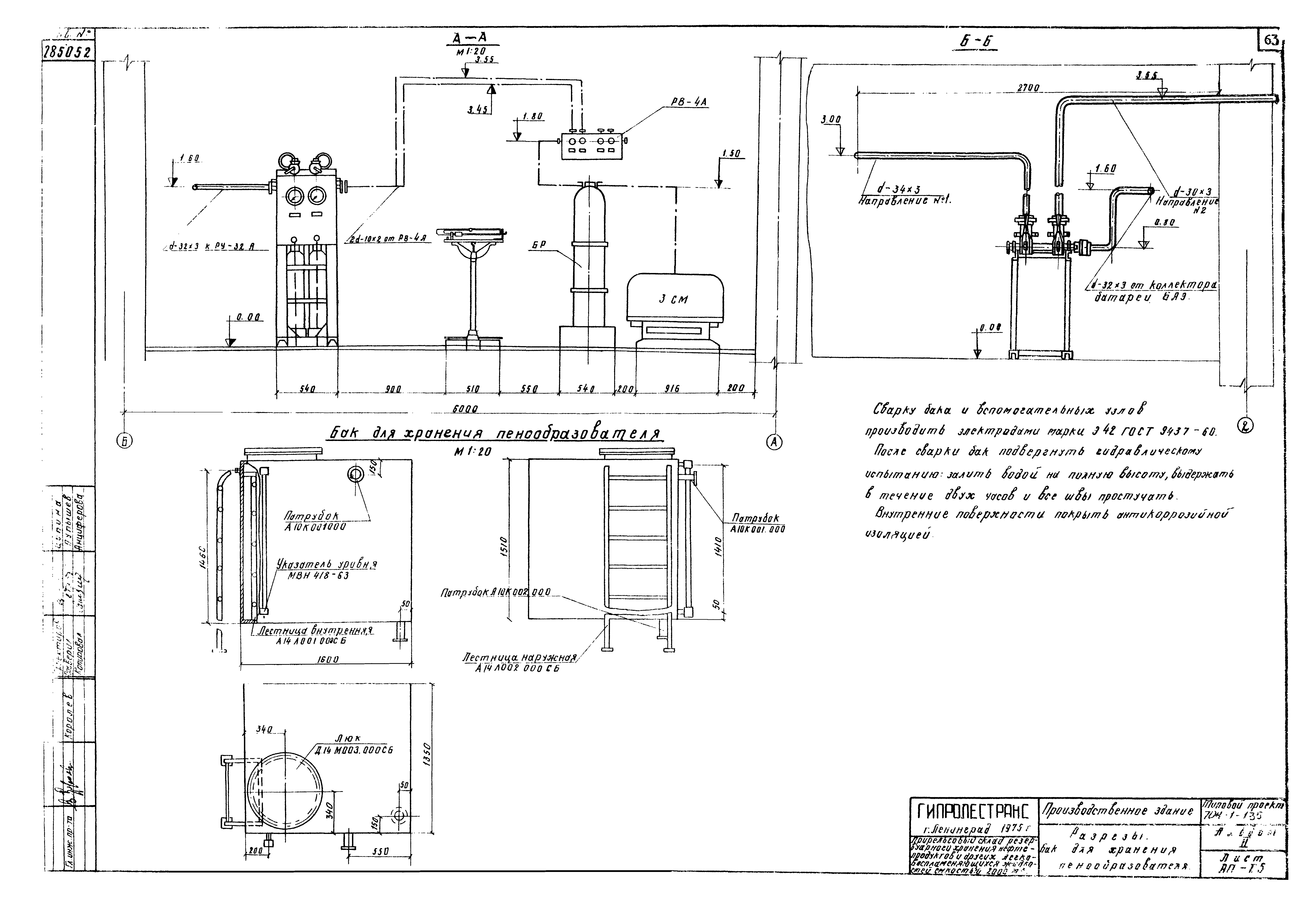
| Оглавление: | ТП 704-1-135 Титульный лист ТП 704-1-135 Содержание альбома ТП 704-1-135-ТХ Технологическая часть ТП 704-1-135-ТХ-1 Заглавный лист ТП 704-1-135-ТХ-2 План расстановки технологического оборудования ТП 704-1-135-ТХ-3 Насосная. Монтажный план оборудования ТП 704-1-135-ТХ-4 Насосная. Монтажный план оборудования. Разрез 1-1 и 2-2 ТП 704-1-135-ТХ-5 Насосная. Монтажный план оборудования. Детали ТП 704-1-135-ТХ-6 Насосная. Монтажный план оборудования. Разливочная масел ТП 704-1-135-АР Архитектурно-строительная часть ТП 704-1-135-АР-1 Заглавный лист ТП 704-1-135-АР-2 Общие указания. Сводная спецификация ТП 704-1-135-АР-3 План полов и кровли. Ведомость проемов ворот и дверей. Ведомость отделки помещений ТП 704-1-135-АР-4 План на отметке 0.000. Разрезы ТП 704-1-135-АР-5 Фасады ТП 704-1-135-АР-6 План отверстий и перемычек ТП 704-1-135-КЖ-1 Заглавный лист ТП 704-1-135-КЖ-2 Маркировочная схема фундаментных балок и плит для варианта t=-30ºС. Узлы 1-4 ТП 704-1-135-КЖ-3 Маркировочная схема фундаментных балок и плит для варианта t=-40ºС. Узлы 12-15 ТП 704-1-135-КЖ-4 Узлы 5-11,16-17 к маркировочным схемам фундаментных балок и плит ТП 704-1-135-КЖ-5 Маркировочная схема плит покрытия ТП 704-1-135-КЖ-6 Монолитный участок УМ1 ТП 704-1-135-КЖ-7 Маркировочная схема подземного хозяйства. Разрезы 1-1÷4-4 ТП 704-1-135-КЖ-8 Разрезы 5-5÷10-10. Фундаменты ФОМ1-ФОМ4. Щит Щ-1 ТП 704-1-135-КЖ-9 Венткамеры ПМ1,ПМ2 ТП 704-1-135-КЖ-10 Закладные изделия МН-1÷МН-10,РI,А1-А4 ТП 704-1-135-КЖ-11 Опорная плита ИОП5-2 ТП 704-1-135-ОВ Отопление и вентиляция ТП 704-1-135-ОВ-1 Заглавный лист /начало/ ТП 704-1-135-ОВ-2 Заглавный лист /продолжение/ ТП 704-1-135-ОВ-3 Заглавный лист /продолжение/ ТП 704-1-135-ОВ-4 Заглавный лист /окончание/ ТП 704-1-135-ОВ-5 Вентиляция. План на отметке 0.000 ТП 704-1-135-ОВ-6 Отопление. План на отметке 0.000 ТП 704-1-135-ОВ-7 Схемы систем вентиляции ТП 704-1-135-ОВ-8 Схемы систем отопления и теплоснабжения ТП 704-1-135-ОВ-9 Узел ввода теплоносителя ТП 704-1-135-ОВ-10 Установка системы П-1 ТП 704-1-135-ОВ-11 Установка системы П-2 ТП 704-1-135-ОВ-12 Спецификация установка П-1 и П-2 ТП 704-1-135-ВК Водопровод и канализация ТП 704-1-135-ВК-1 Заглавный лист ТП 704-1-135-ВК-2 Внутренние сети водопровода и канализации. План, схемы и условные обозначения ТП 704-1-135-ВК-3 Пароводяной подогреватель ТП 704-1-135-ЭЛ Электротехническая часть ТП 704-1-135-ЭЛ-1 Пояснения к электротехнической части проекта ТП 704-1-135-ЭЛ-2 Распределительная сеть 380/220 В. Принципиальная однолинейная схема ТП 704-1-135-ЭЛ-3 План расположения электросиловых сетей 380/220 В внутри производственного здания ТП 704-1-135-ЭЛ-4 Электроосвещение. План сети на отметке ±0.00. Разрезы 1-1 и 2-2 ТП 704-1-135-ЭЛ-5 Схема автоматического включения резерва ввода. Принципиальные схемы управления вентиляторами В-1 и В-2. Ящик управления ТП 704-1-135-ЭЛ-6 Общий вид и схема внешних соединений панели АВР ТП 704-1-135-ЭЛ-7 Аппаратный щит. Общий вид. Принципиальная схема ТП 704-1-135-ЭЛ-8 Аппаратный щит. Схема внешних соединений ТП 704-1-135-ЭЛ-9 Кабельный журнал (начало) ТП 704-1-135-ЭЛ-10 Кабельный журнал (окончание) ТП 704-1-135-СС-11 План сетей радиофикации и телефонизации. Пояснительная записка ТП 704-1-135-А КИП и автоматика ТП 704-1-135-А-1 Заглавный лист ТП 704-1-135-А-2 Схема общая подключений ТП 704-1-135-А-3 Схема электрическая принципиальная ТП 704-1-135-А-4 Шкаф автоматики. Общий вид. Компоновка ТП 704-1-135-А-5 Шкаф автоматики. Схема монтажная (начало) ТП 704-1-135-А-6 Шкаф автоматики. Схема монтажная (окончание) ТП 704-1-135-А-7 Кабельные трассы на плане защищаемых помещений ТП 704-1-135-А-8 Кабельный журнал ТП 704-1-135-АП-Т Автоматическая установка фреонового пожаротушения ТП 704-1-135-АП-Т1 Заглавный лист (начало) ТП 704-1-135-АП-Т2 Заглавный лист (продолжение) ТП 704-1-135-АП-Т3 Заглавный лист (окончание) ТП 704-1-135-АП-Т4 План расстановки противопожарного оборудования. Аксонометрическая схема узла "бак - циркуляционный насос! ТП 704-1-135-АП-Т5 Разрезы. Бак для хранения пенообразователя ТП 704-1-135-АП-Т6 Схема станции ФПТ. Спецификация ТП 704-1-135-АП-Т7 План и аксонометрическая схема разводки трубопроводов |
| Разработан: | Гипролестранс |
| Утверждён: | 16.07.1976 Минлеспром СССР (USSR Minlesprom 58) |


































































