Скачать Типовой проект 902-2-225 Альбом I. Пояснительная записка. Здания и сооруженияДата актуализации: 01.01.2021
|
| Обозначение: | Типовой проект 902-2-225 |
| Обозначение англ: | 902-2-225 |
| Статус: | действует |
| Название рус.: | Альбом I. Пояснительная записка. Здания и сооружения |
| Дата добавления в базу: | 01.09.2013 |
| Дата актуализации: | 01.01.2021 |
| Дата введения: | 30.04.1975 |
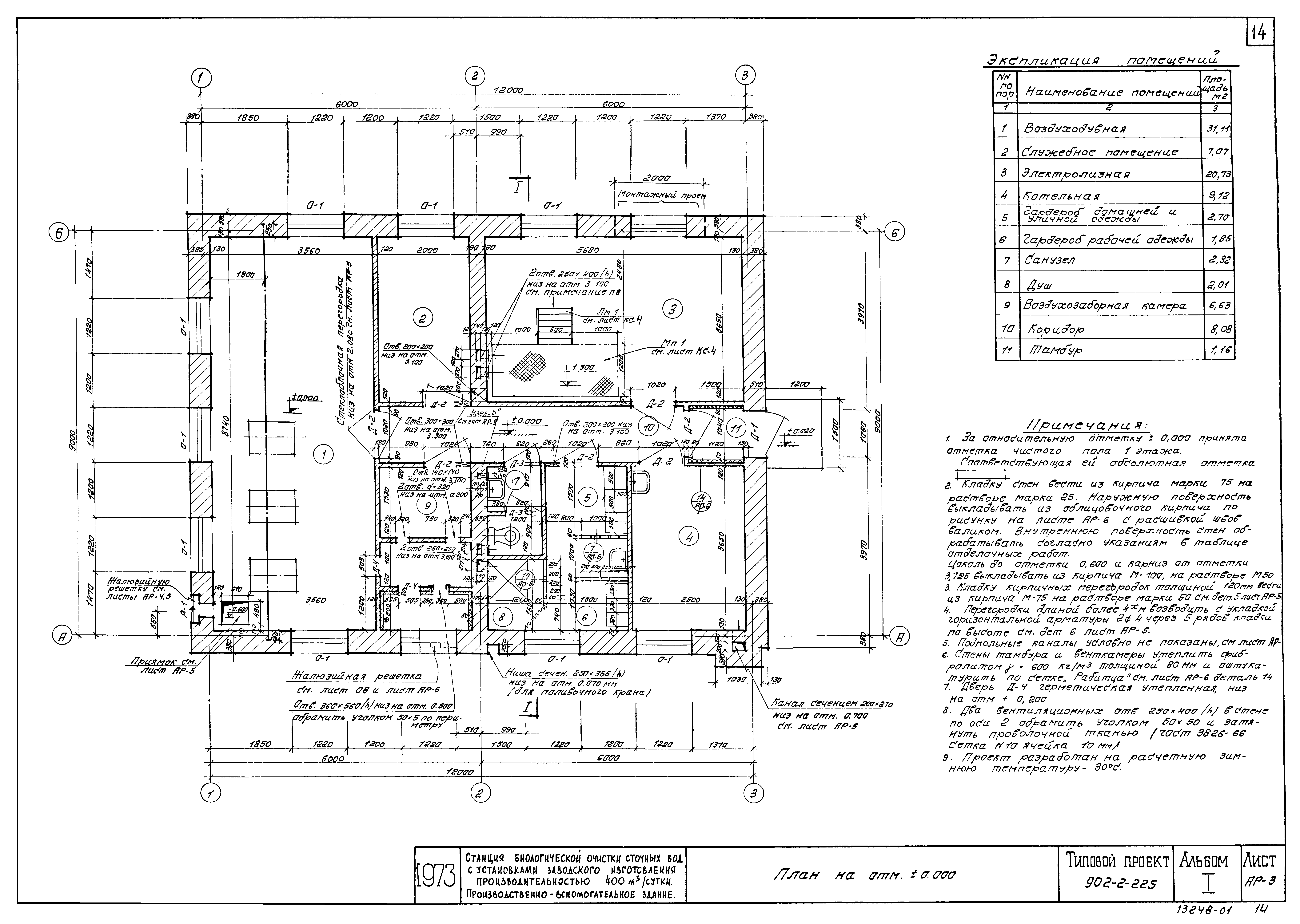
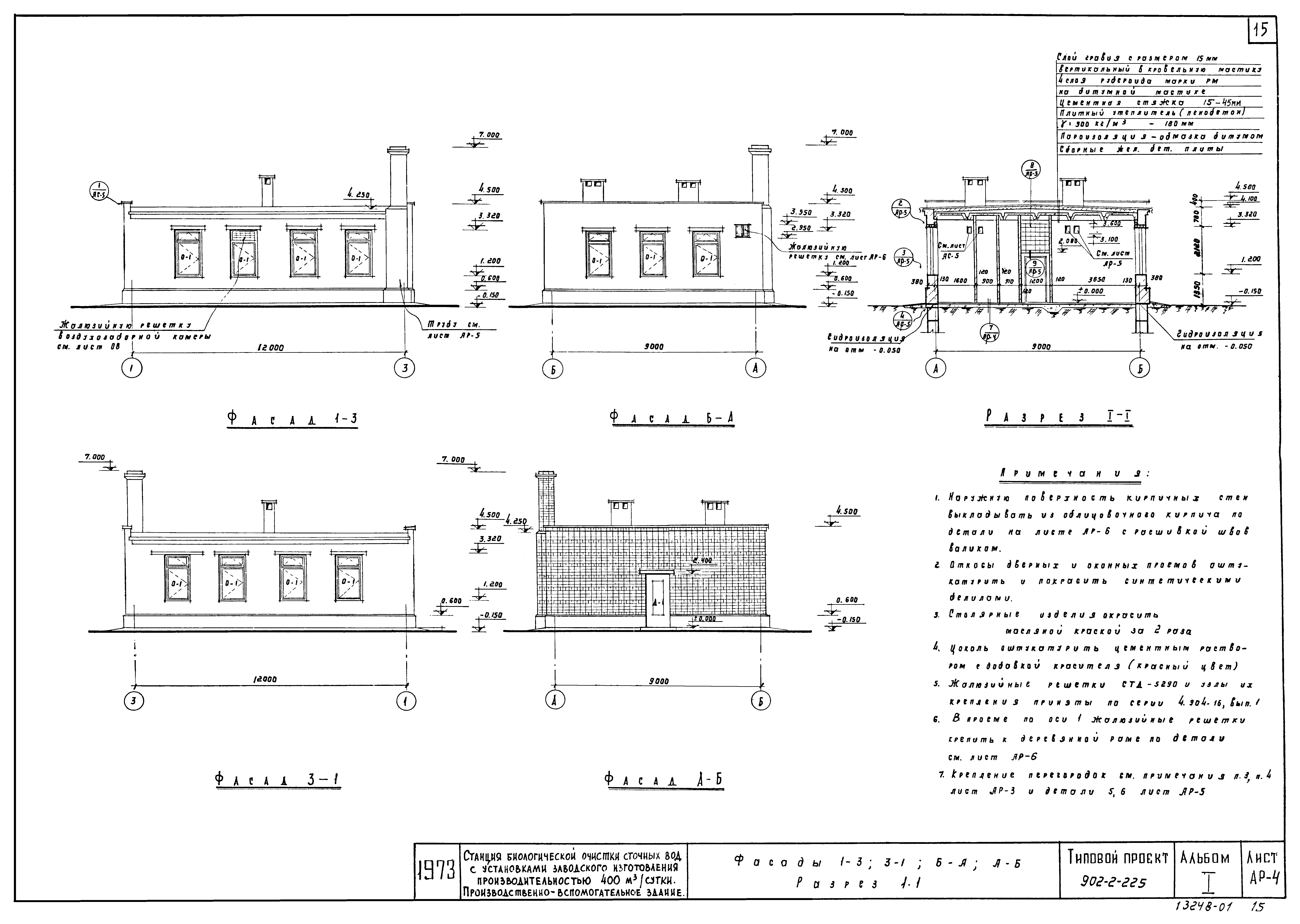
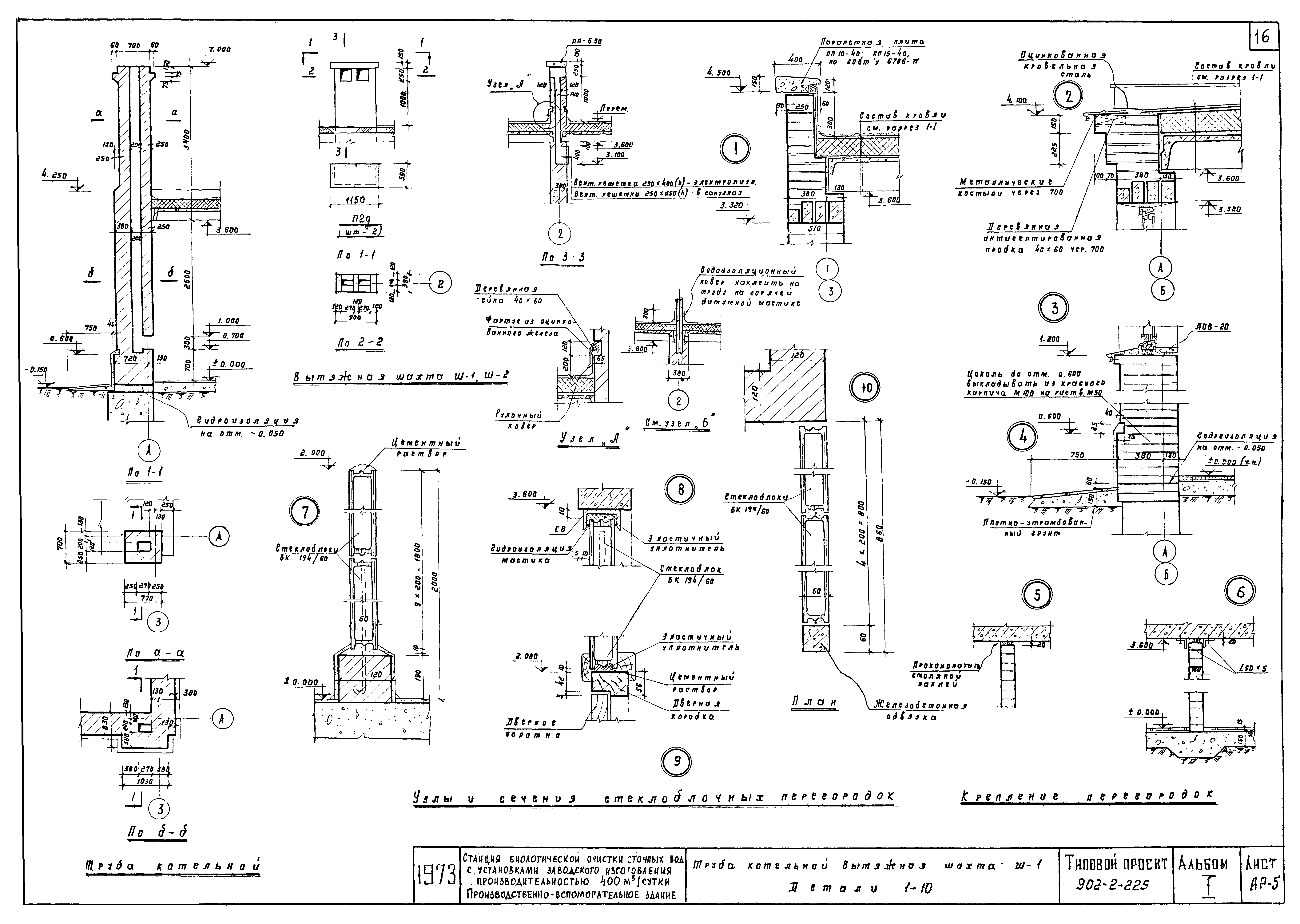
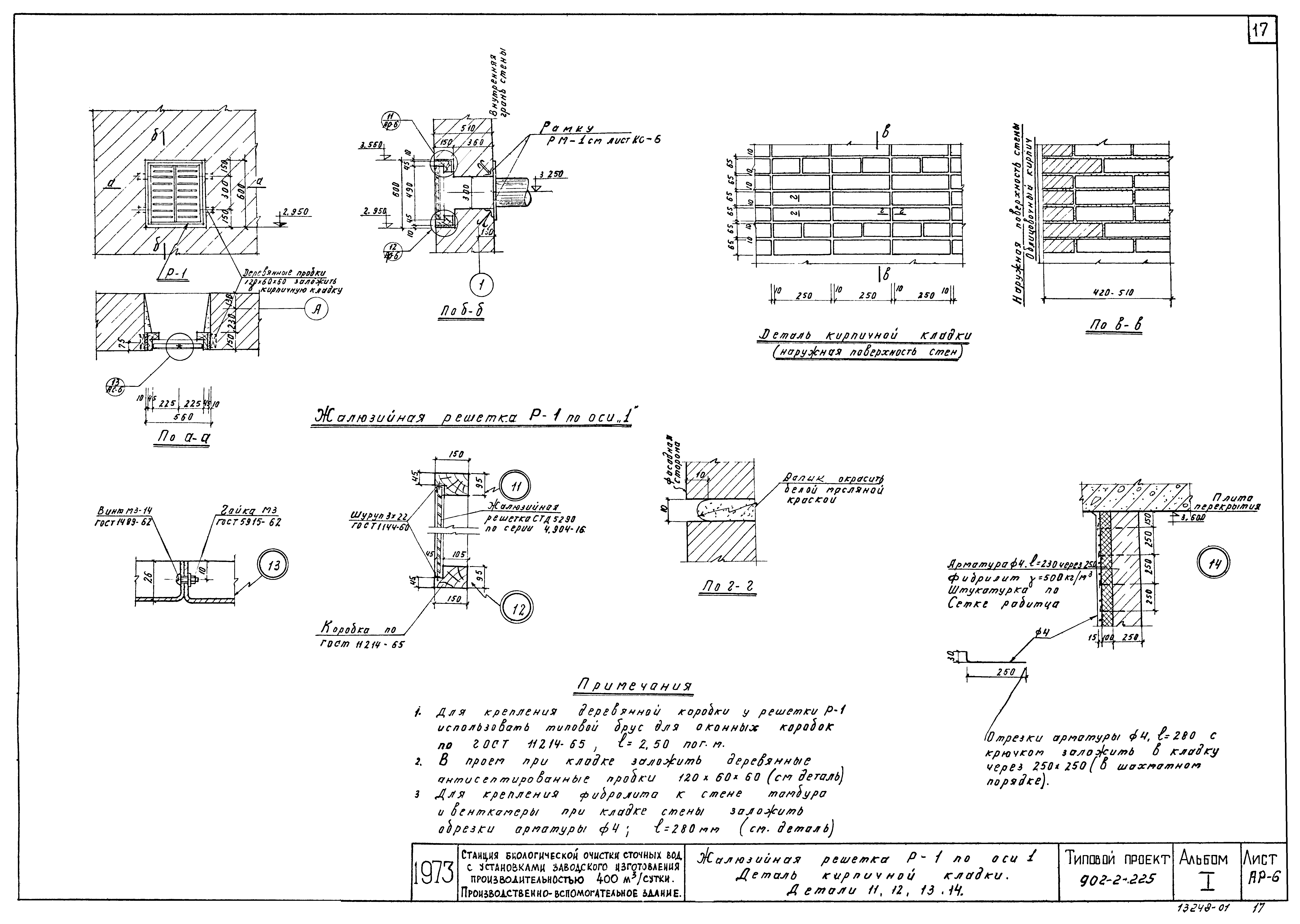
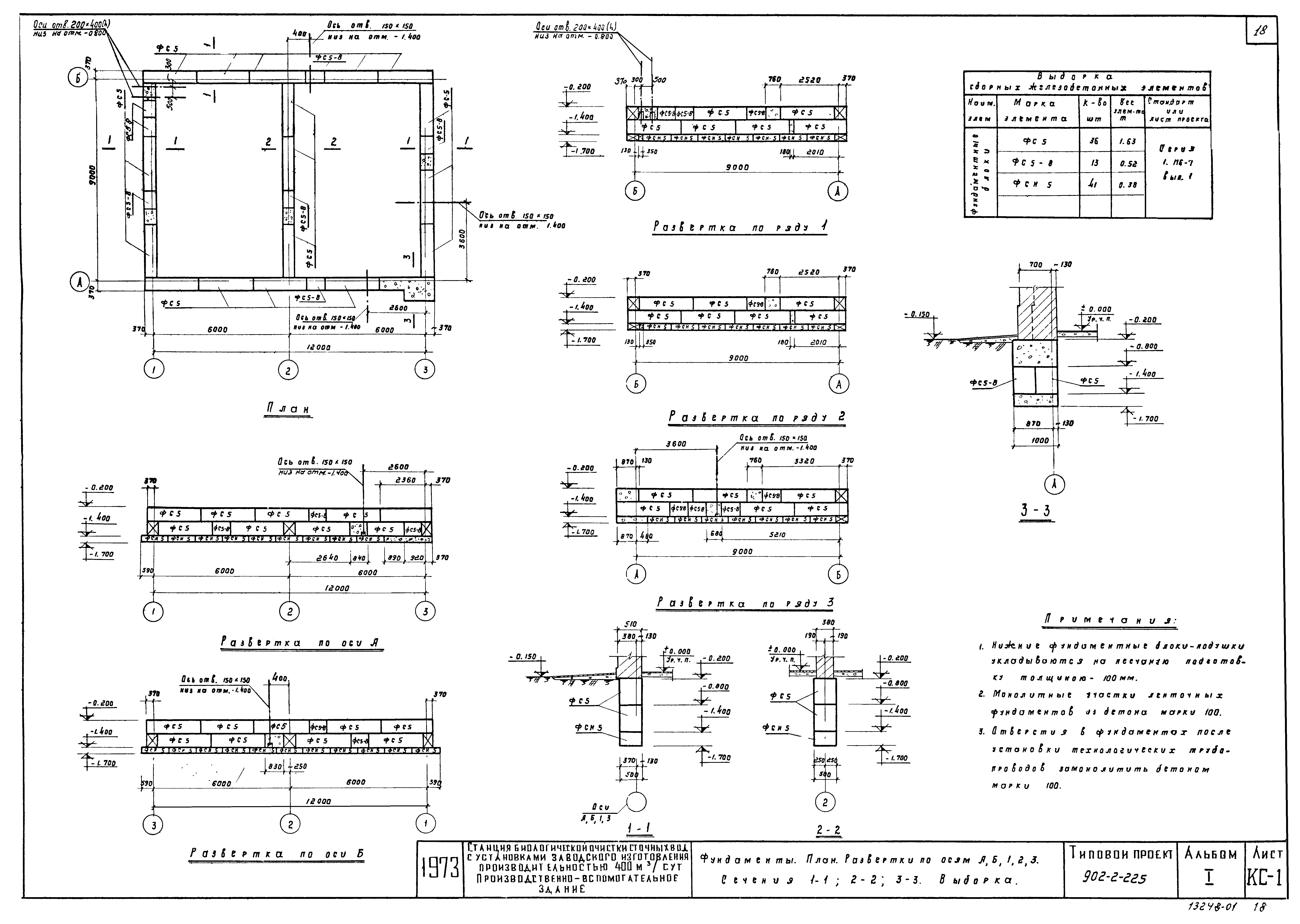
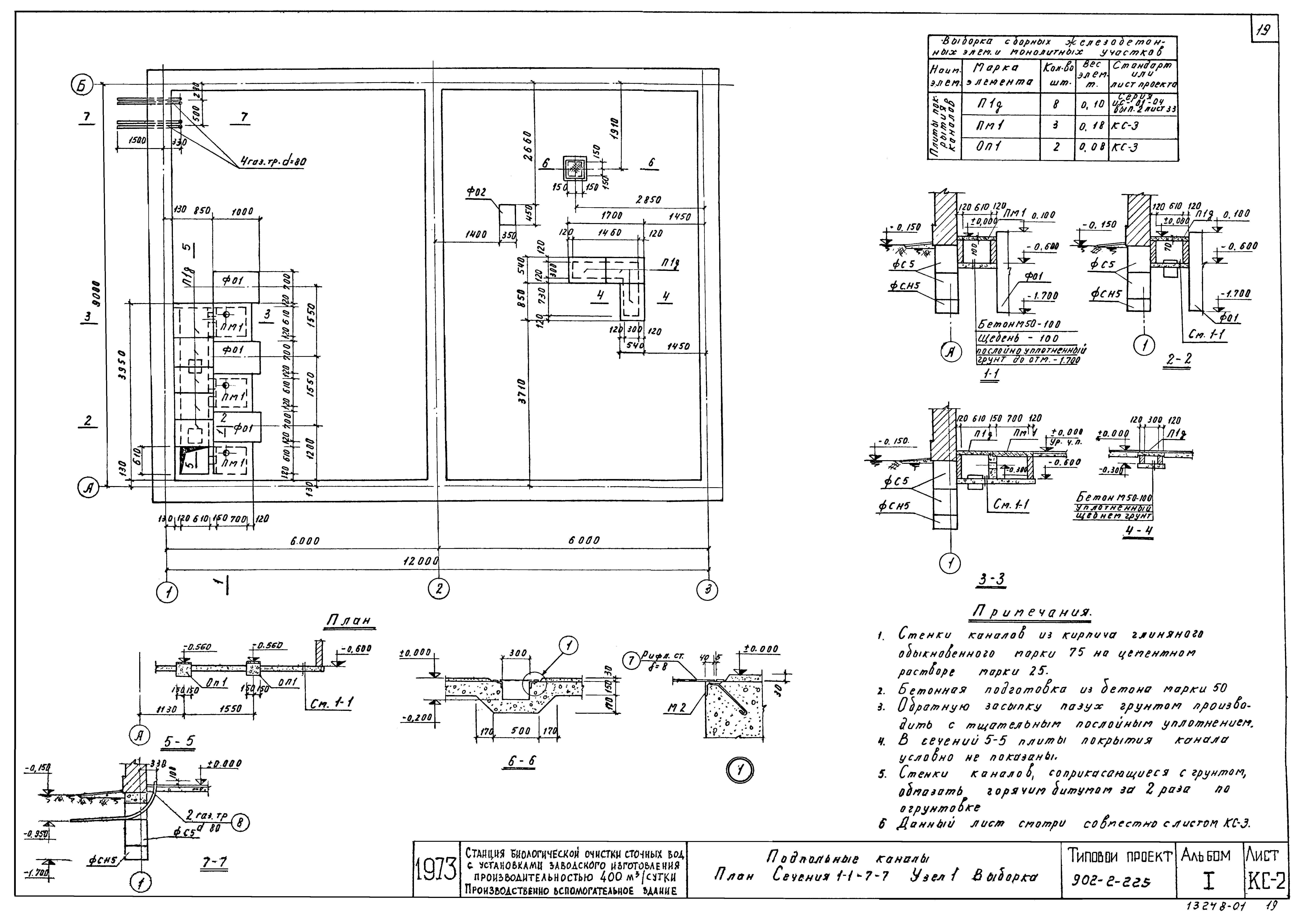
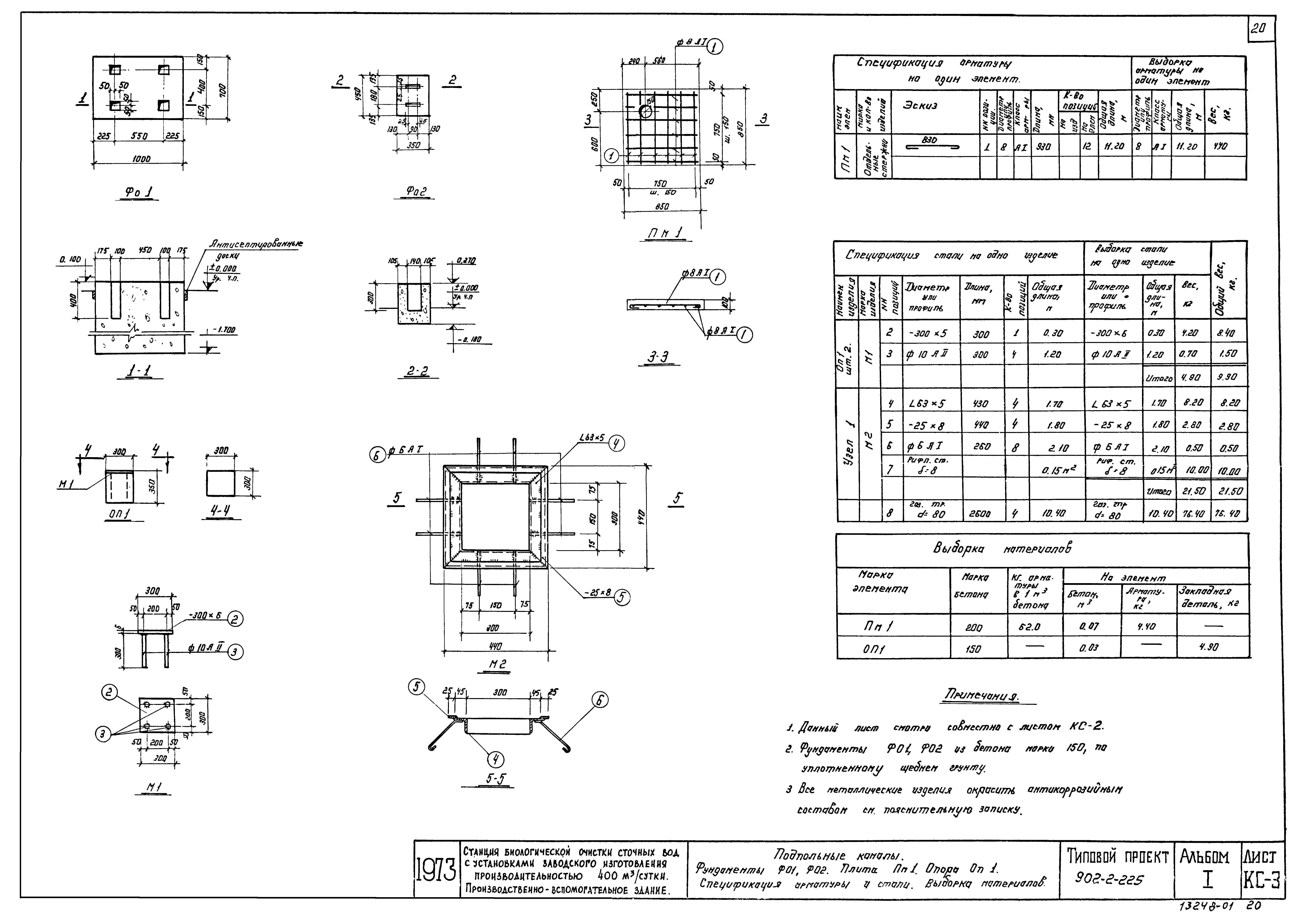
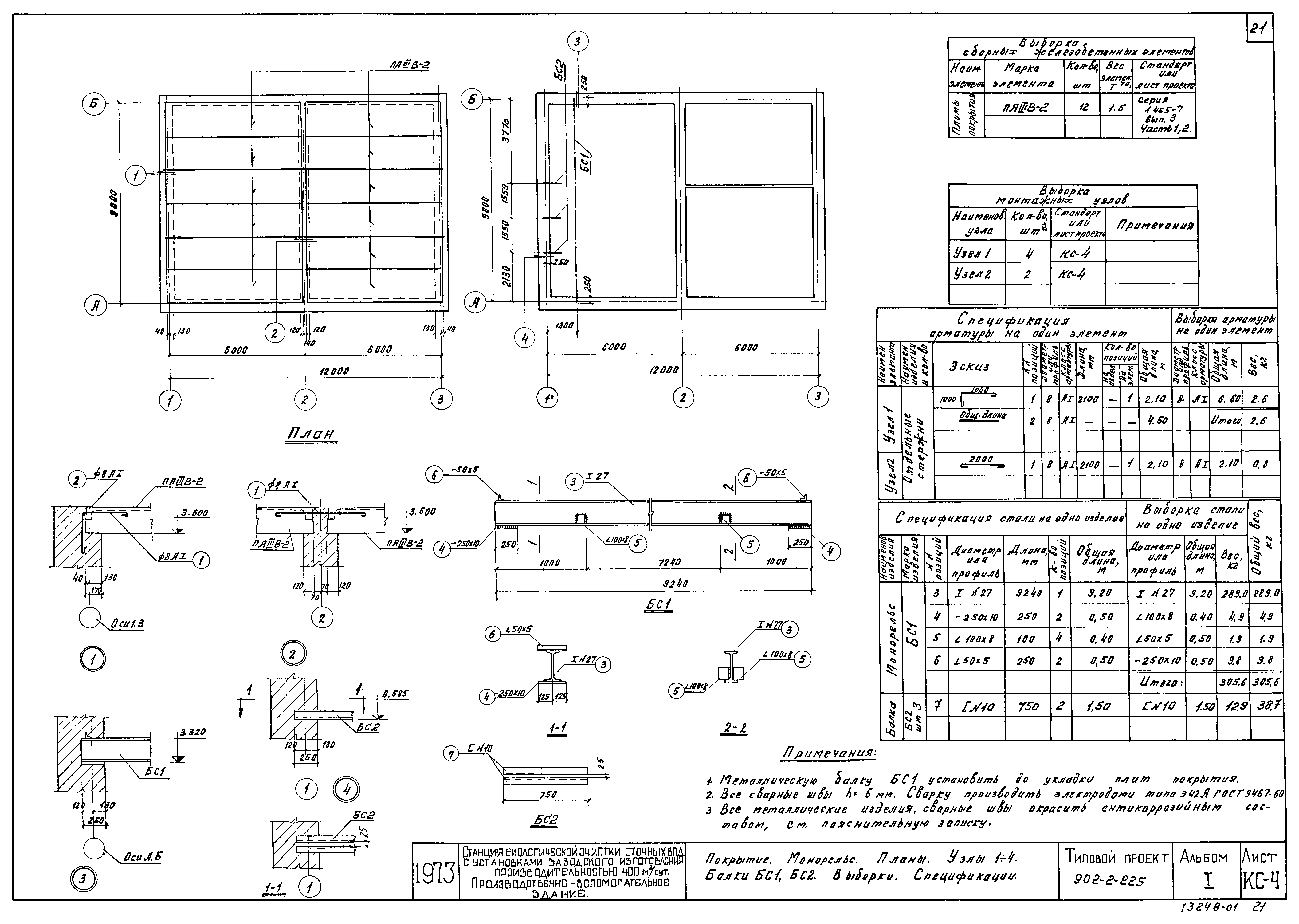
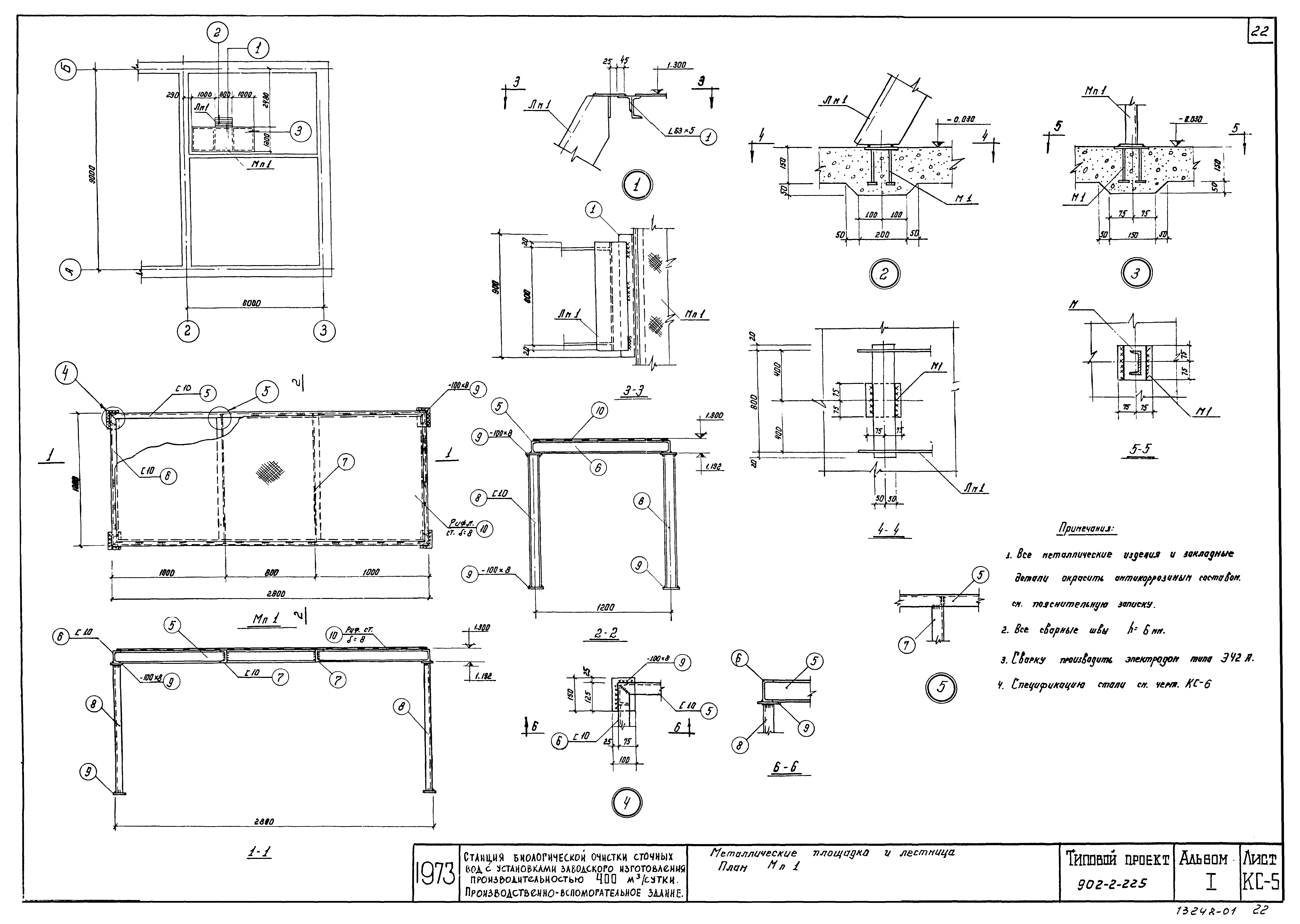
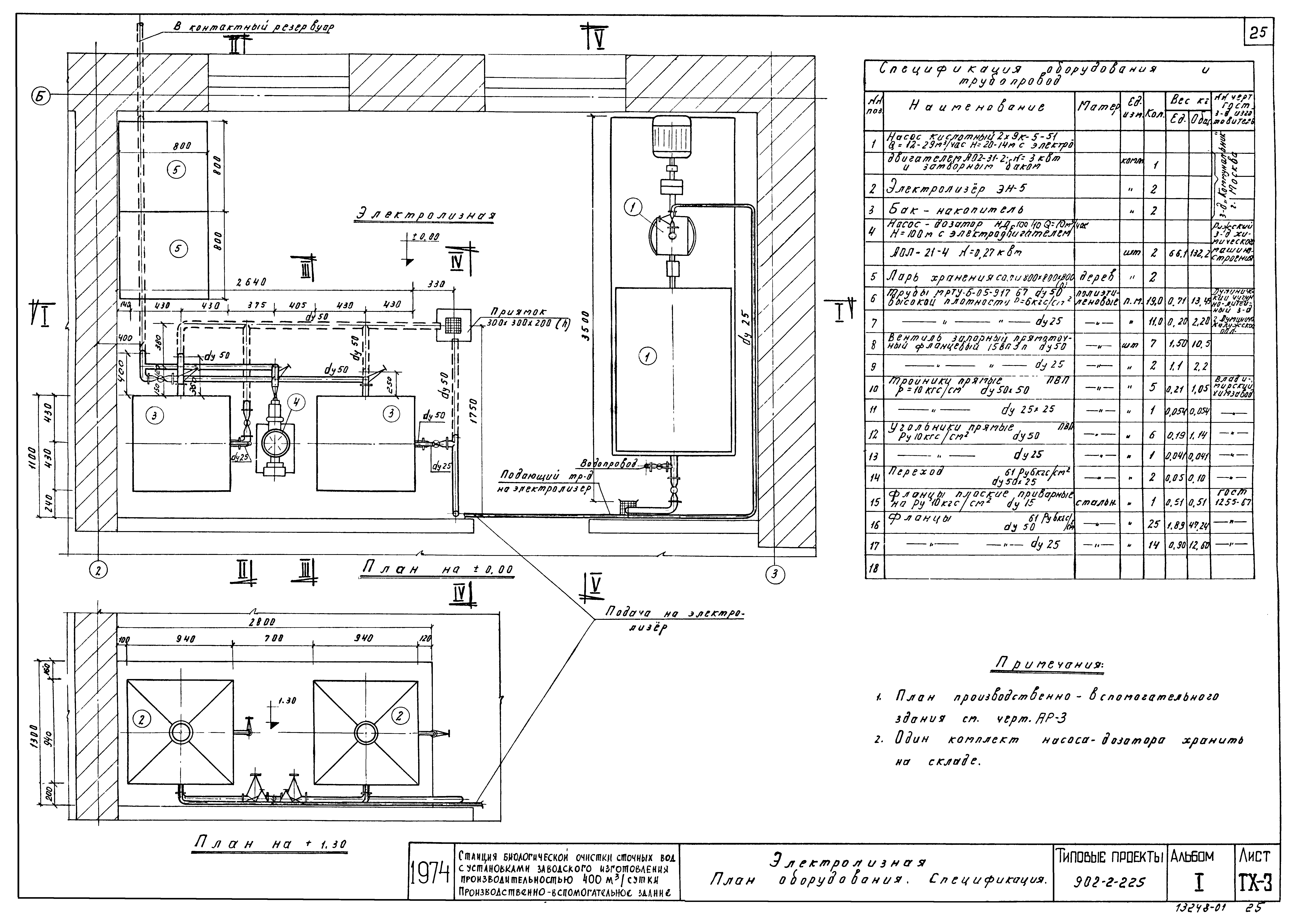
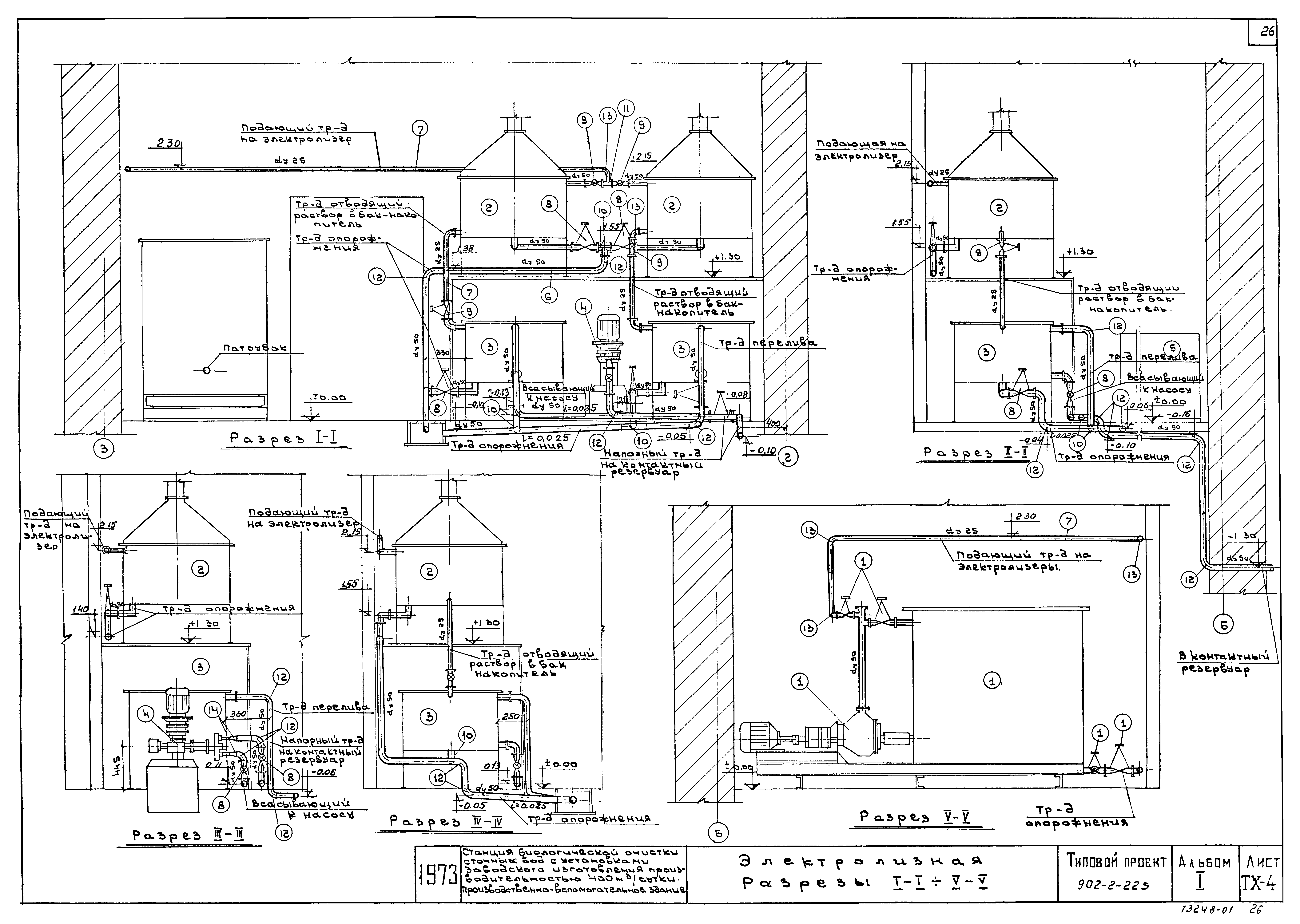
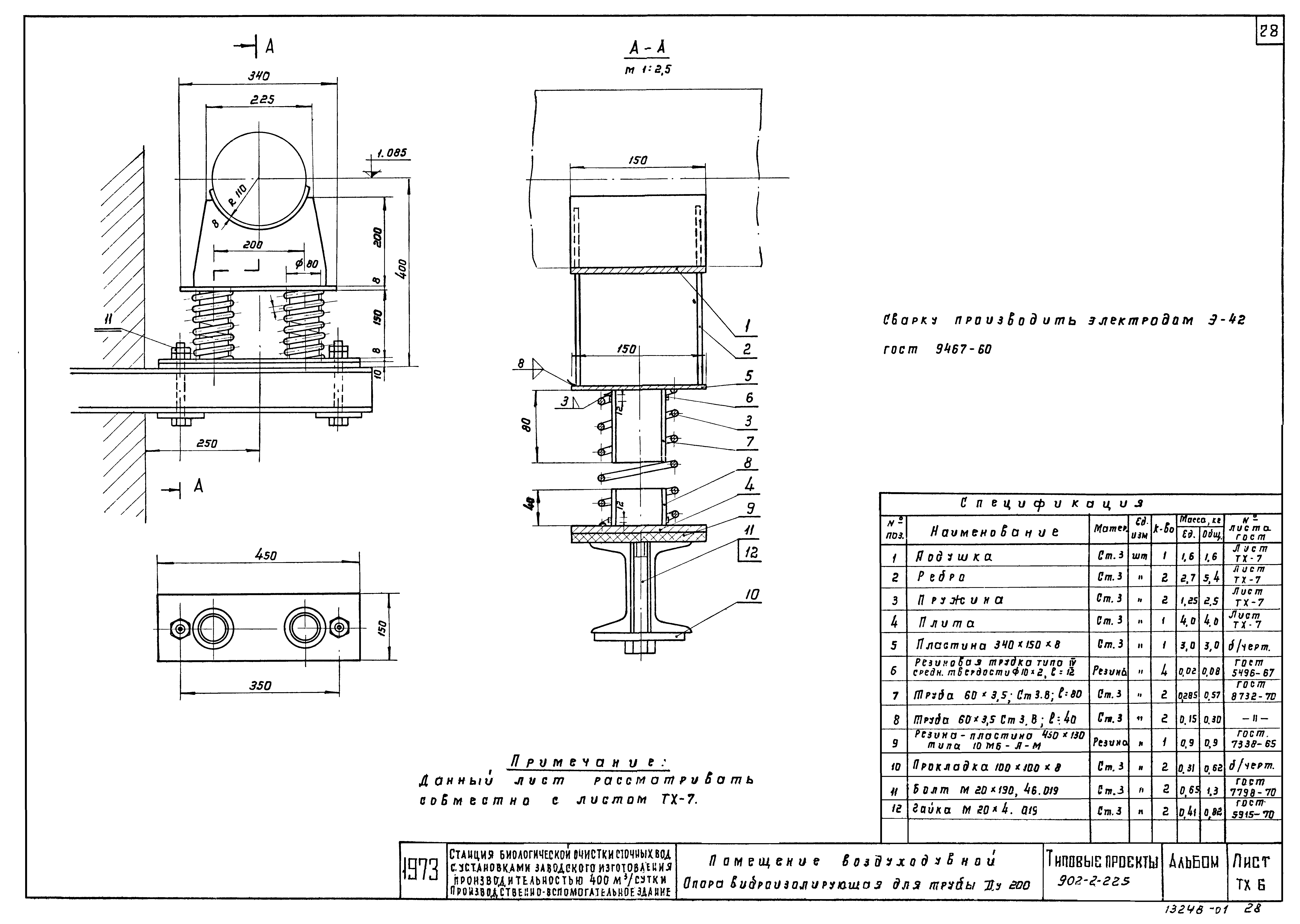
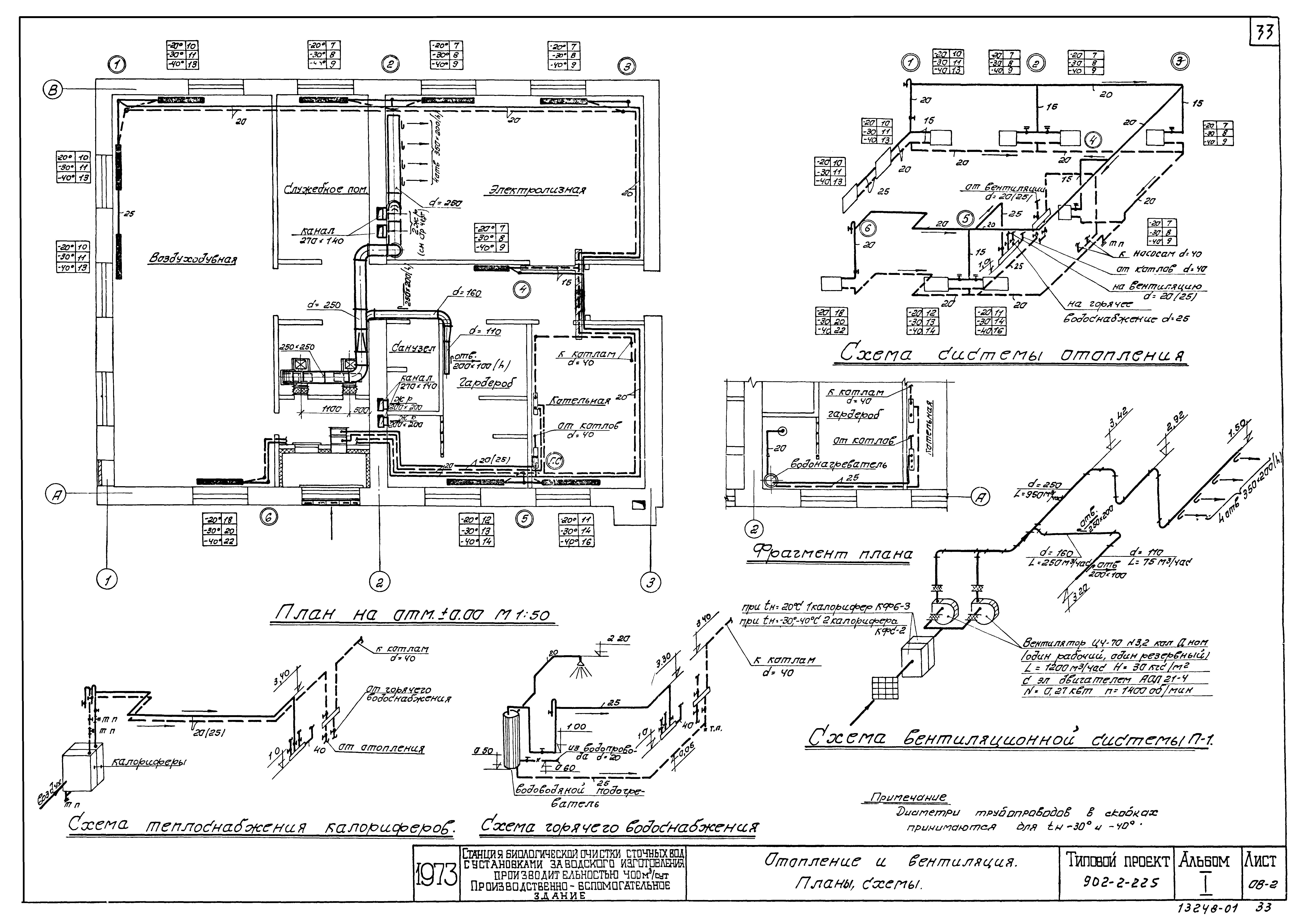
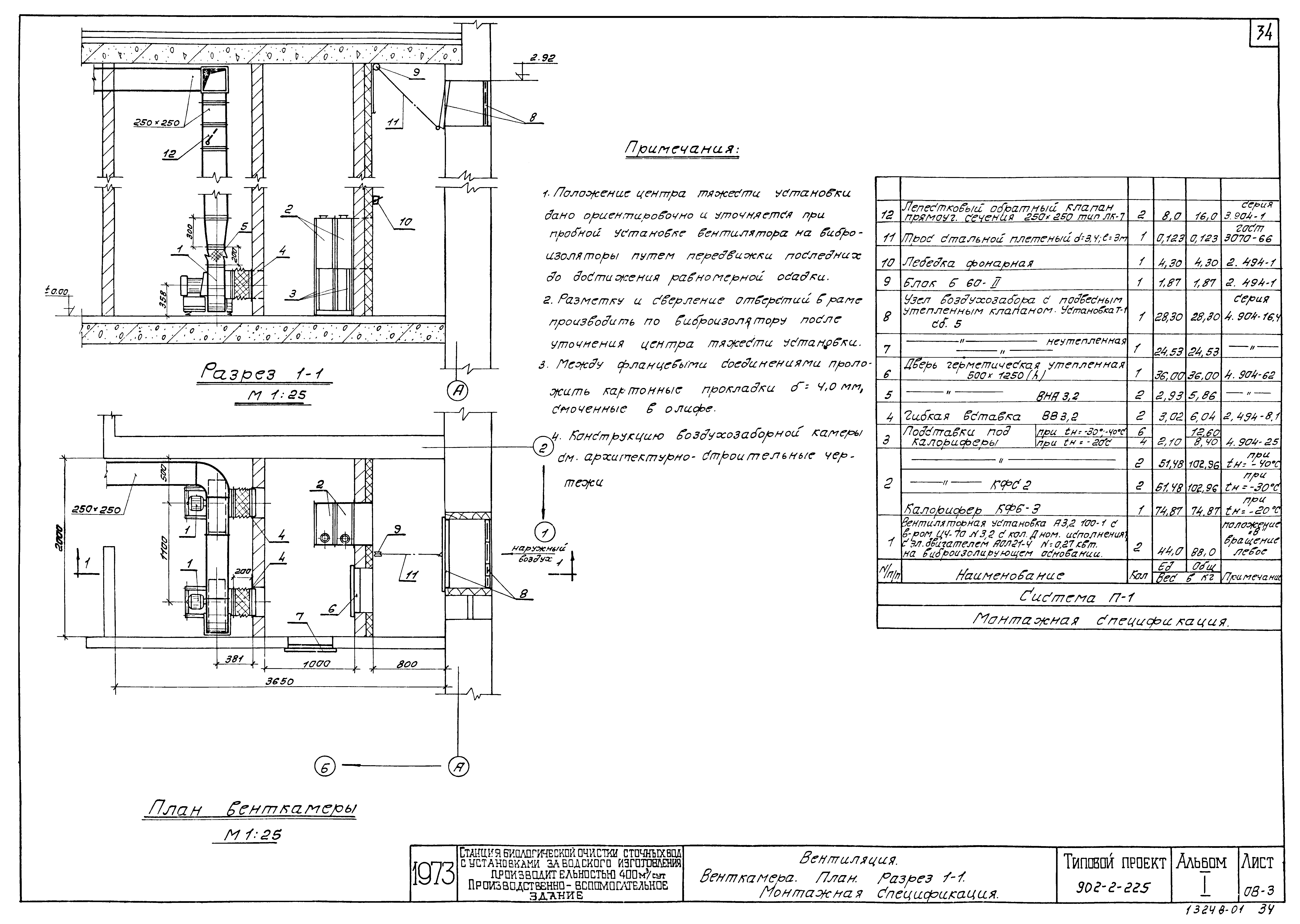
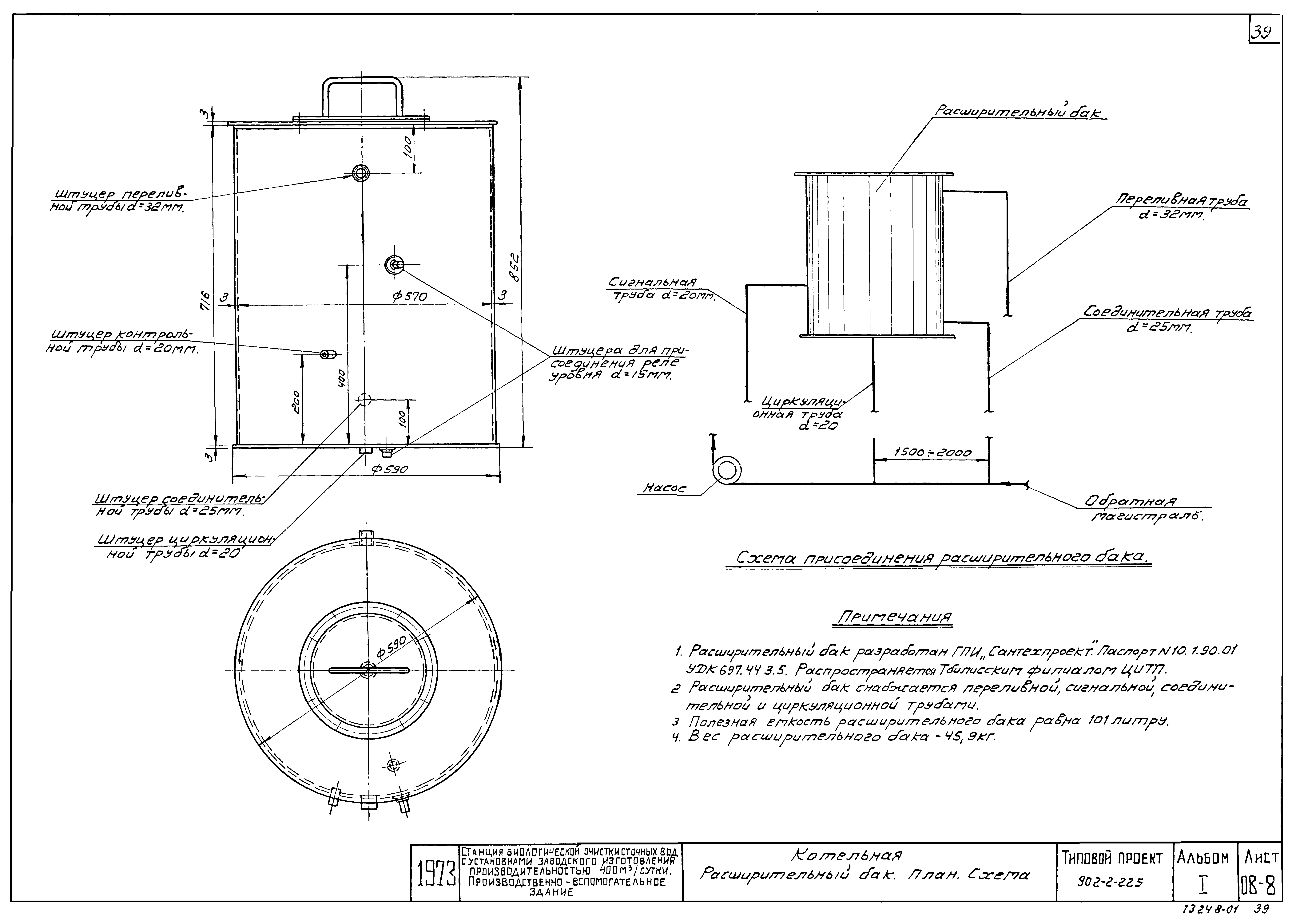
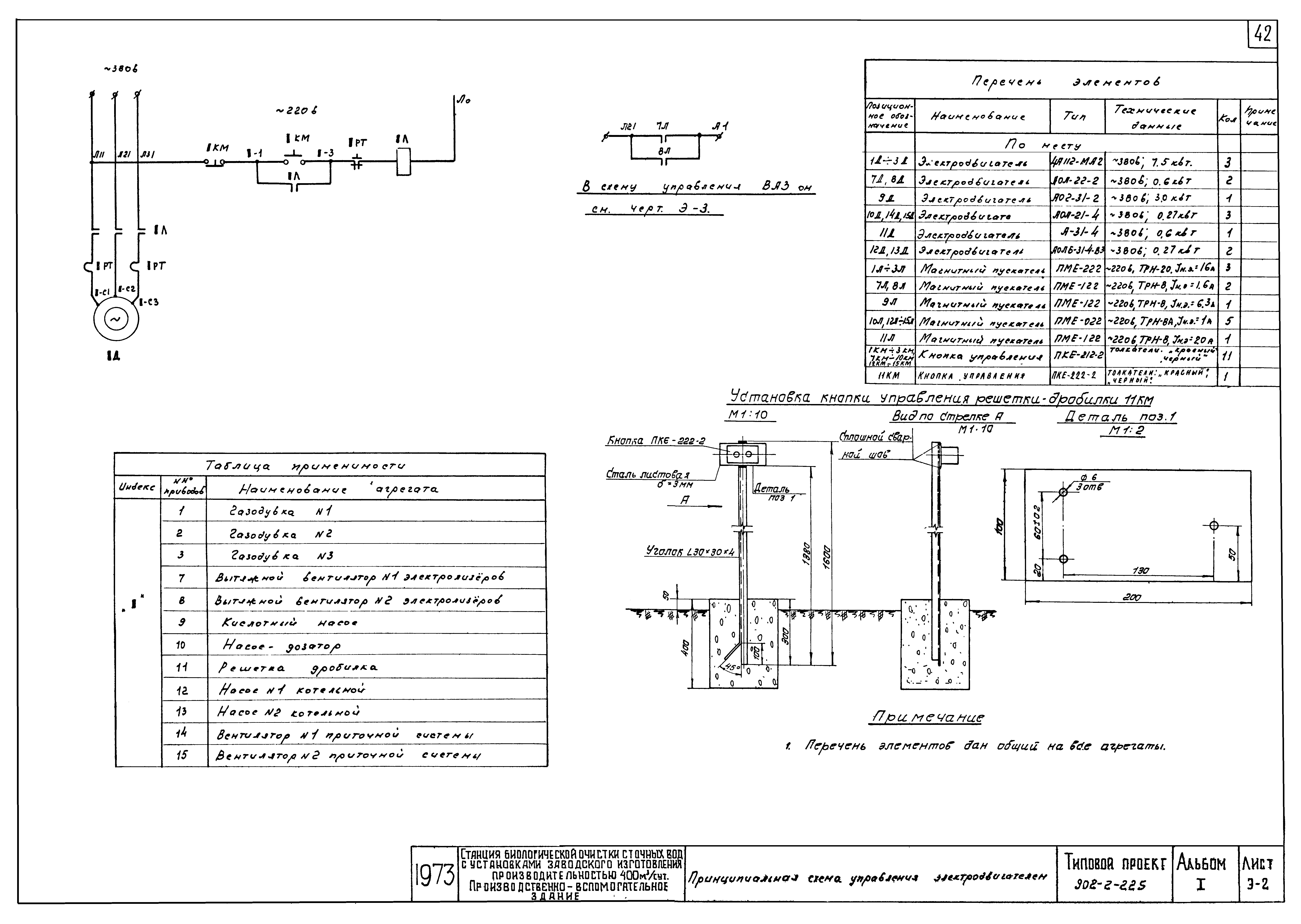
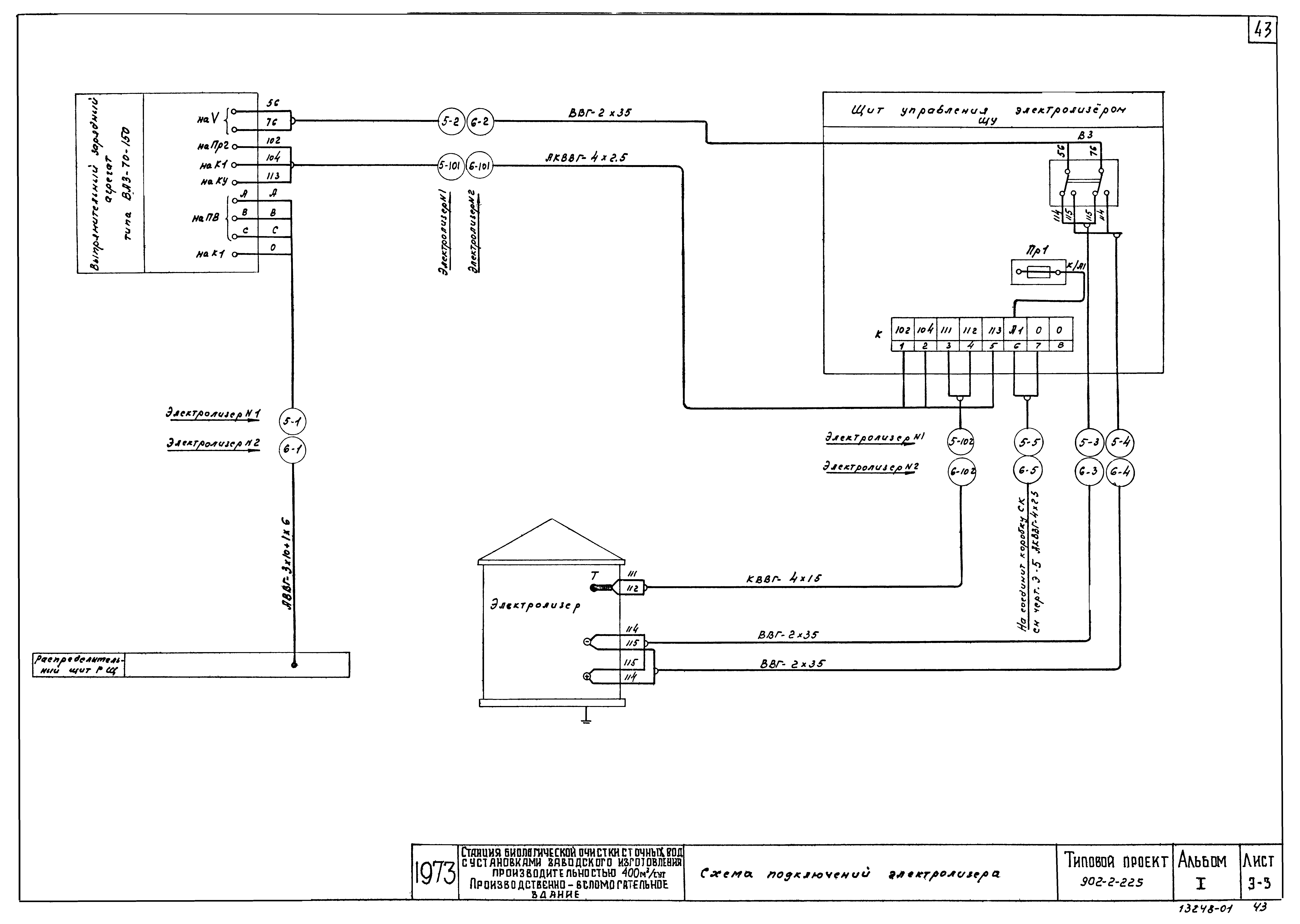
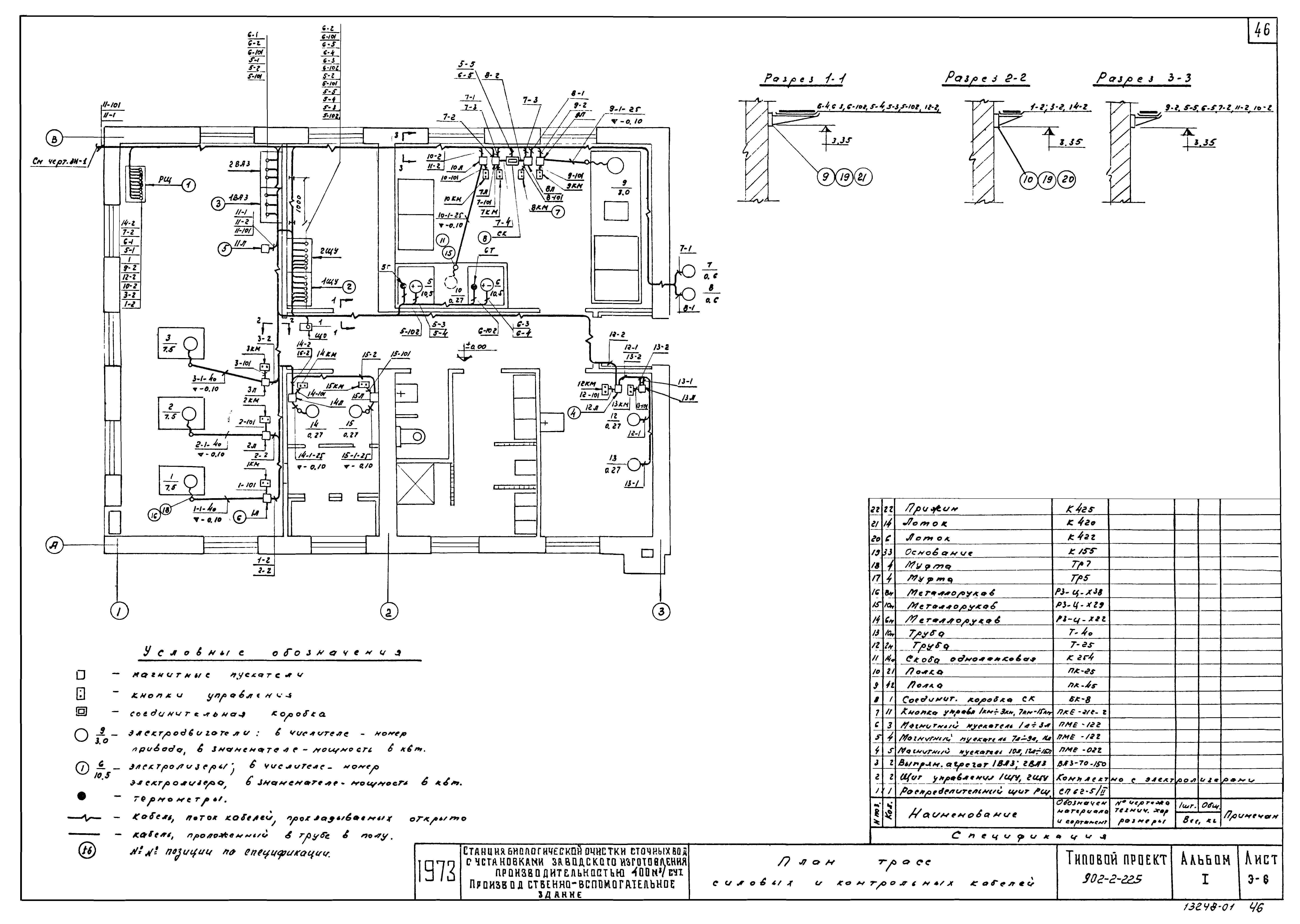
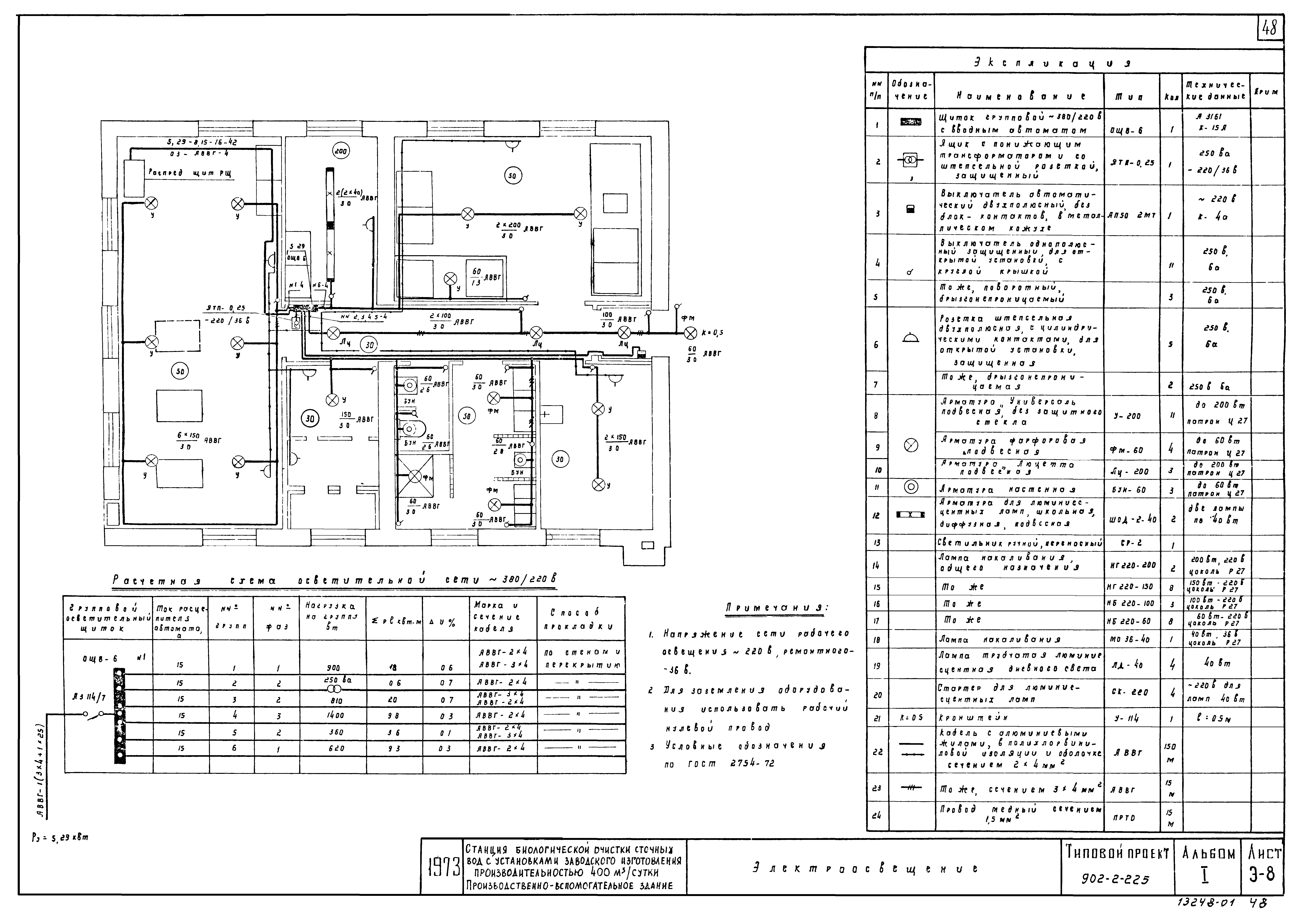
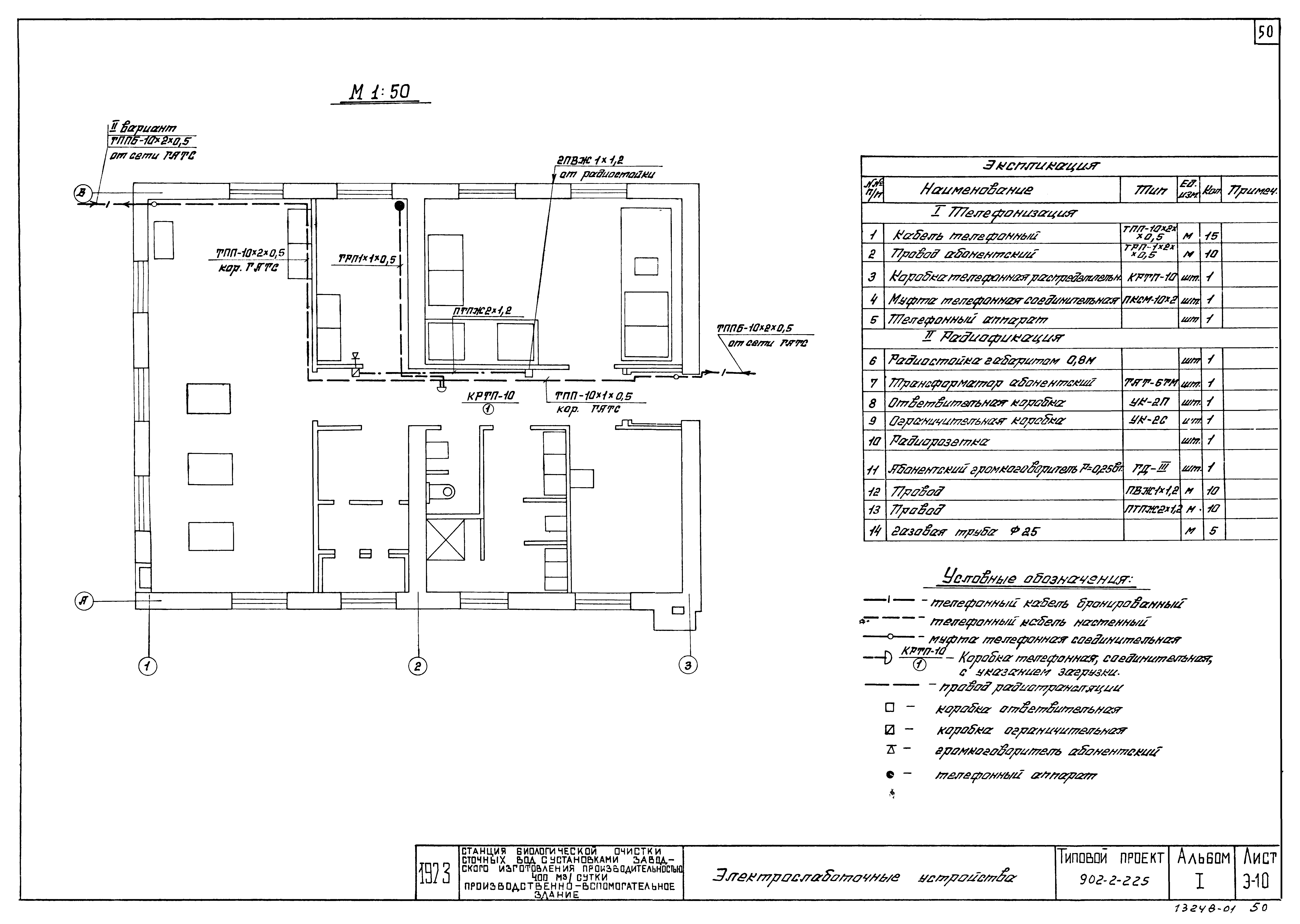
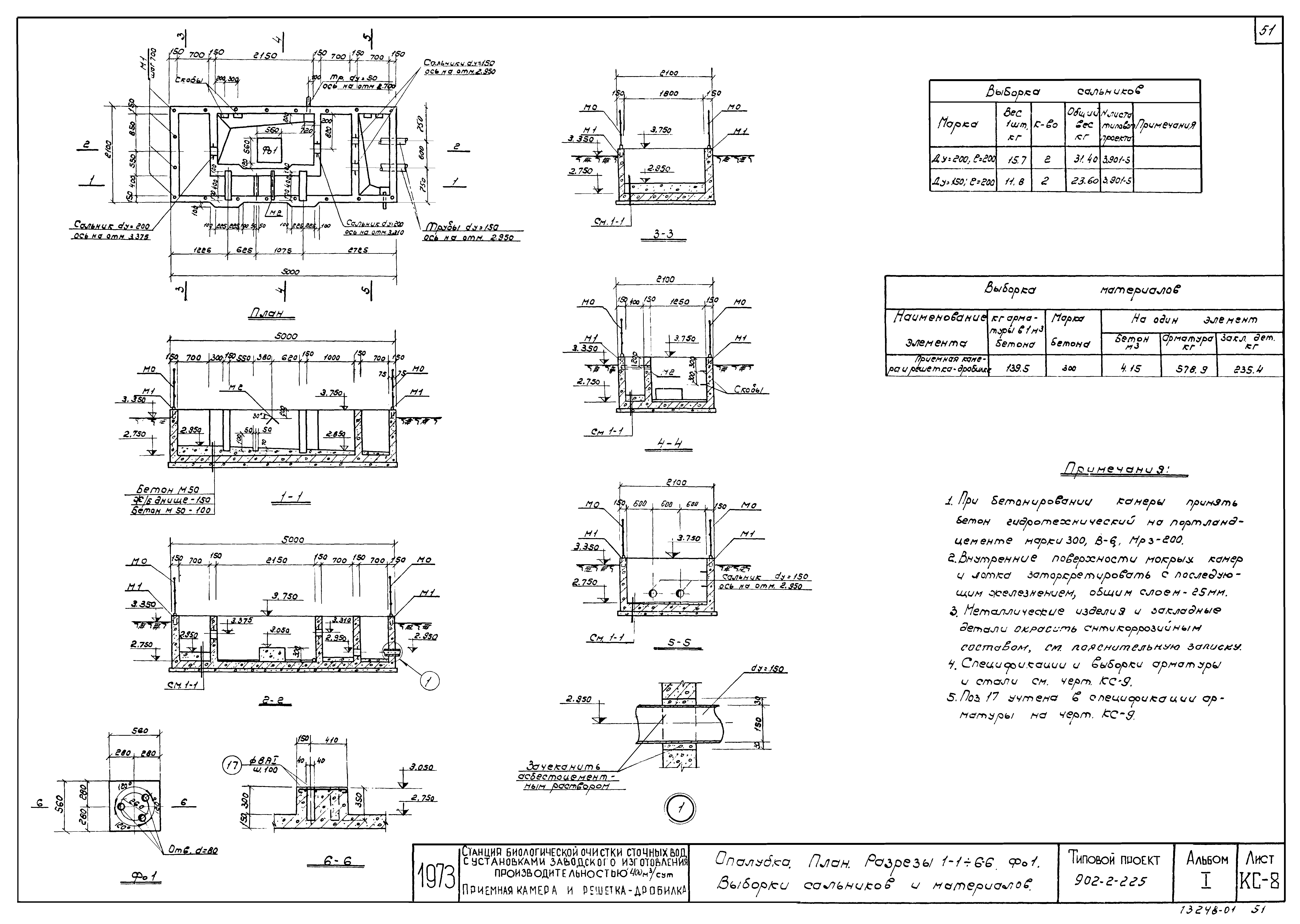
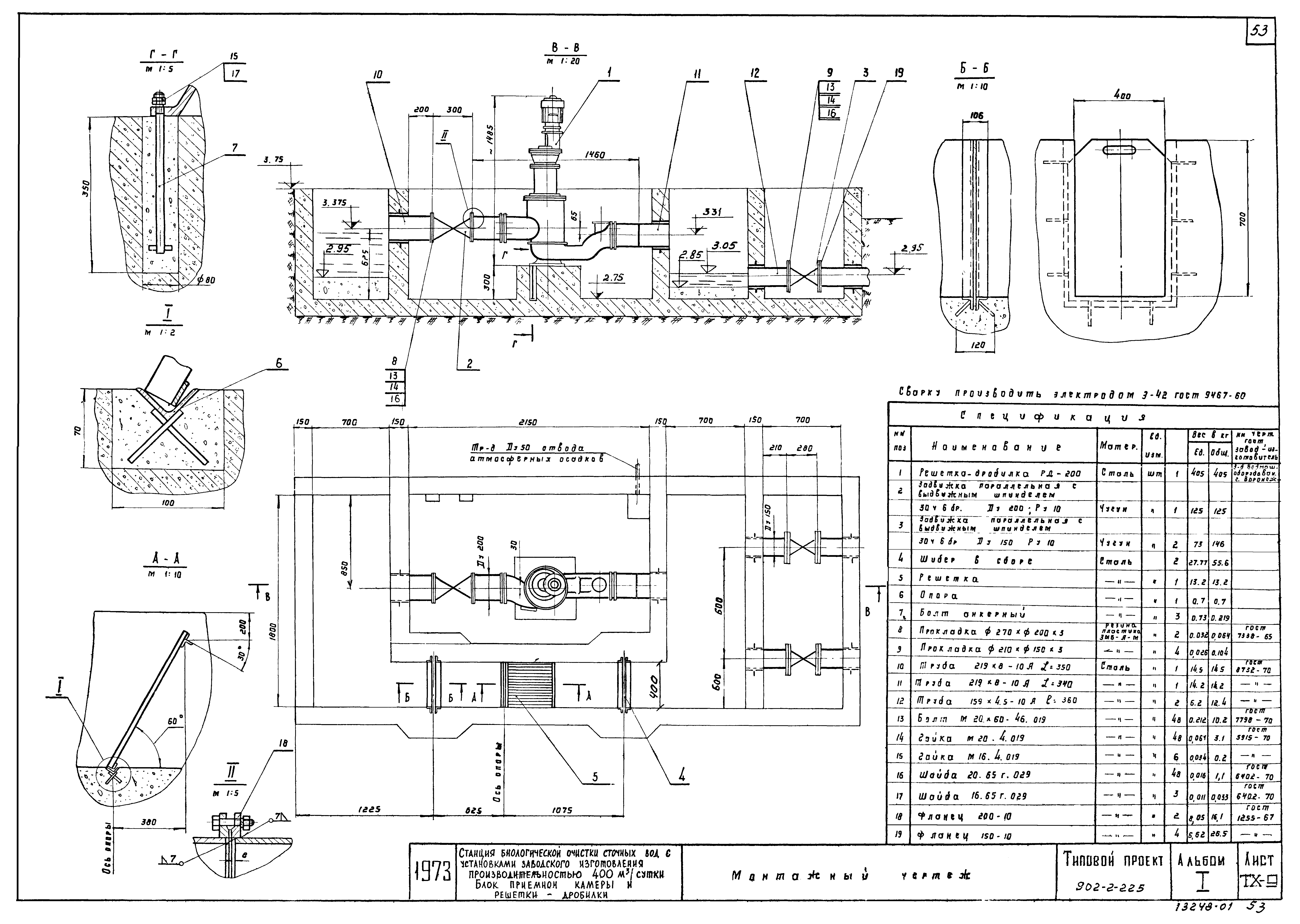
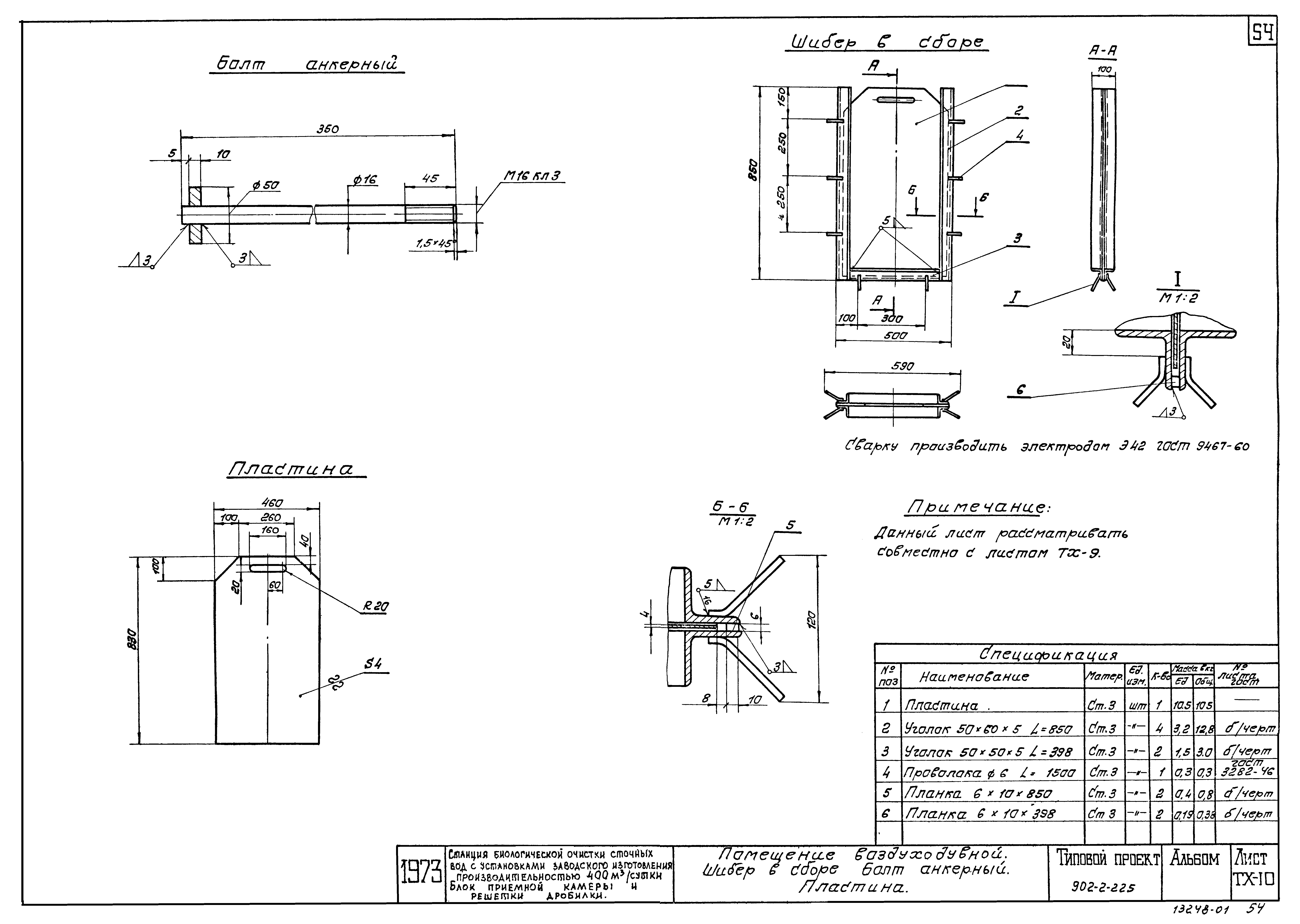
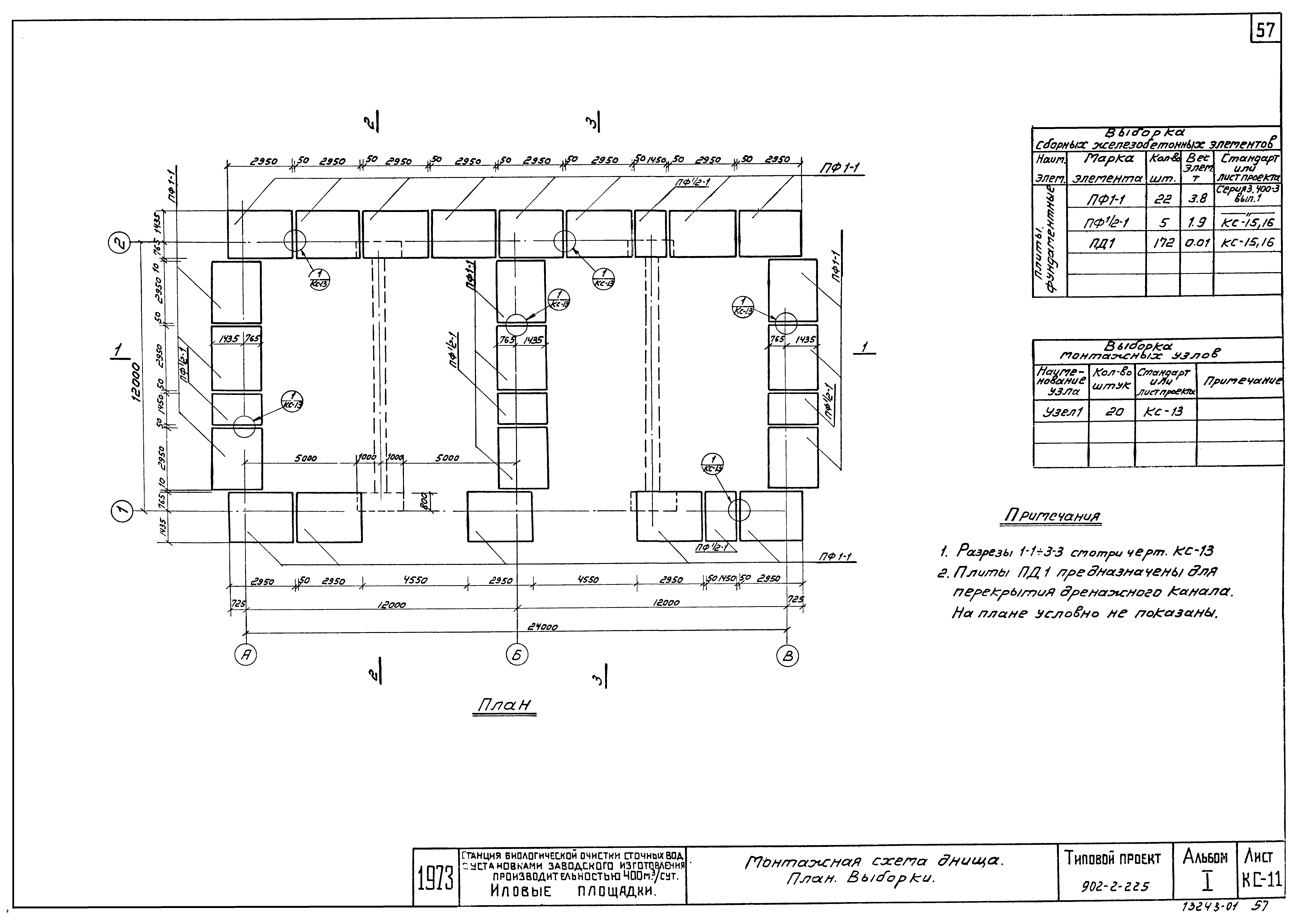
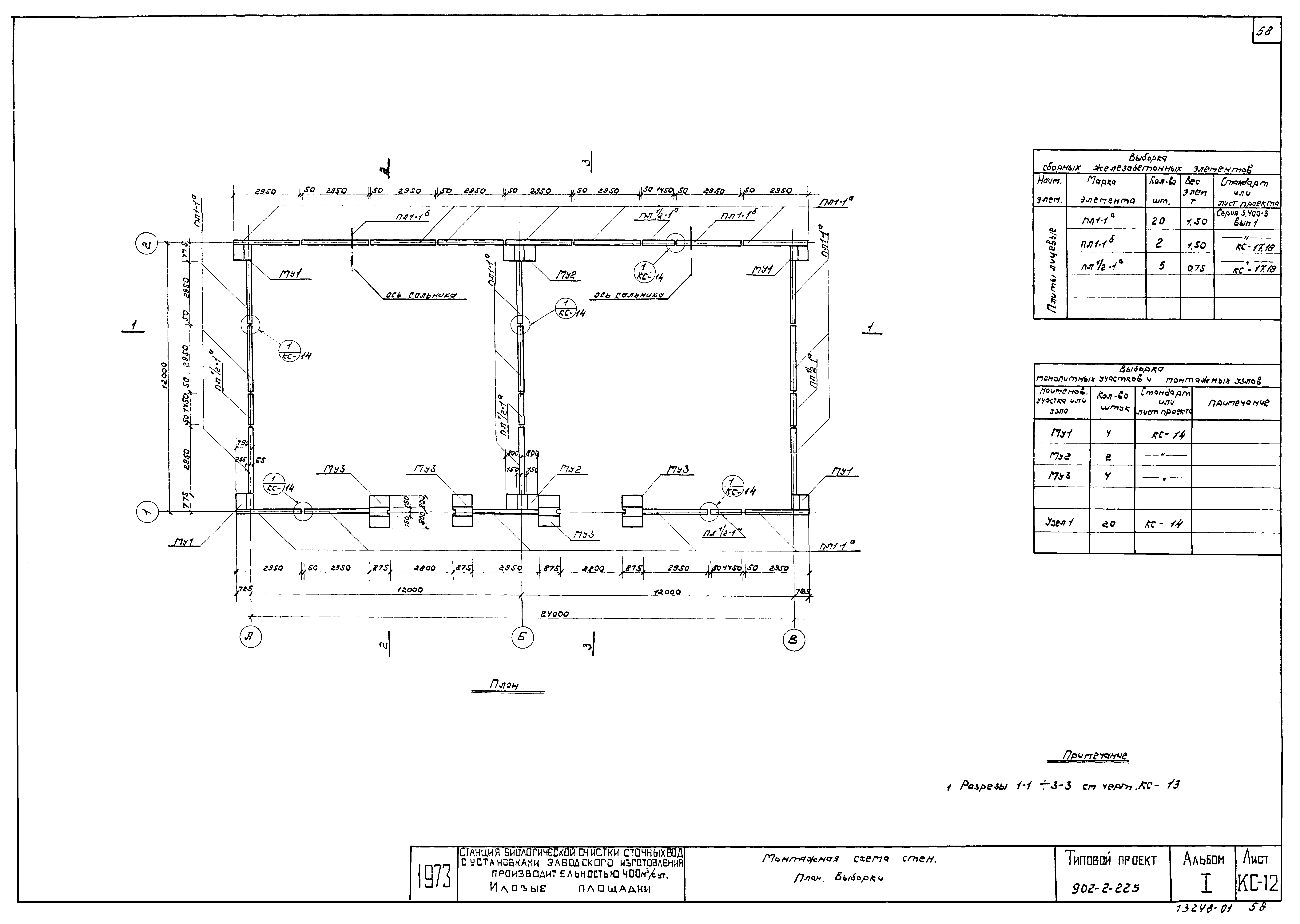
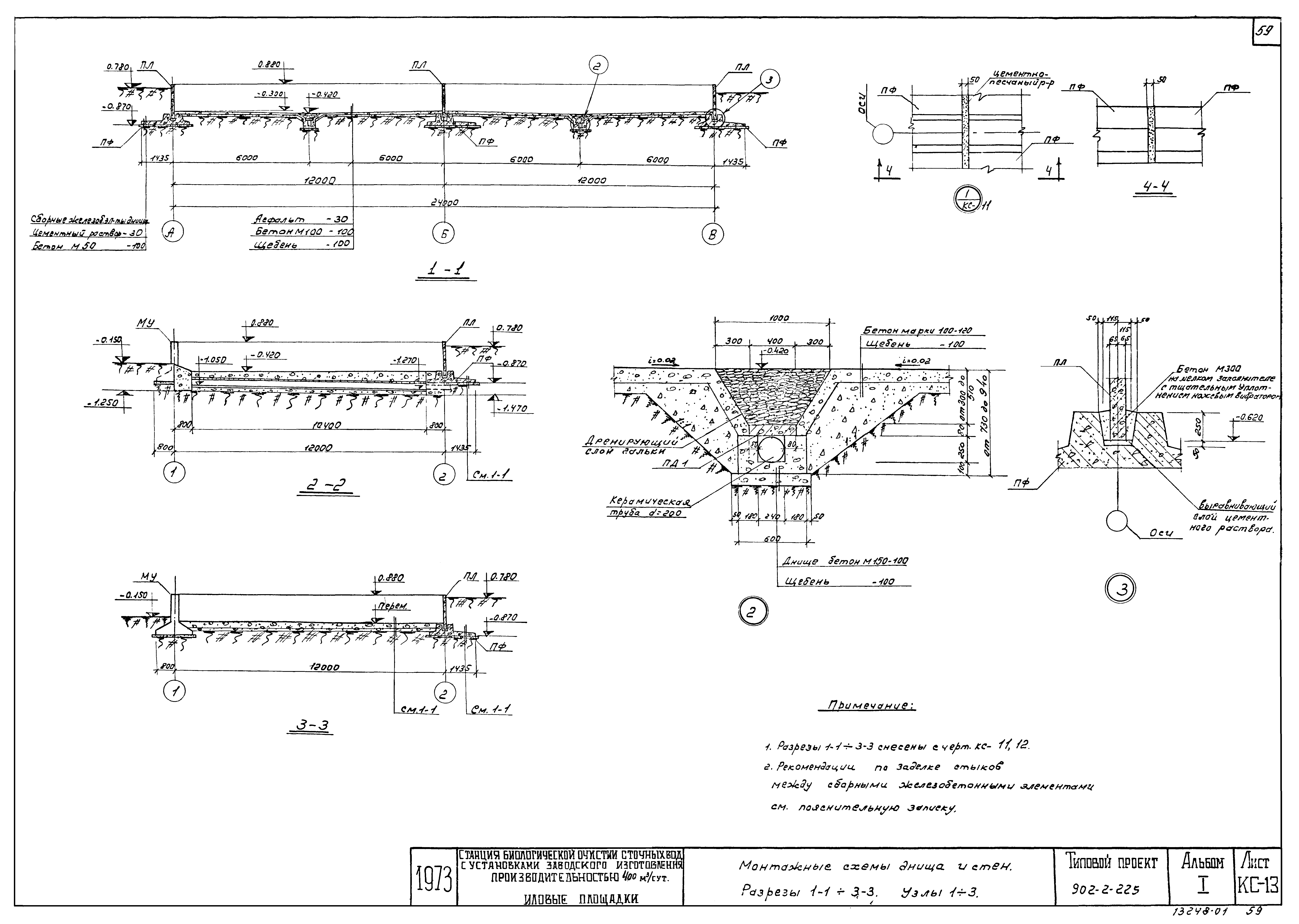
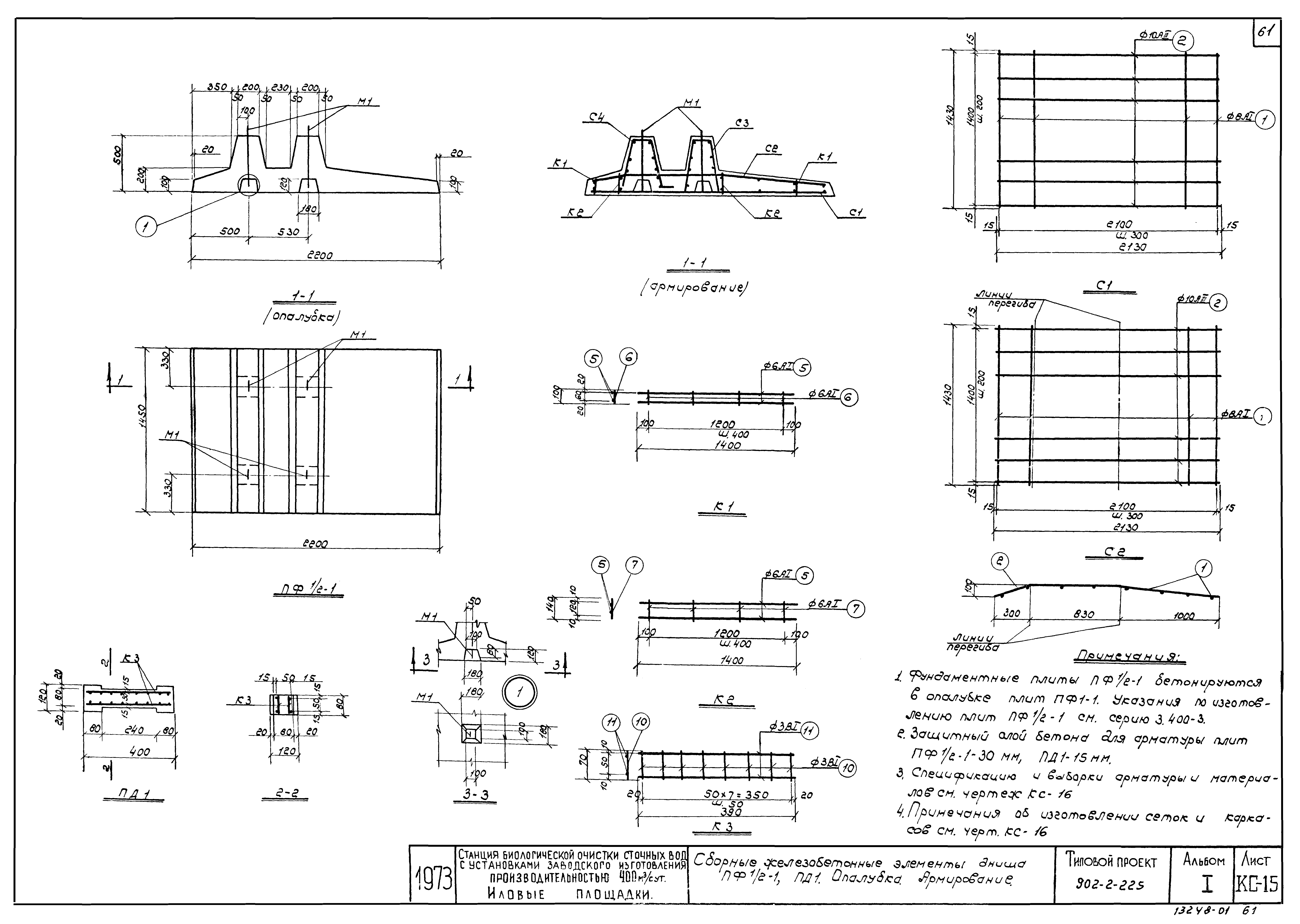
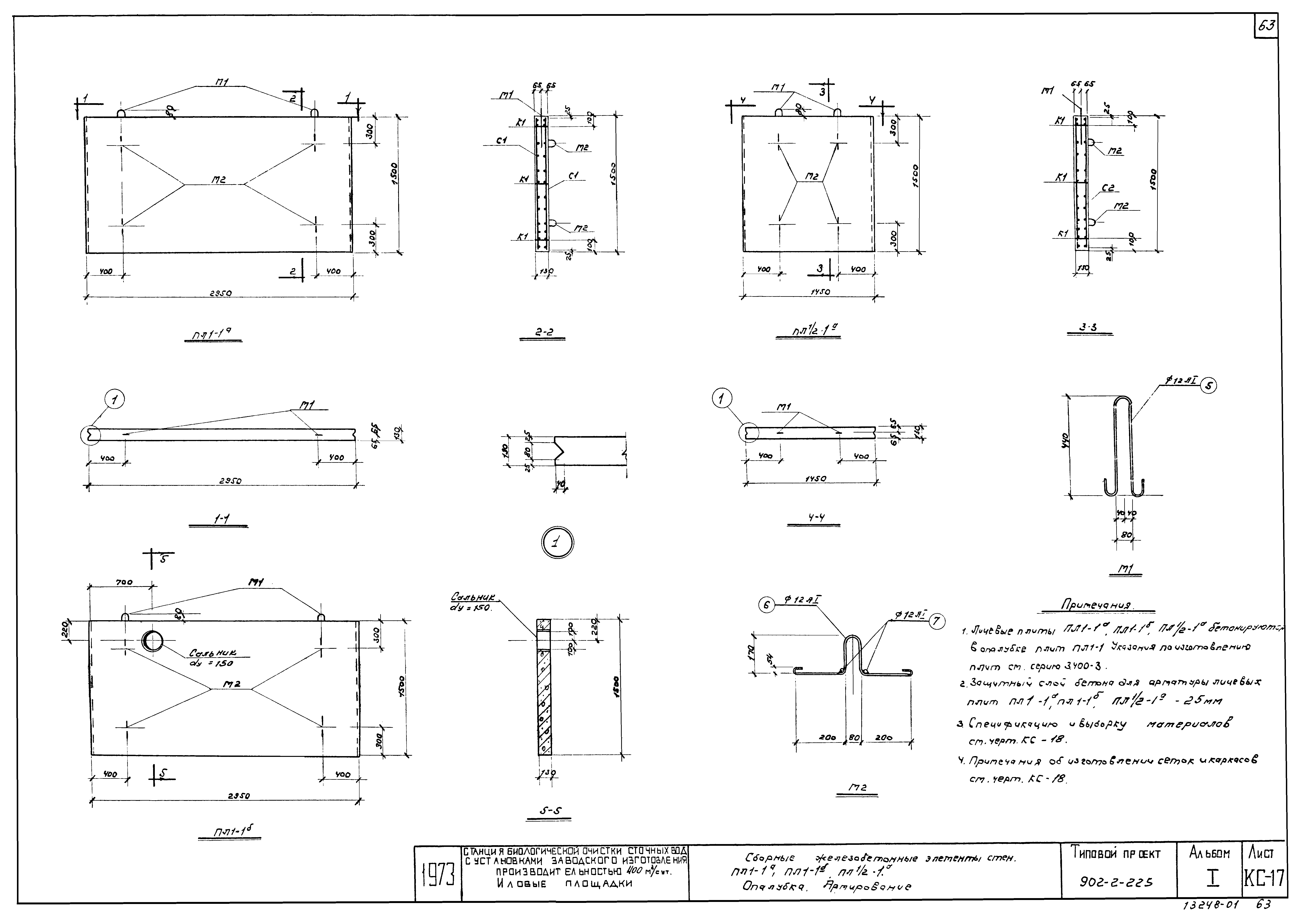
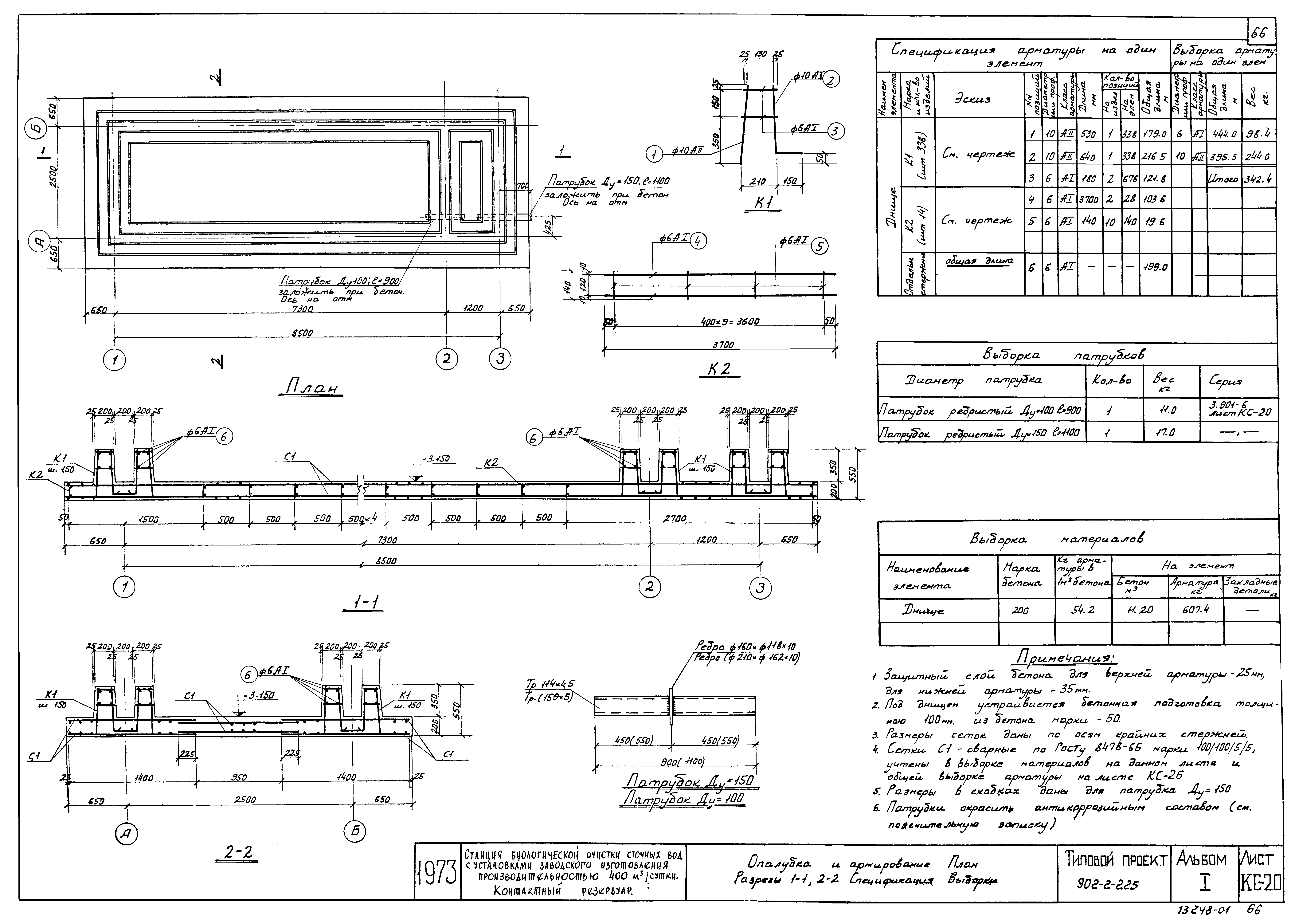
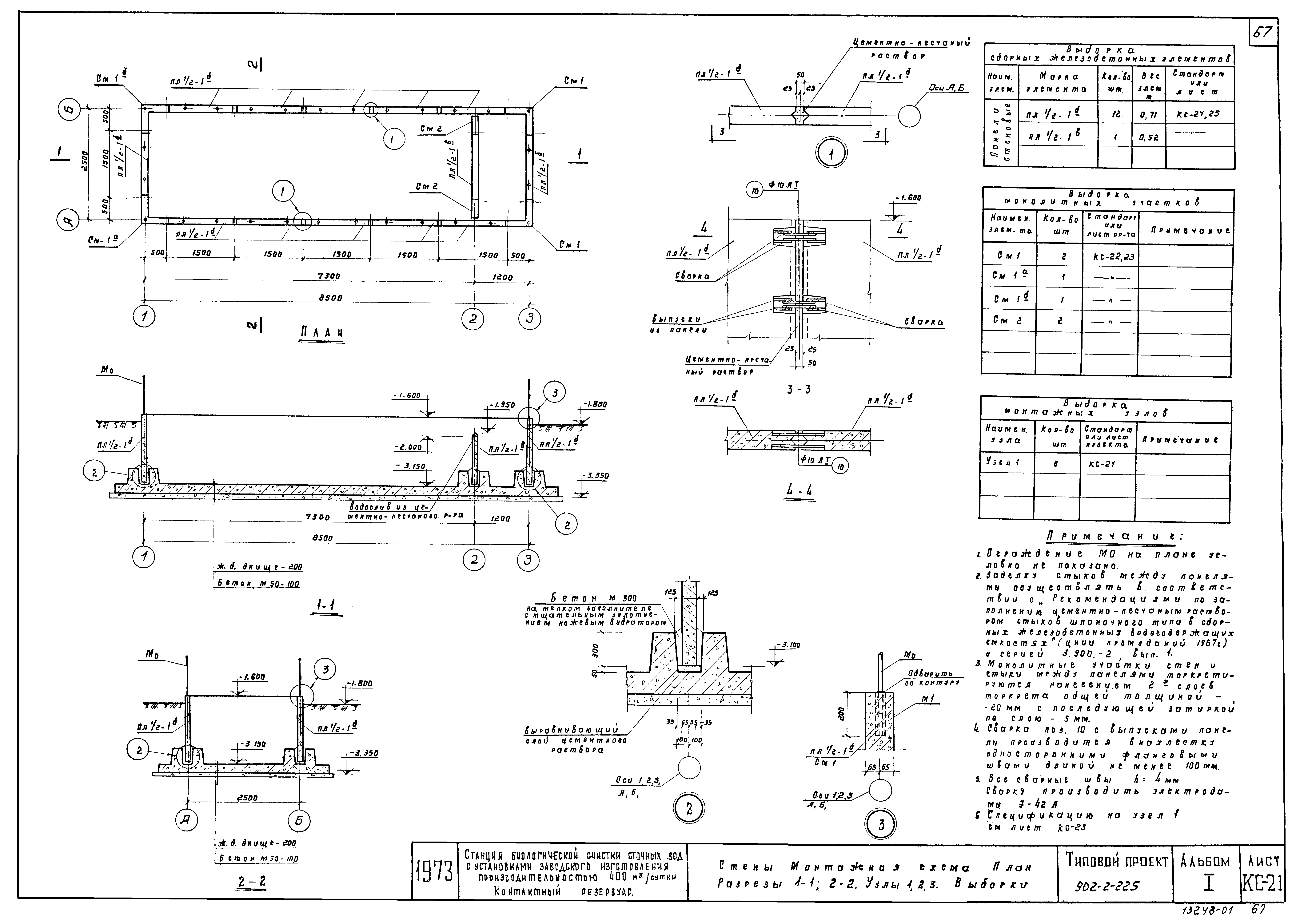
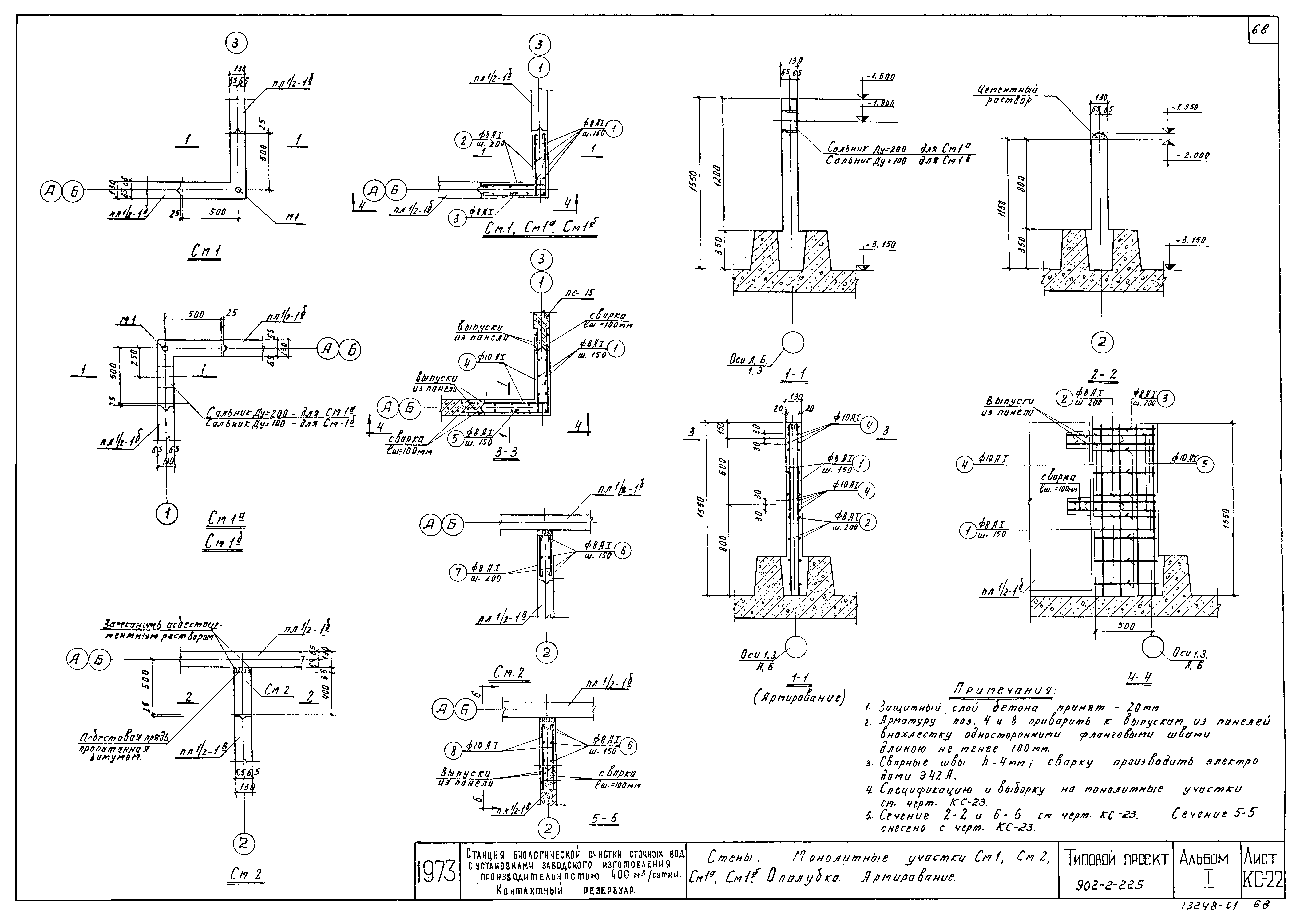
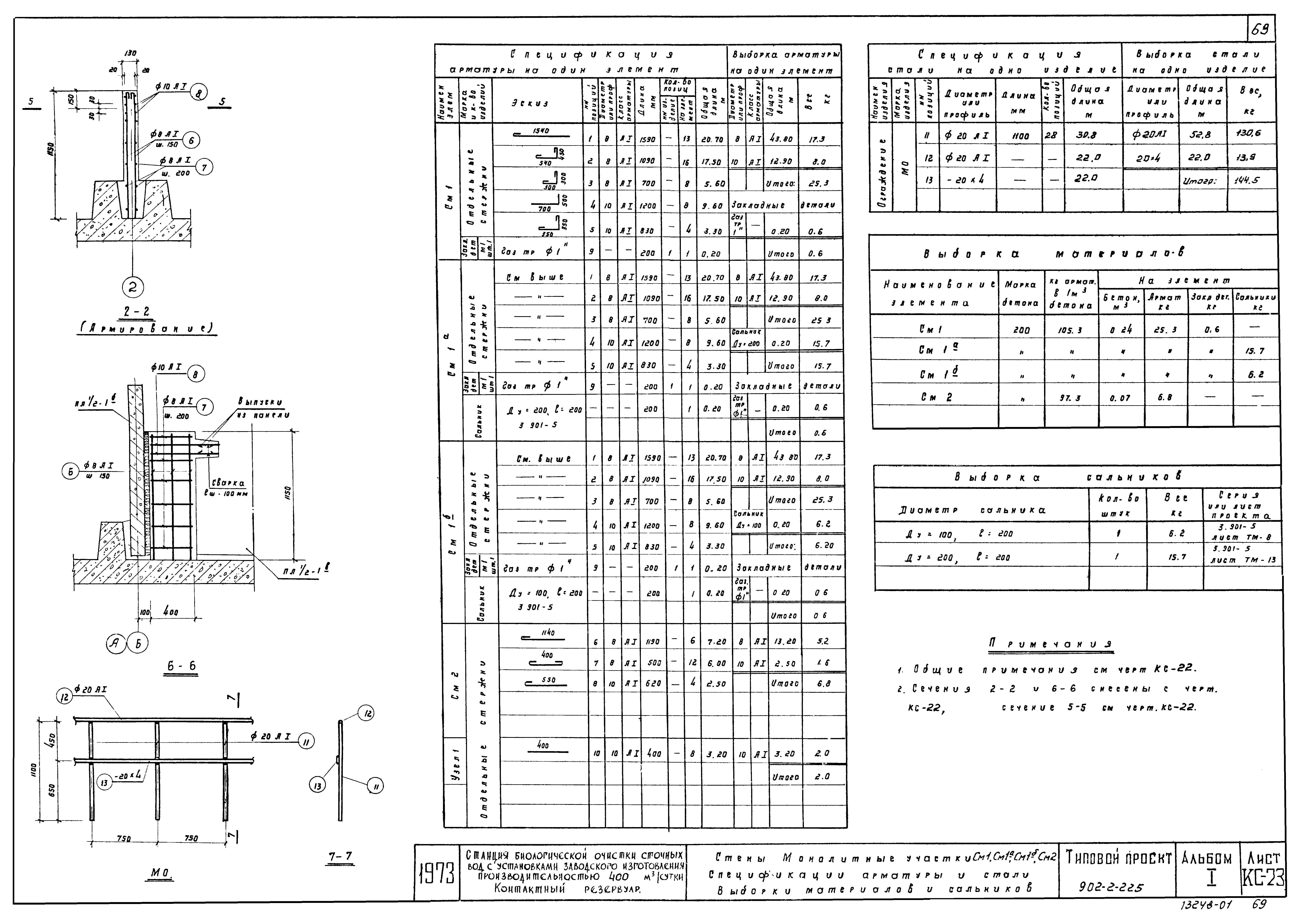
| Оглавление: | ТП 902-2-225 Обложка ТП 902-2-225-С-1 Содержание альбома ТП 902-2-225-ПЗ-1-ПЗ-5 Пояснительная записка ТП 902-2-225-ГП-1 Примерный генплан ТП 902-2-225-ТХ-1 Примерный генплан с коммуникациями ТП 902-2-225-ТХ-2 Профиль движения воды и ила ТП 902-2-225-ЭН-1 План наружных электросетей ТП 902-2-225-АР Производственно-вспомогательное здание ТП 902-2-225-АР-1 Заглавный лист ТП 902-2-225-АР-2 План кровли. План полов на отм. ±0.000. Схема сборных железобетонных перемычек. Спецификация перемычек. Детали полов. Ведомость внутренних отделочных работ ТП 902-2-225-АР-3 План на отм. ±0.000 ТП 902-2-225-АР-4 Фасады 1-3;3-1;Б-А;А-Б. Разрез 1-1 ТП 902-2-225-АР-5 Труба котельной. Вытяжная шахта Ш-1. Детали 1-10 ТП 902-2-225-АР-6 Жалюзийная решетка. Р-1 по оси 1. Детали кирпичной кладки. Детали 11,12,13,14 ТП 902-2-225-КС-1 Фундаменты. План развертки по осям А,Б,1,2,3. Сечения 1-1,2-2,3-3. Выборка ТП 902-2-225-КС-2 Подпольные каналы. План сечения 1-1÷7-7. Узел 1. Выборка ТП 902-2-225-КС-3 Подпольные каналы. Фундаменты ФО1,ФО2. Плита ПМ2. Опора ОП-1. Спецификация арматуры и стали. Выборка материалов ТП 902-2-225-КС-4 Покрытие. Монорельс. Планы. Узел 1-4. Балки БС1,БС2. Выборки. Спецификация ТП 902-2-225-КС-5 Металлические площадка и лестница. План МП1. Сечения. Узды 1-5 ТП 902-2-225-КС-6 Металлические площадки и лестница ЛМ1, МО, РМ-1. Спецификация стали ТП 902-2-225-КС-7 Выборки ТП 902-2-225-ТХ-3 Электролизная. План оборудования. Спецификация ТП 902-2-225-ТХ-4 Электролизная. Разрезы I-I÷V-V ТП 902-2-225-ТХ-5 Помещение воздуходувной. Монтажный чертеж ТП 902-2-225-ТХ-6 Помещение воздуходувной. Опора виброизолирующая для трубы dу200 ТП 902-2-225-ТХ-7 Помещение воздуходувной. Подушка. Ребро. Пружина. Плита ТП 902-2-225-ТХ-8 Помещение воздуходувной. Трубы перфорированные dу 100-300. Опора скользящая для трубы dу300 ТП 902-2-225-ВК-1 Водопровод и канализация. План. Разрезы. Схема. Спецификация ТП 902-2-225-ОВ-1 Отопление и вентиляция. Заглавный лист ТП 902-2-225-ОВ-2 Отопление и вентиляция. Планы, схемы ТП 902-2-225-ОВ-3 Вентиляция, венткамера. План. Разрез 1-1. Монтажная спецификация ТП 902-2-225-ОВ-4 Котельная. План. Разрез 1-1;2-2. Схема обвязки котельной. Экспликация основного оборудования ТП 902-2-225-ОВ-5 Отопление и вентиляция. Спецификация оборудования и материалов ТП 902-2-225-ОВ-6 Горячее водоснабжение. Индивидуальный водоводяной подогреватель. Общий вид ТП 902-2-225-ОВ-7 Горячее водоснабжение. Индивидуальный водоводяной подогреватель. Детали ТП 902-2-225-ОВ-8 Котельная. Расширительный бак. План. Схема ТП 902-2-225-ОВ-9 Вытяжная вентиляция электролизеров. План. Разрез 1-1. Схема системы В-1. Спецификация ТП 902-2-225-Э-1 Расчетная схема силовой сети -380/220 В ТП 902-2-225-Э-2 Принципиальная схема управления электродвигателей ТП 902-2-225-Э-3 Схема подключения электролизера ТП 902-2-225-Э-4 Схема подключений ТП 902-2-225-Э-5 Схема подключений ТП 902-2-225-Э-6 План трасс силовых и контрольных кабелей ТП 902-2-225-Э-7 Кабельный журнал ТП 902-2-225-Э-8 Электроосвещение ТП 902-2-225-Э-9 Контур заземления ТП 902-2-225-Э-10 Электрослаботочные устройства ТП 902-2-225-КС Блок приемной камеры и решетки-дробилки ТП 902-2-225-КС-8 Опалубка. План. Разрезы 1-1÷6-6, ФО1. Выборки сальников и материалов ТП 902-2-225-КС-9 Армирование. План. Разрезы 1-1÷3-3. Спецификация арматуры и стали. Выборка ТП 902-2-225-ТХ-9 Монтажный чертеж ТП 902-2-225-ТХ-10 Шибер в сборе. Болт анкерный, пластина ТП 902-2-225-ТХ-11 Решетка. Опора ТП 902-2-225-КС Основание под компактные установки ТП 902-2-225-КС-10 Раскладка плит основания. План. Разрез. Выборка ТП 902-2-225-КС Иловые площадки ТП 902-2-225-КС-11 Монтажная схема днища. План. Выборки ТП 902-2-225-КС-12 Монтажная схема стен. План. Выборки ТП 902-2-225-КС-13 Монтажные схемы днища и стен. Разрезы 1-1÷3-3. Узлы 1-3 ТП 902-2-225-КС-14 Монолитные участки стен МУ1-МУ3. Монтажные узлы ТП 902-2-225-КС-15 Сборные железобетонные элементы днища ПФ1/2-1;ПД-1. Опалубка. Армирование ТП 902-2-225-КС-16 Сборные железобетонные элементы днища ПФ1/2-1;ПД-1. Спецификация. Выборки ТП 902-2-225-КС-17 Сборные железобетонные элементы стен ПЛ1-1а;ПЛ1-1б,ПЛ1/2-1а. Опалубка. Армирование ТП 902-2-225-КС-18 Сборные железобетонные элементы стен ПЛ1-1а;ПЛ1-1б,ПЛ1/2-1а. Спецификация выборки ТП 902-2-225-КС-19 Выборки ТП 902-2-225-КС Контактный резервуар ТП 902-2-225-КС-20 Днище. План. Опалубка. Армирование. Разрезы 1-1;2-2. Спецификация. Выборка ТП 902-2-225-КС-21 Стены. Монтажная схема. План. Разрезы 1-1,2-2. Узлы 1-4. Выборка ТП 902-2-225-КС-22 Стены. Монолитные участки СМ1,СМ1а,СМ1б,СМ2. Опалубка. Армирование ТП 902-2-225-КС-23 Стены. Монолитные участки СМ1,СМ1а,СМ1б,СМ2. Спецификации арматуры и стали. Выборки материалов и сальников ТП 902-2-225-КС-24 Сборные железобетонные элементы стен ПЛ1/2-1б,ПЛ1/2-1в. Опалубка. Армирование ТП 902-2-225-КС-25 Сборные железобетонные элементы стен ПЛ1/2-1б,ПЛ1/2-1в. Спецификация арматуры. Выборка материалов ТП 902-2-225-КС-26 Выборки ТП 902-2-225-ТС-12 План. Разрезы. Спецификация |
| Разработан: | Гипрокоммунводоканал Минжилкомхоза РСФСР |
| Утверждён: | 19.12.1974 МЖКХ РСФСР (31-ТД) |








































































