Скачать Серия 1.436-10 Выпуск 1. Окна из алюминиевых профилей одинарныеДата актуализации: 01.01.2021
|
| Обозначение: | Серия 1.436-10 |
| Обозначение англ: | Series 1.436-10 |
| Статус: | не действует |
| Название рус.: | Выпуск 1. Окна из алюминиевых профилей одинарные |
| Дата добавления в базу: | 01.09.2013 |
| Дата актуализации: | 01.01.2021 |
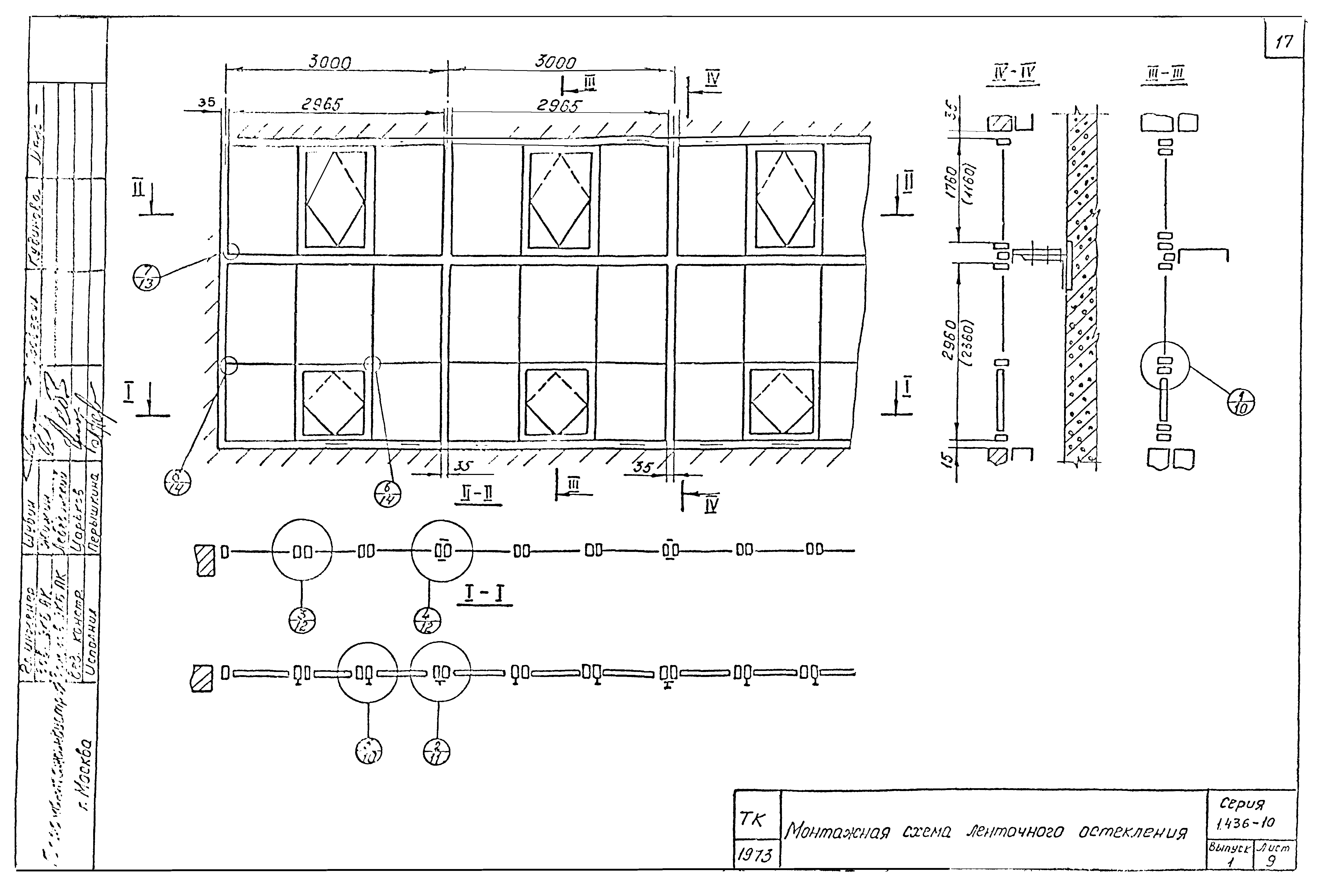
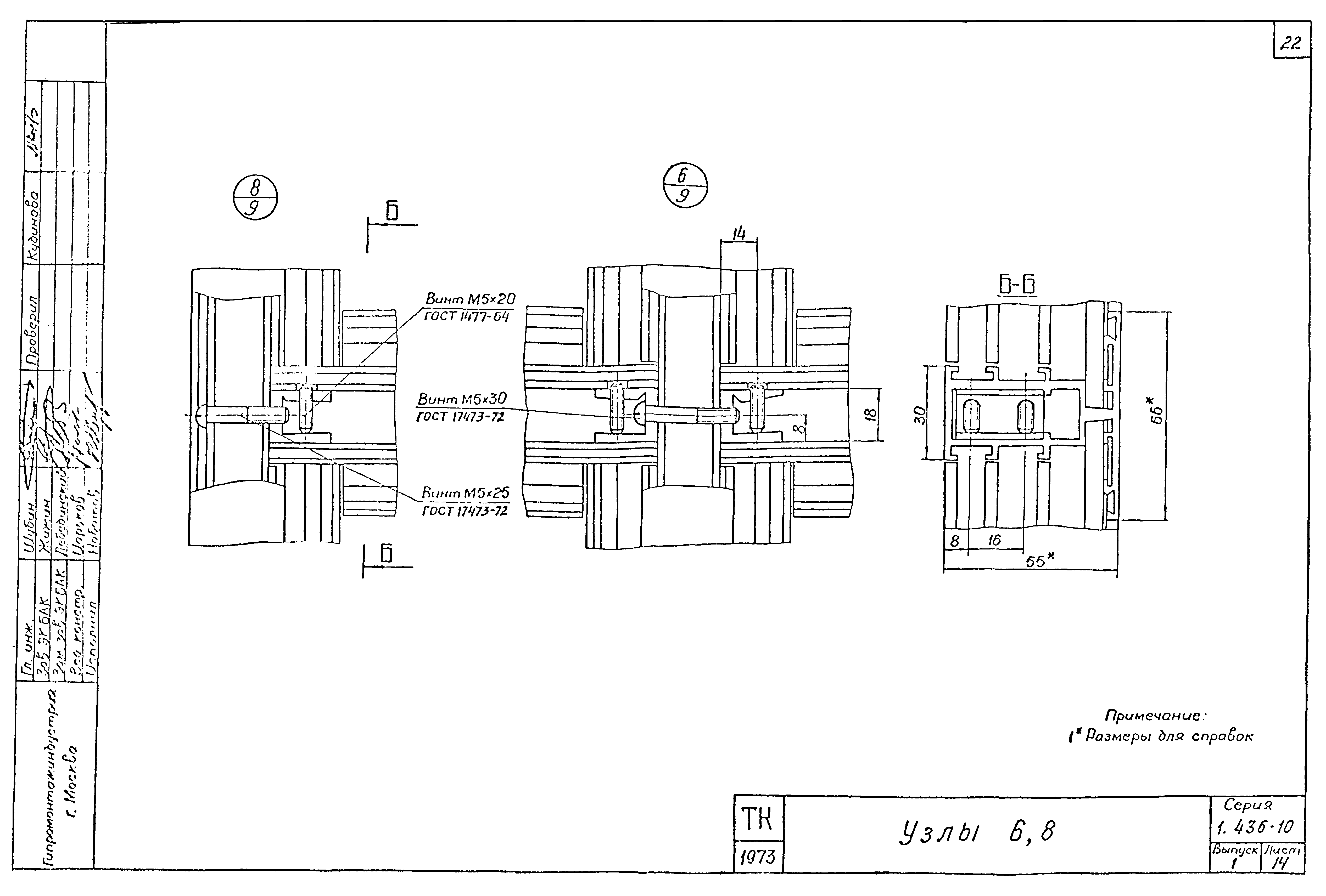
| Оглавление: | 1.436-10 Титульный лист 1.436-10 Содержание 1.436-10 Пояснительная записка 1.436-10 Условные обозначения 1.436-10 Фрагмент фасада 1.436-10 Номенклатура окон 1.436-10 Заполнение проемов по горизонтали 1.436-10 Заполнение проемов по вертикали 1.436-10 Комплект алюминиевых профилей 1.436-10 Комплект резины 1.436-10 Комплектация алюминиевых профилей 1.436-10 Монтажная схема ленточного остекления 1.436-10 Узлы 1,5 1.436-10 Узел 2 1.436-10 Узлы 3,4 1.436-10 Узел 7 1.436-10 Узлы 6,8 1.436-10 Установка в переплет жалюзийной решетки |
| Разработан: | ЦНИИпромзданий Минмонтажспецстрой СССР Госстрой СССР Гипромонтажиндустрия Минмонтажспецстроя СССР Главспецлегконструкция |
| Утверждён: | 15.01.1974 Госстрой СССР (Государственный комитет Совета Министров СССР по делам строительства) (USSR Gosstroy ) |























