Скачать Типовой проект 904-1-66.86 Альбом 4. Автоматизация и КИП. Задание заводу-изготовителюДата актуализации: 01.01.2021
|
| Обозначение: | Типовой проект 904-1-66.86 |
| Обозначение англ: | 904-1-66.86 |
| Статус: | действует |
| Название рус.: | Альбом 4. Автоматизация и КИП. Задание заводу-изготовителю |
| Дата добавления в базу: | 01.09.2013 |
| Дата актуализации: | 01.01.2021 |
| Дата введения: | 30.08.1986 |
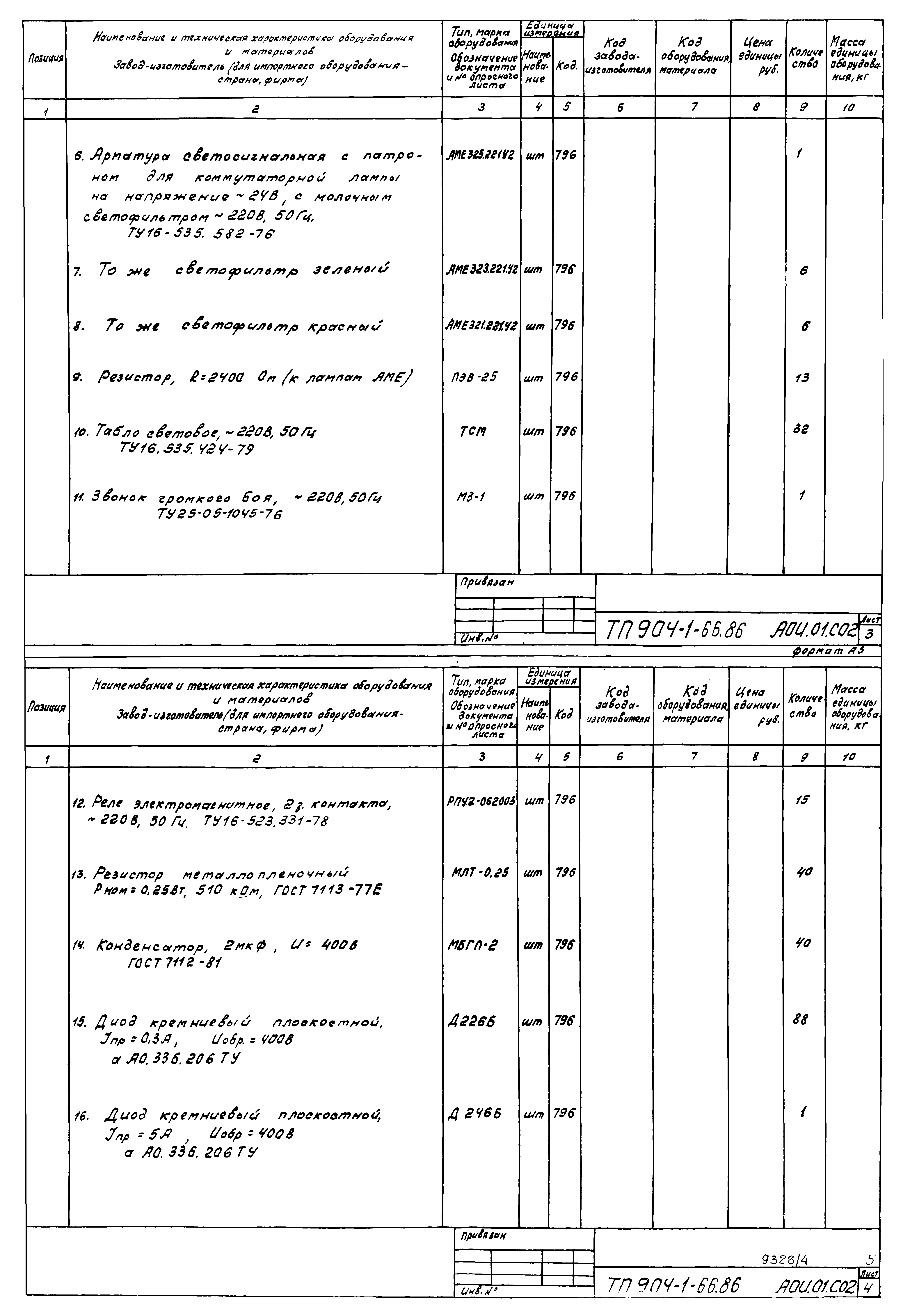
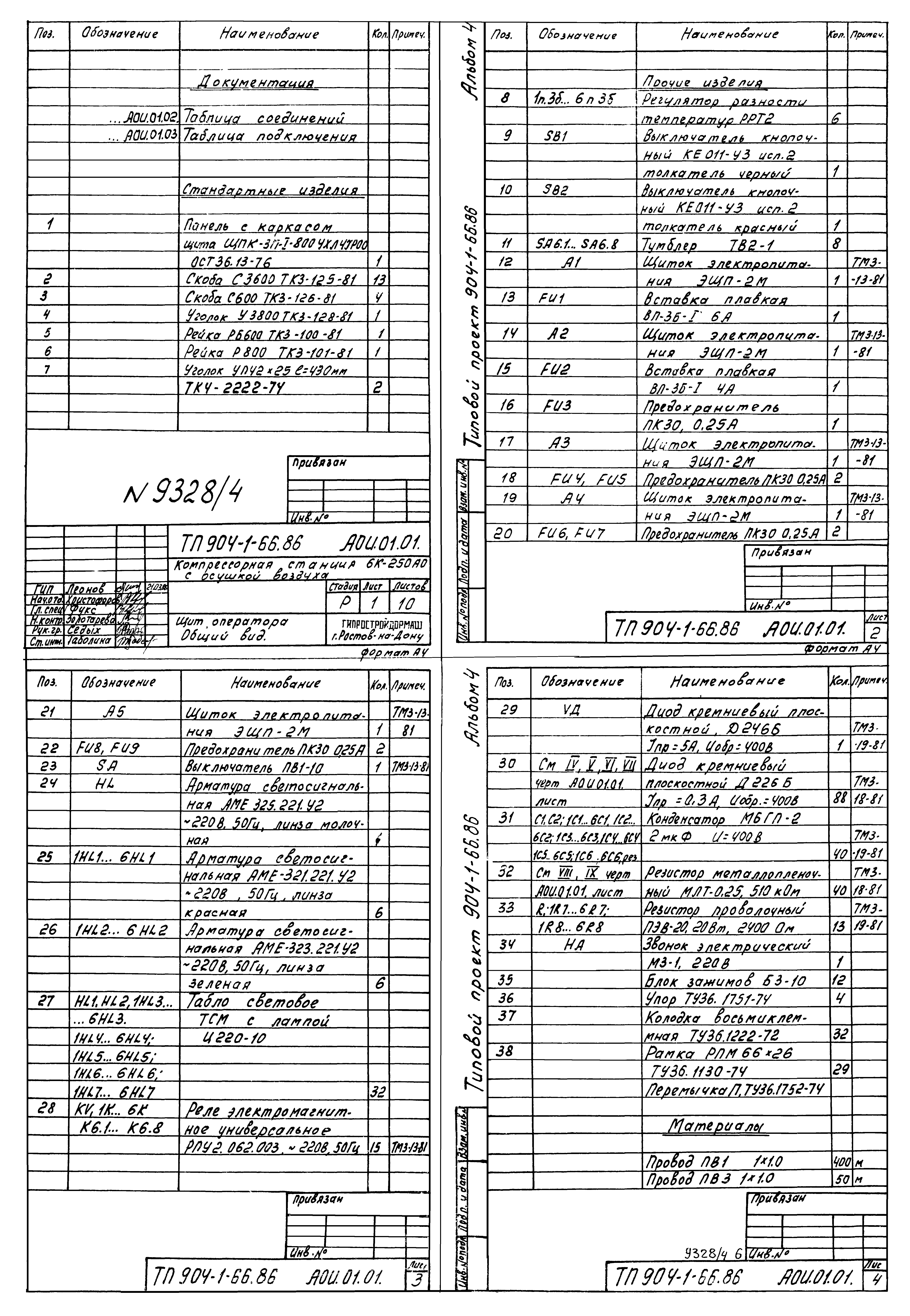
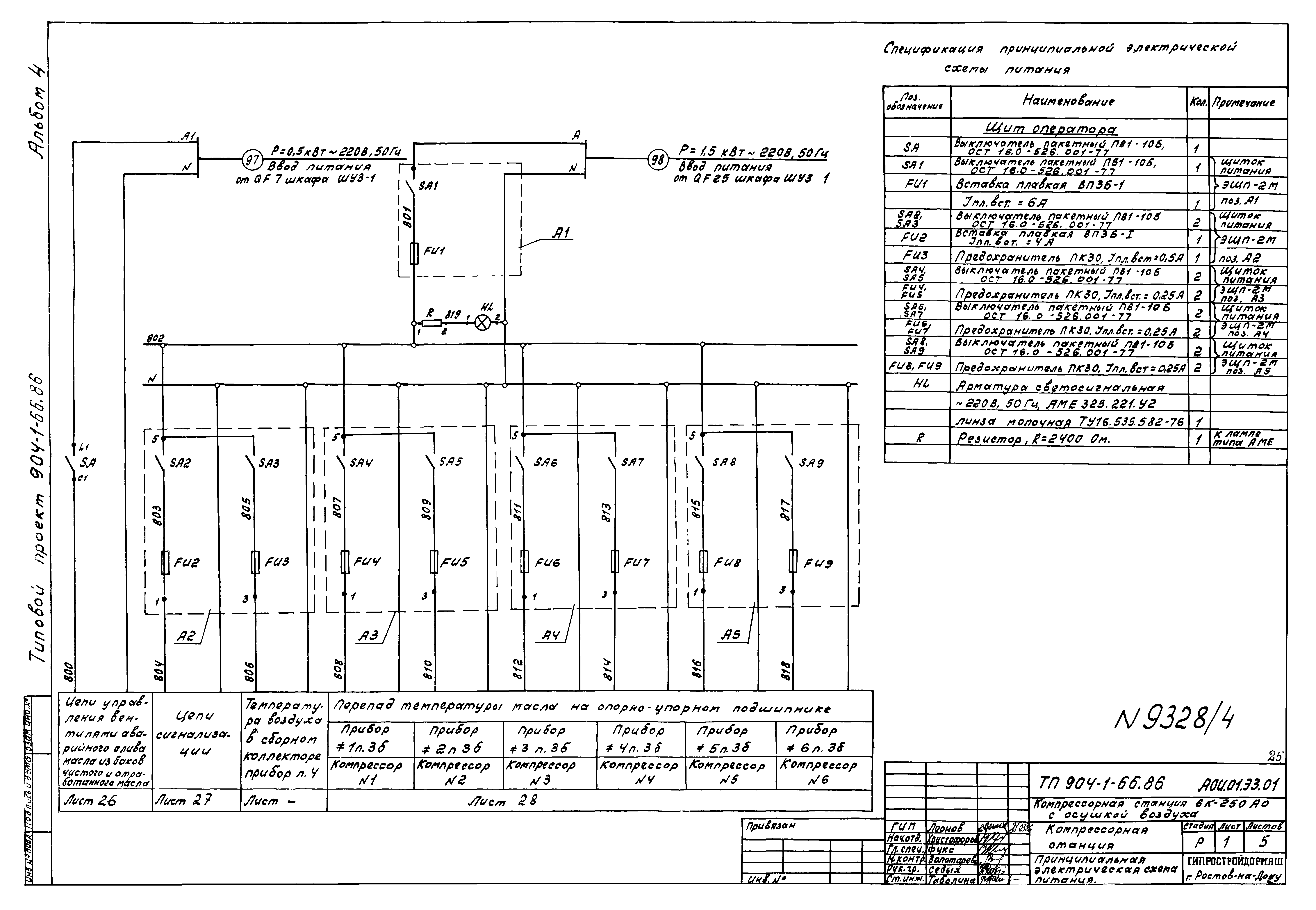
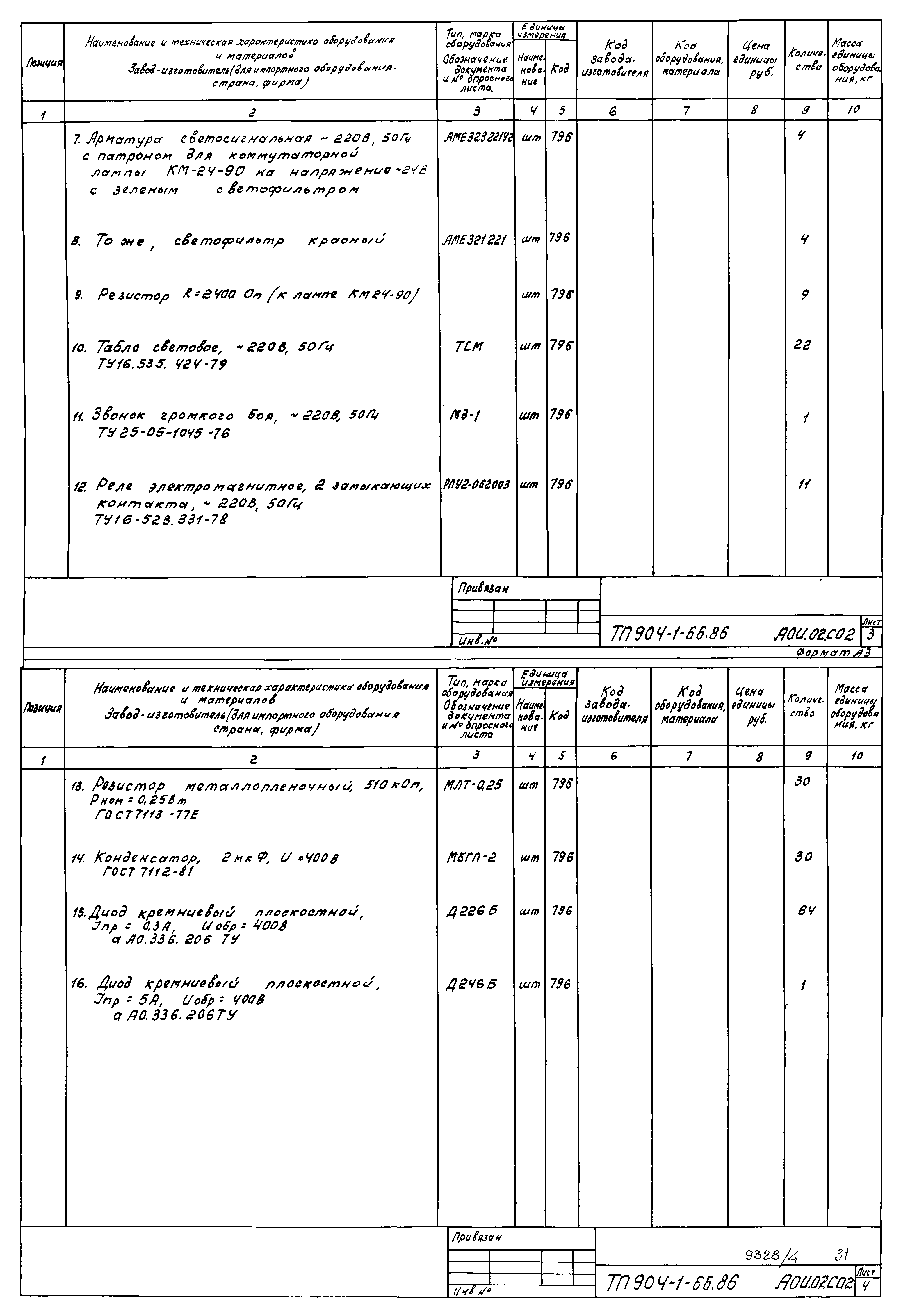
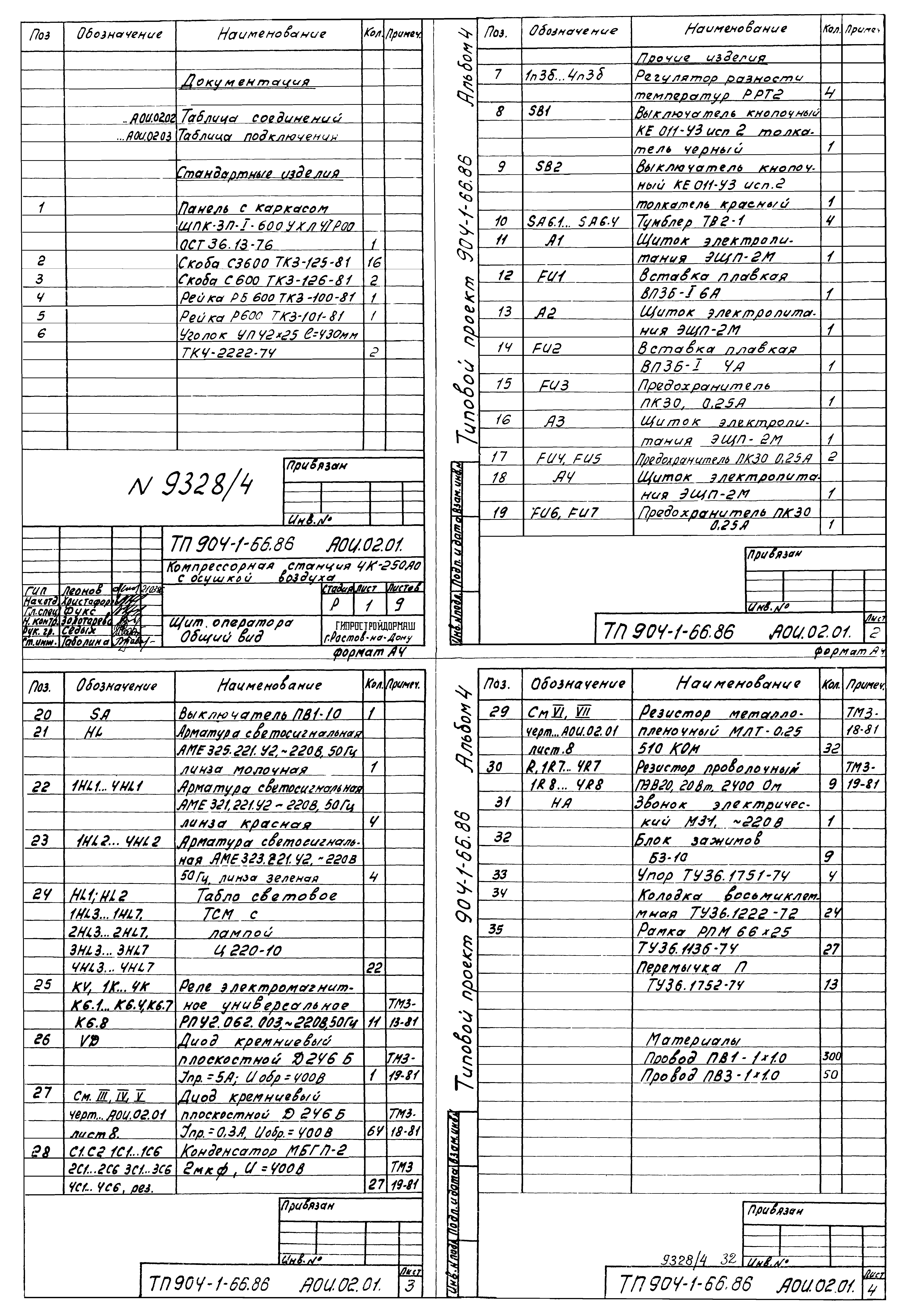
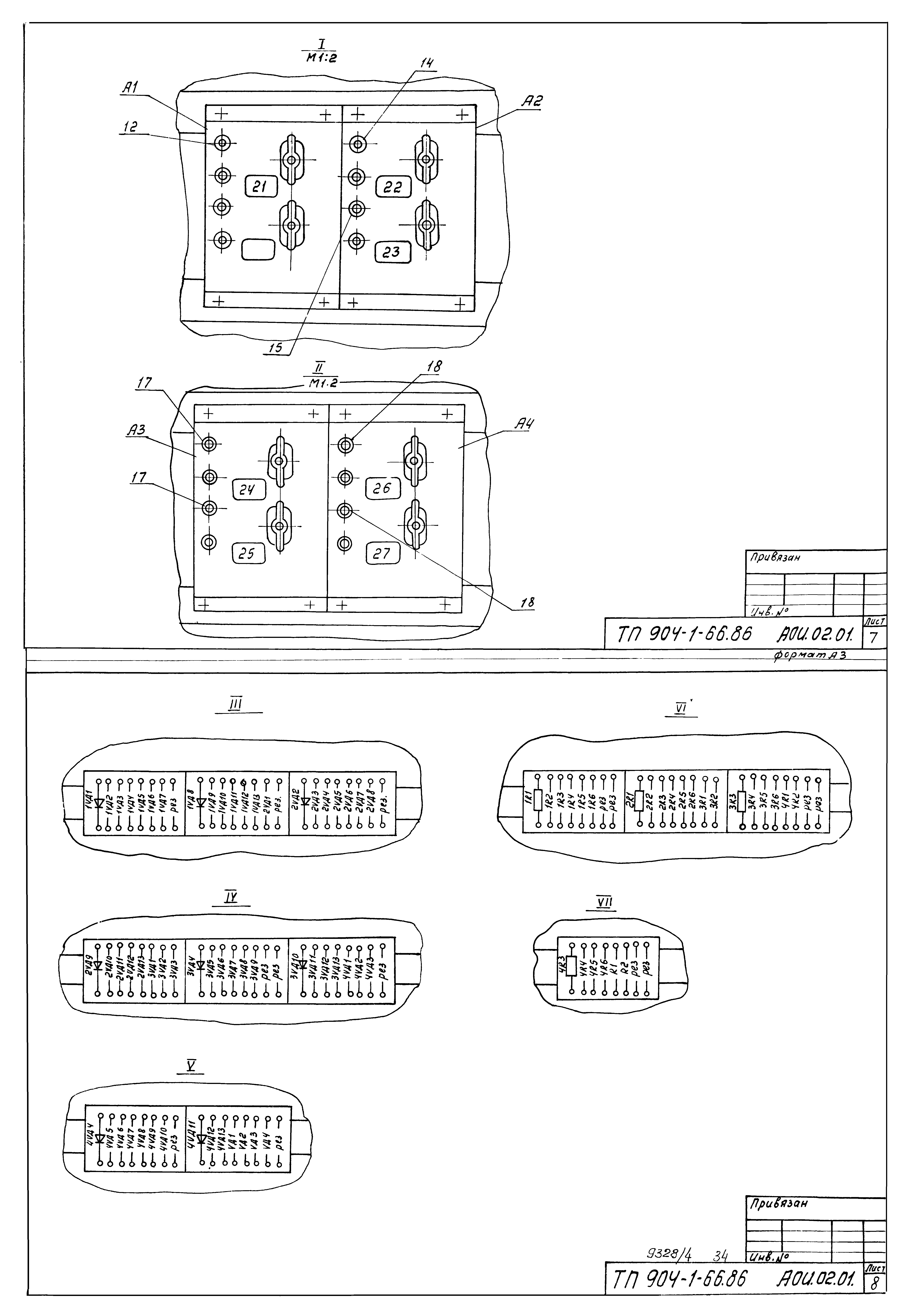
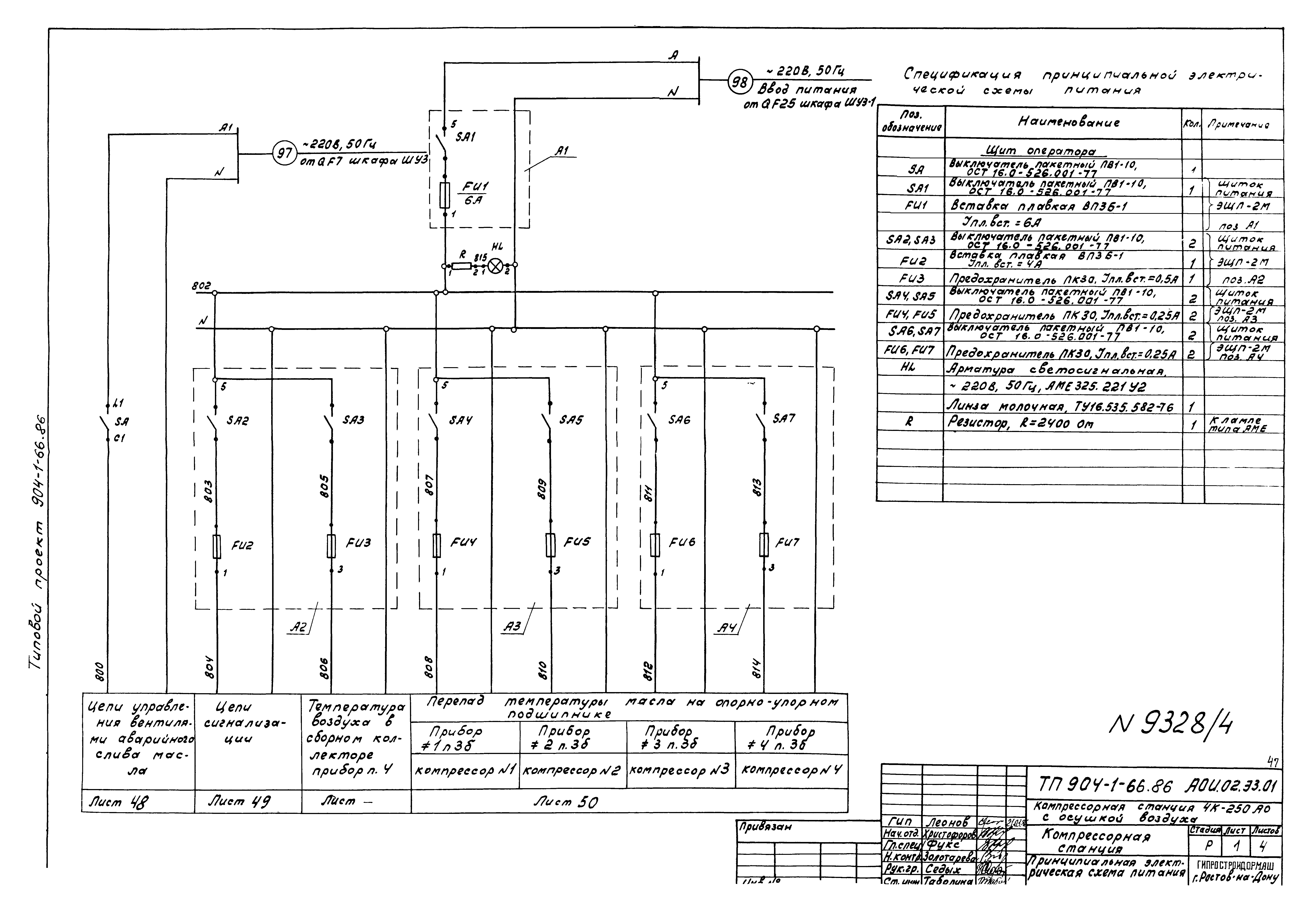
| Оглавление: | ТП 904-1-66.86 Титульный лист ТП 904-1-66.86-АОИ.00.ДЩ Перечень технической документации ТП 904-1-66.86-АОИ.00.ТО Техническое описание к применению выпуска ТП 904-1-66.86 Компрессорная станция 6К-250АО ТП 904-1-66.86-АОИ.01.СО2 Спецификация щитов ТП 904-1-66.86-АОИ.01.01 Щит оператора. Общий вид ТП 904-1-66.86-АОИ.01.02 Щит оператора. Таблица соединений ТП 904-1-66.86-АОИ.01.03 Щит оператора. Таблица подключения ТП 904-1-66.86-АОИ.01.ЭЗ.01 Принципиальная электрическая схема питания ТП 904-1-66.86-АОИ.01.ЭЗ.02 Принципиальная электрическая схема управления вентилями аварийного слива масла ТП 904-1-66.86-АОИ.01.ЭЗ.03 Установка осушки. Принципиальная электрическая схема сигнализации ТП 904-1-66.86-АОИ.01.ЭЗ.04 Компрессорная станция. Принципиальная электрическая схема сигнализации (начало) ТП 904-1-66.86-АОИ.01.ЭЗ.04 Компрессорная станция. Принципиальная электрическая схема сигнализации (окончание) ТП 904-1-66.86 Компрессорная станция 4К-250АО ТП 904-1-66.86-АОИ.02.СО2 Спецификация щитов ТП 904-1-66.86-АОИ.02.01 Щит оператора. Общий вид ТП 904-1-66.86-АОИ.02.02 Щит оператора. Таблица соединений ТП 904-1-66.86-АОИ.02.03 Щит оператора. Таблица подключения ТП 904-1-66.86-АОИ.02.ЭЗ.01 Принципиальная электрическая схема питания ТП 904-1-66.86-АОИ.02.ЭЗ.02 Принципиальная электрическая схема управления вентилями аварийного слива масла ТП 904-1-66.86-АОИ.02.ЭЗ.03 Установка осушки. Принципиальная электрическая схема сигнализации ТП 904-1-66.86-АОИ.02.ЭЗ.04 Компрессорная станция. Принципиальная электрическая схема сигнализации |
| Разработан: | Гипростройдормаш |
| Утверждён: | 28.03.1986 Минстройдормаш (Minstroydormash 13/86) |
| Издан: | ЦИТП Госстроя СССР (CITP, Gosstroy (USSR) 1987 г. ) |



















































