Скачать Типовой проект 904-1-66.86 Альбом 7. Строительные конструкции и изделияДата актуализации: 01.01.2021
|
| Обозначение: | Типовой проект 904-1-66.86 |
| Обозначение англ: | 904-1-66.86 |
| Статус: | действует |
| Название рус.: | Альбом 7. Строительные конструкции и изделия |
| Дата добавления в базу: | 01.09.2013 |
| Дата актуализации: | 01.01.2021 |
| Дата введения: | 30.08.1986 |
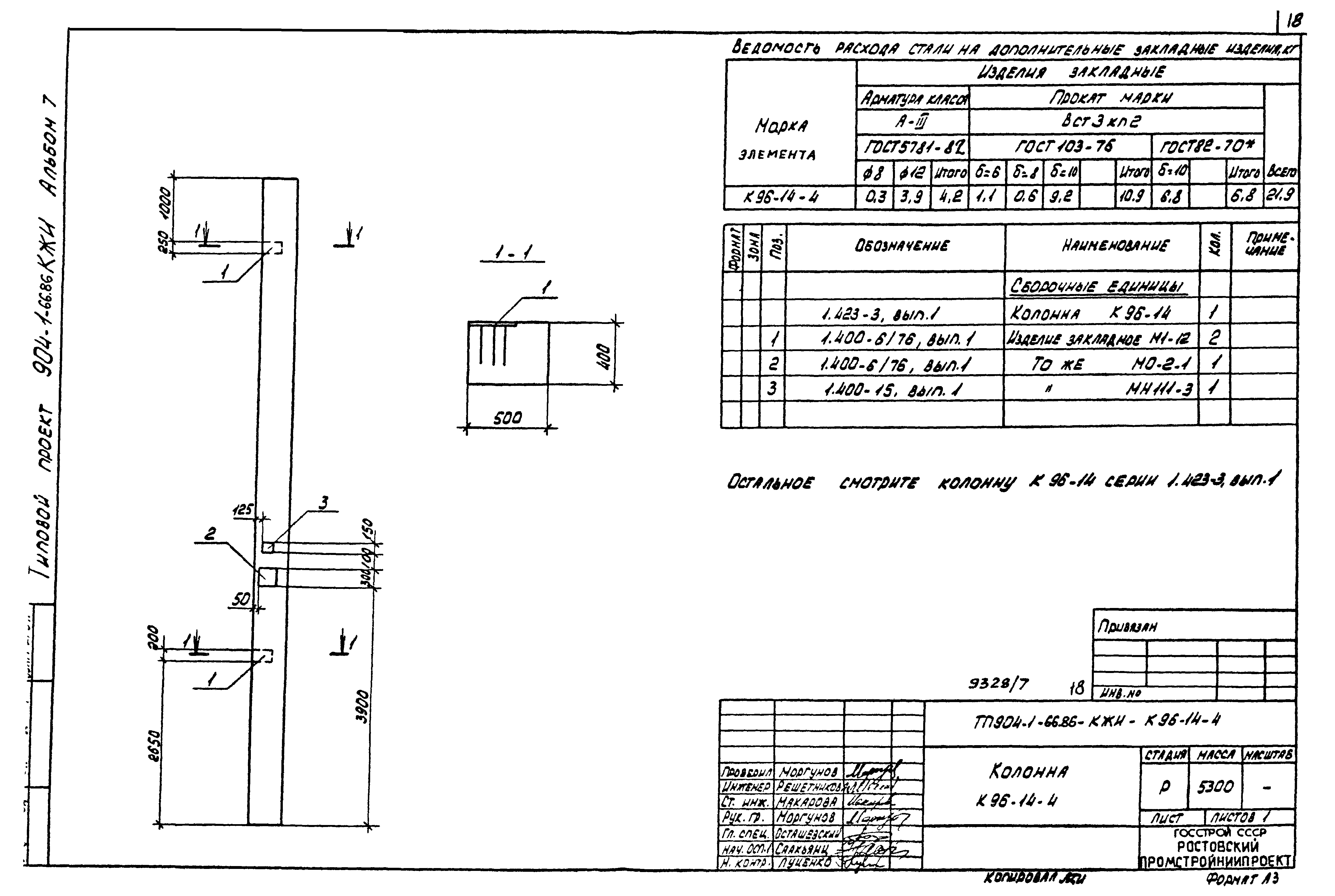
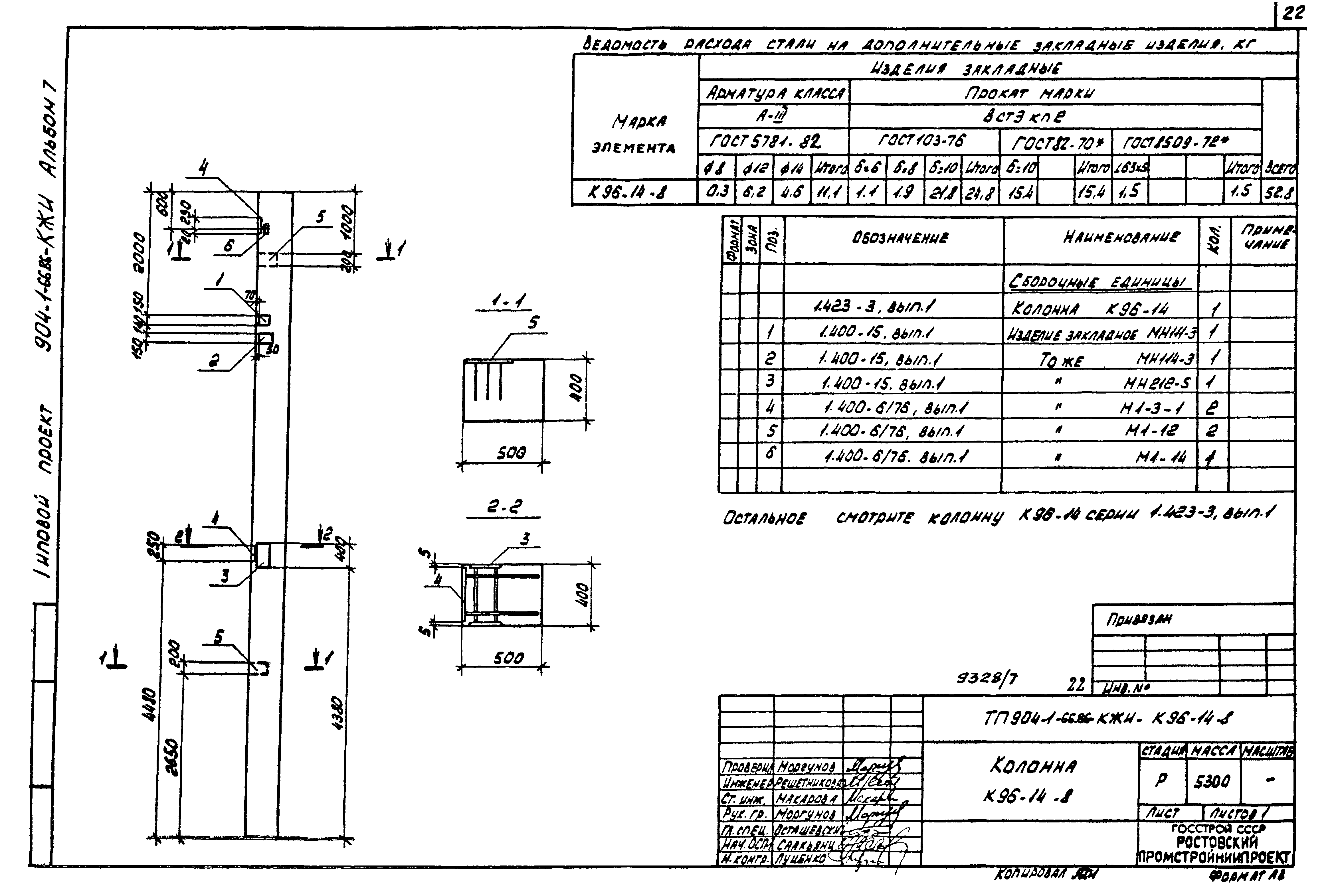
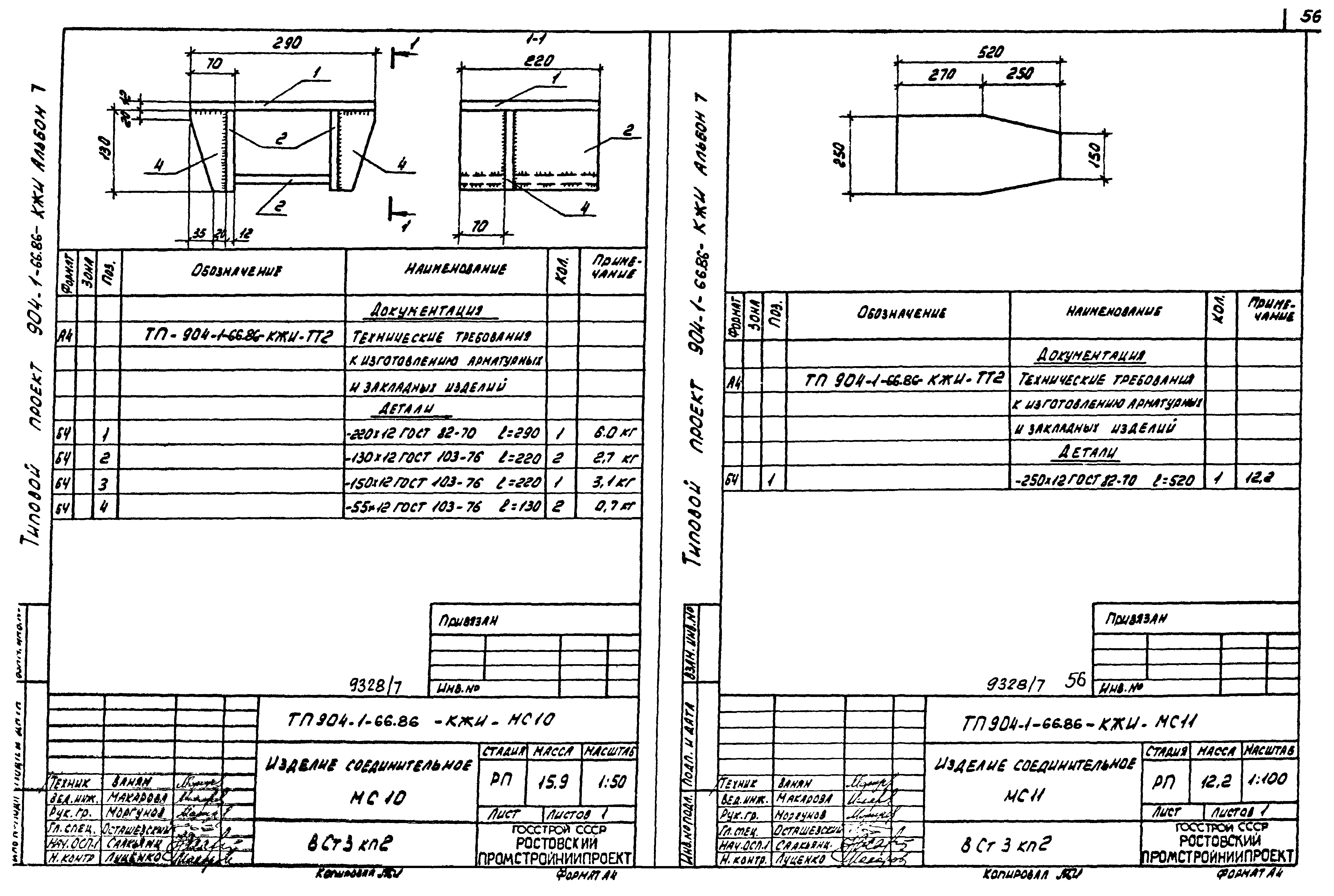
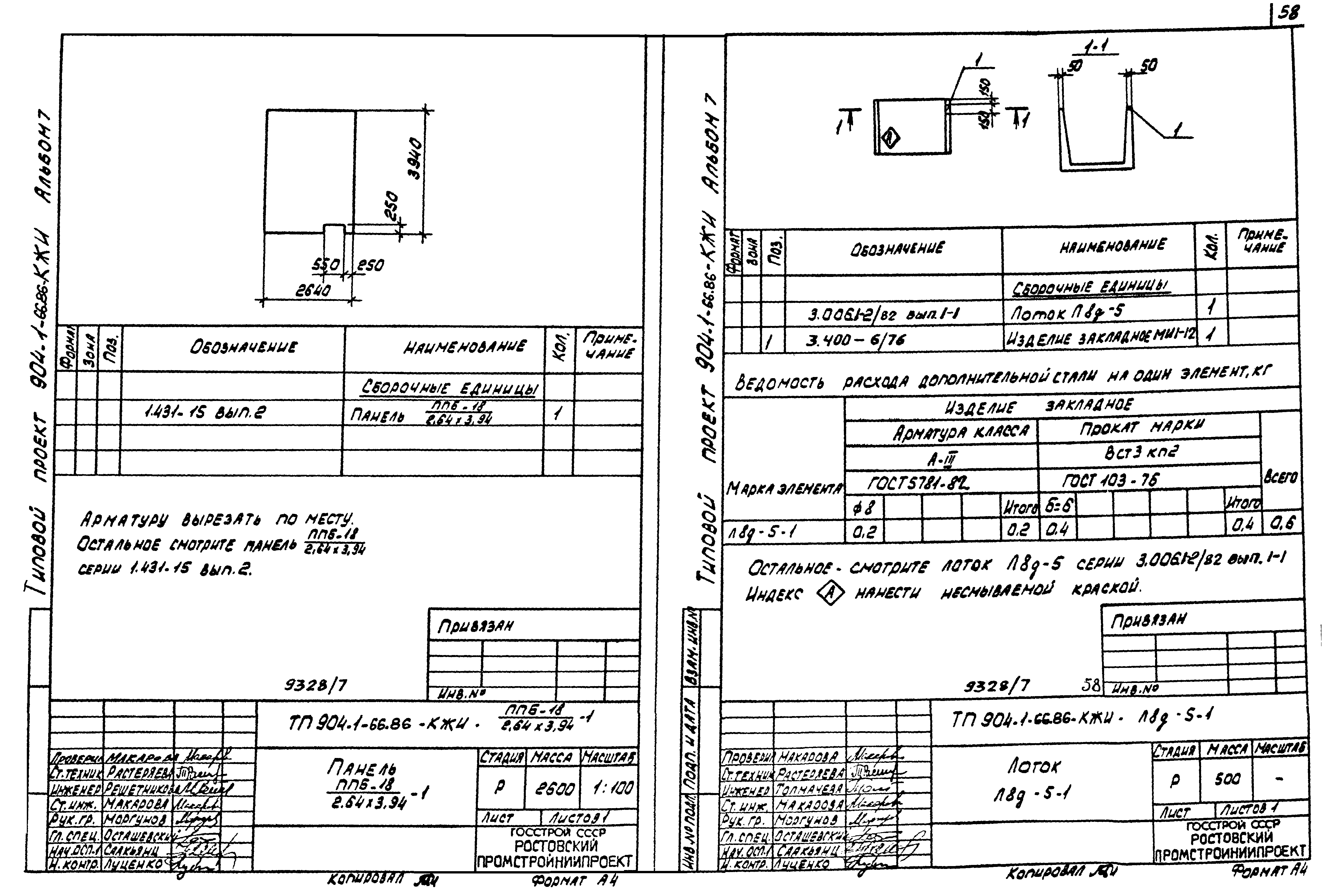
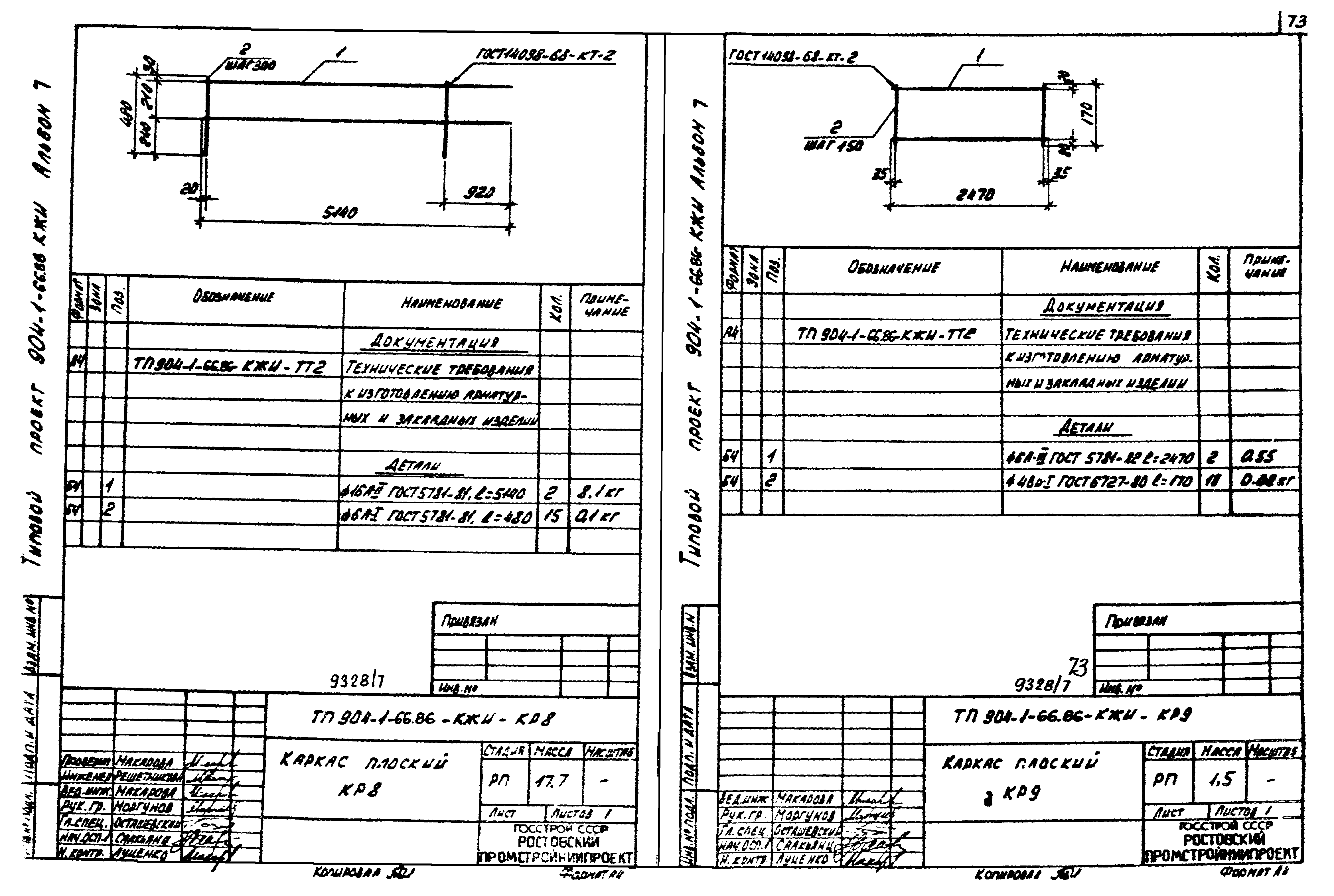
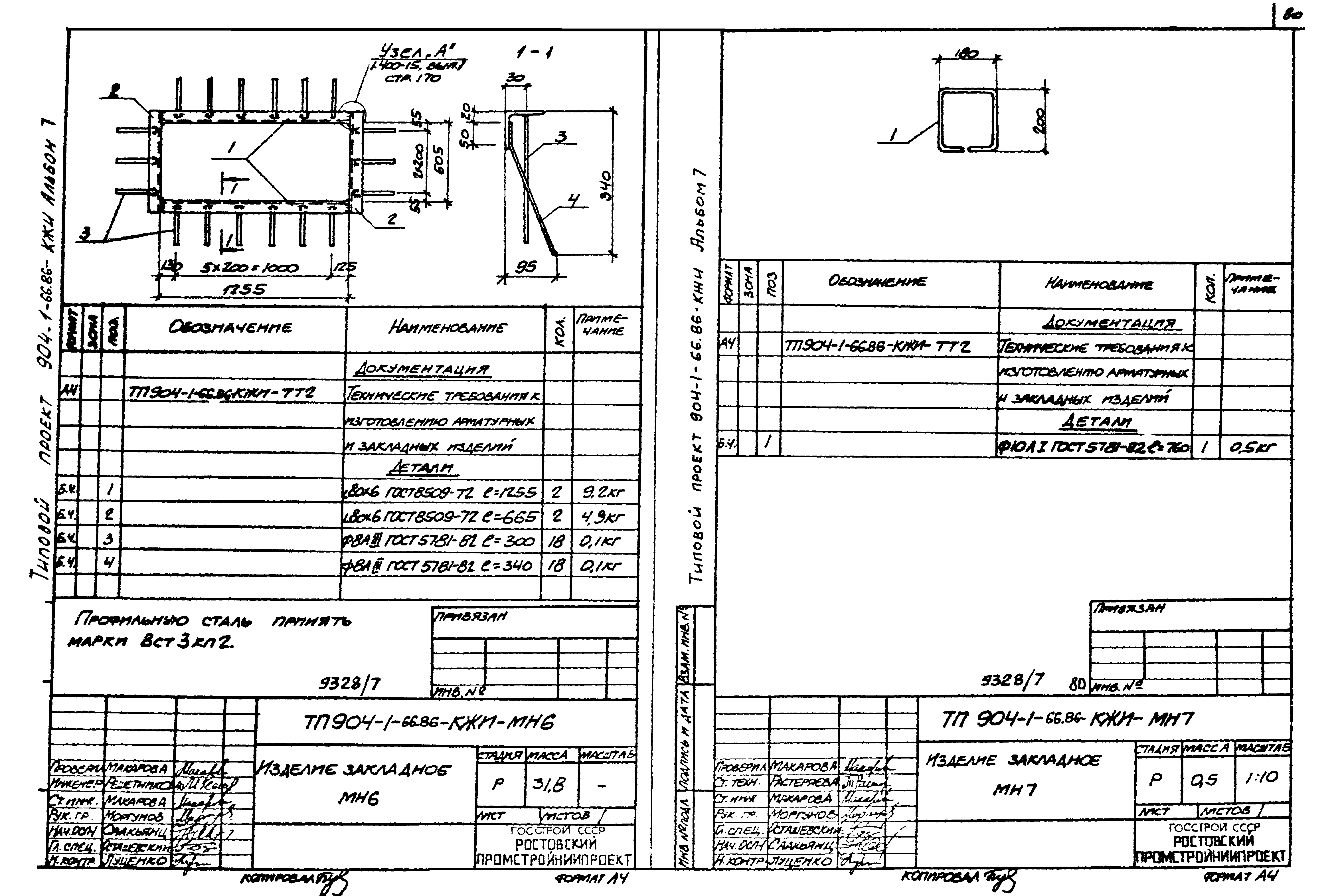
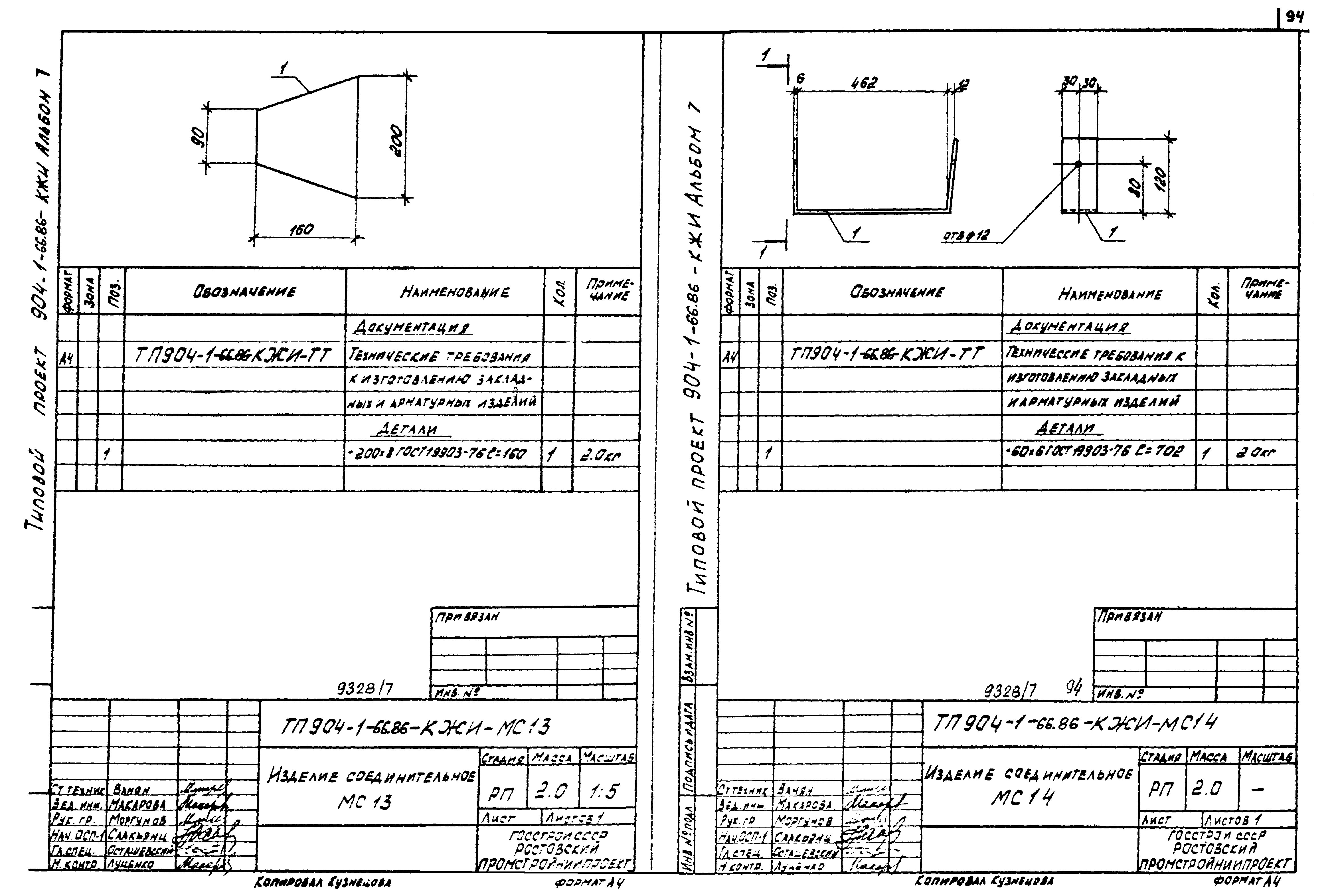
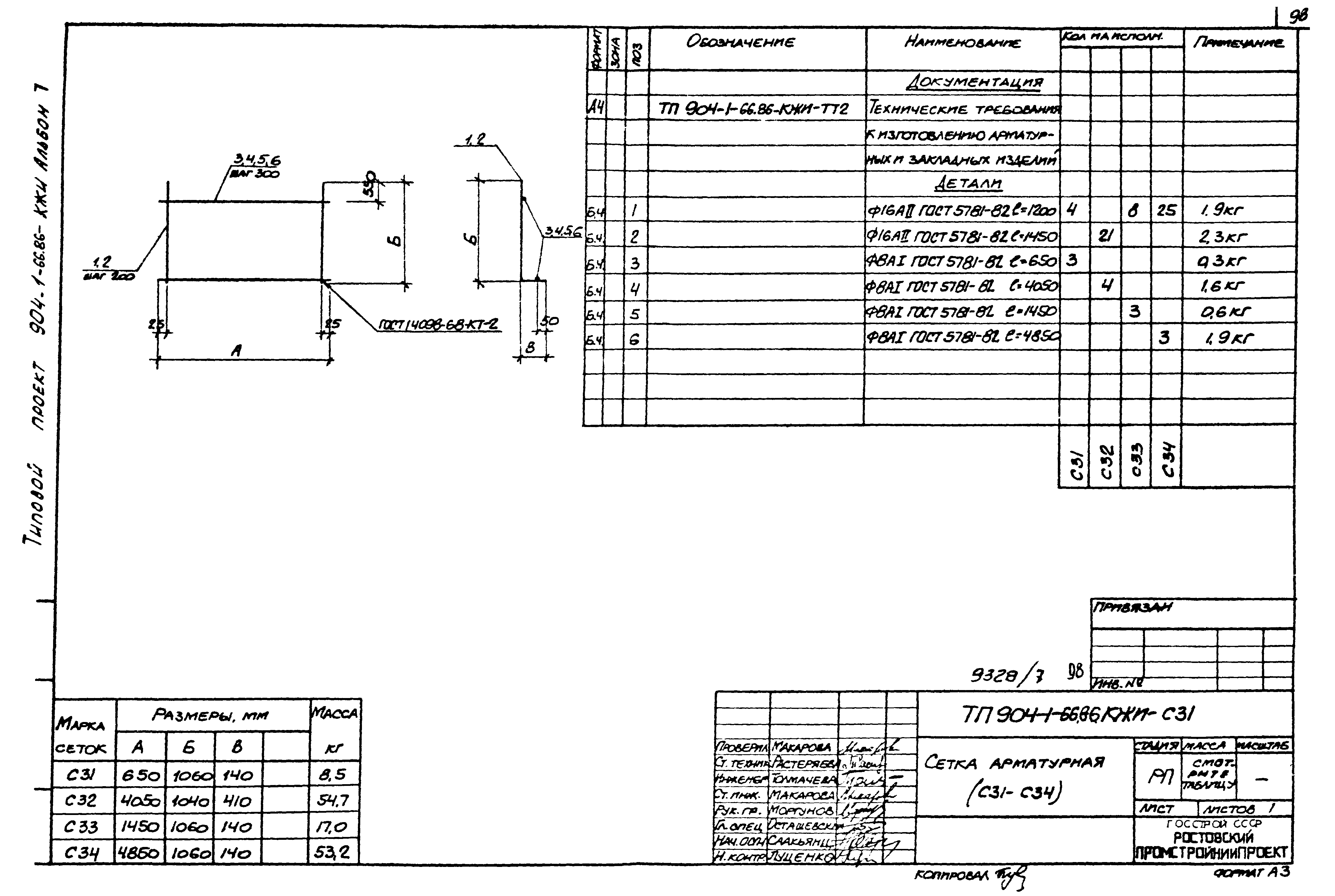
| Оглавление: | ТП 904-1-66.86-КЖИ-ТТ1 Технические требования к изготовлению сборных железобетонных изделий ТП 904-1-66.86-КЖИ-ТТ2 Технические требования к изготовлению арматурных и закладных изделий ТП 904-1-66.86-КЖИ-100 Ферма (Ф624III-78-1,Ф624III-78-2) ТП 904-1-66.86-КЖИ-200 Плита покрытия (1ПГ-2АТVТ-МПЖ-200А-1,1ПГ-3АТVТ-МПЖ-200А-1,1ПГ-2АТVТ-МПЖ-200А-2,1ПГ-3АТVТ-МПЖ-200А-2,1ПГ-2АТVТ-МПЖ-200А-3,1ПГ-3АТVТ-МПЖ-200А-3) ТП 904-1-66.86-КЖИ-201 Плита покрытия (1ПВ10-2АТVТ-МПЖ-200П-1,1ПВ10-3АТVТ-МПЖ-200П-1,1ПВ4-2АТVТ-МПЖ-200П-1,1ПВ4-3АТVТ-МПЖ-200П-1,1ПВ4-2АТVТ-МПЖ-200П-2,1ПВ4-3АТVТ-МПЖ-200П-2) ТП 904-1-66.86-КЖИ-300 Ригель (РДП4.57-70АТV-1,РДП4.57-70АТV-2) ТП 904-1-66.86-КЖИ-301 Ригель РОП4.27-40-1 ТП 904-1-66.86-КЖИ-302 Ригель (Р1,Р1-1) ТП 904-1-66.86-КЖИ-302 СБ Ригель (Р1,Р1-1). Сборочный чертеж ТП 904-1-66.86-КЖИ-303 Ригель Р2 ТП 904-1-66.86-КЖИ-1К03.36-3 Колонна 1К03.36-3 ТП 904-1-66.86-КЖИ-402 Плита ПРС56.15-10АIVТ-б ТП 904-1-66.86-КЖИ-401 Плита ПРС56.15-10АIVТ-а ТП 904-1-66.86-КЖИ-400 Плита ПРС56.15-16АIVТ-а ТП 904-1-66.86-КЖИ-К96-14-1 Колонна К96-14-1 ТП 904-1-66.86-КЖИ-К96-14-2 Колонна К96-14-2 ТП 904-1-66.86-КЖИ-К96-14-3 Колонна К96-14-3 ТП 904-1-66.86-КЖИ-К96-14-4 Колонна К96-14-4 ТП 904-1-66.86-КЖИ-К96-14-5 Колонна К96-14-5 ТП 904-1-66.86-КЖИ-К96-14-6 Колонна К96-14-6 ТП 904-1-66.86-КЖИ-К96-14-7,К96-14-11 Колонна (К96-14-7,К96-14-11) ТП 904-1-66.86-КЖИ-К96-14-8 Колонна К96-14-8 ТП 904-1-66.86-КЖИ-К96-14-9 Колонна К96-14-9 ТП 904-1-66.86-КЖИ-К96-14-10 Колонна К96-14-10 ТП 904-1-66.86-КЖИ-8КФ121-1-1 Колонна 8КФ121-1-1 ТП 904-1-66.86-8КФ121-1-2-ТТ1 Колонна 8КФ121-1-2 ТП 904-1-66.86-КЖИ-8КФ127-1-1 Колонна 8КФ127-1-1 ТП 904-1-66.86-КЖИ-8КФ127-2-1 Колонна (8КФ127-2-1,8КФ127-2-2) ТП 904-1-66.86-КЖИ-8КФ127-2-3 Колонна 8КФ127-2-3 ТП 904-1-66.86-КЖИ-1КД3.36-1 Колонна (1КД3.36-1,1КД3.36-2) ТП 904-1-66.86-КЖИ-К1 Колонна К1 ТП 904-1-66.86-КЖИ-К2 Колонна К2 ТП 904-1-66.86-КЖИ-К3 Колонна К3 ТП 904-1-66.86-КЖИ-К5 Колонна К5 ТП 904-1-66.86-КЖИ-500 Панель стеновая ПС62.5-12.2.0-4Я-1.37-а ТП 904-1-66.86-КЖИ-501 Панель стеновая (ПС30.12.2.0-6Я-57-а,ПС60.18.2.2.0-3Я-31-а,ПС60.12.2.0-2Я-31-а) ТП 904-1-66.86-КЖИ-502 Панель стеновая ПС60.15.2.0-2Я-31-а ТП 904-1-66.86-КЖИ-503 Панель стеновая (ПС60.12.2.0-4Я-48-а,ПС60.12.2.0-4Я-36-а,ПС60.12.2.0-2Я-34-а) ТП 904-1-66.86-КЖИ-504 Панель стеновая ПС60.12.2.0-4Я-37-а ТП 904-1-66.86-КЖИ-505 Панель стеновая ПС30.12.2.0-6Я-57-б ТП 904-1-66.86-КЖИ-506 Панель стеновая (2ПС15.18.2.0-Я-58-а,2ПС15.12.2.0-Я-58-а) ТП 904-1-66.86-КЖИ-507 Панель стеновая 2ПС15.12.2.0-Я-58-б ТП 904-1-66.86-КЖИ-508 Панель стеновая ПС30.12.2.0-6Я-57-в ТП 904-1-66.86-КЖИ-ПС1 Панель стеновая ПС1 ТП 904-1-66.86-КЖИ-ПС2 Панель стеновая ПС2 ТП 904-1-66.86-КЖИ-ПС3 Панель стеновая ПС3 ТП 904-1-66.86-КЖИ-П1 Плита П1 ТП 904-1-66.86-КЖИ-П2 Плита П2 ТП 904-1-66.86-КЖИ-КП1 Каркас пространственный КП1 ТП 904-1-66.86-КЖИ-509 Панель ПГ5 ТП 904-1-66.86-КЖИ-511 Панель ПГ60.30-2-Т-82-а ТП 904-1-66.86-КЖИ-510 Панель ПГ60.6-2-Т-82-а ТП 904-1-66.86-КЖИ-512 Панель ПГ1 ТП 904-1-66.86-КЖИ-513 Панель ПГ2 ТП 904-1-66.86-КЖИ-514 Панель ПГ3 ТП 904-1-66.86-КЖИ-515 Панель ПГ4 ТП 904-1-66.86-КЖИ-516 Панель ПГ6 ТП 904-1-66.86-КЖИ-517 Панель ПГ7 ТП 904-1-66.86-КЖИ-1К03.36-1 Колонна 1К03.36-1 ТП 904-1-66.86-КЖИ-1К03.36-2 Колонна 1К03.36-2 ТП 904-1-66.86-КЖИ-МС10 Изделие соединительное МС10 ТП 904-1-66.86-КЖИ-МС11 Изделие соединительное МС11 ТП 904-1-66.86-КЖИ-МС12 Изделие соединительное МС12 ТП 904-1-66.86-КЖИ-С57 Сетка арматурная (С57,С58) ТП 904-1-66.86-КЖИ-ПП6-18/2.64х3.94-1 Панель ПП6-18/2.64х3.94-1 ТП 904-1-66.86-КЖИ-Л8д-5-1 Лоток Л8д-5-1 ТП 904-1-66.86-КЖИ-П14д-3б-1 Плита (П14д-3б-1,П17д-3б-1,П7д-5б-1,П10д-5б-1,П5д-8б-1) ТП 904-1-66.86-КЖИ-ФБ1 Фундаментная балка ФБ1 ТП 904-1-66.86-КЖИ-Б1 Балка Б1 ТП 904-1-66.86-КЖИ-КП2 Каркас пространственный КП2 ТП 904-1-66.86-КЖИ-КП3 Каркас пространственный КП3 ТП 904-1-66.86-КЖИ-КП5 Каркас пространственный КП5 ТП 904-1-66.86-КЖИ-КП11 Каркас пространственный КП11 ТП 904-1-66.86-КЖИ-КП6,КП10 Каркас пространственный (КП6,КП10) ТП 904-1-66.86-КЖИ-КП7 Каркас пространственный КП7 ТП 904-1-66.86-КЖИ-КП8 Каркас пространственный КП8 ТП 904-1-66.86-КЖИ-КП9 Каркас пространственный КП9 ТП 904-1-66.86-КЖИ-КП4 Каркас пространственный КП4 ТП 904-1-66.86-КЖИ-КП12 Каркас пространственный КП12 ТП 904-1-66.86-КЖИ-МН12,МН13 Изделие закладное (МН12,МН13) ТП 904-1-66.86-КЖИ-КП16 Каркас пространственный КП16 ТП 904-1-66.86-КЖИ-КР1 Каркас плоский КР1 ТП 904-1-66.86-КЖИ-КР2 Каркас плоский КР2 ТП 904-1-66.86-КЖИ-КР4 Каркас плоский КР4 ТП 904-1-66.86-КЖИ-КР5 Каркас плоский КР5 ТП 904-1-66.86-КЖИ-КР8 Каркас плоский КР8 ТП 904-1-66.86-КЖИ-КР9 Каркас плоский КР9 ТП 904-1-66.86-КЖИ-КР10,КР11 Каркас плоский (КР10,КР11) ТП 904-1-66.86-КЖИ-КР12,КР13 Каркас плоский (КР12,КР13) ТП 904-1-66.86-КЖИ-МН10,МН11 Изделие закладное (МН10,МН11) ТП 904-1-66.86-КЖИ-КР15 Каркас плоский КР15 ТП 904-1-66.86-КЖИ-МН1 Изделие закладное МН1 ТП 904-1-66.86-КЖИ-МН2 Изделие закладное МН2 ТП 904-1-66.86-КЖИ-МН2 СБ Изделие закладное МН2. Сборочный чертеж ТП 904-1-66.86-КЖИ-МН3 Изделие закладное МН3 ТП 904-1-66.86-КЖИ-МН4,МН5 Изделие закладное (МН4,МН5) ТП 904-1-66.86-КЖИ-МН6 Изделие закладное МН6 ТП 904-1-66.86-КЖИ-МН7 Изделие закладное МН7 ТП 904-1-66.86-КЖИ-МН8 Изделие закладное МН8 ТП 904-1-66.86-КЖИ-МН9 Изделие закладное МН9 ТП 904-1-66.86-КЖИ-МС1 Изделие соединительное МС1 ТП 904-1-66.86-КЖИ-МС2 Изделие соединительное МС2 ТП 904-1-66.86-КЖИ-МС3 Изделие соединительное МС3 ТП 904-1-66.86-КЖИ-МС4 Изделие соединительное МС4 ТП 904-1-66.86-КЖИ-МС5 Изделие соединительное МС5 ТП 904-1-66.86-КЖИ-МС6,МС7 Изделие соединительное (МС6,МС7) ТП 904-1-66.86-КЖИ-МС8 Изделие соединительное МС8 ТП 904-1-66.86-КЖИ-МС9 Изделие соединительное МС9 ТП 904-1-66.86-КЖИ-С1 Сетка арматурная С1 ТП 904-1-66.86-КЖИ-С2 Сетка арматурная С2 ТП 904-1-66.86-КЖИ-С3 Сетка арматурная С3 ТП 904-1-66.86-КЖИ-С4 Сетка арматурная С4 ТП 904-1-66.86-КЖИ-С5 Сетка арматурная С5 ТП 904-1-66.86-КЖИ-С6 Сетка арматурная С6 ТП 904-1-66.86-КЖИ-С7 Сетка арматурная С7 ТП 904-1-66.86-КЖИ-С8 Сетка арматурная С8 ТП 904-1-66.86-КЖИ-С9 Сетка арматурная С9 ТП 904-1-66.86-КЖИ-С10 Сетка арматурная С10 ТП 904-1-66.86-КЖИ-С11 Сетка арматурная С11 ТП 904-1-66.86-КЖИ-С12 Сетка арматурная С12 ТП 904-1-66.86-КЖИ-С13 Сетка арматурная С13 ТП 904-1-66.86-КЖИ-С14 Сетка арматурная С14 ТП 904-1-66.86-КЖИ-С15 Сетка арматурная С15 ТП 904-1-66.86-КЖИ-МС13 Изделие соединительное МС13 ТП 904-1-66.86-КЖИ-МС14 Изделие соединительное МС14 ТП 904-1-66.86-КЖИ-КП13 Каркас пространственный КП13 ТП 904-1-66.86-КЖИ-С25 Сетка арматурная С25 ТП 904-1-66.86-КЖИ-С37 Сетка арматурная С37 ТП 904-1-66.86-КЖИ-С26 Сетка арматурная (С26-С30) ТП 904-1-66.86-КЖИ-С31 Сетка арматурная (С31-С34) ТП 904-1-66.86-КЖИ-С35,С36 Сетка арматурная (С35,С36) ТП 904-1-66.86-КЖИ-С39 Сетка арматурная (С39,С40) ТП 904-1-66.86-КЖИ-С48 Сетка арматурная (С48,С53) ТП 904-1-66.86-КЖИ-С42 Сетка арматурная (С42,С43,С45,С47,С49,С52,С54,С56) ТП 904-1-66.86-КЖИ-С44 Сетка арматурная (С44,С46,С50,С51,С55,С59) ТП 904-1-66.86-КЖИ-ЖР1 Жалюзийная решетка ЖР1 ТП 904-1-66.86-КЖИ-Р1,Р2 Стальная решетка (Р1,Р2) ТП 904-1-66.86-КЖИ-ЩД1 Щит деревянный ЩД1 ТП 904-1-66.86-КЖИ-УК1 Утепленный клапан УК1 |
| Разработан: | Ростовский Промстройниипроект Госстроя СССР |
| Утверждён: | 28.03.1986 Минстройдормаш (Minstroydormash 13/86) |
| Издан: | ЦИТП Госстроя СССР (CITP, Gosstroy (USSR) 1987 г. ) |











































































































