Скачать Типовой проект 902-3-57м.87 Альбом III. Архитектурно-строительные решения. Конструкции железобетонные и металлическиеДата актуализации: 01.01.2021
|
| Обозначение: | Типовой проект 902-3-57м.87 |
| Обозначение англ: | 902-3-57м.87 |
| Статус: | не определен законодательством |
| Название рус.: | Альбом III. Архитектурно-строительные решения. Конструкции железобетонные и металлические |
| Дата добавления в базу: | 01.09.2013 |
| Дата актуализации: | 01.01.2021 |
| Дата введения: | 15.12.1986 |
| Дата окончания срока действия: | 30.06.2003 |
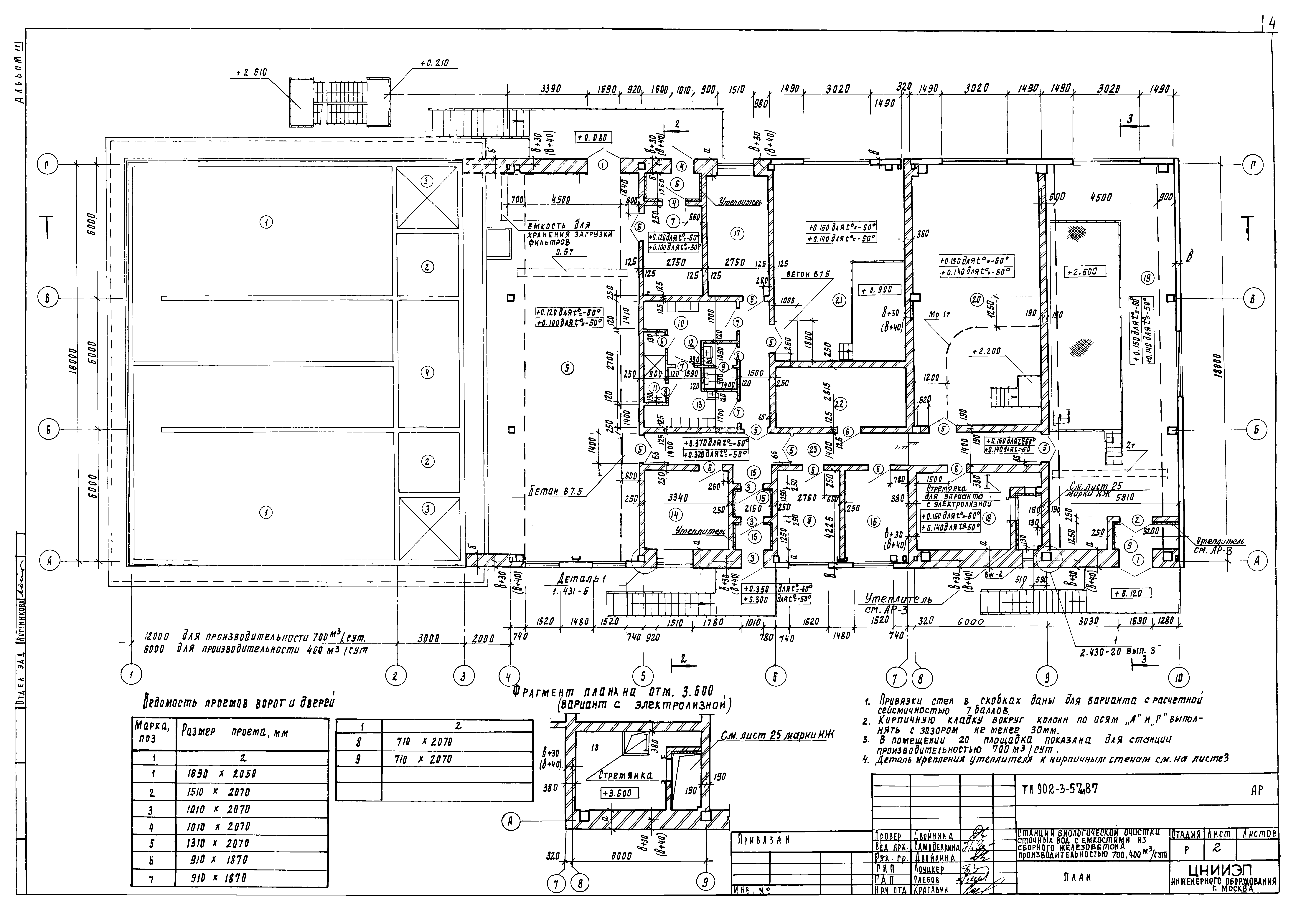
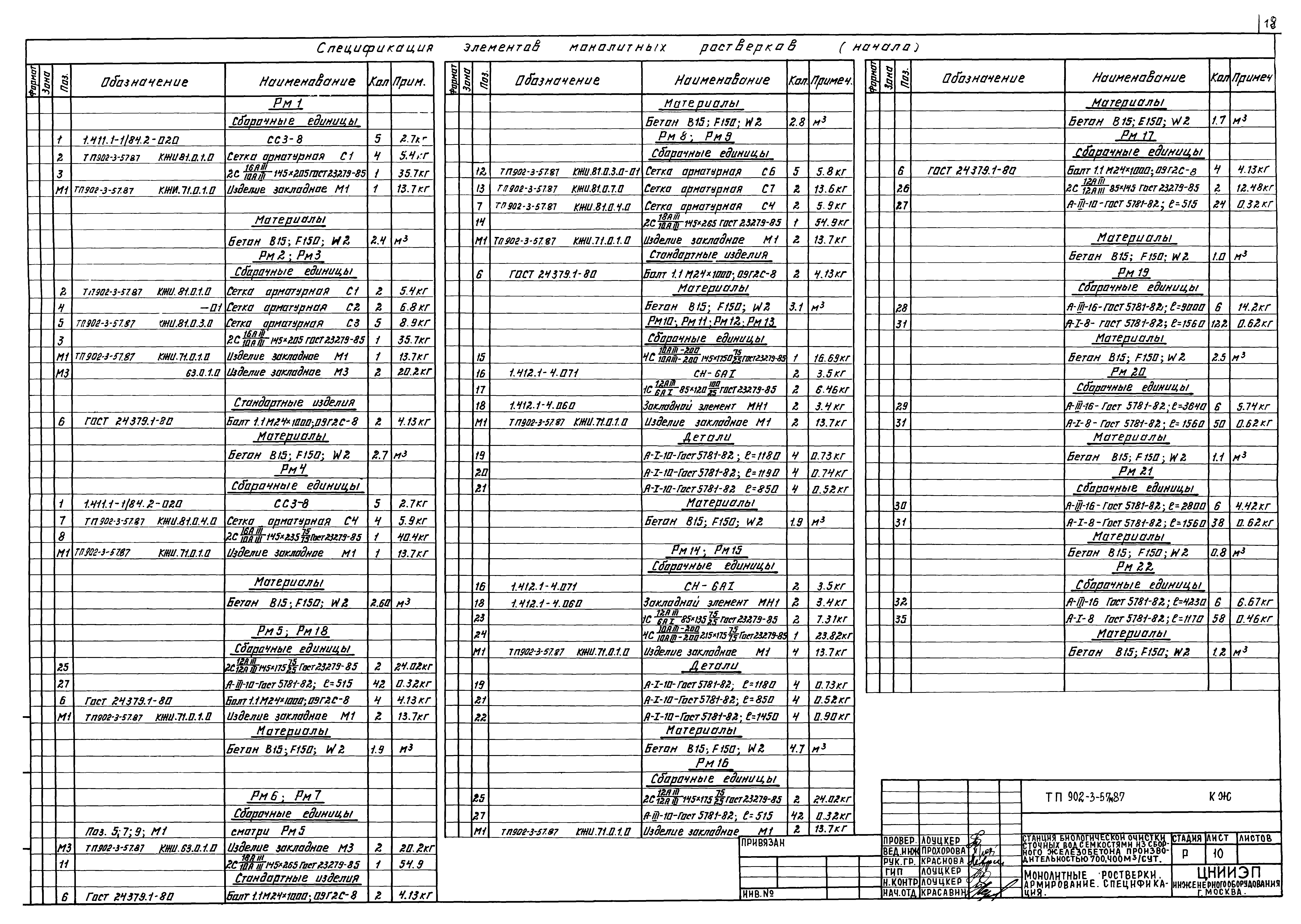
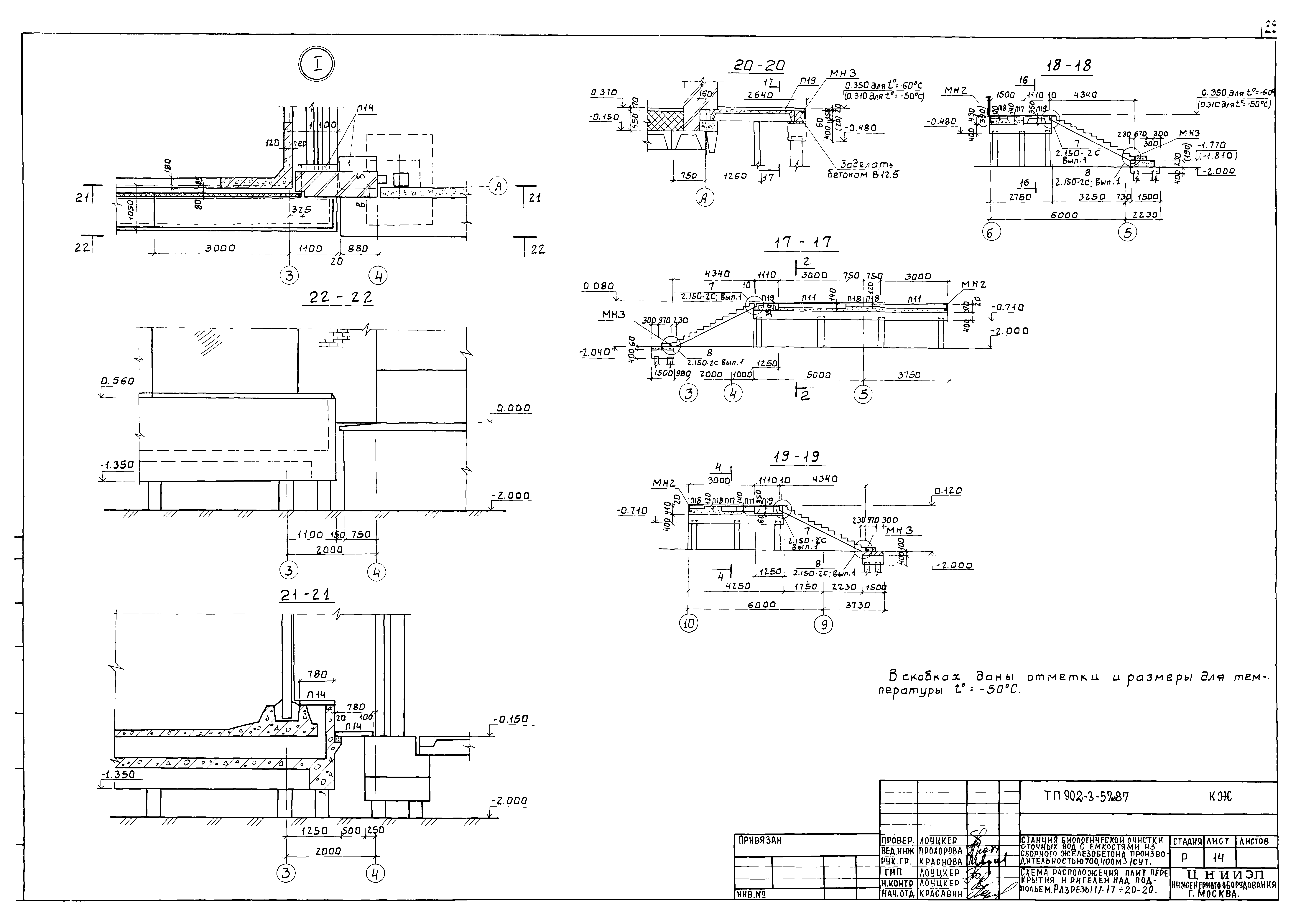
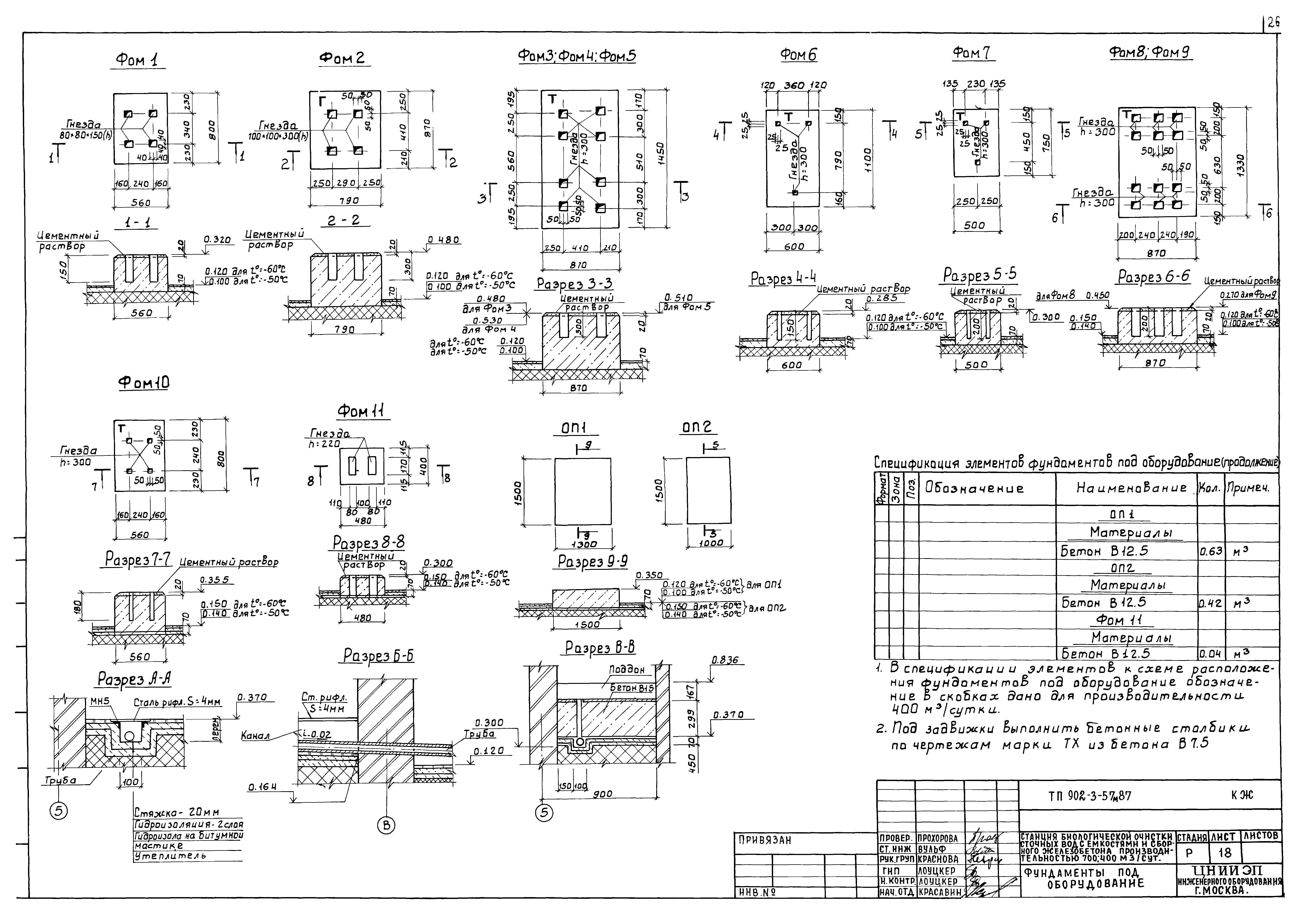
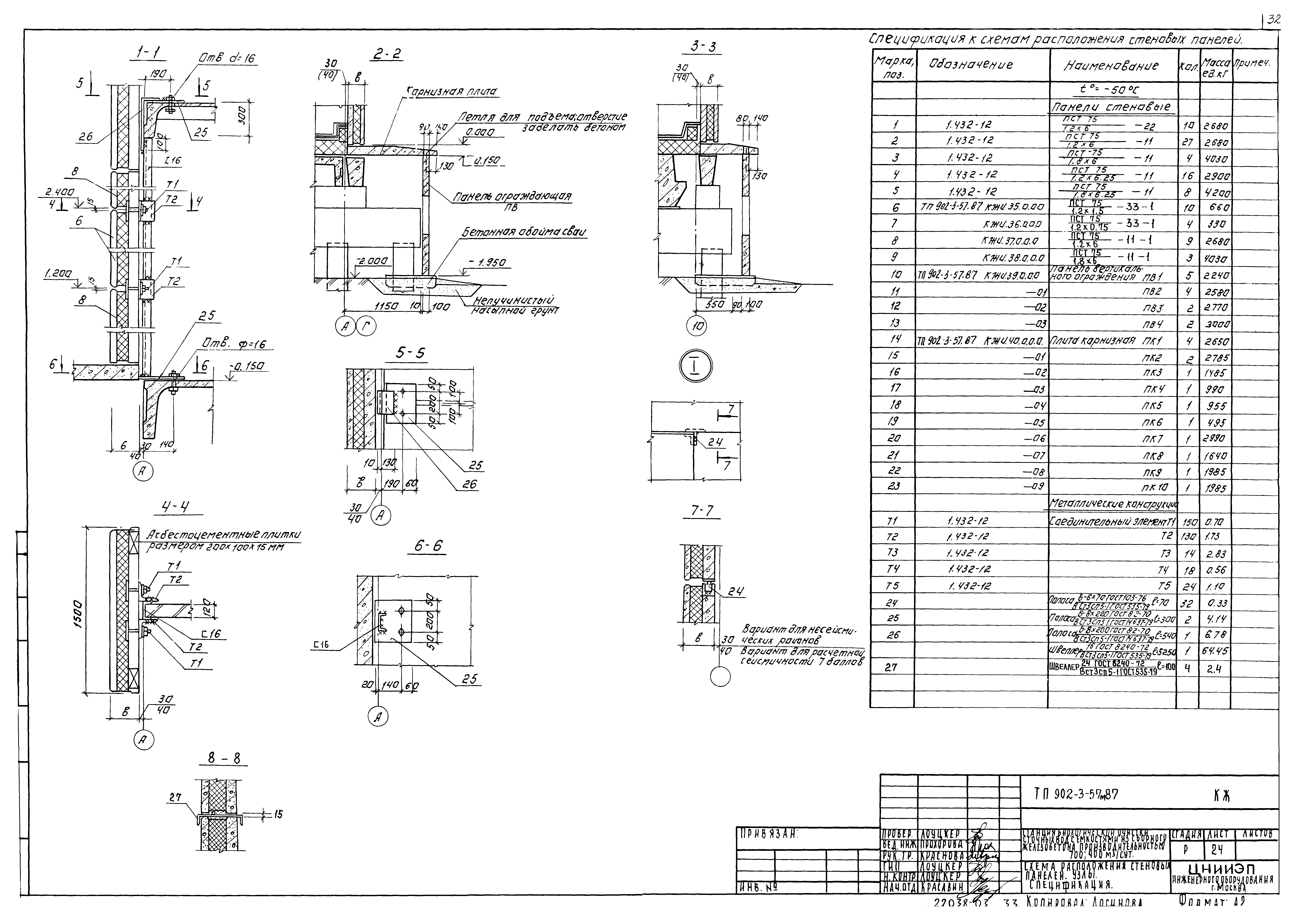
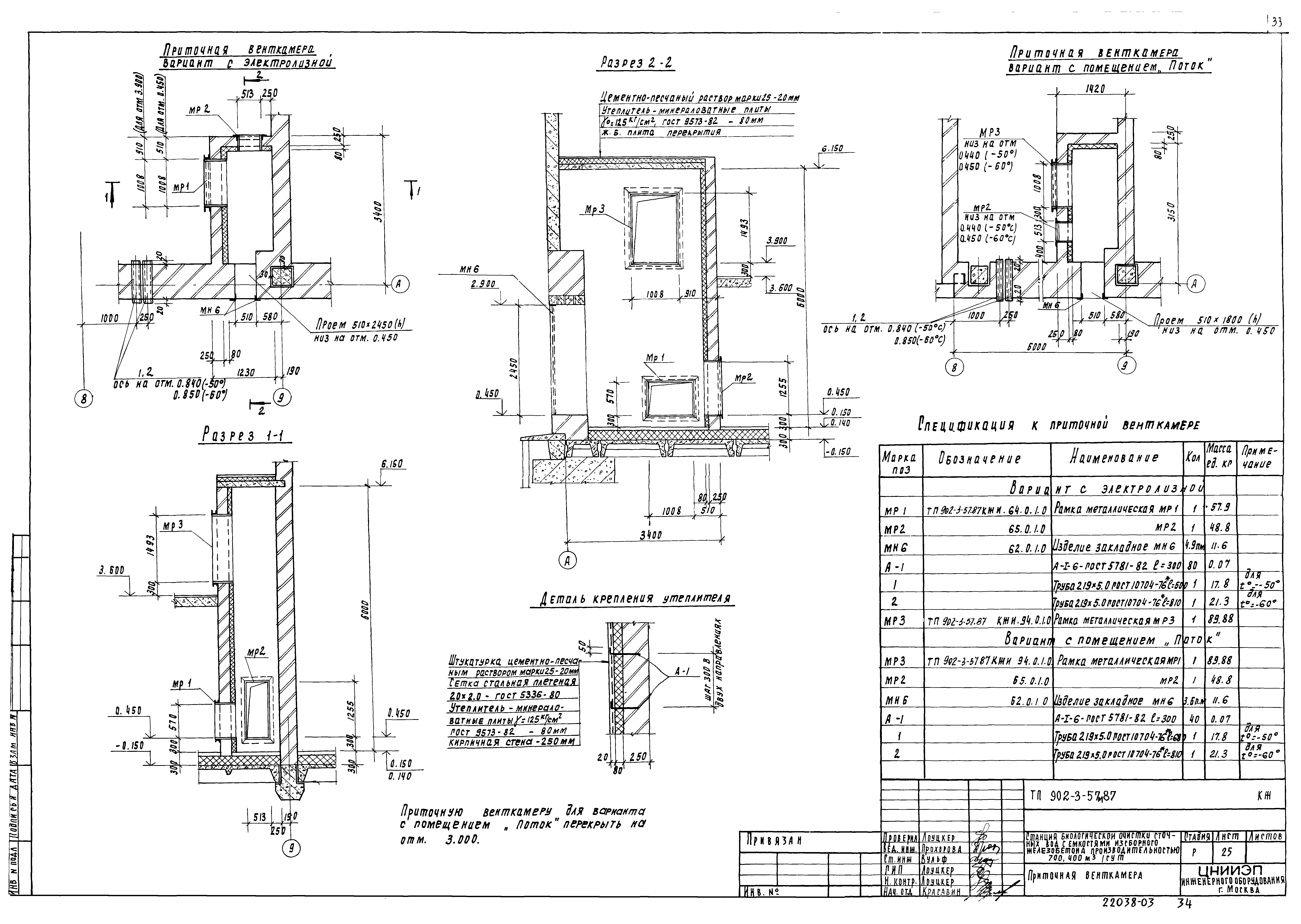
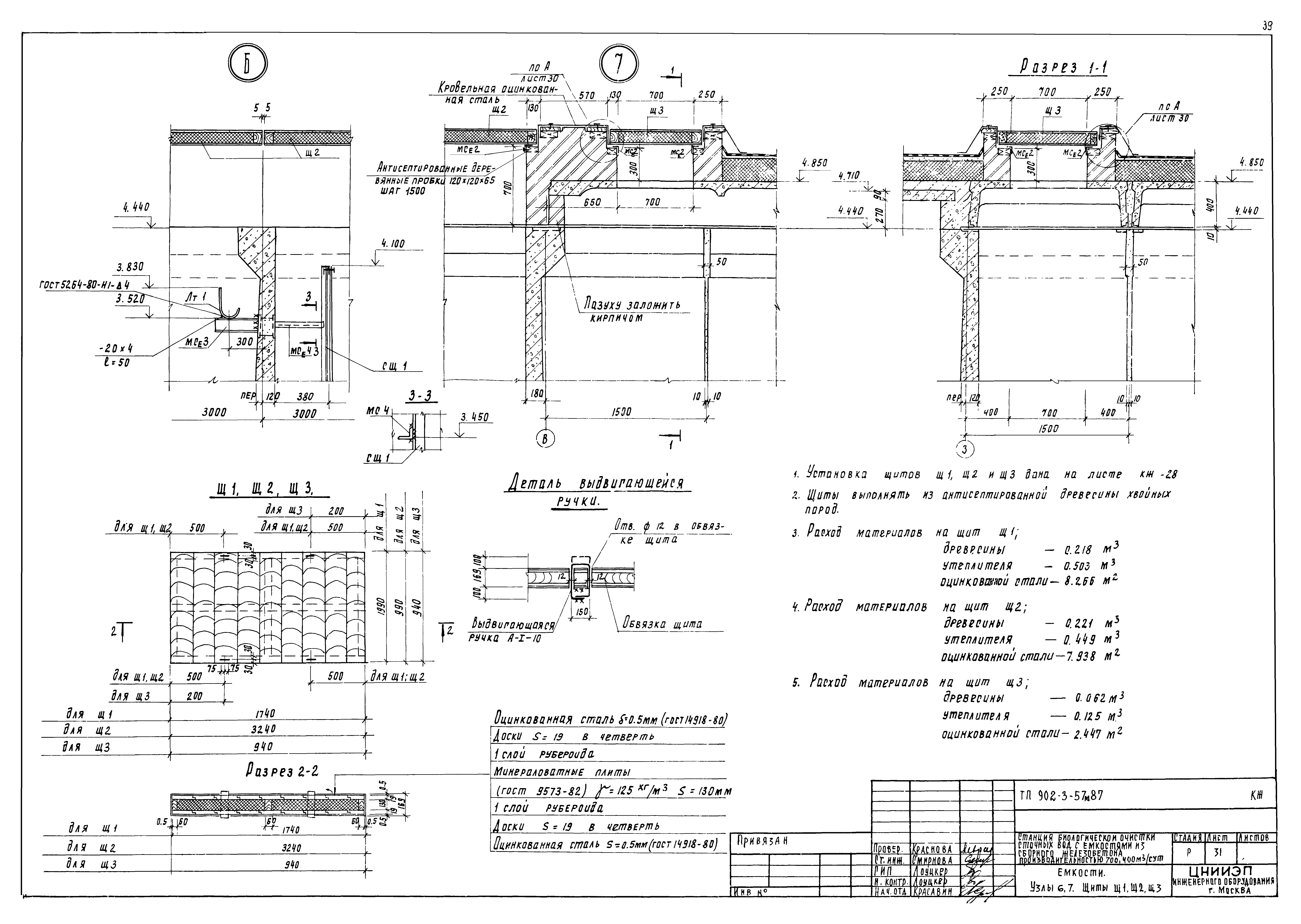
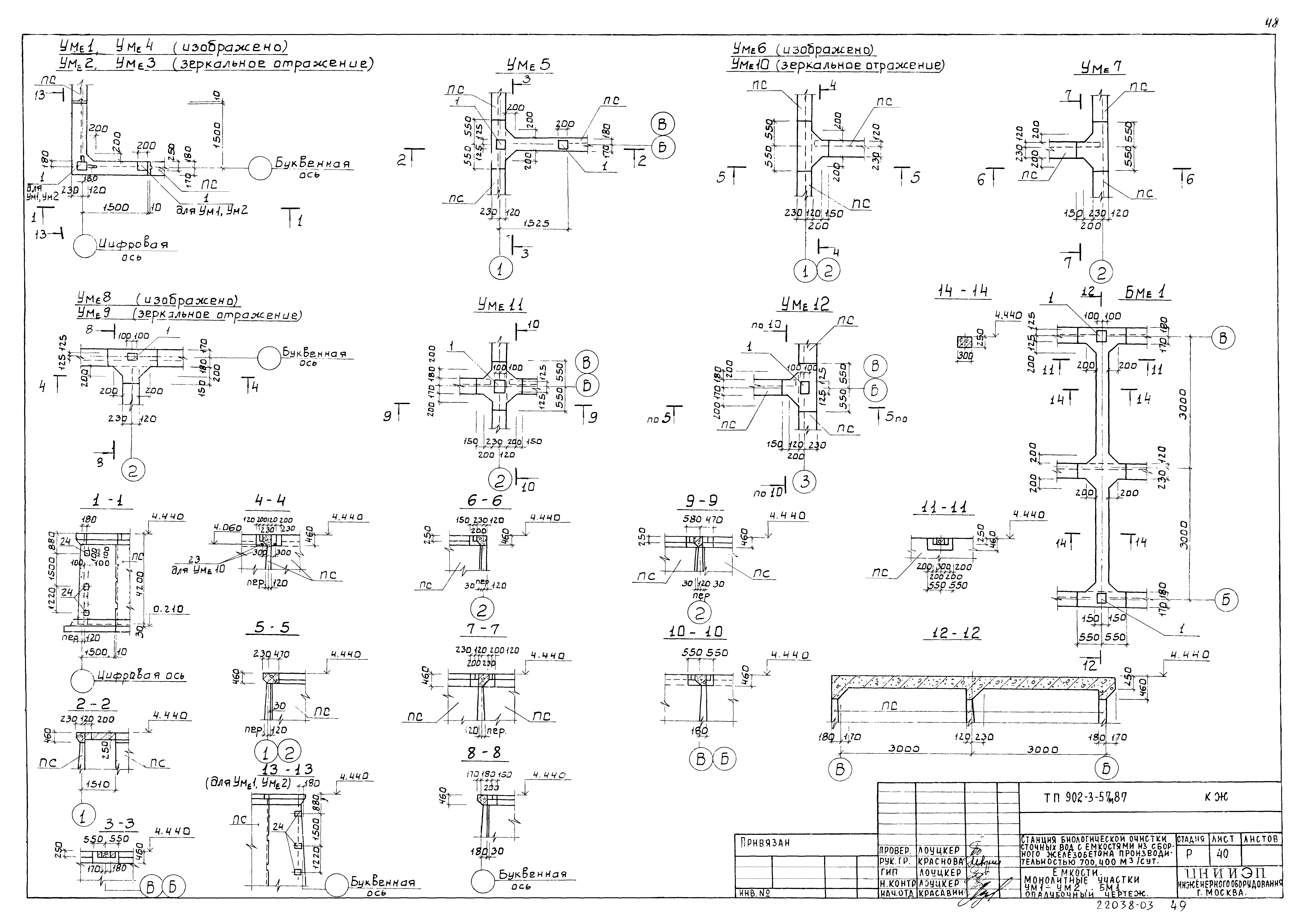
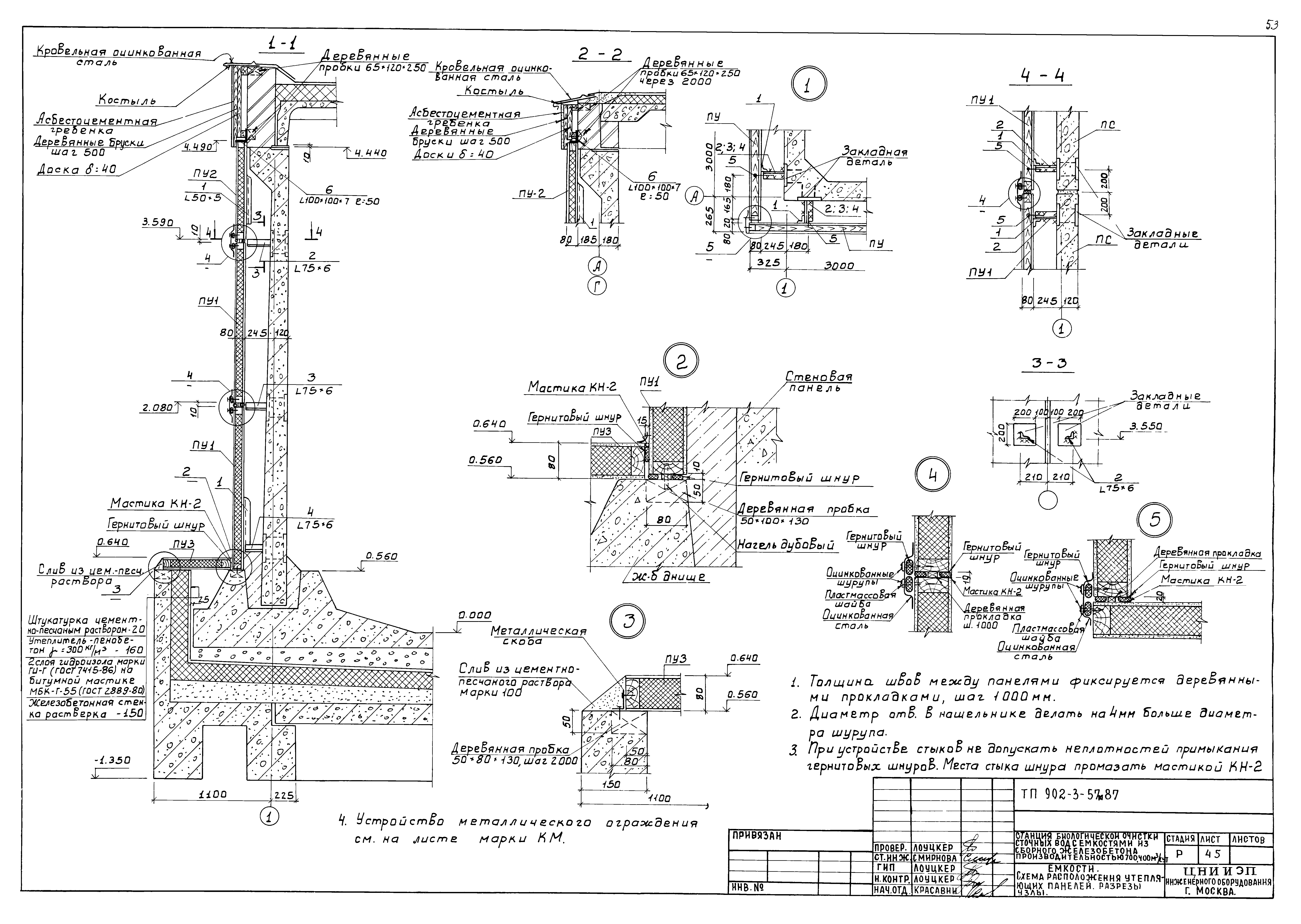
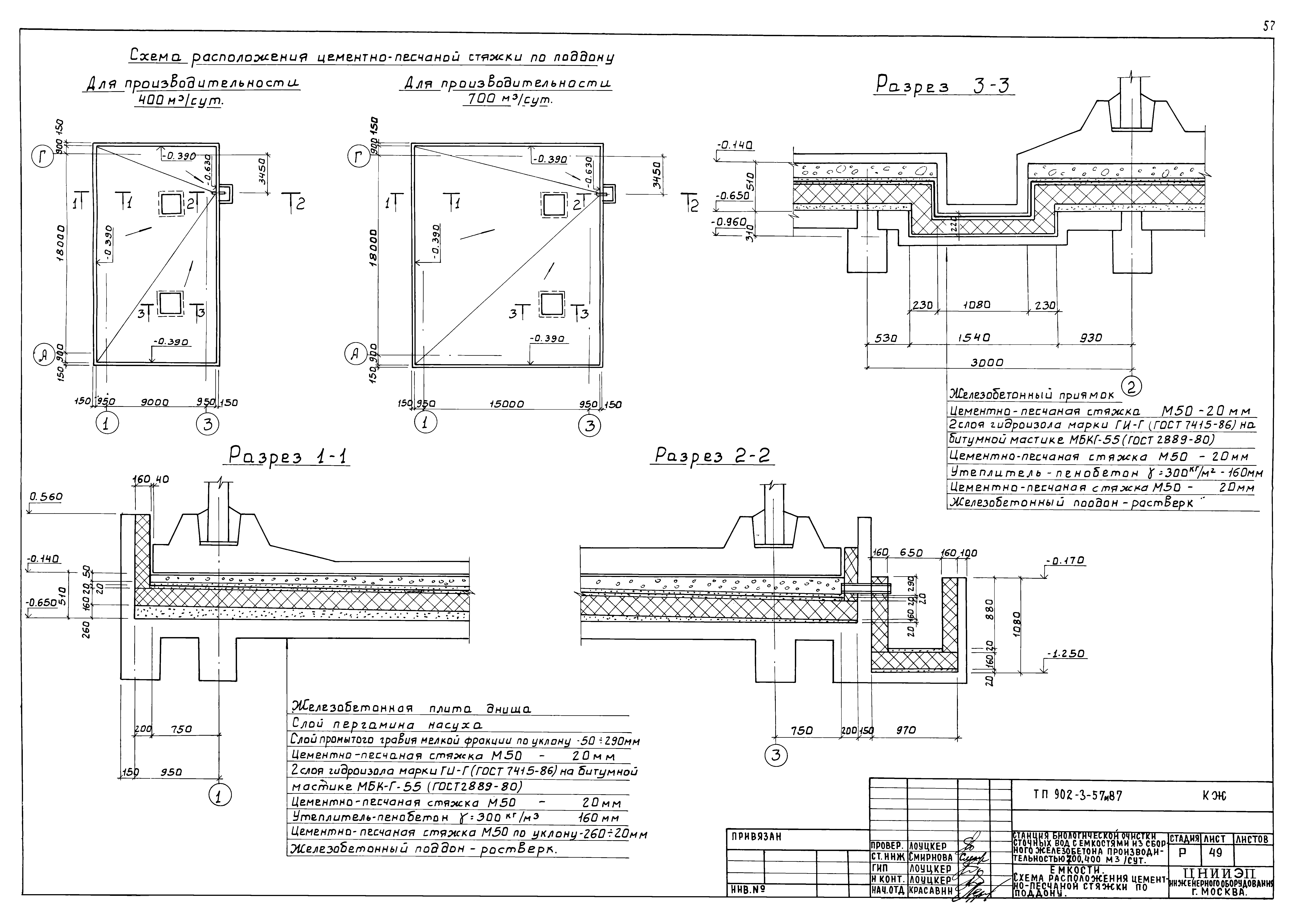
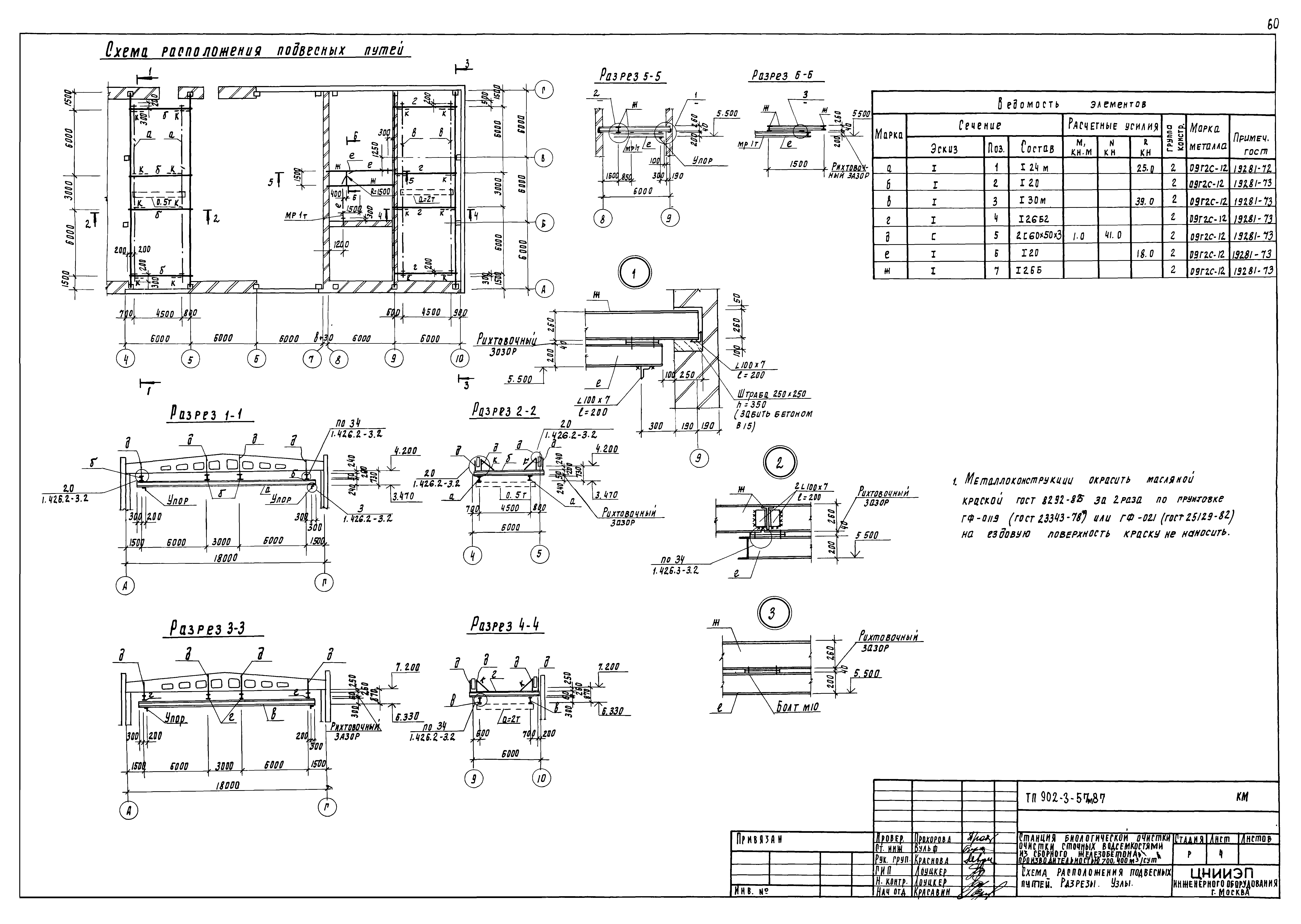
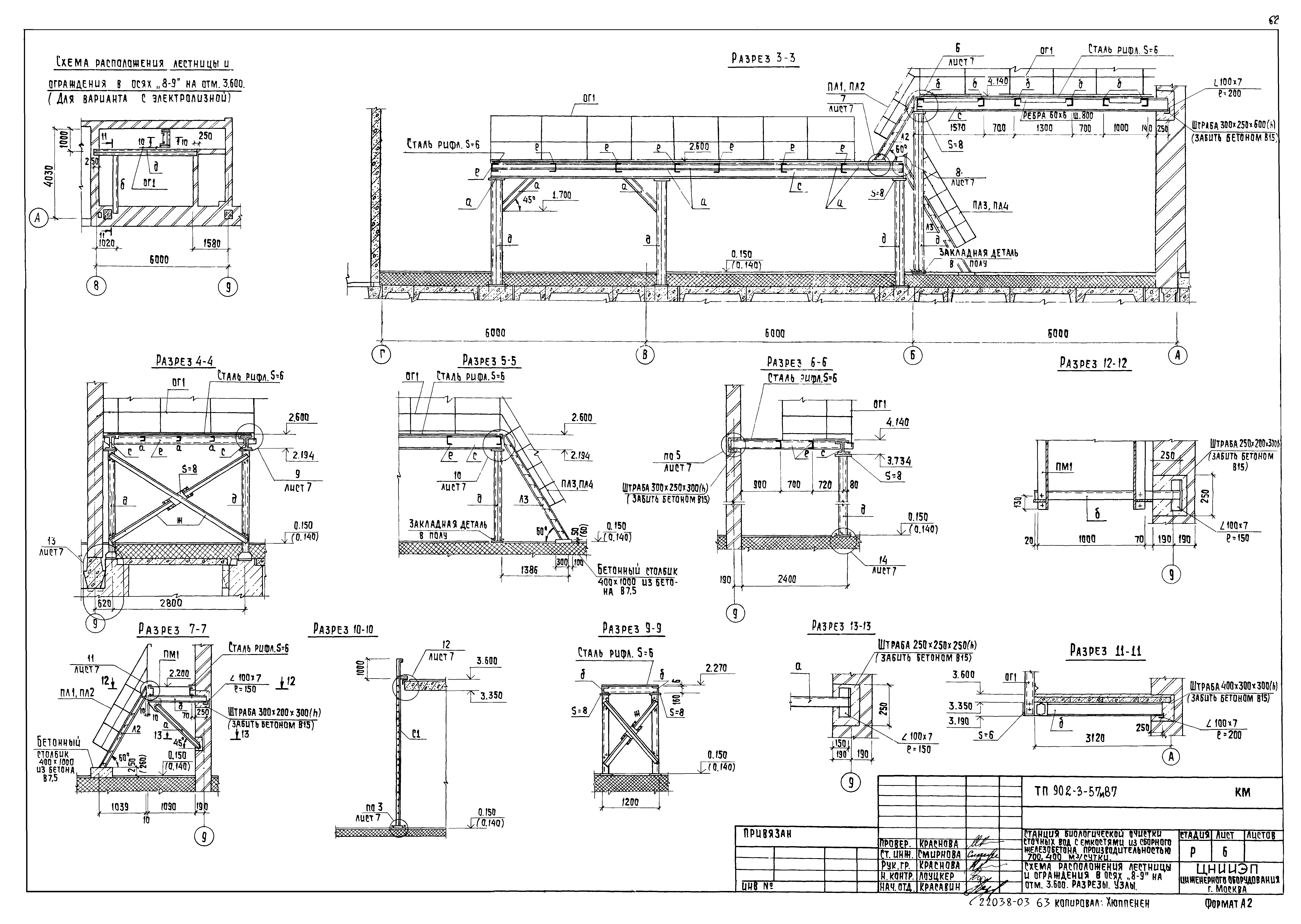
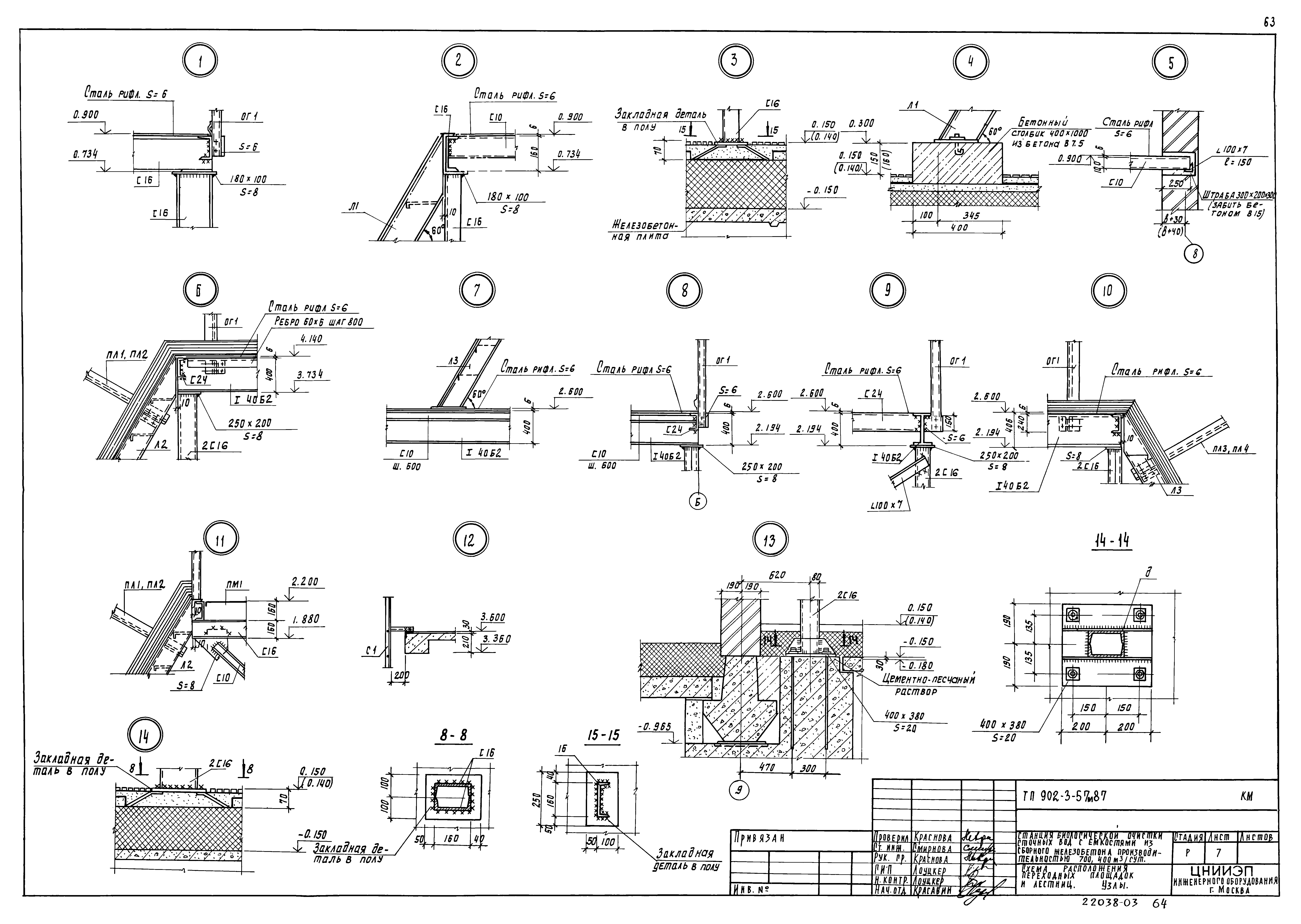
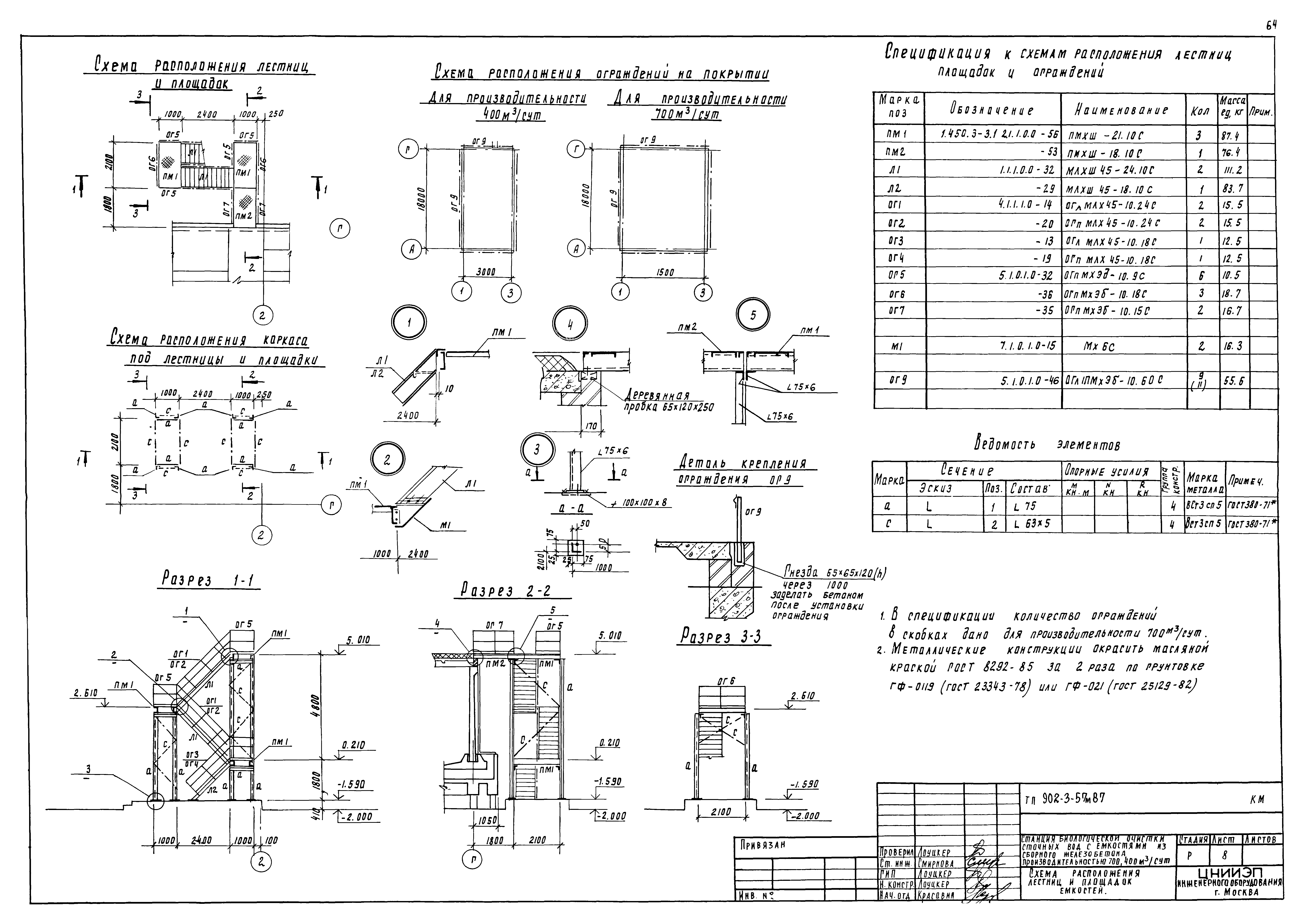
| Оглавление: | ТП 902-3-57М87 Содержание альбома ТП 902-3-57М87-АР Архитектурные решения ТП 902-3-57М87-АР-1 Общие данные ТП 902-3-57М87-АР-2 План ТП 902-3-57М87-АР-3 Разрезы 1-1÷3-3 ТП 902-3-57М87-АР-4 Фасады 1-10;А-Г;10-1;Г-А ТП 902-3-57М87-АР-5 План отверстий и перемычек. Ведомости отверстий и перемычек. Спецификация перемычек ТП 902-3-57М87-АР-6 План кровли. План полов. Экспликация полов. Ведомость отделки помещений ТП 902-3-57М87-КЖ Конструкции железобетонные ТП 902-3-57М87-КЖ-1 Общие данные (начало) ТП 902-3-57М87-КЖ-2 Общие данные (окончание) ТП 902-3-57М87-КЖ-3 Схема расположения свай для производительности 400 м³/сутки ТП 902-3-57М87-КЖ-4 Схема расположения свай для производительности 700 м³/сутки ТП 902-3-57М87-КЖ-5 Деталь положения сваи на геологическом разрезе. Спецификация ТП 902-3-57М87-КЖ-6 Схема расположения монолитных ростверков и фундаментных балок ТП 902-3-57М87-КЖ-7 Схема расположения монолитных ростверков и фундаментных балок. Узлы 1-8 ТП 902-3-57М87-КЖ-8 Монолитные ростверки РМ1-РМ9. Армирование ТП 902-3-57М87-КЖ-9 Монолитные ростверки РМ10-РМ25. Армирование ТП 902-3-57М87-КЖ-10 Монолитные ростверки. Армирование. Спецификация ТП 902-3-57М87-КЖ-11 Монолитные ростверки. Армирование. Спецификация. Выборка стали ТП 902-3-57М87-КЖ-12 Схема расположения плит перекрытий и ригелей над подпольем ТП 902-3-57М87-КЖ-13 Схема расположения плит перекрытия и ригелей над подпольем. Разрезы 1-1÷16-16 ТП 902-3-57М87-КЖ-14 Схема расположения плит перекрытия и ригелей над подпольем. Разрезы 17-17÷20-20 ТП 902-3-57М87-КЖ-15 Схема расположения плит перекрытия и ригелей над подпольем. Монолитные участки. Армирование ТП 902-3-57М87-КЖ-16 Схема расположения плит перекрытия и ригелей над подпольем. Спецификация ТП 902-3-57М87-КЖ-17 Схема расположения фундаментов под оборудование и приямков ТП 902-3-57М87-КЖ-18 Фундаменты под оборудование ТП 902-3-57М87-КЖ-19 Схема расположения колонн и балок покрытия. Разрезы. Узлы 1;2 ТП 902-3-57М87-КЖ-20 Схема расположения колонн и балок покрытия. Узлы 3-5. Спецификация ТП 902-3-57М87-КЖ-21 Схема расположения плит покрытия ТП 902-3-57М87-КЖ-22 Схема расположения плит перекрытия ТП 902-3-57М87-КЖ-23 Схема расположения стеновых панелей. Спецификация ТП 902-3-57М87-КЖ-24 Схема расположения стеновых панелей. Узлы. Спецификация ТП 902-3-57М87-КЖ-25 Приточная венткамера ТП 902-3-57М87-КЖ-26 Емкости. Схема расположения стеновых панелей ТП 902-3-57М87-КЖ-27 Емкости. Схема расположения лотков и обвязочных балок ТП 902-3-57М87-КЖ-28 Емкости. Схема расположения плит покрытий ТП 902-3-57М87-КЖ-29 Емкости. Схема расположения стеновых панелей. Разрезы 1-1÷4-4 ТП 902-3-57М87-КЖ-30 Емкости. Узлы 1-5,А ТП 902-3-57М87-КЖ-31 Емкости. Узлы 6-7. Щиты Щ1;Щ2;Щ3 ТП 902-3-57М87-КЖ-32 Емкости. Спецификация к схемам расположения панелей, лотков и обвязочных балок, плит покрытия ТП 902-3-57М87-КЖ-33 Емкости. Схема расположения набетонки в отстойнике и илоуплотнители ТП 902-3-57М87-КЖ-34 Емкости. Днище. Опалубочный чертеж. План. Разрез 1-1 ТП 902-3-57М87-КЖ-35 Емкости. Днище. Опалубочный чертеж. Разрез 2-2÷4-4. Узлы ТП 902-3-57М87-КЖ-36 Емкости. Днище. Армирование. Схема расположения нижних сеток. Разрез 1-1 ТП 902-3-57М87-КЖ-37 Емкости. Днище. Армирование. Схема расположения верхних сеток. Разрез 2-2 ТП 902-3-57М87-КЖ-38 Емкости. Днище. Армирование. Разрезы 3-3;4-4. Узлы ТП 902-3-57М87-КЖ-39 Емкости. Днище. Армирование. Спецификации ТП 902-3-57М87-КЖ-40 Емкости. Монолитные участки УМЕ1-УМЕ12;БМ1. Опалубочный чертеж ТП 902-3-57М87-КЖ-41 Емкости. Монолитные участки УМЕ1-УМЕ4. Армирование ТП 902-3-57М87-КЖ-42 Емкости. Монолитные участки УМЕ1-УМЕ12;БМЕ1. Армирование ТП 902-3-57М87-КЖ-43 Емкости. Монолитные участки УМЕ1-УМЕ12;БМЕ1. Спецификация ТП 902-3-57М87-КЖ-44 Емкости. Схема расположения утепляющих панелей ТП 902-3-57М87-КЖ-45 Емкости. Схема расположения утепляющих панелей. Разрезы. Узлы ТП 902-3-57М87-КЖ-46 Емкости. Схема расположения железобетонного ростверка ТП 902-3-57М87-КЖ-47 Емкости. Схема расположения железобетонного ростверка. Разрезы 1-1÷4-4. Узлы 1-6 ТП 902-3-57М87-КЖ-48 Емкости. Железобетонный ростверка РМ1-РМ4. Армирование ТП 902-3-57М87-КЖ-49 Емкости. Схема расположения цементно-песчной стяжки по поддону ТП 902-3-57М87-КМ Конструкции металлические ТП 902-3-57М87-КМ-1 Общие данные (начало). Техническая спецификация стали ТП 902-3-57М87-КМ-2 Общие данные (продолжение). Техническая спецификация стали на типовые конструкции ТП 902-3-57М87-КМ-3 Общие данные (окончание). Ведомость металлоконструкций по видам профилей ТП 902-3-57М87-КМ-4 Схема расположения подвесного пути ТП 902-3-57М87-КМ-5 Схема расположения переходных площадок и лестниц. Разрезы ТП 902-3-57М87-КМ-6 Схема расположения лестницы и ограждения в осях "8-9" на отм. 3.600. Разрезы. Узлы ТП 902-3-57М87-КМ-7 Схема расположения переходных площадок и лестниц. Узлы ТП 902-3-57М87-КМ-8 Схема расположения лестниц и площадок емкостей ТП 902-3-57М87-КМ-9 Схема расположения опор под трубопроводы. Разрезы ТП 902-3-57М87-ОС Организация строительства ТП 902-3-57М87-ОС-1 Схема стройгенплана на возведение наземной части здания ТП 902-3-57М87-ОС-2 График производства работ (начало) ТП 902-3-57М87-ОС-3 График производства работ (окончание) |
| Разработан: | ЦНИИЭП инженерного оборудования |
| Утверждён: | 15.12.1986 Госгражданстрой (Gosgrazhdanstroy 422) |
| Издан: | ЦИТП Госстроя СССР (CITP, Gosstroy (USSR) 1988 г. ) |





































































