Скачать Типовой проект 902-3-57м.87 Альбом VI. Нестандартизированное оборудование. Эскизные чертежи общих видовДата актуализации: 01.01.2021
|
| Обозначение: | Типовой проект 902-3-57м.87 |
| Обозначение англ: | 902-3-57м.87 |
| Статус: | не определен законодательством |
| Название рус.: | Альбом VI. Нестандартизированное оборудование. Эскизные чертежи общих видов |
| Дата добавления в базу: | 01.09.2013 |
| Дата актуализации: | 01.01.2021 |
| Дата введения: | 15.12.1986 |
| Дата окончания срока действия: | 30.06.2003 |
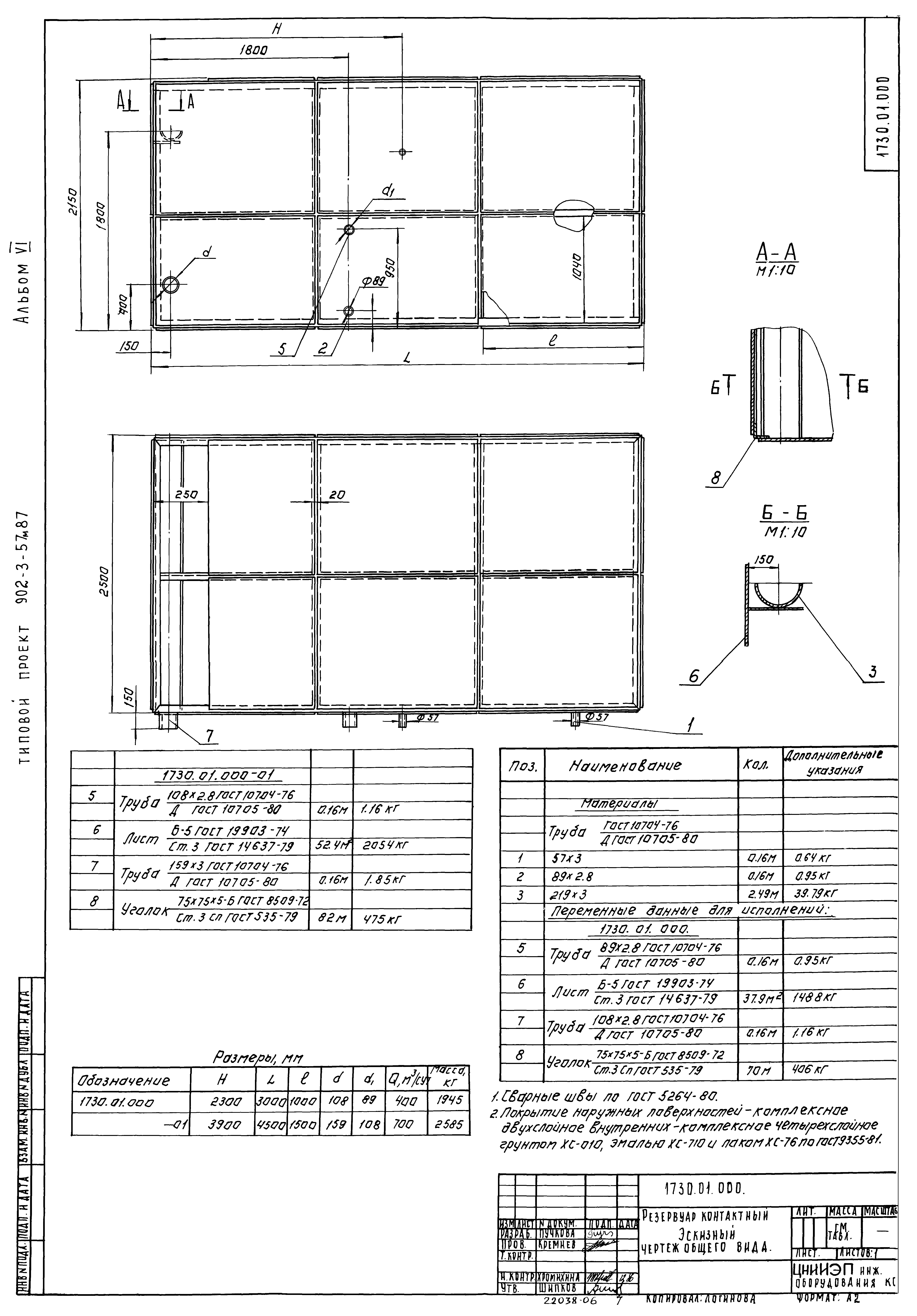
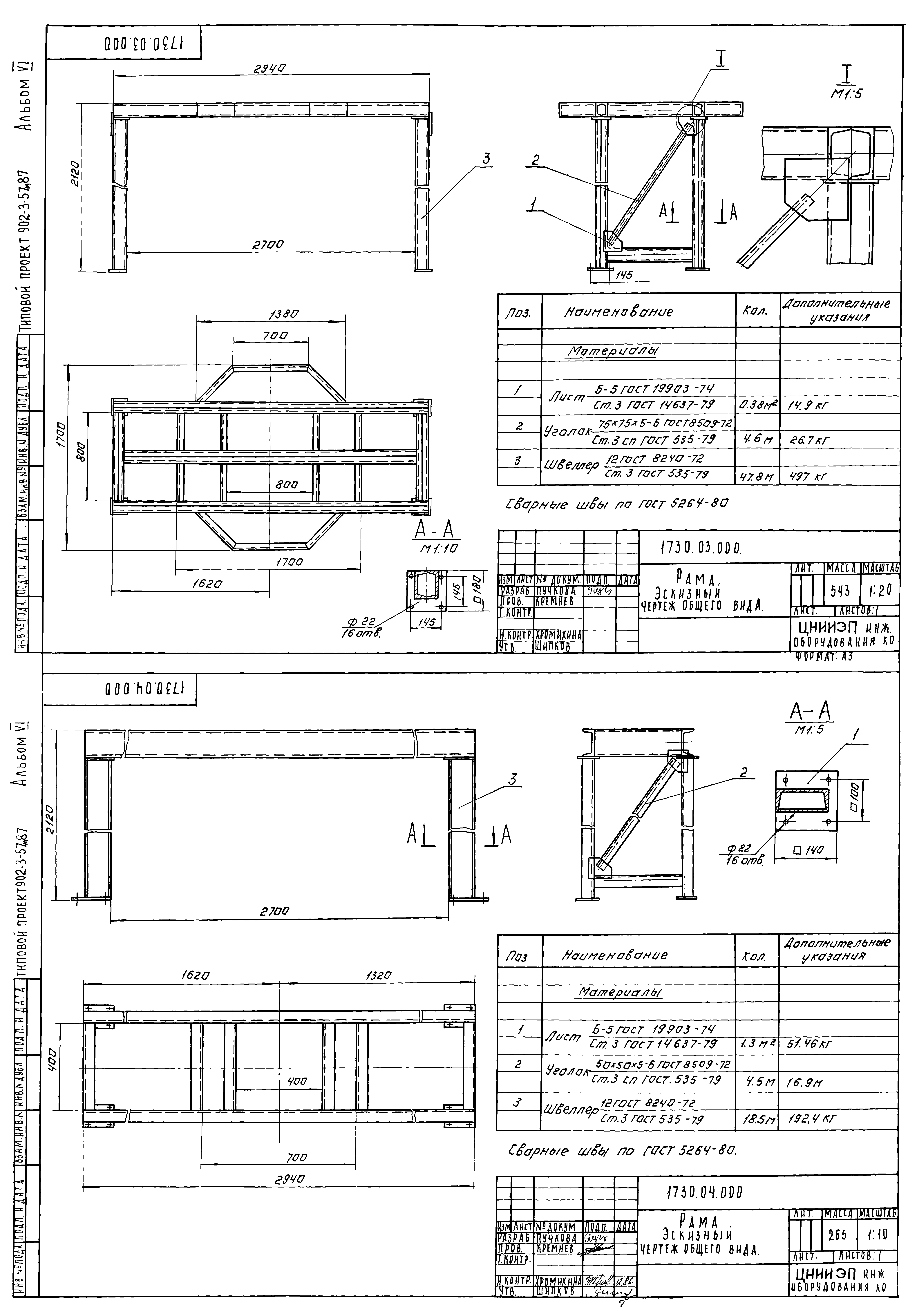
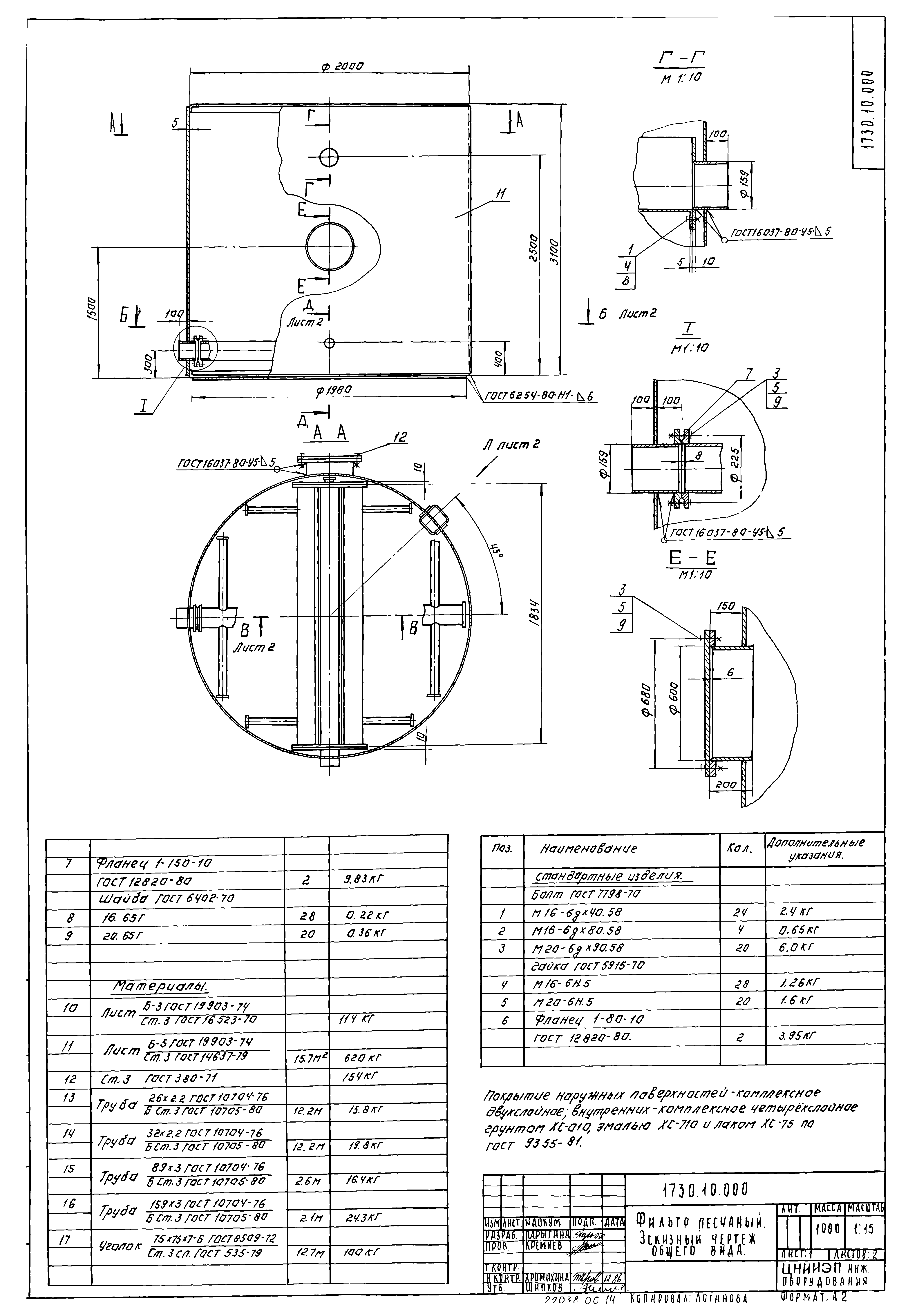
| Оглавление: | ТП 902-3-57м87 Обложка ТП 902-3-57м87 Титульный лист ТП 902-3-57м87 Содержание альбома ТП 902-3-57м87 1729.08.000 Бак уплотненного ила ТП 902-3-57м87 1729.09.000 Бак фугата ТП 902-3-57м87 1729.10.000 Решетка ручная ТП 902-3-57м87 1729.11.000 Элемент полочного модуля ТП 902-3-57м87 1729.12.000 Элемент полочного модуля ТП 902-3-57м87 1730.01.000 Резервуар контактный ТП 902-3-57м87 1730.02.000 Резервуар контактный ТП 902-3-57м87 1730.03.000 Рама ТП 902-3-57м87 1730.04.000 Рама ТП 902-3-57м87 1730.05.000 Эрлифт ТП 902-3-57м87 1730.06.000 Камера иловая ТП 902-3-57м87 1730.07.000 Распределитель ТП 902-3-57м87 1730.08.000 Песколовка ТП 902-3-57м87 1730.09.000 Дегельминтизатор ТП 902-3-57м87 1730.10.000 Фильтр песчаный. Лист 1 ТП 902-3-57м87 1730.10.000 Фильтр песчаный. Лист 2 ТП 902-3-57м87 1730.11.000 Камера входная ТП 902-3-57м87 1730.12.000 Камера входная ТП 902-3-57м87 1730.13.000 Контейнер для кека |
| Разработан: | ЦНИИЭП инженерного оборудования |
| Утверждён: | 15.12.1986 Госгражданстрой (Gosgrazhdanstroy 422) |
| Издан: | ЦИТП Госстроя СССР (CITP, Gosstroy (USSR) 1988 г. ) |

















