Скачать Типовой проект 902-3-56м.87 Альбом II. Технологические решения. Отопление и вентиляция. Внутренний водопровод и канализацияДата актуализации: 01.01.2021
|
| Обозначение: | Типовой проект 902-3-56м.87 |
| Обозначение англ: | 902-3-56м.87 |
| Статус: | не определен законодательством |
| Название рус.: | Альбом II. Технологические решения. Отопление и вентиляция. Внутренний водопровод и канализация |
| Дата добавления в базу: | 01.09.2013 |
| Дата актуализации: | 01.01.2021 |
| Дата введения: | 15.12.1986 |
| Дата окончания срока действия: | 30.06.2003 |
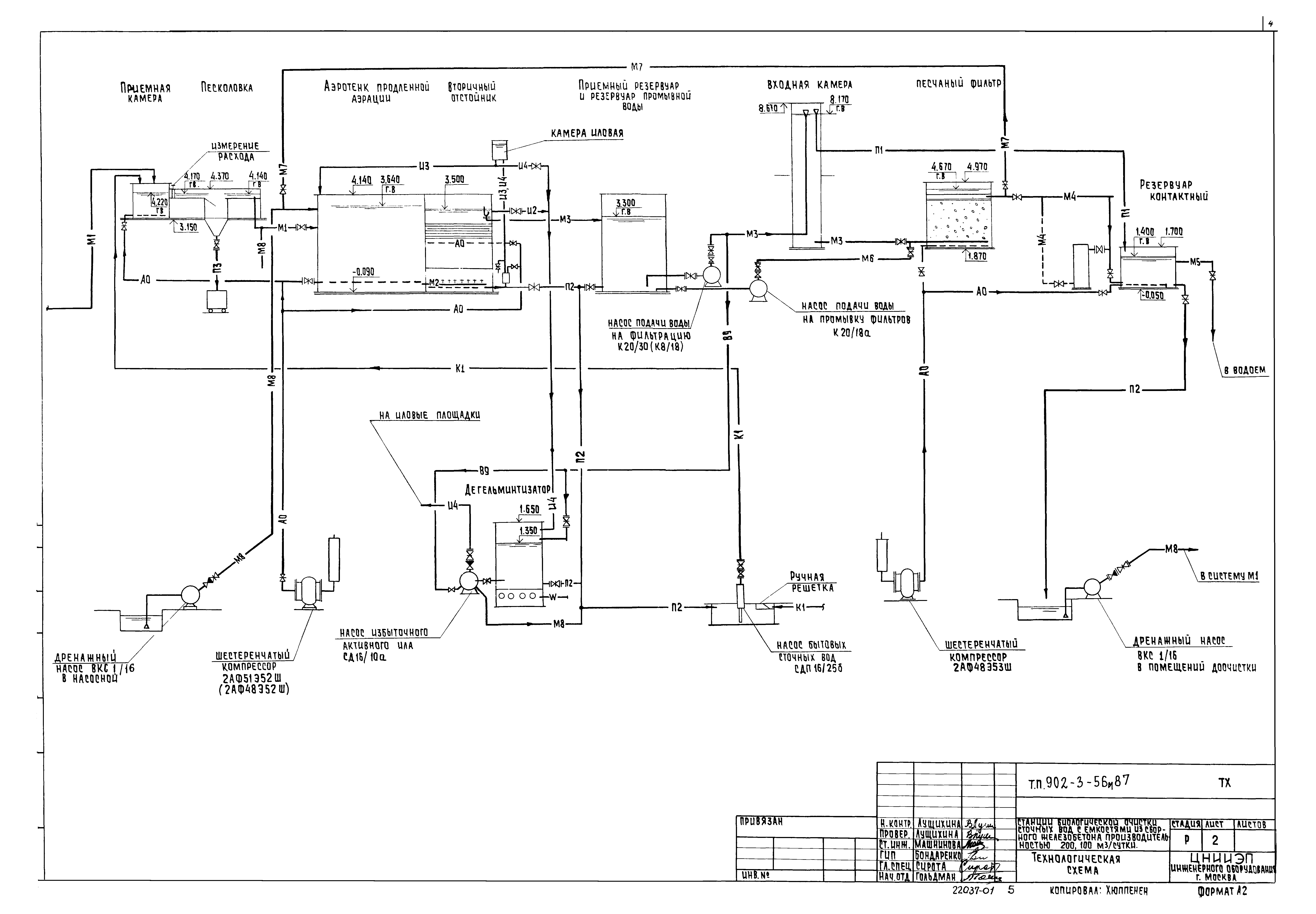
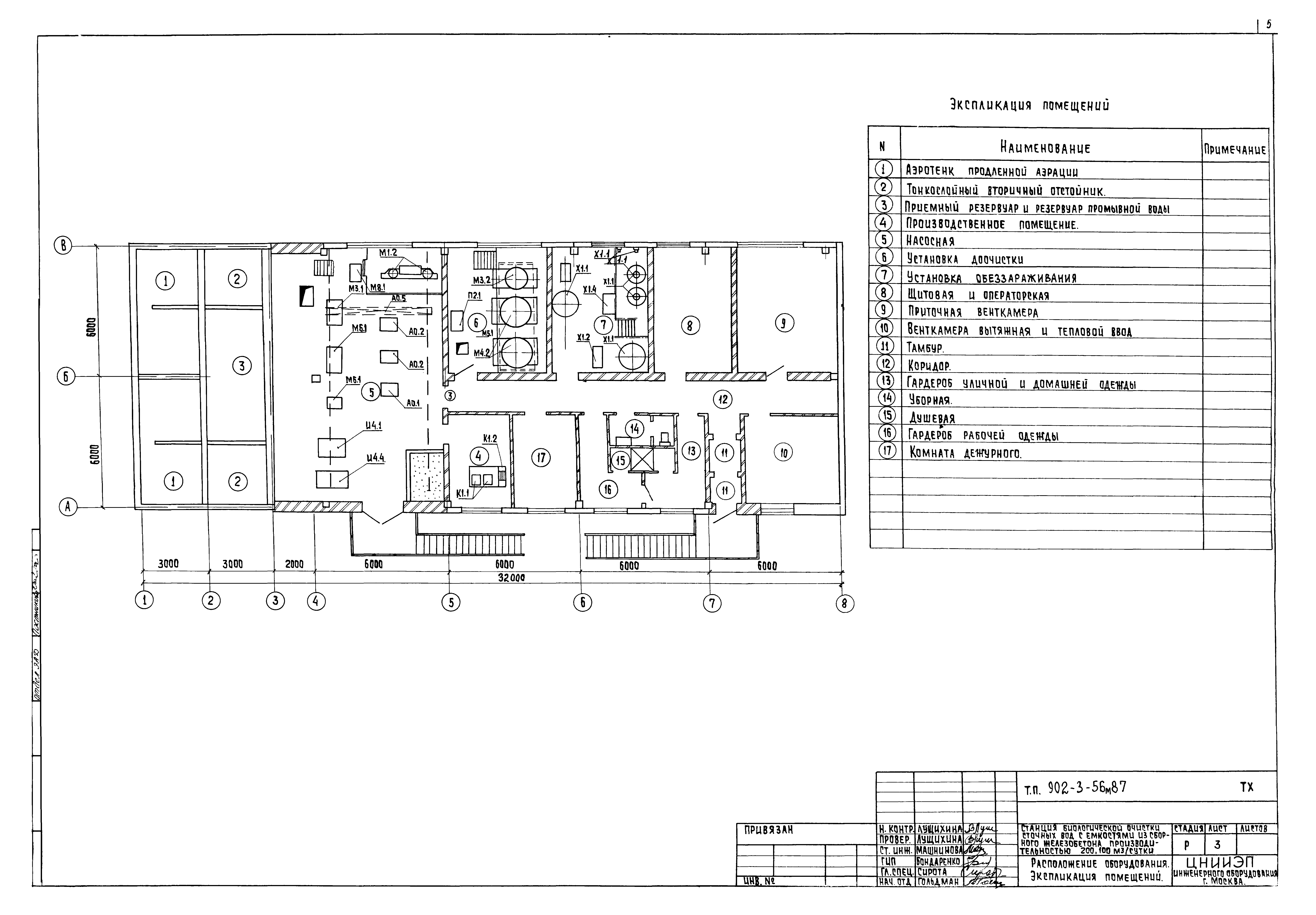
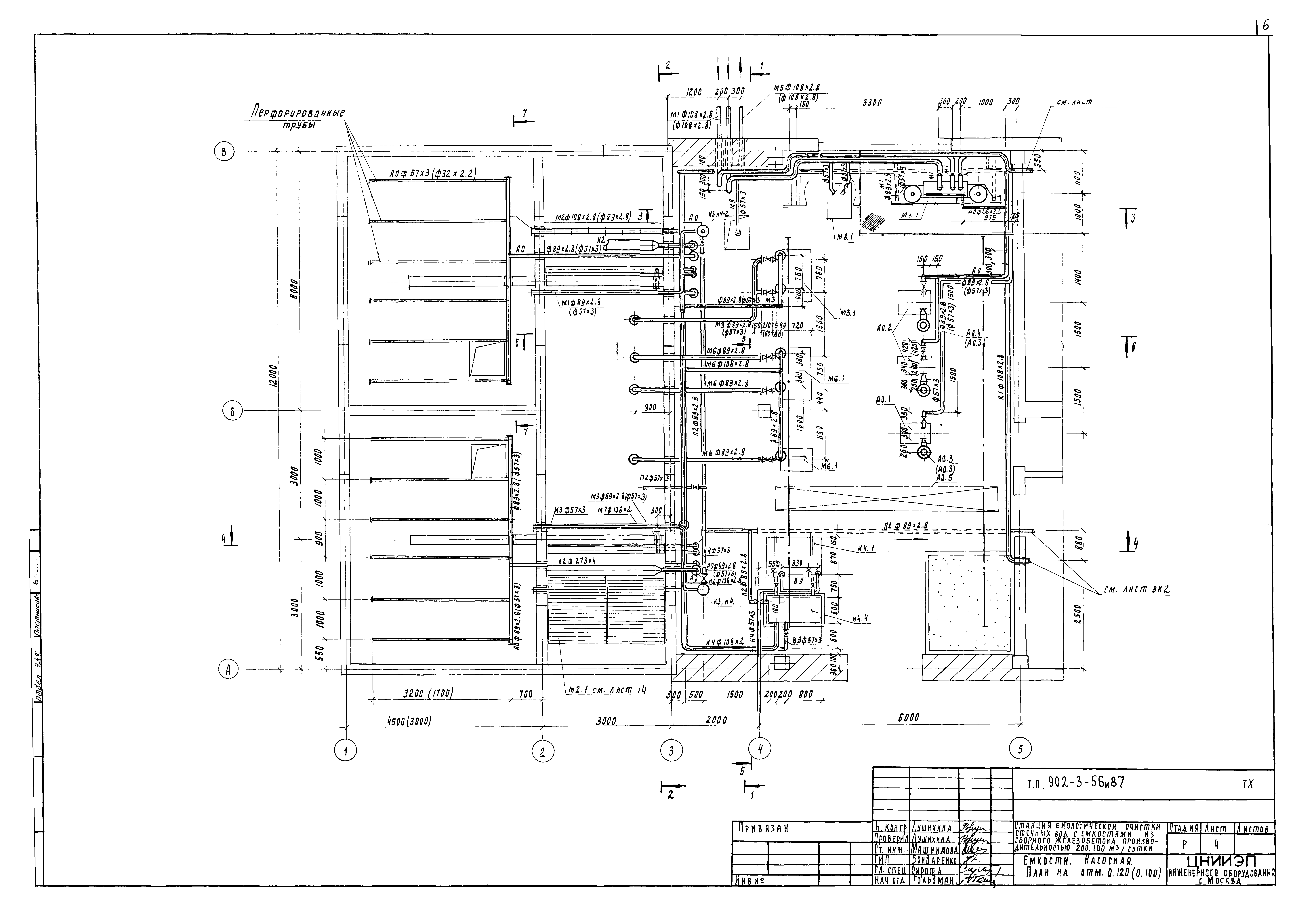
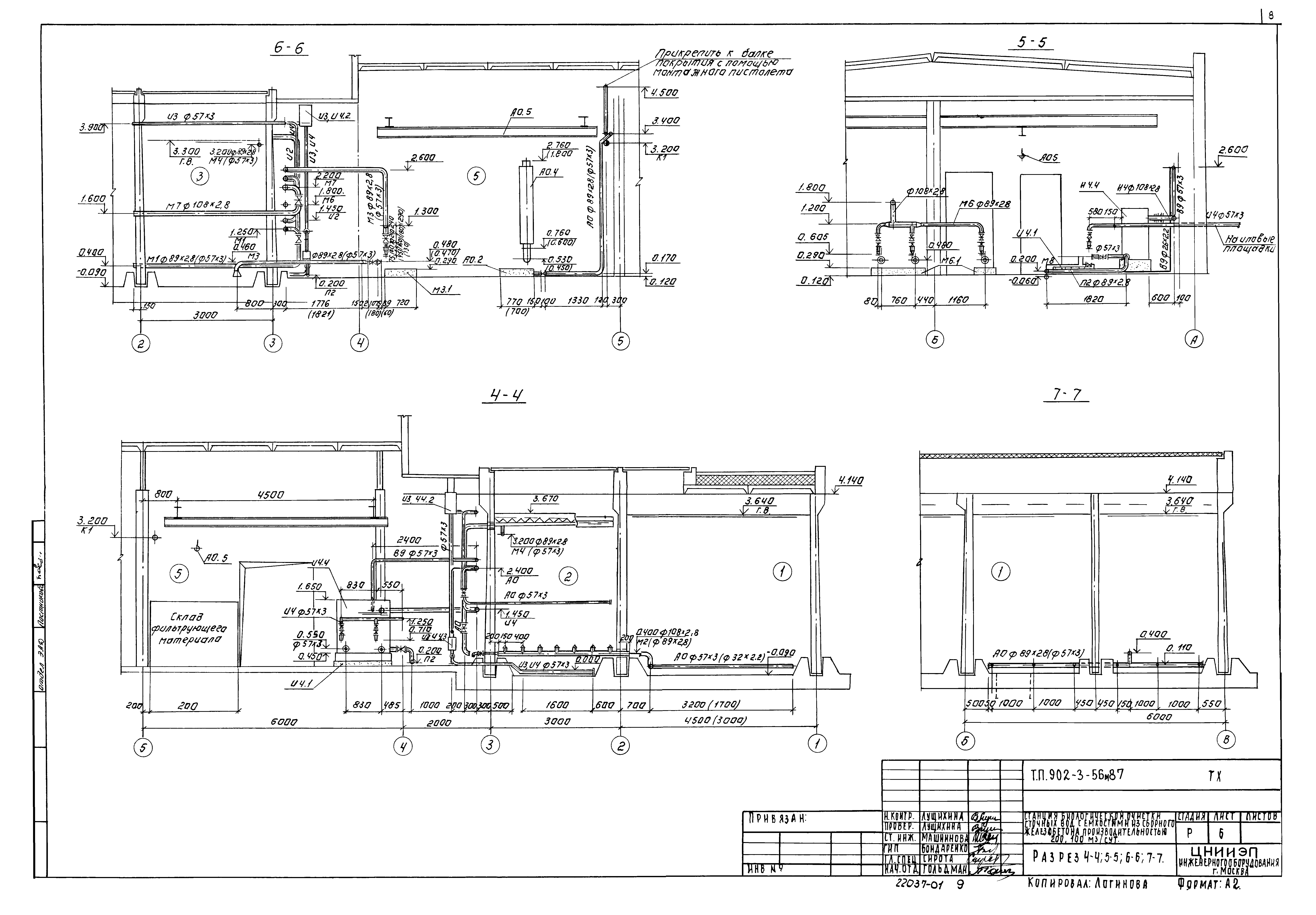
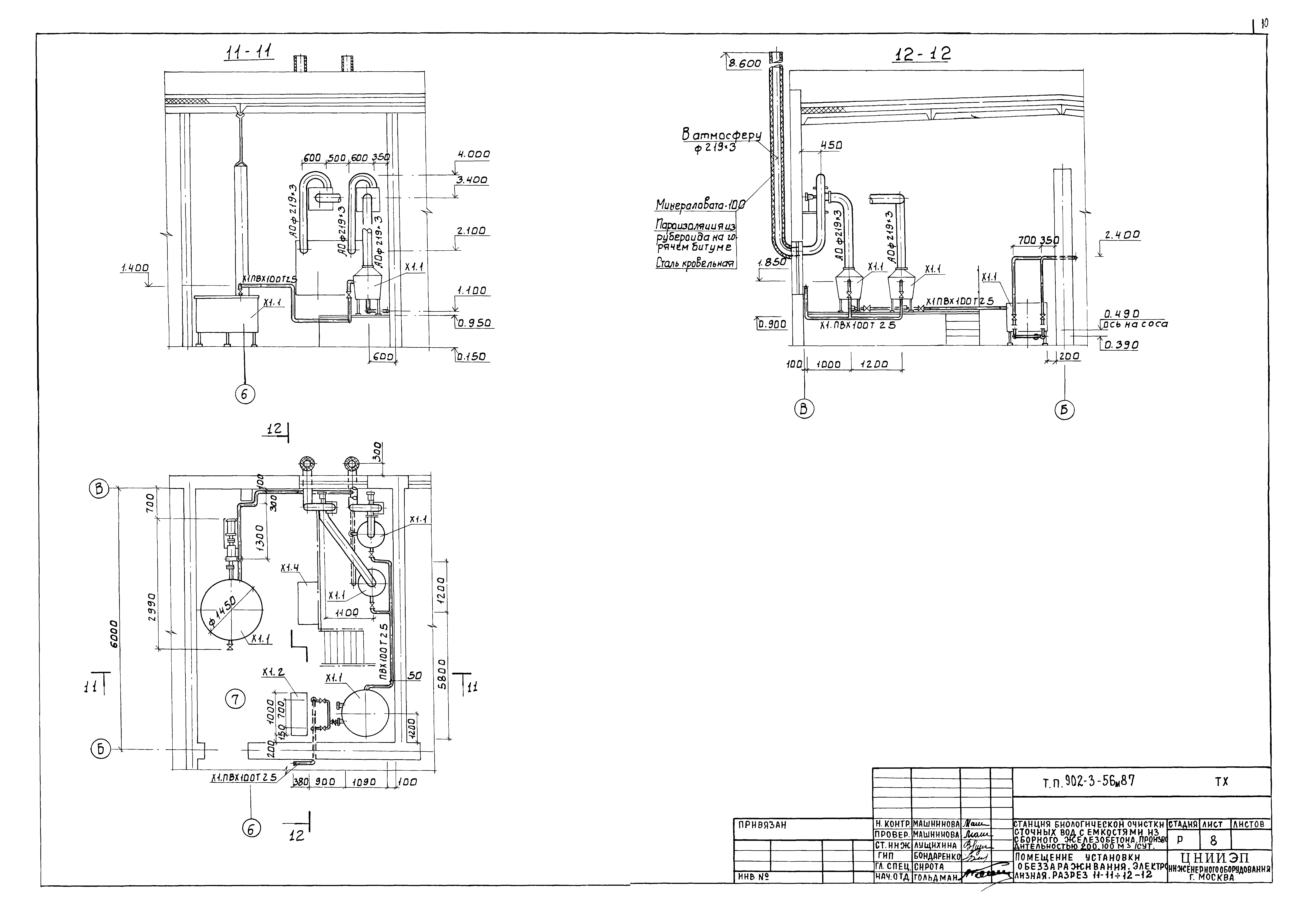
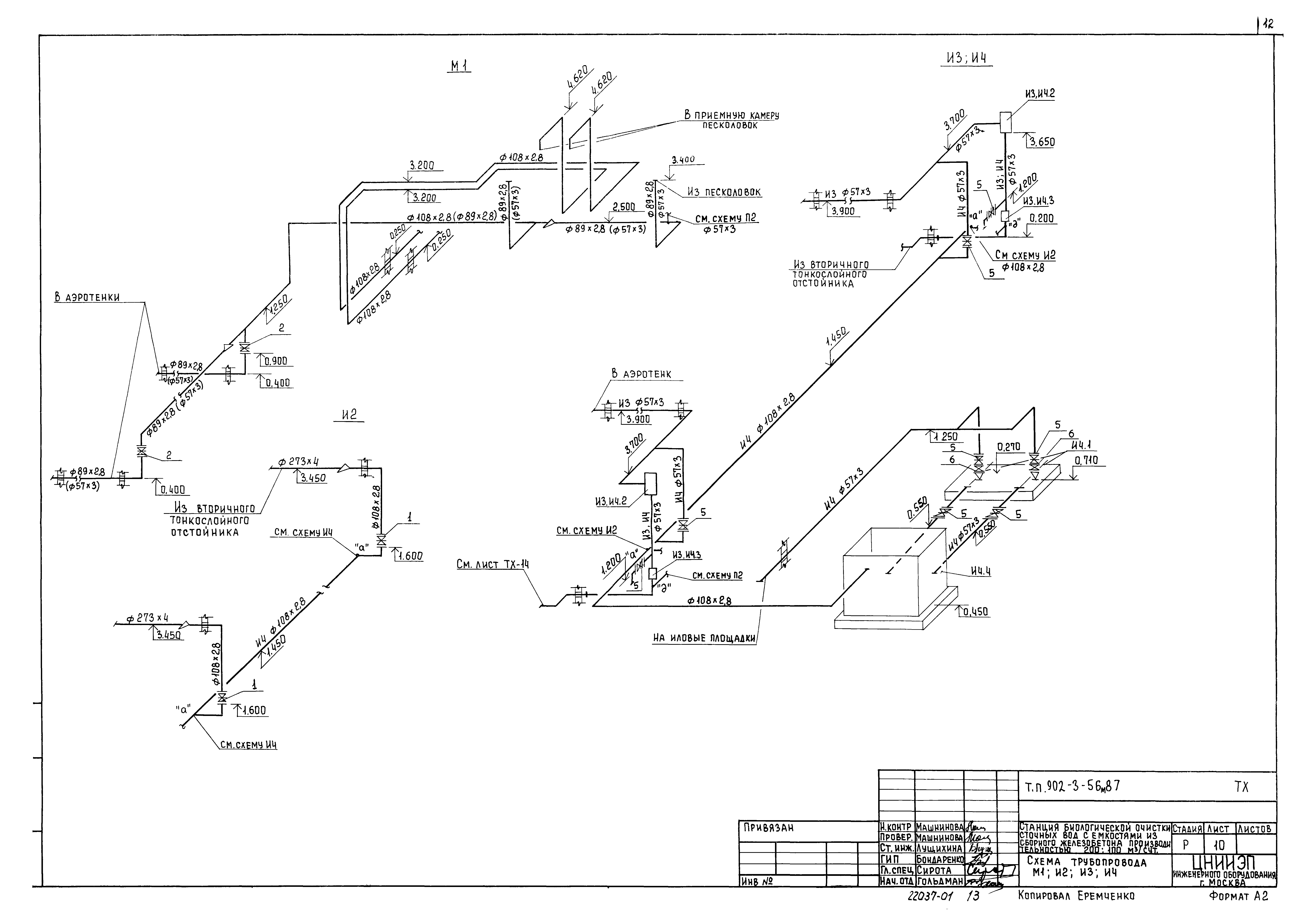
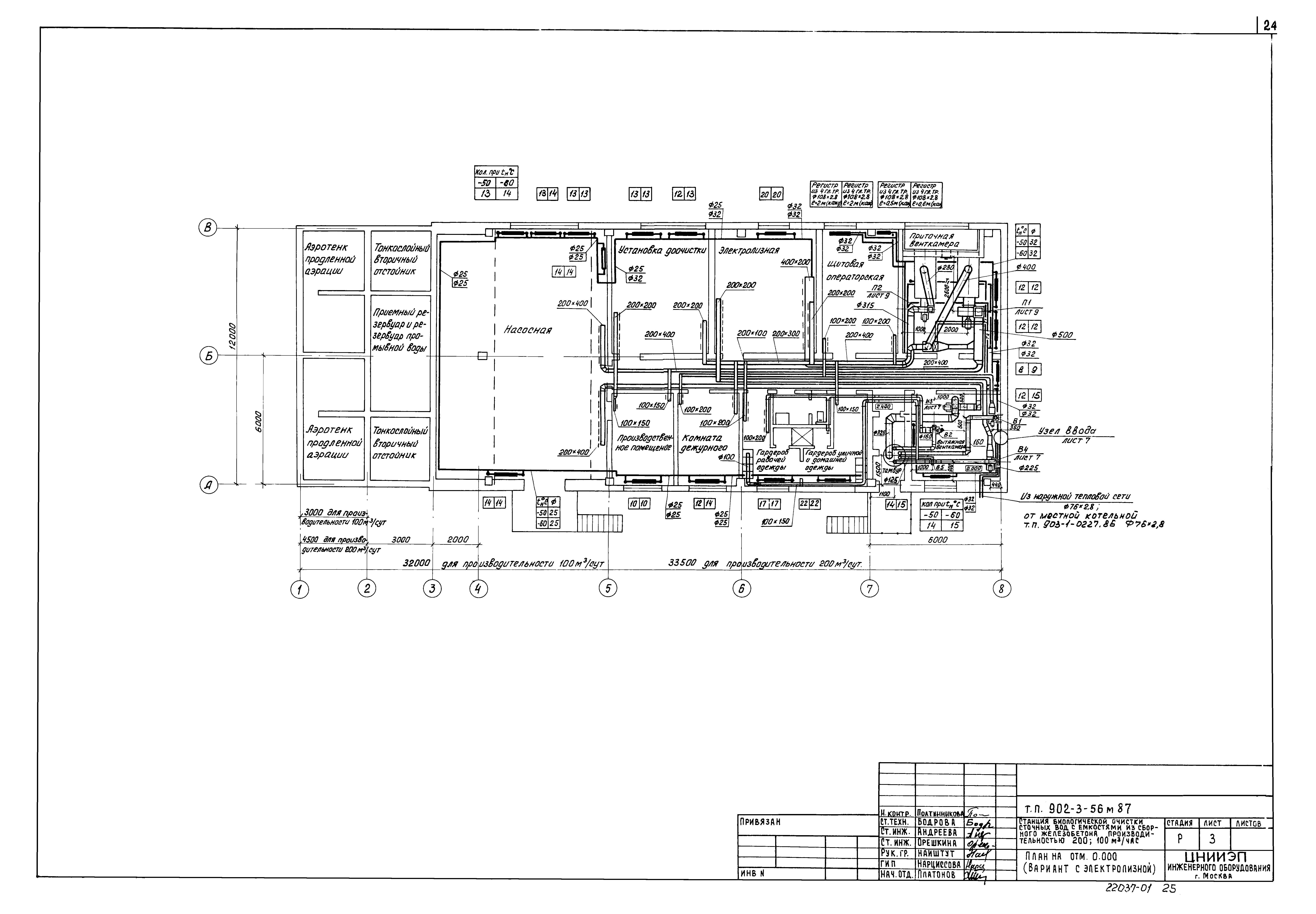
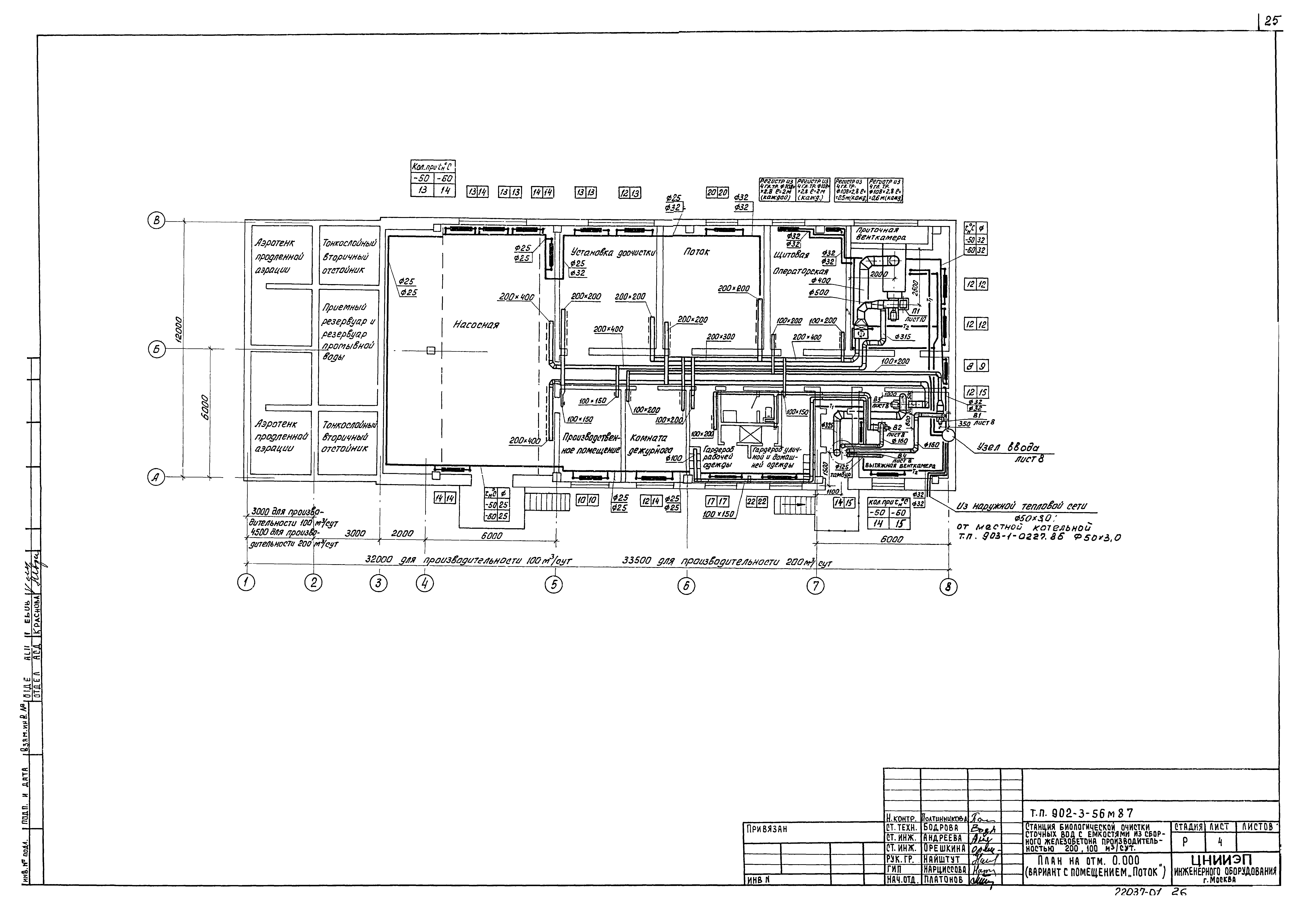
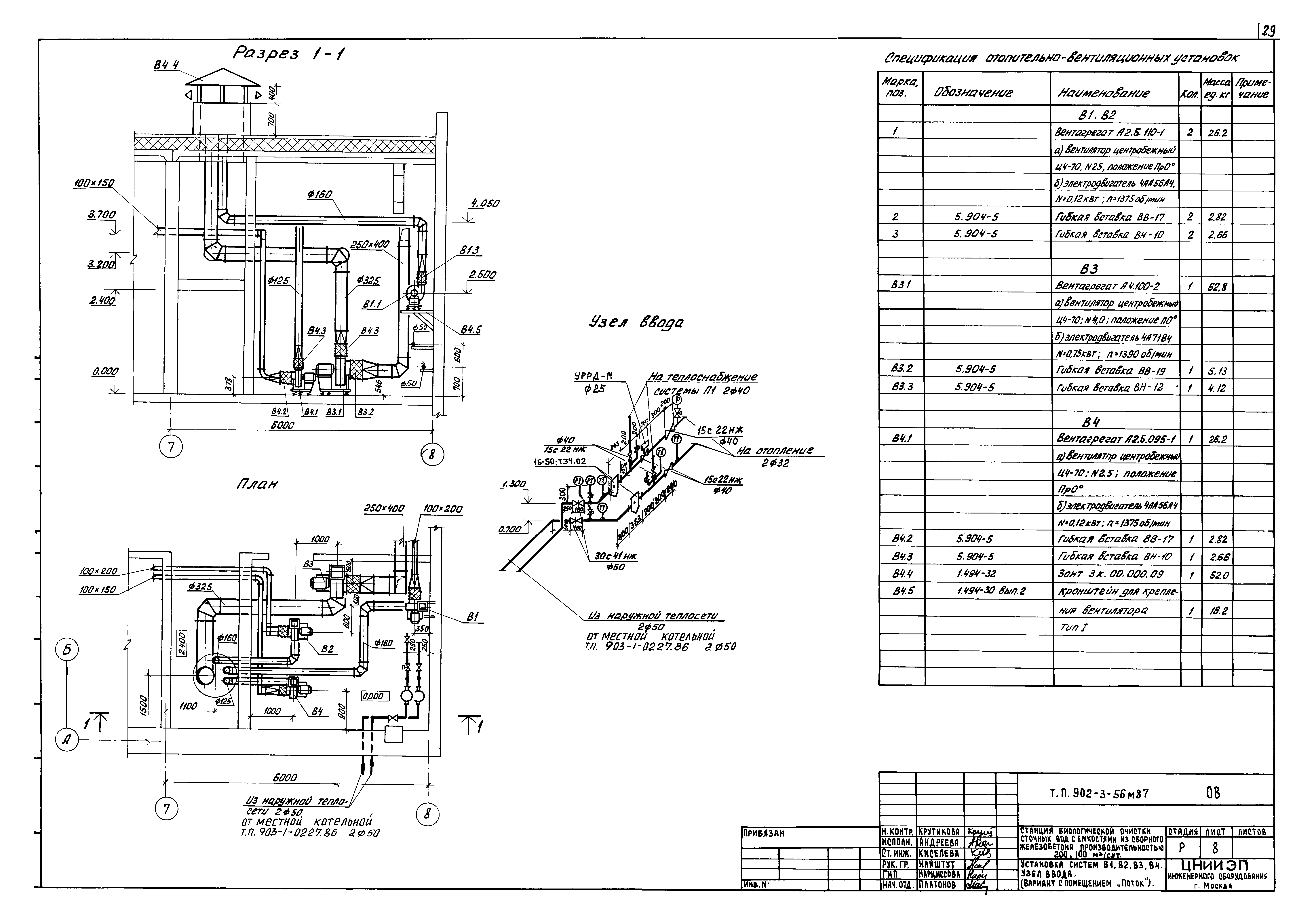
| Оглавление: | ТП 902-3-57м87 Содержание альбома ТП 902-3-57м87-ТХ Технологические решения ТП 902-3-57м87-ТХ-1 Общие данные ТП 902-3-57м87-ТХ-2 Технологическая схема ТП 902-3-57м87-ТХ-3 Расположения оборудования. Экспликация помещений ТП 902-3-57м87-ТХ-4 Емкости. Насосная. План на отм. 0.000 ТП 902-3-57м87-ТХ-5 Разрез 1-1;2-2;3-3 ТП 902-3-57м87-ТХ-6 Разрез 4-4;5-5;6-6;7-7 ТП 902-3-57м87-ТХ-7 Установка доочистки. План. Разрезы 8-8;9-9;10-10 ТП 902-3-57м87-ТХ-8 Помещение установки обеззараживания. Электролизная. План. Разрез 11-11;12-13 ТП 902-3-57м87-ТХ-9 Помещение установки обеззараживания. Установка "Поток". План. Разрез 13-13;14-14 ТП 902-3-57м87-ТХ-10 Схема трубопровода М1;И2;И3;И4 ТП 902-3-57м87-ТХ-11 Схема трубопровода М3;М4;П1 ТП 902-3-57м87-ТХ-12 Схема трубопровода АО;М5 ТП 902-3-57м87-ТХ-13 Схема трубопровода М4;Х1 ТП 902-3-57м87-ТХ-14 Схема трубопровода М6;М7 ТП 902-3-57м87-ТХ-15 Схема трубопровода П2;П3;М8;В9 ТП 902-3-57м87-ТХ-16 Установка полочного модуля ТП 902-3-57м87-ТХ-17 Фильтр песчанный ø1500 мм. План. Разрез 17-17;18-18 ТП 902-3-57м87-ТХ-18 Производительность 200 м³/сут. Установка песчаных фильтров входной камеры ТП 902-3-57м87-ТХ-19 Производительность 100 м³/сут. Установка песчаных фильтров и входной камеры ТП 902-3-57м87-ОВ Санитарно-технические решения ТП 902-3-57м87-ОВ-1 Общие данные (начало) ТП 902-3-57м87-ОВ-2 Общие данные (окончание) ТП 902-3-57м87-ОВ-3 План на отм. 0.000 (вариант с помещением "электролизная") ТП 902-3-57м87-ОВ-4 План на отм. 0.000 (вариант с помещением "Поток") ТП 902-3-57м87-ОВ-5 Схема системы отопления ТП 902-3-57м87-ОВ-6 Схемы систем вентиляции П1;П2;В1-В5 ТП 902-3-57м87-ОВ-7 Установка систем В1-В5. Узел ввода (вариант с электролизной) ТП 902-3-57м87-ОВ-8 Установка систем В1-В5. Узел ввода (вариант с помещением "Поток") ТП 902-3-57м87-ОВ-9 Установка систем П1,П2. Схема системы теплоснабжения установок П1;П2 (вариант с электролизной) ТП 902-3-57м87-ОВ10 Установка системы П1. Схема системы теплоснабжения установки П1 (вариант с помещением "Поток") ТП 902-3-57м87-ОВН1 Переход ТП 902-3-57м87-ОВН2 Конфузор ТП 902-3-57м87-ОВН3 Воздуховод из асбестоцементных листов ТП 902-3-57м87-ОВН4 Тепловая изоляция воздуховодов ТП 902-3-57м87-ОВН5 Тепловая изоляция трубопроводов ТП 902-3-57м87-ВК Внутренний водопровод и канализация ТП 902-3-57м87-ВК-1 Общие данные. Фрагмент плана. Разрез 1-1 ТП 902-3-57м87-ВК-2 Фрагмент кровли. Схемы трубопроводов К1;В1;К2 |
| Разработан: | ЦНИИЭП инженерного оборудования |
| Утверждён: | 15.12.1986 Госгражданстрой (Gosgrazhdanstroy 422) |
| Издан: | ЦИТП Госстроя СССР (CITP, Gosstroy (USSR) 1988 г. ) |





































