Скачать Типовой проект 902-3-56м.87 Альбом III. Архитектурно-строительные решения. Конструкции железобетонные и металлическиеДата актуализации: 01.01.2021
|
| Обозначение: | Типовой проект 902-3-56м.87 |
| Обозначение англ: | 902-3-56м.87 |
| Статус: | не определен законодательством |
| Название рус.: | Альбом III. Архитектурно-строительные решения. Конструкции железобетонные и металлические |
| Дата добавления в базу: | 01.09.2013 |
| Дата актуализации: | 01.01.2021 |
| Дата введения: | 15.12.1986 |
| Дата окончания срока действия: | 30.06.2003 |
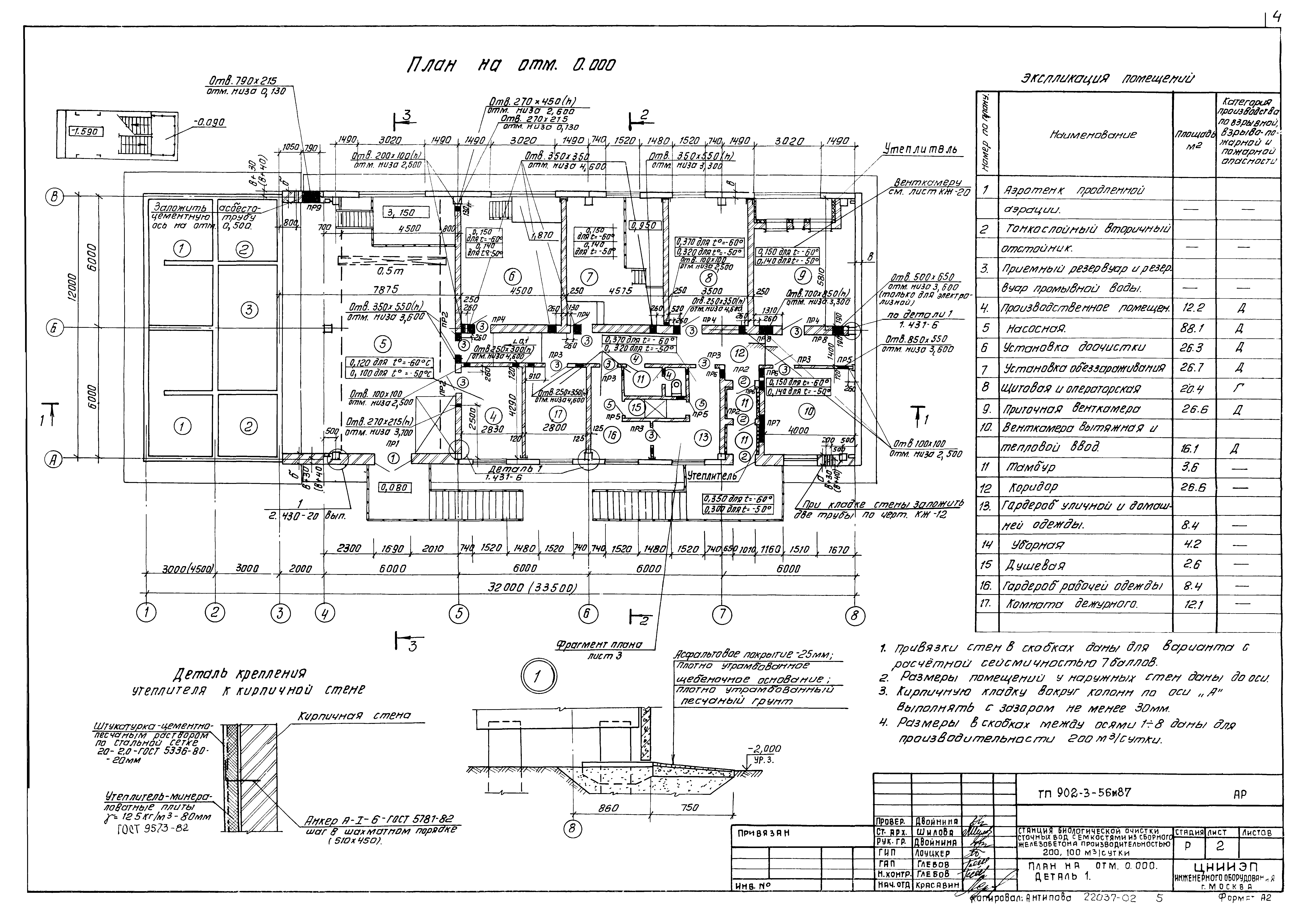
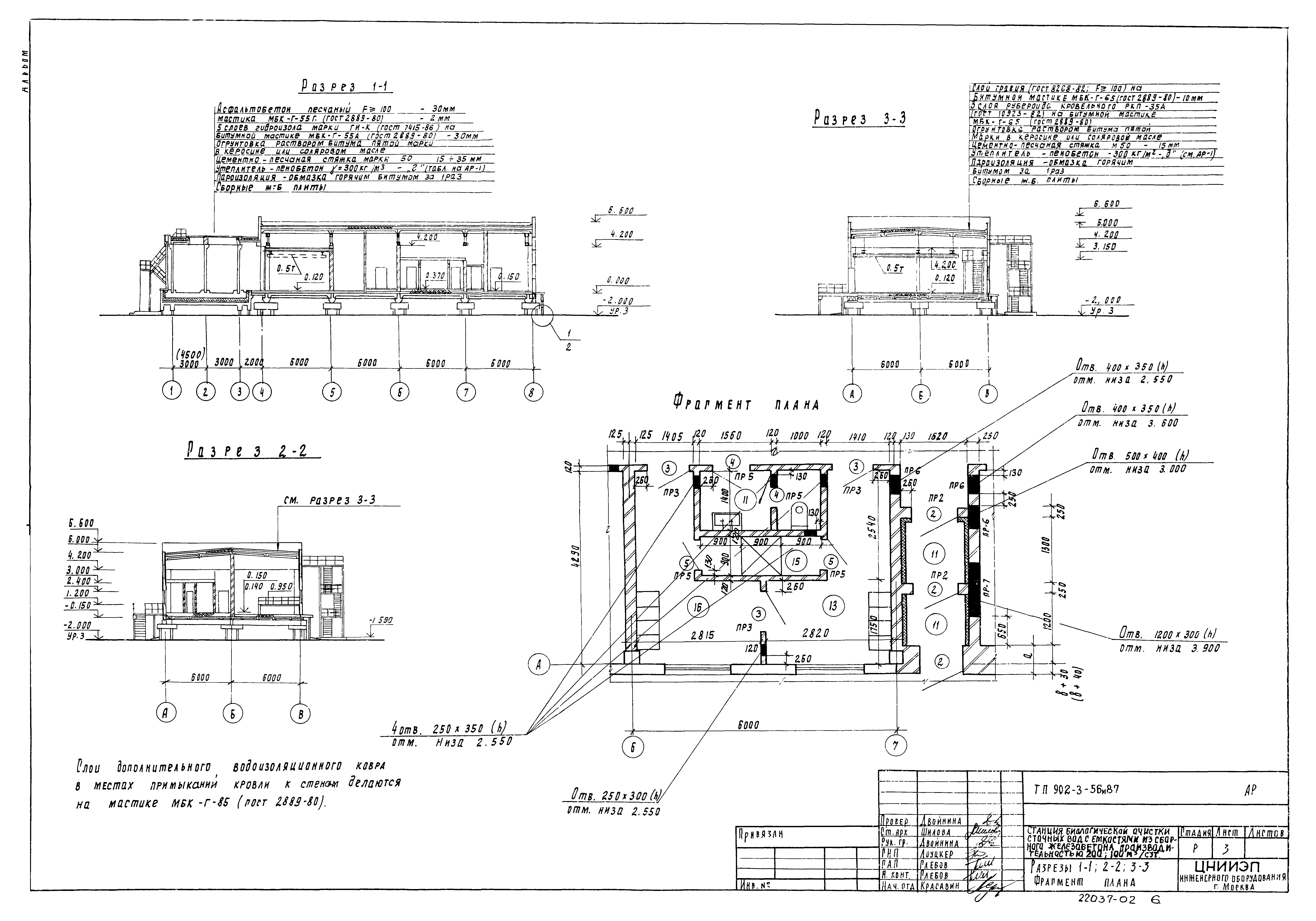
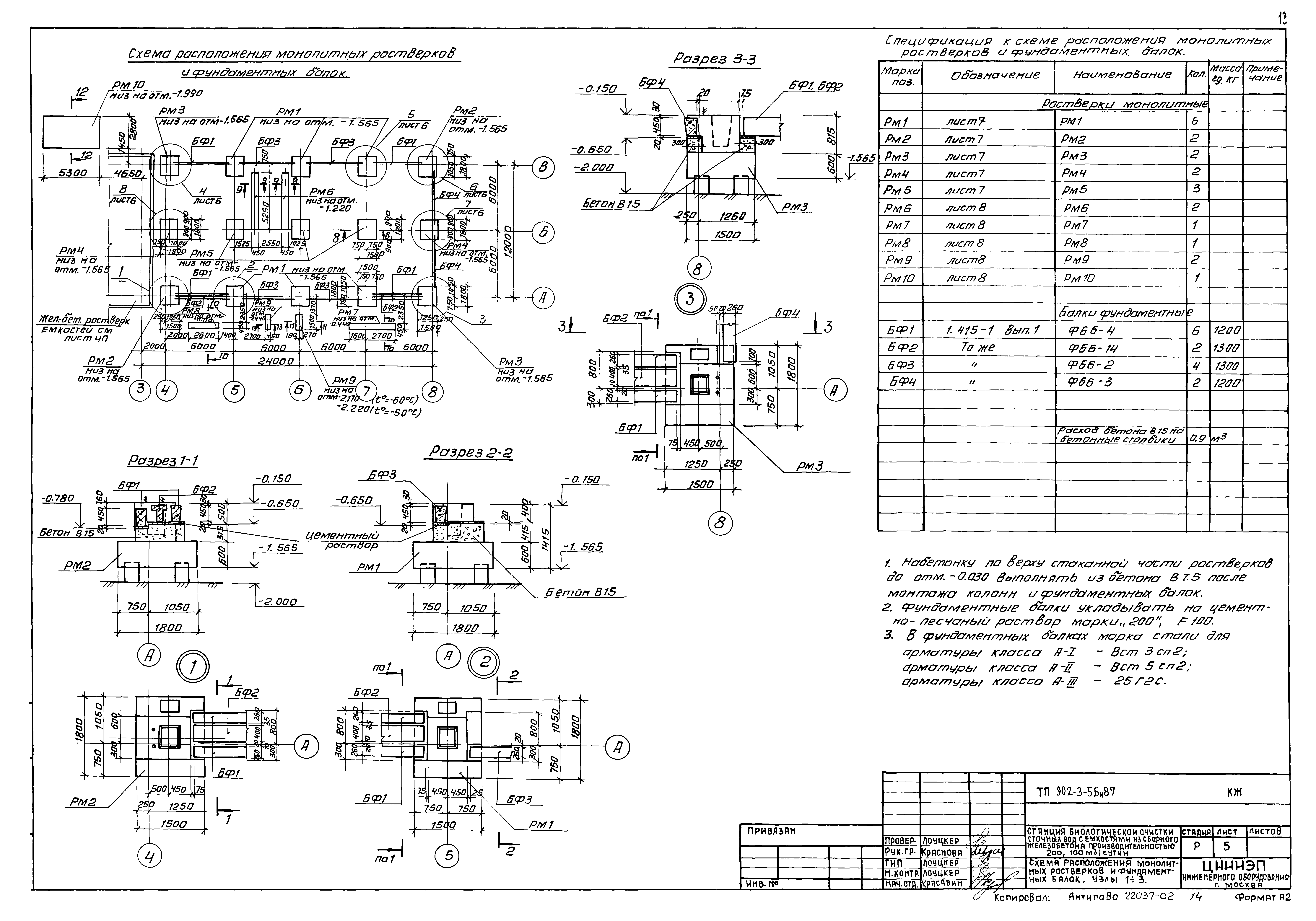
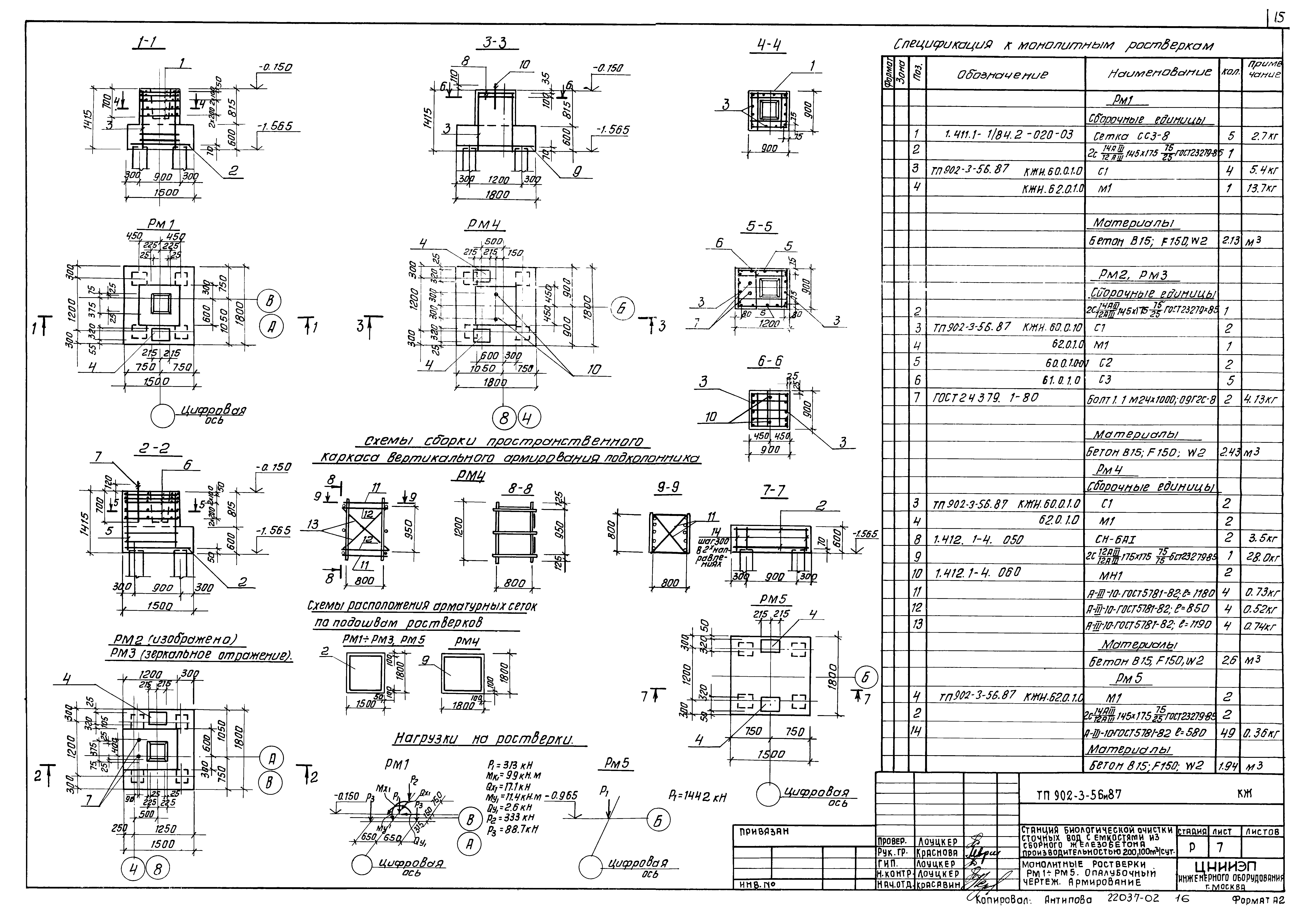
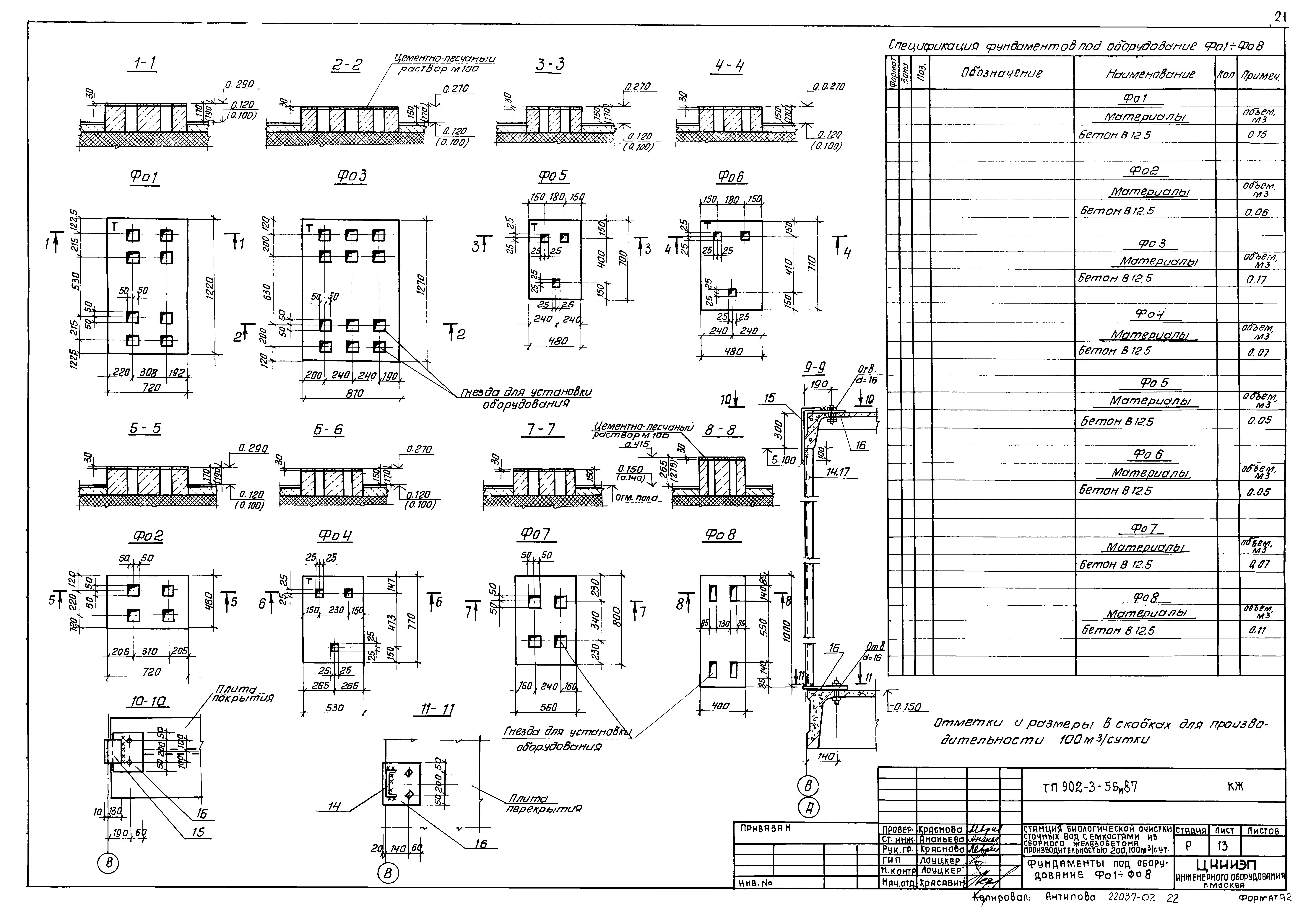
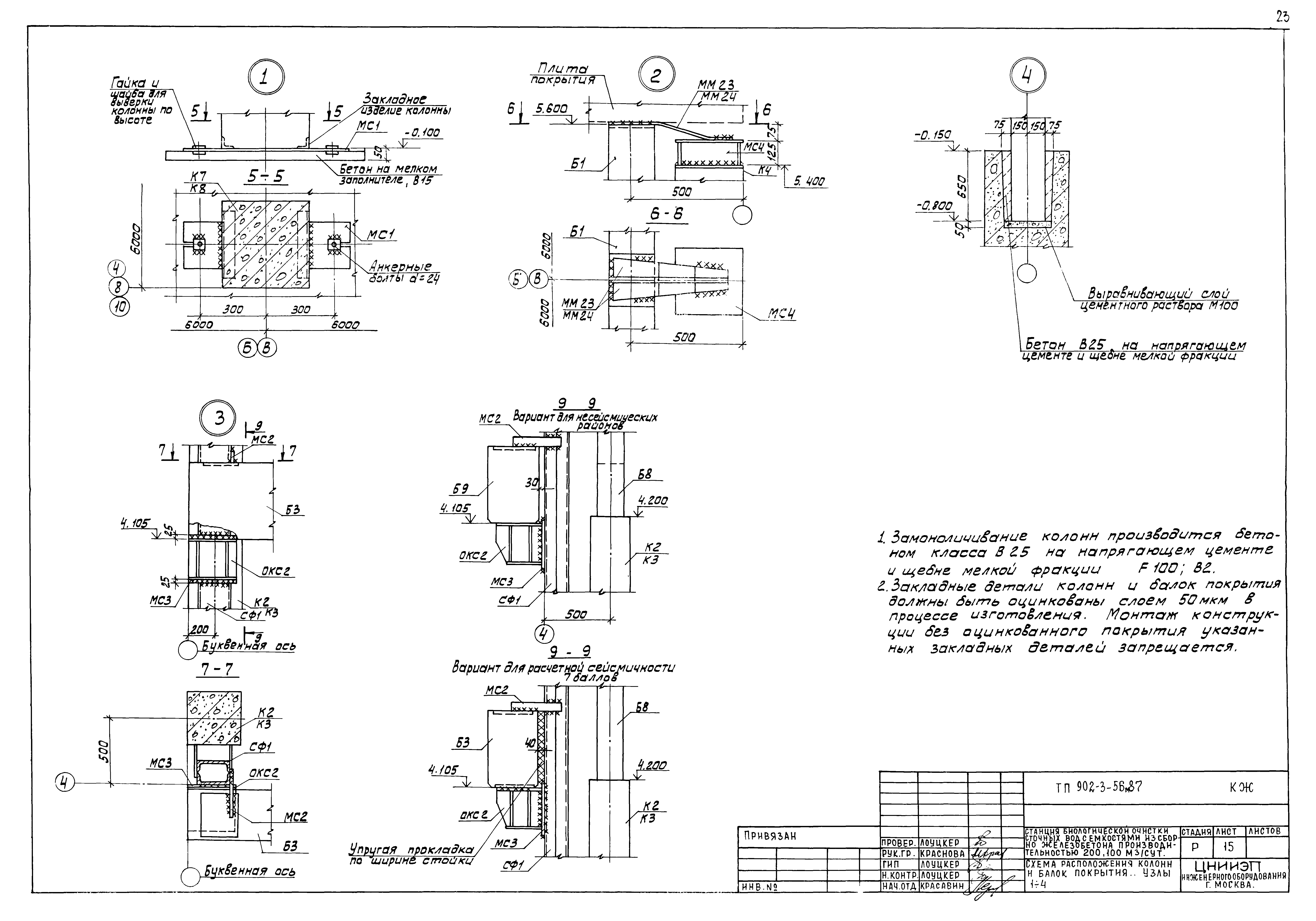
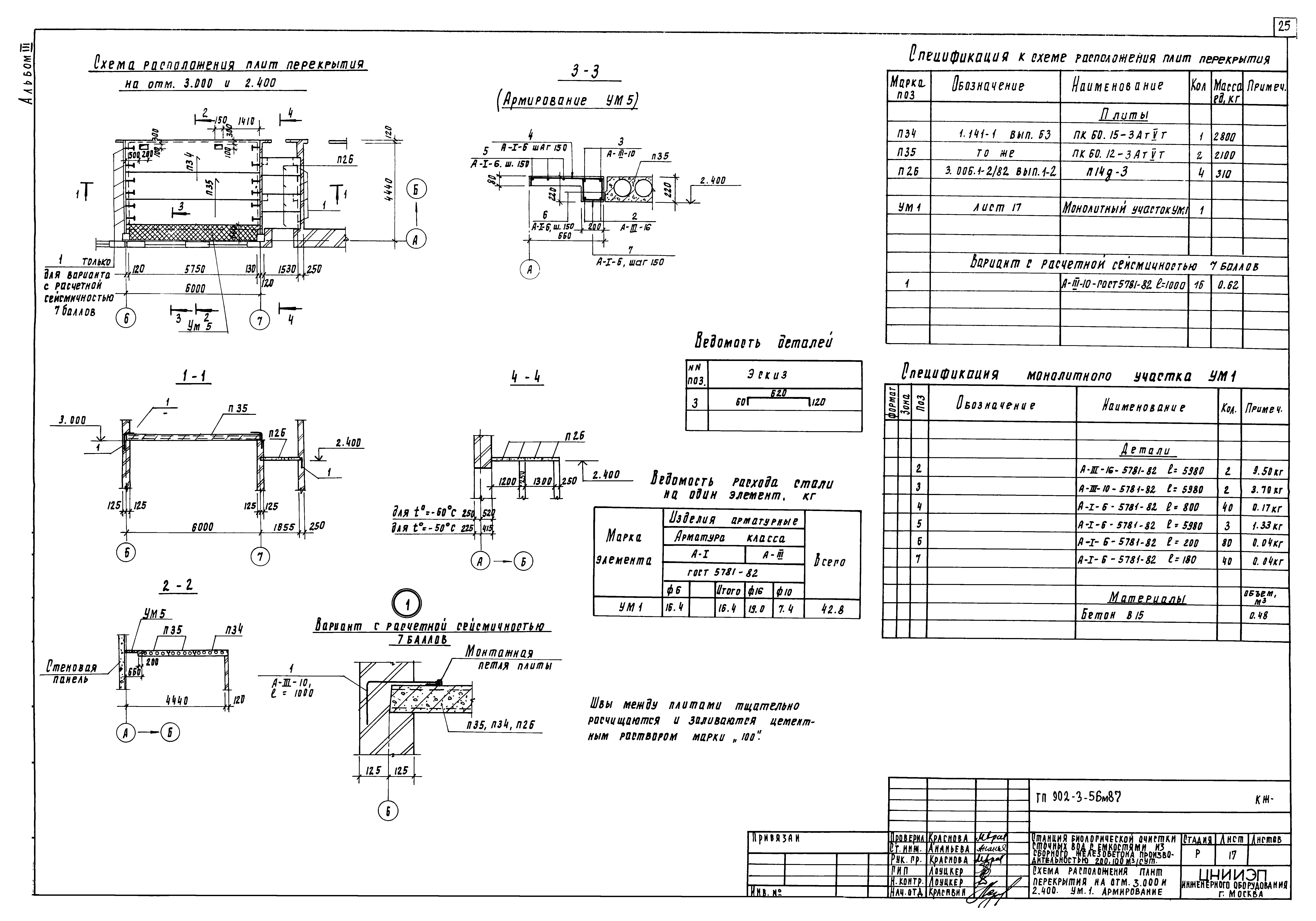
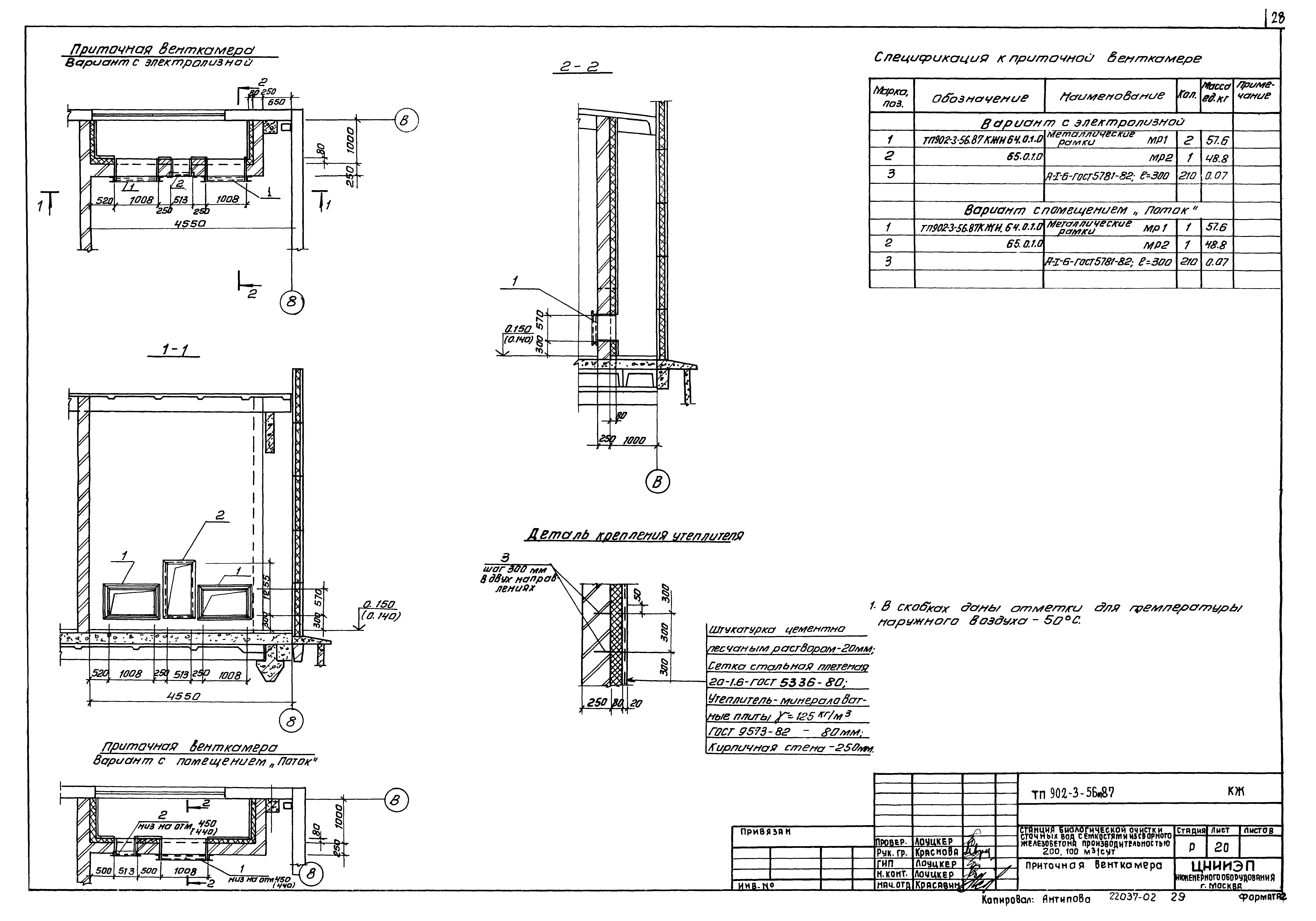
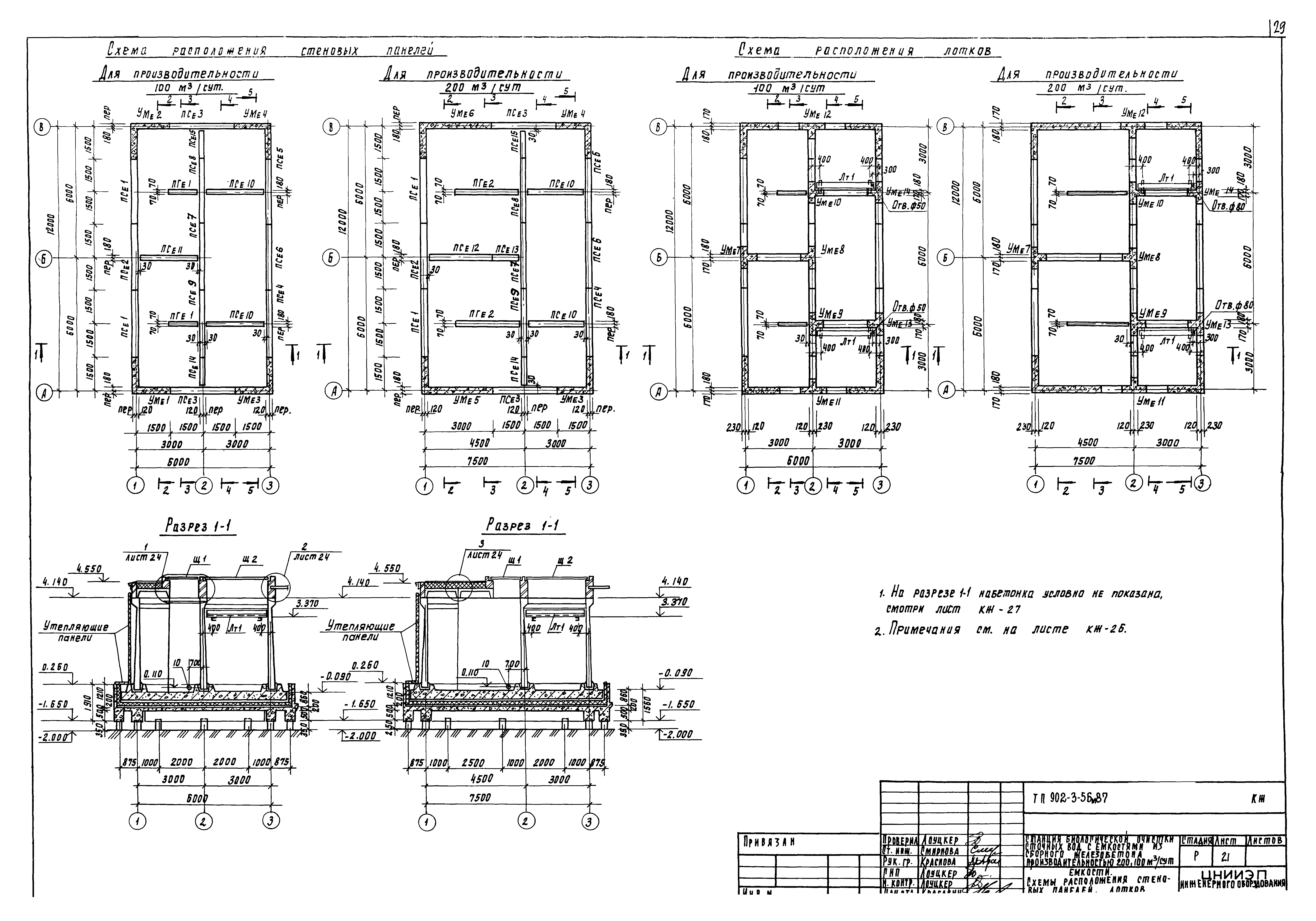
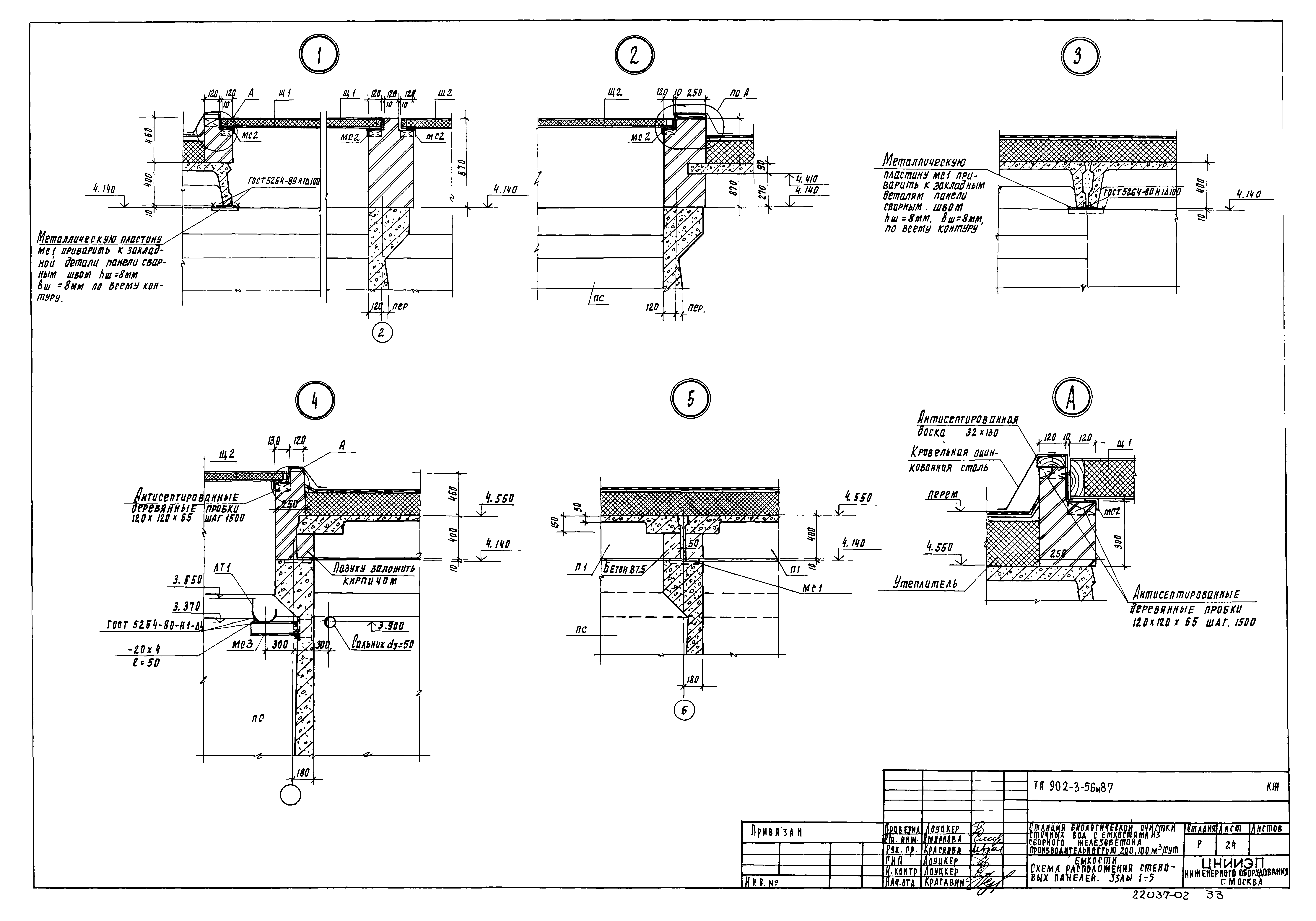
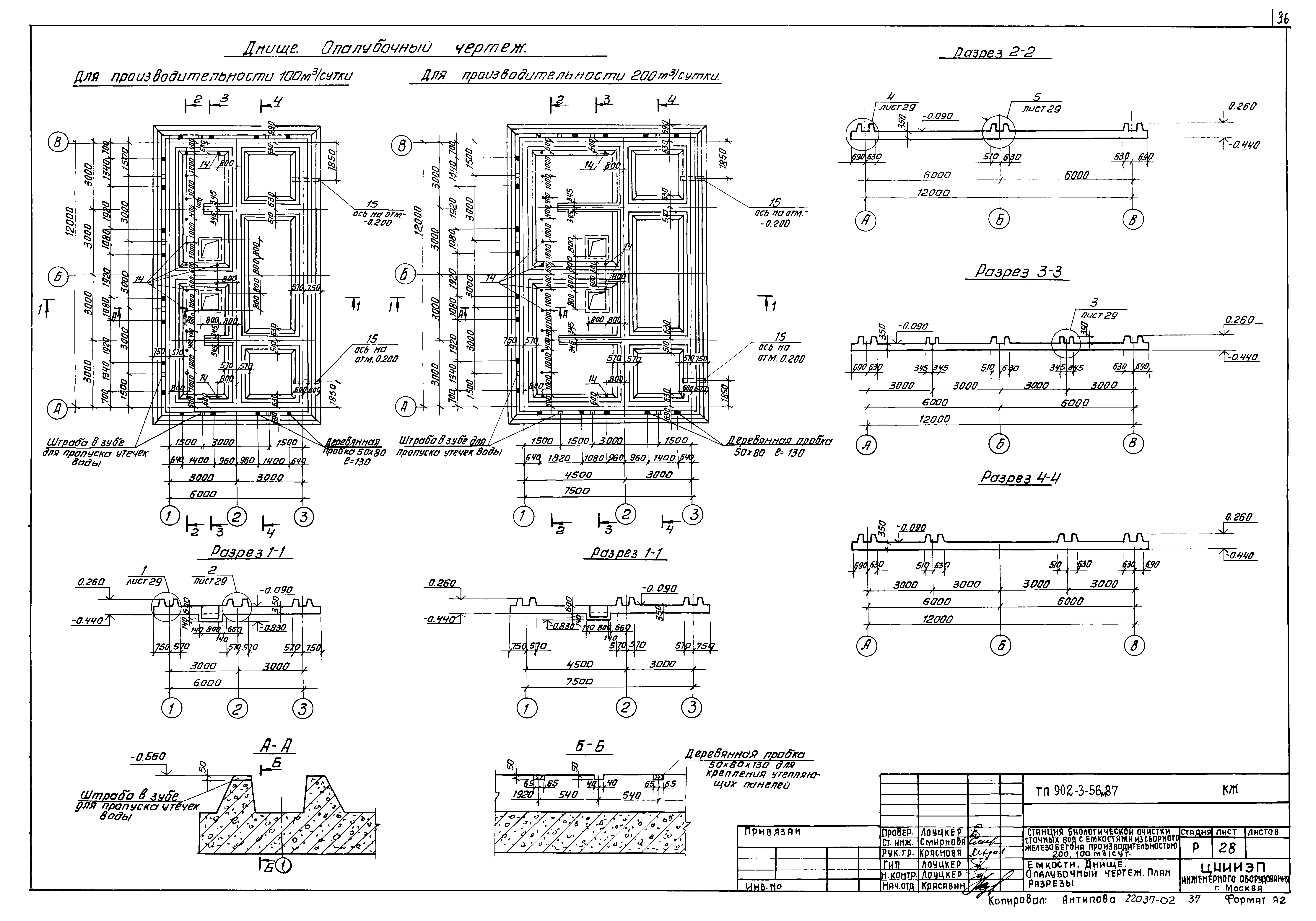
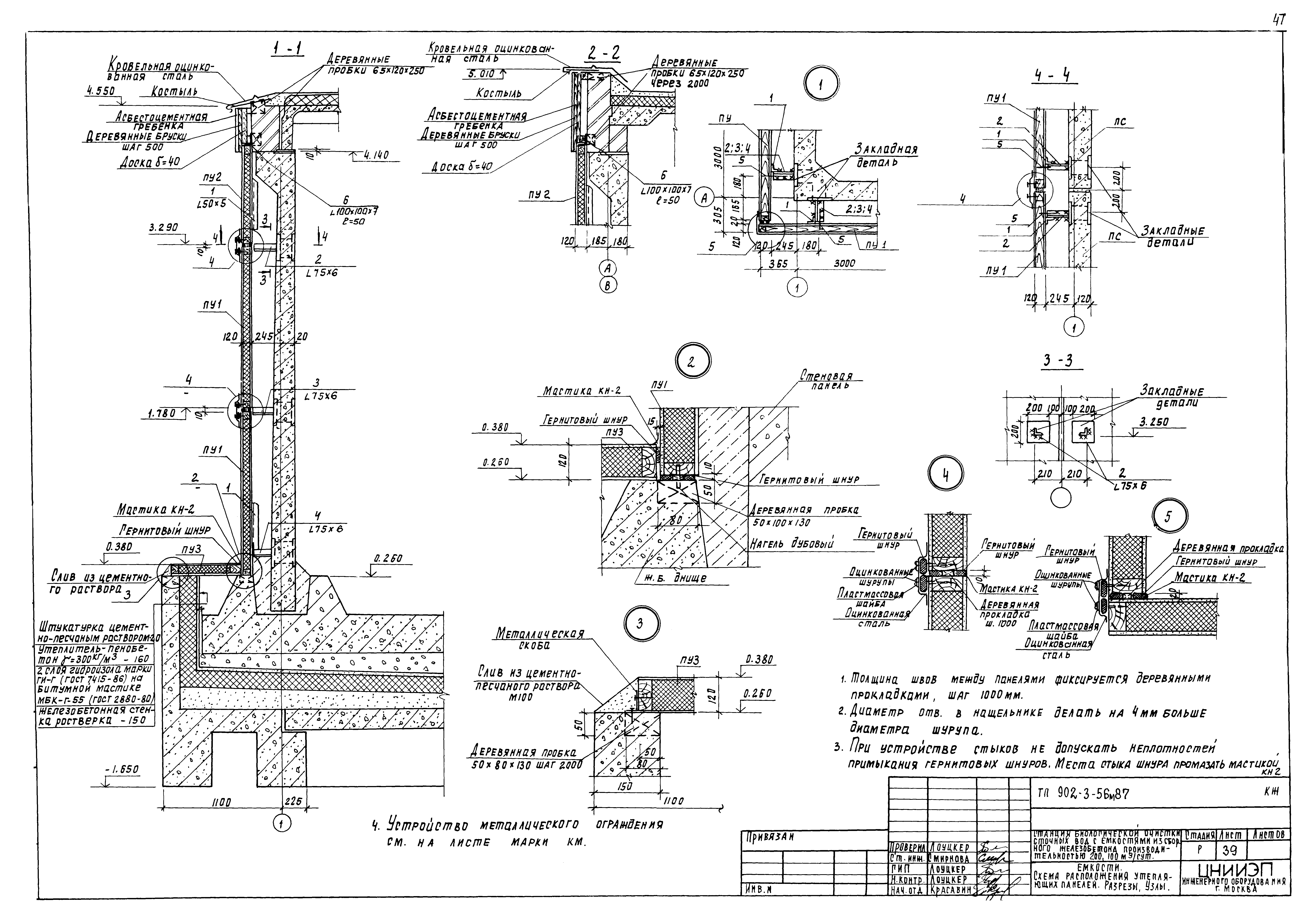
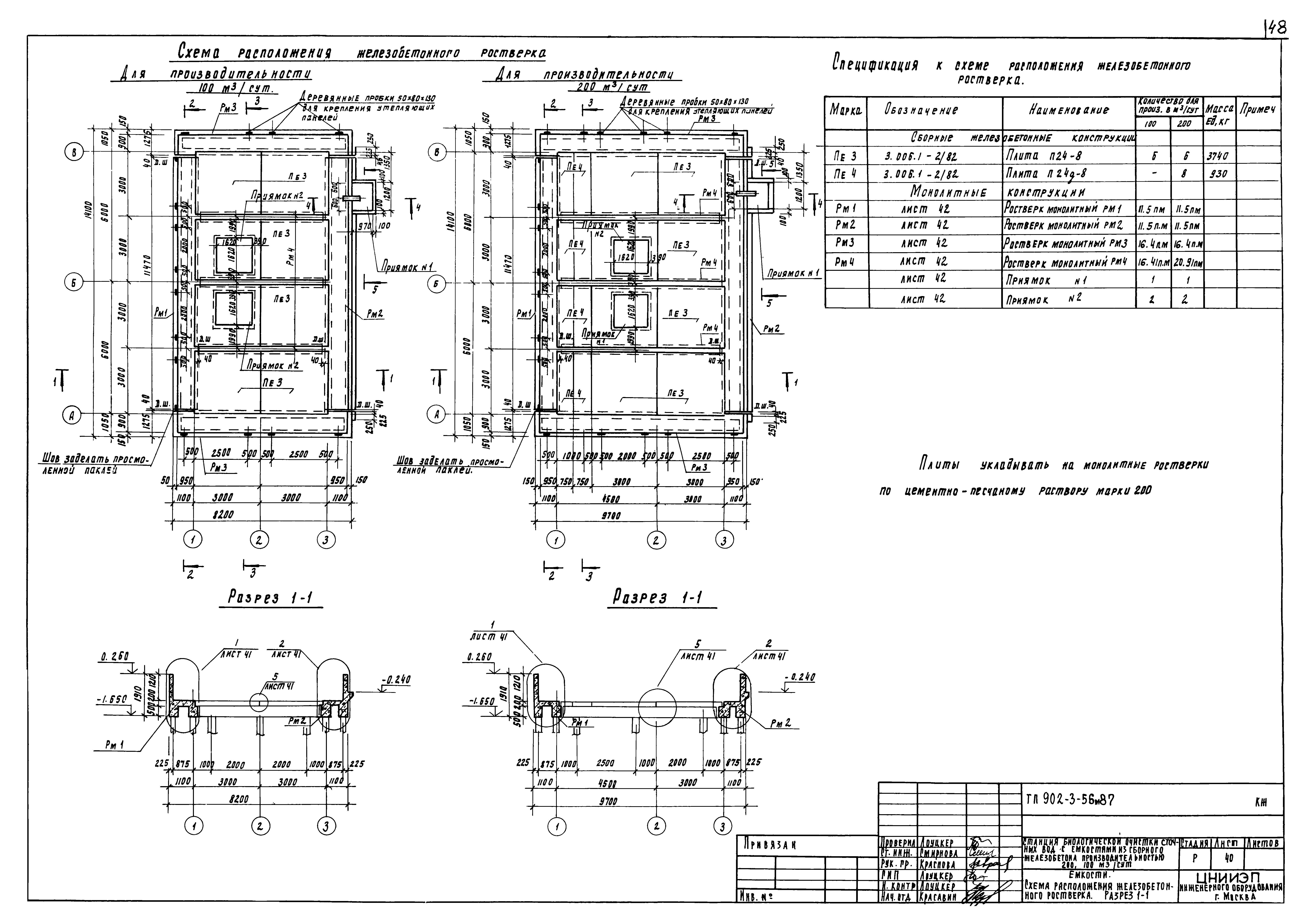
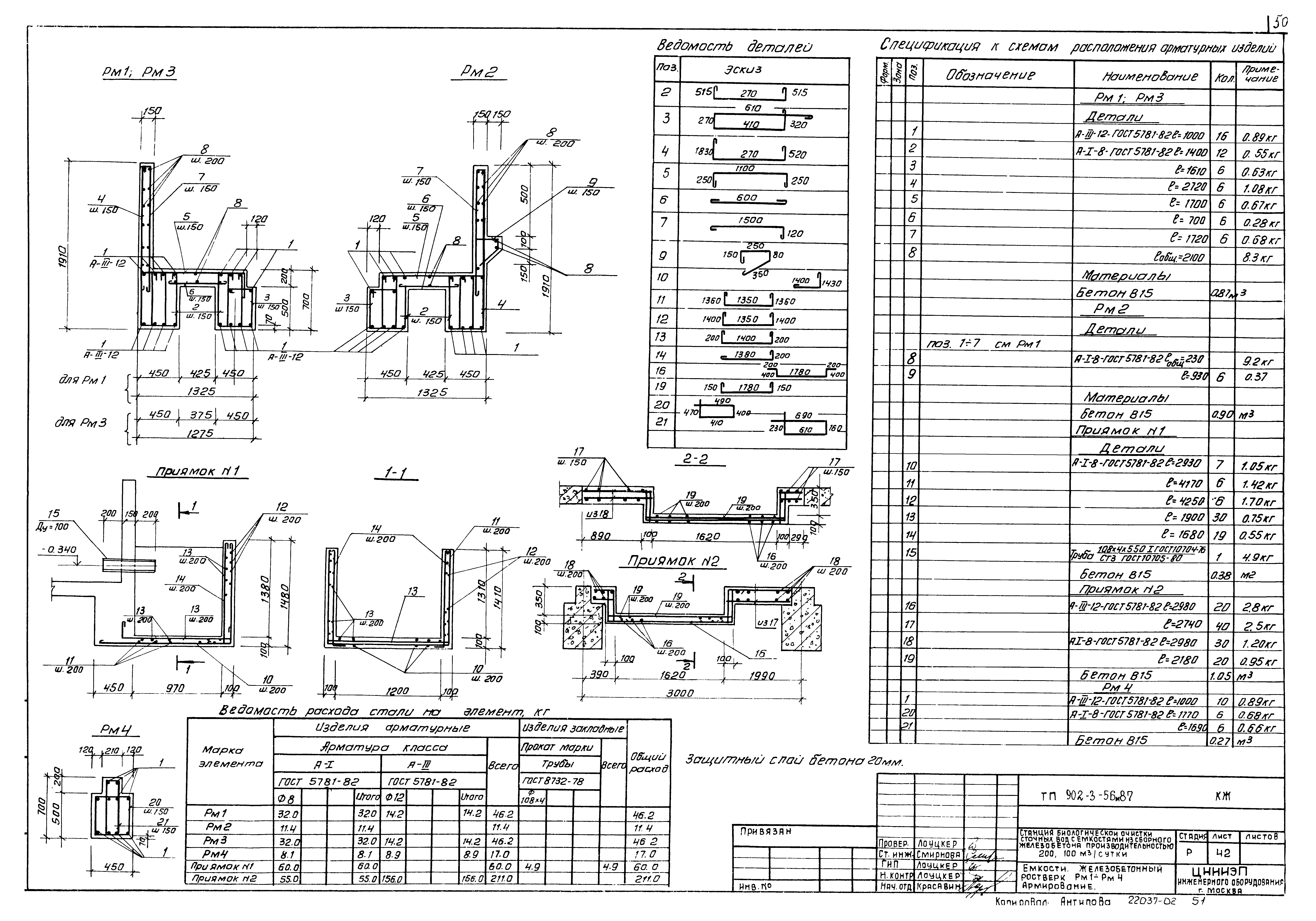
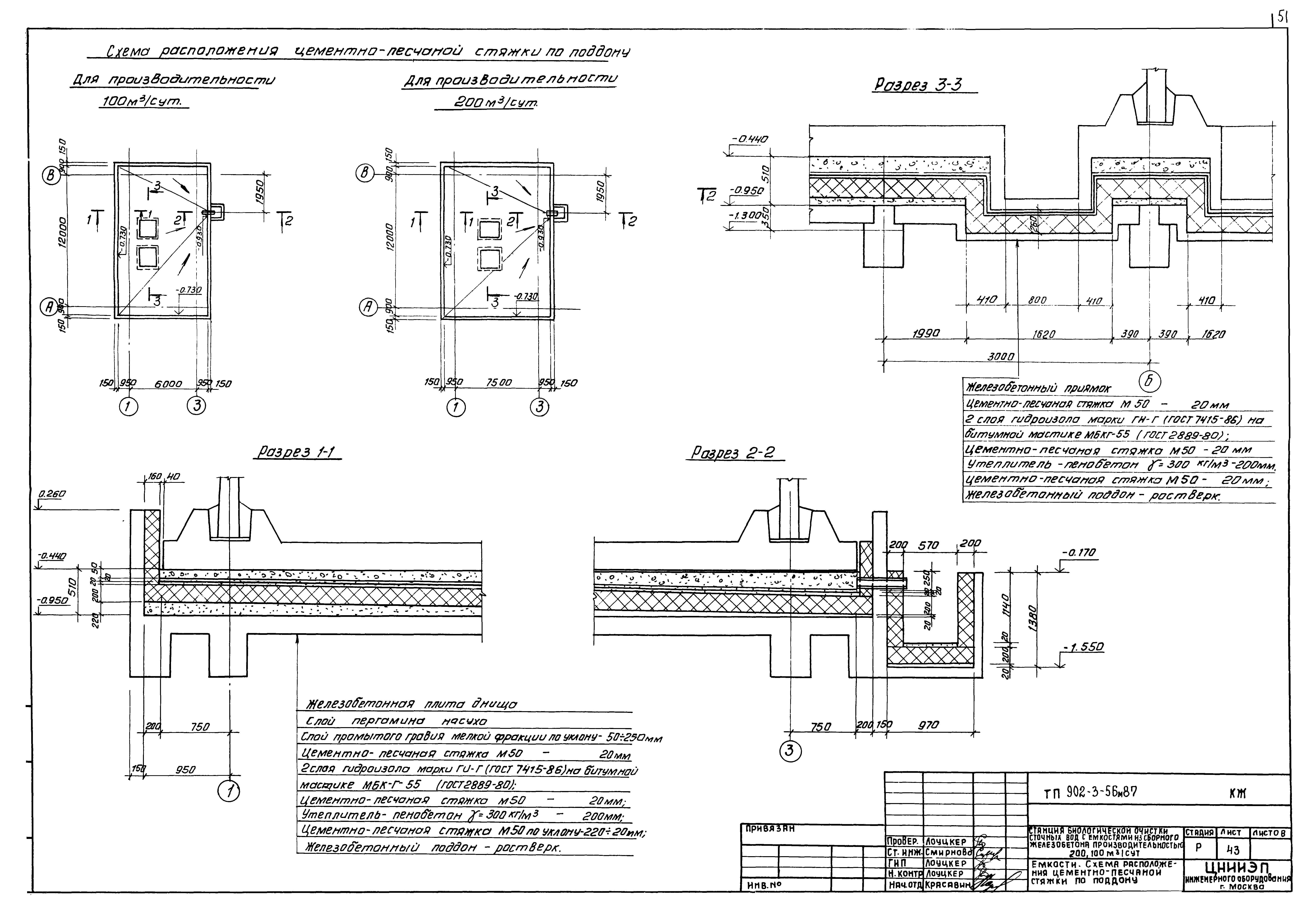
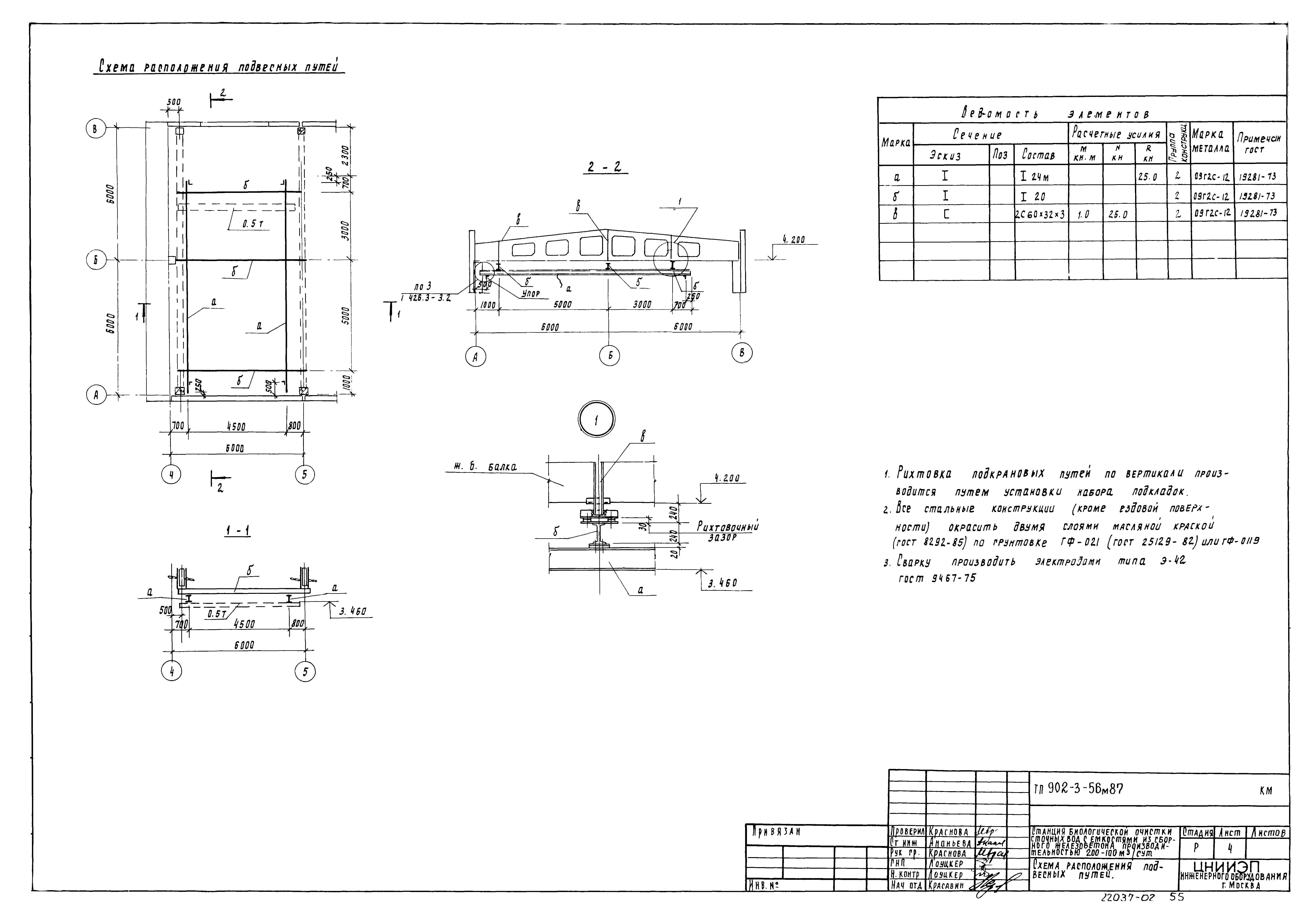
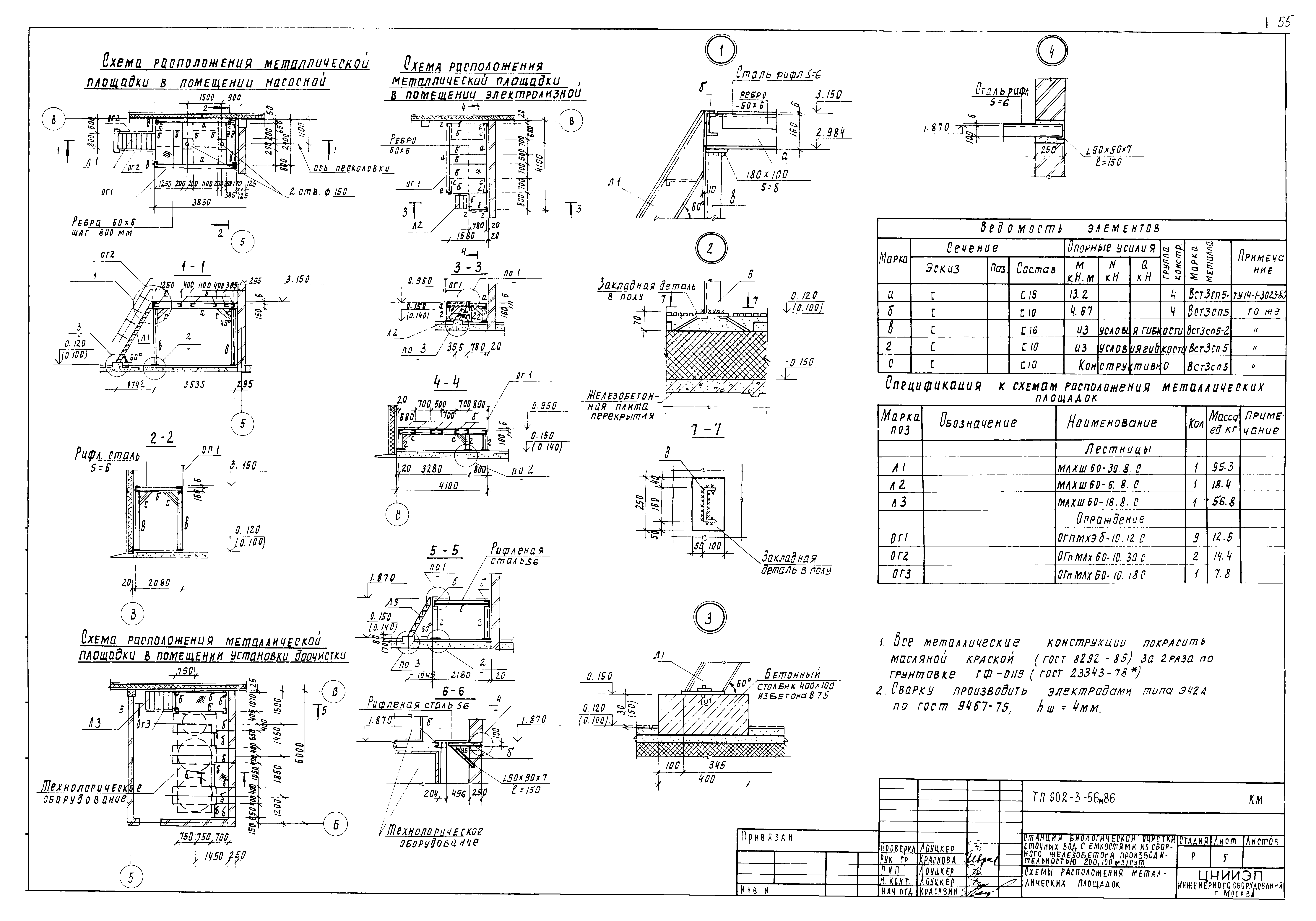
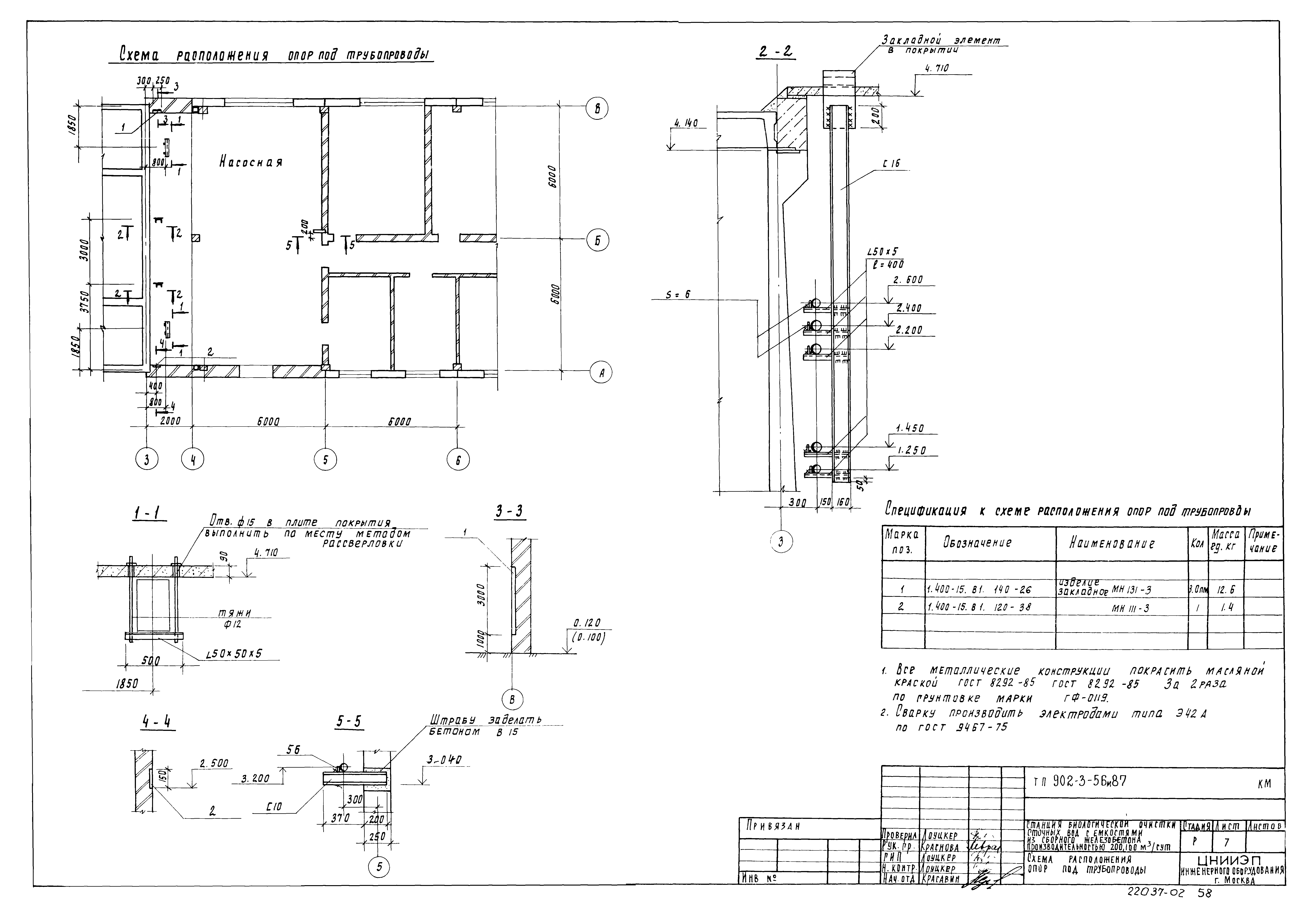
| Оглавление: | ТП 902-3-57м87 Содержание альбома ТП 902-3-57м87-АР Архитектурные решения ТП 902-3-57м87-АР-1 Общие данные ТП 902-3-57м87-АР-2 План на отм. 0.000. Деталь 1 ТП 902-3-57м87-АР-3 Разрезы 1-1,2-2,3-3. Фрагмент плана ТП 902-3-57м87-АР-4 Фасады 1-8,8-1,А-В,В-А ТП 902-3-57м87-АР-5 Ведомость проемов ворот и дверей. Ведомость и спецификация перемычек. Спецификация элементов заполнения проемов. Ведомость отделки помещений ТП 902-3-57м87-АР-6 Планы полов и кровли ТП 902-3-57м87-КЖ Конструкции железобетонные ТП 902-3-57м87-КЖ-1 Общие данные (начало) ТП 902-3-57м87-КЖ-2 Общие данные (окончание) ТП 902-3-57м87-КЖ-3 Схема расположения свай для производительности 200 м³/сутки ТП 902-3-57м87-КЖ-4 Схема расположения свай для производительности 100 м³/сутки ТП 902-3-57м87-КЖ-5 Схема расположения монолитных ростверков и фундаментных балок. Узлы 1-3 ТП 902-3-57м87-КЖ-6 Схема расположения монолитных ростверков и фундаментных балок. Узлы 4-8 ТП 902-3-57м87-КЖ-7 Монолитные ростверки РМ1-РМ5. Опалубочный чертеж. Армирование ТП 902-3-57м87-КЖ-8 Монолитные ростверки РМ6-РМ10. Опалубочный чертеж. Армирование ТП 902-3-57м87-КЖ-9 Схема расположения плит перекрытия и ригелей над подпольем. Разрез 1-1 ТП 902-3-57м87-КЖ-10 Схема расположения плит перекрытия и ригелей над подпольем. Разрез 2-2÷8-8 ТП 902-3-57м87-КЖ-11 Схема расположения плит перекрытия и ригелей над подпольем. Разрез 9-9÷13-13. Монолитные участки УМ1-УМ5 ТП 902-3-57м87-КЖ-12 Схема расположения фундаментов под оборудование ТП 902-3-57м87-КЖ-13 Фундаменты под оборудование ФО1-ФО8 ТП 902-3-57м87-КЖ-14 Схема расположения колонн и балок покрытия ТП 902-3-57м87-КЖ-15 Схема расположения колонн и балок покрытия. Узлы 1-4 ТП 902-3-57м87-КЖ-16 Схема расположения плит покрытия ТП 902-3-57м87-КЖ-17 Схема расположения плит перекрытия на отм. 3.000 и 2.400. УМ1. Армирование ТП 902-3-57м87-КЖ-18 Схема расположения стеновых панелей ТП 902-3-57м87-КЖ-19 Схема расположения стеновых панелей. Узлы 1 и 2 ТП 902-3-57м87-КЖ-20 Приточная венткамера ТП 902-3-57м87-КЖ-21 Емкости. Схема расположения стеновых панелей, лотков ТП 902-3-57м87-КЖ-22 Емкости. Схема расположения плит покрытий ТП 902-3-57м87-КЖ-23 Емкости. Схема расположения стеновых панелей. Разрезы 2-2÷4-4 ТП 902-3-57м87-КЖ-24 Емкости. Схема расположения стеновых панелей. Узлы 1-5 ТП 902-3-57м87-КЖ-25 Емкости. Схема расположения стеновых панелей. Узел 6. Щиты Щ1-Щ3 ТП 902-3-57м87-КЖ-26 Емкости. Спецификация к схемам расположения панелей, лотков, плит покрытия ТП 902-3-57м87-КЖ-27 Емкости. Схема расположения набетонки в отстойнике ТП 902-3-57м87-КЖ-28 Емкости. Днище. Опалубочный чертеж. План. Разрезы ТП 902-3-57м87-КЖ-29 Емкости. Днище. Опалубочный чертеж. Узлы ТП 902-3-57м87-КЖ-30 Емкости. Днище. Армирование. Схема расположения нижних сеток. Разрезы 1-1;3-3÷5-5 ТП 902-3-57м87-КЖ-31 Емкости. Днище. Армирование. Схема расположения верхних сеток ТП 902-3-57м87-КЖ-32 Емкости. Днище. Армирование. Спецификации ТП 902-3-57м87-КЖ-33 Емкости. Монолитные участки УМЕ1-УМЕ14. Опалубочный чертеж ТП 902-3-57м87-КЖ-34 Емкости. Монолитные участки УМЕ1-УМЕ14. Армирование ТП 902-3-57м87-КЖ-35 Емкости. Монолитные участки УМЕ5,УМЕ6. Армирование ТП 902-3-57м87-КЖ-36 Емкости. Монолитные участки УМЕ7-УМЕ14. Армирование ТП 902-3-57м87-КЖ-37 Емкости. Монолитные участки УМЕ1-УМЕ14. Спецификации ТП 902-3-57м87-КЖ-38 Емкости. Схема расположения утепляющих панелей ТП 902-3-57м87-КЖ-39 Емкости. Схема расположения утепляющих панелей. Разрезы. Узлы ТП 902-3-57м87-КЖ-40 Емкости. Схема расположения железобетонного ростверка. Разрез 1-1 ТП 902-3-57м87-КЖ-41 Емкости. Схема расположения железобетонного ростверка. Разрезы 2-2÷5-5. Узлы ТП 902-3-57м87-КЖ-42 Емкости. Железобетонный ростверк РМ1-РМ4. Армирование ТП 902-3-57м87-КЖ-43 Емкости. Схема расположения цементно-песчаной стяжки по поддону ТП 902-3-57м87-КМ Конструкции металлические ТП 902-3-57м87-КМ-1 Общие данные (начало). Техническая спецификация стали ТП 902-3-57м87-КМ-2 Общие данные (продолжение). Техническая спецификация стали на типовые конструкции ТП 902-3-57м87-КМ-3 Общие данные (окончание). Ведомость металлоконструкций по видам профилей ТП 902-3-57м87-КМ-4 Схема расположения подвесных путей ТП 902-3-57м87-КМ-5 Схема расположения металлических площадок ТП 902-3-57м87-КМ-6 Схема расположения лестниц и площадок емкостей ТП 902-3-57м87-КМ-7 Схема расположения опор под трубопроводы ТП 902-3-57м87-ОС Организация строительства ТП 902-3-57м87-ОС-1 Схема стройгенплана на возведение наземной части здания ТП 902-3-57м87-ОС-2 График производства работ (начало) ТП 902-3-57м87-ОС-3 График производства работ (окончание) |
| Разработан: | ЦНИИЭП инженерного оборудования |
| Утверждён: | 15.12.1986 Госгражданстрой (Gosgrazhdanstroy 422) |
| Издан: | ЦИТП Госстроя СССР (CITP, Gosstroy (USSR) 1988 г. ) |





























































