Скачать Типовой проект 902-3-56м.87 Альбом IV. Строительные изделияДата актуализации: 01.01.2021
|
| Обозначение: | Типовой проект 902-3-56м.87 |
| Обозначение англ: | 902-3-56м.87 |
| Статус: | не определен законодательством |
| Название рус.: | Альбом IV. Строительные изделия |
| Дата добавления в базу: | 01.09.2013 |
| Дата актуализации: | 01.01.2021 |
| Дата введения: | 15.12.1986 |
| Дата окончания срока действия: | 30.06.2003 |
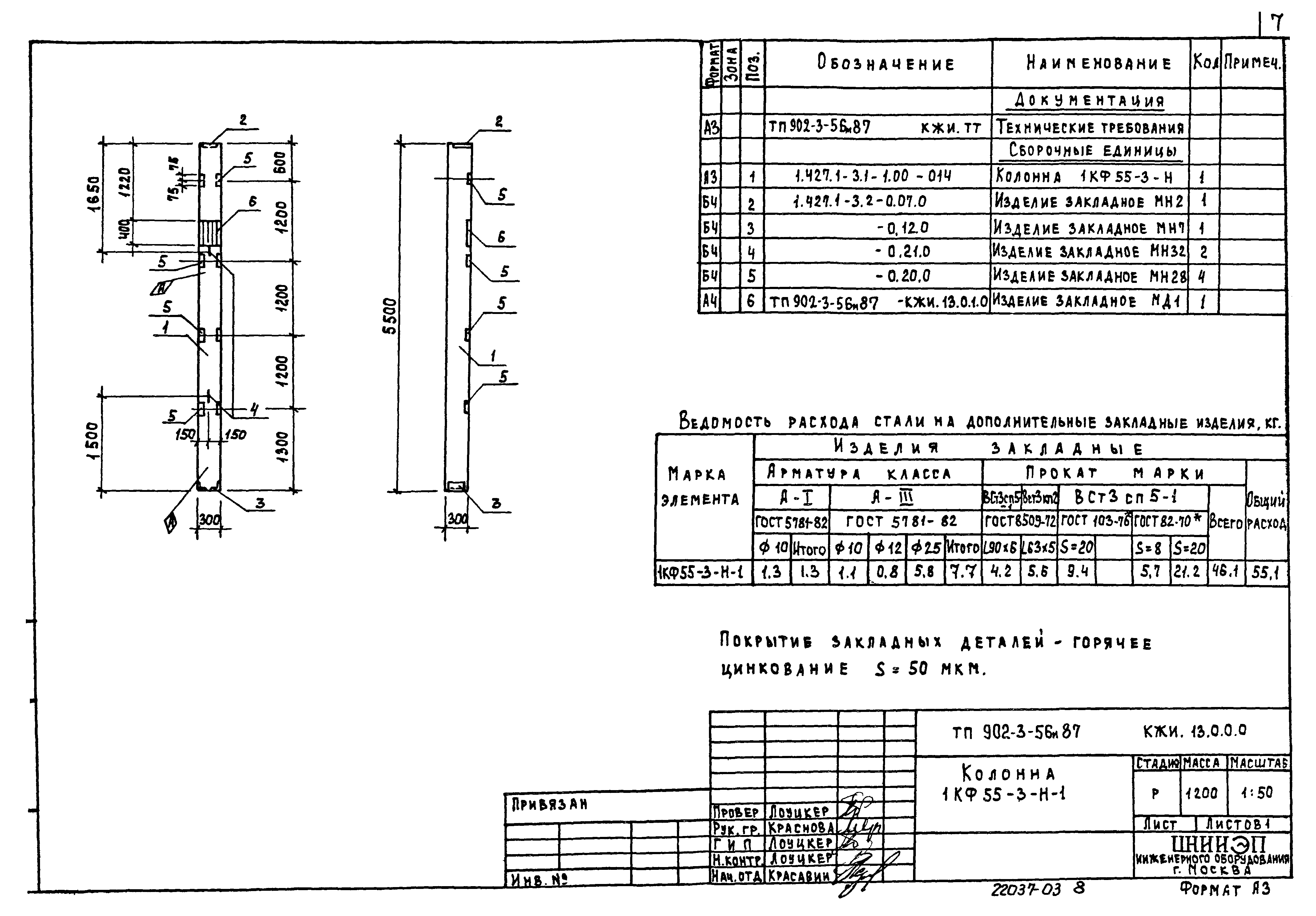
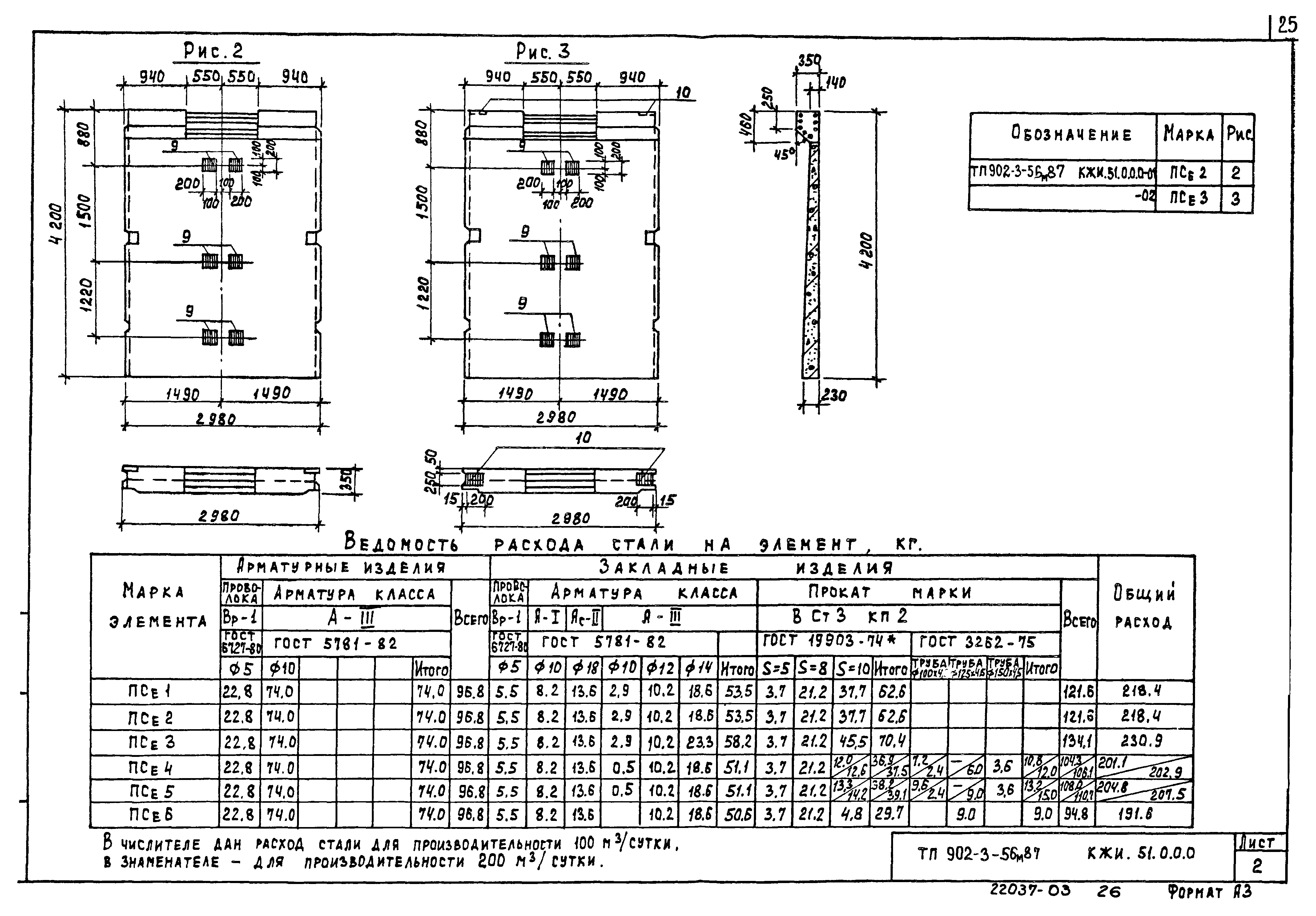
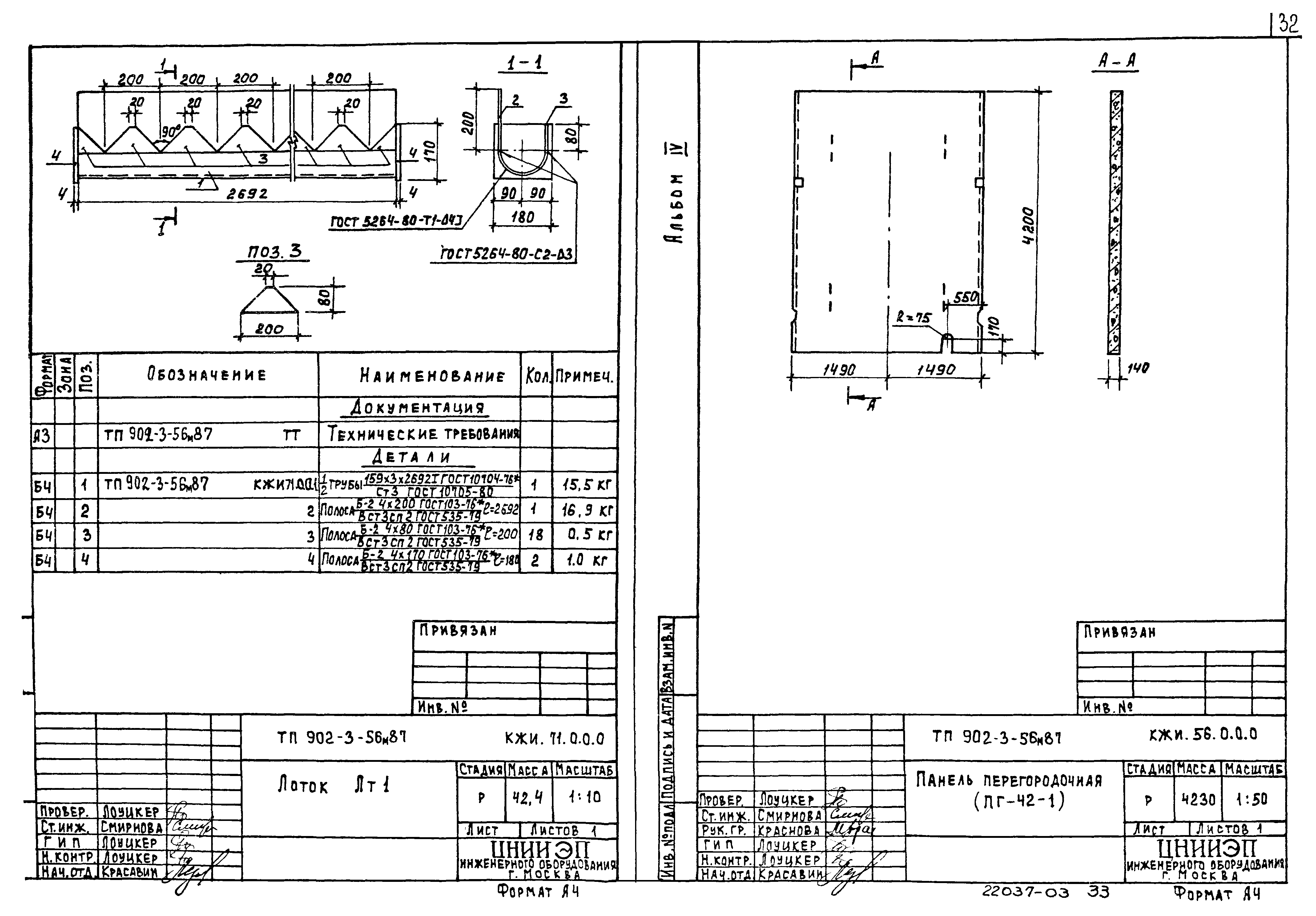
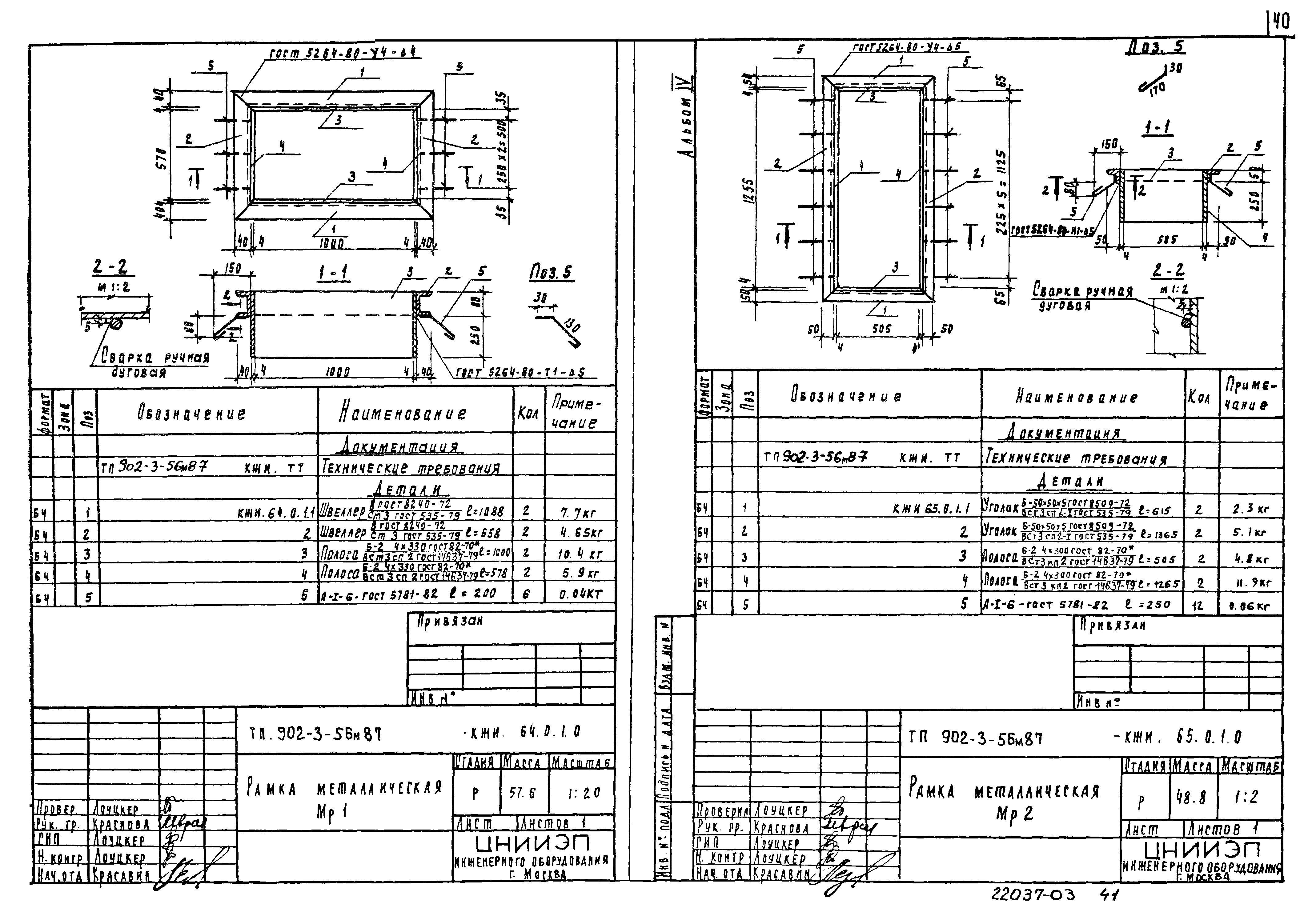
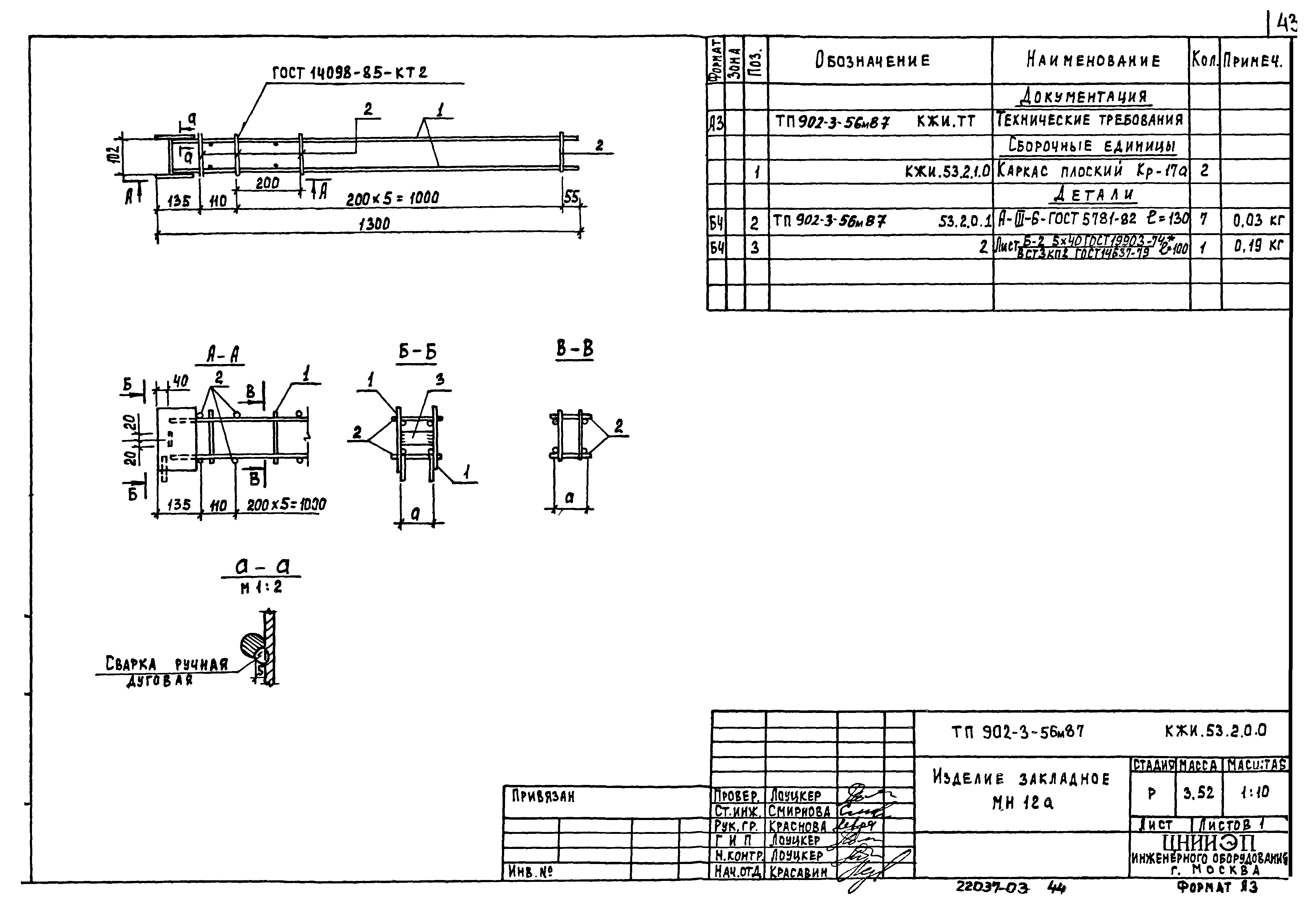
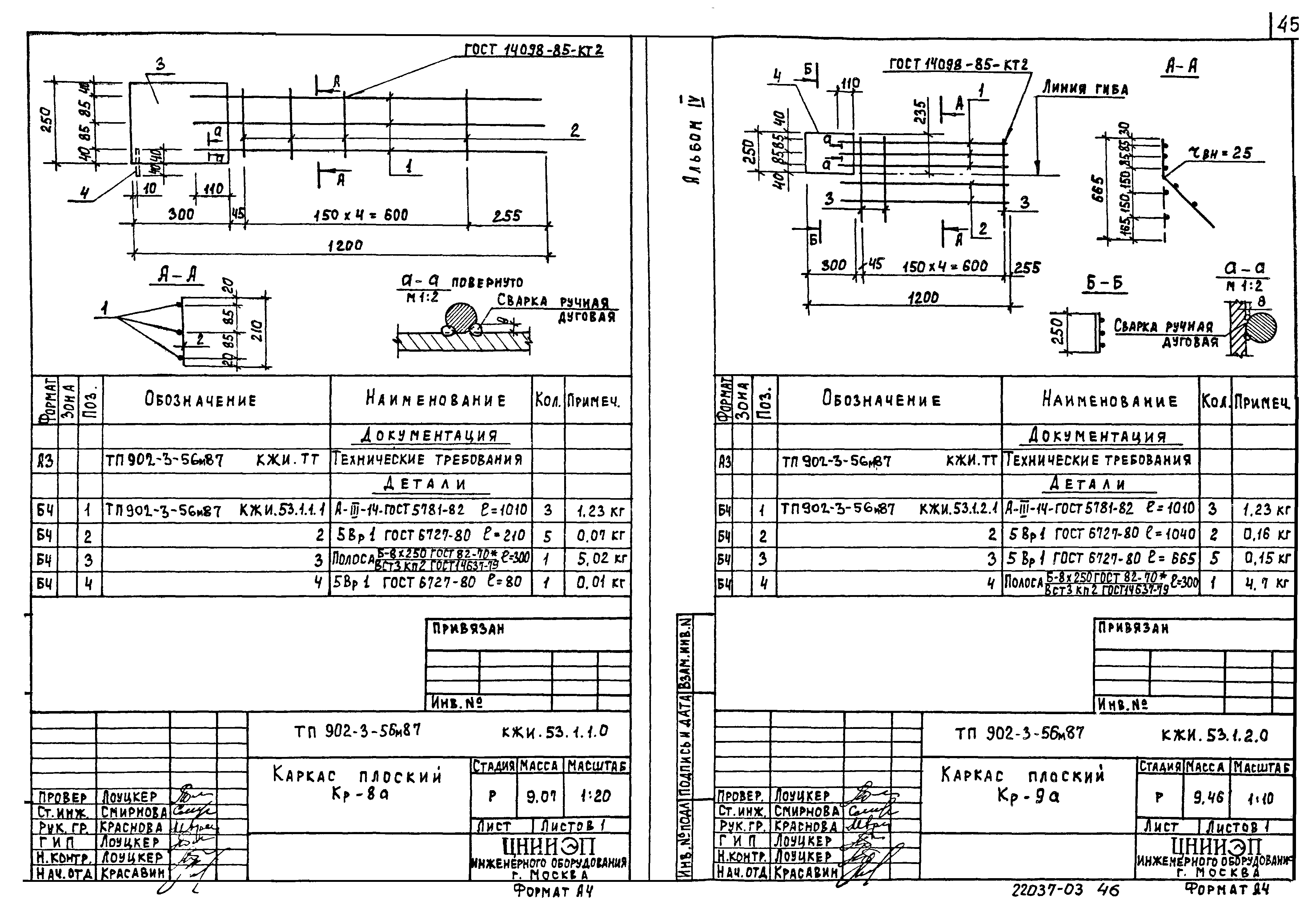
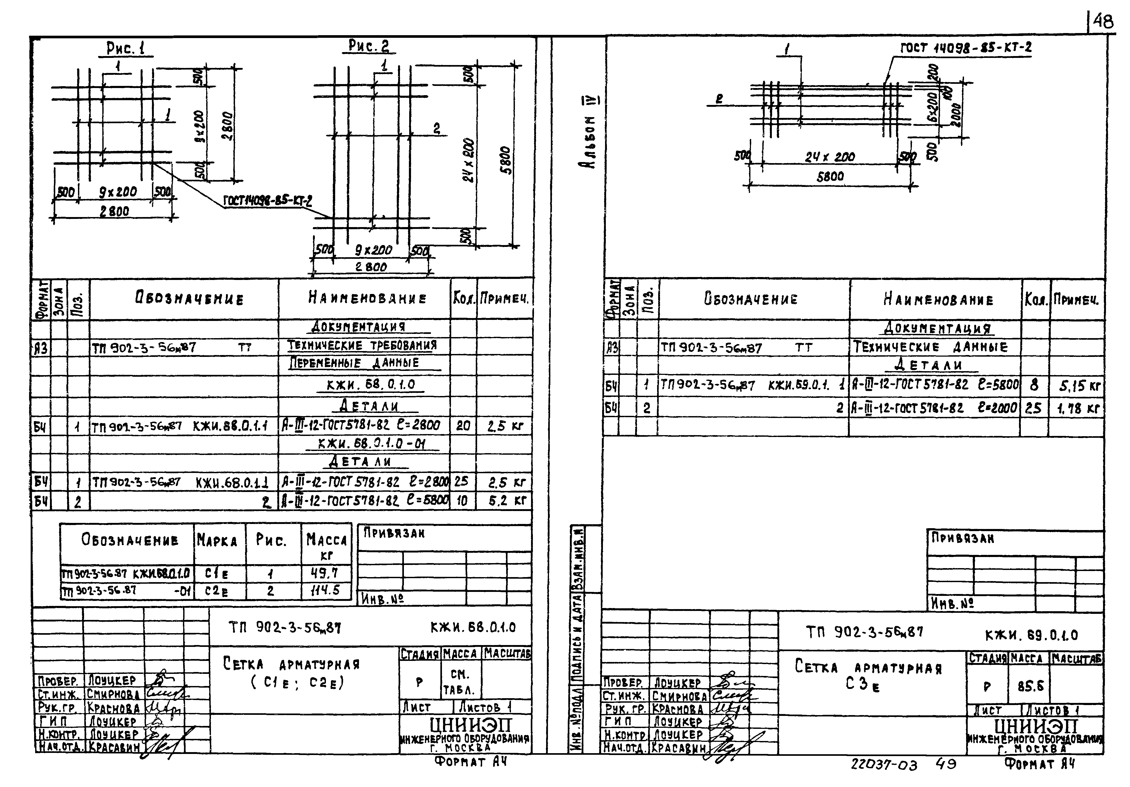
| Оглавление: | ТП 902-3-56м87-КЖИ-ТТ Технические требования ТП 902-3-56м87-КЖИ-11.0.0.0 Колонна (К42-5-1,К42-5-2,К42-5-3) ТП 902-3-56м87-КЖИ-12.0.0.0 Колонна (К42-6-1,К42-6-2,К42-6-3) ТП 902-3-56м87-КЖИ-13.0.0.0 Колонна 1КФ55-3-Н-1 ТП 902-3-56м87-КЖИ-21.0.0.0 Балка 1БДР12-3АIV-Т-1 ТП 902-3-56м87-КЖИ-22.0.0.0 Балка 1БДР12-3АIV-Т-2 ТП 902-3-56м87-КЖИ-23.0.0.0 Балка БОП38-3П-С-1 ТП 902-3-56м87-КЖИ-31.0.0.0 Плита покрытия (ПГ-ВРII-Т-1,ПГ-ВРII-Т-2,ПГ-ВРII-Т-3) ТП 902-3-56м87-КЖИ-32.0.0.0 Плита покрытия (ПГ-ВРIIТ-С-1,ПГ-ВРIIТ-С-2,ПГ-ВРIIТ-С-3) ТП 902-3-56м87-КЖИ-33.0.0.0 Плита покрытия ПВ10-38рIIТ-1 ТП 902-3-56м87-КЖИ-34.0.0.0 Плита покрытия ПВ10-38рIIТ-С-1 ТП 902-3-56м87-КЖИ-35.0.0.0 Плита покрытия ПГ-38рIIТ-1 ТП 902-3-56м87-КЖИ-36.0.0.0 Плита покрытия ПГ-38рIIТ-С-1 ТП 902-3-56м87-КЖИ-41.0.0.0 Панель стеновая ПСТ100/1.2х1.5-33-1 ТП 902-3-56м87-КЖИ-42.0.0.0 Панель стеновая ПСТ100/0.75х1.5-33-1 ТП 902-3-56м87-КЖИ-43.0.0.0 Панель стеновая ПСТ75/1.2х6-11-1 ТП 902-3-56м87-КЖИ-37.0.0.0 Плита перекрытия П14д-3-1 ТП 902-3-56м87-КЖИ-44.0.0.0 Панель стеновая ПСТ75/1.2х1.5-33-1 ТП 902-3-56м87-КЖИ-45.0.0.0 Панель стеновая ПСТ75/1.2х0.75-33-1 ТП 902-3-56м87-КЖИ-46.0.0.0 Панель стеновая ПСТ75/1.2х6-11-1 ТП 902-3-56м87-КЖИ-70.0.0.0 Изделие закладное МС5 ТП 902-3-56м87-КЖИ-47.0.0.0 Панель карнизная (ПК1...ПК7) ТП 902-3-56м87-КЖИ-48.0.0.0 Панель вертикальная (ПВ1...ПВ8) ТП 902-3-56м87-КЖИ-51.0.0.0 Панель стеновая (ПСЕ1...ПСЕ6) ТП 902-3-56м87-КЖИ-52.0.0.0 СБ Панель стеновая (МС1-42-Б1-1...ПС1-42-Б1-6) ТП 902-3-56м87-КЖИ-52.0.0.0 Панель стеновая (МС1-42-Б1-1...ПС1-42-Б1-6). Сборочный чертеж ТП 902-3-56м87-КЖИ-53.0.0.0 Стеновая панель ПСЕ13 ТП 902-3-56м87-КЖИ-54.0.0.0 Панель стеновая (ПСЕ14,ПСЕ15) ТП 902-3-56м87-КЖИ-55.0.0.0 Панель перегородочная ПТЕ1 ТП 902-3-56м87-КЖИ-71.0.0.0 Лоток ЛТ1 ТП 902-3-56м87-КЖИ-56.0.0.0 Панель перегородочная (ПГ-42-1) ТП 902-3-56м87-КЖИ-39.0.0.0 Плита перекрытия 2П1-6АVТ-1 ТП 902-3-56м87-КЖИ-38.0.0.0 Плита перекрытия П14-3-1 ТП 902-3-56м87-КЖИ-60.0.1.0 Сетка арматурная (С1,С2) ТП 902-3-56м87-КЖИ-61.0.1.0 Сетка арматурная С3 ТП 902-3-56м87-КЖИ-47.0.1.0 Сетка арматурная (С4...С10) ТП 902-3-56м87-КЖИ-48.1.0.0 Каркас пространственный (КП1...КП6) ТП 902-3-56м87-КЖИ-47.1.1.0 Каркас плоский (КР1...КР6) ТП 902-3-56м87-КЖИ-62.0.1.0 Изделие закладное М1 ТП 902-3-56м87-КЖИ-63.0.1.0 Изделие закладное МН2 ТП 902-3-56м87-КЖИ-13.0.1.0 Изделие закладное МД1 ТП 902-3-56м87-КЖИ-13.0.2.0 Изделие соединительное МС1 ТП 902-3-56м87-КЖИ-64.0.1.0 Рамка металлическая МР1 ТП 902-3-56м87-КЖИ-65.0.1.0 Рамка металлическая МР2 ТП 902-3-56м87-КЖИ-52.0.1.0 Сетка арматурная С-21а ТП 902-3-56м87-КЖИ-53.0.2.0 Сетка арматурная С-22а ТП 902-3-56м87-КЖИ-53.0.3.0 Каркас плоский (КР-1а,КР-2а) ТП 902-3-56м87-КЖИ-53.2.1.0 Каркас плоский КР-17а ТП 902-3-56м87-КЖИ-53.2.0.0 Изделие закладное МН12а ТП 902-3-56м87-КЖИ-53.1.0.0 Изделие закладное МН3а ТП 902-3-56м87-КЖИ-53.1.1.0 Каркас плоский КР-8а ТП 902-3-56м87-КЖИ-53.1.2.0 Каркас плоский КР-9а ТП 902-3-56м87-КЖИ-66.1.0.0 Каркас пространственный КП1Е ТП 902-3-56м87-КЖИ-66.1.1.0 Каркас плоский КР1Е ТП 902-3-56м87-КЖИ-67.1.0.0 Каркас пространственный КП2Е ТП 902-3-56м87-КЖИ-67.1.1.0 Каркас плоский КР2Е ТП 902-3-56м87-КЖИ-68.0.1.0 Сетка арматурная (С1Е;С2Е) ТП 902-3-56м87-КЖИ-69.0.1.0 Сетка арматурная С3Е ТП 902-3-56м87-КЖИ-51.0.1.0 Изделие закладное МН1Е |
| Разработан: | ЦНИИЭП инженерного оборудования |
| Утверждён: | 15.12.1986 Госгражданстрой (Gosgrazhdanstroy 422) |
| Издан: | ЦИТП Госстроя СССР (CITP, Gosstroy (USSR) 1988 г. ) |


















































