Скачать Типовой проект 902-3-56м.87 Альбом V. Электротехнические решения. Автоматизация и КИП. Связь и сигнализация (из ТП 902-3-57м.87)Дата актуализации: 01.01.2021
|
| Обозначение: | Типовой проект 902-3-56м.87 |
| Обозначение англ: | 902-3-56м.87 |
| Статус: | не определен законодательством |
| Название рус.: | Альбом V. Электротехнические решения. Автоматизация и КИП. Связь и сигнализация (из ТП 902-3-57м.87) |
| Дата добавления в базу: | 01.09.2013 |
| Дата актуализации: | 01.01.2021 |
| Дата введения: | 15.12.1986 |
| Дата окончания срока действия: | 30.06.2003 |
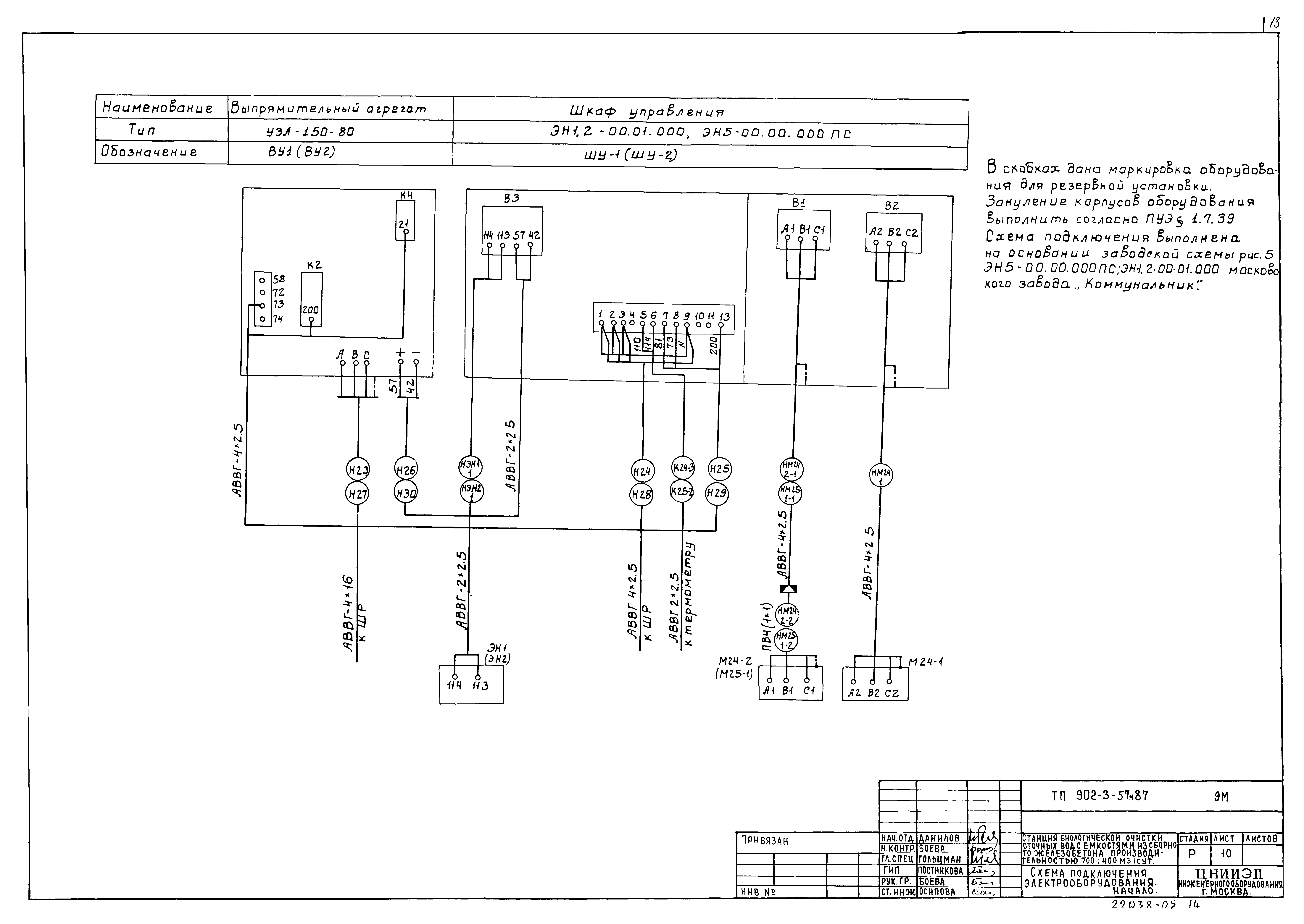
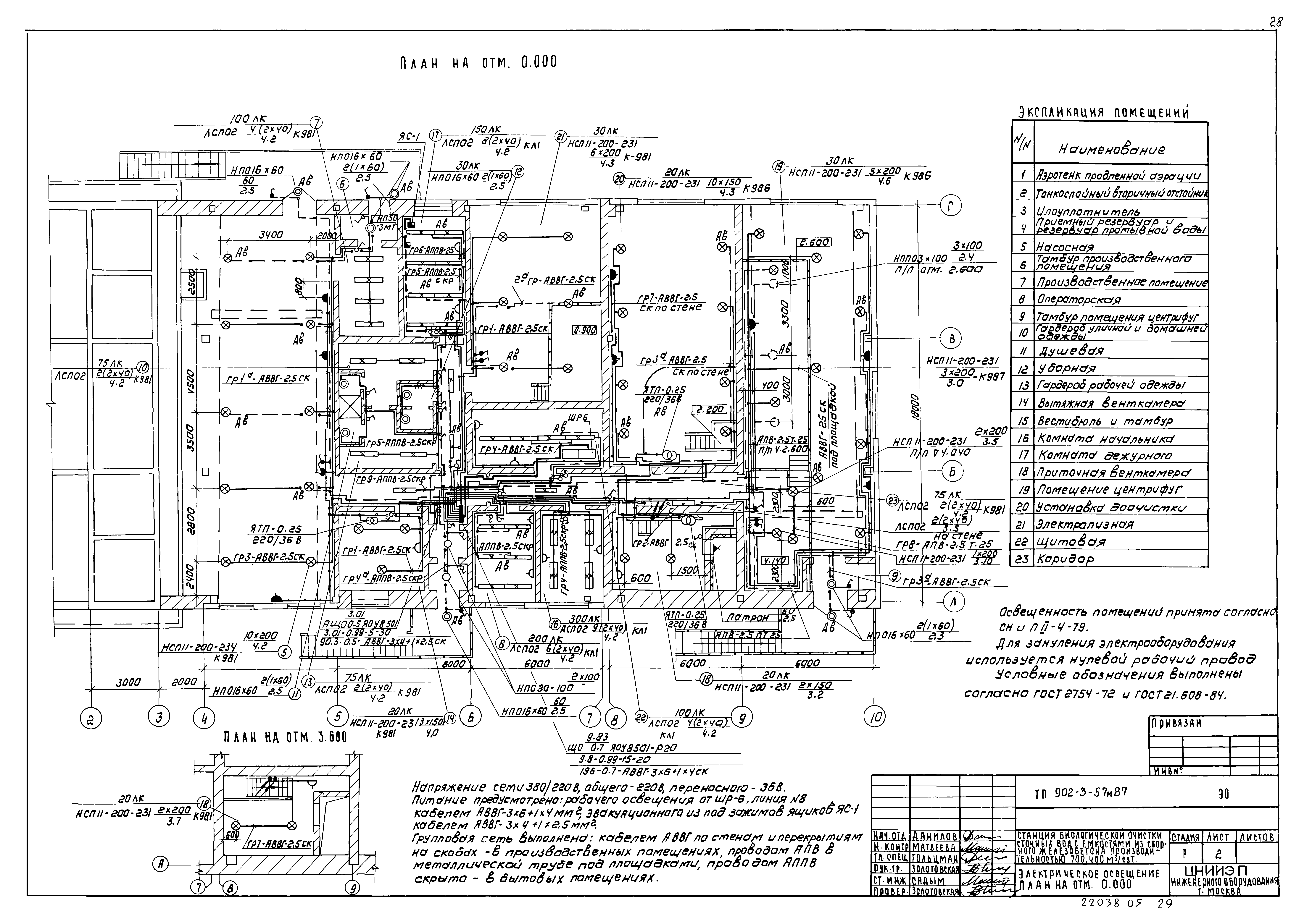
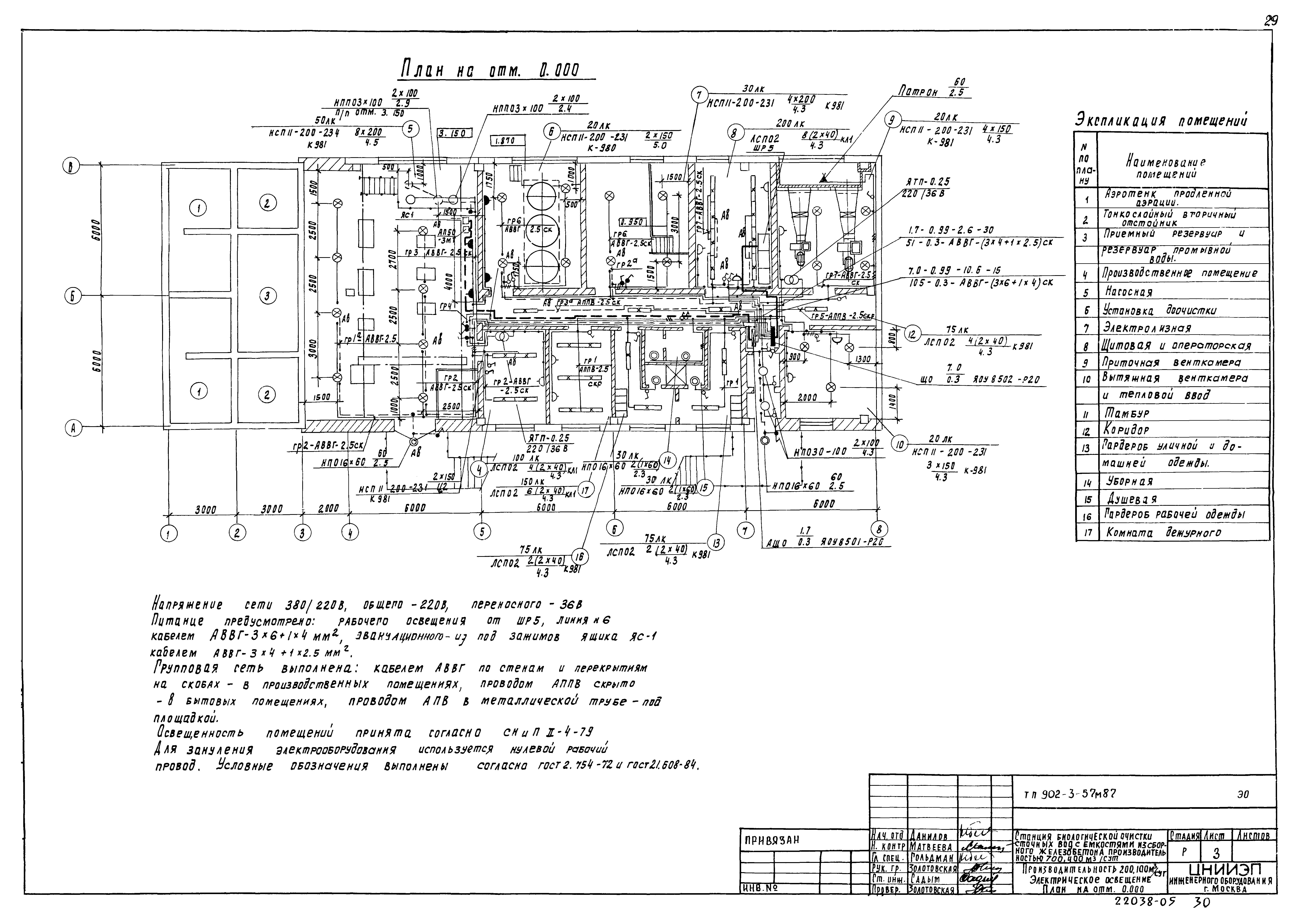
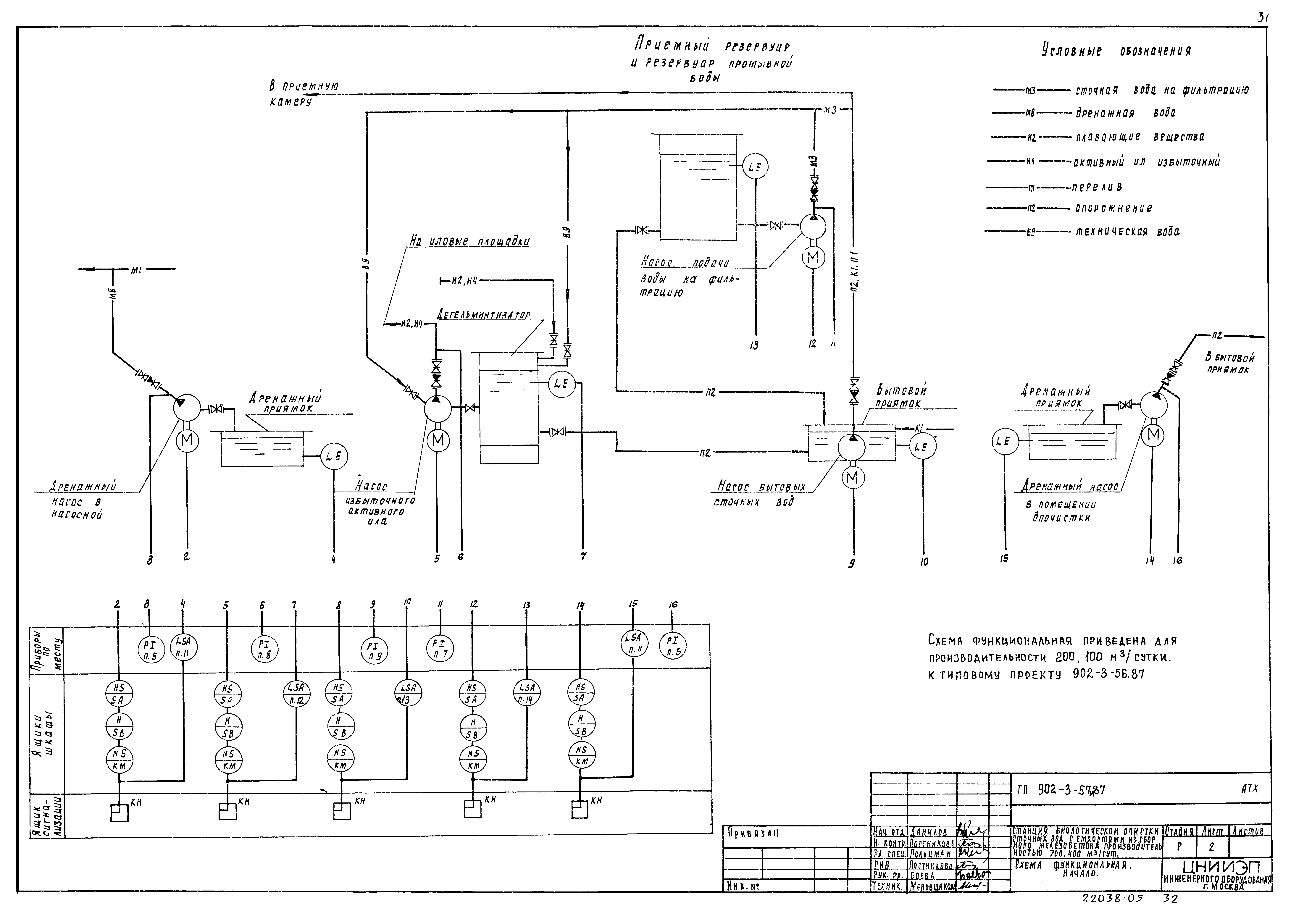
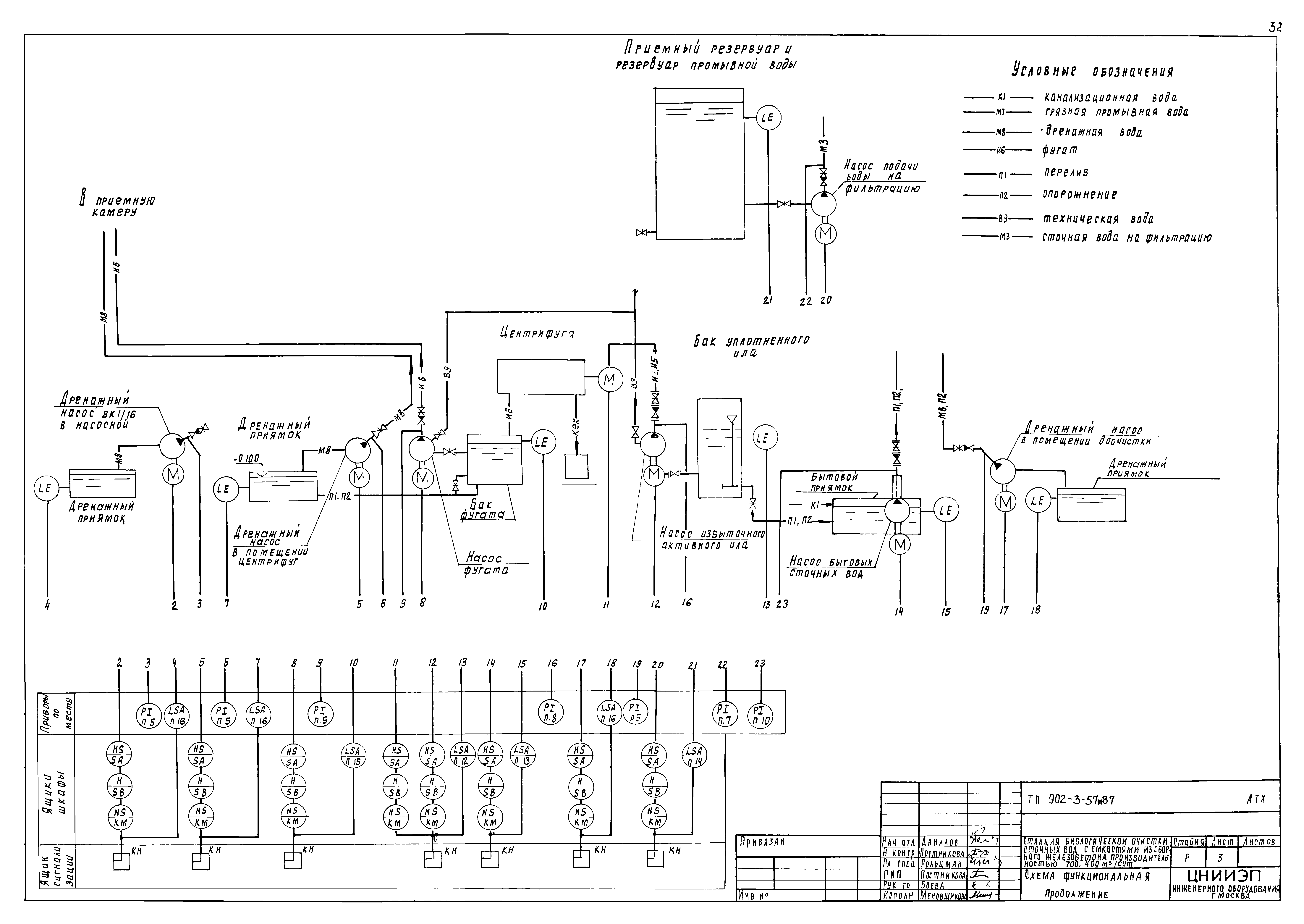
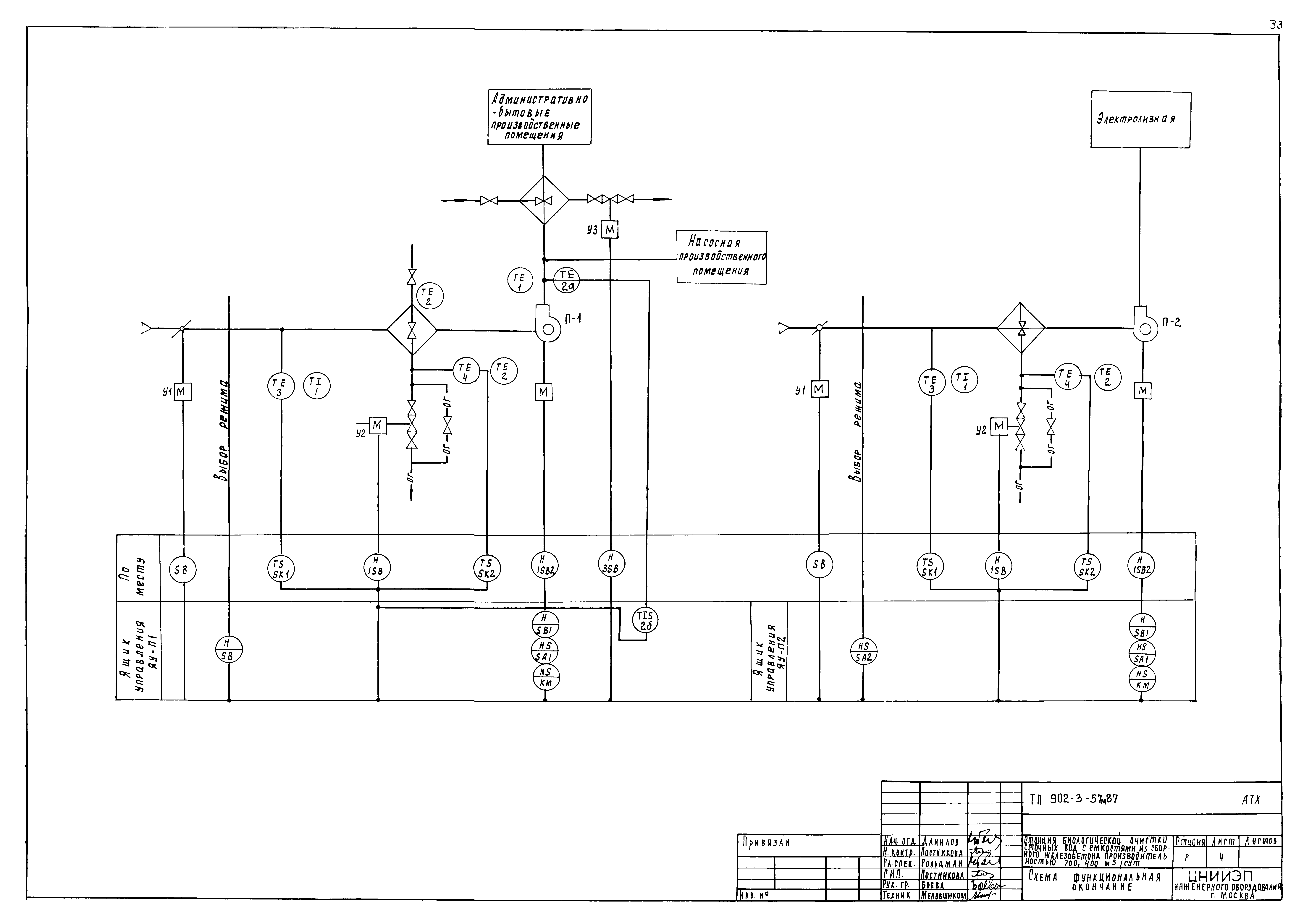
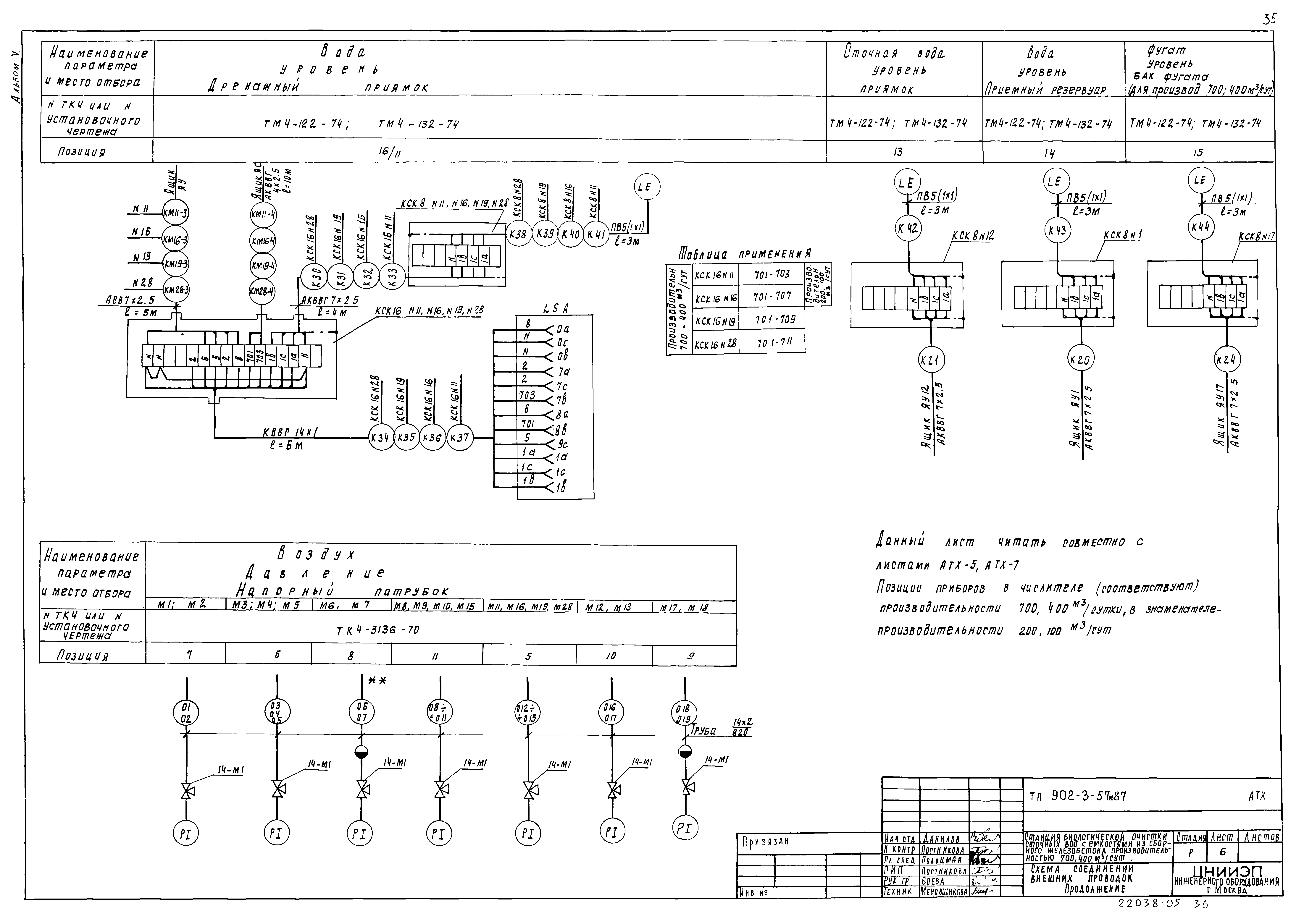
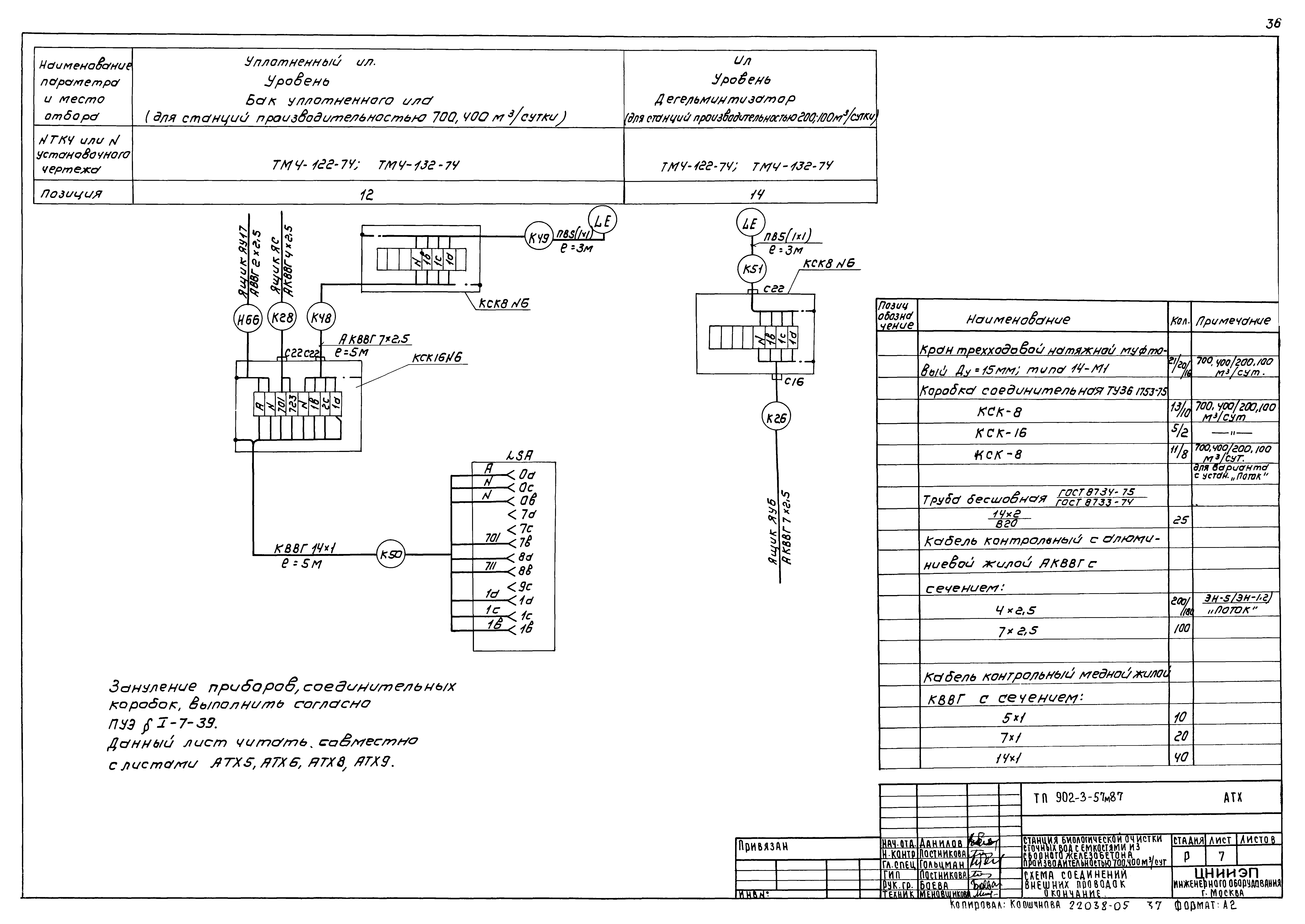
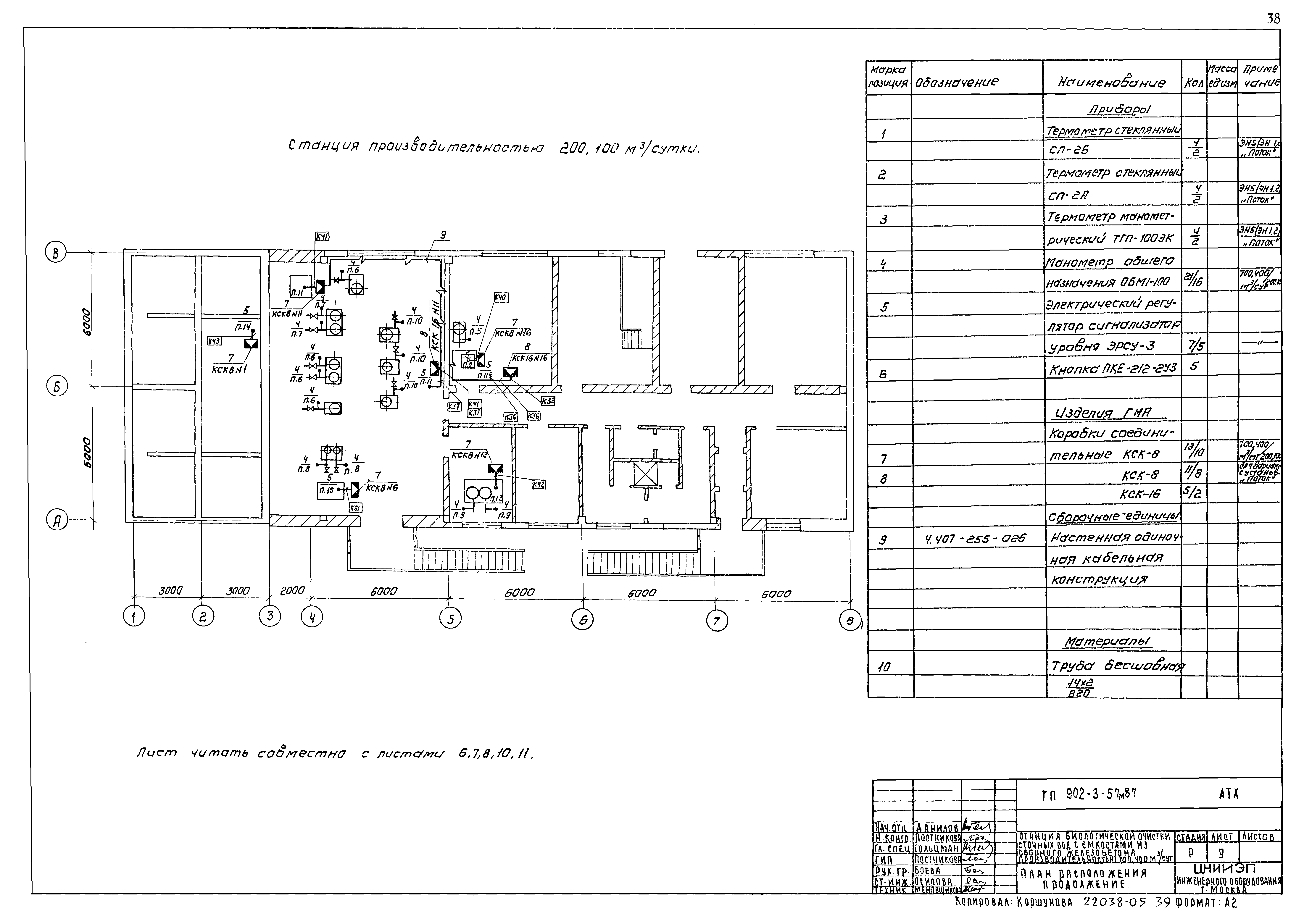
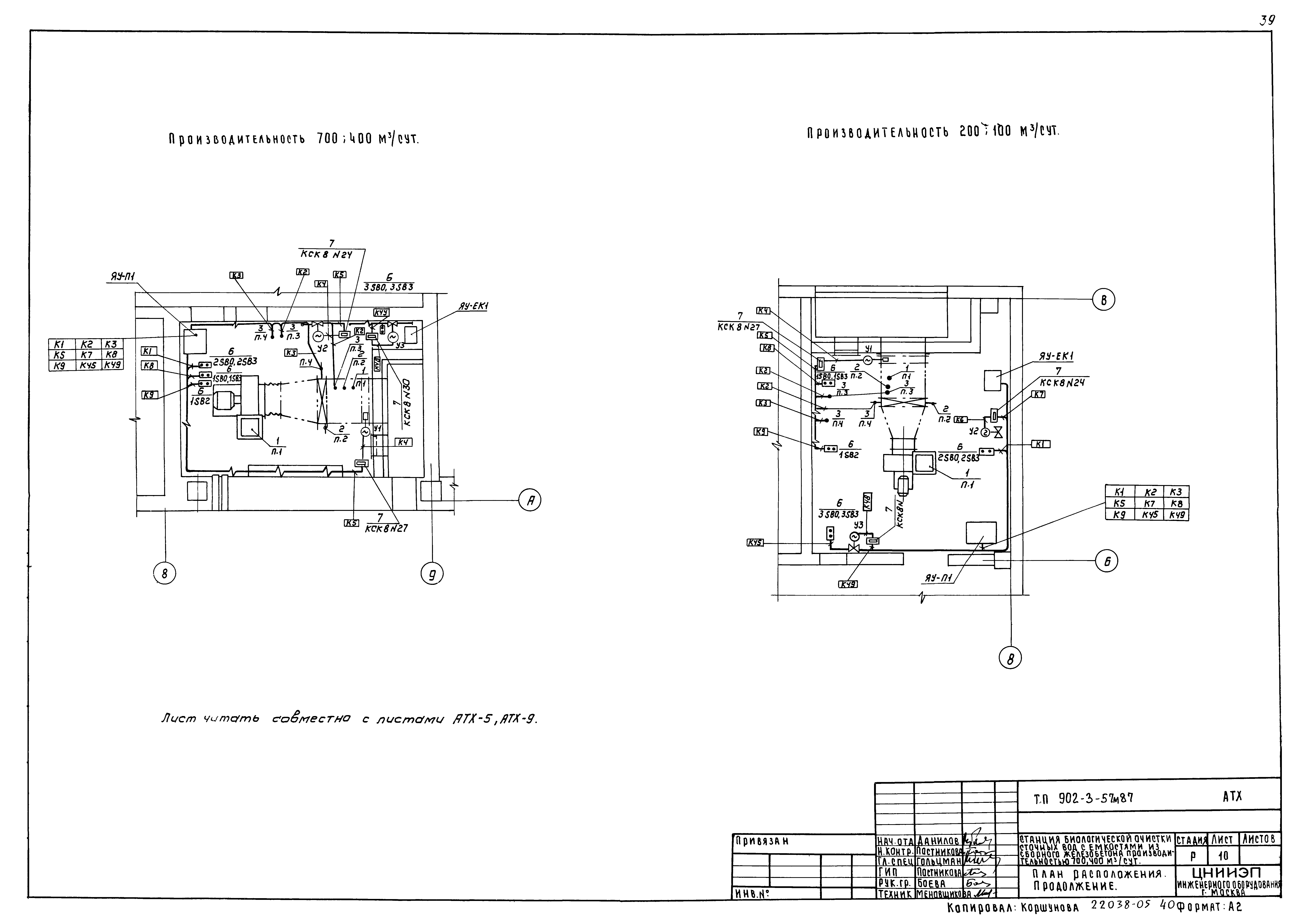
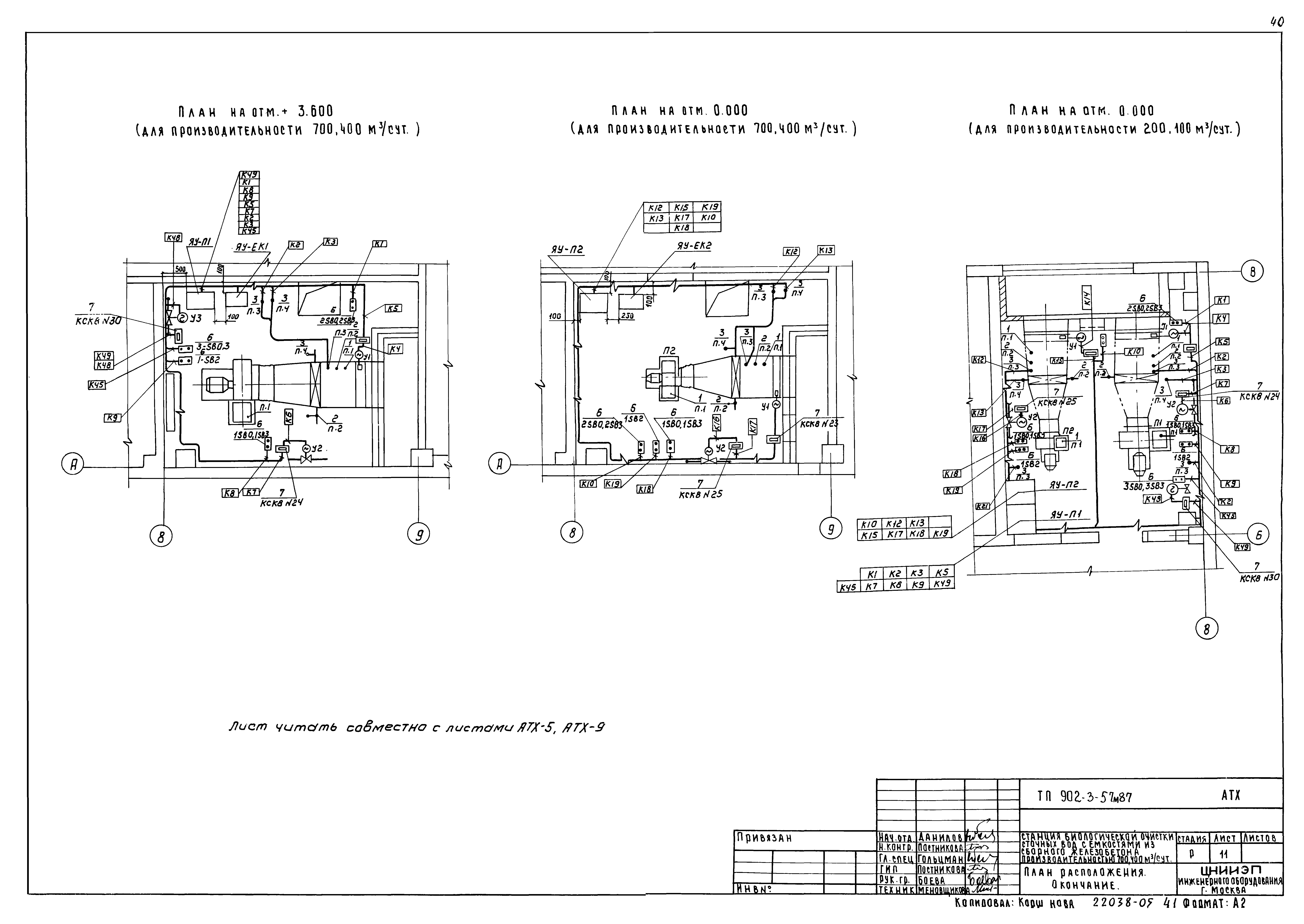
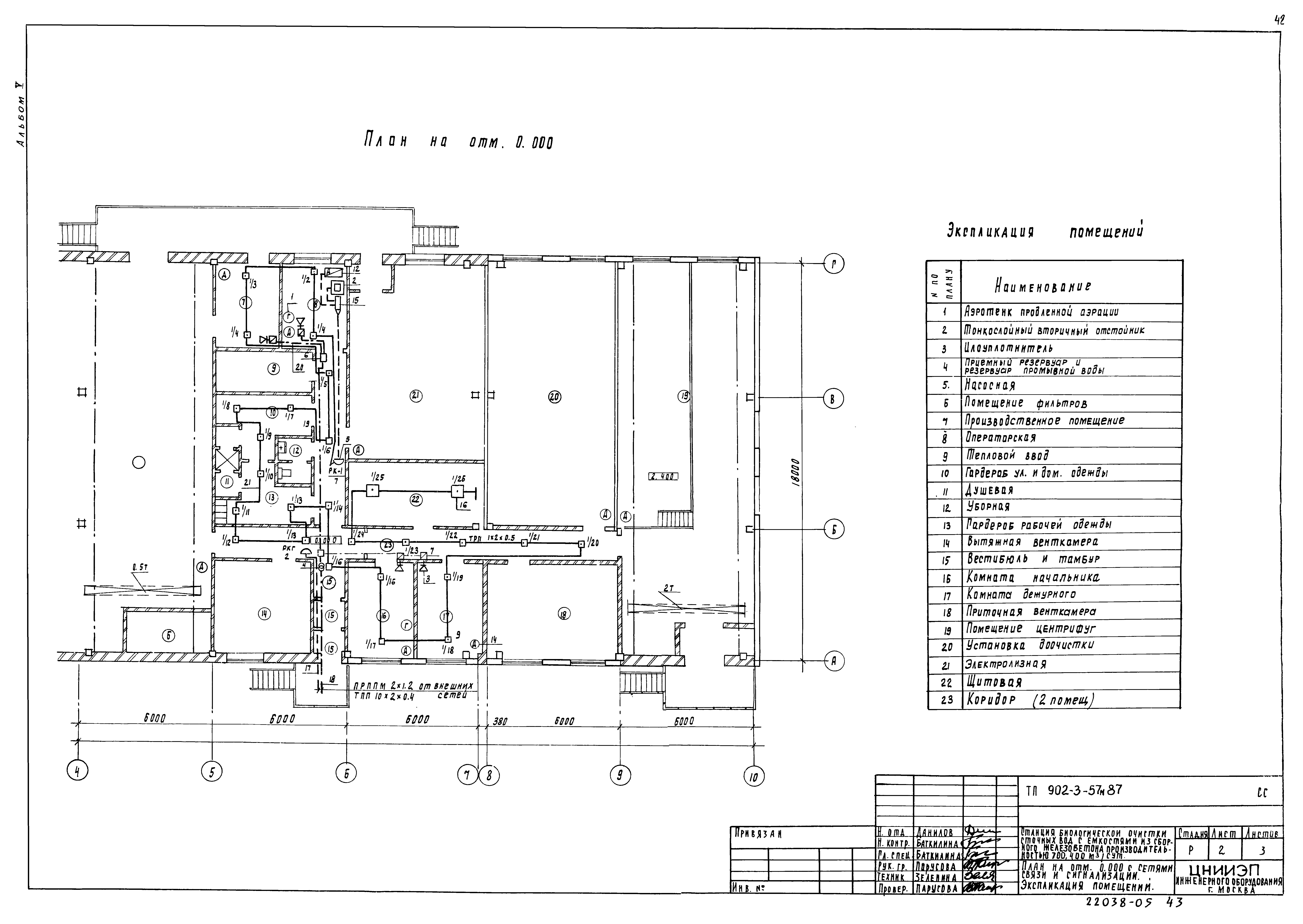
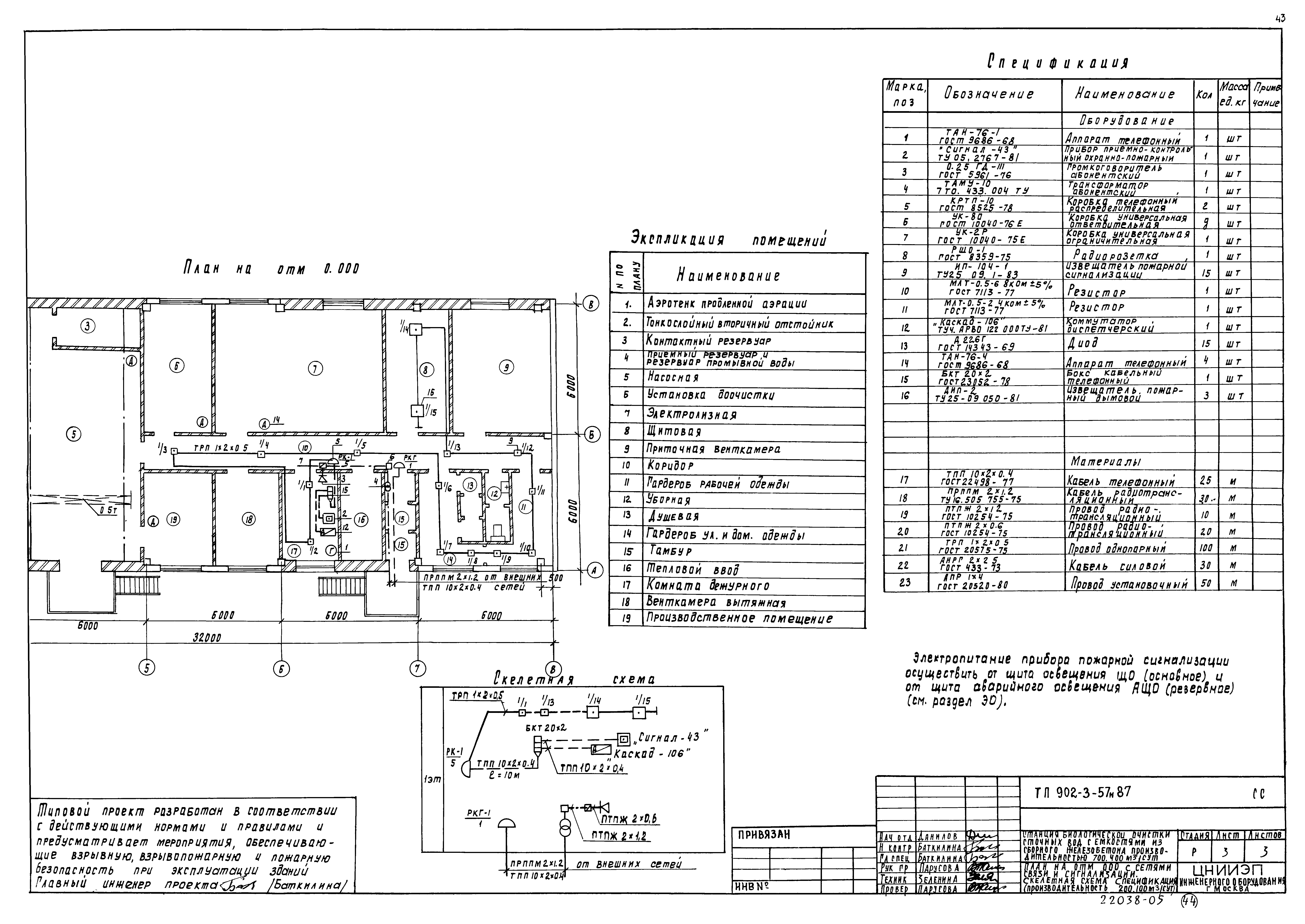
| Оглавление: | ТП 902-3-57м87-ЭМ-1 Общие данные ТП 902-3-57м87-ЭМ-2 Схема электрическая принципиальная питания электрооборудования. Начало ТП 902-3-57м87-ЭМ-3 Схема электрическая принципиальная питания электрооборудования. Продолжение ТП 902-3-57м87-ЭМ-4 Схема электрическая принципиальная питания электрооборудования. Продолжение ТП 902-3-57м87-ЭМ-5 Схема электрическая принципиальная питания электрооборудования. Продолжение ТП 902-3-57м87-ЭМ-6 Схема электрическая принципиальная питания электрооборудования. Окончание ТП 902-3-57м87-ЭМ-7 Схема электрическая принципиальная управления насосами уплотненного ила ТП 902-3-57м87-ЭМ-8 Схема электрическая принципиальная управления дренажными насосами и центрифугами ТП 902-3-57м87-ЭМ-9 Схема электрическая принципиальная аварийной сигнализации ТП 902-3-57м87-ЭМ-10 Схема подключения электрооборудования. Начало ТП 902-3-57м87-ЭМ-11 Схема подключения электрооборудования. Продолжение ТП 902-3-57м87-ЭМ-12 Схема подключения электрооборудования. Продолжение ТП 902-3-57м87-ЭМ-13 Схема подключения электрооборудования. Продолжение ТП 902-3-57м87-ЭМ-14 Схема подключения электрооборудования. Окончание ТП 902-3-57м87-ЭМ-15 Кабельный журнал. Начало ТП 902-3-57м87-ЭМ-16 Кабельный журнал. Продолжение ТП 902-3-57м87-ЭМ-17 Кабельный журнал. Продолжение ТП 902-3-57м87-ЭМ-18 Кабельный журнал. Продолжение ТП 902-3-57м87-ЭМ-19 Кабельный журнал. Окончание ТП 902-3-57м87-ЭМ-20 Размещение электрооборудования и прокладка кабеля. Начало ТП 902-3-57м87-ЭМ-21 Размещение электрооборудования и прокладка кабеля. Продолжение ТП 902-3-57м87-ЭМ-22 Размещение электрооборудования и прокладка кабеля. Продолжение ТП 902-3-57м87-ЭМ-23 Размещение электрооборудования и прокладка кабеля. Окончание ТП 902-3-57м87-ЭО-1 Общие данные ТП 902-3-57м87-ЭО-2 Электрическое освещение. План на отм. 0.000 ТП 902-3-57м87-ЭО-3 Производительность 200,100 м³/сутки ТП 902-3-57м87-АТХ Электрическое освещение. План на отм. 0.000 ТП 902-3-57м87-АТХ-1 Общие данные ТП 902-3-57м87-АТХ-2 Схема функциональная. Начало ТП 902-3-57м87-АТХ-3 Схема функциональная. Продолжение ТП 902-3-57м87-АТХ-4 Схема функциональная. Окончание ТП 902-3-57м87-АТХ-5 Схема соединений внешних проводок. Начало ТП 902-3-57м87-АТХ-6 Схема соединений внешних проводок. Продолжение ТП 902-3-57м87-АТХ-7 Схема соединений внешних проводок. Окончание ТП 902-3-57м87-АТХ-8 План расположения. Начало ТП 902-3-57м87-АТХ-9 План расположения. Продолжение ТП 902-3-57м87-АТХ-10 План расположения. Продолжение ТП 902-3-57м87-АТХ-11 План расположения. Окончание ТП 902-3-57м87-СС-1 Общие данные. Скелетная схема. Спецификация ТП 902-3-57м87-СС-2 План на отм. 0.000 с сетями связи и сигнализации. Экспликация помещений ТП 902-3-57м87-СС-3 План на отм. 0.000 с сетями связи и сигнализации. Спецификация. Производительность 200,100 м³/сутки |
| Разработан: | ЦНИИЭП инженерного оборудования |
| Утверждён: | 15.12.1986 Госгражданстрой (Gosgrazhdanstroy 422) |
| Издан: | ЦИТП Госстроя СССР (CITP, Gosstroy (USSR) 1988 г. ) |












































