Скачать Типовой проект 904-1-77.87 Альбом 3. Силовое электрооборудование, электрическое освещение, связь и сигнализацияДата актуализации: 01.01.2021
|
| Обозначение: | Типовой проект 904-1-77.87 |
| Обозначение англ: | 904-1-77.87 |
| Статус: | не действует |
| Название рус.: | Альбом 3. Силовое электрооборудование, электрическое освещение, связь и сигнализация |
| Дата добавления в базу: | 01.09.2013 |
| Дата актуализации: | 01.01.2021 |
| Дата введения: | 11.09.1987 |
| Дата окончания срока действия: | 01.01.1990 |
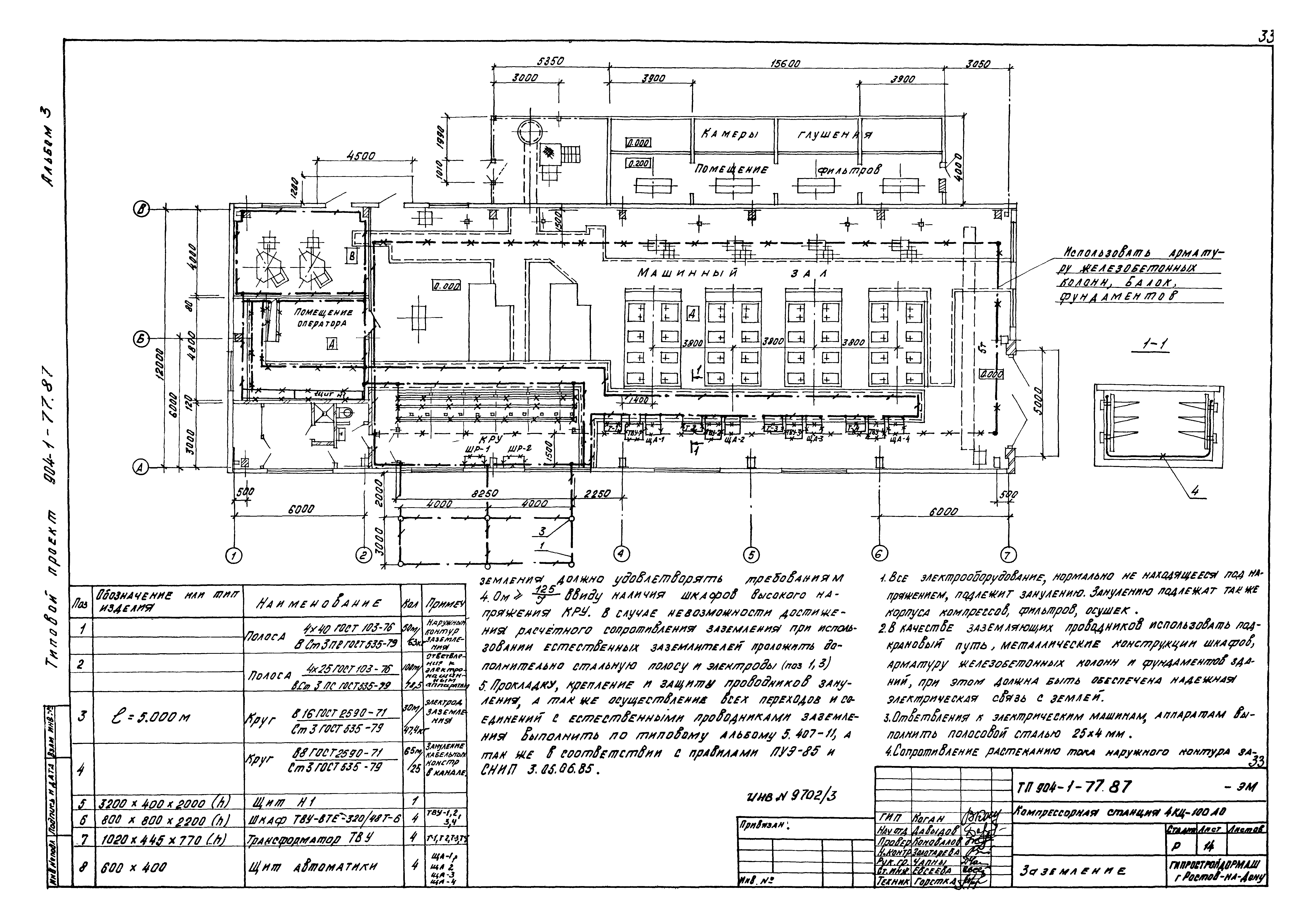
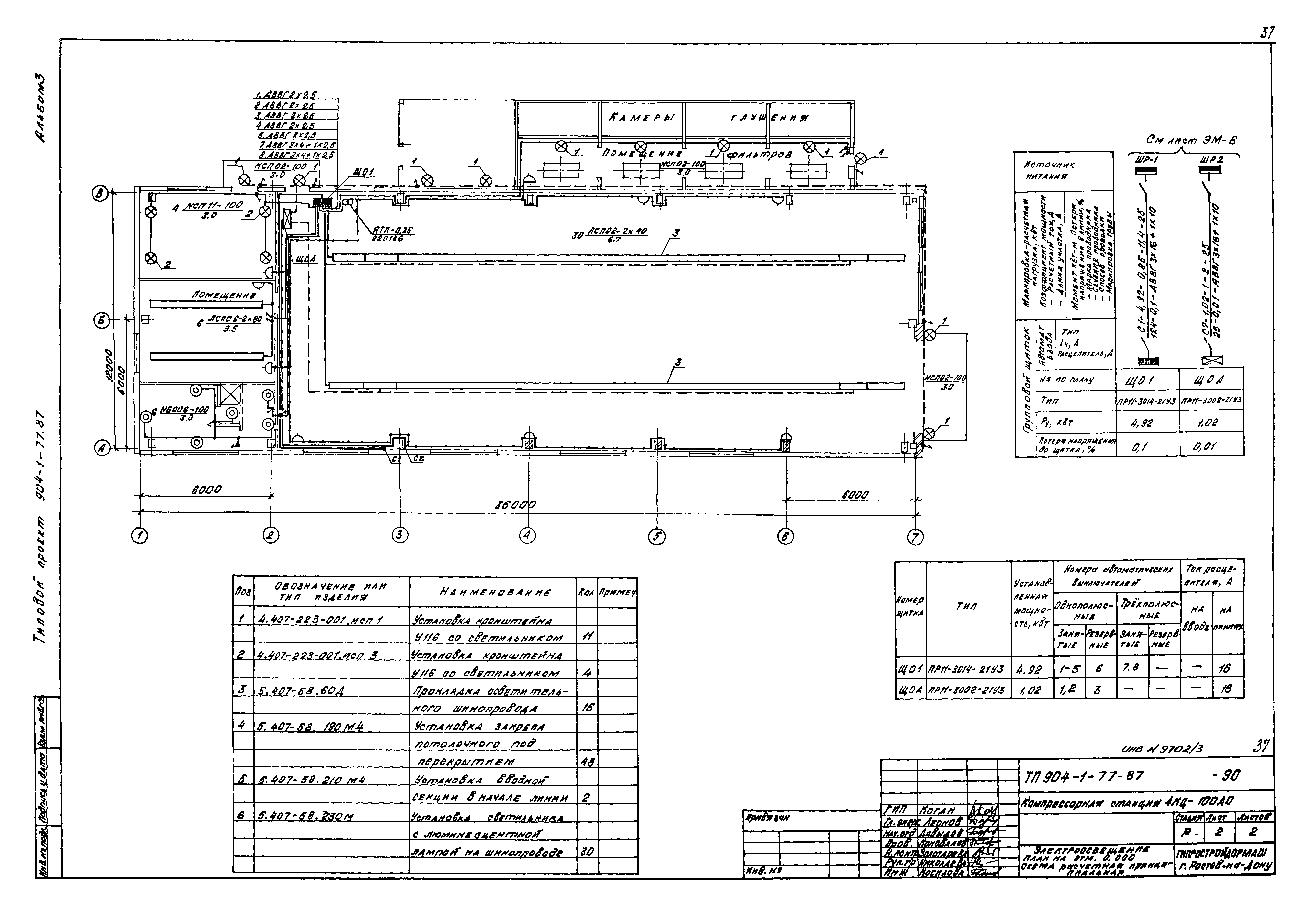
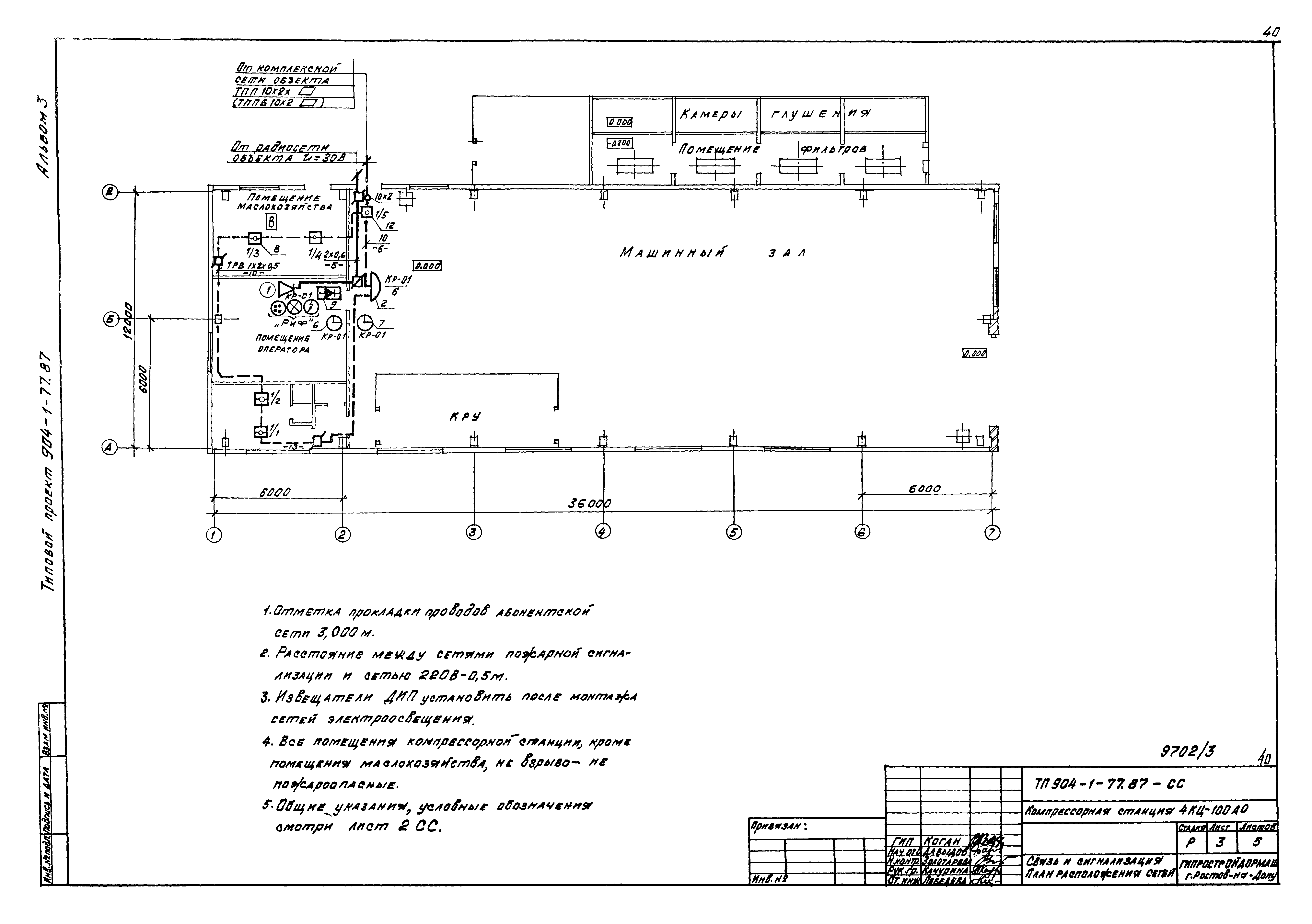
| Оглавление: | ТП 904-1-77.87 Титульный лист ТП 904-1-77.87 Содержание альбома ТП 904-1-77.87-ЭС Распредустройство 10(6) кВ ТП 904-1-77.87-ЭС-1 Общие данные ТП 904-1-77.87-ЭС-2 Размещение электрооборудования. Элемент плана на отм. 0.000 ТП 904-1-77.87-ЭС-3 Прокладка кабелей. Элемент плана на отм. 0.000 ТП 904-1-77.87-ЭС-4 Распредустройство 10(6) кВ. Принципиальная однолинейная схема ТП 904-1-77.87-ЭС-5 Ввод 1. Схема электрическая принципиальная (полная) ТП 904-1-77.87-ЭС-6 Ввод 2. Схема электрическая принципиальная (полная) ТП 904-1-77.87-ЭС-7 Трансформатор напряжения. Схема электрическая принципиальная (полная) ТП 904-1-77.87-ЭС-8 Трансформатор собственных нужд. Схема электрическая принципиальная (полная) ТП 904-1-77.87-ЭС-9 Шкаф с низковольтной аппаратурой собственных нужд. Схема электрическая принципиальная (полная) ТП 904-1-77.87-ЭС-10 Синхронный электродвигатель. Схема электрическая принципиальная (полная) ТП 904-1-77.87-ЭС-11 Расчет релейных защит ТП 904-1-77.87-ЭС-12 Лист опросный на поставку устройства комплектного распределительного типа КМ-1Ф-10-20-У3 ТП 904-1-77.87-ЭС-13 Лист опросный на поставку устройства комплектного распределительного типа КМ-1Ф-10-20-У4 ТП 904-1-77.87-ЭС-14 Лист опросный на поставку устройства комплектного распределительного типа КМ-1Ф-10-20-У5 ТП 904-1-77.87-ЭС-15 Синхронный электродвигатель. Схема подключения ТП 904-1-77.87-ЭС-16 Ввод 1(2). Схема (подключения) ТП 904-1-77.87-ЭС-17 Трансформатор напряжения. Схема подключения ТП 904-1-77.87-ЭС-18 Трансформатор собственных нужд. Схема подключения ТП 904-1-77.87-ЭС-17 Шкаф с низковольтной аппаратурой собственных нужд. Схема подключения ТП 904-1-77.87-ЭМ Силовое электрооборудование ТП 904-1-77.87-ЭМ-1 Общие данные ТП 904-1-77.87-ЭМ-2 Общие данные ТП 904-1-77.87-ЭМ-3 Технические данные электроприемников ТП 904-1-77.87-ЭМ-4 Щит защищенный однорядный Н1. Расчетная схема ТП 904-1-77.87-ЭМ-5 Щит защищенный однорядный Н1. Расчетная схема ТП 904-1-77.87-ЭМ-6 Шкафы ШР-1,ШР-2. Расчетная схема ТП 904-1-77.87-ЭМ-7 Схема подключения контрольных цепей шкафа тиристорного возбудительного устройства ТП 904-1-77.87-ЭМ-8 Схема подключения силовых цепей привода компрессорного агрегата ТП 904-1-77.87-ЭМ-9 Кабельный журнал ТП 904-1-77.87-ЭМ-10 Кабельный журнал ТП 904-1-77.87-ЭМ-11 Кабельный журнал ТП 904-1-77.87-ЭМ-12 Прокладка кабелей на отм. 0.000. План ТП 904-1-77.87-ЭМ-13 Прокладка кабелей. Разрезы ТП 904-1-77.87-ЭМ-14 Заземление ТП 904-1-77.87-ЭМ-15 Задание заводу-изготовителю. Перечень проектной документации для заказа НКУ ТП 904-1-77.87-ЭМ-16 Щит защищенный однорядный Н1. Таблица ТП 904-1-77.87-ЭМ-17 Щит защищенный однорядный Н1. Опросный лист ТП 904-1-77.87-ЭО Электроосвещение ТП 904-1-77.87-ЭО-1 Общие данные ТП 904-1-77.87-ЭО-2 План на отм. 0.000. Схема расчетная принципиальная ТП 904-1-77.87-СС Связь и сигнализация ТП 904-1-77.87-СС-1 Общие данные (начало) ТП 904-1-77.87-СС-2 Общие данные (окончание) ТП 904-1-77.87-СС-3 План расположения сети ТП 904-1-77.87-СС-4 Схемы расположение сетей. Вызывная сигнализация ТП 904-1-77.87-СС-5 План расположения сети |
| Разработан: | Гипростройдормаш |
| Утверждён: | 11.09.1987 Минстройдормаш (Minstroydormash 518) |
| Издан: | ЦИТП Госстроя СССР (CITP, Gosstroy (USSR) 1988 г. ) |











































