Скачать Типовой проект 902-2-148 Альбом 1. Архитектурно-строительная частьДата актуализации: 01.01.2021
|
| Обозначение: | Типовой проект 902-2-148 |
| Обозначение англ: | 902-2-148 |
| Статус: | не действует |
| Название рус.: | Альбом 1. Архитектурно-строительная часть |
| Дата добавления в базу: | 01.09.2013 |
| Дата актуализации: | 01.01.2021 |
| Дата введения: | 15.05.1973 |
| Дата окончания срока действия: | 01.02.1984 |
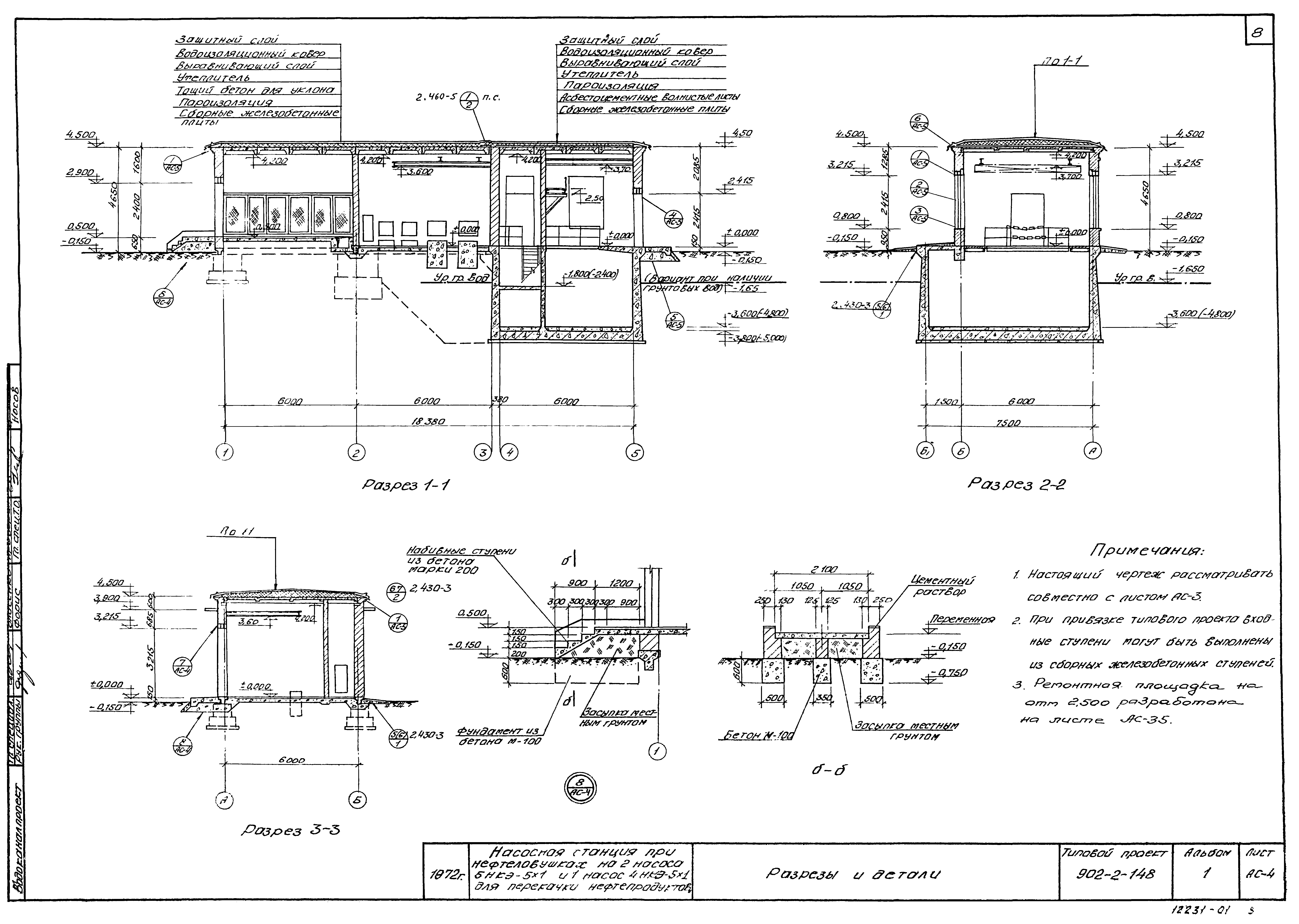
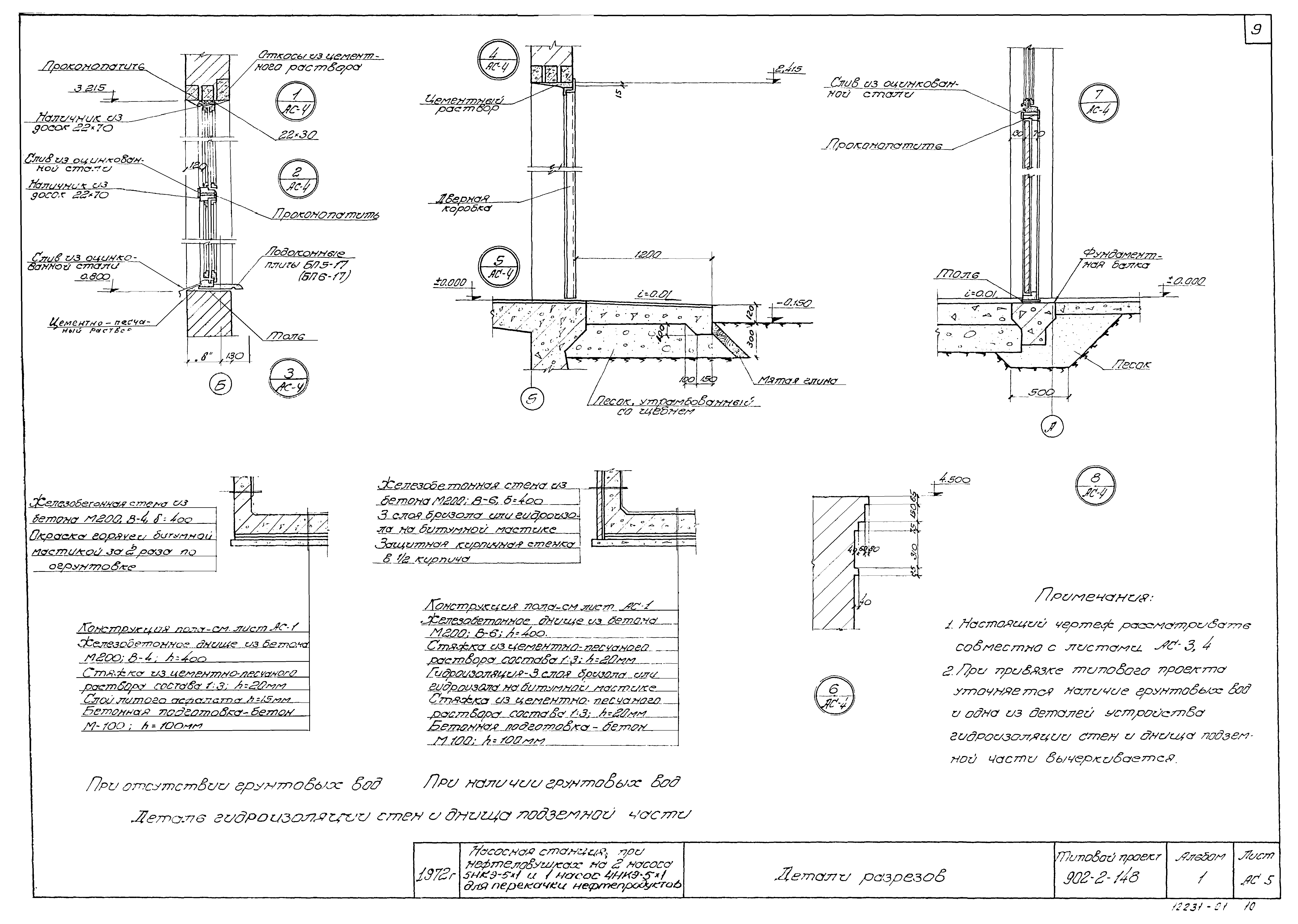
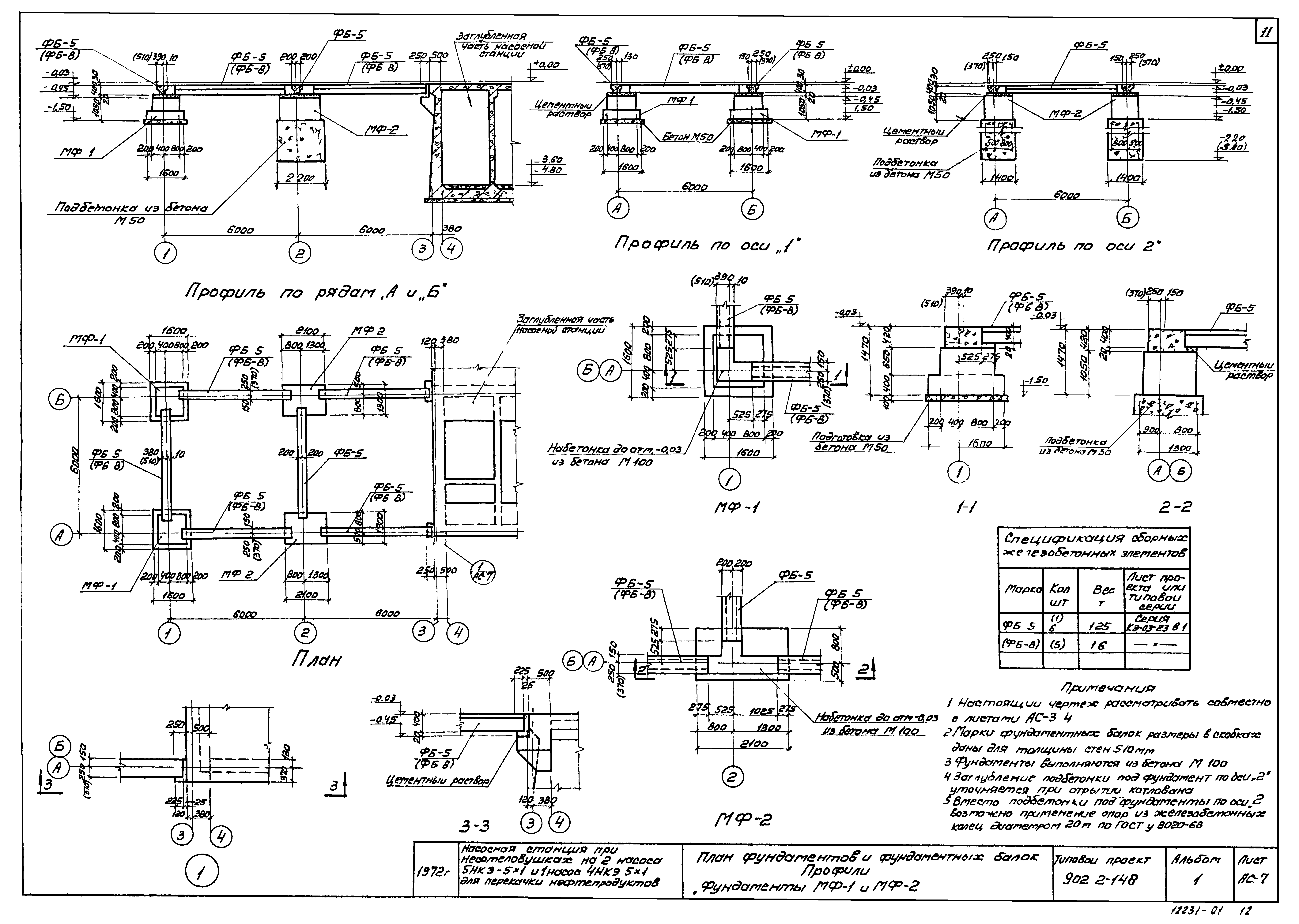
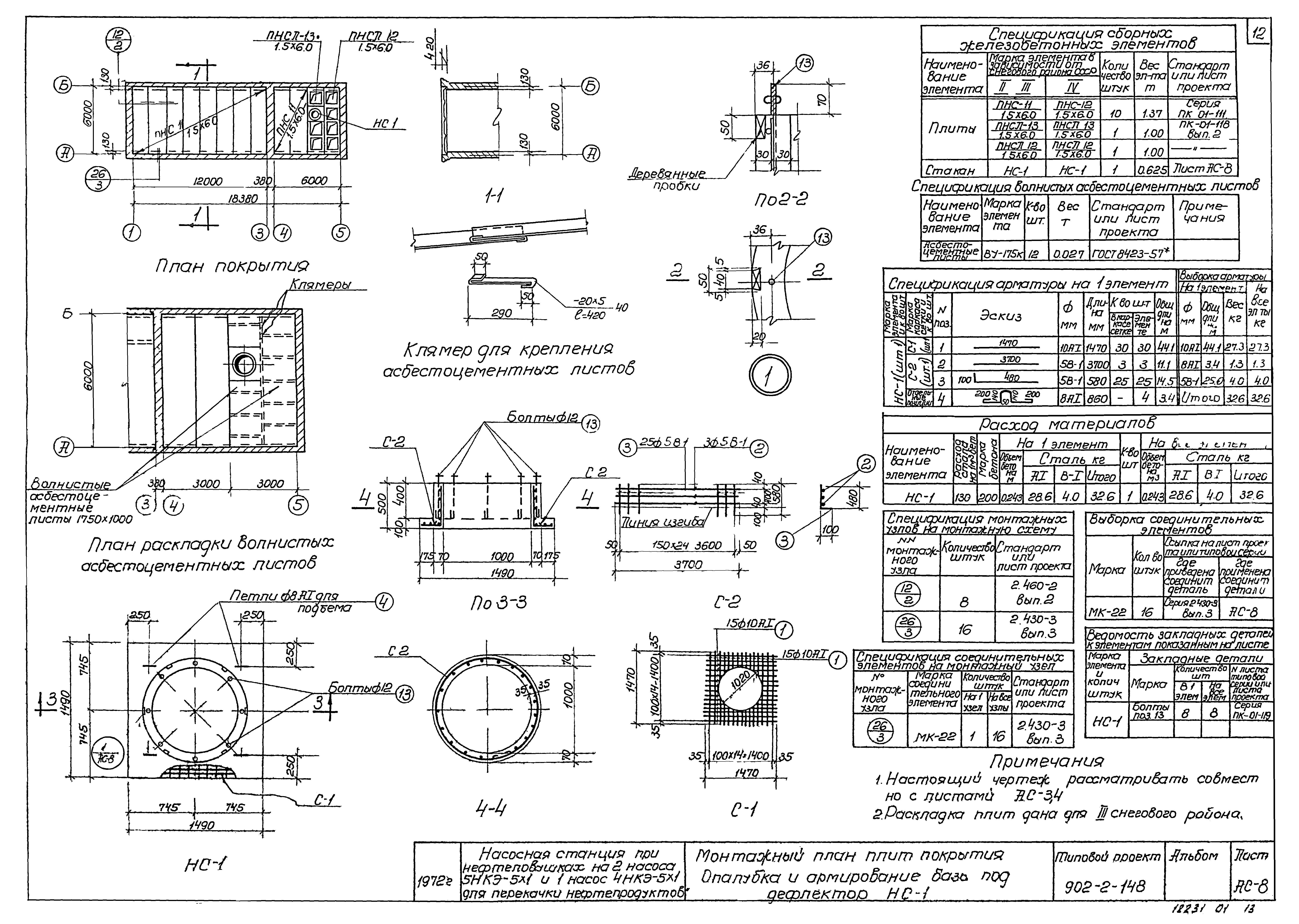
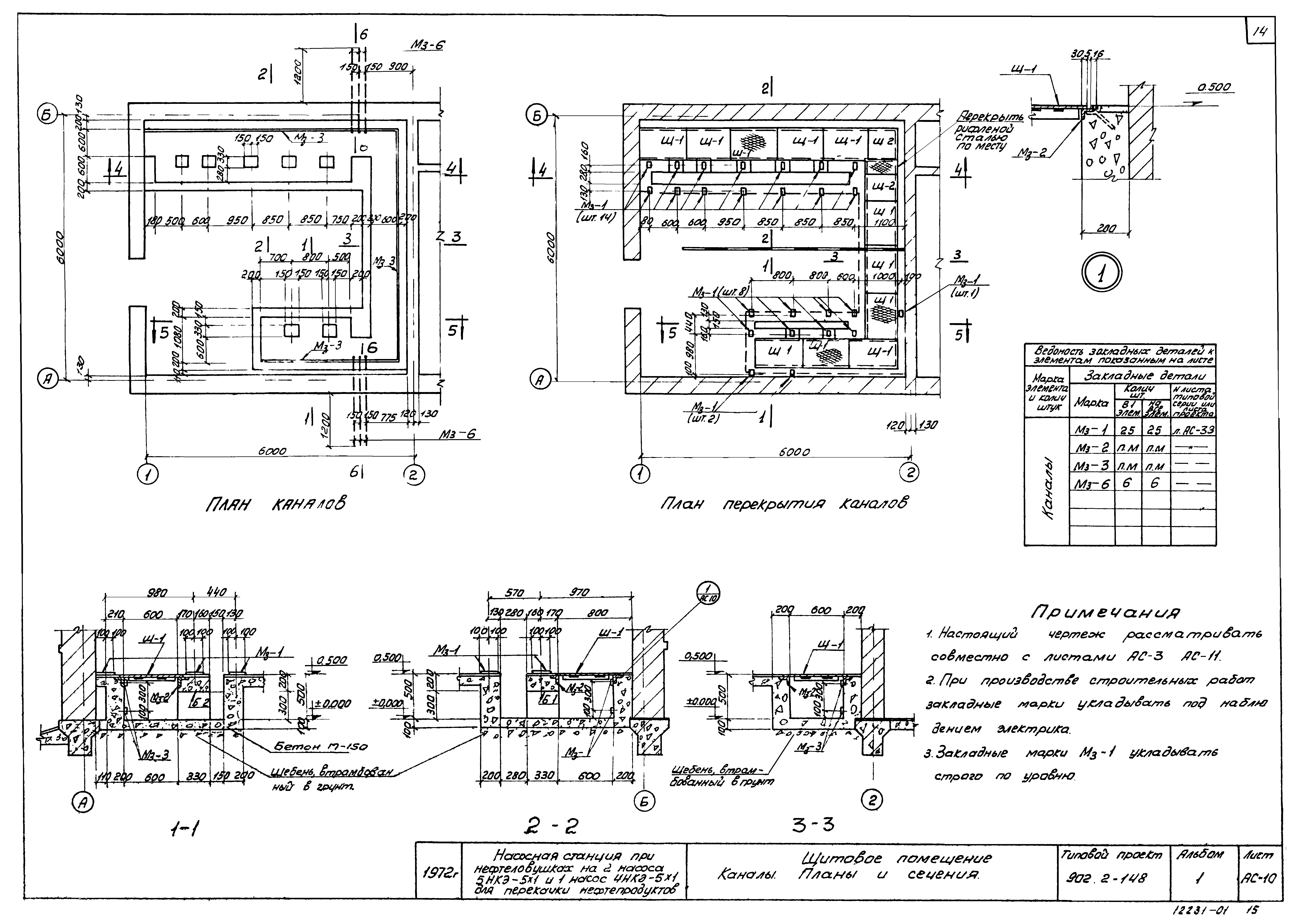
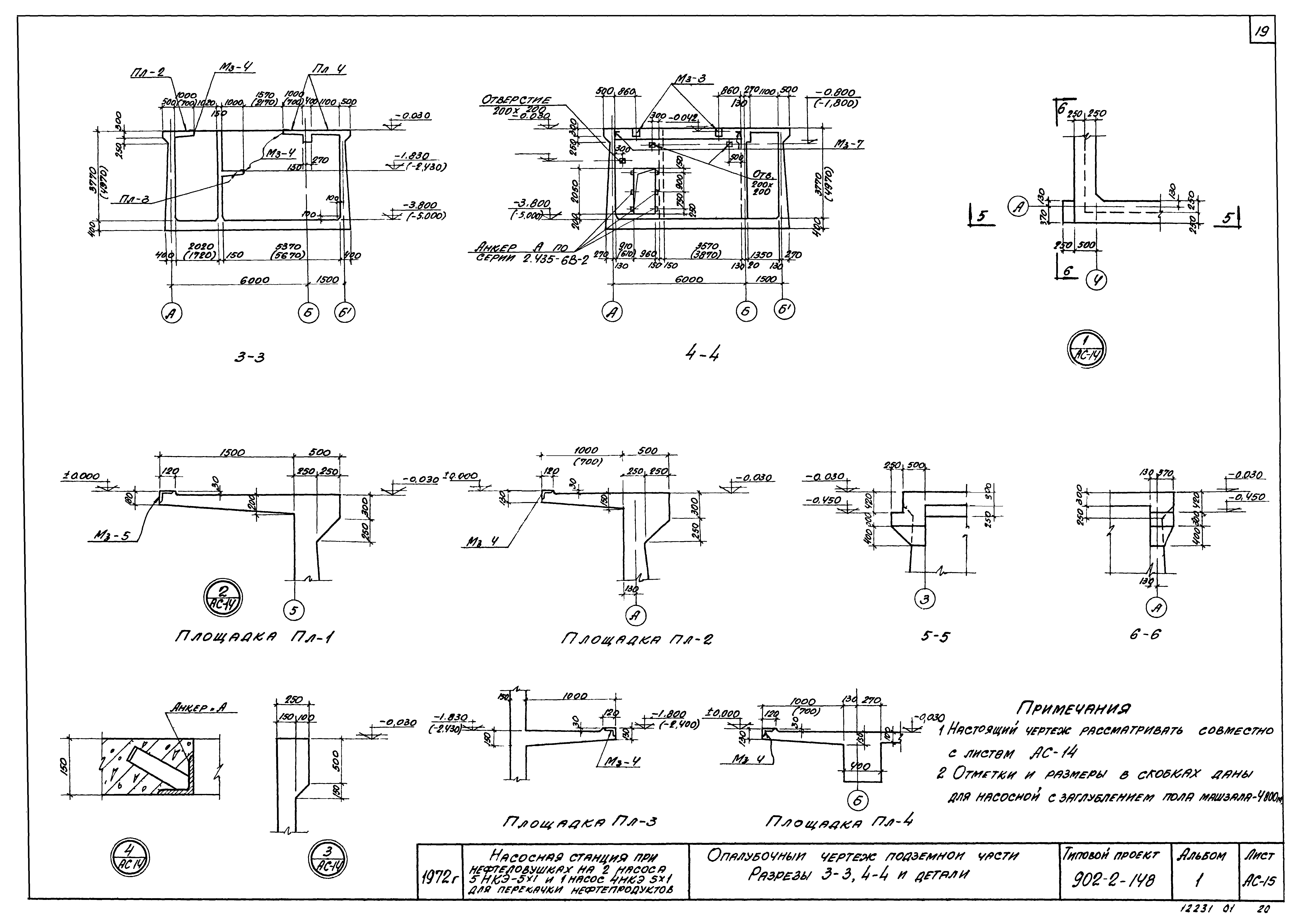
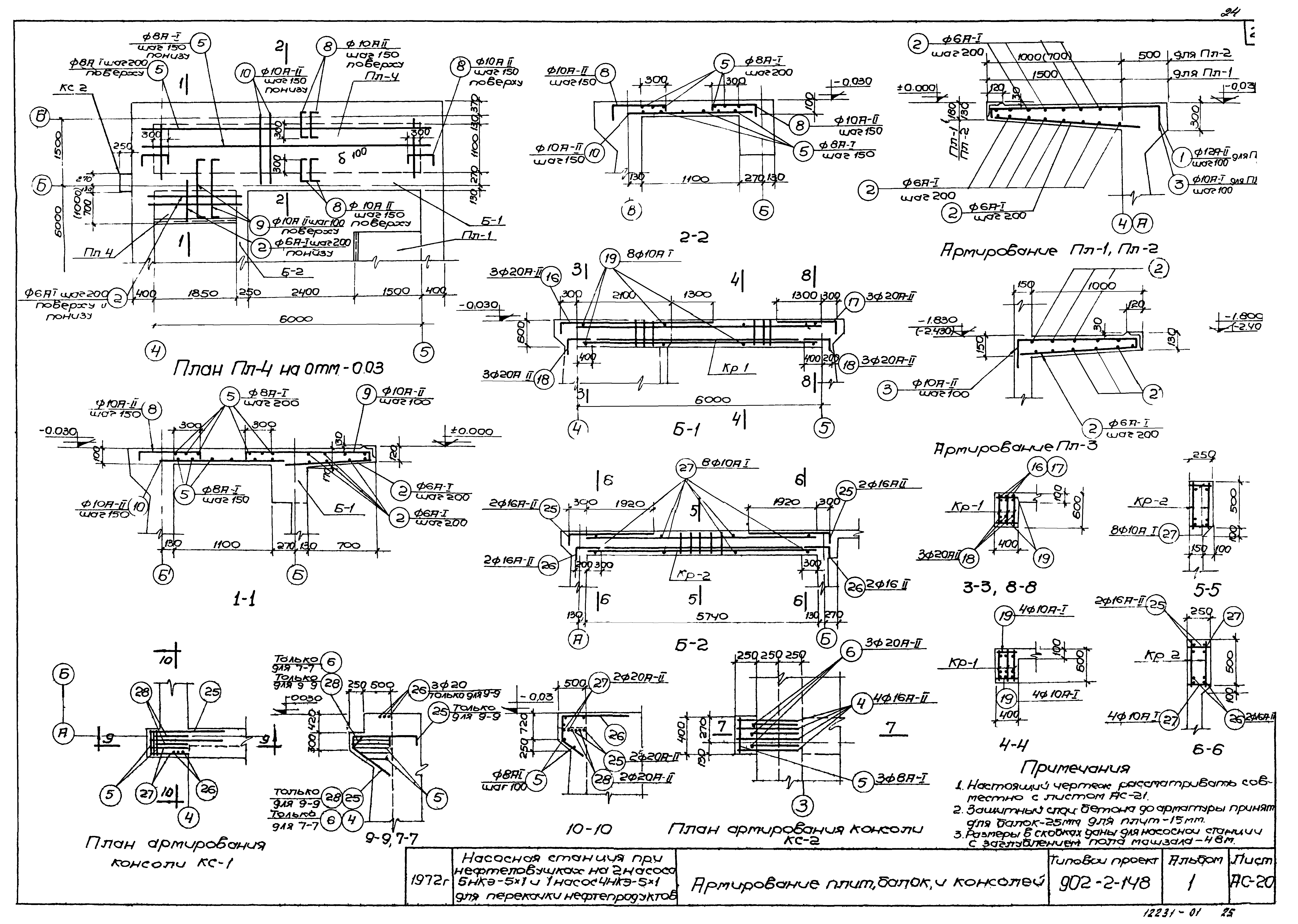
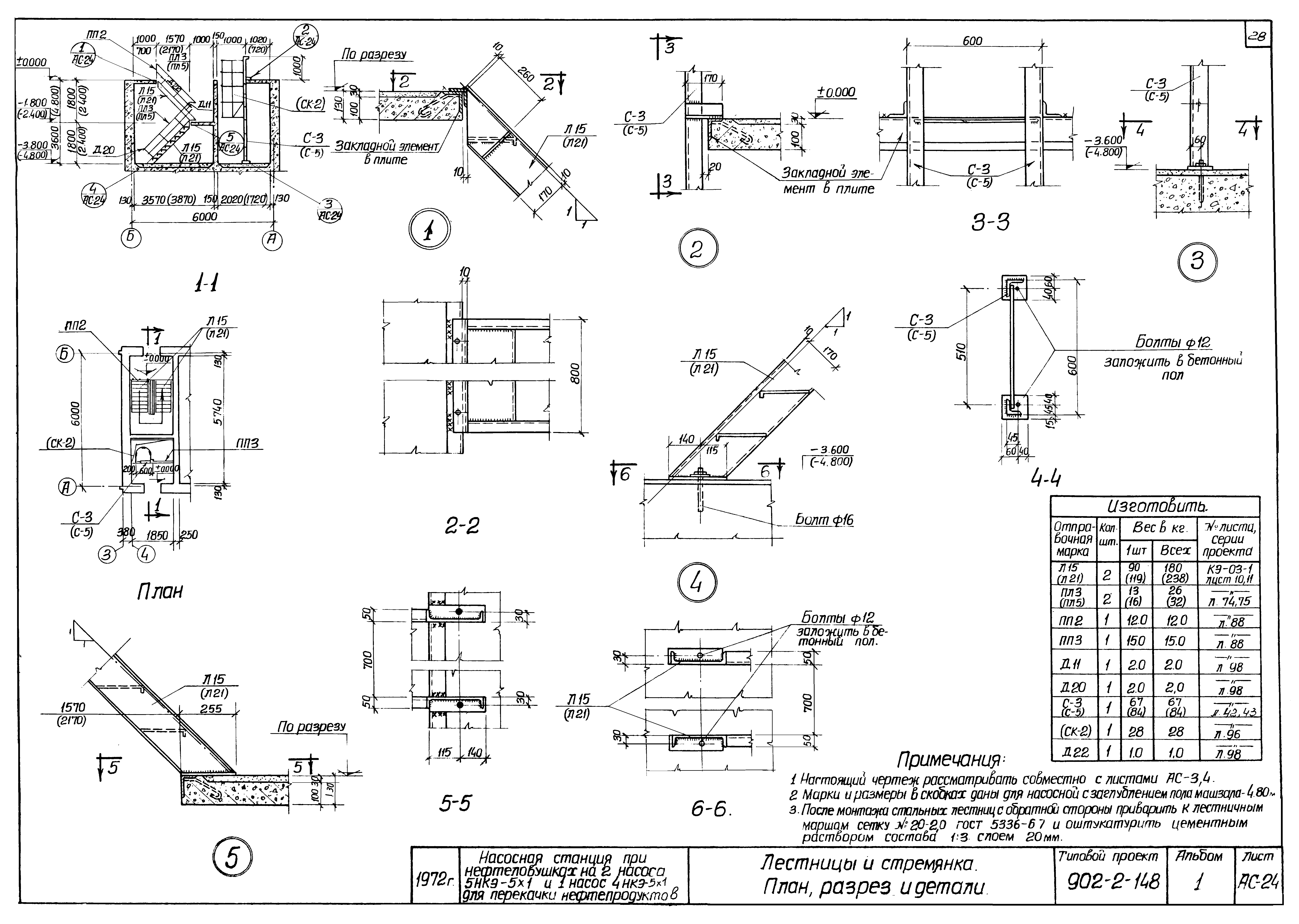
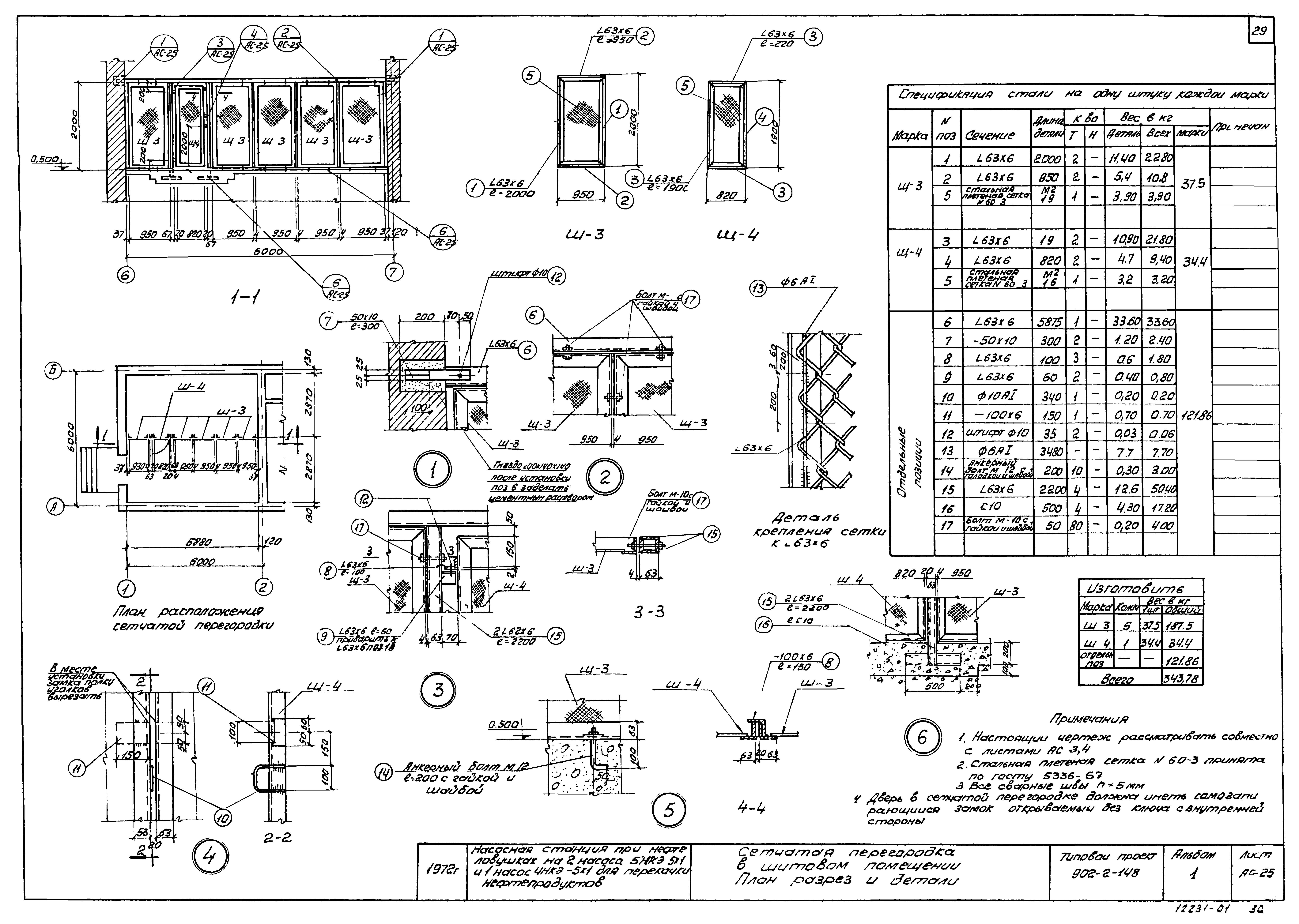
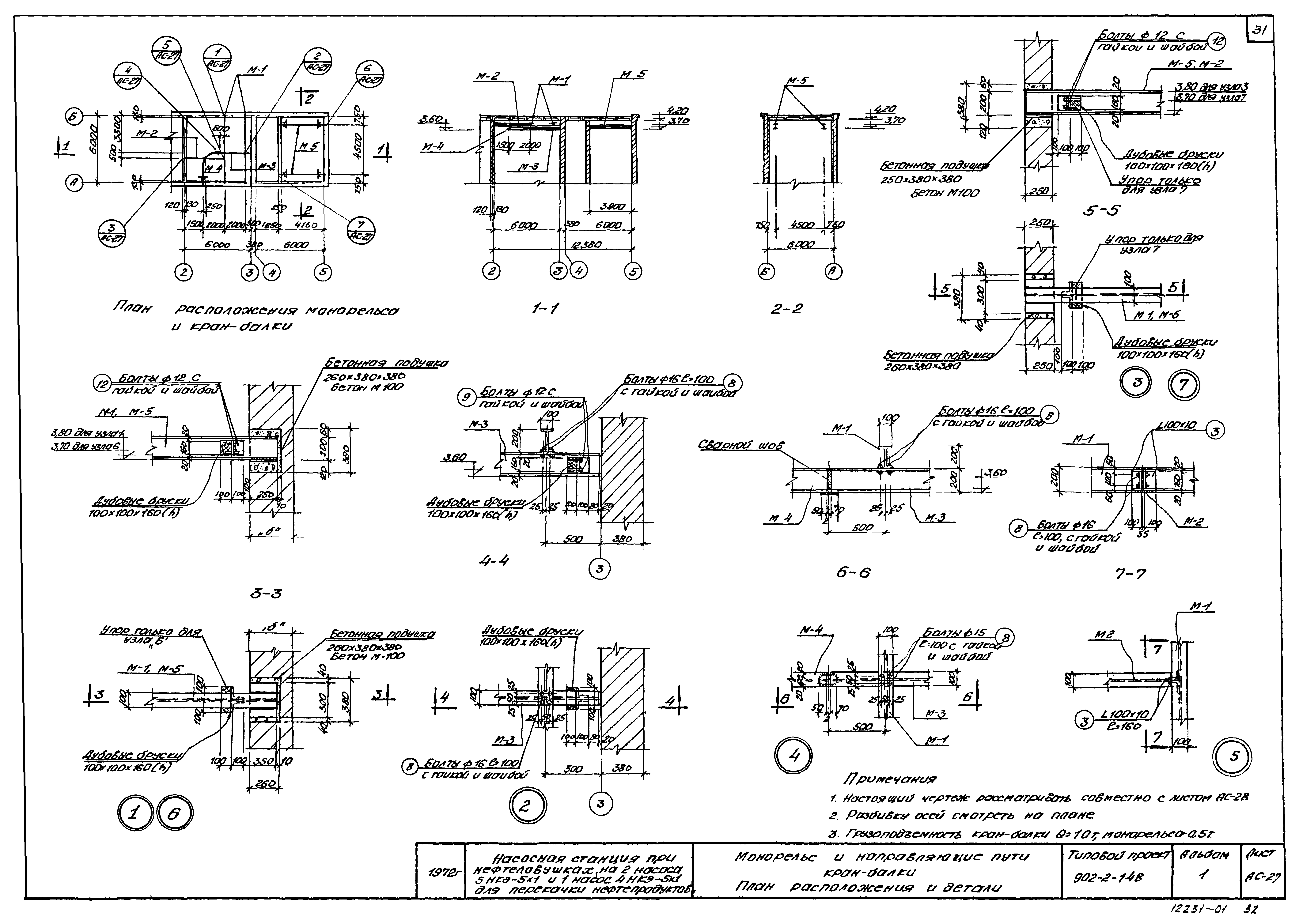
| Оглавление: | ТП 902-2-148 Титульный лист ТП 902-2-148 Содержание альбома ТП 902-2-148-ПЗ-1 Пояснительная записка ТП 902-2-148-ПЗ-2 Пояснительная записка ТП 902-2-148-АС-1 Заглавный лист ТП 902-2-148-АС-2 Общие данные по листам марки АС ТП 902-2-148-АС-3 Планы и детали ТП 902-2-148-АС-4 Разрезы и детали ТП 902-2-148-АС-5 Детали разрезов ТП 902-2-148-АС-6 Фасады и схемы заполнения оконных проемов ТП 902-2-148-АС-7 План фундаментов и фундаментных балок. Профили. Фундаменты МФ-1 и МФ-2 ТП 902-2-148-АС-8 Монтажный план плит покрытия. Опалубка и армирование базы под дефлектор НС-1 ТП 902-2-148-АС-9 Отверстия и газовые трубы в стенах надземной части. Защитные козырьки. План расположения и детали ТП 902-2-148-АС-10 Щитовое помещение. Каналы. Планы и сечения ТП 902-2-148-АС-11 Щитовое помещение. Каналы. Армирование балок Б-1 и Б-2 ТП 902-2-148-АС-12 Вентиляционная камера. План, разрезы и детали ТП 902-2-148-АС-13 Фундамент под оборудование ТП 902-2-148-АС-14 Опалубочный чертеж подземной части. Планы и разрезы 1-1,2-2 ТП 902-2-148-АС-15 Опалубочный чертеж подземной части. Разрезы 3-3,4-4 и детали ТП 902-2-148-АС-16 Заглубление - 36 м. Армирование стен и днища подземной части. Раскладка сеток и каркасов ТП 902-2-148-АС-17 Заглубление - 36 м. Армирование стен и днища подземной части. Сетки, каркасы и спецификация арматуры ТП 902-2-148-АС-18 Заглубление - 48 м. Армирование стен и днища подземной части. Раскладка сеток и каркасов ТП 902-2-148-АС-19 Заглубление - 48 м. Армирование стен и днища подземной части. Сетки, каркасы и спецификация арматуры ТП 902-2-148-АС-20 Армирование плит, балок и консолей ТП 902-2-148-АС-21 Армирование обвязочной балки фундаментов под оборудование. Спецификация арматуры ТП 902-2-148-АС-22 Армирование перегородки. Раскладка сеток. План и разрезы ТП 902-2-148-АС-23 Армирование перегородки. Спецификация арматуры ТП 902-2-148-АС-24 Лестницы и стремянка. План, разрез и детали ТП 902-2-148-АС-25 Сетчатая перегородка в щитовом помещении. План, разрез и детали ТП 902-2-148-АС-26 Обслуживающие площадки на отметке ±0.000. Схема раскладки настила. Разрезы и детали ТП 902-2-148-АС-27 Монорельс и направляющие пути кран-балки. План расположения детали ТП 902-2-148-АС-28 Монорельс и направляющие пути кран-балки. Марки и спецификация металла ТП 902-2-148-АС-29 Воздухозаборные трубы. Маркировочный план, детали и фундаменты Ф-7-Ф-9 ТП 902-2-148-АС-30 Воздухозаборные трубы. Марки ТН-325-10 и ТН-450-10 ТП 902-2-148-АС-31 Воздухозаборные трубы. Марки ТВ-325-4.6, ТВ-450-4.6 и М-1,М-2,М-3,М-4 ТП 902-2-148-АС-32 Воздухозаборные трубы. Конструкция растяжек ОТ-1,ОТ-2 и ОТ-3 ТП 902-2-148-АС-33 Металлические щиты, рамы и закладные марки ТП 902-2-148-АС-34 Закладные марки и спецификация металла ТП 902-2-148-АС-35 Ремонтная площадка на отм. 2.500. Планы, сечения и детали |
| Разработан: | Институт Харьковский Водоканалпроект Госстроя СССР |
| Утверждён: | 23.04.1973 СоюзводоканалНИИпроект (SoyuzvodokanalNIIproject 96) |







































