Скачать Типовой проект 902-2-148 Альбом 3. Электрооборудование, автоматика и технологический контроль (чертежи монтажной зоны)Дата актуализации: 01.01.2021
|
| Обозначение: | Типовой проект 902-2-148 |
| Обозначение англ: | 902-2-148 |
| Статус: | не действует |
| Название рус.: | Альбом 3. Электрооборудование, автоматика и технологический контроль (чертежи монтажной зоны) |
| Дата добавления в базу: | 01.09.2013 |
| Дата актуализации: | 01.01.2021 |
| Дата введения: | 15.05.1973 |
| Дата окончания срока действия: | 01.02.1984 |
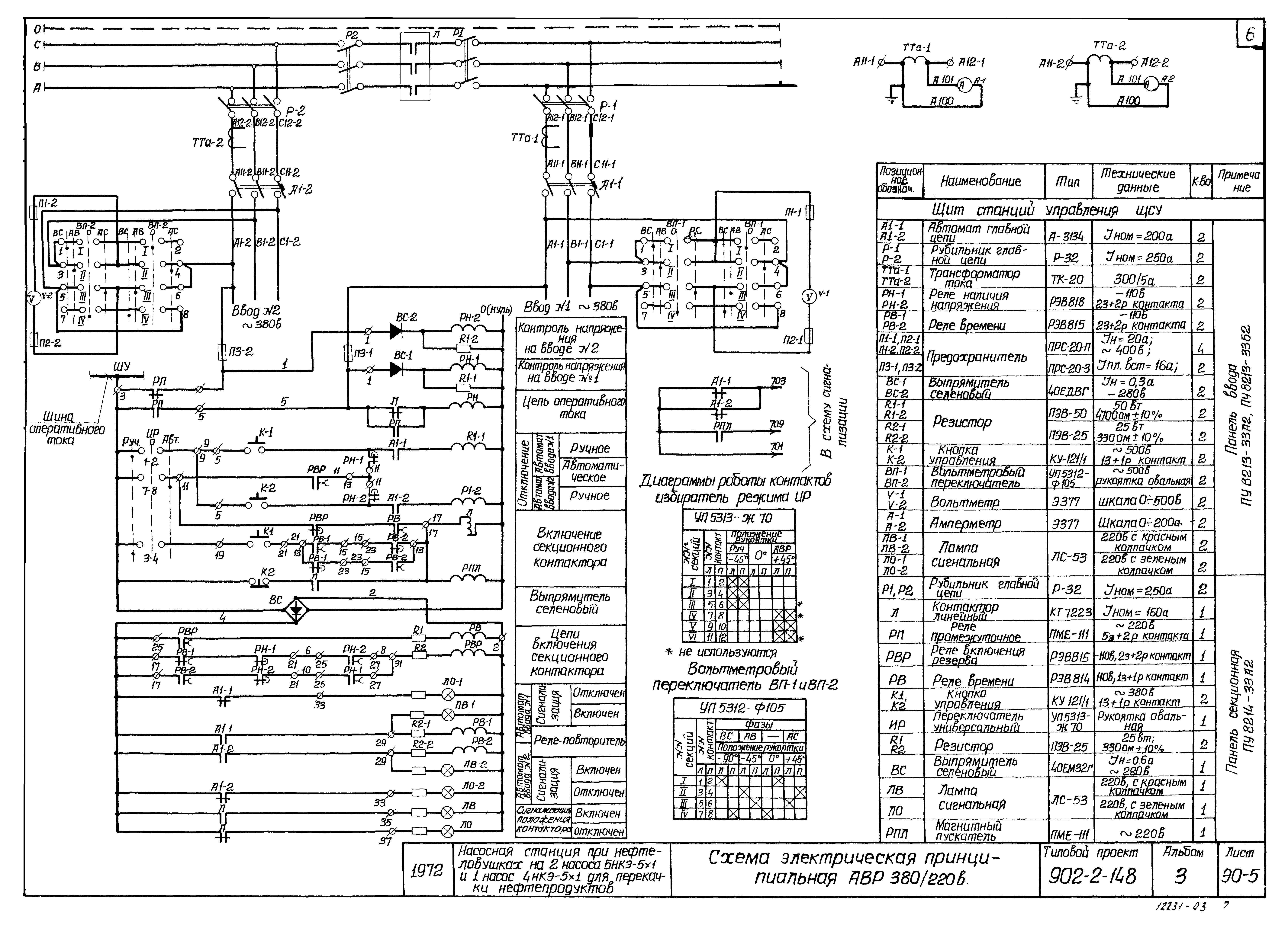
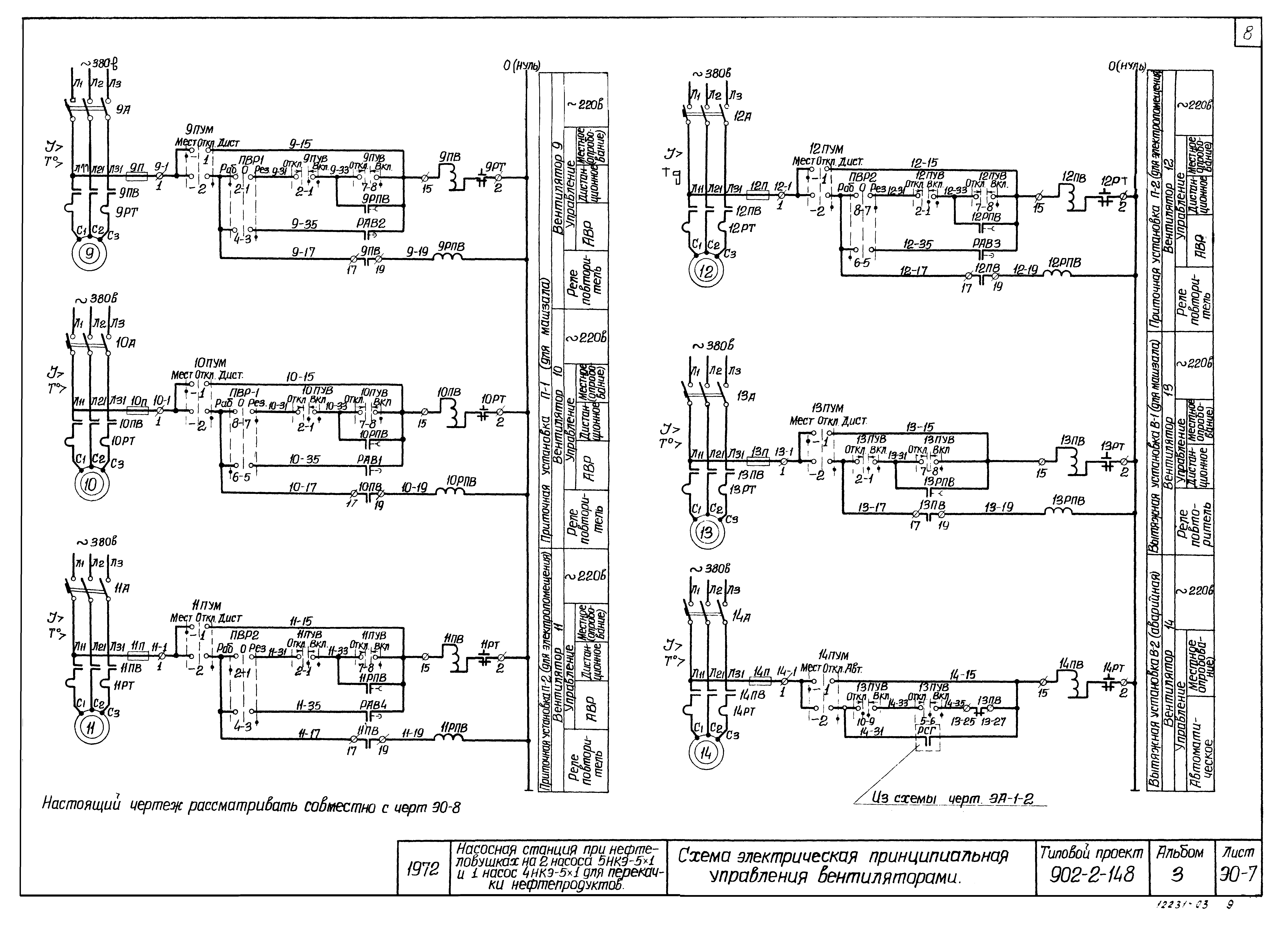
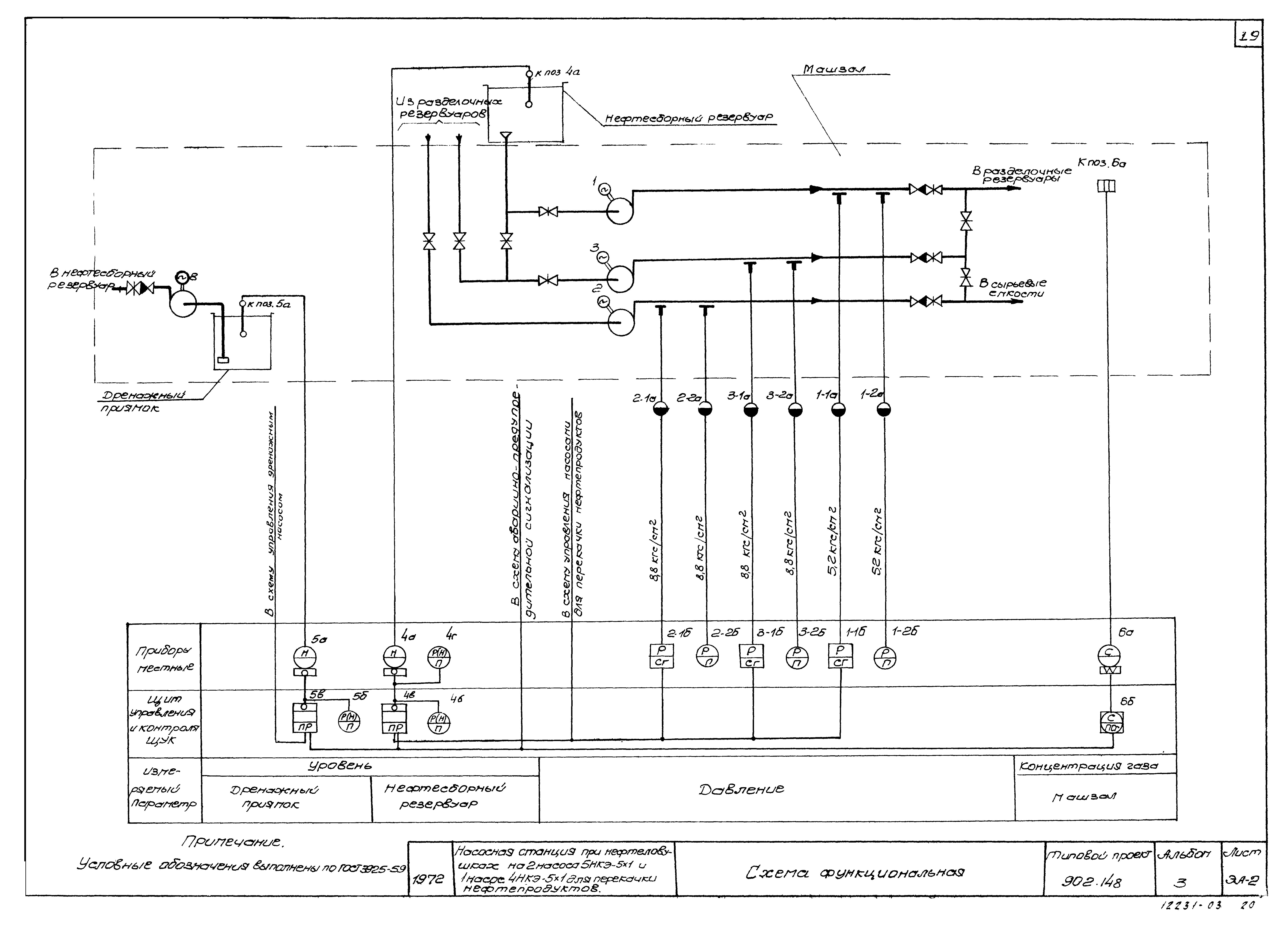
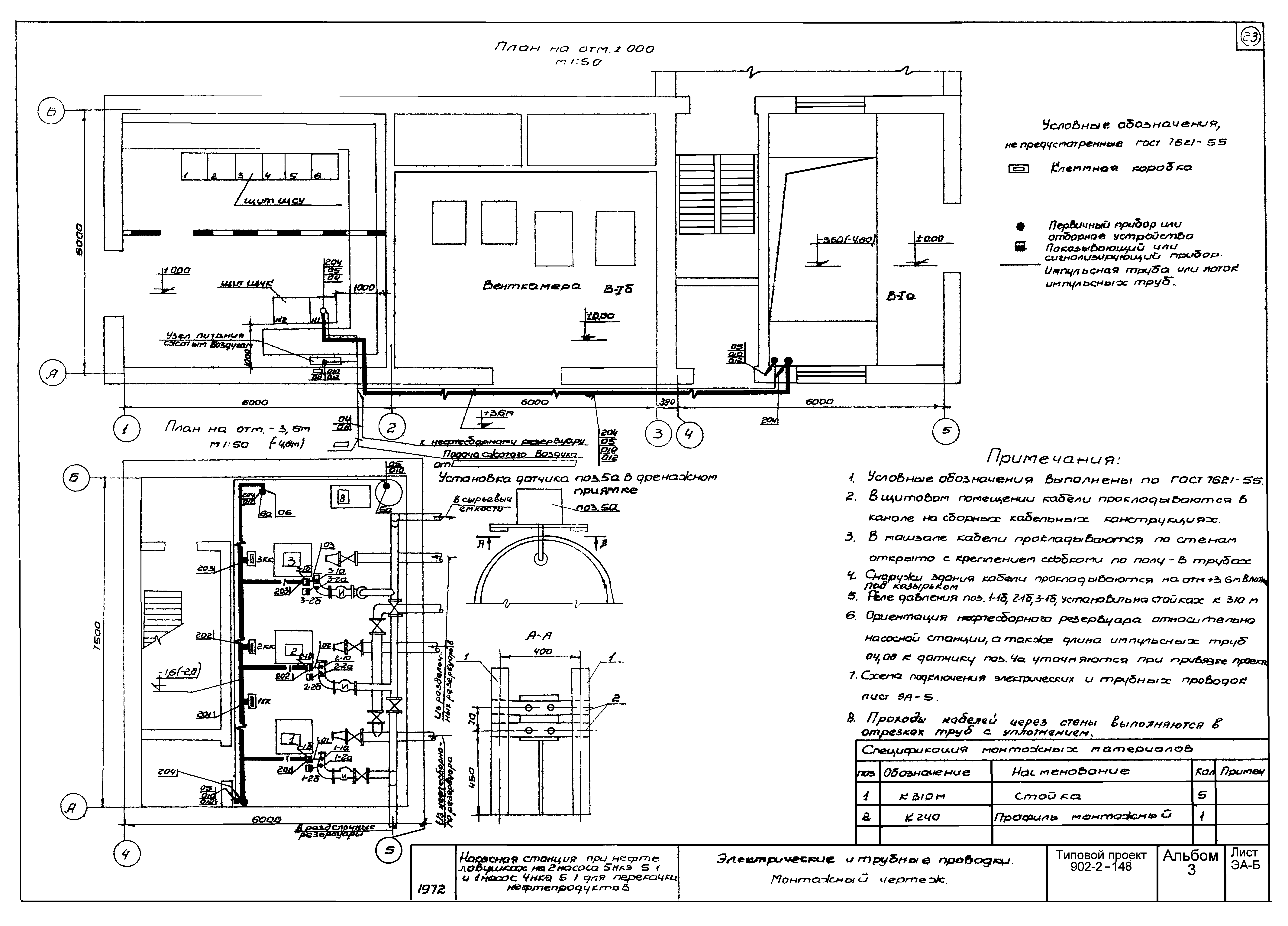
| Оглавление: | ТП 902-2-148-ЭО-1 Заглавный лист ТП 902-2-148-ЭО-2 Пояснительная записка ТП 902-2-148-ЭО-3 Пояснительная записка ТП 902-2-148-ЭО-4 Схема электрическая принципиальная однолинейная распределительной сети 380/220 В ТП 902-2-148-ЭО-5 Схема электрическая принципиальная АВР 380/220 В ТП 902-2-148-ЭО-6 Схема электрическая принципиальная управления насосами перекачки нефтепродуктов и дренажным насосом ТП 902-2-148-ЭО-7 Схема электрическая принципиальная управления вентиляторами ТП 902-2-148-ЭО-8 Схема электрическая принципиальная управления вентиляторами ТП 902-2-148-ЭО-9 Схема электрическая принципиальная аварийно-предупредительной сигнализации ТП 902-2-148-ЭО-10 Схема подключения электрооборудования ТП 902-2-148-ЭО-11 План расположения электрооборудования. Прокладка кабелей ТП 902-2-148-ЭО-12 Кабельный журнал ТП 902-2-148-ЭО-13 Электроосвещение. Пояснение и условные обозначения ТП 902-2-148-ЭО-14 Электроосвещение ТП 902-2-148-ЭО-15 Заземление ТП 902-2-148-ЭО-16 Молниезащита ТП 902-2-148-ЭА-1 Содержание раздела 2. Схема электрическая принципиальная измерения взрывоопасной концентрации газа ТП 902-2-148-ЭА-2 Схема функциональная ТП 902-2-148-ЭА-3 Схема электрическая принципиальная питания приборов. Схема пневматическая принципиальная питания приборов ТП 902-2-148-ЭА-4 Схема электрическая принципиальная контроля уровней ТП 902-2-148-ЭА-5 Схема подключения электрических и трубных проводок ТП 902-2-148-ЭА-6 Электрические и трубные проводки. Монтажный чертеж |
| Разработан: | Институт Харьковский Водоканалпроект Госстроя СССР |
| Утверждён: | 23.04.1973 СоюзводоканалНИИпроект (SoyuzvodokanalNIIproject 96) |























