Скачать Типовой проект 902-9-6 Альбом II. Архитектурно-строительная часть (стены кирпичные)Дата актуализации: 01.01.2021
|
| Обозначение: | Типовой проект 902-9-6 |
| Обозначение англ: | 902-9-6 |
| Статус: | действует |
| Название рус.: | Альбом II. Архитектурно-строительная часть (стены кирпичные) |
| Дата добавления в базу: | 01.09.2013 |
| Дата актуализации: | 01.01.2021 |
| Дата введения: | 30.11.1979 |
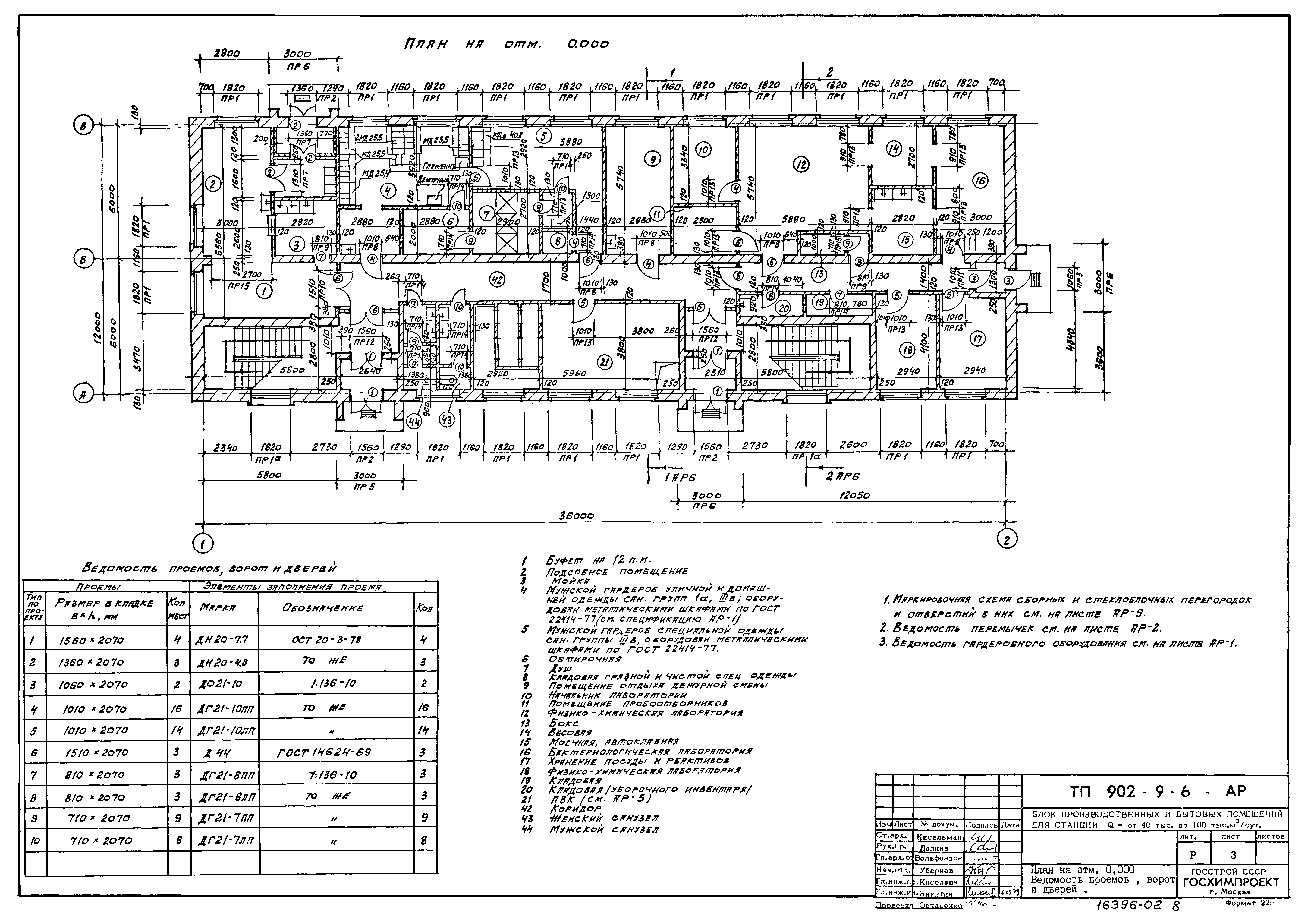
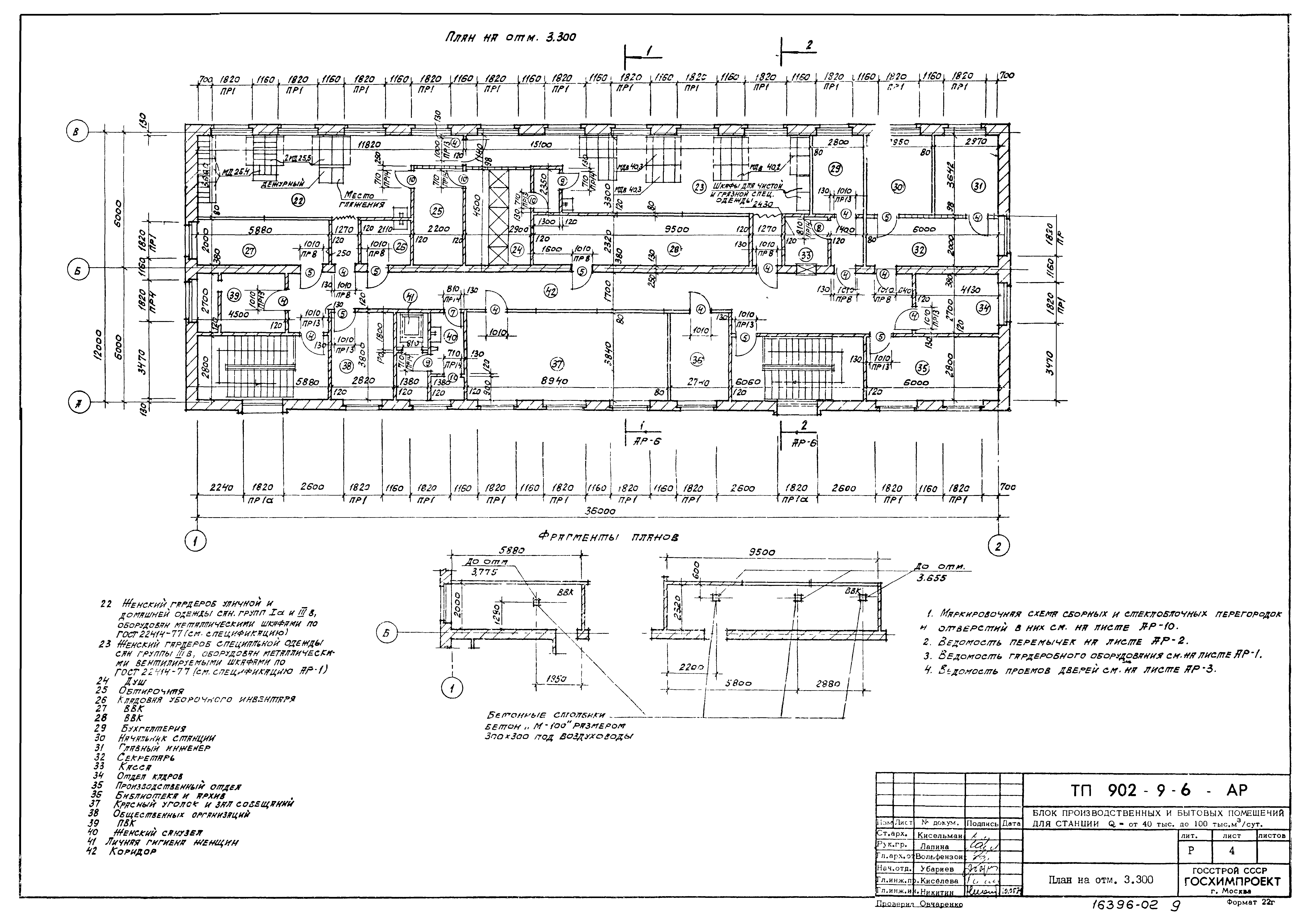
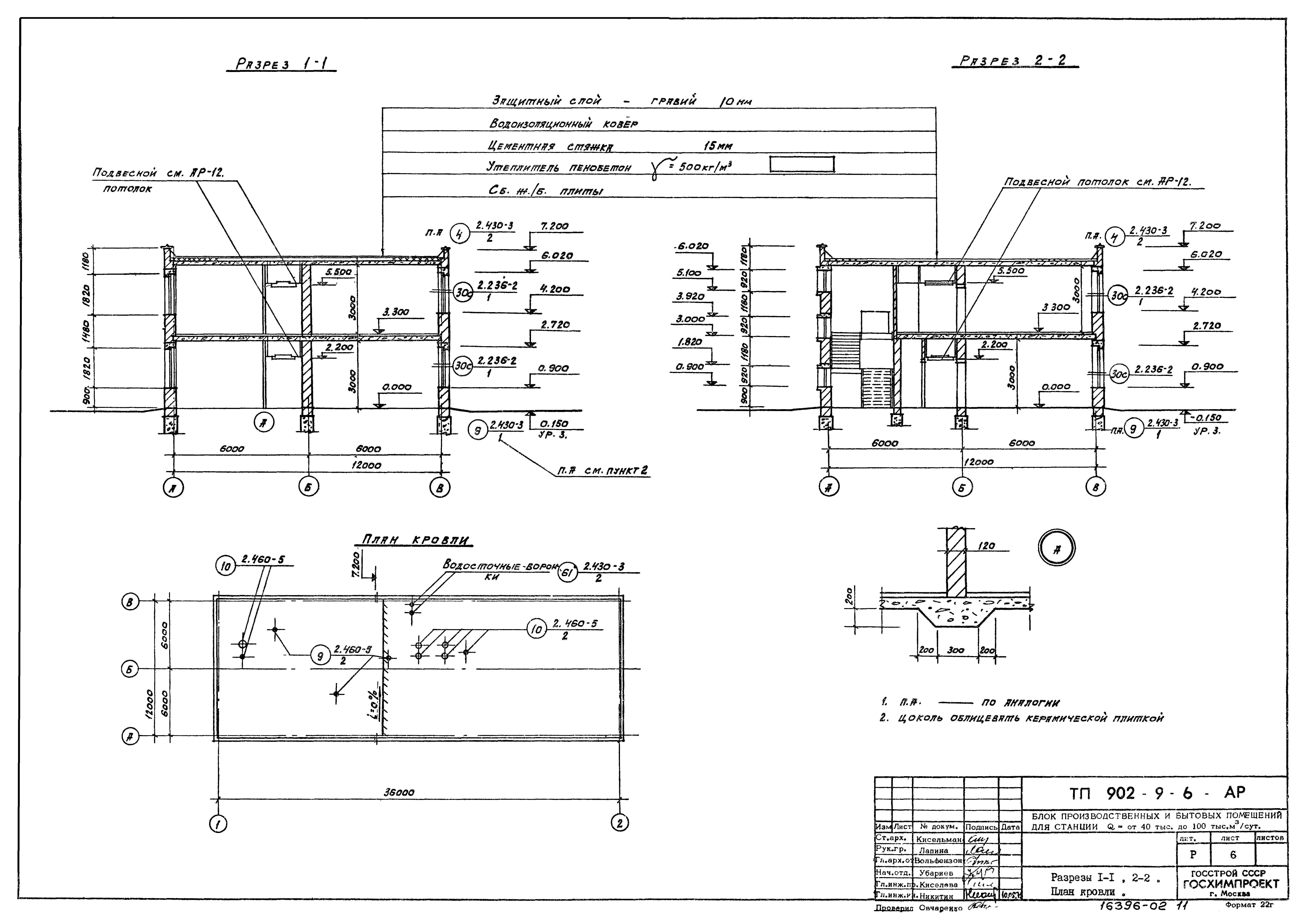
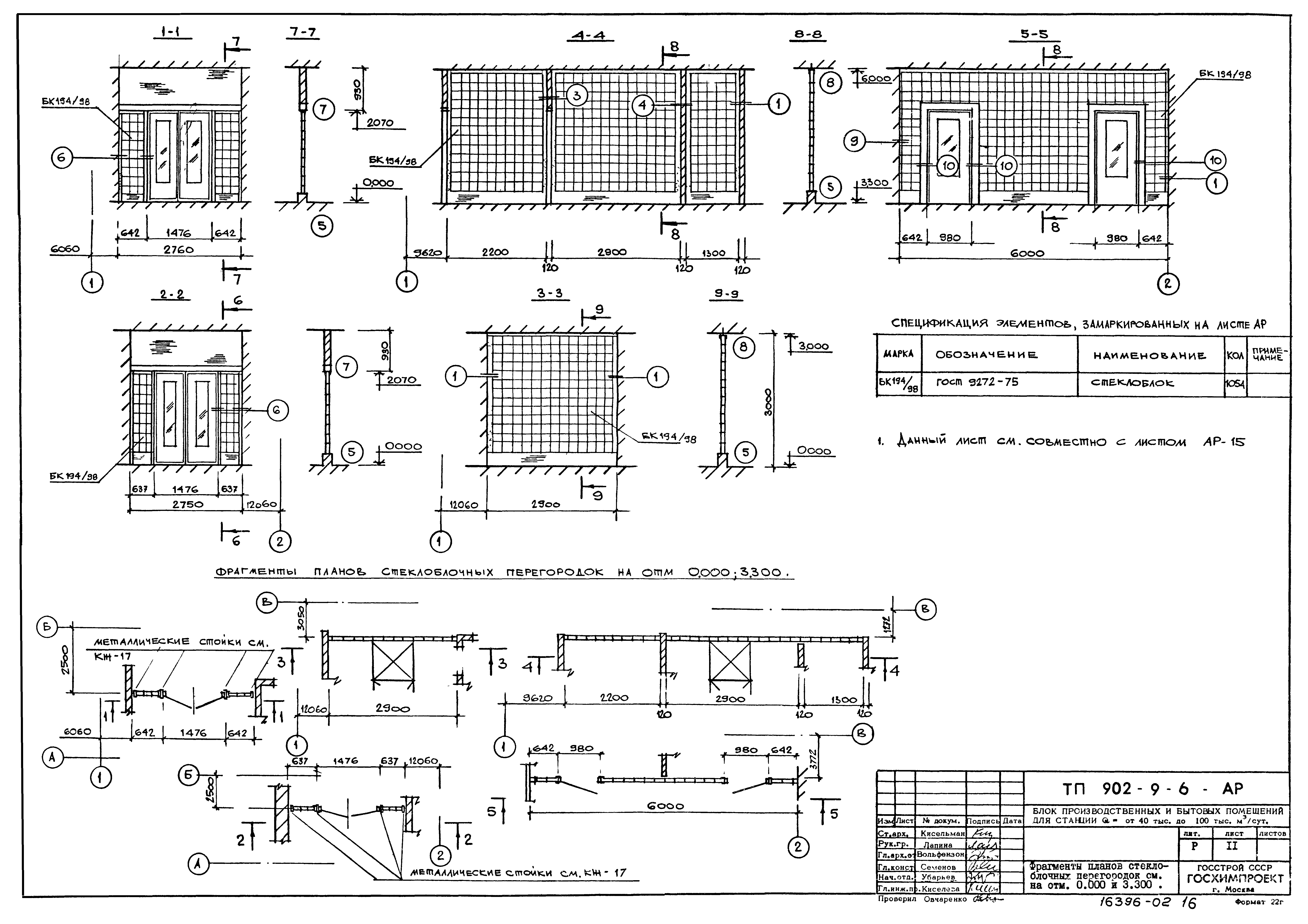
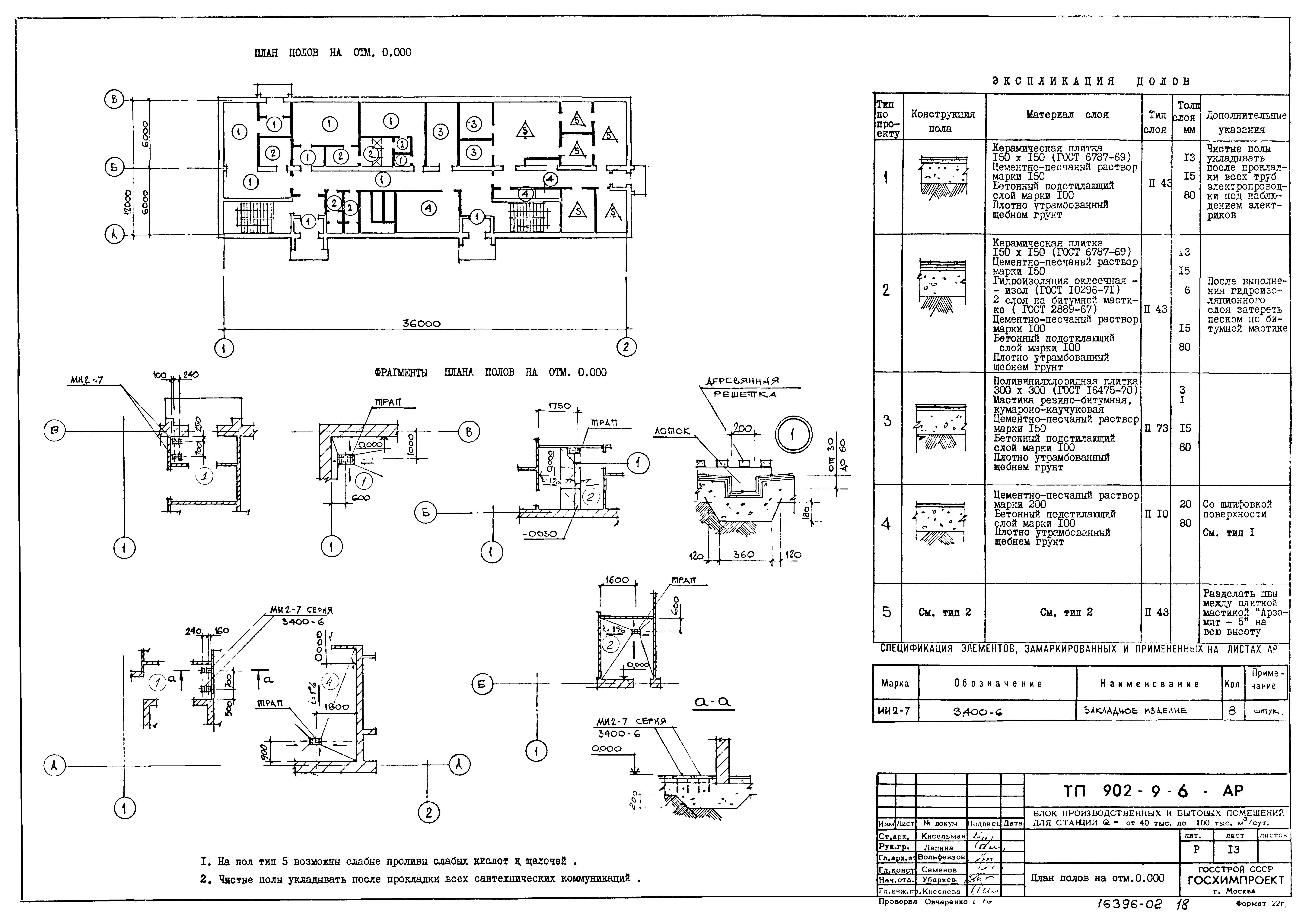
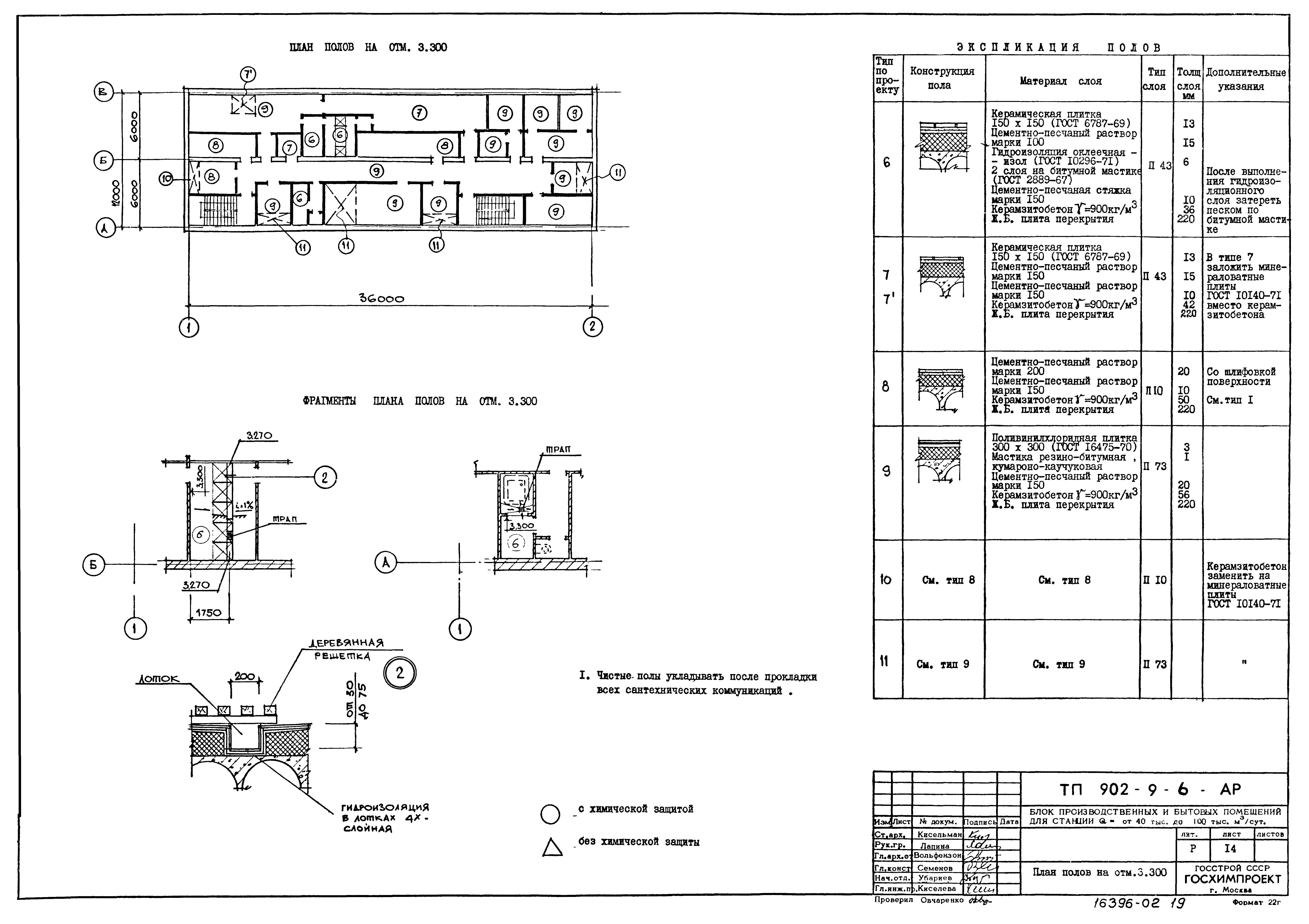
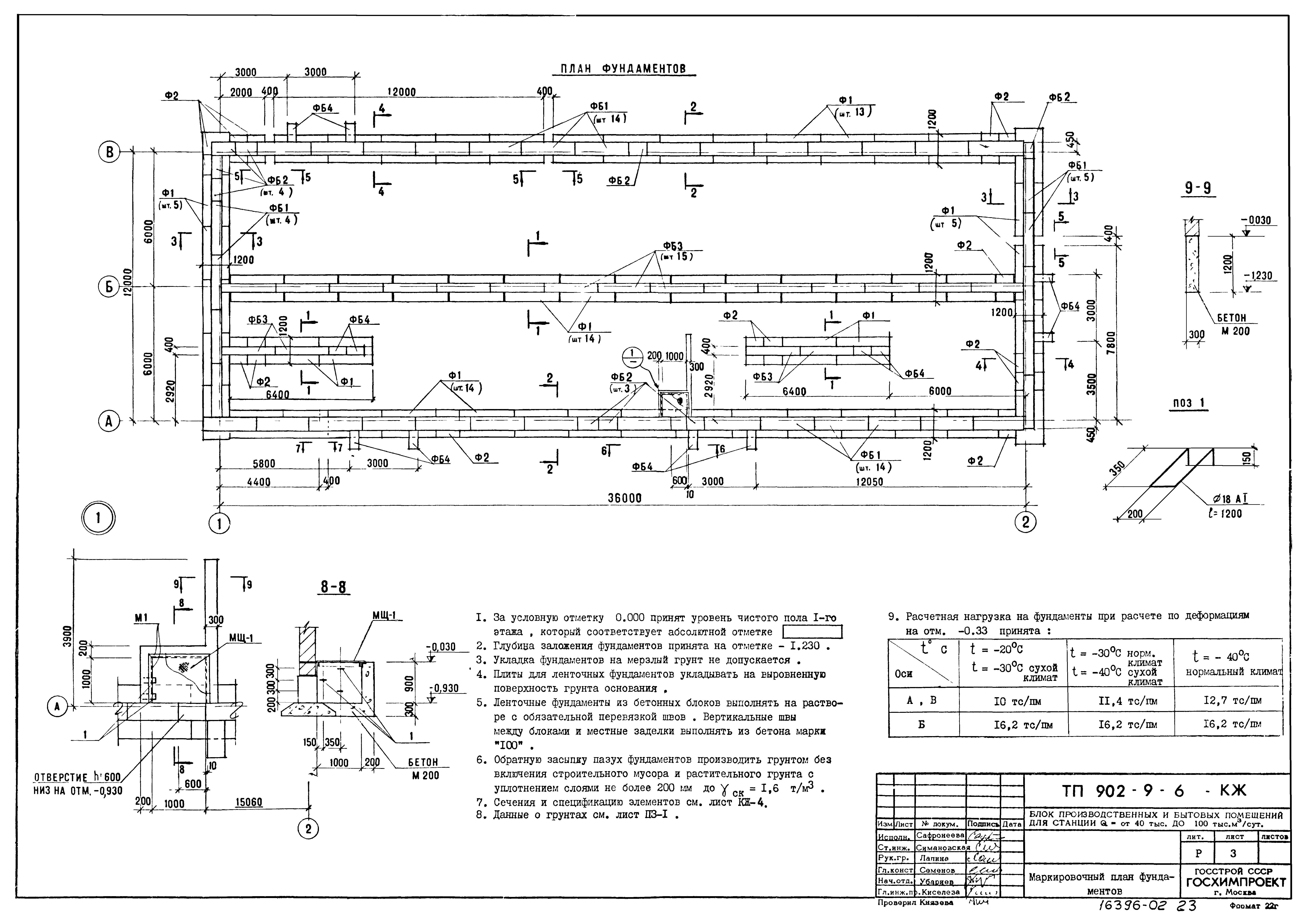
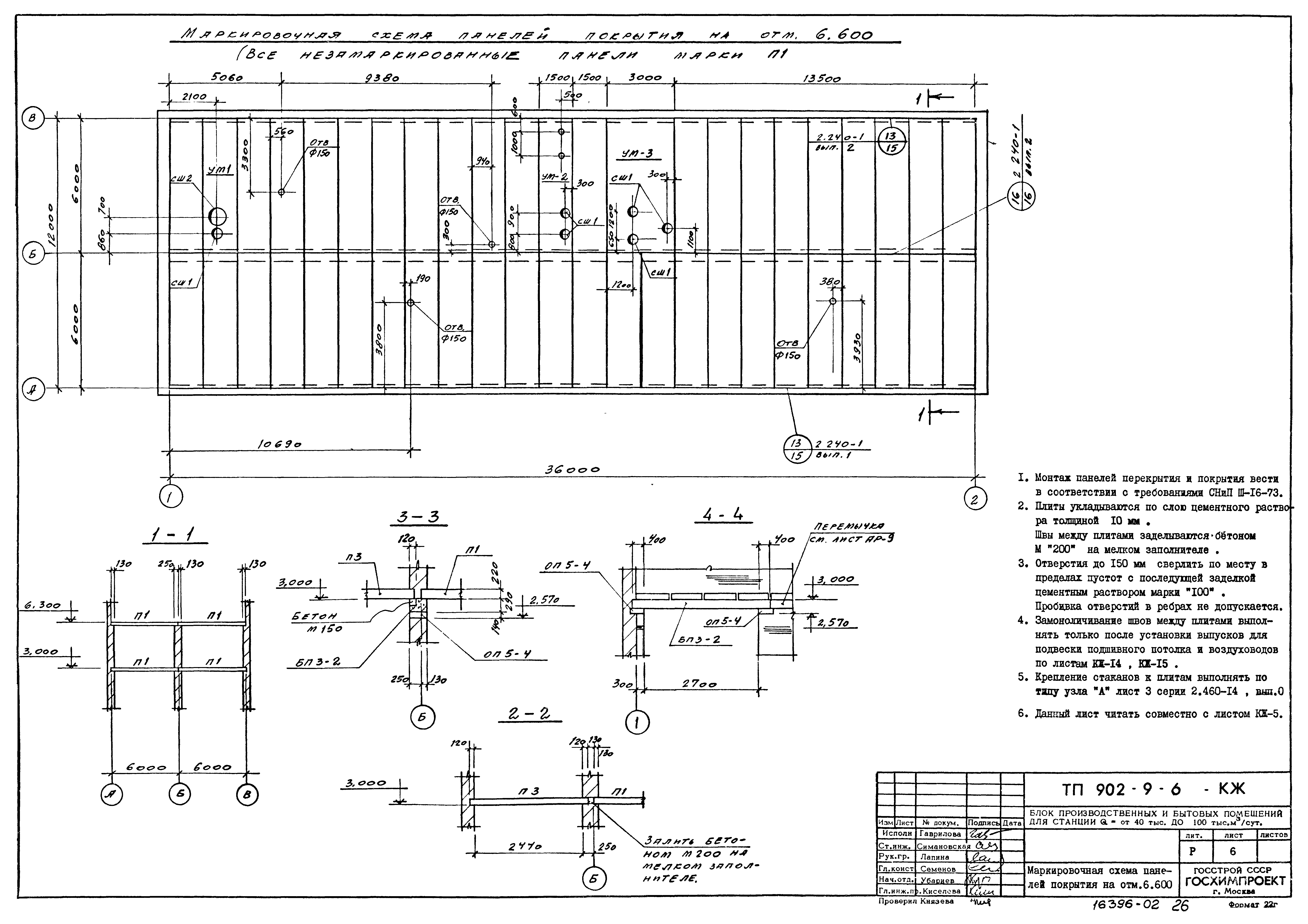
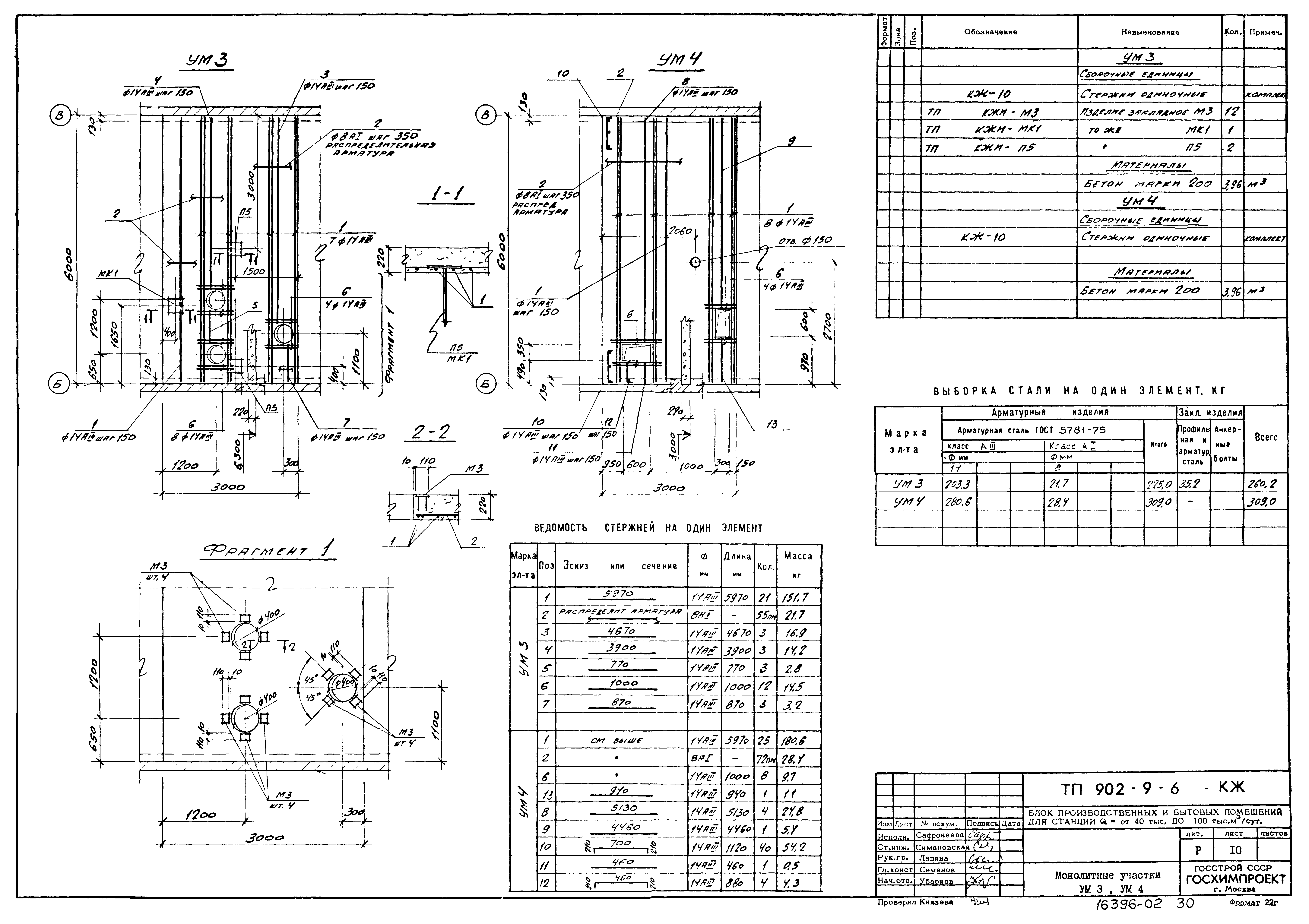
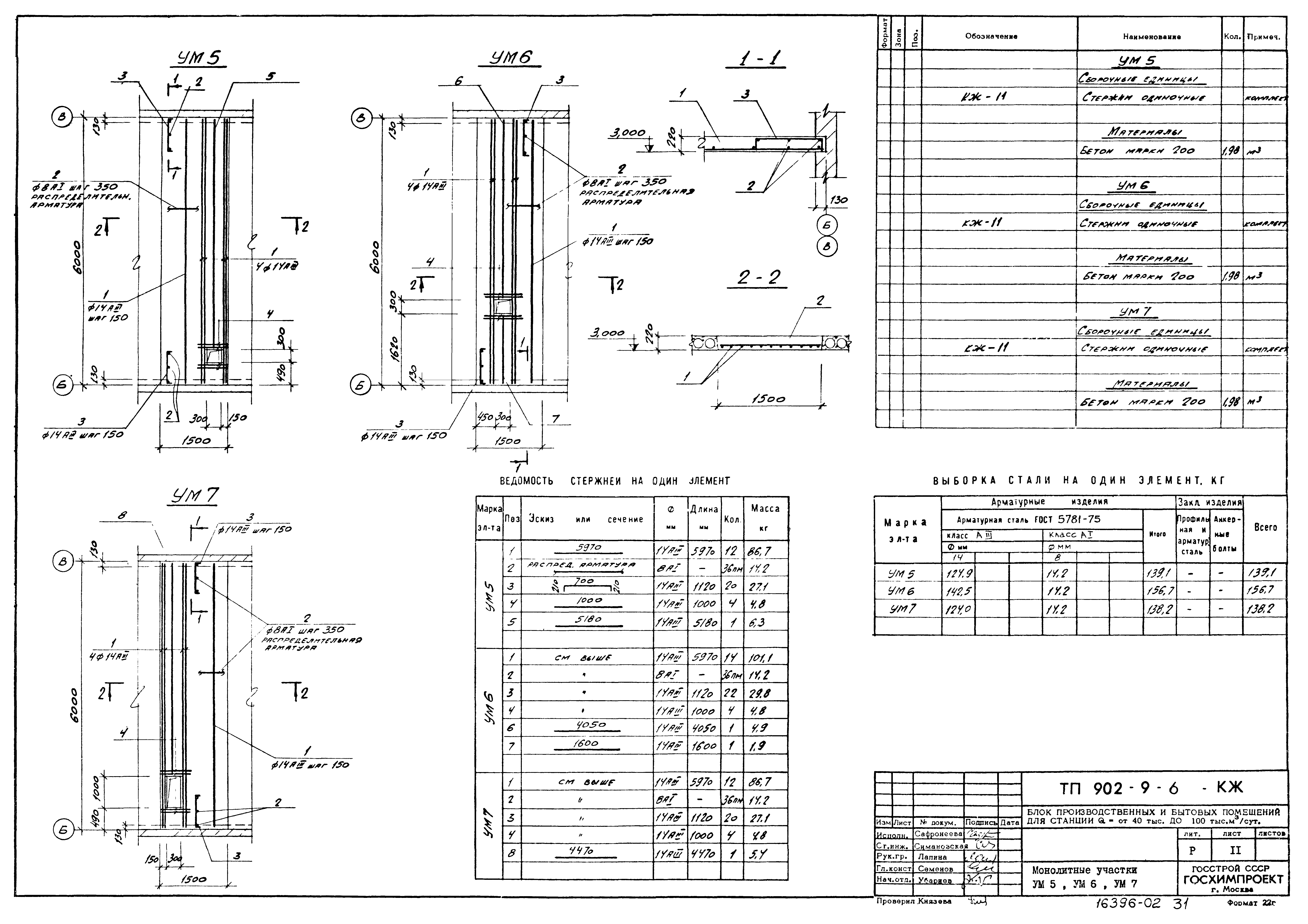
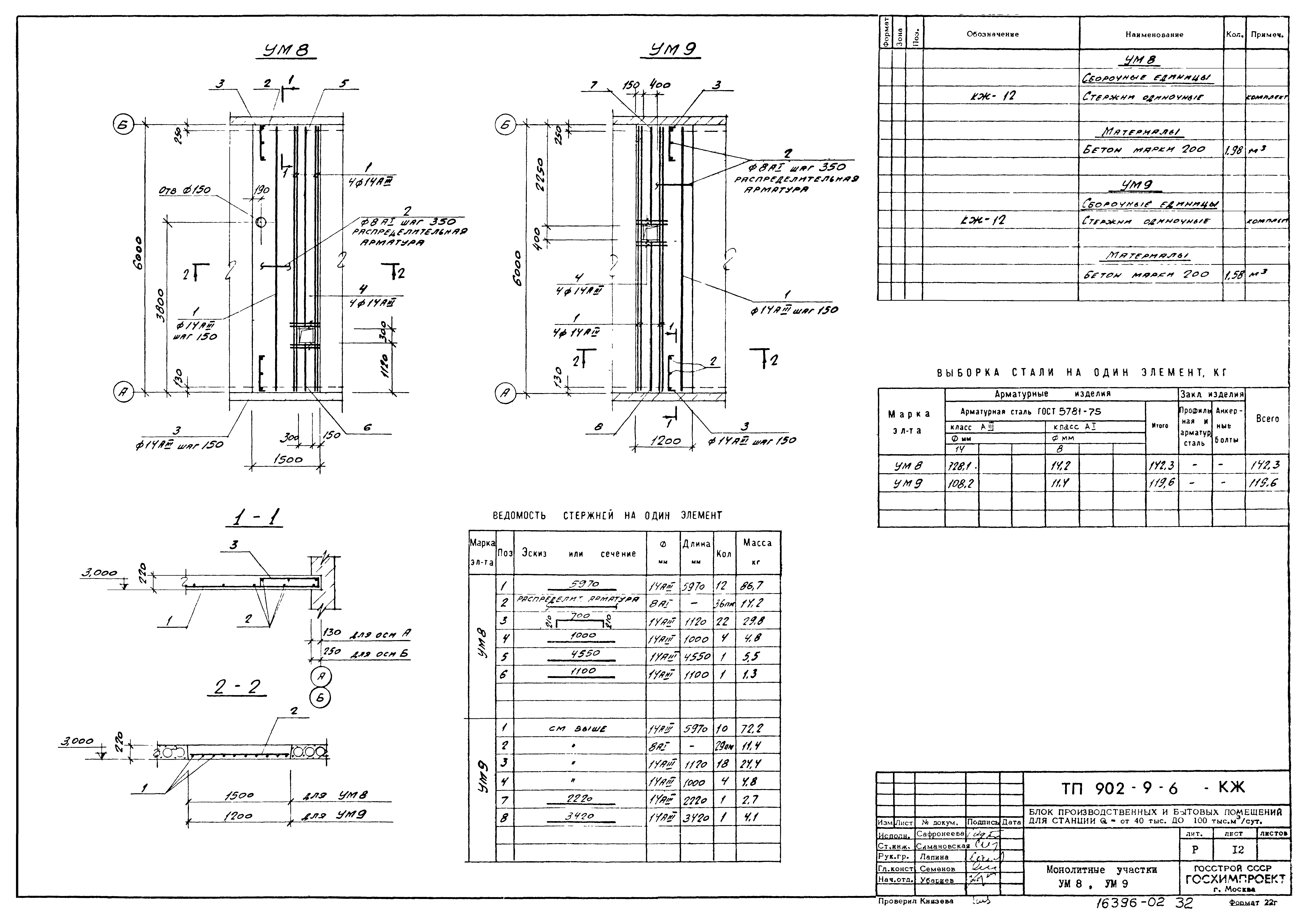
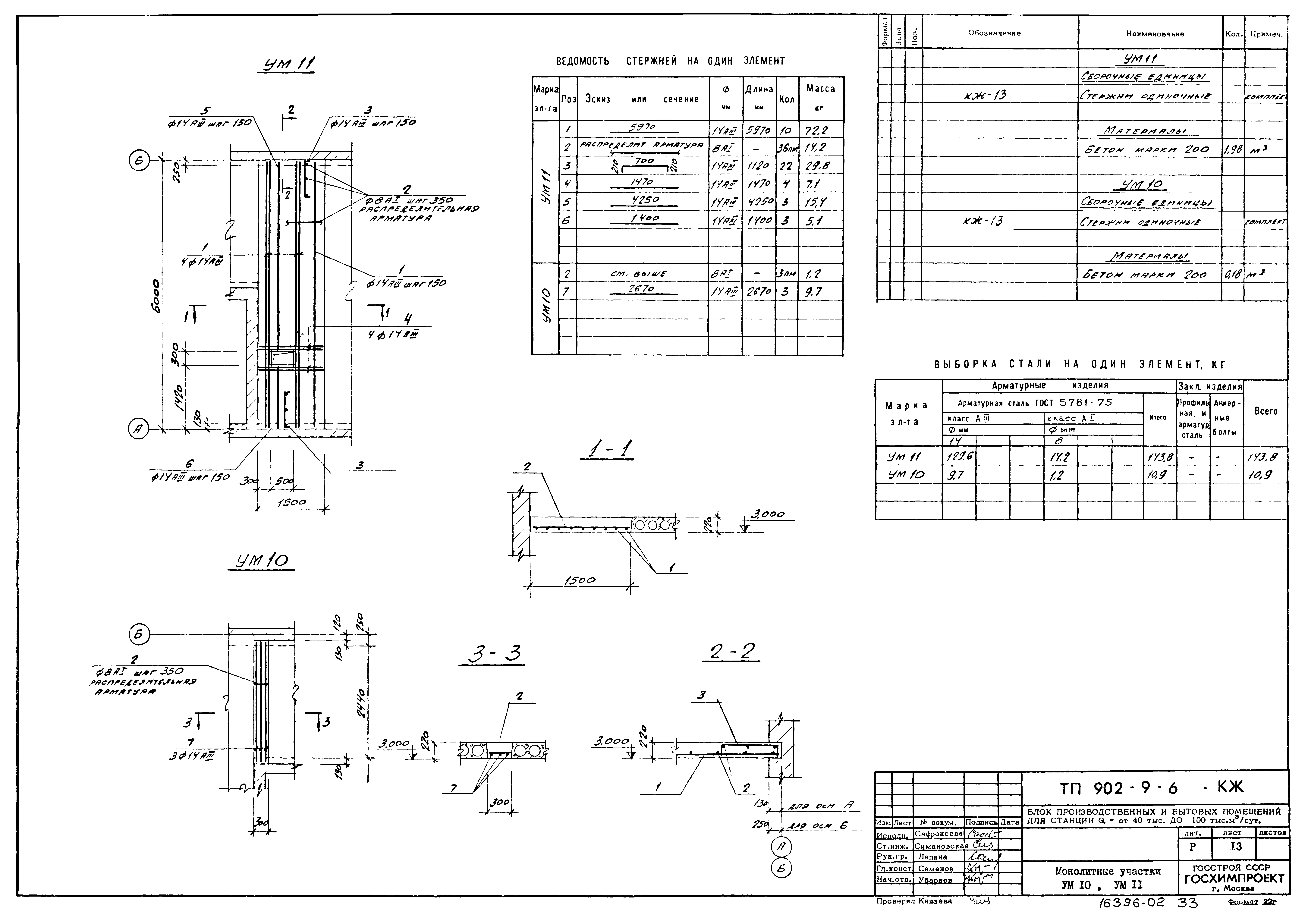
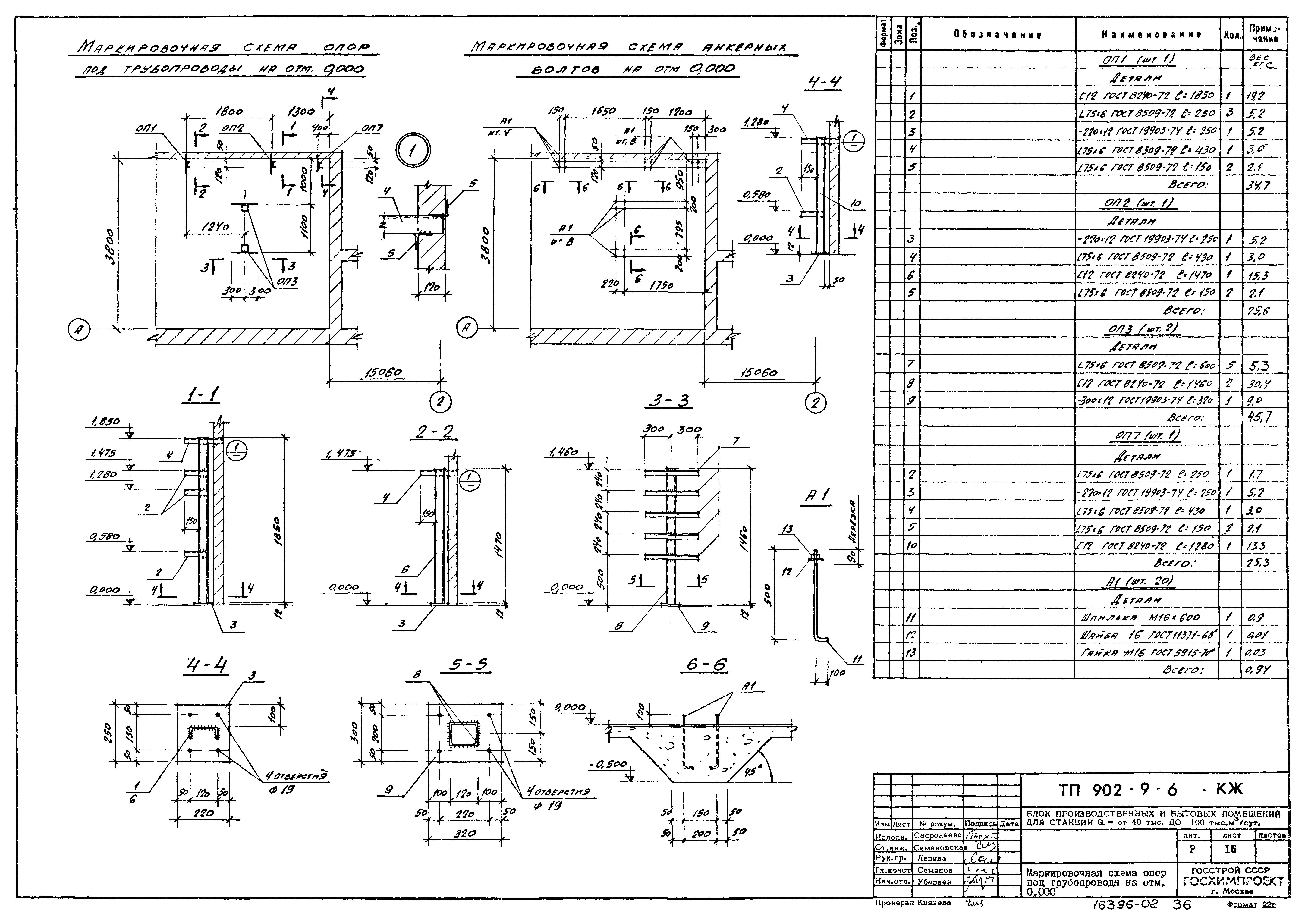
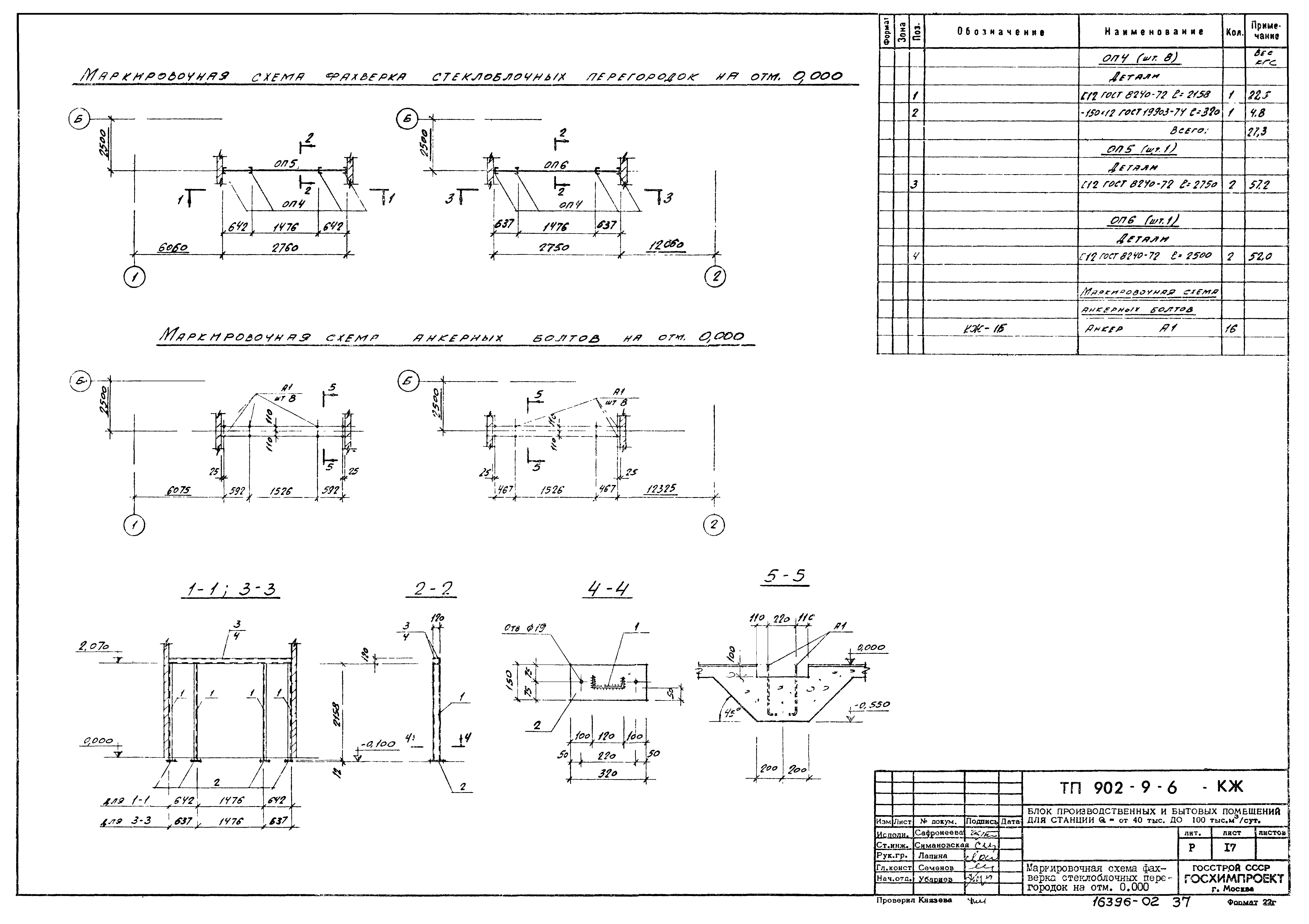
| Оглавление: | ТП 902-9-6 Содержание альбома 2 ТП 902-9-6-ПЗ-1 Пояснительная записка (начало) ТП 902-9-6-ПЗ-2 Пояснительная записка (окончание) ТП 902-9-6-АР-1 Общие данные (начало) ТП 902-9-6-АР-2 Общие данные (окончание) ТП 902-9-6-АР-3 План на отм. 0.000 . Ведомость проемов, ворот и дверей ТП 902-9-6-АР-4 План на отм. 3.300 ТП 902-9-6-АР-5 Фрагменты планов ТП 902-9-6-АР-6 Разрезы 1-1, 2-2. План кровли ТП 902-9-6-АР-7 Фасада ТП 902-9-6-АР-8 Фрагменты входов ТП 902-9-6-АР-9 Маркировочная схема перегородок и план отверстий в стенах на отм. 0.000 ТП 902-9-6-АР-10 Маркировочная схема перегородок и план отверстий в стенах на отм. 3.300 ТП 902-9-6-АР-11 Фрагменты планов стеклоблочных перегородок на отм. 0.000 и 3.300 ТП 902-9-6-АР-12 Подвесной потолок на отм. 2.200, 5.500 ТП 902-9-6-АР-13 План полов на отм. 0.000 ТП 902-9-6-АР-14 План полов на отм. 3.300 ТП 902-9-6-АР-15 Узлы к листам АР-9, АР-10, AP-11 ТП 902-9-6-КЖ-1 Общие данные (начало) ТП 902-9-6-КЖ-2 Общие данные (окончание) ТП 902-9-6-КЖ-3 Маркировочный план фундаментов ТП 902-9-6-КЖ-4 Разрезы к листу КЖ-3 ТП 902-9-6-КЖ-5 Маркировочная схема панелей перекрытия на отм. 3.300 ТП 902-9-6-КЖ-6 Маркировочная схема панелей покрытия на отм. 6.600 ТП 902-9-6-КЖ-7 Маркировочная схема элементов лестницы у оси 1 ТП 902-9-6-КЖ-8 Маркировочная схема элементов лестницы у оси 2 ТП 902-9-6-КЖ-9 Монолитные участки УМ 1, УМ 2 ТП 902-9-6-КЖ-10 Монолитные участки УМ 3, УМ 4 ТП 902-9-6-КЖ-11 Монолитные участки УМ 5, УМ 6, УМ 7 ТП 902-9-6-КЖ-12 Монолитные участки УМ 8, УМ 9 ТП 902-9-6-КЖ-13 Монолитные участки УМ 10, УМ 11 ТП 902-9-6-КЖ-14 Маркировочная схема подвесок в перекрытии на отм. 3.300 ТП 902-9-6-КЖ-15 Маркировочная схема подвесок в покрытии на отм. 6.600 ТП 902-9-6-КЖ-16 Маркировочная схема опор под трубопроводы на отм.0.000. ТП 902-9-6-КЖ-17 Маркировочная схема фахверка стеклоблочных перегородок на отм. 0.000 ТП 902-9-6-КЖ-18 Маркировочная схема металлических балок подвесных потолков |
| Разработан: | Союзводоканалпроект Госхимпроект |
| Утверждён: | 25.06.1979 Союзводоканалпроект (Soyuzvodokanalproject 31) |
| Издан: | ЦИТП Госстроя СССР (CITP, Gosstroy (USSR) 1979 г. ) |






































