Скачать Типовой проект 902-9-6 Альбом IV. Санитарно-техническая частьДата актуализации: 01.01.2021
|
| Обозначение: | Типовой проект 902-9-6 |
| Обозначение англ: | 902-9-6 |
| Статус: | действует |
| Название рус.: | Альбом IV. Санитарно-техническая часть |
| Дата добавления в базу: | 01.09.2013 |
| Дата актуализации: | 01.01.2021 |
| Дата введения: | 30.11.1979 |
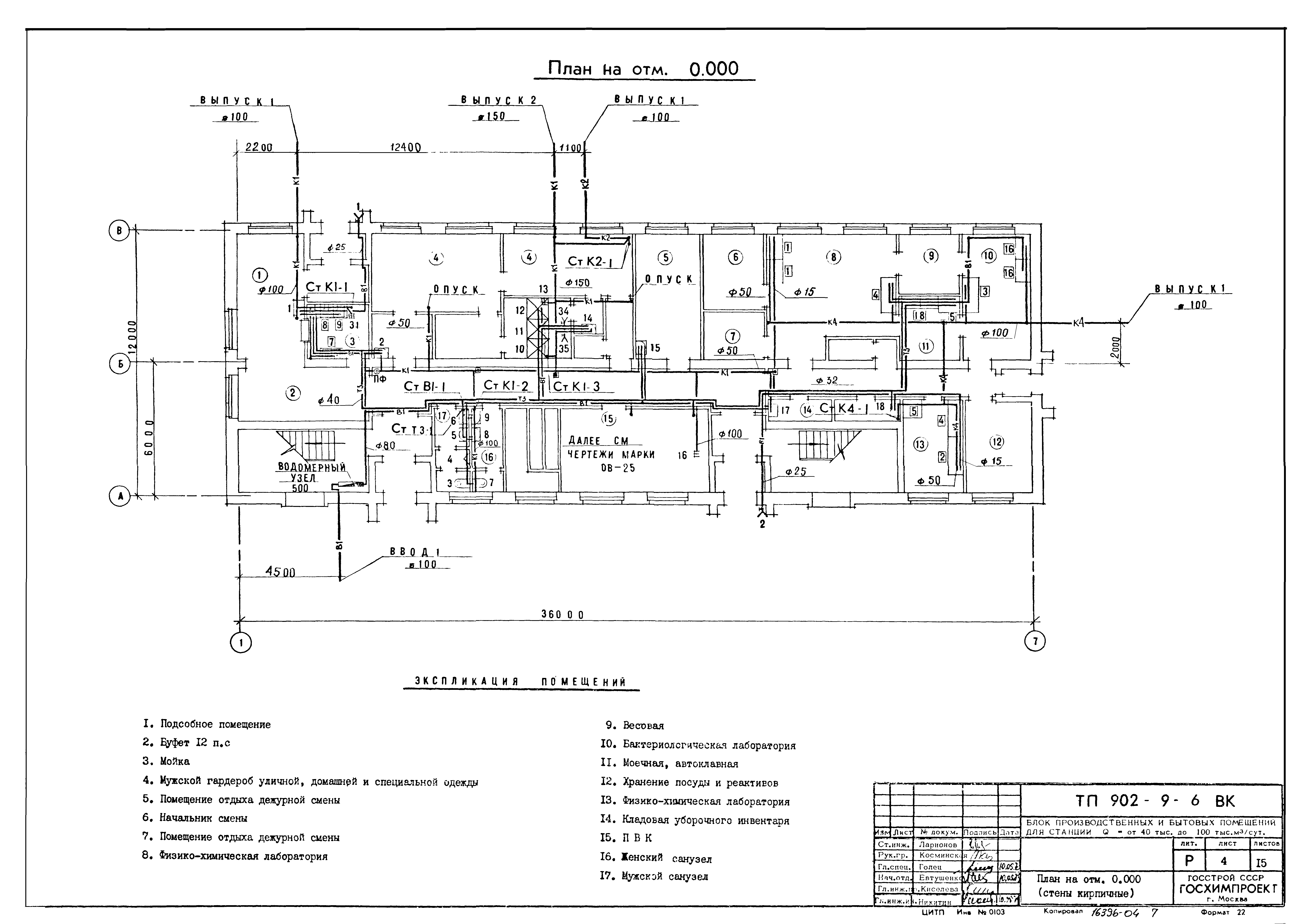
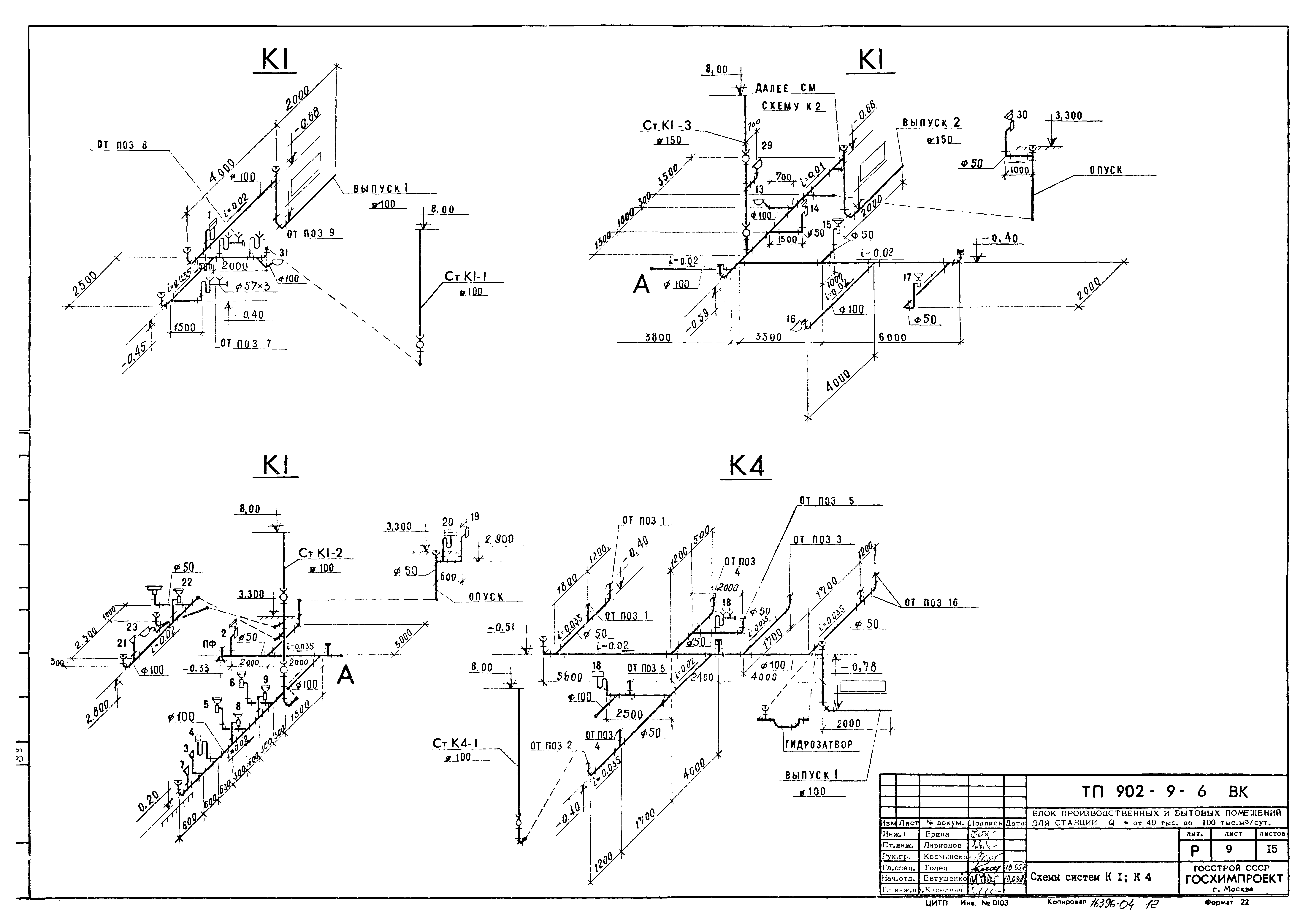
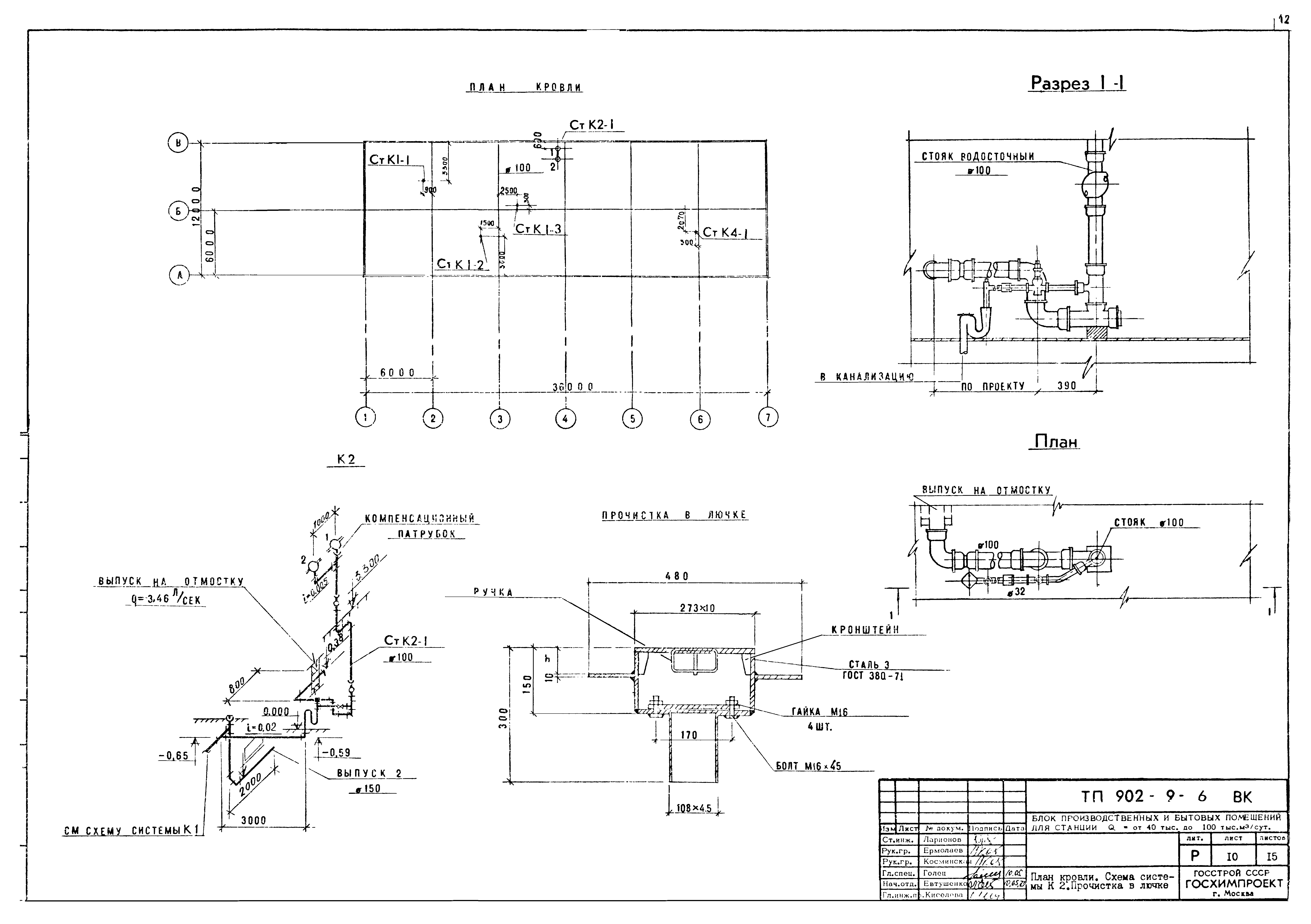
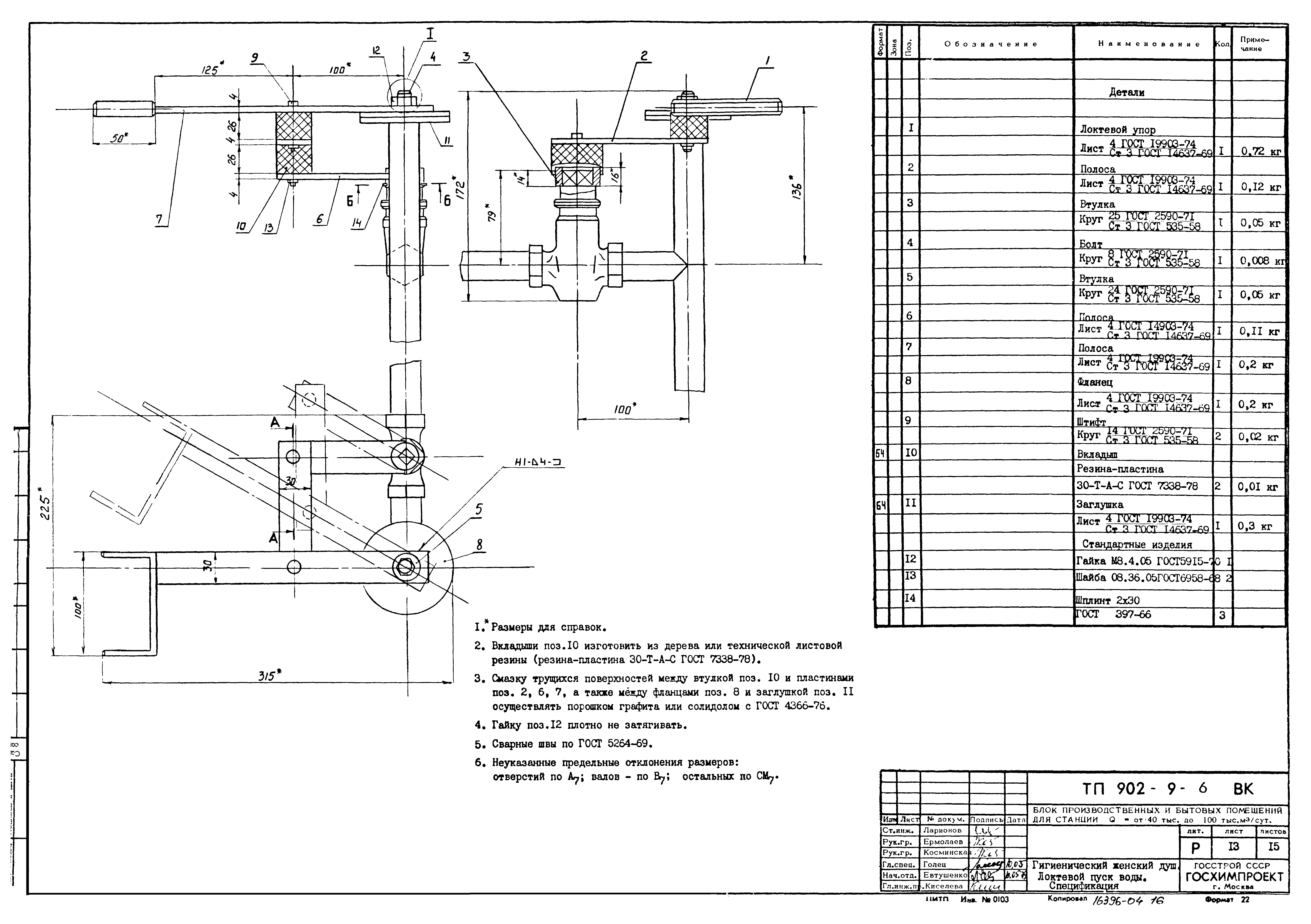
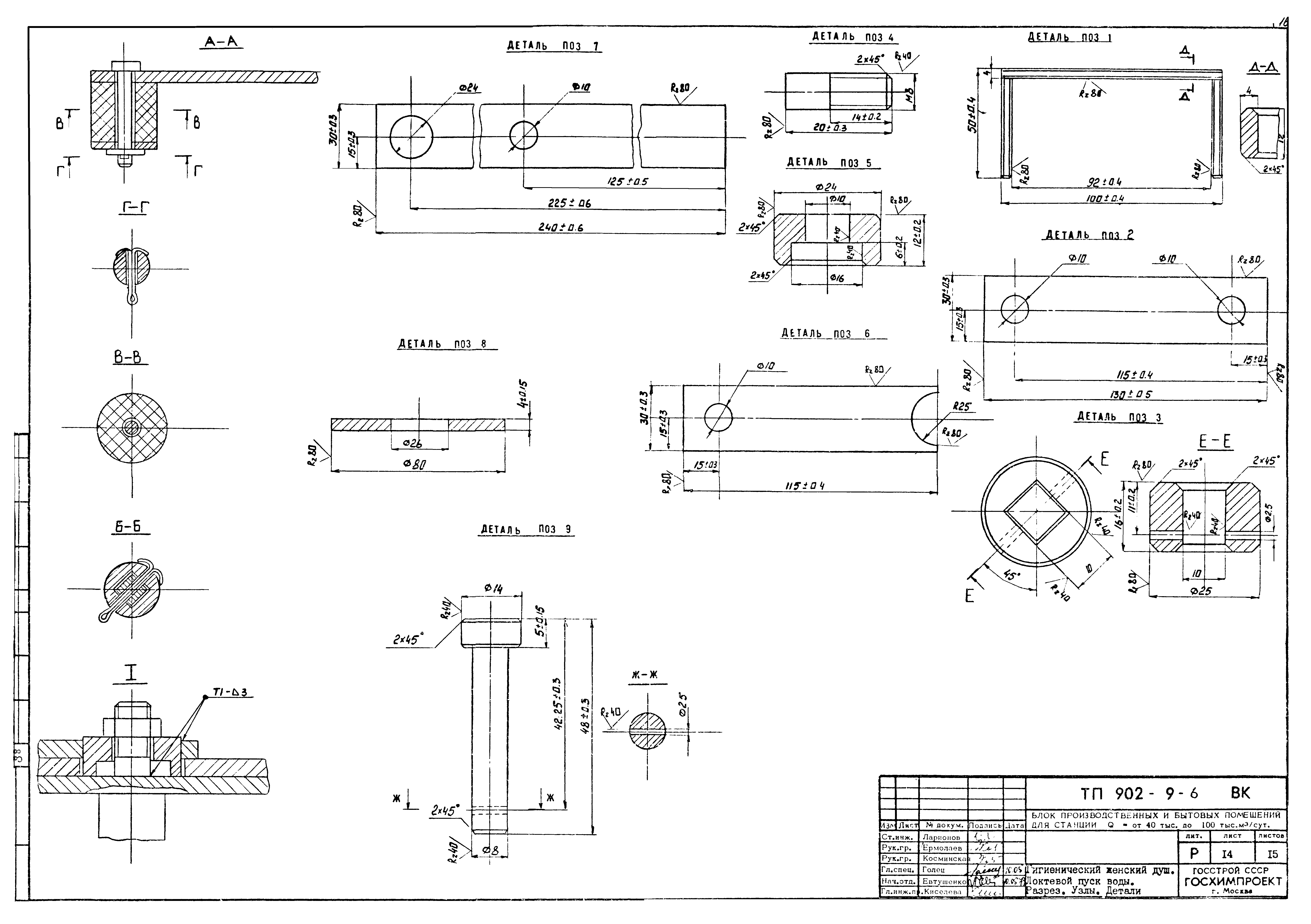
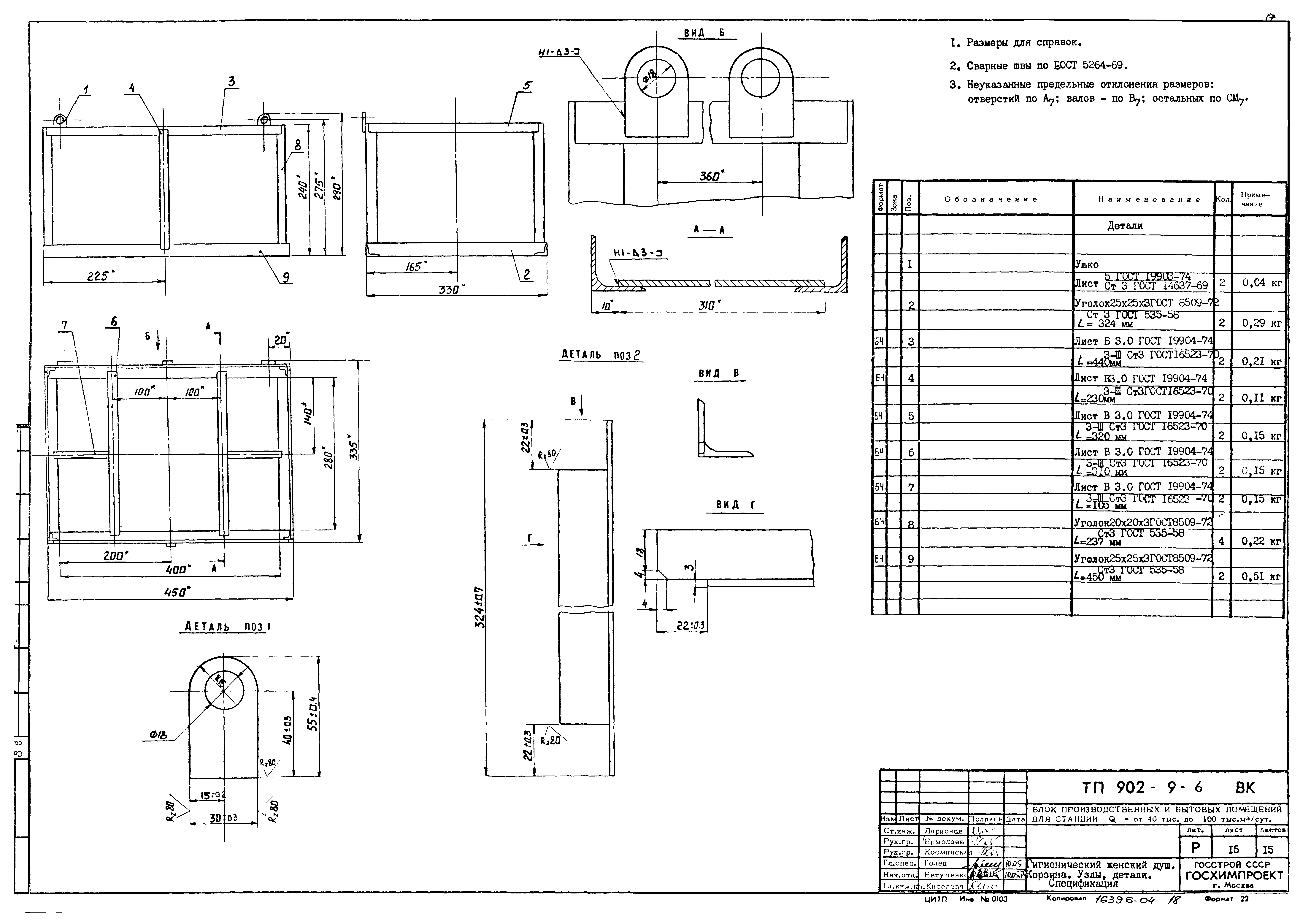
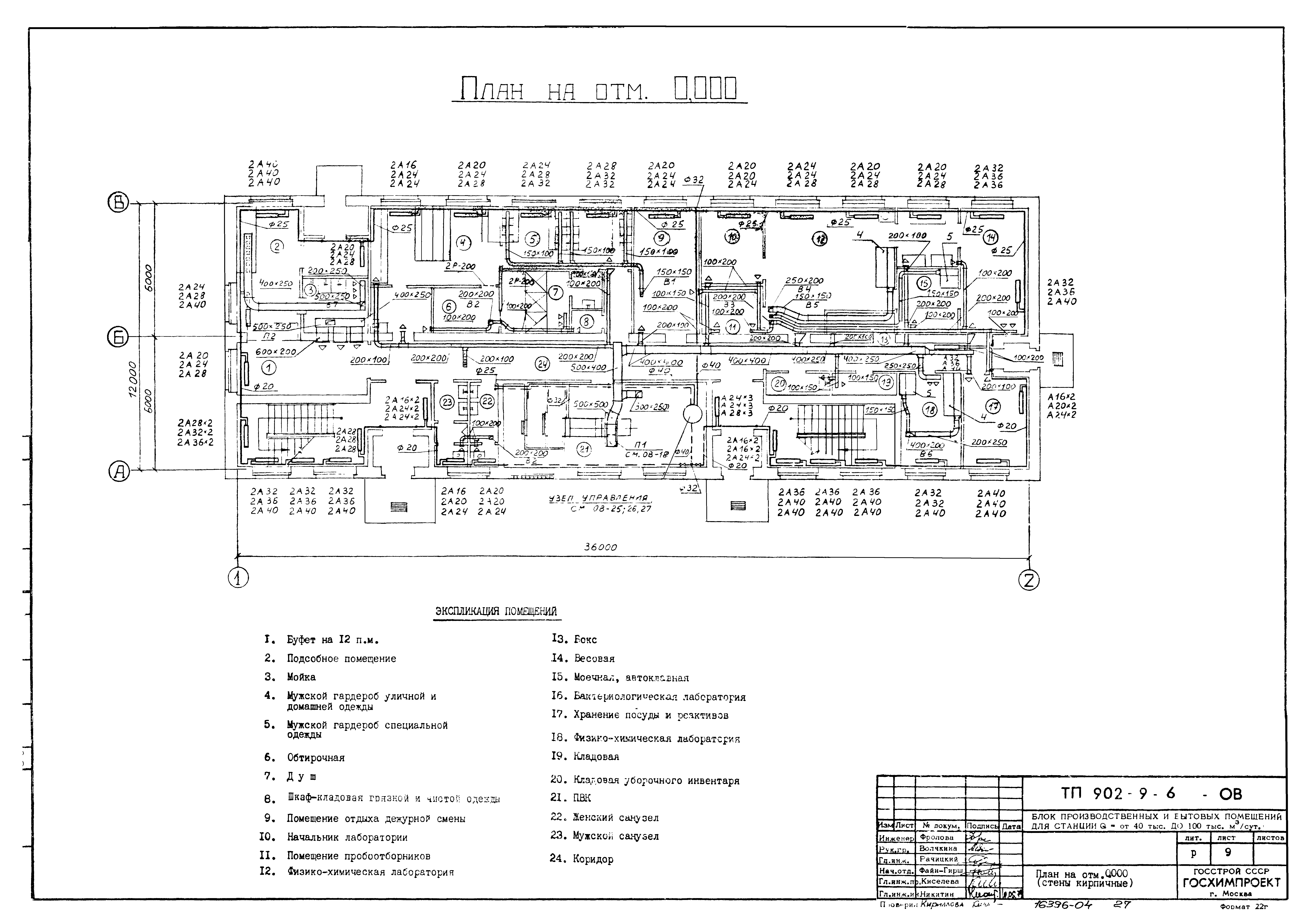
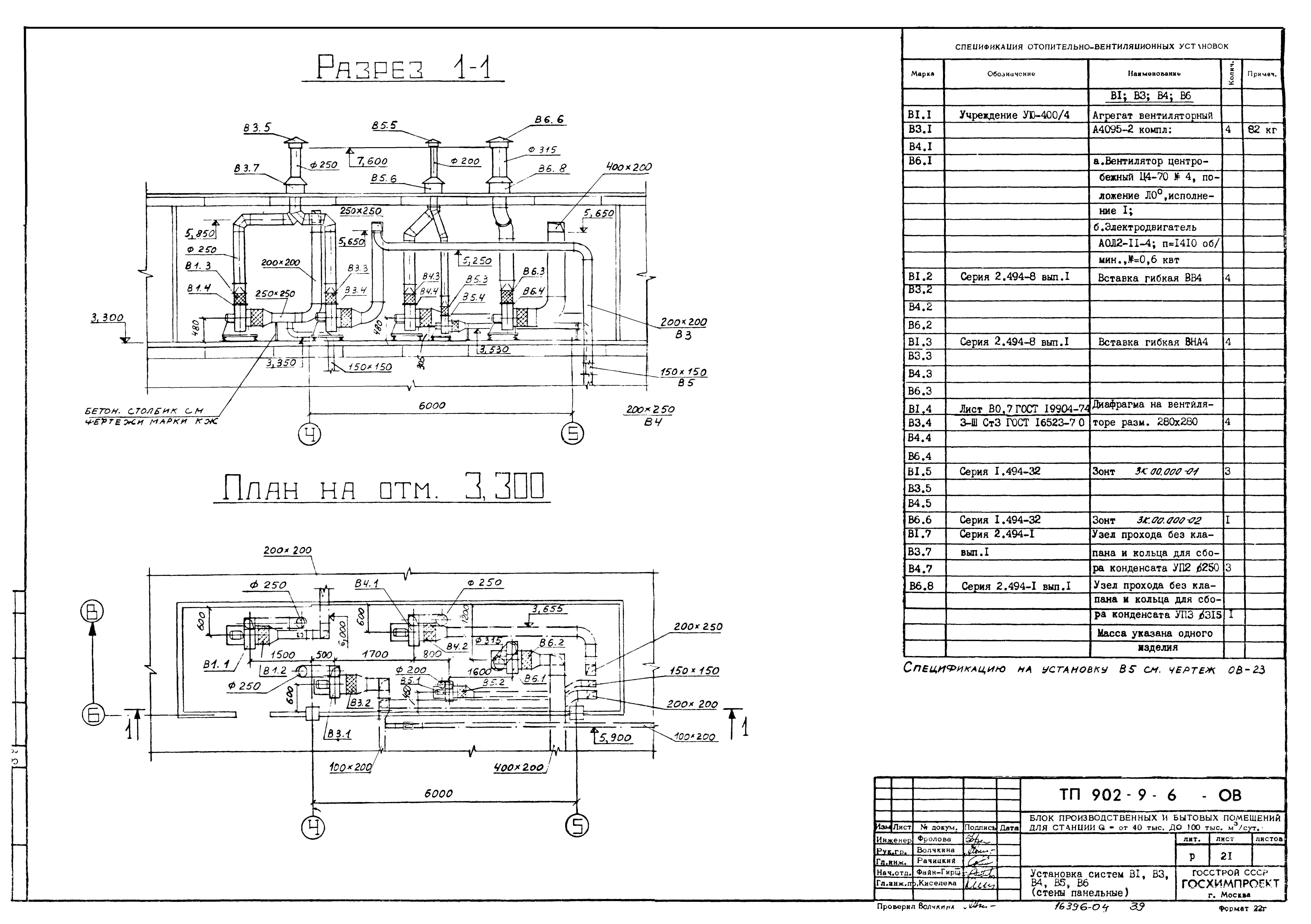
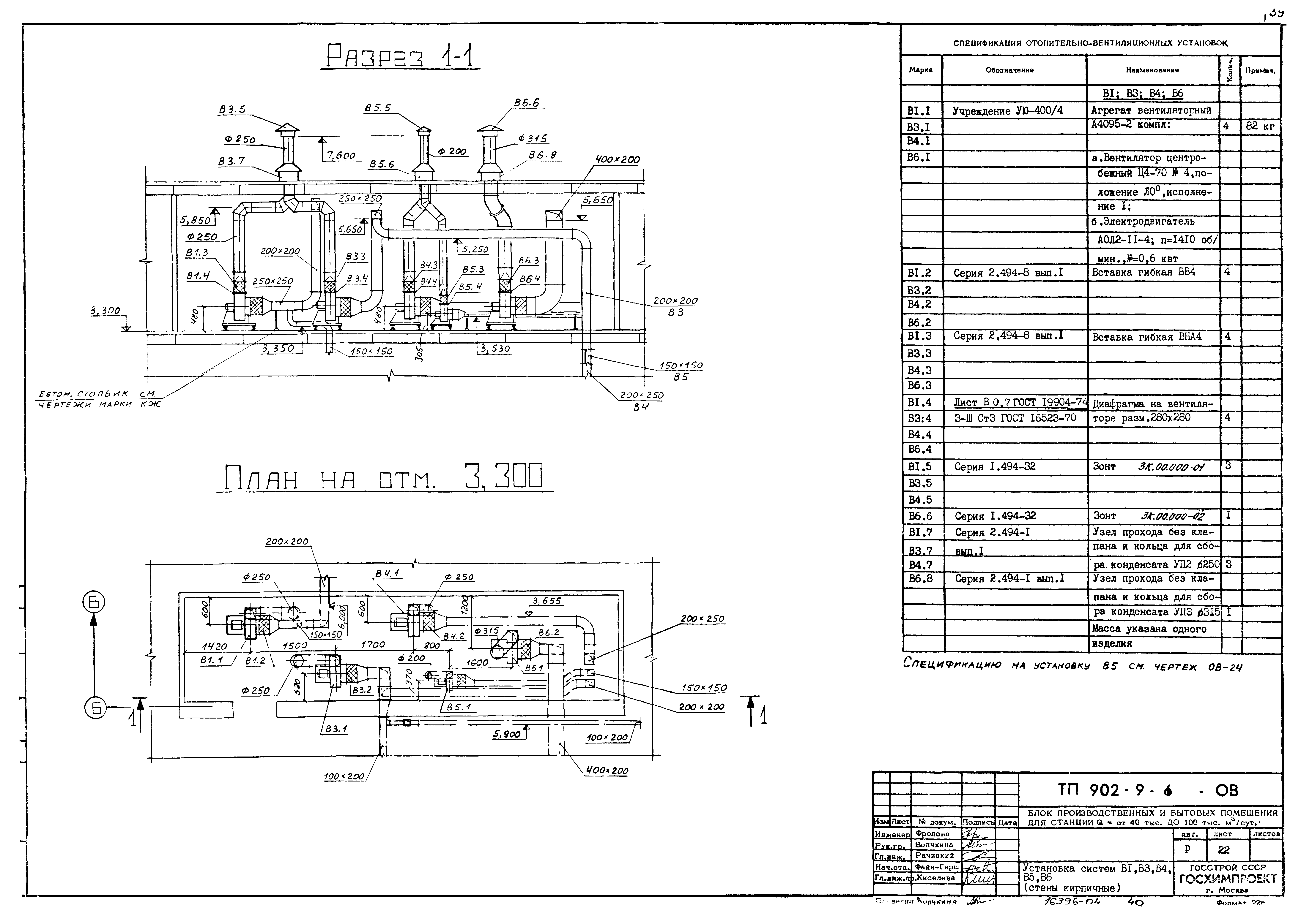
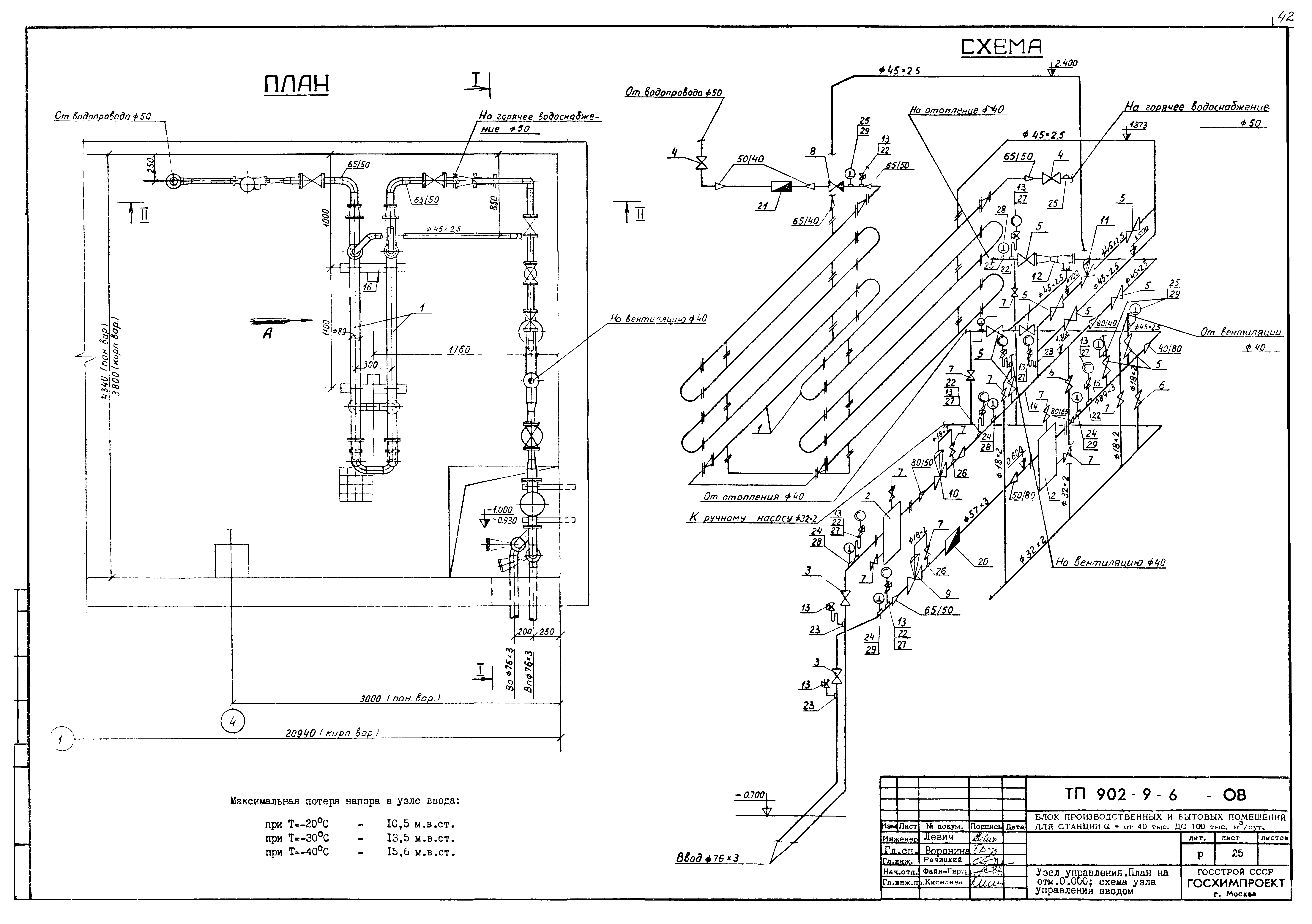
| Оглавление: | ТП 902-9-6 Содержание ТП 902-9-6-ВК-1 Общие данные (начало) ТП 902-9-6-ВК-2 Общие данные (окончание) ТП 902-9-6-ВК-3 План на отм. 0.000 (стены панельные) ТП 902-9-6-ВК-4 План на отм. 0.000 (стены кирпичные) ТП 902-9-6-ВК-5 План на отм. 3.300 (стены панельные) ТП 902-9-6-ВК-6 План на отм. 3.300 (стены кирпичные) ТП 902-9-6-ВК-7 Схема системы В1 ТП 902-9-6-ВК-8 Схема системы Т3 ТП 902-9-6-ВК-9 Схемы систем К1; К4 ТП 902-9-6-ВК-10 План кровли. Схема системы К2. Прочистка в лючке ТП 902-9-6-ВК-11 Гигиенический женский душ. Схема. Спецификация ТП 902-9-6-ВК-12 Гигиенический женский душ. План. Разрез ТП 902-9-6-ВК-13 Гигиенический женский душ. Локтевой пуск воды. Спецификации ТП 902-9-6-ВК-14 Гигиенический женский душ. Локтевой пуск воды. Разрез. Узлы. Детали ТП 902-9-6-ВК-15 Гигиенический душ. Узлы. Детали. Спецификация ТП 902-9-6-ОВ-1 Общие данные (начало) ТП 902-9-6-ОВ-2 Общие данные (продолжение) ТП 902-9-6-ОВ-3 Общие данные (продолжение) ТП 902-9-6-ОВ-4 Общие данные (продолжение) ТП 902-9-6-ОВ-5 Общие данные (продолжение) ТП 902-9-6-ОВ-6 Общие данные (продолжение) ТП 902-9-6-ОВ-7 Общие данные (окончание) ТП 902-9-6-ОВ-8 План на отм. 0.000 (стены панельные) ТП 902-9-6-ОВ-9 План на отм. 0.000 (стены кирпичные) ТП 902-9-6-ОВ-10 План на отм. 3.300 (стены панельные) ТП 902-9-6-ОВ-11 План на отм. 3.300 (стены кирпичные) ТП 902-9-6-ОВ-12 Схемы систем П1, П2, В3, В7 ТП 902-9-6-ОВ-13 Схемы систем В1, В2, В4, В5, В6 ТП 902-9-6-ОВ-14 Система отопления (стены панельные) ТП 902-9-6-ОВ-15 Система отопления (стены кирпичные) ТП 902-9-6-ОВ-16 Система теплоснабжения установок П1, П2. Спецификация П1 ТП 902-9-6-ОВ-17 Установка системы П1 (стены панельные) ТП 902-9-6-ОВ-18 Установка системы П1 (стены кирпичные) ТП 902-9-6-ОВ-19 Установка системы П2 (стены панельные) ТП 902-9-6-ОВ-20 Установка системы П2 (стены кирпичные) ТП 902-9-6-ОВ-21 Установка систем B1, В3, В4, В5, В6 (стены панельные) ТП 902-9-6-ОВ-22 Установка систем В1, В3, В4, В5, В6 (стены кирпичные) ТП 902-9-6-ОВ-23 Установка систем В2, В7. Спецификация В2, В5, В7 (стены панельные) ТП 902-9-6-ОВ-24 Установка систем В2, В7. Спецификация В2, В5, В7 (стены кирпичные) ТП 902-9-6-ОВ-25 Узел управления. План на отм. 0.000, схема узла управления вводом ТП 902-9-6-ОВ-26 Узел управления. Разрез 1-1; 2-2. Вид А ТП 902-9-6-ОВ-27 Узел управления. Спецификация |
| Разработан: | Союзводоканалпроект |
| Утверждён: | 25.06.1979 Союзводоканалпроект (Soyuzvodokanalproject 31) |
| Издан: | ЦИТП Госстроя СССР (CITP, Gosstroy (USSR) 1979 г. ) |













































