Скачать Типовой проект 704-1-111 Альбом V. Оборудование резервуаров емкостью 5-100 куб. м для темных нефтепродуктов, при надземной установкеДата актуализации: 01.01.2021
|
| Обозначение: | Типовой проект 704-1-111 |
| Обозначение англ: | 704-1-111 |
| Статус: | не действует |
| Название рус.: | Альбом V. Оборудование резервуаров емкостью 5-100 куб. м для темных нефтепродуктов, при надземной установке |
| Дата добавления в базу: | 01.09.2013 |
| Дата актуализации: | 01.01.2021 |
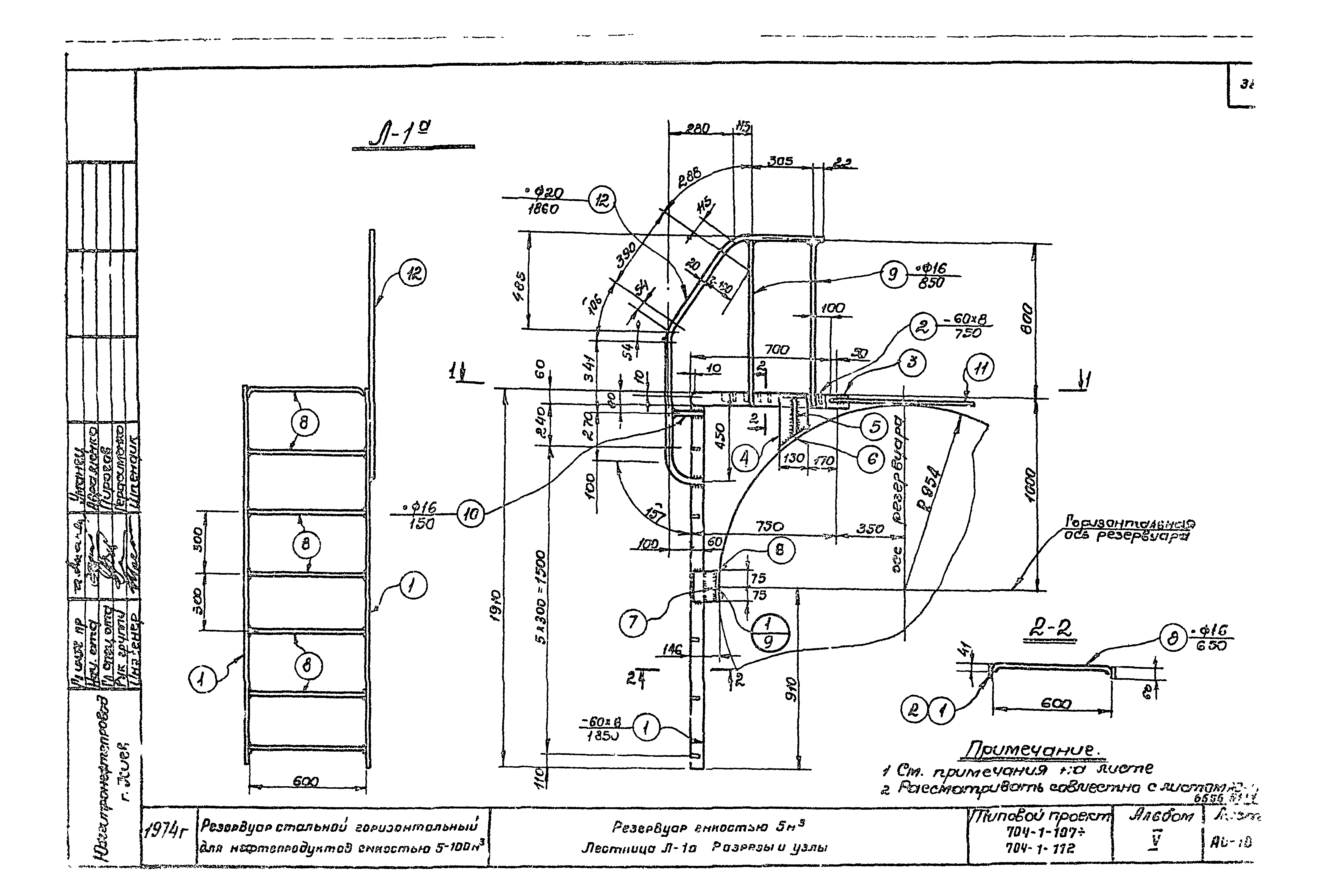
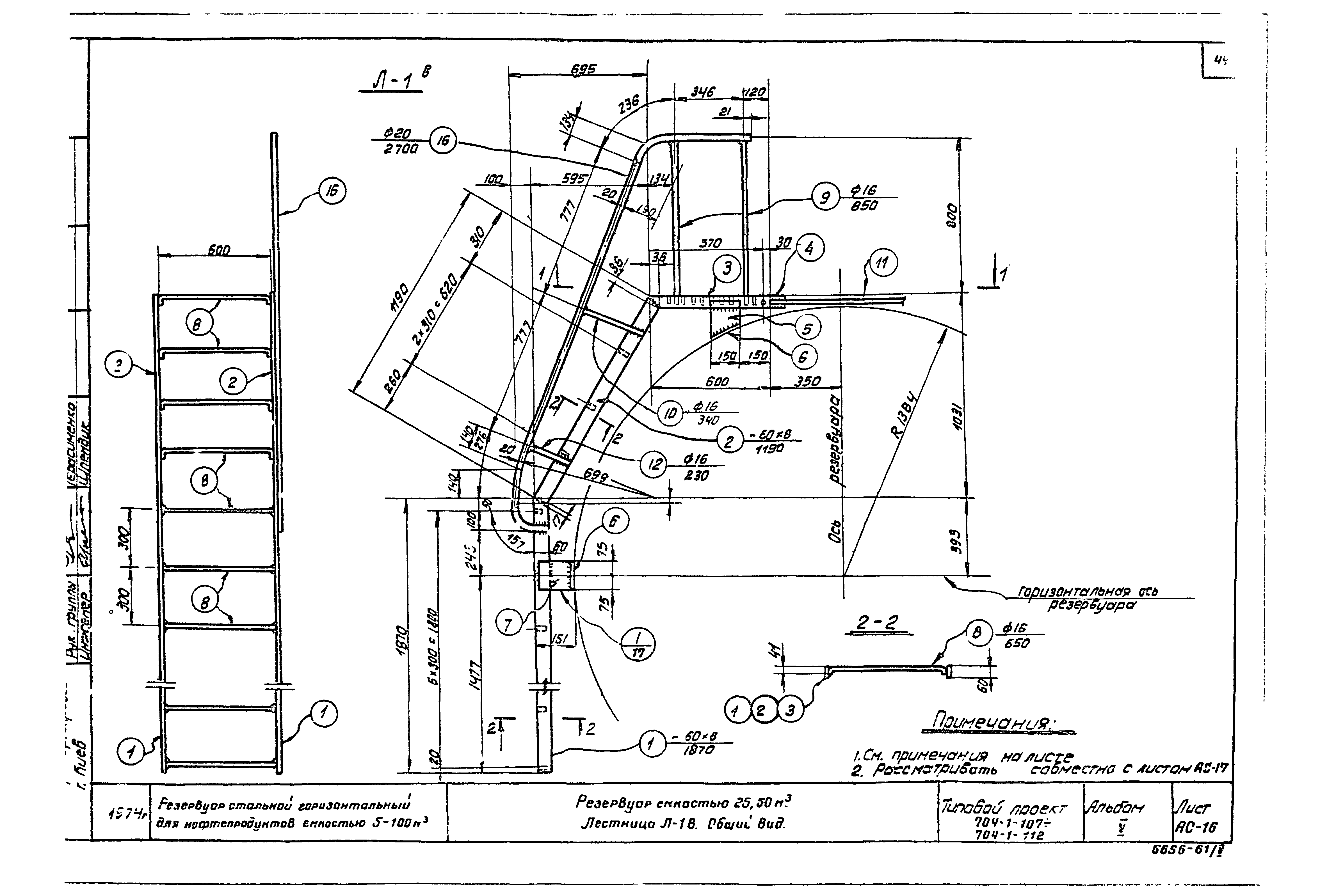
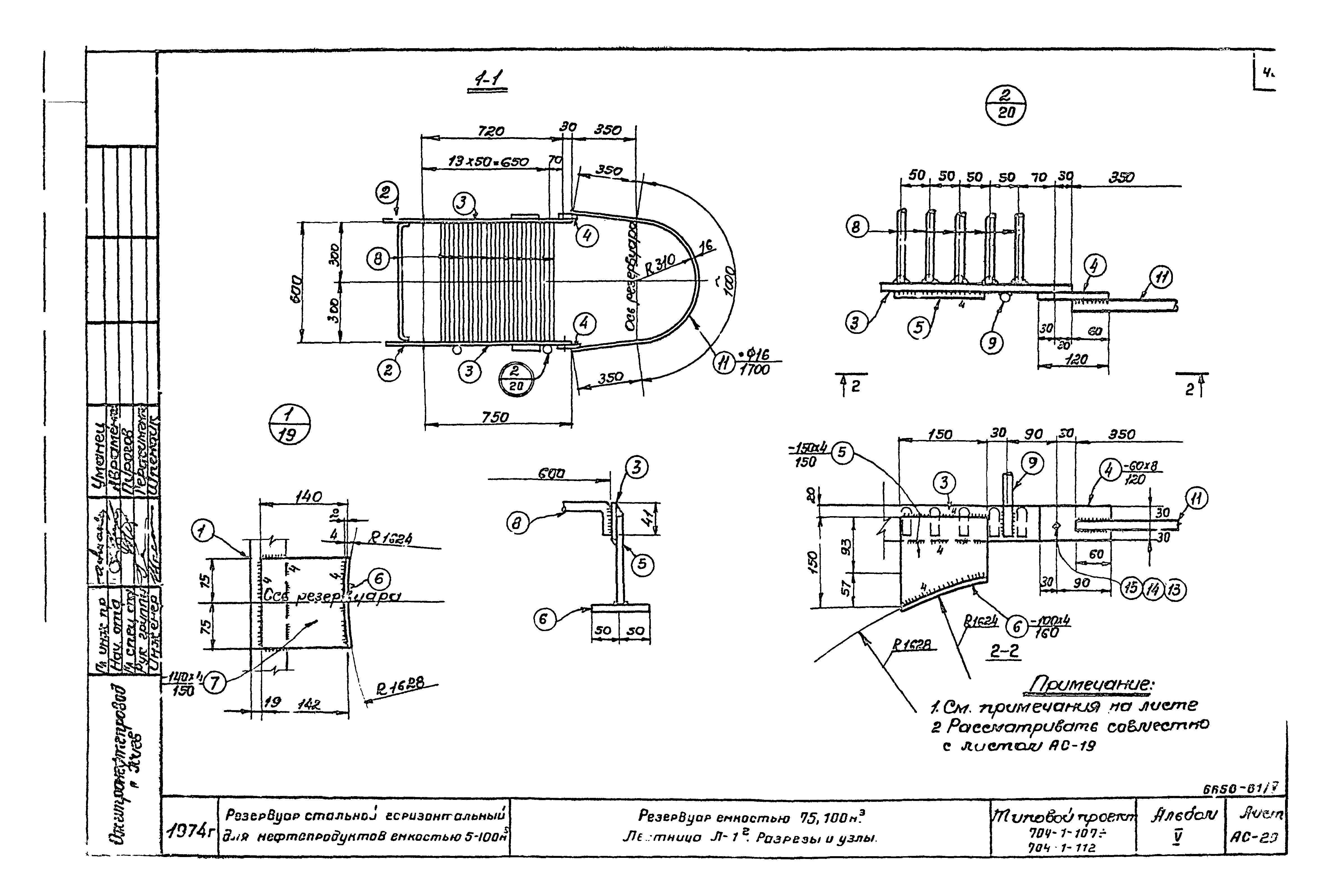
| Оглавление: | ТП 704-1-107÷704-1-112 Обложка ТП 704-1-107÷704-1-112 Содержание альбома ТП 704-1-107÷704-1-112 Пояснительная записка ТП 704-1-107÷704-1-112-ТХ Технологическая часть ТП 704-1-107÷704-1-112-ТХ-1 Оборудование надземного резервуара емкостью 5;10;25;50;75 и 100 м³ для темных нефтепродуктов. Общий вид ТП 704-1-107÷704-1-112-ТХ-2 Оборудование надземного резервуара емкостью 5;10;25;50;75 и 100 м³ для темных нефтепродуктов. Спецификация ТП 704-1-107÷704-1-112-ТХ-3 Патрубок замерного люка. Общий вид. Деталь ТП 704-1-107÷704-1-112-ТХ-4 Установка оборудования на крышке горловины резервуара. Общий вид ТП 704-1-107÷704-1-112-ТХ-5 Наконечник вентиляционный. Общий вид ТП 704-1-107÷704-1-112-ТХ-6 Труба приемо-раздаточная ТП 704-1-107÷704-1-112-ТХ-7 Пробка водогрязеспускная 03-3542. Схема расположения пробки на резервуаре. Общий вид. Спецификация ТП 704-1-107÷704-1-112-ТХ-8 Расположение секционных подогревателей в резервуаре емкостью 5м³F=2м². Общий вид ТП 704-1-107÷704-1-112-ТХ-9 Расположение секционных подогревателей в резервуаре емкостью 5м³F=2м². Узел. Спецификация ТП 704-1-107÷704-1-112-ТХ-10 Расположение секционных подогревателей в резервуаре емкостью 10м³ F=6м². Общий вид ТП 704-1-107÷704-1-112-ТХ-11 Расположение секционных подогревателей в резервуаре емкостью 10м³ F=6м². Узлы. Спецификация ТП 704-1-107÷704-1-112-ТХ-12 Расположение секционных подогревателей в резервуаре емкостью 25м³ F=6м². Общий вид ТП 704-1-107÷704-1-112-ТХ-13 Расположение секционных подогревателей в резервуаре емкостью 25м³ F=6м². Узлы. Спецификация ТП 704-1-107÷704-1-112-ТХ-14 Расположение секционных подогревателей в резервуаре емкостью 50м³ F=13м². Общий вид ТП 704-1-107÷704-1-112-ТХ-15 Расположение секционных подогревателей в резервуаре емкостью 50м³ F=13м². Узлы. Спецификация ТП 704-1-107÷704-1-112-ТХ-16 Расположение секционных подогревателей в резервуаре емкостью 75м³ F=14м². Общий вид ТП 704-1-107÷704-1-112-ТХ-17 Расположение секционных подогревателей в резервуаре емкостью 75м³ F=14м². Узлы. Спецификация ТП 704-1-107÷704-1-112-ТХ-18 Расположение секционных подогревателей в резервуаре емкостью 100м³ F=14м². Общий вид ТП 704-1-107÷704-1-112-ТХ-19 Расположение секционных подогревателей в резервуаре емкостью 100м³ F=14м². Узлы. Спецификация ТП 704-1-107÷704-1-112-ТХ-20 Подогревательный элемент. Общий вид. Спецификация ТП 704-1-107÷704-1-112-ТХ-21 Коллектор для сборки подогревательных элементов. Общий вид. Спецификация ТП 704-1-107÷704-1-112-ТС Сантехническая часть ТП 704-1-107÷704-1-112-ТС-1 Узел вывода конденсата ТП 704-1-107÷704-1-112-АС Строительная часть ТП 704-1-107÷704-1-112-АС-1 Монтажная схема опор ТП 704-1-107÷704-1-112-АС-2 Резервуары емкостью 5 и 10 м³. Площадка обслуживания. Монтажная схема стальных лестниц ТП 704-1-107÷704-1-112-АС-3 Резервуары емкостью 25 и 100 м³. Площадка обслуживания. Монтажная схема стальных лестниц ТП 704-1-107÷704-1-112-АС-4 Резервуары емкостью 5 и 10 м³. Площадка обслуживания. Монтажная схема при групповом расположении резервуаров ТП 704-1-107÷704-1-112-АС-5 Резервуары емкостью 25,50,75 и 100 м³. Площадки обслуживания. Монтажная схема при групповом расположении резервуаров ТП 704-1-107÷704-1-112-АС-6 Площадка обслуживания. Стойки С-1 и С-2 ТП 704-1-107÷704-1-112-АС-7 Площадка обслуживания. Сечение 1-1,3-3 ТП 704-1-107÷704-1-112-АС-8 Площадка обслуживания. Узлы крепления стальных лестниц ТП 704-1-107÷704-1-112-АС-9 Площадка обслуживания. Фундаменты Ф-1,Ф-2 ТП 704-1-107÷704-1-112-АС-10 Резервуар емкостью 5 м³. Лестница Л-1а. Разрезы и узлы ТП 704-1-107÷704-1-112-АС-11 Резервуар емкостью 5 м³. Лестница Л-1а. Разрезы и узлы ТП 704-1-107÷704-1-112-АС-12 Резервуар емкостью 5 м³. Лестница Л-1а. Спецификация ТП 704-1-107÷704-1-112-АС-13 Резервуар емкостью 10 м³. Лестница Л-1б. Общий вид ТП 704-1-107÷704-1-112-АС-14 Резервуар емкостью 10 м³. Лестница Л-1б. Разрезы и узлы ТП 704-1-107÷704-1-112-АС-15 Резервуар емкостью 10 м³. Лестница Л-1б. Спецификация ТП 704-1-107÷704-1-112-АС-16 Резервуар емкостью 25,50 м³. Лестница Л-1в. Общий вид ТП 704-1-107÷704-1-112-АС-17 Резервуар емкостью 25,50 м³. Лестница Л-1в. Разрезы и узлы ТП 704-1-107÷704-1-112-АС-18 Резервуар емкостью 25,50 м³. Лестница Л-1в. Спецификация ТП 704-1-107÷704-1-112-АС-19 Резервуар емкостью 75,100 м³. Лестница Л-1г. Общий вид ТП 704-1-107÷704-1-112-АС-20 Резервуар емкостью 75,100 м³. Лестница Л-1в. Разрезы и узлы ТП 704-1-107÷704-1-112-АС-21 Резервуар емкостью 75,100 м³. Лестница Л-1в. Спецификация ТП 704-1-107÷704-1-112-АС-22 Площадка обслуживания. Спецификация стали и расход материалов на фундаменты ТП 704-1-107÷704-1-112-АС-23 Площадка обслуживания. Спецификация при групповом расположении резервуаров ТП 704-1-107÷704-1-112-АС-24 Площадка обслуживания. Заказ стали ТП 704-1-107÷704-1-112-АС-25 Площадки обслуживания при групповом расположении резервуаров. Заказ стали ТП 704-1-107÷704-1-112-АС-26 Заказ стали на лестницы Л-1а,Л-1б,Л-1в,Л-1г ТП 704-1-107÷704-1-112-КП КИП и автоматика ТП 704-1-107÷704-1-112-КП-1 Принципиальная схема контроля ТП 704-1-107÷704-1-112-КП-2 Установка термометров на конденсатопроводе и резервуаре. Общий вид ТП 704-1-107÷704-1-112-КП-3 Установка термометров на конденсатопроводе и резервуаре. Детали |
| Разработан: | ЦНИИпроектстальконструкция Госстроя |
| Утверждён: | 04.03.1975 Главнефтеснаб РСФСР (48) |

























































