Скачать Серия 3.903 КЛ-13 Выпуск 0-2. Теплоснабжение. Сборные железобетонные камеры на тепловых сетях. Материалы для проектированияДата актуализации: 01.01.2021
|
| Обозначение: | Серия 3.903 КЛ-13 |
| Обозначение англ: | Series 3.903 КЛ-13 |
| Статус: | не действует |
| Название рус.: | Выпуск 0-2. Теплоснабжение. Сборные железобетонные камеры на тепловых сетях. Материалы для проектирования |
| Дата добавления в базу: | 01.09.2013 |
| Дата актуализации: | 01.01.2021 |
| Область применения: | В выпуске 0-2 помещены материалы для проектирования камер на тепловых сетях из сборных железобетонных элементов, разработанных в выпусках 1-6 и 1-7 серии 3.903 КЛ-13 |
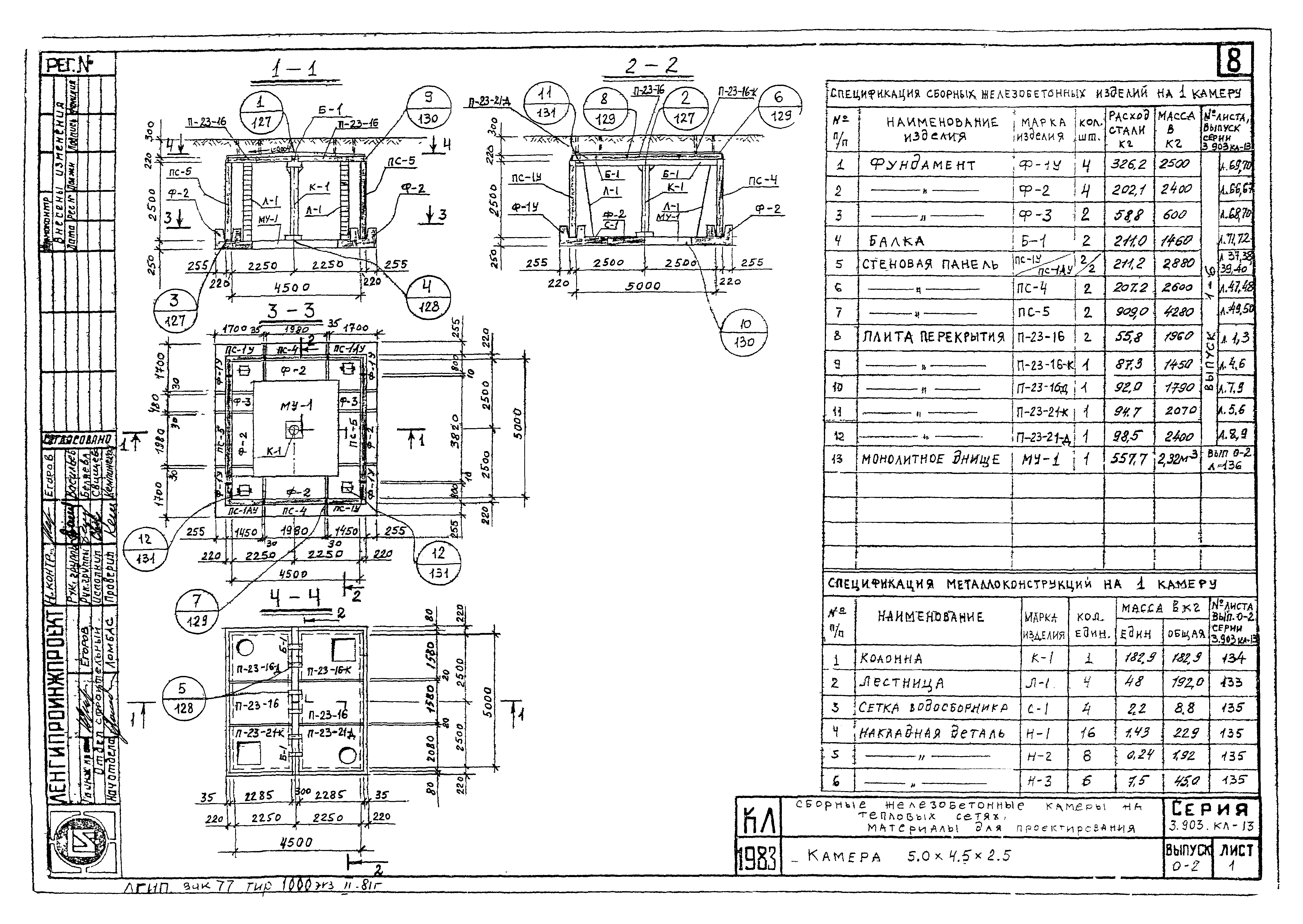
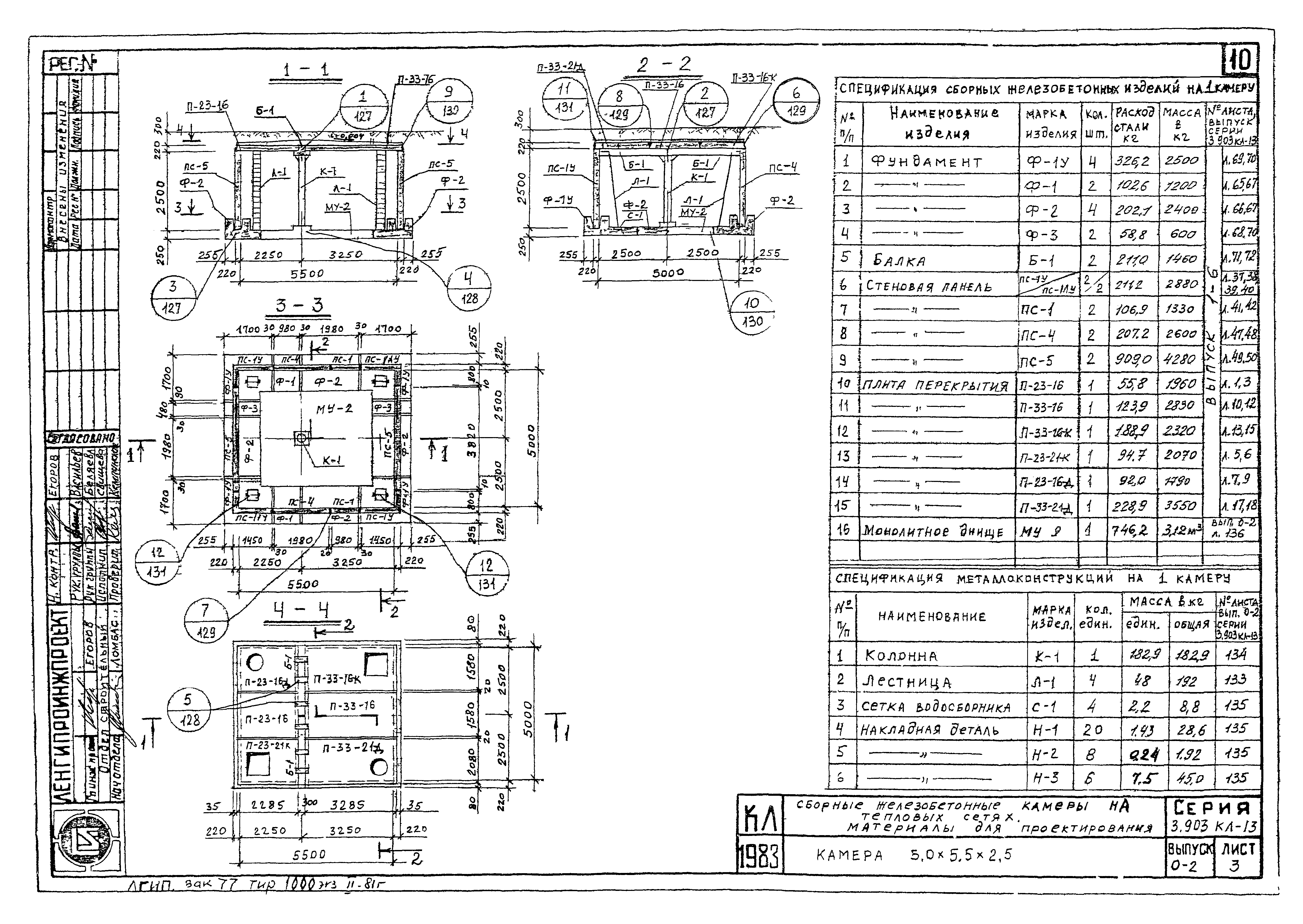
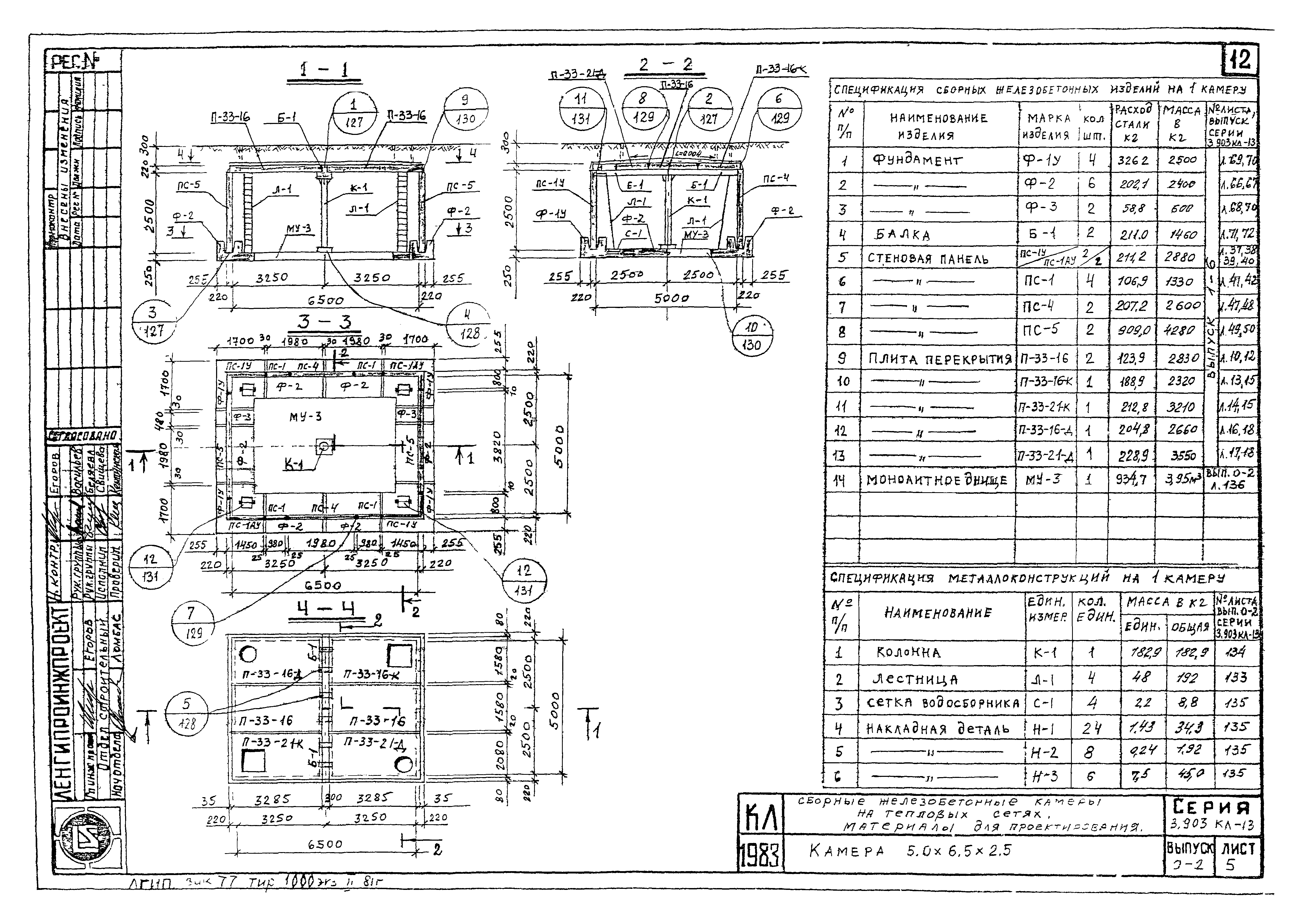
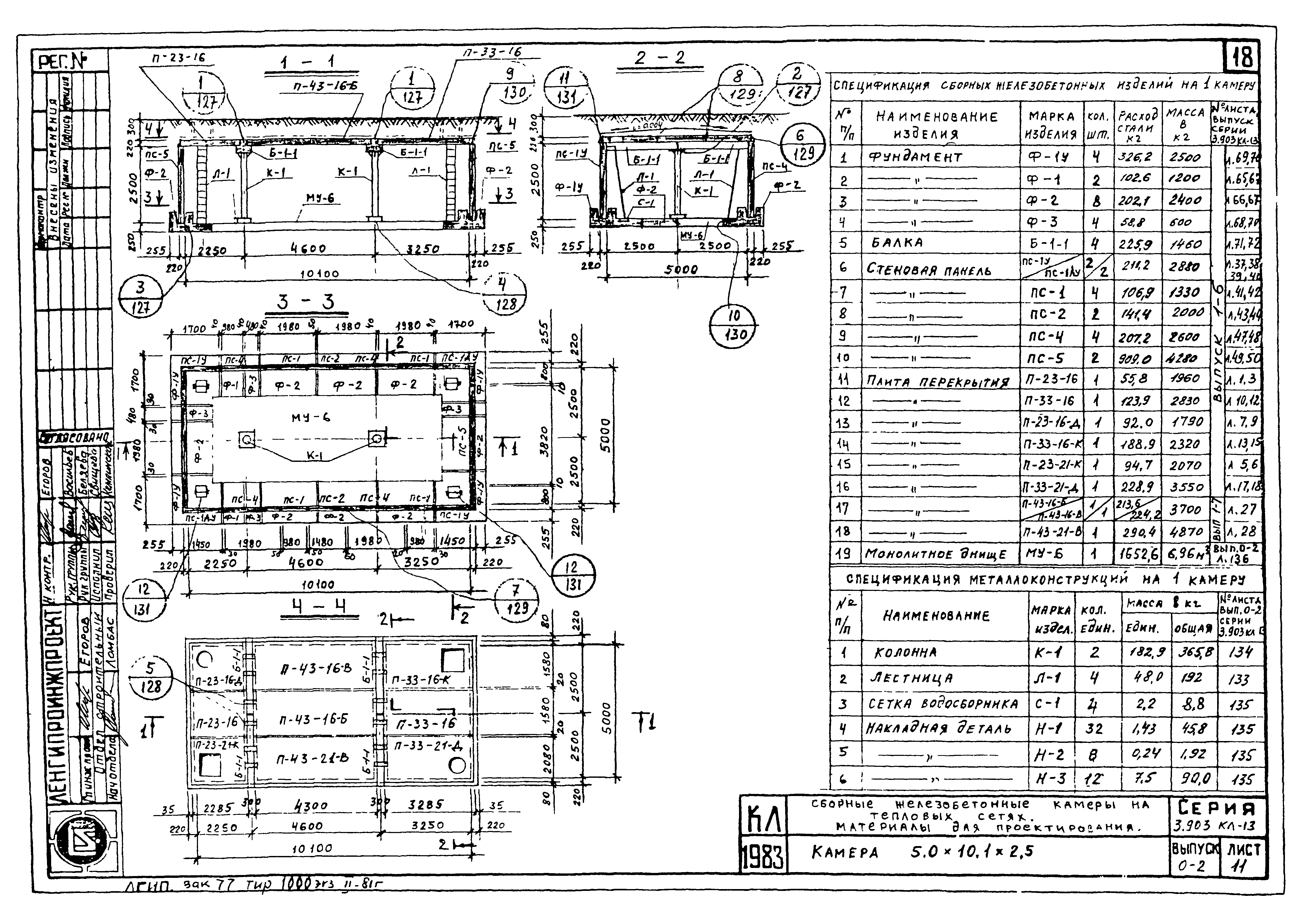
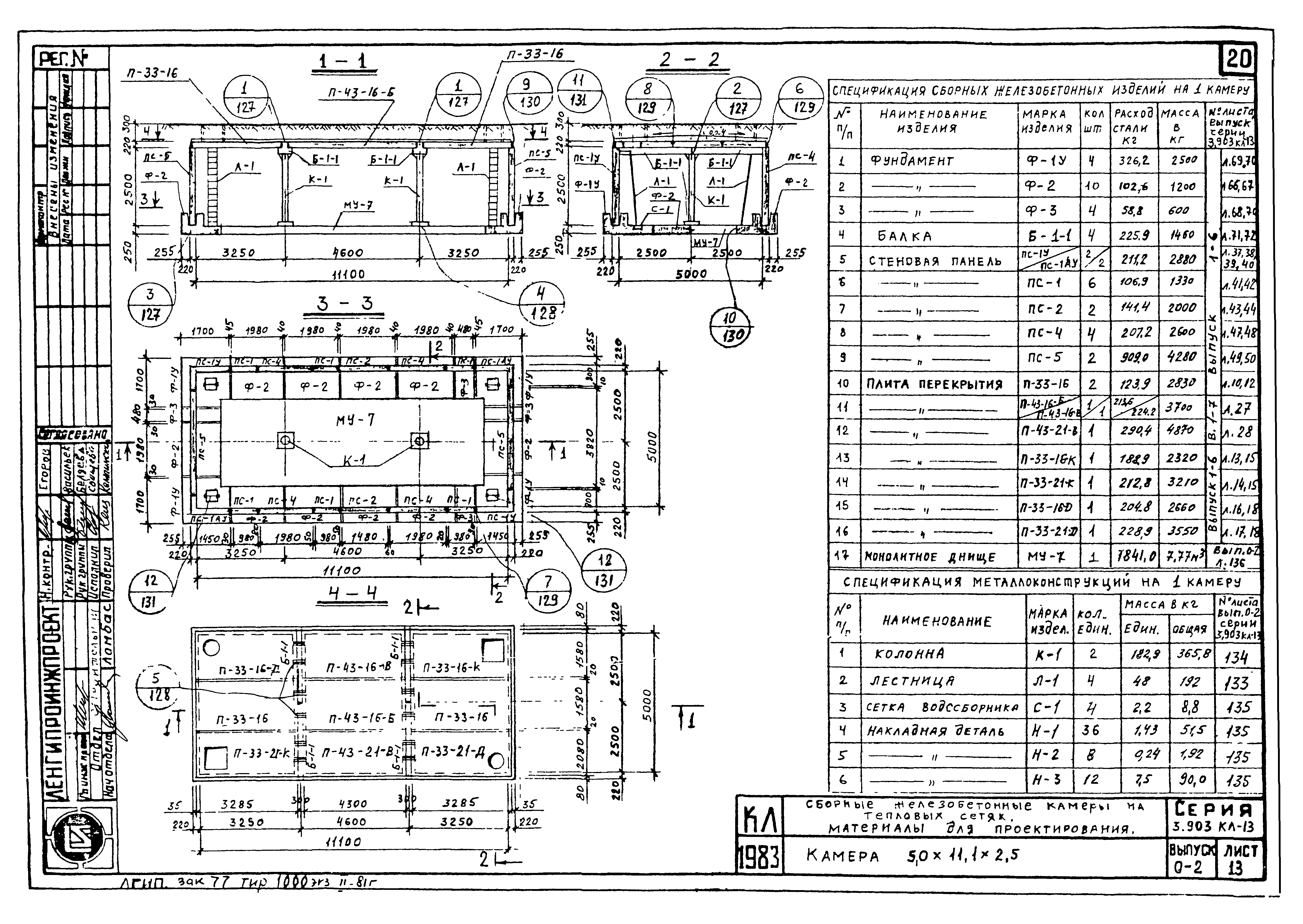
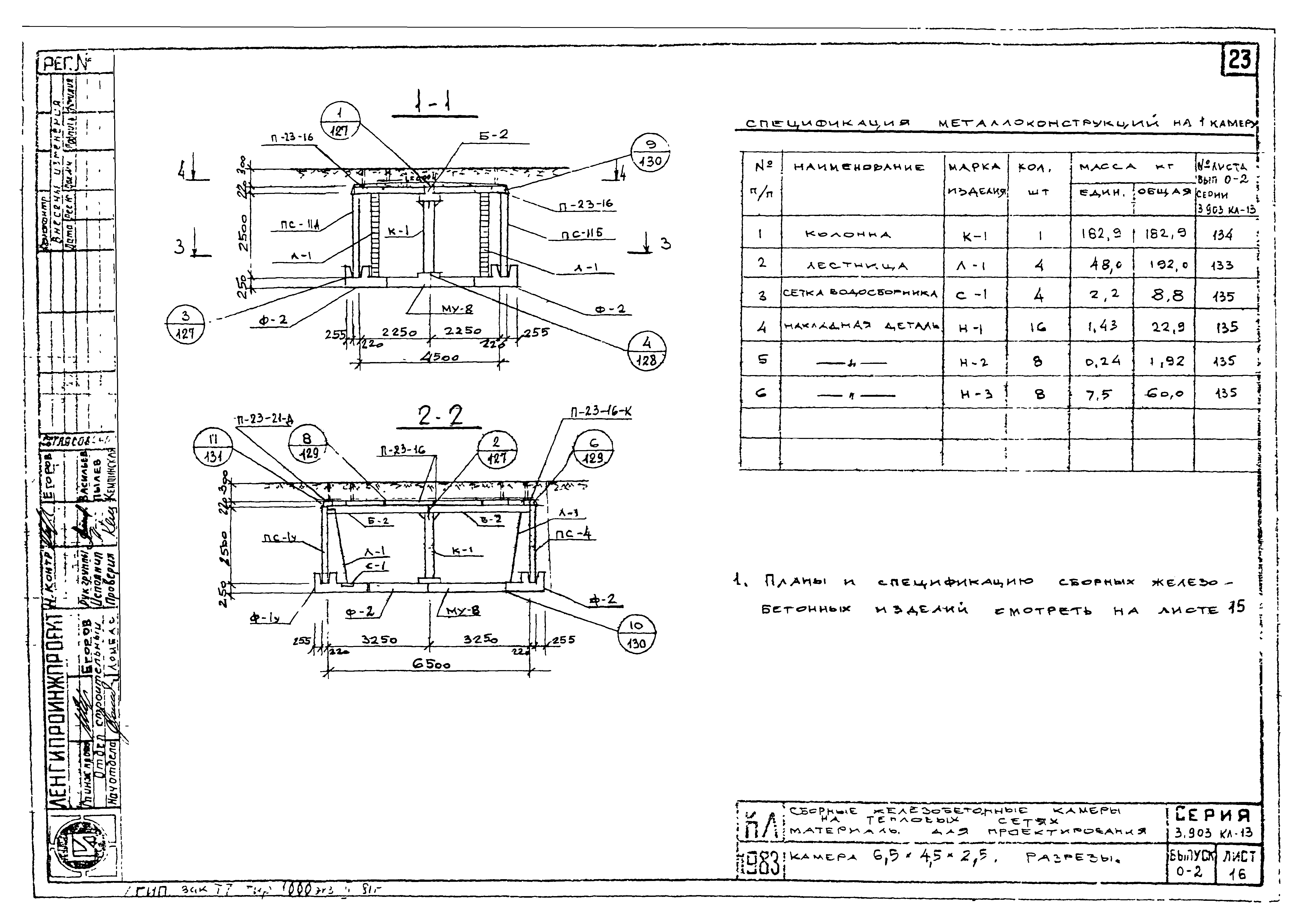
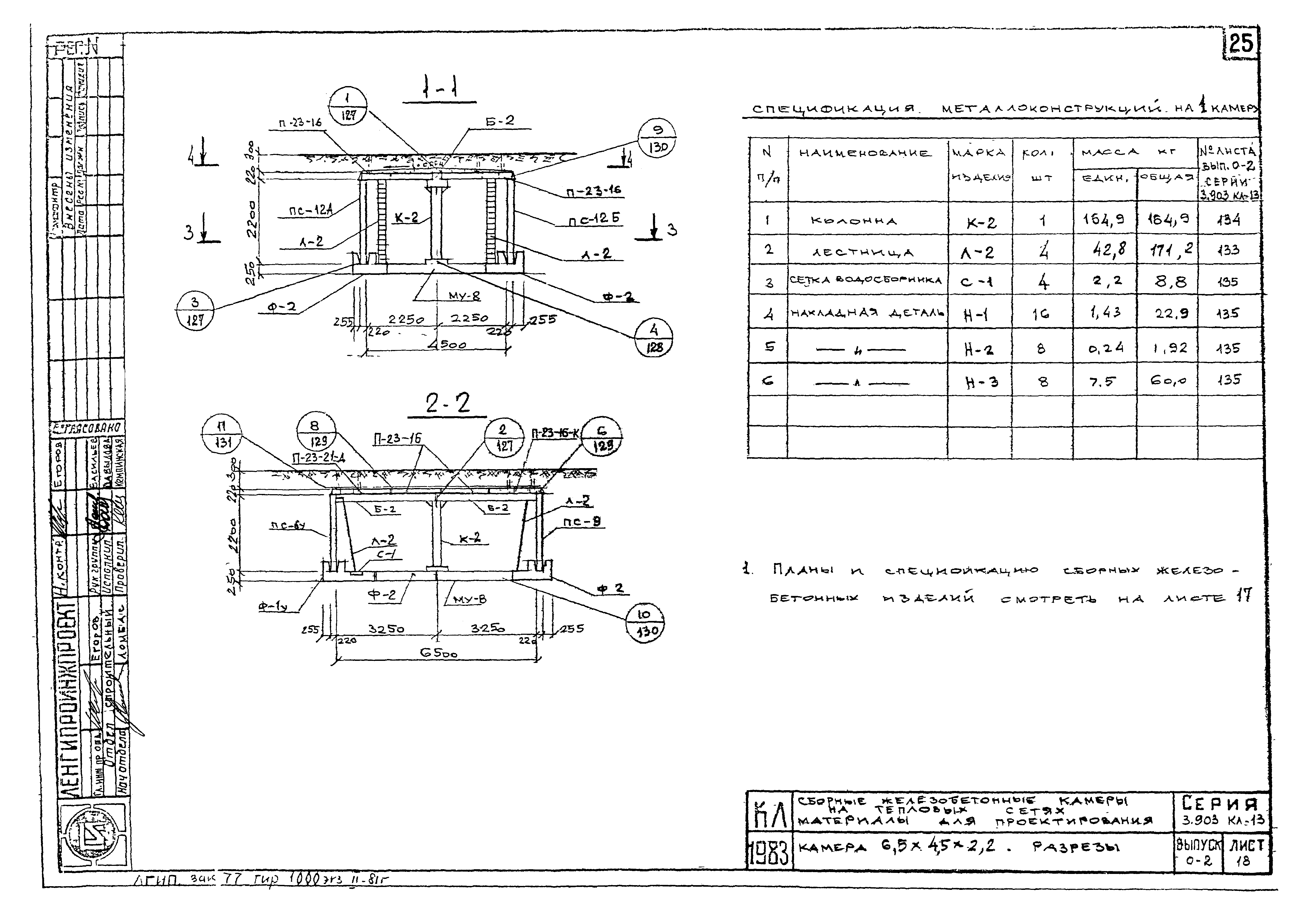
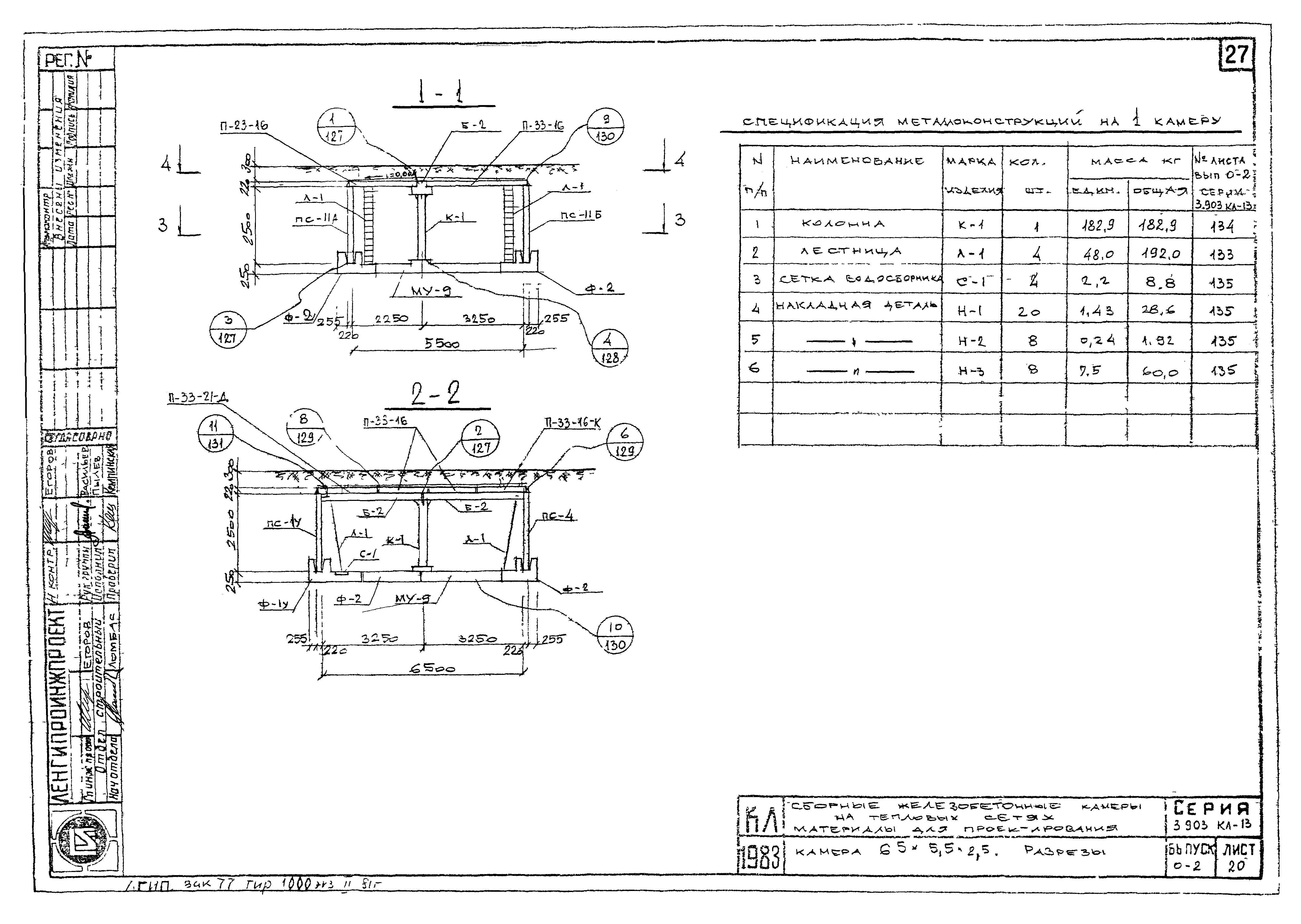
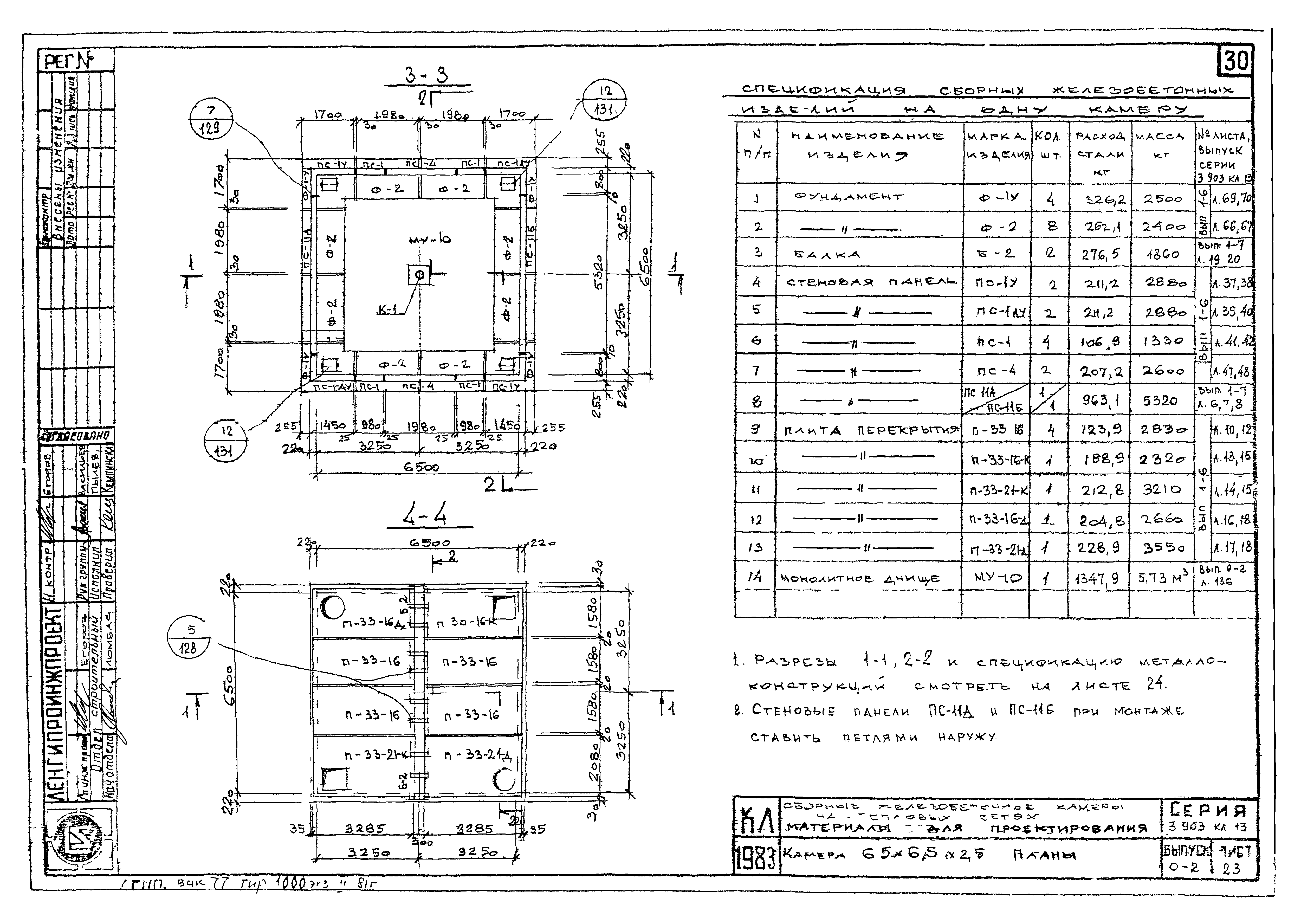
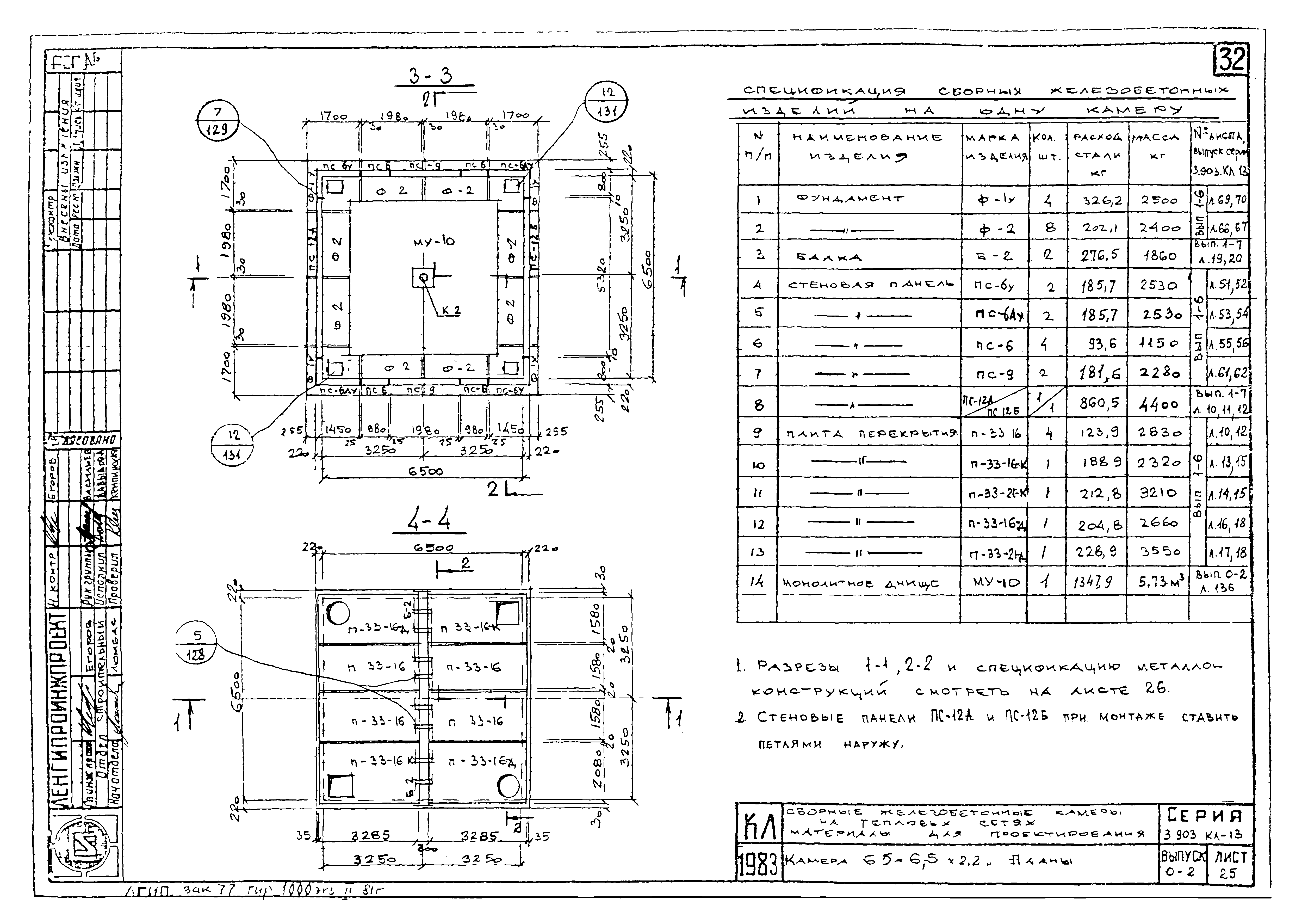
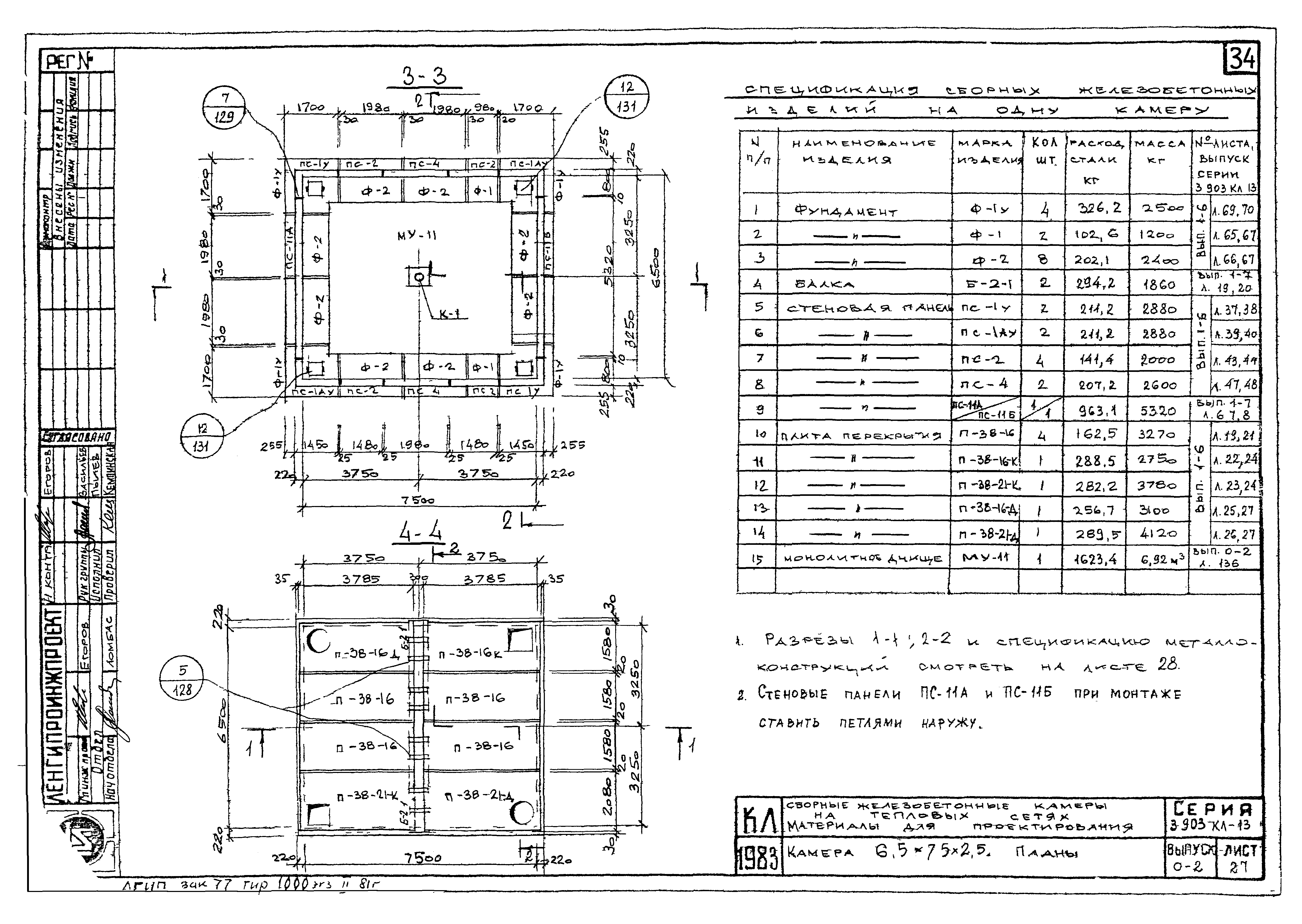
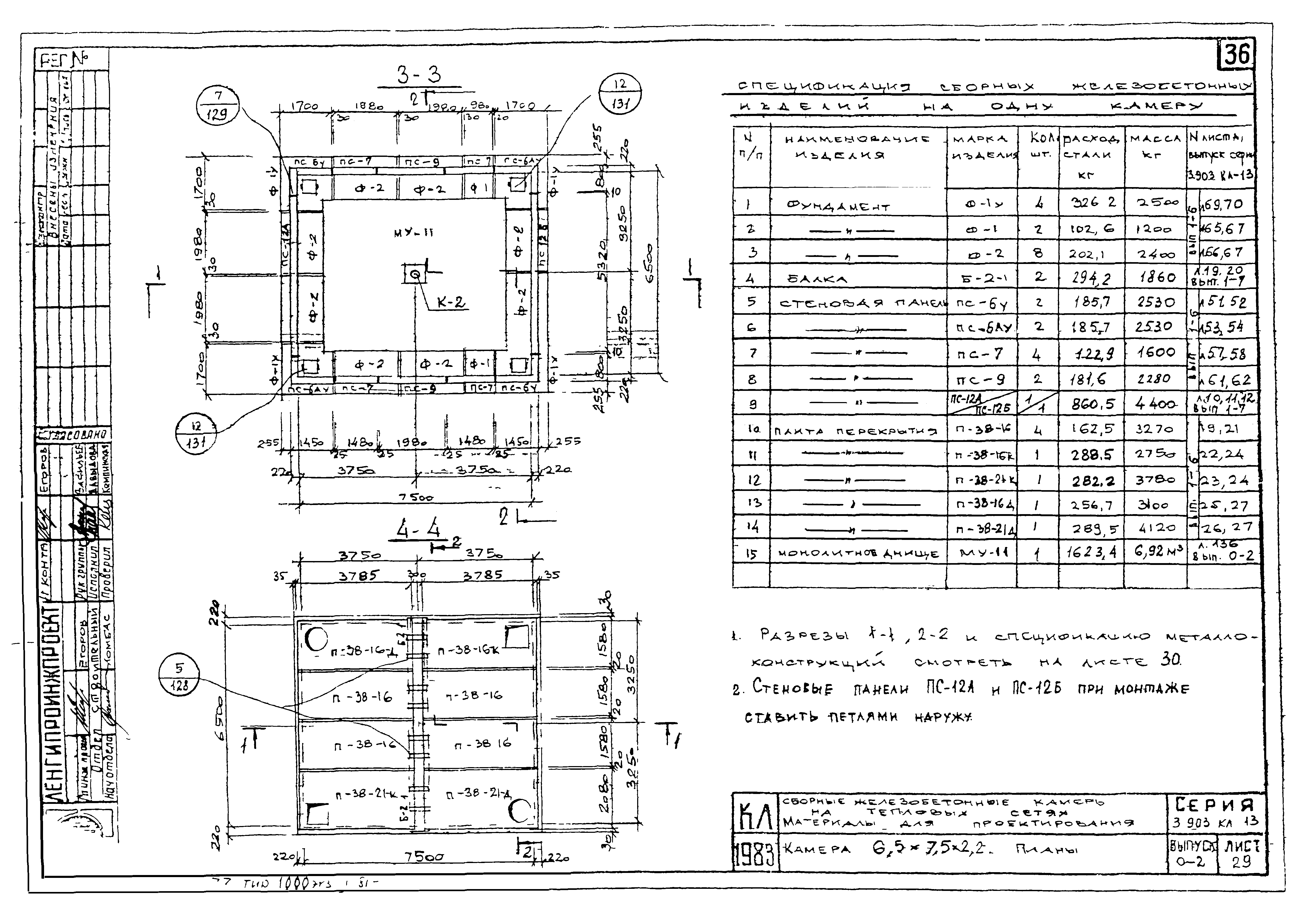
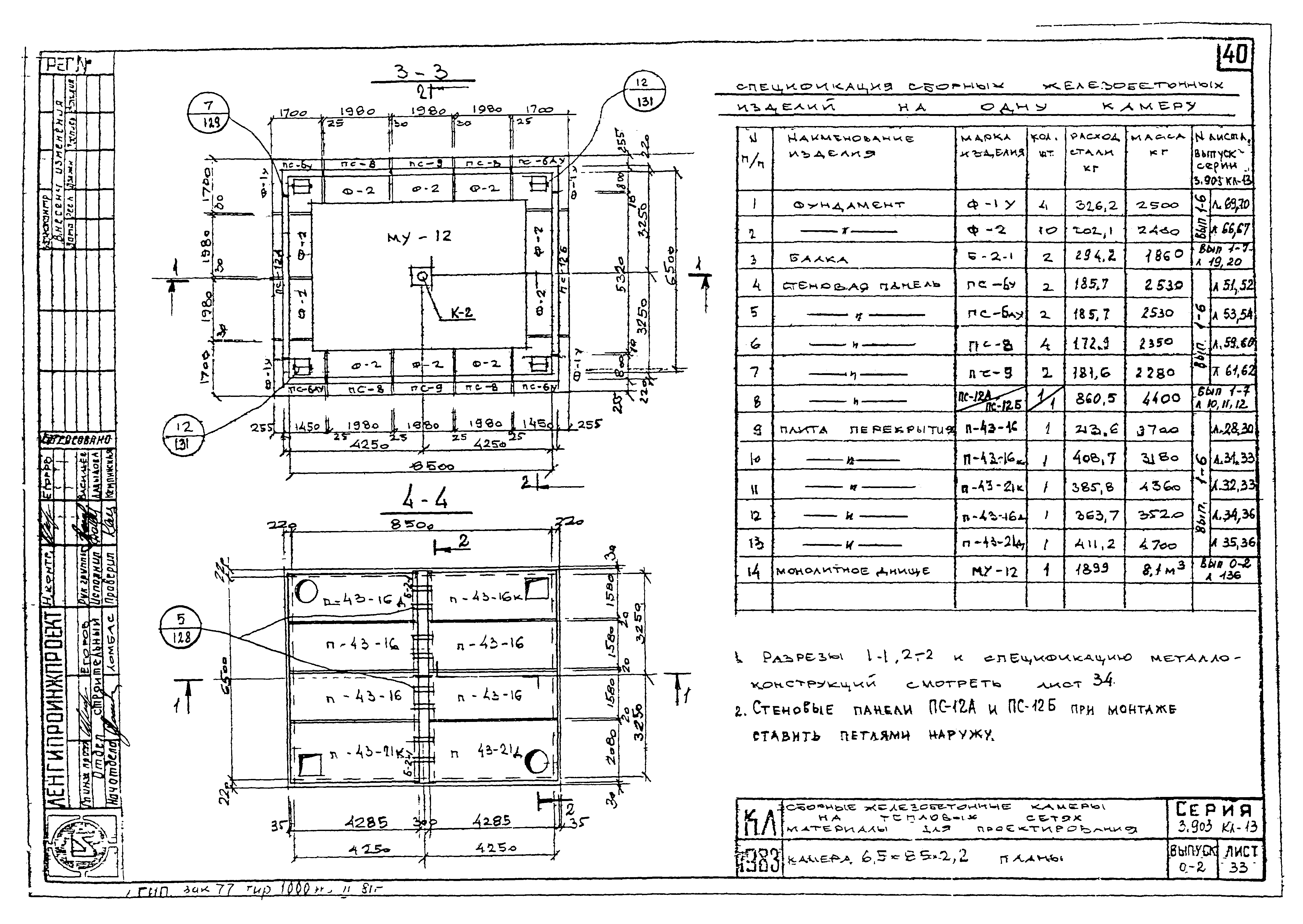
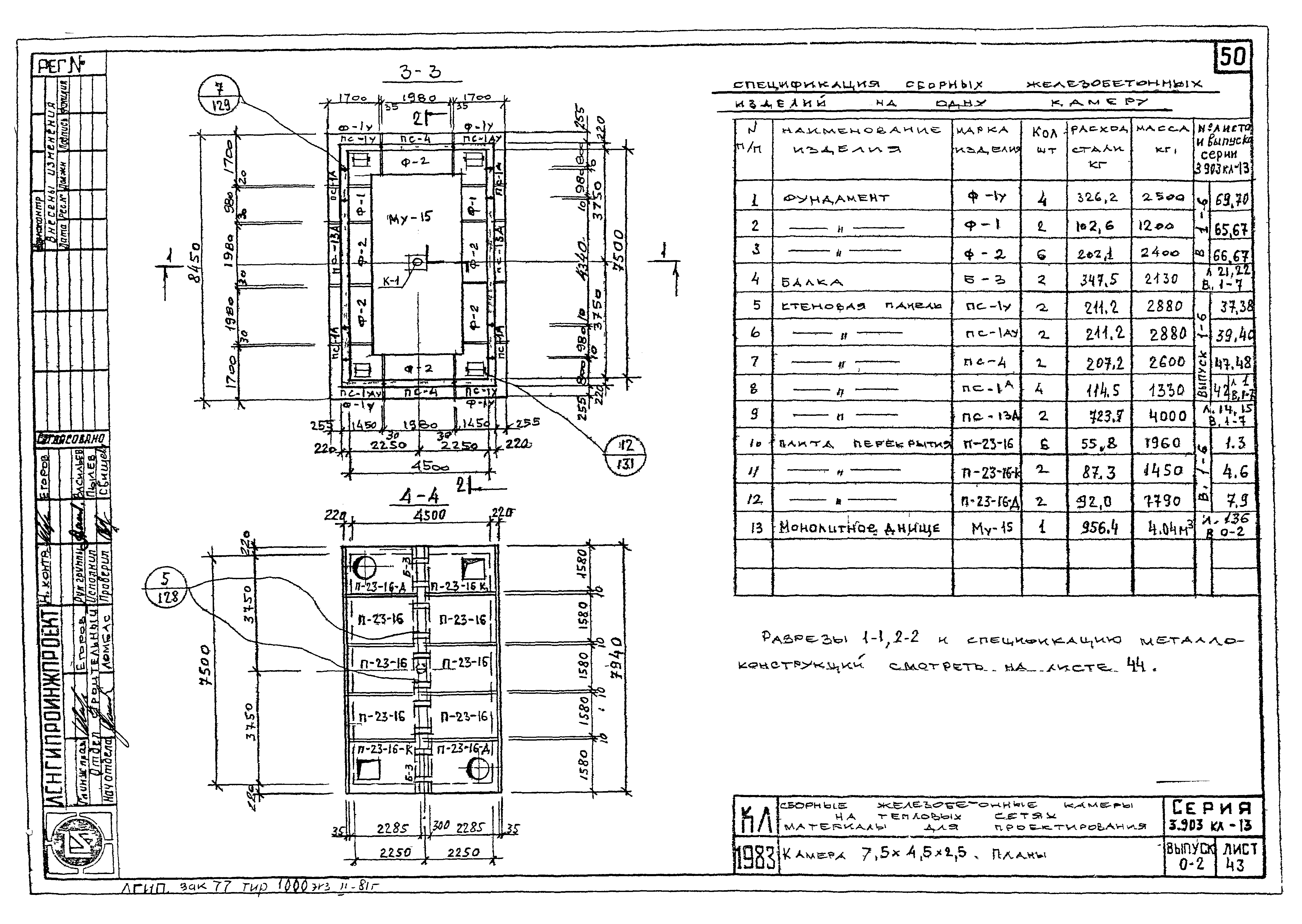
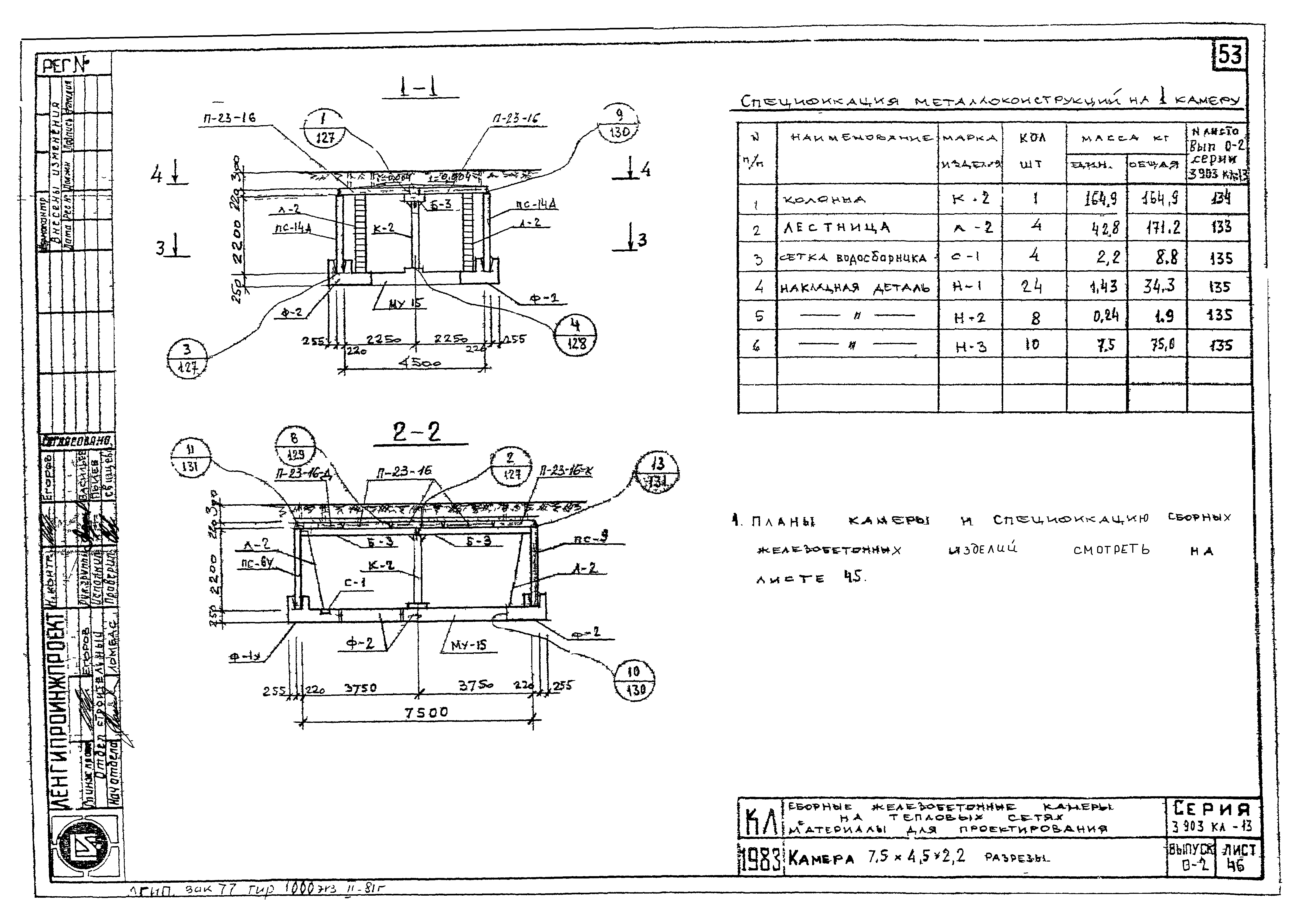
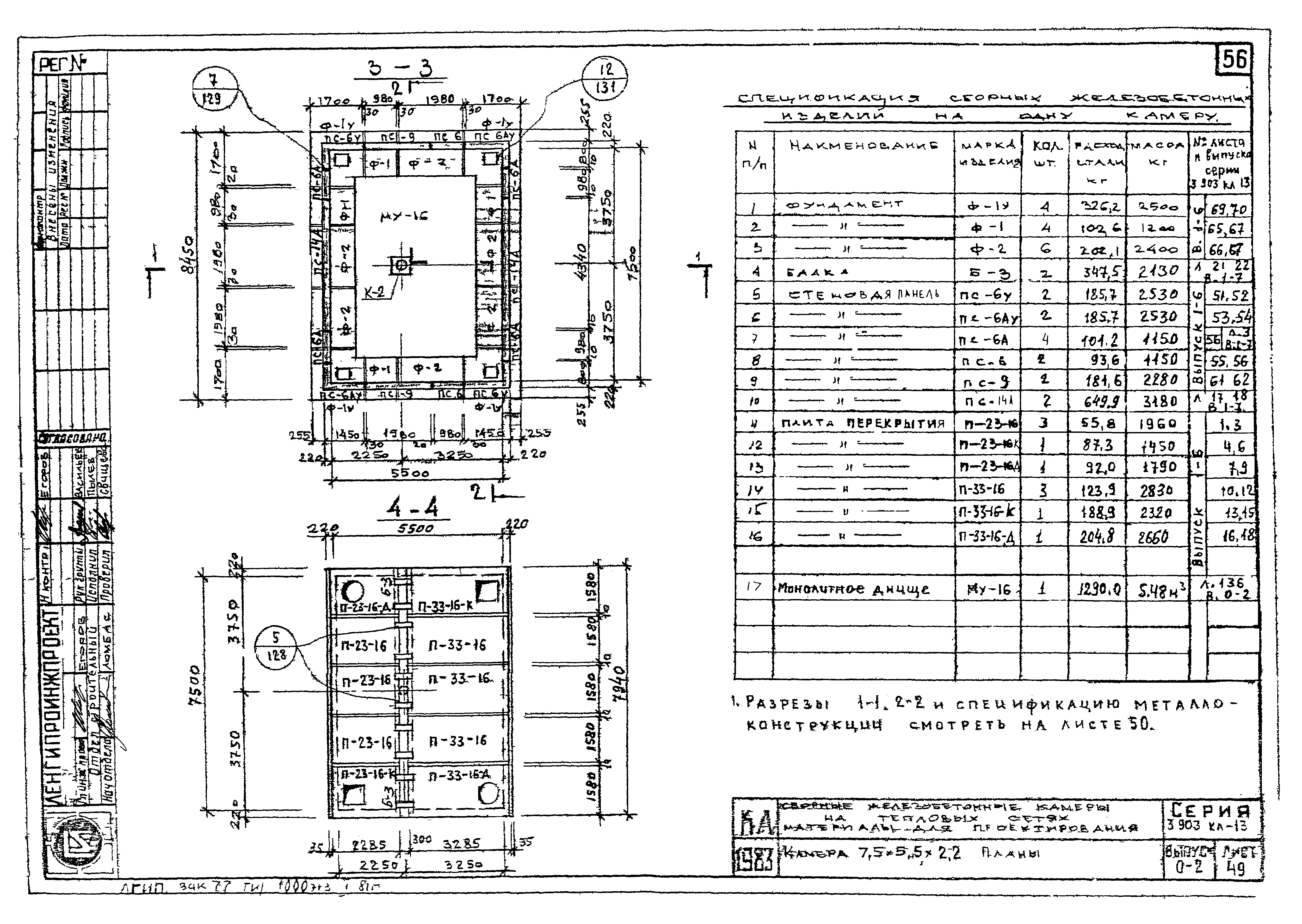
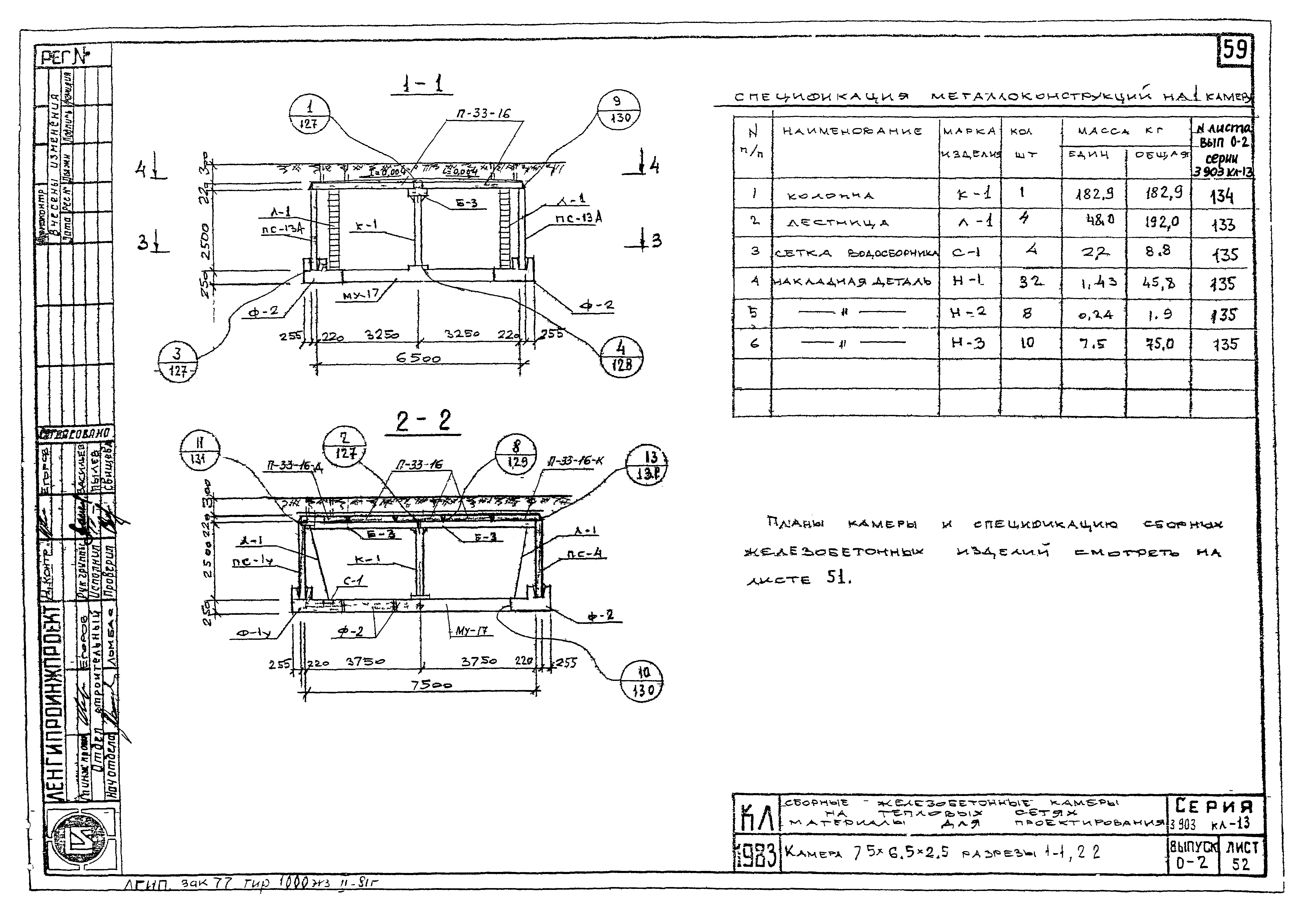
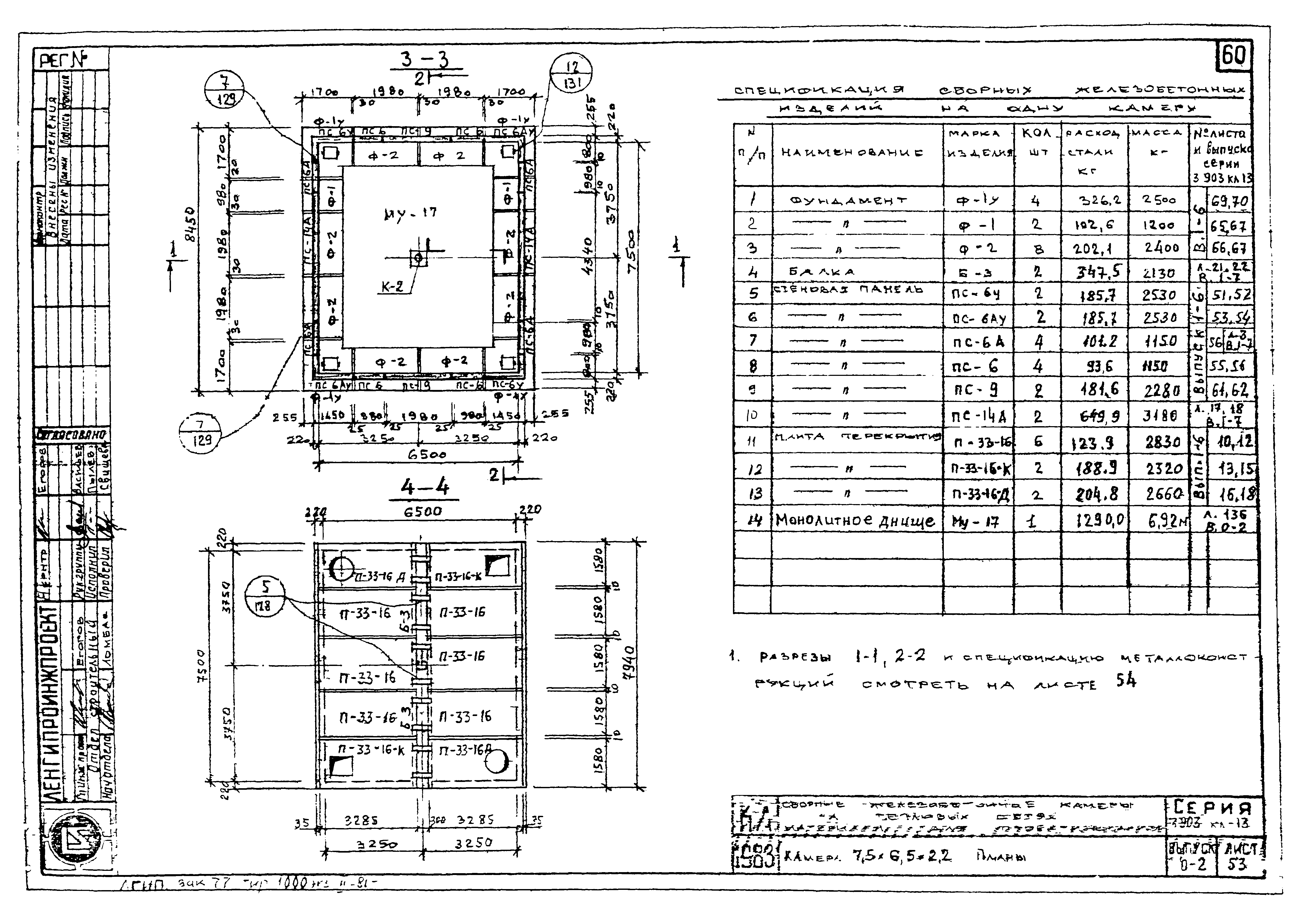
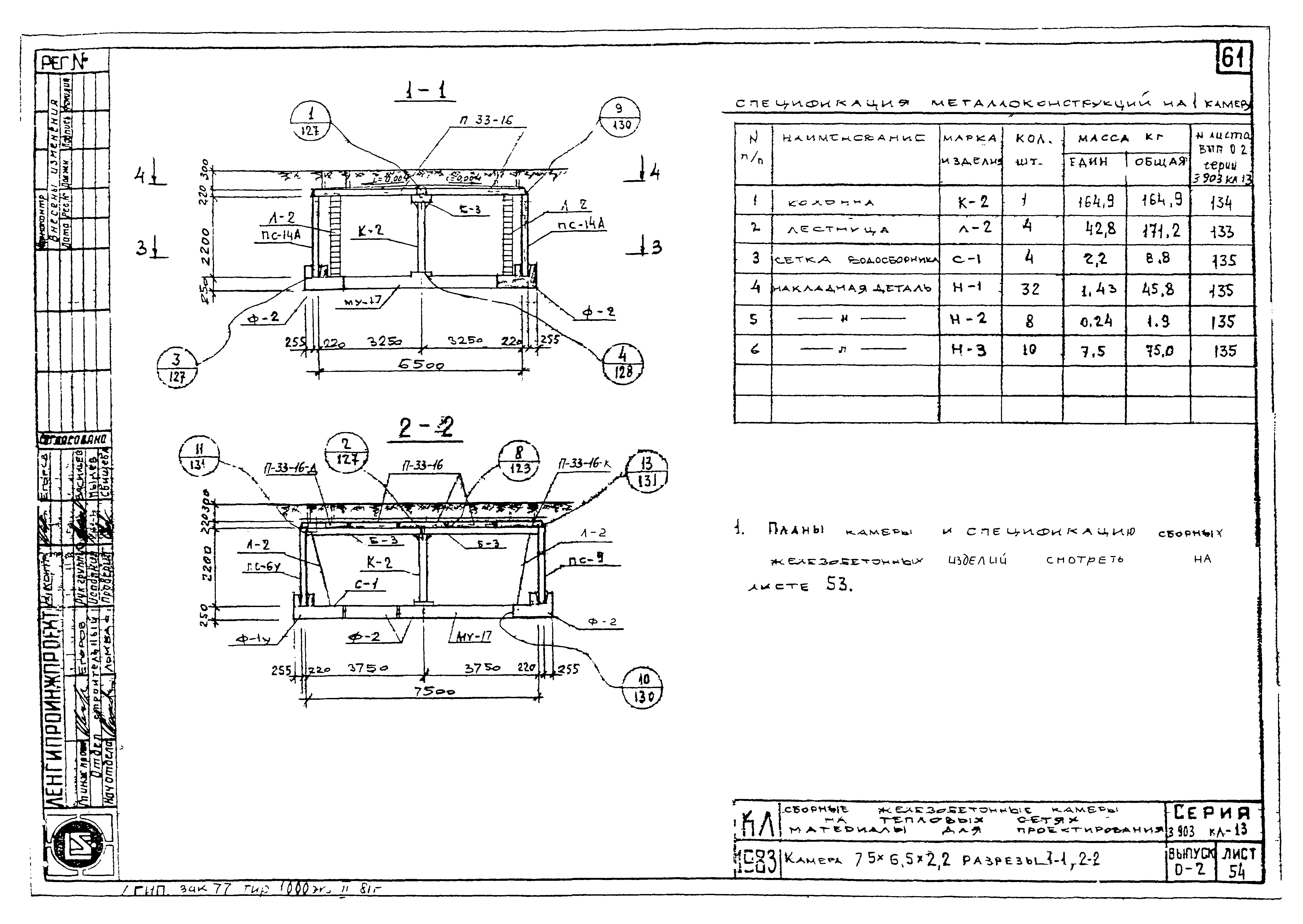
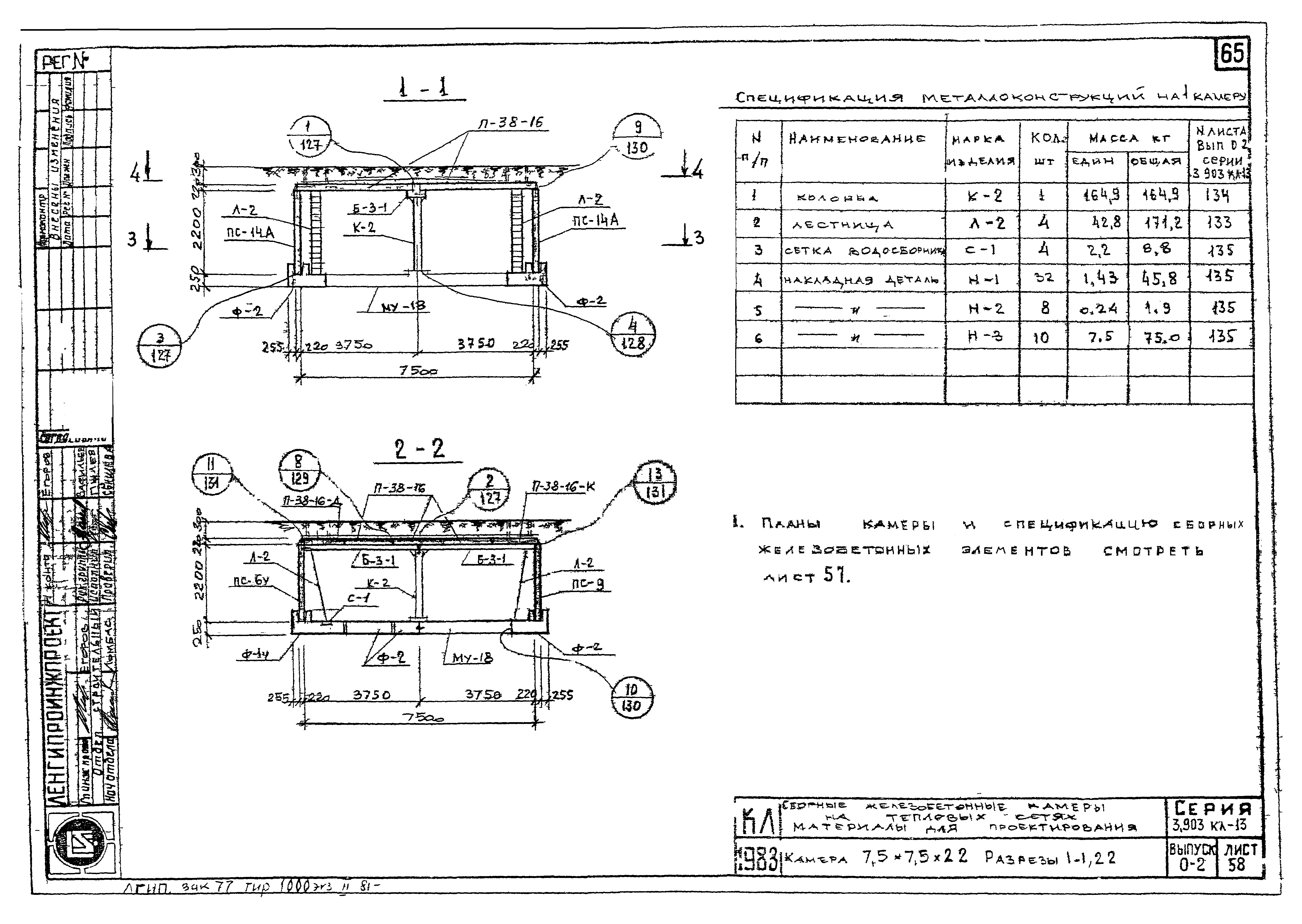
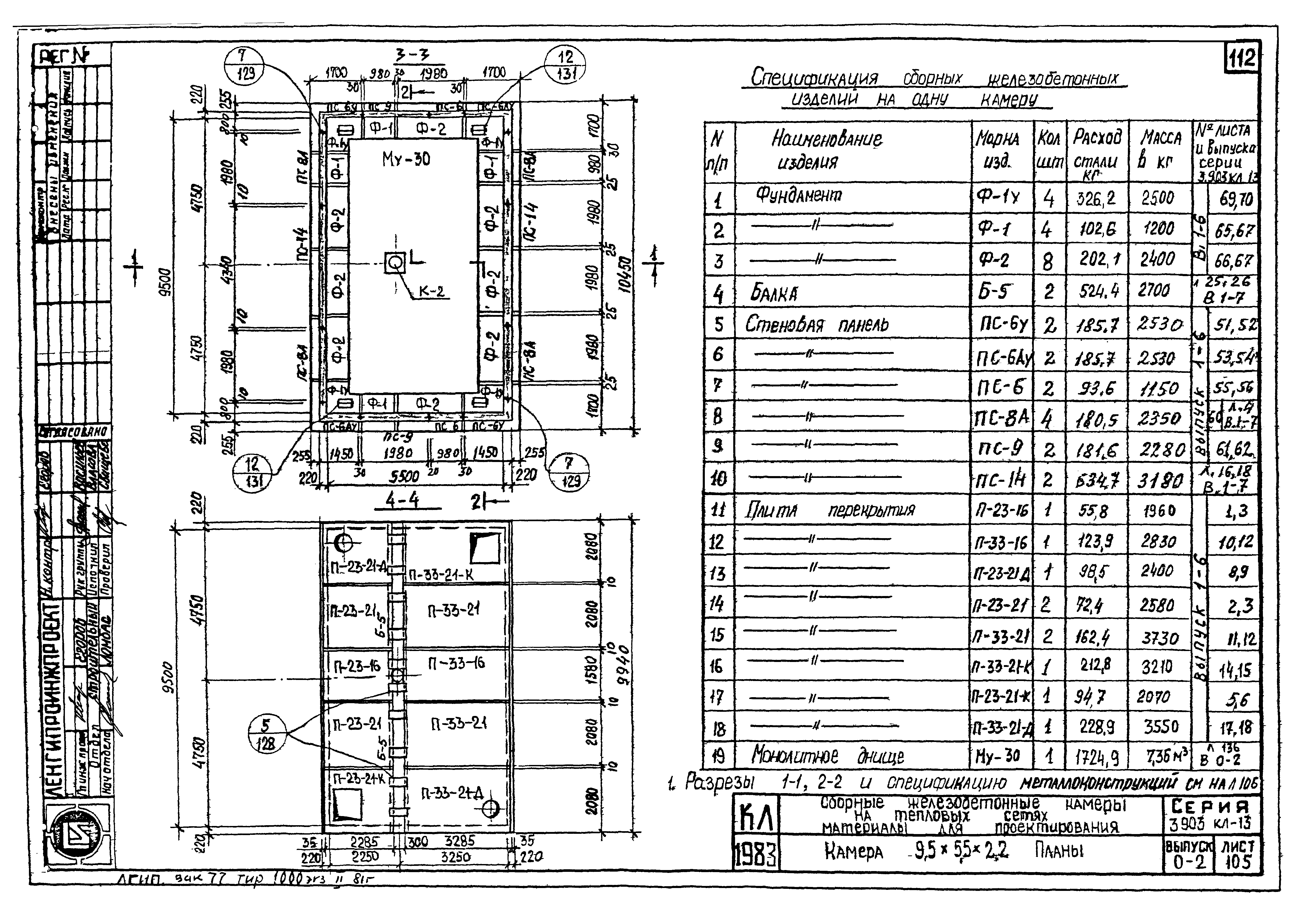
| Оглавление: | 3.903 КЛ-13 Содержание 3.903 КЛ-13 Пояснительная записка 3.903 КЛ-13 Камера 5.0.x 4.5 х 2.5 3.903 КЛ-13 Камера 5.0 х 4.5 х 2.2 3.903 КЛ-13 Камера 5.0 х 5.5 х 2.5 3.903 КЛ-13 Камера 5.0 х 5.5 х 2.2 3.903 КЛ-13 Камера 5.0 х 6.5 х 2.5 3.903 КЛ-13 Камера 5.0 х 6.5 х 2.2 3.903 КЛ-13 Камера 5.0 х 7.5 х 2.5 3.903 КЛ-13 Камера 5.0 х 7.5 х 2.2 3.903 КЛ-13 Камера 5.0 х 8.5 х 2.5 3.903 КЛ-13 Камера 5.0 х 8.5 х 2,2 3.903 КЛ-13 Камера 5.0 х 10.1 x 2.5 3.903 КЛ-13 Камера 5.0 х 10,1 х 2.2 3.903 КЛ-13 Камера 5.0 х 11.1 x 2.5 3.903 КЛ-13 Камера 5.0 х 11.1 x 2.2 3.903 КЛ-13 Камера 6.5 х 4.5 х 2.5. Планы 3.903 КЛ-13 Камера 6.5 х 4.5 х 2.5. Разрезы 3.903 КЛ-13 Камера 6.5 х 4.5 х 2.2. Планы 3.903 КЛ-13 Камера 6.5 х 4.5 х 2.2. Разрезы 3.903 КЛ-13 Камера 6.5 х 5.5 х 2.5. Планы 3.903 КЛ-13 Камера 6.5 х 5.5 х 2.5. Разрезы 3.903 КЛ-13 Камера 6.5 х 5.5 х 2.2. Планы 3.903 КЛ-13 Камера 6.5 х 5.5 х 2.2. Разрезы 3.903 КЛ-13 Камера 6.5 x 6.5 x 2.5. Планы 3.903 КЛ-13 Камера 6.5 x 6,5 x 2.5. Разрезы 3.903 КЛ-13 Камера 6.5 x 6.5 x 2.2. Планы 3.903 КЛ-13 Камера 6.5 x 6.5 x 2.2. Разрезы 3.903 КЛ-13 Камера 6.5 x 7.5 x 2.5. Планы 3.903 КЛ-13 Камера 6.5 x 7.5 x 2.5. Разрезы 3.903 КЛ-13 Камера 6.5 x 7.5 x 2.2. Планы 3.903 КЛ-13 Камера 6.5 x 7.5 x 2.2. Разрезы 3.903 КЛ-13 Камера 6.5 x 8.5 x 2.5. Планы 3.903 КЛ-13 Камера 6.5 x 8.5 x 2.5. Разрезы 3.903 КЛ-13 Камера 6.5 х 8.5 х 2,2. Планы 3.903 КЛ-13 Камера 6.5 х 8.5 х 2.2. Разрезы 3.903 КЛ-13 Камера 6.5 х 10.1 х 2.5. Планы 3.903 КЛ-13 Камера 6.5 х 10.1 х 2,5. Разрезы 3.903 КЛ-13 Камера 6.5 х 10.1 х 2.2. Планы 3.903 КЛ-13 Камера 6.5 х 10.1 х 2.2. Разрезы 3.903 КЛ-13 Камера 6.5 х 11.1 х 2.5. Планы 3.903 КЛ-13 Камера 6.5 х 11.1 х 2.5. Разрезы 3.903 КЛ-13 Камера 6.5 х 11.1 x 2.2. Планы 3.903 КЛ-13 Камера 6.5 х 11.1 x 2.2. Разрезы 3.903 КЛ-13 Камера 7.5 х 4.5 х 2.5. Планы 3.903 КЛ-13 Камера 7.5 х 4.5 х 2.5. Разрезы 3.903 КЛ-13 Камера 7.5 x 4.5 x 2.2. Планы 3.903 КЛ-13 Камера 7.5 x 4.5 x 2.2. Разрезы 3.903 КЛ-13 Камера 7.5 x 5.5 x 2.5. Планы 3.903 КЛ-13 Камера 7.5 x 5.5 x 2.5. Разрезы 3.903 КЛ-13 Камера 7.5 x 5.5 x 2.2. Планы 3.903 КЛ-13 Камера 7.5 x 5.5 x 2.2. Разрезы 3.903 КЛ-13 Камера 7.5 x 6.5 x 2.5. Планы 3.903 КЛ-13 Камера 7:5 x 6.5 x 2.5. Разрезы 3.903 КЛ-13 Камера 7.5 x 6.5 x 2.2. Планы 3.903 КЛ-13 Камера 7.5 x 6.5 x 2.2. Разрезы 3.903 КЛ-13 Камера 7.5 x 7.5 x 2.5. Планы 3.903 КЛ-13 Камера 7.5 x 7.5 x 2.5. Разрезы 3.903 КЛ-13 Камера 7.5 x 7.5 х 2.2. Планы 3.903 КЛ-13 Камера 7.5 х 7.5 х 2.2. Разрезы 3.903 КЛ-13 Камера 7.5 х 8.5 х 2.5. Планы 3.903 КЛ-13 Камера 7.5 х 8.5 х 2.5. Разрезы 3.903 КЛ-13 Камера 7.5 х 8.5 х 2.2. Планы 3.903 КЛ-13 Камера 7.5 х 8.5 х 2.2. Разрезы 3.903 КЛ-13 Камера 7.5 х 10.1 x 2.5. Планы 3.903 КЛ-13 Камера 7.5 х 10.1 х 2.5. Разрезы 3.903 КЛ-13 Камера 7.5 х 10.1 x 2.2. Планы 3.903 КЛ-13 Камера 7.5 х 10.1 x 2.2. Разрезы 3.903 КЛ-13 Камера 7.5 х 11.1 x 2.5. Планы 3.903 КЛ-13 Камера 7.5 х 11.1 х 2.5. Разрезы 3.903 КЛ-13 Камера 7.5 х 11.1 x 2.2. Планы 3.903 КЛ-13 Камера 7.5 х 11.1 x 2.2. Разрезы 3.903 КЛ-13 Камера 8.5 х 4.5 х 2.5. Планы 3.903 КЛ-13 Камера 8.5 х 4.5 х 2.5. Разрезы 3.903 КЛ-13 Камера 8.5 х 4.5 х 2.2. Планы 3.903 КЛ-13 Камера 8.5 х 4.5 х 2.2. Разрезы 3.903 КЛ-13 Камера 8.5 х 5.5 х 2.5. Планы 3.903 КЛ-13 Камера 8.5 х 5.5 х 2.5. Разрезы 3.903 КЛ-13 Камера 8.5 х 5.5 х 2.2. Планы 3.903 КЛ-13 Камера 8.5 х 5.5 х 2.2. Разрезы 3.903 КЛ-13 Камера 8.5 х 6.5 х 2.5. Планы 3.903 КЛ-13 Камера 8.5 х 6.5 х 2.5. Разреза 3.903 КЛ-13 Камера 8.5 х 6.5 х 2.2. Планы 3.903 КЛ-13 Камера 8.5 х 6.5 х 2.2. Разрезы 3.903 КЛ-13 Камера 8.5 х 7.5 х 2.5. Планы 3.903 КЛ-13 Камера 8.5 х 7.5 х 2.5. Разрезы 3.903 КЛ-13 Камера 8.5 х 7.5 х 2.2. Планы 3.903 КЛ-13 Камера 8.5 х 7.5 х 2.2. Разрезы 3.903 КЛ-13 Камера 8.5 х 8.5 х 2.5. Планы 3.903 КЛ-13 Камера 8.5 х 8.5 х 2.5. Разрезы 3.903 КЛ-13 Камера 8.5 х 8.5 х 2.2. Планы 3.903 КЛ-13 Камера 8.5 х 8.5 х 2.2. Разрезы 3.903 КЛ-13 Камера 8.5 х 10.1 х 2.5. Планы 3.903 КЛ-13 Камера 8.5 х 10.1 х 2.5. Разрезы 3.903 КЛ-13 Камера 8.5 х 10.1 х 2.2. Планы 3.903 КЛ-13 Камера 8.5 х 10.1 х 2.2. Разрезы 3.903 КЛ-13 Камера 8.5 х 11.1 х 2.5. Планы 3.903 КЛ-13 Камера 8.5 х 11.1 х 2.5. Разрезы 3.903 КЛ-13 Камера 8.5 х 11.1 x 2.2. Планы 3.903 КЛ-13 Камера 8.5 х 11.1 x 2.2. Разрезы 3.903 КЛ-13 Камера 9.5 х 4.5 х 2.5. Планы 3.903 КЛ-13 Камера 9.5 х 4.5 х 2.5. Разрезы 3.903 КЛ-13 Камера 9.5 х 4.5 х 2.2. Планы 3.903 КЛ-13 Камера 9.5 х 4.5 х 2.2. Разрезы 3.903 КЛ-13 Камера 9.5 х 5.5 х 2.5. Планы 3.903 КЛ-13 Камера 9.5 х 5.5 х 2.5. Разрезы 3.903 КЛ-13 Камера 9.5 х 5.5 х 2.2. Планы 3.903 КЛ-13 Камера 9.5 х 5.5 х 2.2. Разрезы 3.903 КЛ-13 Камера 9.5 х 6.5 х 2.5. Планы 3.903 КЛ-13 Камера 9.5 х 6.5 х 2.5. Разрезы 3.903 КЛ-13 Камера 9.5 х 6.5 х 2.2. Планы 3.903 КЛ-13 Камера 9.5 х 6.5 х 2.2. Разрезы 3.903 КЛ-13 Камера 9.5 х 7.5 х 2.5. Планы 3.903 КЛ-13 Камера 9.5 х 7.5 х 2.5. Разрезы 3.903 КЛ-13 Камера 9.5 х 7.5 х 2.2. Планы 3.903 КЛ-13 Камера 9.5 х 7.5 х 2.2. Разрезы 3.903 КЛ-13 Камера 9.5 х 8.5 х 2.5. Планы 3.903 КЛ-13 Камера 9.5 х 8.5 х 2.5. Разрезы 3.903 КЛ-13 Камера 9.5 х 8.5 х 2.2. Планы 3.903 КЛ-13 Камера 9.5 х 8.5 х 2.2. Разрезы 3.903 КЛ-13 Камера 9.5 х 10.1 x 2.5. Планы 3.903 КЛ-13 Камера 9.5 х 10.1 x 2.5. Разрезы 3.903 КЛ-13 Камера 9.5 х 10.1 x 2.2. Планы 3.903 КЛ-13 Камера 9.5 х 10.1 x 2.2. Разрезы 3.903 КЛ-13 Камера 9.5 х 11.1 x 2.5. Планы 3.903 КЛ-13 Камера 9.5 х 11.1 x 2.5. Разрезы 3.903 КЛ-13 Камера 9.5 х 11.1 х 2.2. Планы 3.903 КЛ-13 Камера 9.5 х 11.1 х 2.2. Разрезы 3.903 КЛ-13 Узлы 1-3 3.903 КЛ-13 Узлы 4,5 3.903 КЛ-13 Узлы 6-8 3.903 КЛ-13 Узлы 9,10 3.903 КЛ-13 Узлы 11-13 3.903 КЛ-13 Детали крепления неподвижных опор 3.903 КЛ-13 Лестницы металлические Л-1, Л-2 3.903 КЛ-13 Колонны К-I, К-2 3.903 КЛ-13 Закладная деталь М-1. Сетка для водосборника C-1. Накладные элементы H-1, Н-2, Н-3. Спецификация. 3.903 КЛ-13 Армирование монолитного днища и подколонника. 3.903 КЛ-13 Армирование монолитного днища и подколонника. Каркас КP-13 3.903 КЛ-13 Армирование монолитного днища и подколонника. Спецификация и выборка стали. |
| Разработан: | Ленгипроинжпроект Ленгорисполкома |
| Утверждён: | 01.12.1981 Ленгипроинжпроект (Lengiproinzhproject 231-КЛ) |

















































































































































