Скачать Серия 3.903 КЛ-13 Выпуск 1-9. Теплоснабжение. Сборные железобетонные камеры на тепловых сетяхДата актуализации: 01.01.2021
|
| Обозначение: | Серия 3.903 КЛ-13 |
| Обозначение англ: | Series 3.903 КЛ-13 |
| Статус: | не действует |
| Название рус.: | Выпуск 1-9. Теплоснабжение. Сборные железобетонные камеры на тепловых сетях |
| Дата добавления в базу: | 01.09.2013 |
| Дата актуализации: | 01.01.2021 |
| Область применения: | В выпуске 1-9 разработаны рабочие чертежи камер на тепловых сетях |
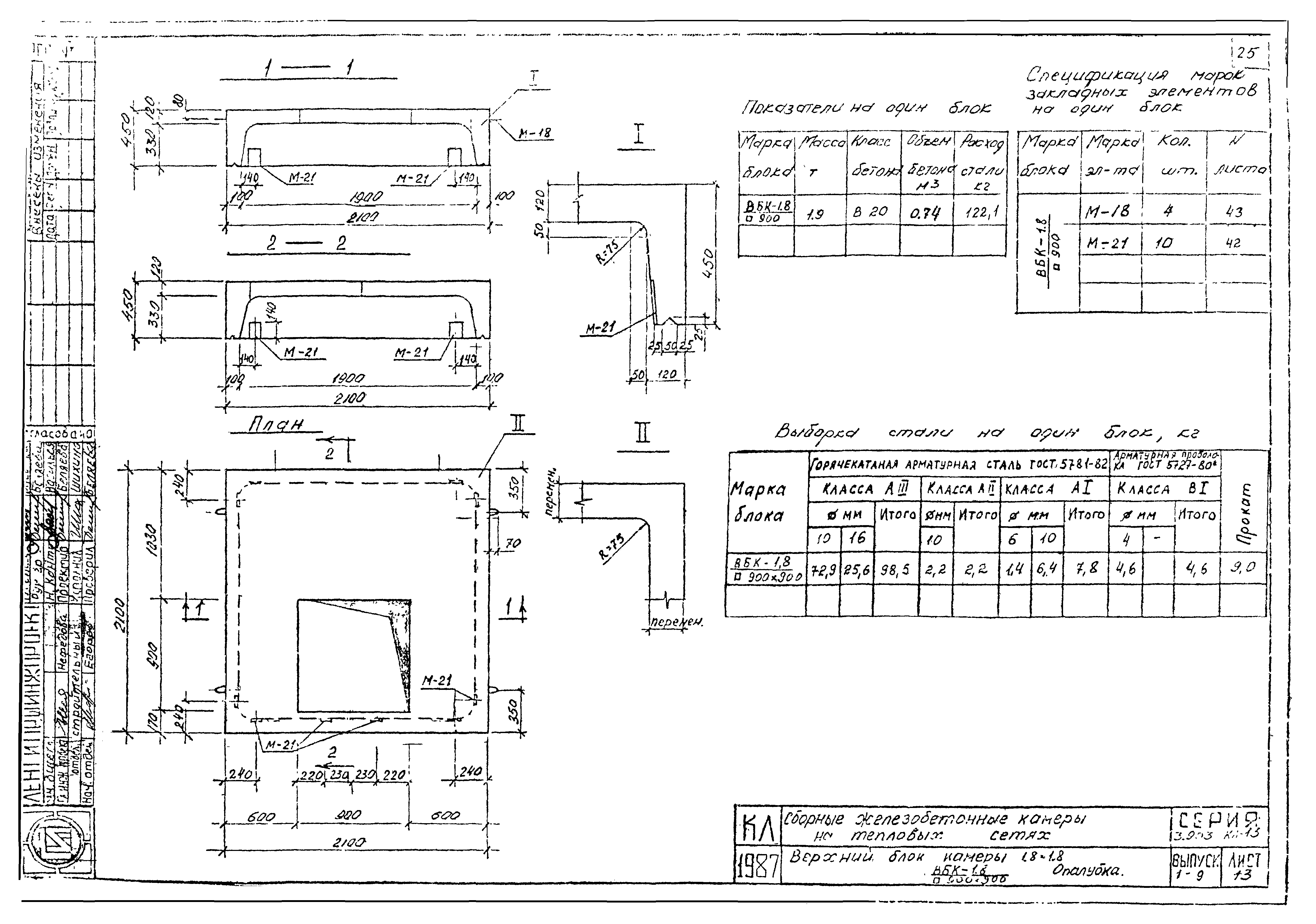
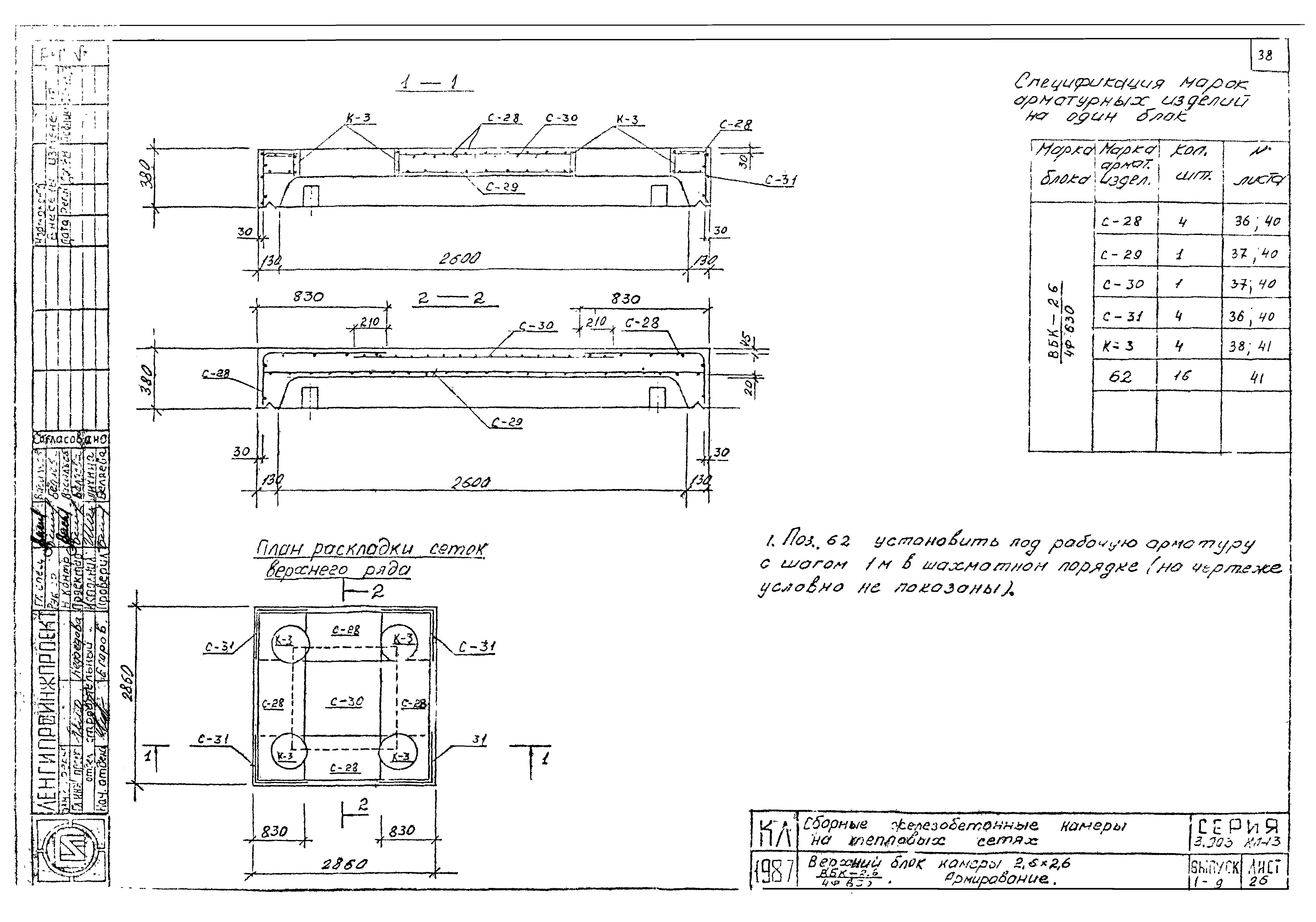
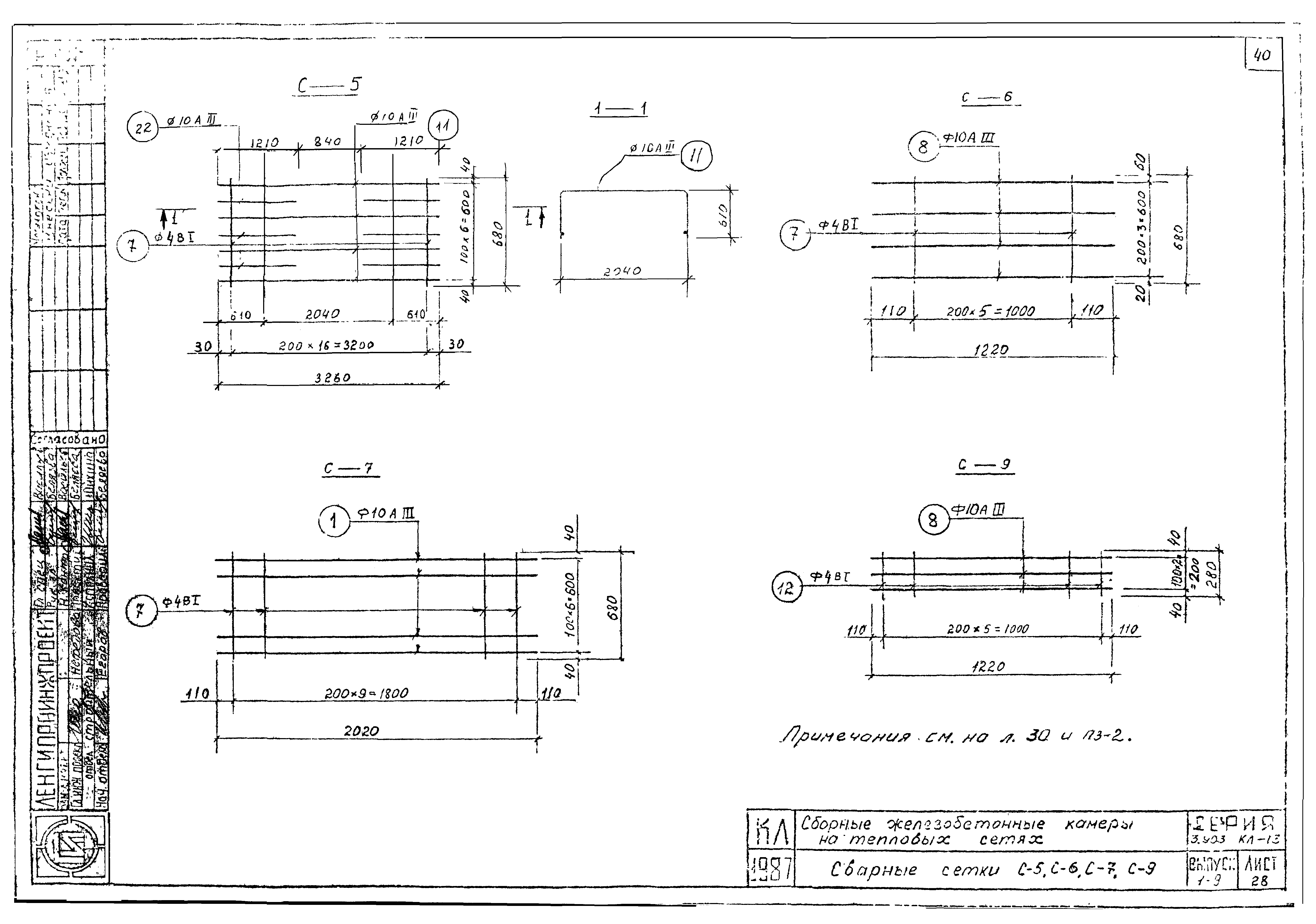
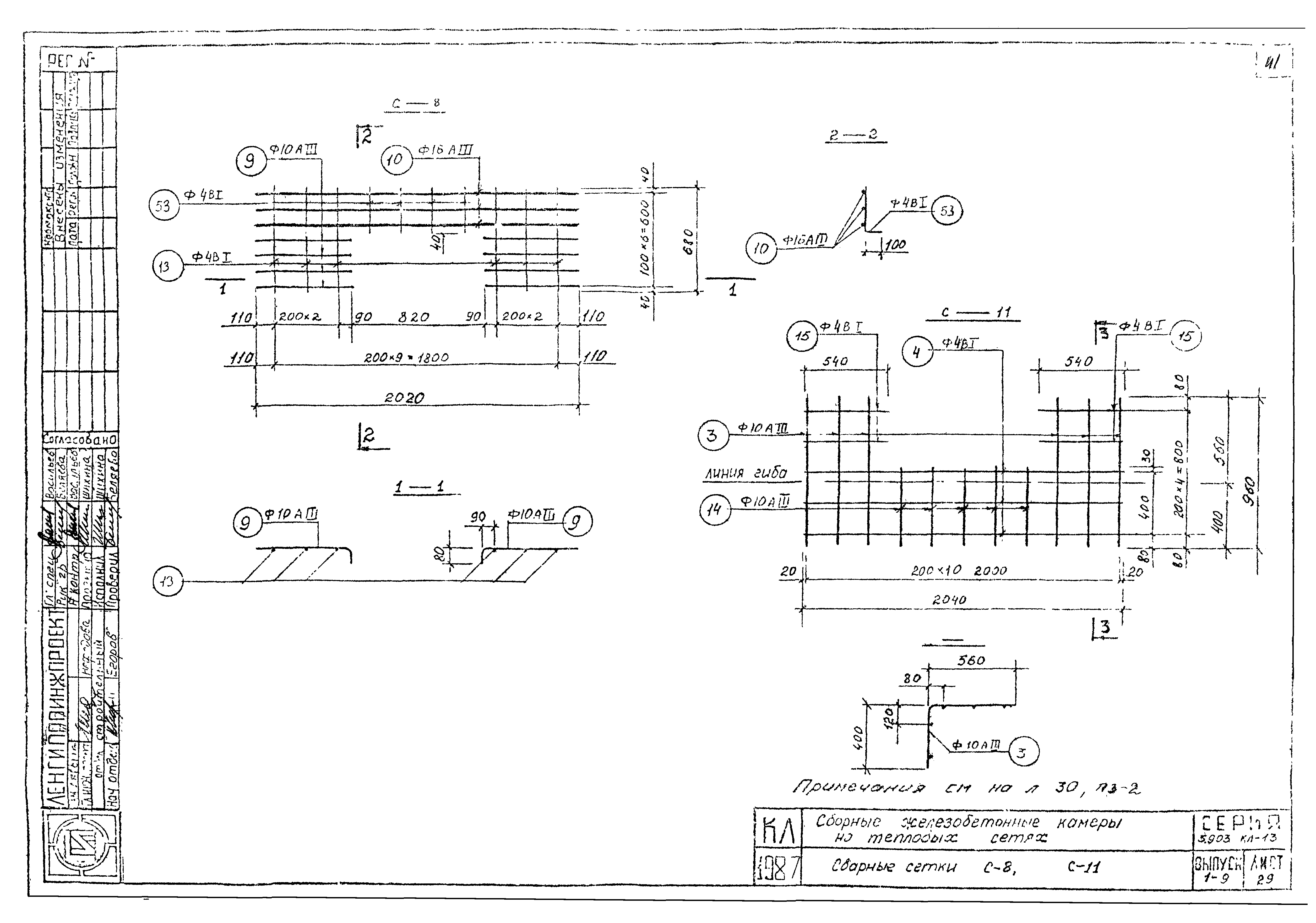
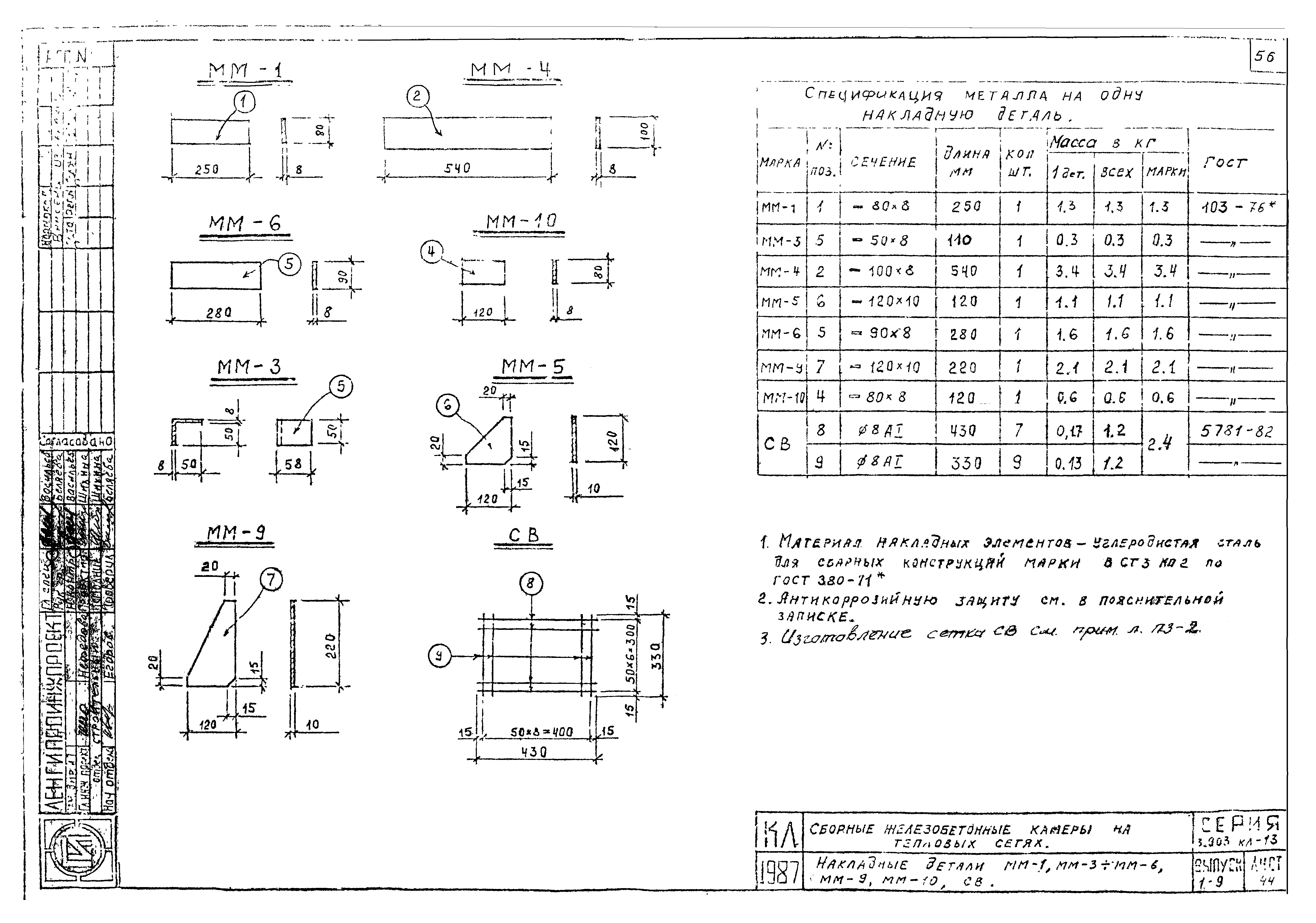
| Оглавление: | 3.903 КЛ-13 Содержание 3.903 КЛ-13 Пояснительная записка 3.903 КЛ-13 Камера 1.8х1,8х2 3.903 КЛ-13 Камера 1.8х1,8х4 3.903 КЛ-13 Камера 2.6х2.6х2 3.903 КЛ-13 Камера 2.6х2.6х4 3.903 КЛ-13 Узлы 1-5,5А. Спецификация 3.903 КЛ-13 Узлы 6-8 3.903 КЛ-13 Нижний блок камеры 1.8х1.8. НБК-1.8. Опалубка 3.903 КЛ-13 Нижний блок камеры 1.8х1.8. НБК-1.8. Армирование 3.903 КЛ-13 Средний блок камеры 1.8х1.8. СБК-1.8. Опалубка 3.903 КЛ-13 Средний блок камеры 1.8х1.8. СБК-1.8. Армирование 3.903 КЛ-13 Средний блок камеры 1.8х1.8. СБК-1.8/2□400х800. Опалубка 3.903 КЛ-13 Средний блок камеры 1.8х1.8. СБК-1.8/2□400х800. Армирование 3.903 КЛ-13 Верхний блок камеры 1.8х1.8. ВБК-1.8/□900х900. Опалубка 3.903 КЛ-13 Верхний блок камеры 1.8х1.8. ВБК-1.8/□900х900. Армирование 3.903 КЛ-13 Верхний блок камеры 1.8х1.8. РБК-1.8/2ø630. Опалубка 3.903 КЛ-13 Верхний блок камеры 1.8х1.8. РБК-1.8/2ø630. Армирование 3.903 КЛ-13 Верхний блок камеры 1.8х1.8. РБК-1.8/2ø630. Опалубка 3.903 КЛ-13 Верхний блок камеры 1.8х1.8. РБК-1.8/2ø630. Армирование 3.903 КЛ-13 Нижний блок камеры 2.6х2.6. НБК-2.6. Опалубка 3.903 КЛ-13 Нижний блок камеры 2.6х2.6. НБК-2.6. Армирование 3.903 КЛ-13 Средний блок камеры 2.6х2.6. СБК-2.6. Опалубка 3.903 КЛ-13 Средний блок камеры 2.6х2.6. СБК-2.6. Армирование 3.903 КЛ-13 Средний блок камеры 2.6х2.6. СБК-2.6/2□800х1400. Опалубка 3.903 КЛ-13 Средний блок камеры 2.6х2.6. СБК-2.6/2□800х1400. Армирование 3.903 КЛ-13 Верхний блок камеры 2.6х2.6 ВБК-2.6/4ø630. Опалубка 3.903 КЛ-13 Верхний блок камеры 2.6х2.6 ВБК-2.6/4ø630. Армирование 3.903 КЛ-13 Сварные сетки С-1;С-2;С-3;С-4 3.903 КЛ-13 Сварные сетки С-5;С-6;С-7;С-9 3.903 КЛ-13 Сварные сетки С-8;С-11 3.903 КЛ-13 Сварные сетки С-12;С-13 3.903 КЛ-13 Сварные сетки С-14;С-15т;С-15н 3.903 КЛ-13 Сварные сетки С-16;С-17;С-17-1 3.903 КЛ-13 Сварные сетки С-18;С-19;С-20;С-21 3.903 КЛ-13 Сварные сетки С-22;С-23;С-24 3.903 КЛ-13 Сварные сетки С-25;С-26 3.903 КЛ-13 Сварные сетки С-27;С-28;С-31 3.903 КЛ-13 Сварные сетки С-29;С-30 3.903 КЛ-13 Каркасы К-1;К-2;К-3 3.903 КЛ-13 Спецификация сеток С-1÷С-13 3.903 КЛ-13 Спецификация сеток С-14÷С-31 3.903 КЛ-13 Спецификация каркасов К-1÷К-3, отдельных стержней 3.903 КЛ-13 Закладные детали М-1;М-20÷М-25 3.903 КЛ-13 Закладные детали М-18;М-19;М-26 3.903 КЛ-13 Накладные детали ММ-1;ММ-3÷ММ-6;ММ-9;ММ-10;СВ 3.903 КЛ-13 Лестница металлическая Л-1 3.903 КЛ-13 Лестницы металлические Л-5,Л-6 |
| Разработан: | Ленгипроинжпроект Ленгорисполкома |
| Утверждён: | 13.04.1987 Ленгипроинжпроект (Lengiproinzhproject 92) |
























































