Скачать Типовой проект 407-3-412.86 Альбом II. Открытое и закрытое распредустройства. Электротехнические чертежиДата актуализации: 01.01.2021
|
| Обозначение: | Типовой проект 407-3-412.86 |
| Обозначение англ: | 407-3-412.86 |
| Статус: | не определен законодательством |
| Название рус.: | Альбом II. Открытое и закрытое распредустройства. Электротехнические чертежи |
| Дата добавления в базу: | 01.09.2013 |
| Дата актуализации: | 01.01.2021 |
| Дата введения: | 16.07.1986 |
| Дата окончания срока действия: | 30.06.2003 |
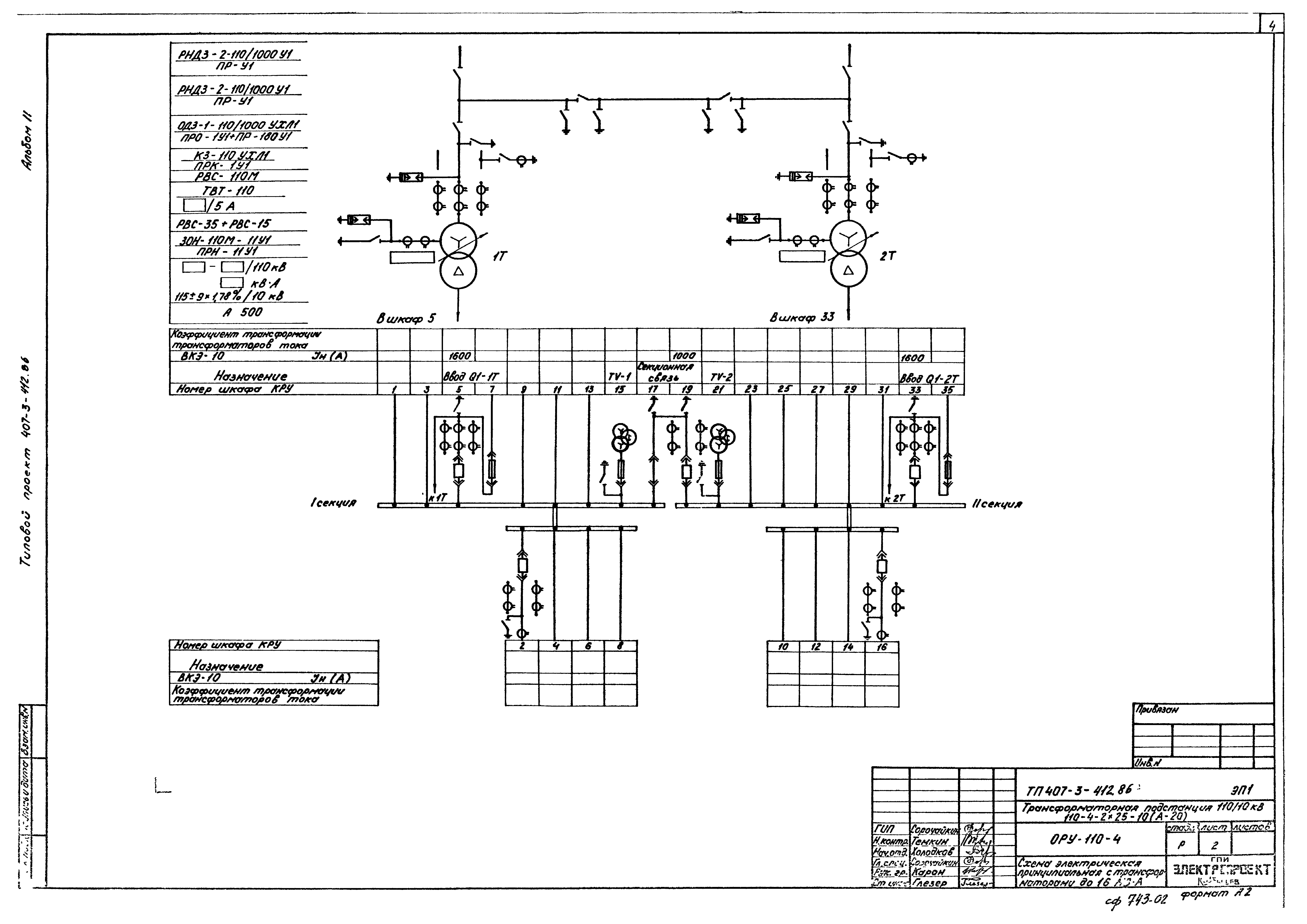
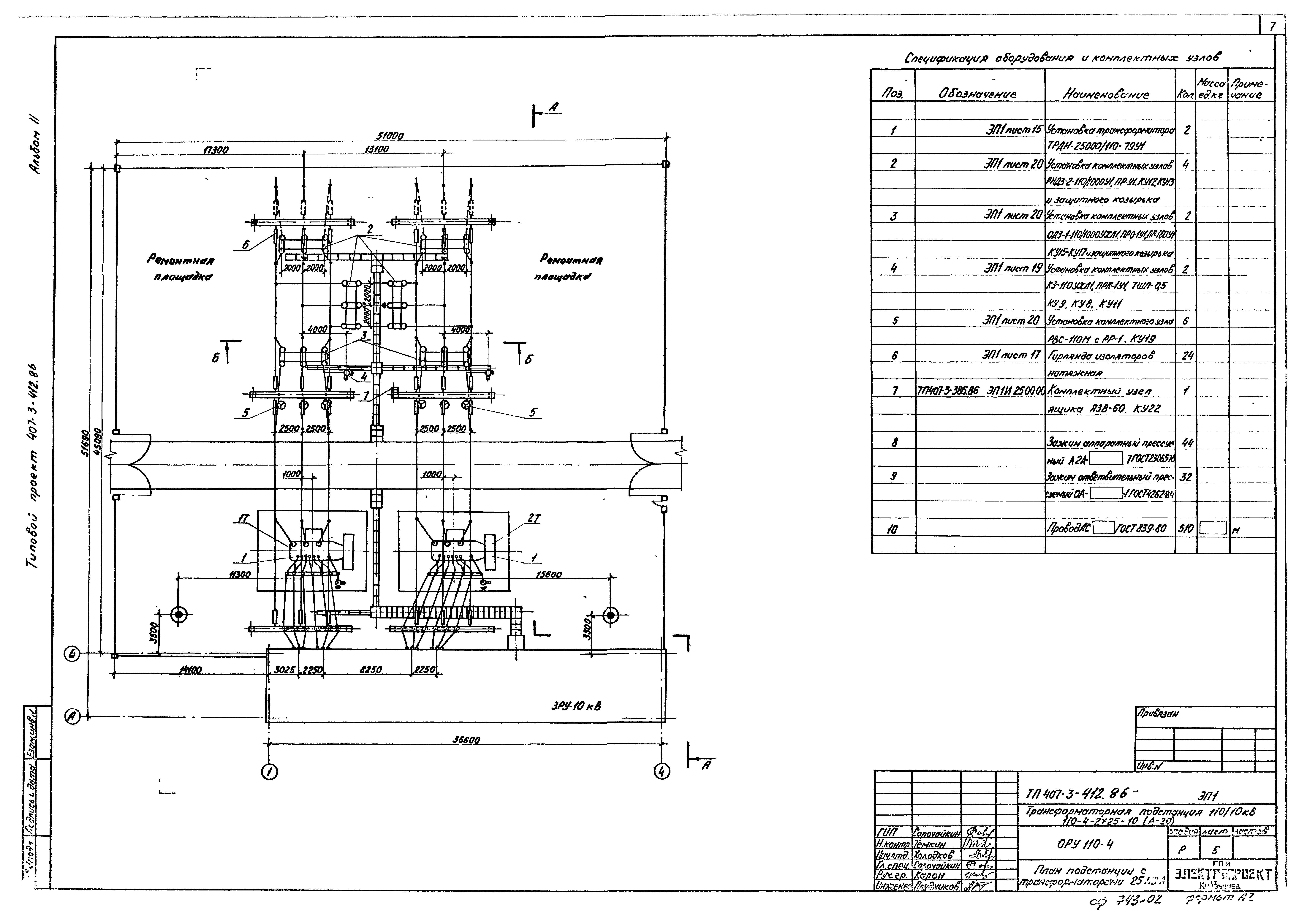
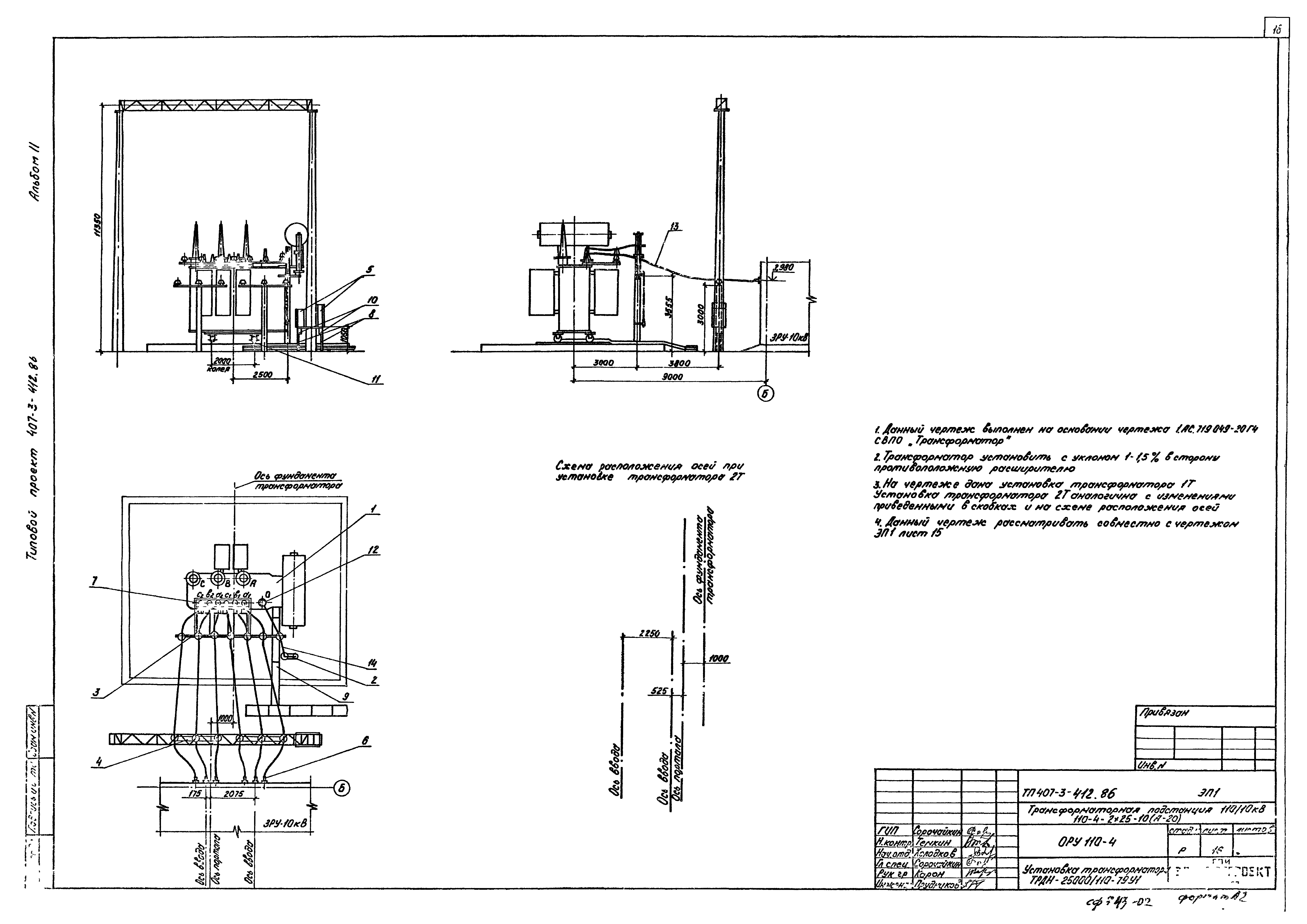
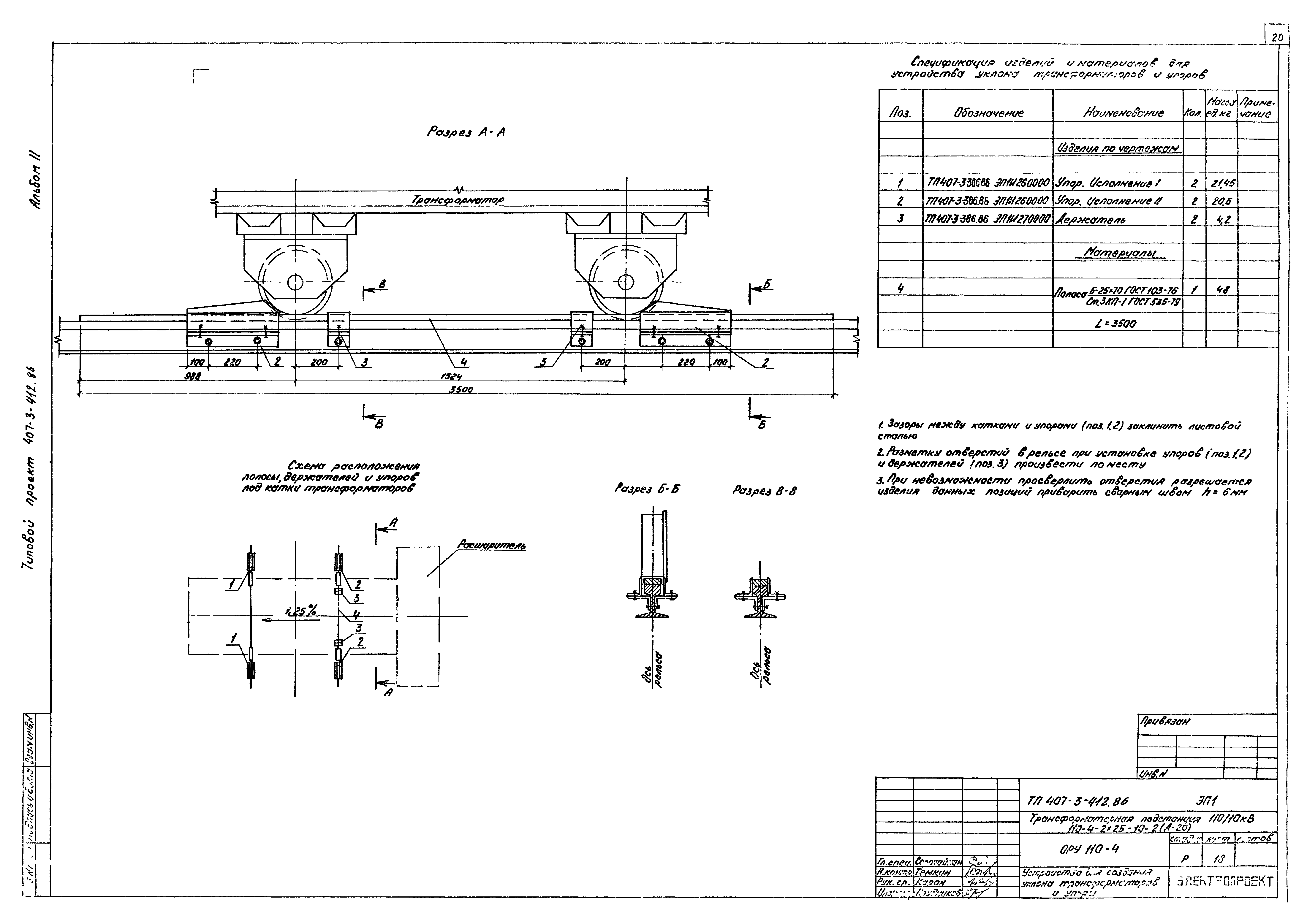
| Оглавление: | ТП 407-3-412.86-ЭП1-1 Общие данные ТП 407-3-412.86-ЭП1-2 Схема электрическая принципиальная с трансформаторами до 16 МВ·< ТП 407-3-412.86-ЭП1-3 Схема электрическая принципиальная с трансформаторами до 25 МВ·< ТП 407-3-412.86-ЭП1-4 План подстанции с трансформаторами до 16 МВ·< ТП 407-3-412.86-ЭП1-5 План подстанции с трансформаторами до 25 МВ·< ТП 407-3-412.86-ЭП1-6 Разрез А-А ТП 407-3-412.86-ЭП1-7 Электроосвещение. План ТП 407-3-412.86-ЭП1-8 Заземление и молниезащита ТП 407-3-412.86-ЭП1-9 Установка трансформатора ТМН-6300/110-80У1 ТП 407-3-412.86-ЭП1-10 Установка трансформатора ТМН-6300/110-80У1 ТП 407-3-412.86-ЭП1-11 Установка трансформатора ТДН-10000/110-73У1 ТП 407-3-412.86-ЭП1-12 Установка трансформатора ТДН-10000/110-73У1 ТП 407-3-412.86-ЭП1-13 Установка трансформатора ТДН-16000/110-79У1 ТП 407-3-412.86-ЭП1-14 Установка трансформатора ТДН-16000/110-79У1 ТП 407-3-412.86-ЭП1-15 Установка трансформатора ТРДН-25000/110-79У1 ТП 407-3-412.86-ЭП1-16 Установка трансформатора ТРДН-25000/110-79У1 ТП 407-3-412.86-ЭП1-17 Гирлянда изоляторов натяжная. Узлы присоединения провода А500 ТП 407-3-412.86-ЭП1-18 Устройство для создания уклона трансформаторов и упоры ТП 407-3-412.86-ЭП1-19 Установка комплектных узлов КУ3,КУ5-КУ9,КУ11 ТП 407-3-412.86-ЭП1-20 Установка комплектных узлов КУ12,КУ13,КУ15-КУ17,КУ19 ТП 407-3-412.86-ЭП2-1 Общие данные ТП 407-3-412.86-ЭП2-2 Двухсекционное РУ-10 кВ. План и разрезы А-А,Б-Б ТП 407-3-412.86-ЭП2-4 Четырехсекционное РУ-10 кВ. План и разрезы А-А,Б-Б ТП 407-3-412.86-ЭП2-5 Установка шкафов КРУ на 630-1600А и панелей. Узлы 1,2 ТП 407-3-412.86-ЭП2-6 Установка доски проходной. Узлы 3,4 ТП 407-3-412.86-ЭП2-7 Установка доски проходной. Узлы 3,4 ТП 407-3-412.86-ЭП2-8 Двухсекционное РУ-10 кВ. Заземление ТП 407-3-412.86-ЭП2-9 Четыреххсекционное РУ-10 кВ. Заземление ТП 407-3-412.86-ЭП2-10 Двухсекционное РУ-10 кВ. Электроосвещение ТП 407-3-412.86-ЭП2-11 Четыреххсекционное РУ-10 кВ. Электроосвещение |
| Разработан: | ГПИ Электропроект |
| Утверждён: | 16.07.1986 Минмонтажспецстрой СССР (USSR Minmontazhspetsstroy ) |
































