Скачать Типовой проект 902-2-126 Альбом I. Технологическая, строительная и электротехническая частиДата актуализации: 01.01.2021
|
| Обозначение: | Типовой проект 902-2-126 |
| Обозначение англ: | 902-2-126 |
| Статус: | не действует |
| Название рус.: | Альбом I. Технологическая, строительная и электротехническая части |
| Дата добавления в базу: | 01.09.2013 |
| Дата актуализации: | 01.01.2021 |
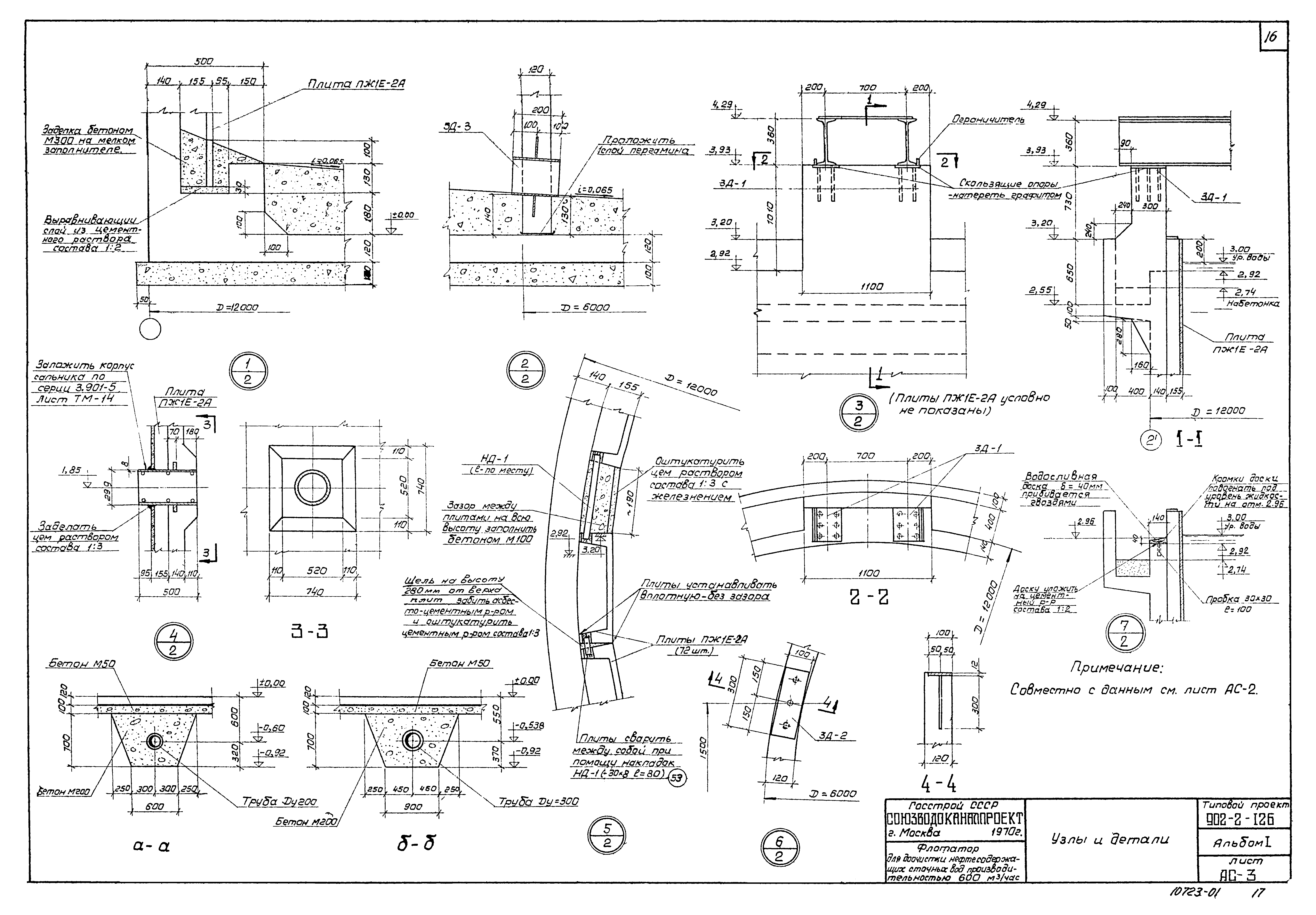
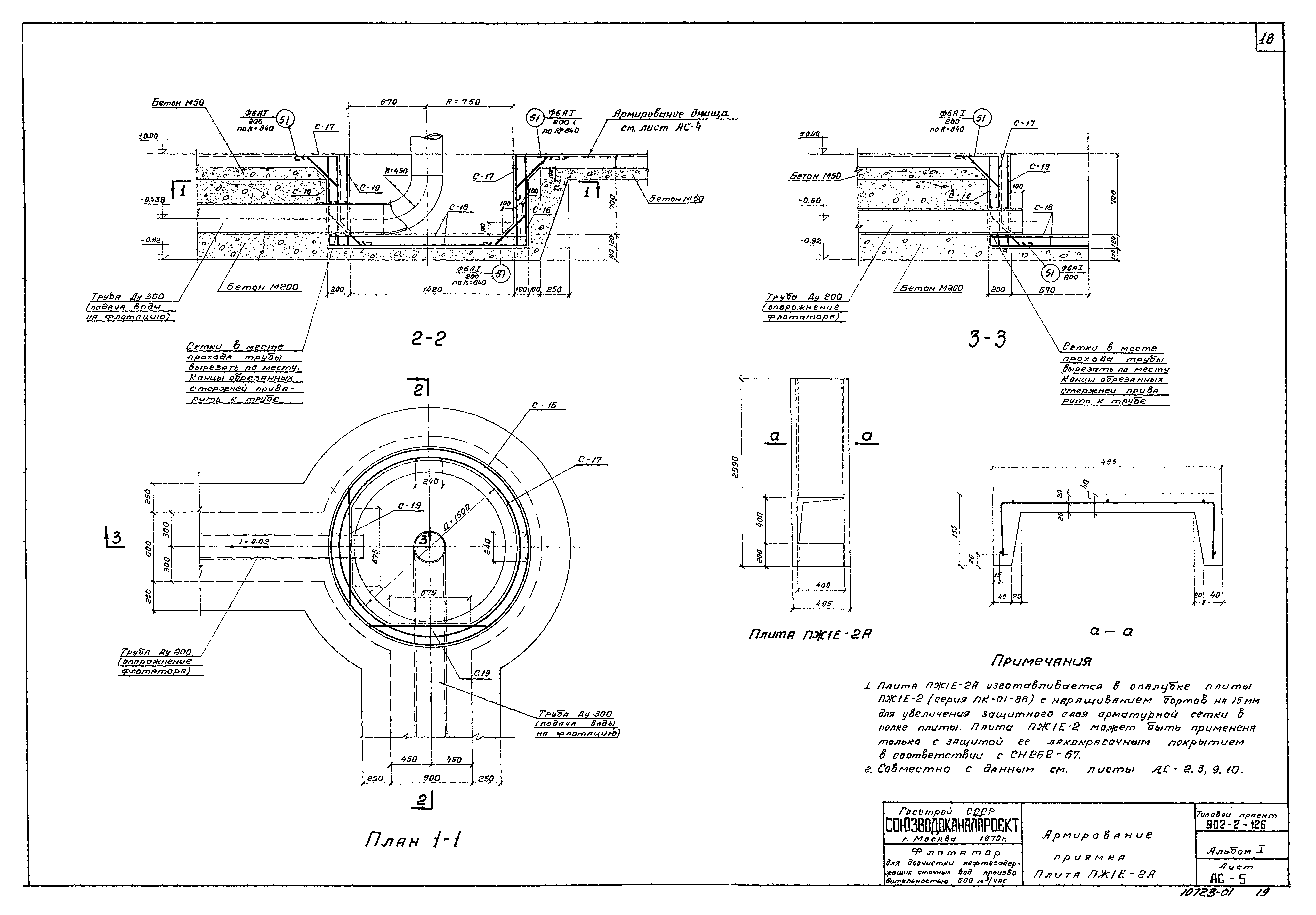
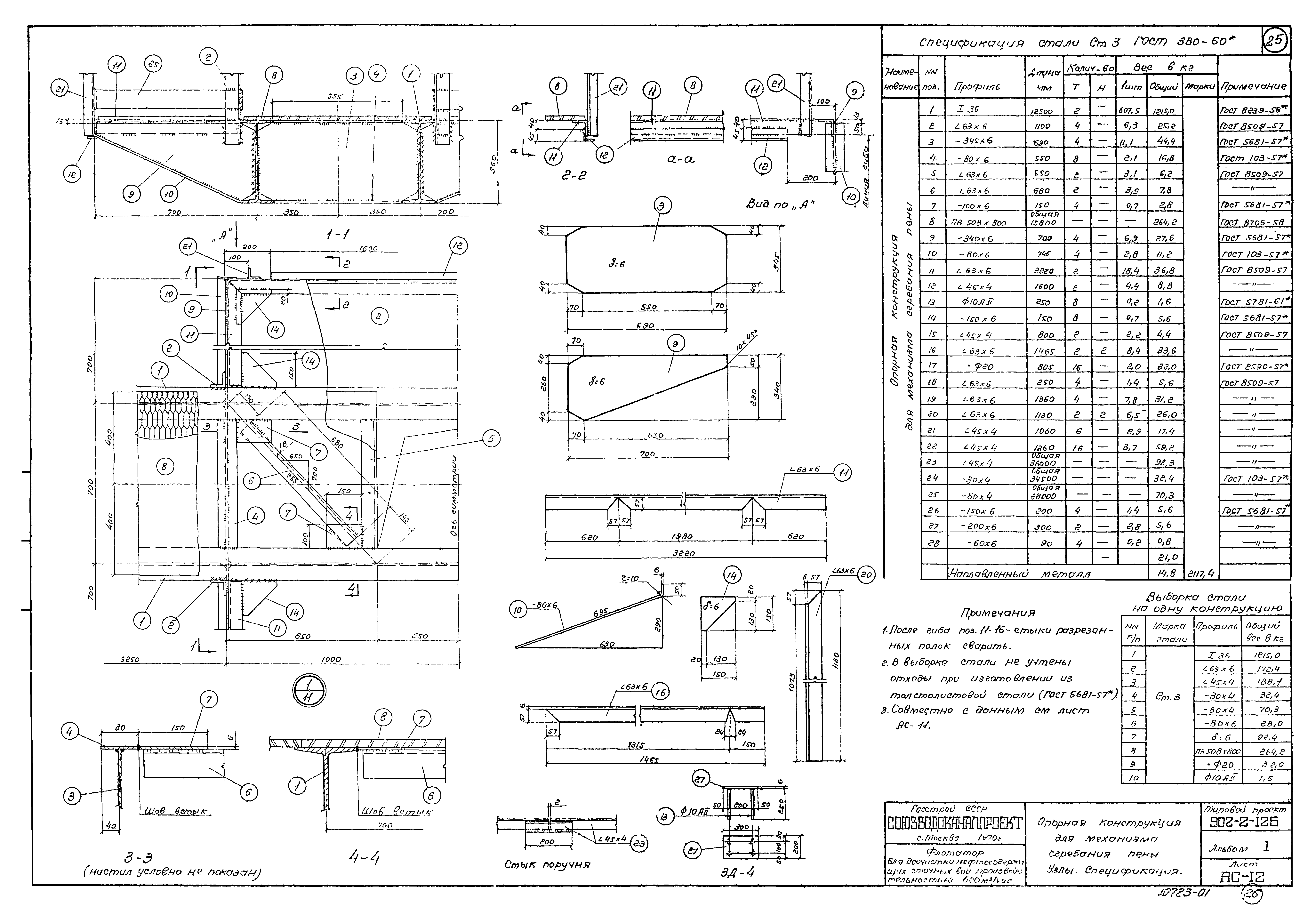
| Оглавление: | ТП 902-2-126-С-1 Содержание альбома ТП 902-2-126-ПЗ-1÷7 Пояснительная записка ТП 902-2-126-ТК-1 Вариант рециркуляции сточных вод. Флотационная установка. План (пример компоновки) ТП 902-2-126-ТК-2 Вариант рециркуляции сточных вод. Флотационная установка. План (пример компоновки) ТП 902-2-126-ТК-3 Монтажный чертеж. Общий вид. План ТП 902-2-126-ТК-4 Монтажный чертеж. Общий вид. Разрезы ТП 902-2-126-АС-1 Сводная выборка стали и технико-экономические показатели ТП 902-2-126-АС-2 Общий вид. Планы и разрезы ТП 902-2-126-АС-3 Узлы и детали ТП 902-2-126-АС-4 Днище. Планы раскладки сеток. Каркас КР-3 ТП 902-2-126-АС-5 Армирование приямка. Плита ПЖ1Е-2А ТП 902-2-126-АС-6 Стенка. Армирование ТП 902-2-126-АС-7 Железобетонные выступы под опорную конструкцию механизма сгребания пены. Армирования ТП 902-2-126-АС-8 Сетки С-2÷С-7. Каркасы КР-1,2 ТП 902-2-126-АС-9 Раскрой сеток. Закладные детали ТП 902-2-126-АС-10 Общая спецификация арматуры ТП 902-2-126-АС-11 Опорная конструкция для механизма сгребания пены. Общий вид. Сечения ТП 902-2-126-АС-12 Опорная конструкция для механизма сгребания пены. Узлы. Спецификация |
| Разработан: | Государственный проектный институт Союзводоканалпроект Госстроя СССР |
| Утверждён: | 03.12.1970 Союзводоканалпроект (Soyuzvodokanalproject 270) |
| Издан: | ЦИТП Госстроя СССР (CITP, Gosstroy (USSR) 1970 г. ) |

























