Скачать Типовые проектные решения 903-01-195 Альбом 1. Тепломеханическая и строительные частиДата актуализации: 01.01.2021
|
| Обозначение: | Типовые проектные решения 903-01-195 |
| Обозначение англ: | 903-01-195 |
| Статус: | не действует |
| Название рус.: | Альбом 1. Тепломеханическая и строительные части |
| Дата добавления в базу: | 01.09.2013 |
| Дата актуализации: | 01.01.2021 |
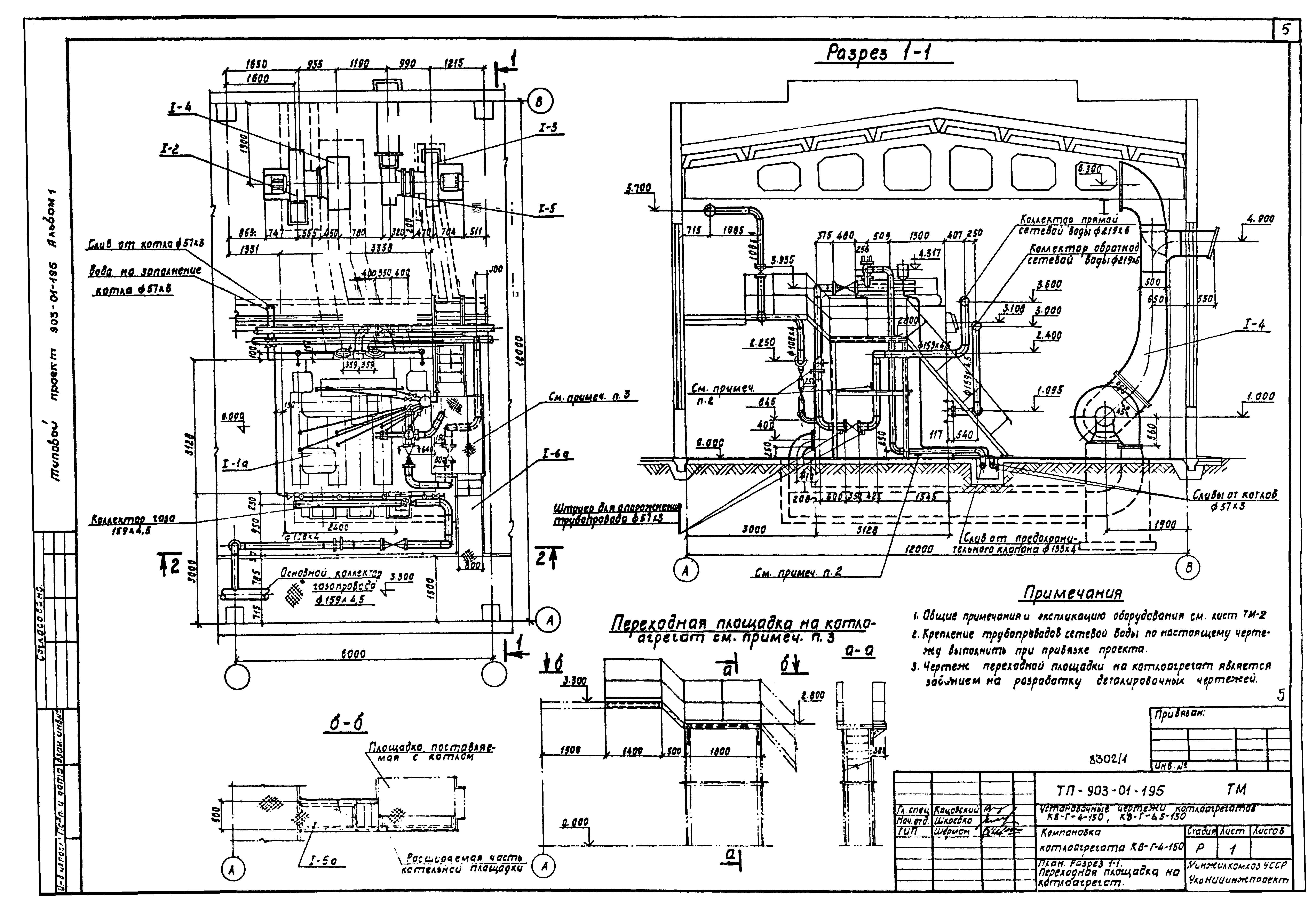
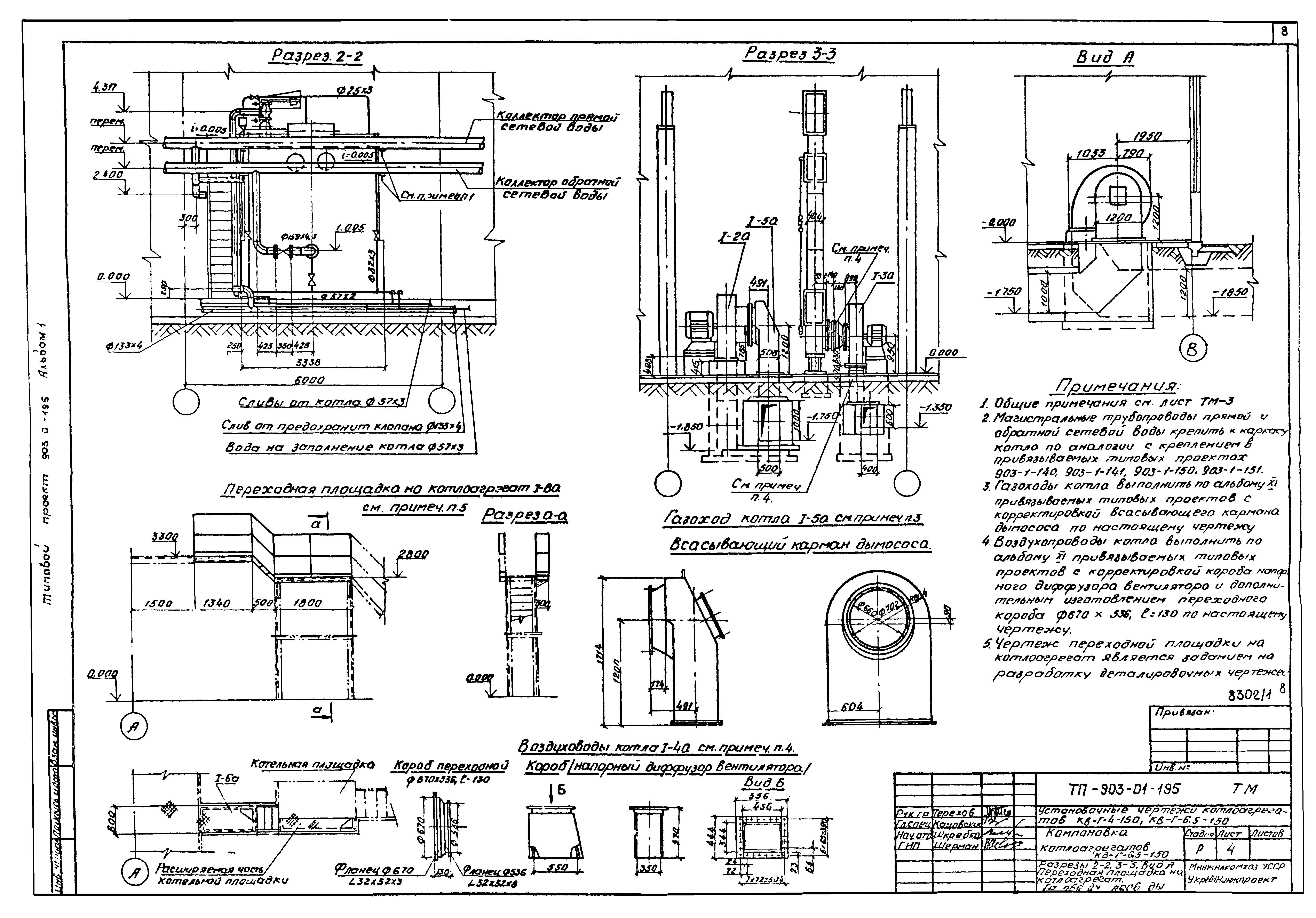
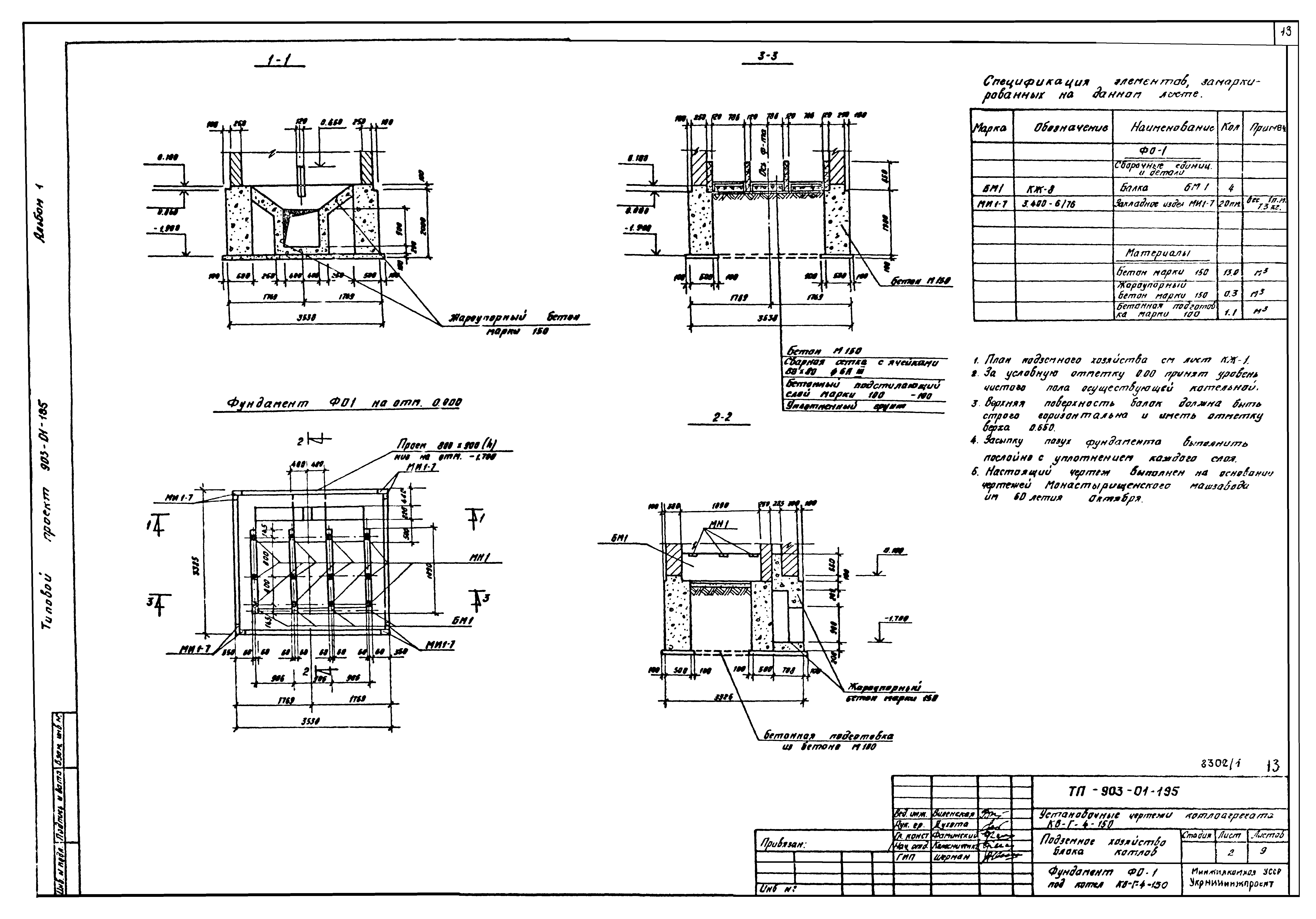
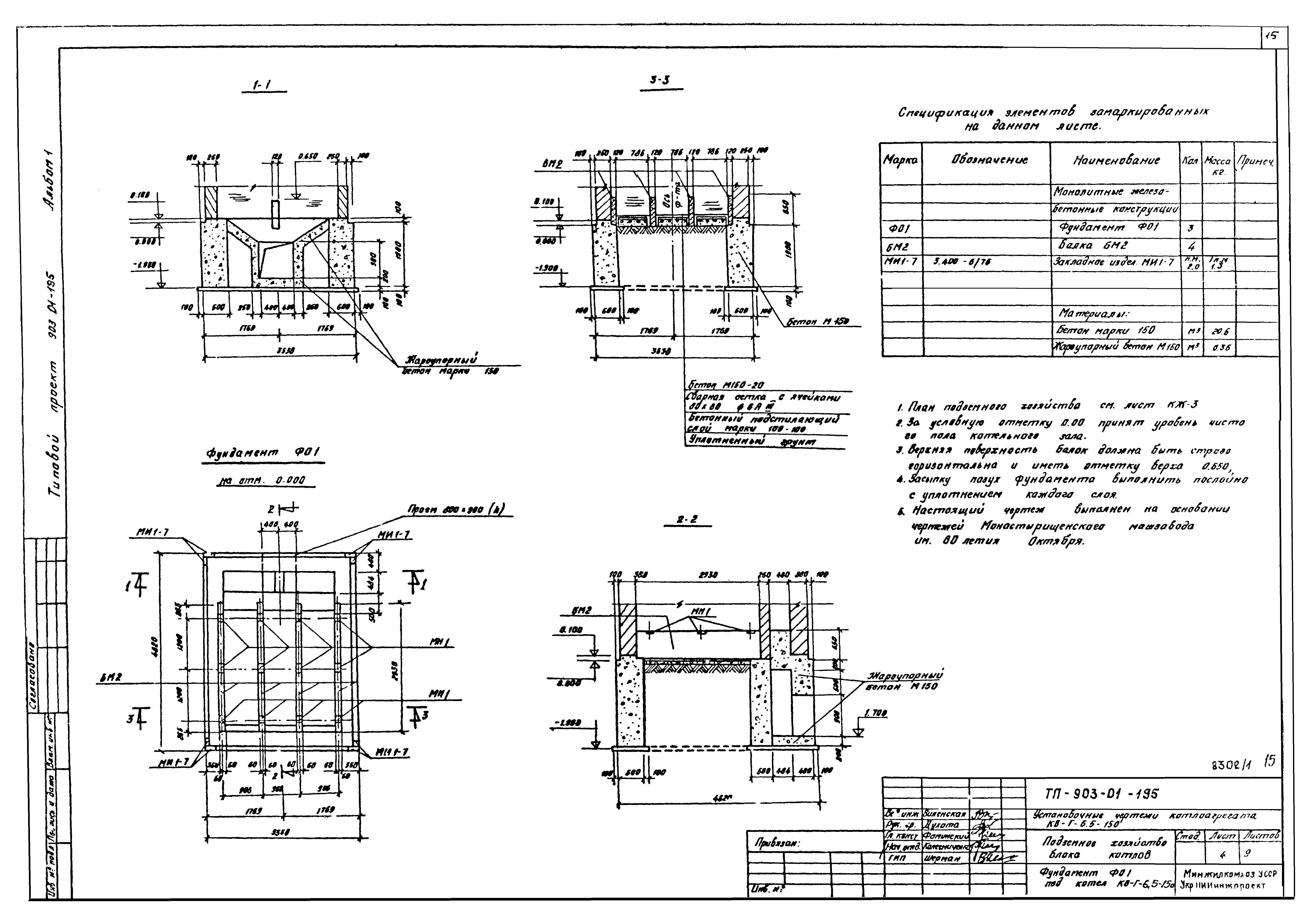
| Оглавление: | ТП 903-01-195 Общие данные (начало) ТП 903-01-195 Общие данные (окончание) ТП 903-01-195-ТМ Теплотехническая часть марки ТМ ТП 903-01-195-ТМ-1 Компоновка котлоагрегата КВ-Г-4-150. План. Разрез 1-1. Переходная площадка на котлоагрегат ТП 903-01-195-ТМ-2 Компоновка котлоагрегата КВ-Г-4-150. Разрез 2-2. Общие примечания ТП 903-01-195-ТМ-3 Компоновка котлоагрегата КВ-Г-6.5-150. План. Разрез 1-1. Общие примечания ТП 903-01-195-ТМ-4 Компоновка котлоагрегата КВ-Г-6.5-150. Разрезы 2-2,3-3. Вид А. Переходная площадка на котлоагрегат. Газовоздухопроводы ТП 903-01-195-ТМ-5 Компоновка котлоагрегата КВ-Г-6.5-150. Разрез 4-4 ТП 903-01-195-ТМ-6 Каркас котлоагрегатов КВ-Г-4-150,КВ-Г-6.5-150 ТП 903-01-195-ТМ-7 Установка напольно-защитного устройства ТП 903-01-195-КЖ Архитектурно-строительные чертежи марки КЖ ТП 903-01-195-КЖ-1 Установочные чертежи котлоагрегата КВ-Г-4-150. Подземное хозяйство блока котлов. План подземного хозяйства в осях 4-6 ТП 903-01-195-КЖ-2 Установочные чертежи котлоагрегата КВ-Г-4-150. Фундамент ФО-1 под котел КВ-Г-4-150 ТП 903-01-195-КЖ-3 Установочные чертежи котлоагрегата КВ-Г-6.5-150. Подземное хозяйство блока котлов. План подземного хозяйства ТП 903-01-195-КЖ-4 Установочные чертежи котлоагрегата КВ-Г-6.5-150. Фундамент ФО-1 под котел КВ-Г-65-150 ТП 903-01-195-КЖ-5 Установочные чертежи котлоагрегата КВ-Г-6.5-150. Фундамент ФО-3 ТП 903-01-195-КЖ-6 Установочные чертежи котлоагрегата КВ-Г-4-150. Подземное хозяйство блока котлов. Фундамент ФО-2 ТП 903-01-195-КЖ-7 Установочные чертежи котлоагрегата КВ-Г-4-150. Фундамент ФО-2. Закладные элементы. Арматурные сетки ТП 903-01-195-КЖ-8 Установочные чертежи котлоагрегата КВ-Г-4-150. Балка БМ-1,БМ-3. Закладные изделия ТП 903-01-195-КЖ-9 Установочные чертежи котлоагрегата КВ-Г-4-150. Балка БМ-1,БМ-3. Закладные детали МИ-1,МИ-13 |
| Разработан: | УкрНИИинжпроект Минжилкомхоза УССР |
| Издан: | ЦИТП Госстроя СССР (CITP, Gosstroy (USSR) 1983 г. ) |




















