Скачать Альбом ПП 16-11 Водомерные узлы со счетчиками ВСКМ и СТВДата актуализации: 01.01.2021 Альбом ПП 16-11
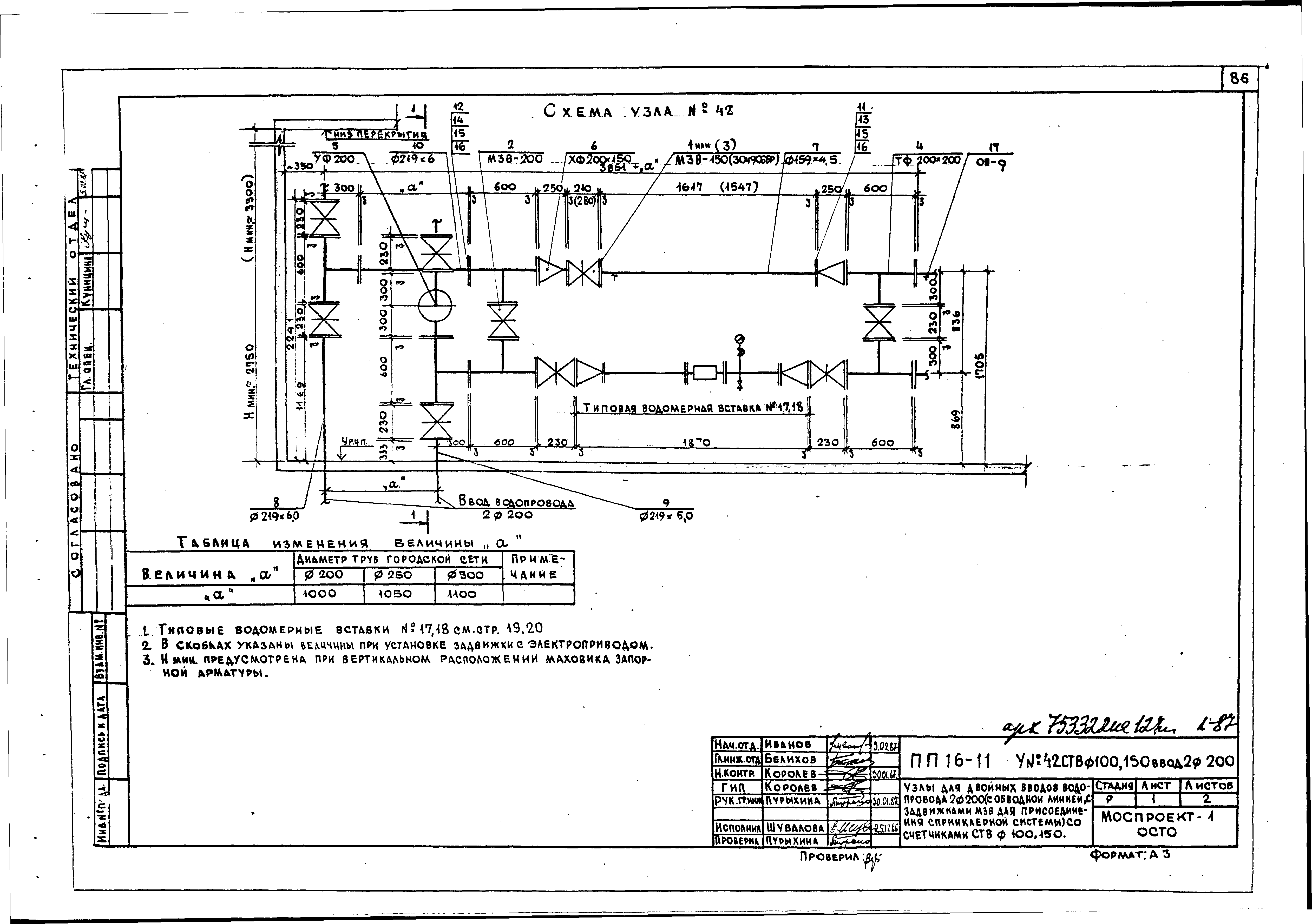
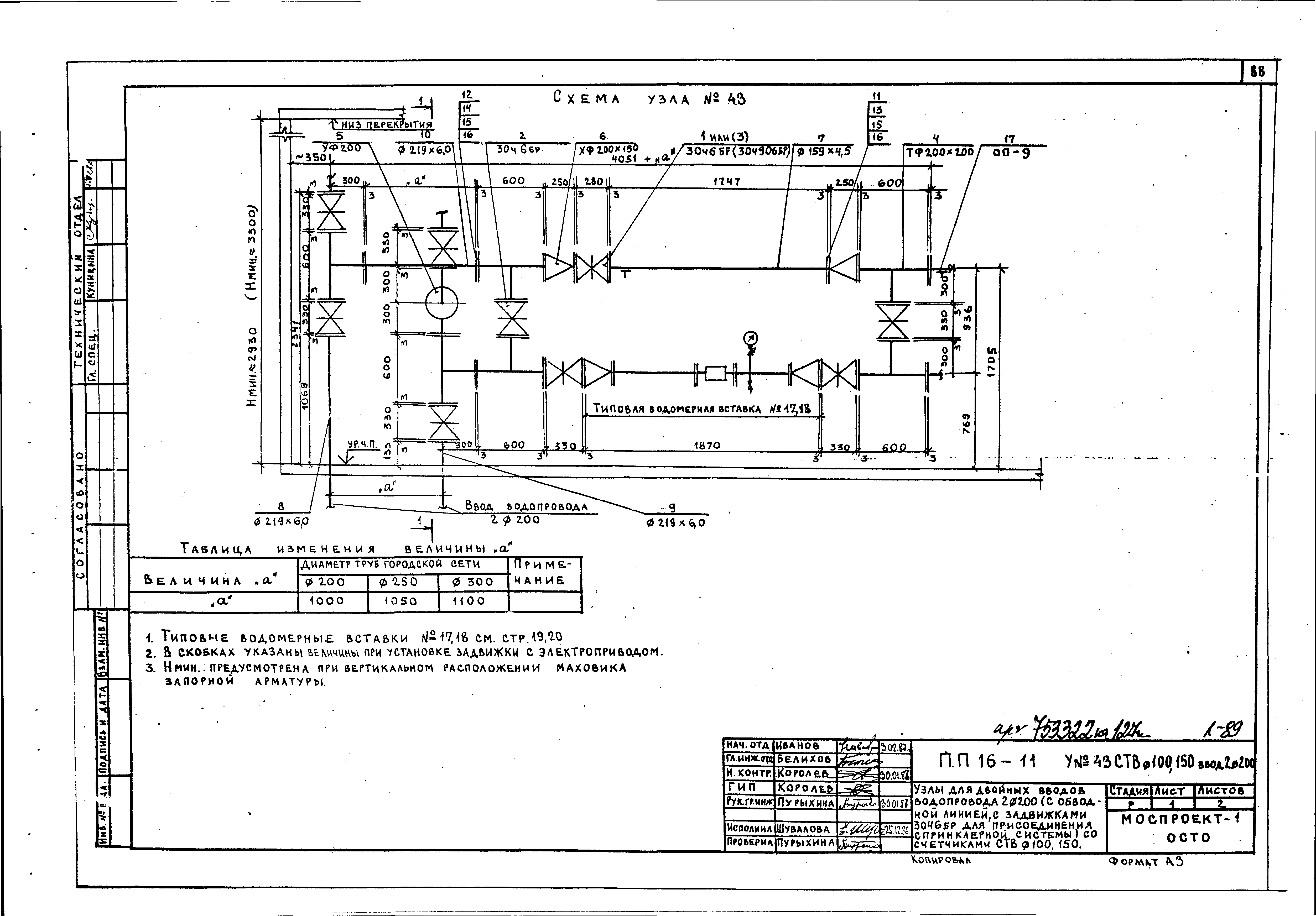
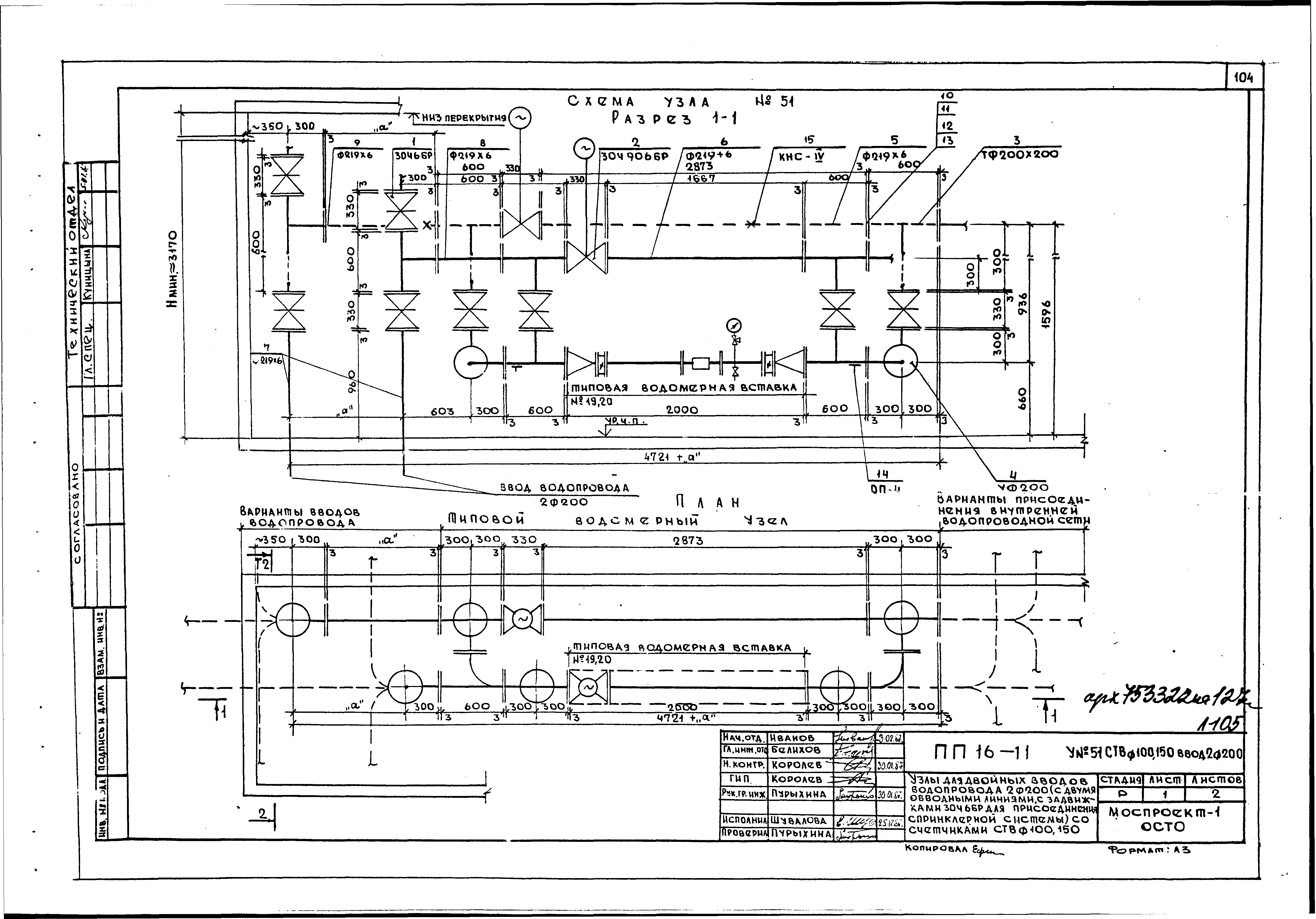
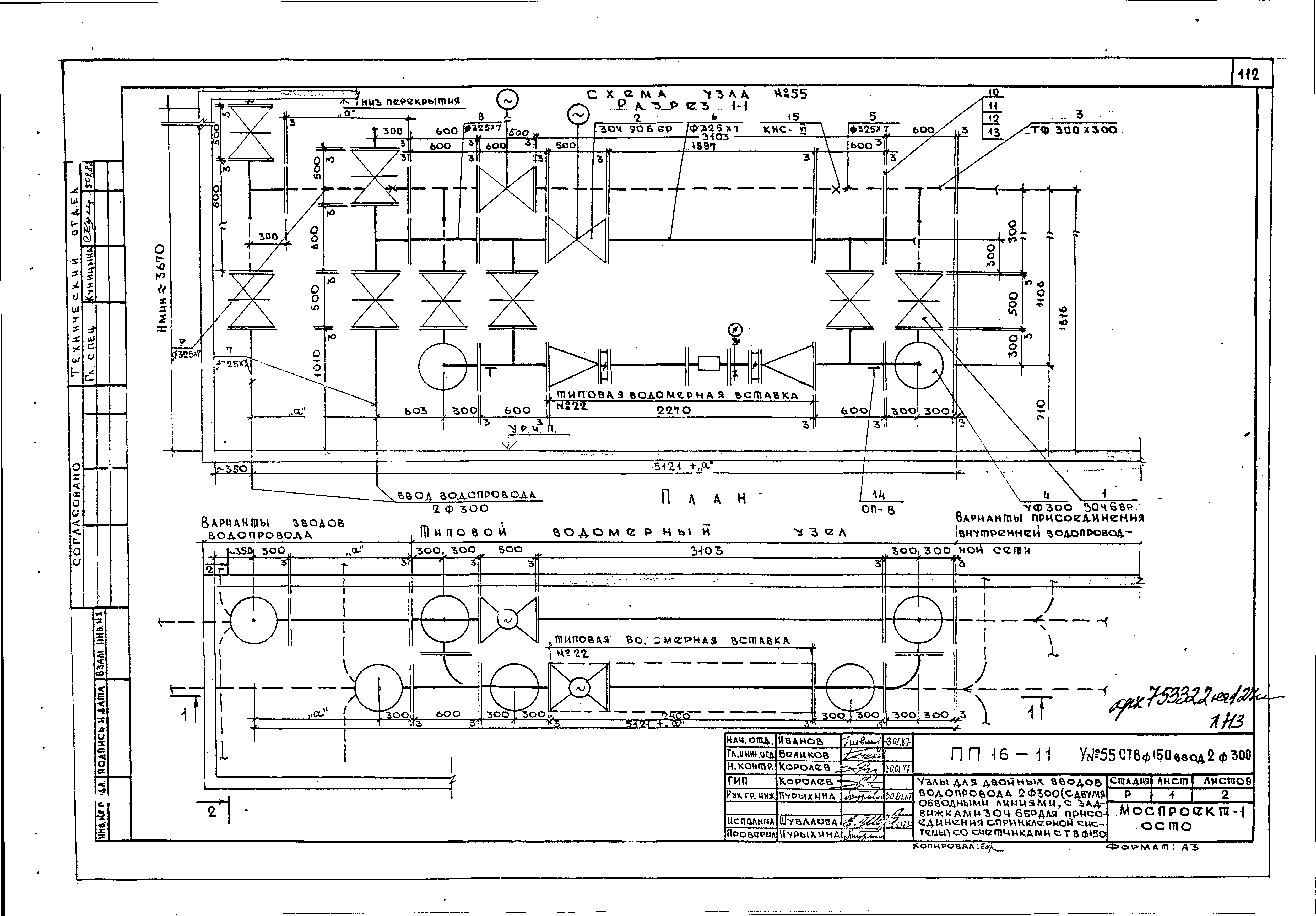
Водомерные узлы со счетчиками "ВСКМ" и "СТВ"| Обозначение: | Альбом ПП 16-11 | | Обозначение англ: | ПП 16-11 | | Статус: | не определен законодательством | | Название рус.: | Водомерные узлы со счетчиками "ВСКМ" и "СТВ" | | Дата добавления в базу: | 01.09.2013 | | Дата актуализации: | 01.01.2021 | | Дата введения: | 29.12.1986 | | Дата окончания срока действия: | 30.06.2003 | | Разработан: | Моспроект-1
| | Утверждён: | 29.12.1986 Моспроект-1 (404)
| | Принят: | Мосводопровод
|
                                                                                                                             
|