Скачать Типовой проект 902-2-230 Альбом III. Технологическая, электротехническая, сантехническая и механическая частиДата актуализации: 01.01.2021
|
| Обозначение: | Типовой проект 902-2-230 |
| Обозначение англ: | 902-2-230 |
| Статус: | действует |
| Название рус.: | Альбом III. Технологическая, электротехническая, сантехническая и механическая части |
| Дата добавления в базу: | 01.09.2013 |
| Дата актуализации: | 01.01.2021 |
| Дата введения: | 30.10.1975 |
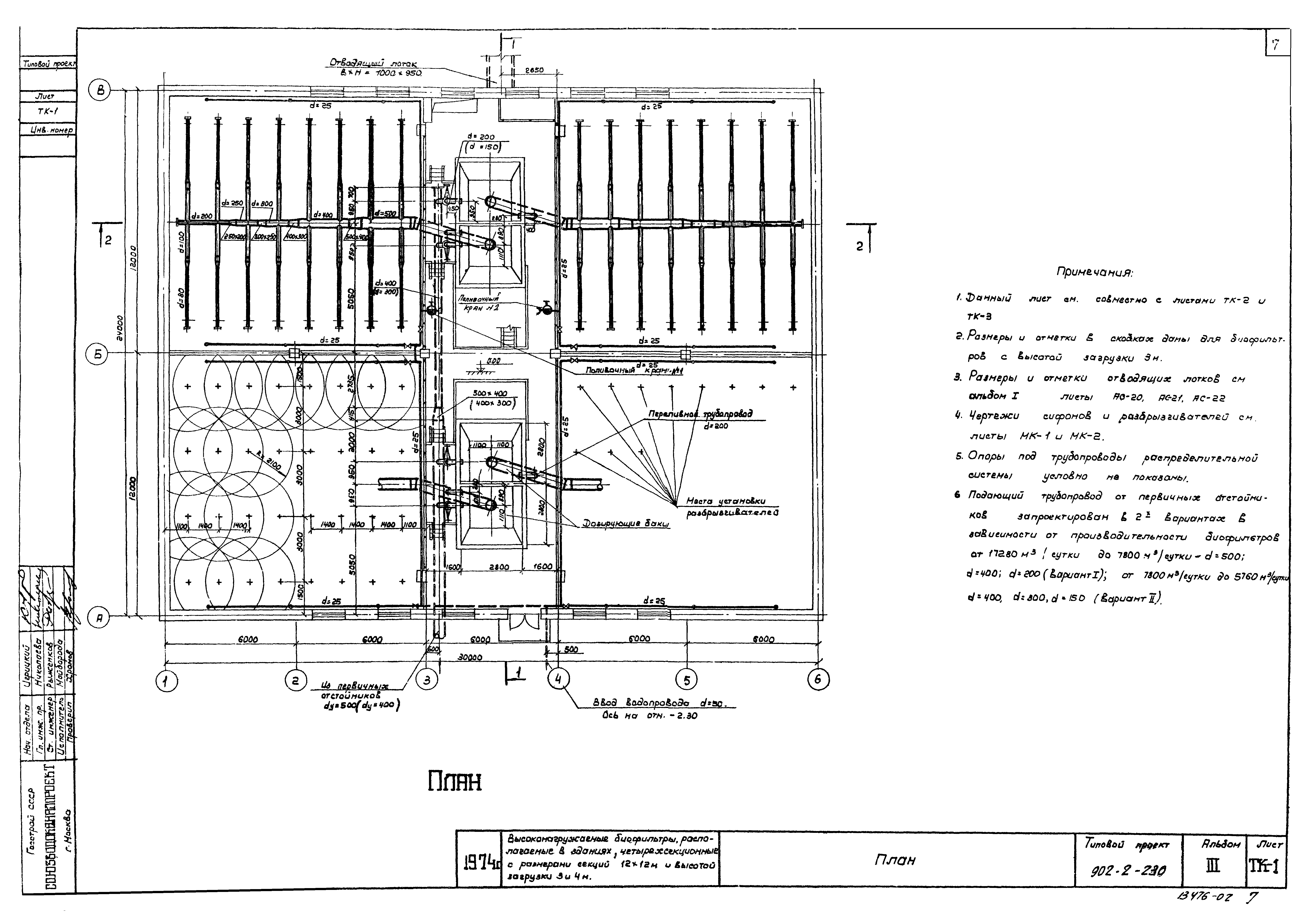
| Оглавление: | ТП 902-2-230-ПЗ-1 Заглавный лист ТП 902-2-230-ПЗ-2-ПЗ-5 Пояснительная записка ТП 902-2-230-ТК Технологические чертежи ТП 902-2-230-ТК-1 План ТП 902-2-230-ТК-2 Разрезы 1-1;2-2 ТП 902-2-230-ТК-3 Схема технического водопровода для промывки биофильтров. Схема сплинкерной системы биофильтров. Спецификация ТП 902-2-230-ОВ Отопление и вентиляция ТП 902-2-230-ОВ-1 Характеристика отопительно-вентиляционного оборудования. Пояснения к проекту и основные показатели по проекту. Перечень стандартов типовых чертежей. Условные обозначения ТП 902-2-230-ОВ-2 Отопление и вентиляция. План на отм. 0.000. Блок ТП 902-2-230-ОВ-3 Отопление и вентиляция. Разрезы 1-1;2-2. План на отм. 0.000. Схема теплоснабжения калориферов. Горизонтальный воздухосборник ТП 902-2-230-ОВ-4 Отопление и вентиляция. Схемы воздуховодов систем n-1 и n-2. Схема узла ввода ТП 902-2-230-ОВ-5 Установки n-1 и n-2. Разрезы 1-1;2-2. Монтажная спецификация ТП 902-2-230-ОВ-6 Сводная спецификация систем отопления и вентиляции ТП 902-2-230-ЭЛ Электротехнические чертежи ТП 902-2-230-ЭЛ-1 Схемы электрические принципиальные распределительной сети ~380/220 В и управления вентиляторами. Образец заполнения опросного листа для заказа сборки РИ30-69 ТП 902-2-230-ЭЛ-2 Схема подключения электрооборудования ТП 902-2-230-ЭЛ-3 Сборка РТ30. Общий вид /Дооборудование/ ТП 902-2-230-ЭЛ-4 Сборка РТ30. Схема соединений /Дооборудование/ ТП 902-2-230-ЭЛ-5 План расположения электрооборудования. Прокладка кабелей. Кабельный журнал ТП 902-2-230-ЭЛ-6 Электроосвещение ТП 902-2-230-МК Механические чертежи ТП 902-2-230-МК-1 Сифон для дозирующих баков ТП 902-2-230-МК-2 Колпак. Разбрызгиватель |
| Разработан: | Союзводоканалпроект |
| Утверждён: | 15.03.1975 Главпромстройпроект Госстроя СССР (26) |























