Скачать Типовой проект 902-2-275с Альбом II. Генплан. Производственно-вспомогательное здание (из ТП 902-2-276с)Дата актуализации: 01.01.2021
|
| Обозначение: | Типовой проект 902-2-275с |
| Обозначение англ: | 902-2-275с |
| Статус: | действует |
| Название рус.: | Альбом II. Генплан. Производственно-вспомогательное здание (из ТП 902-2-276с) |
| Дата добавления в базу: | 01.09.2013 |
| Дата актуализации: | 01.01.2021 |
| Дата введения: | 01.08.1976 |
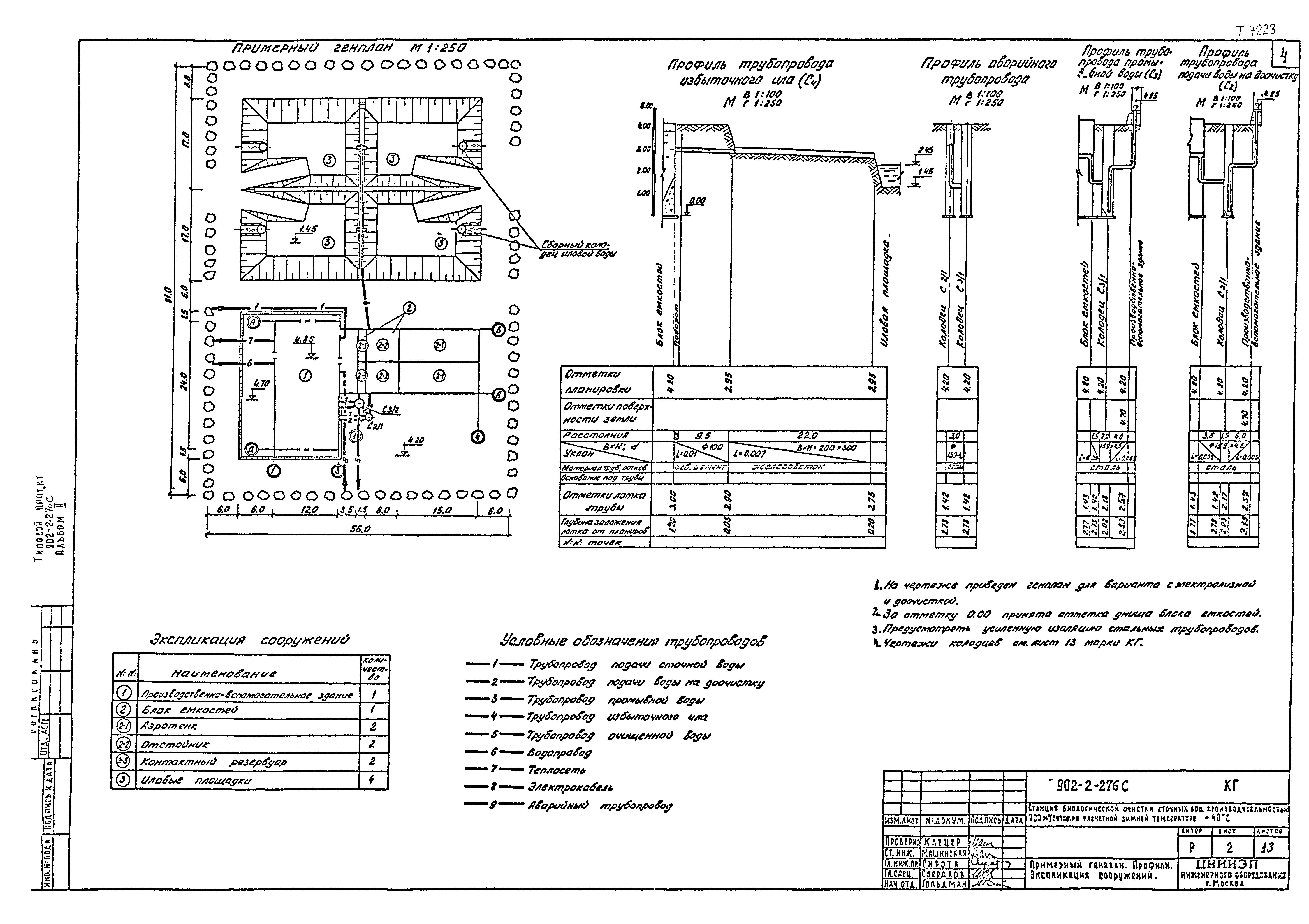
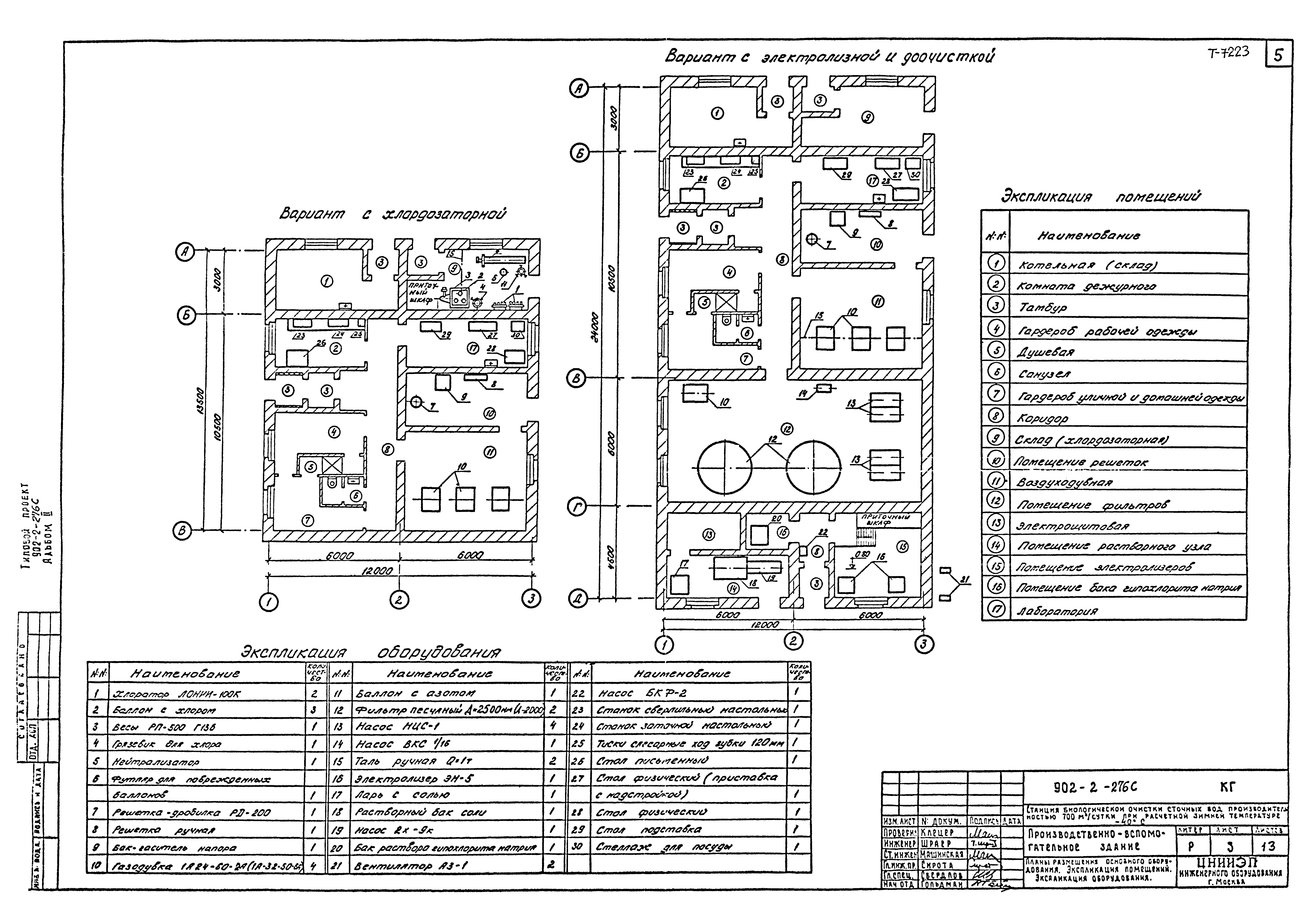
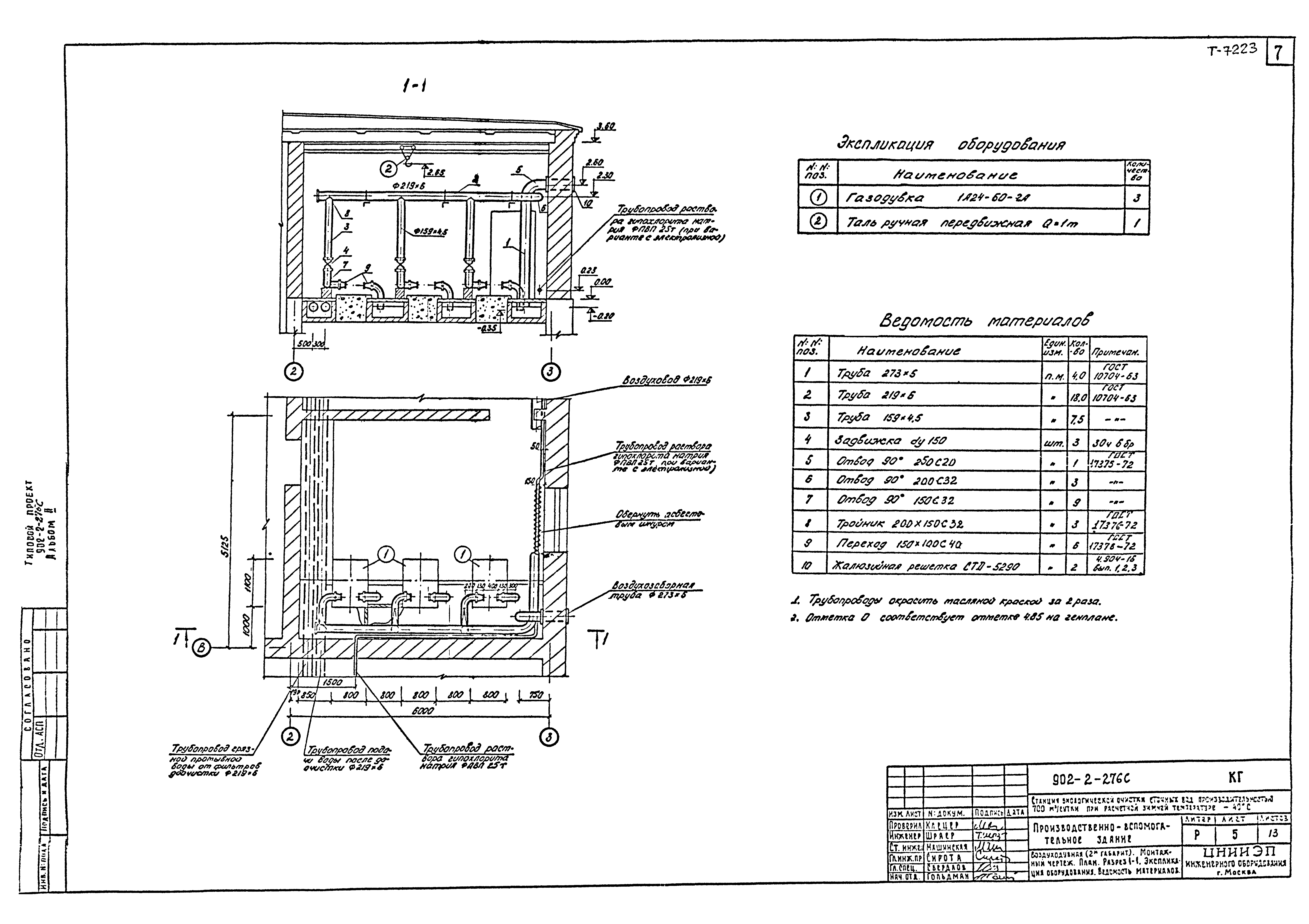
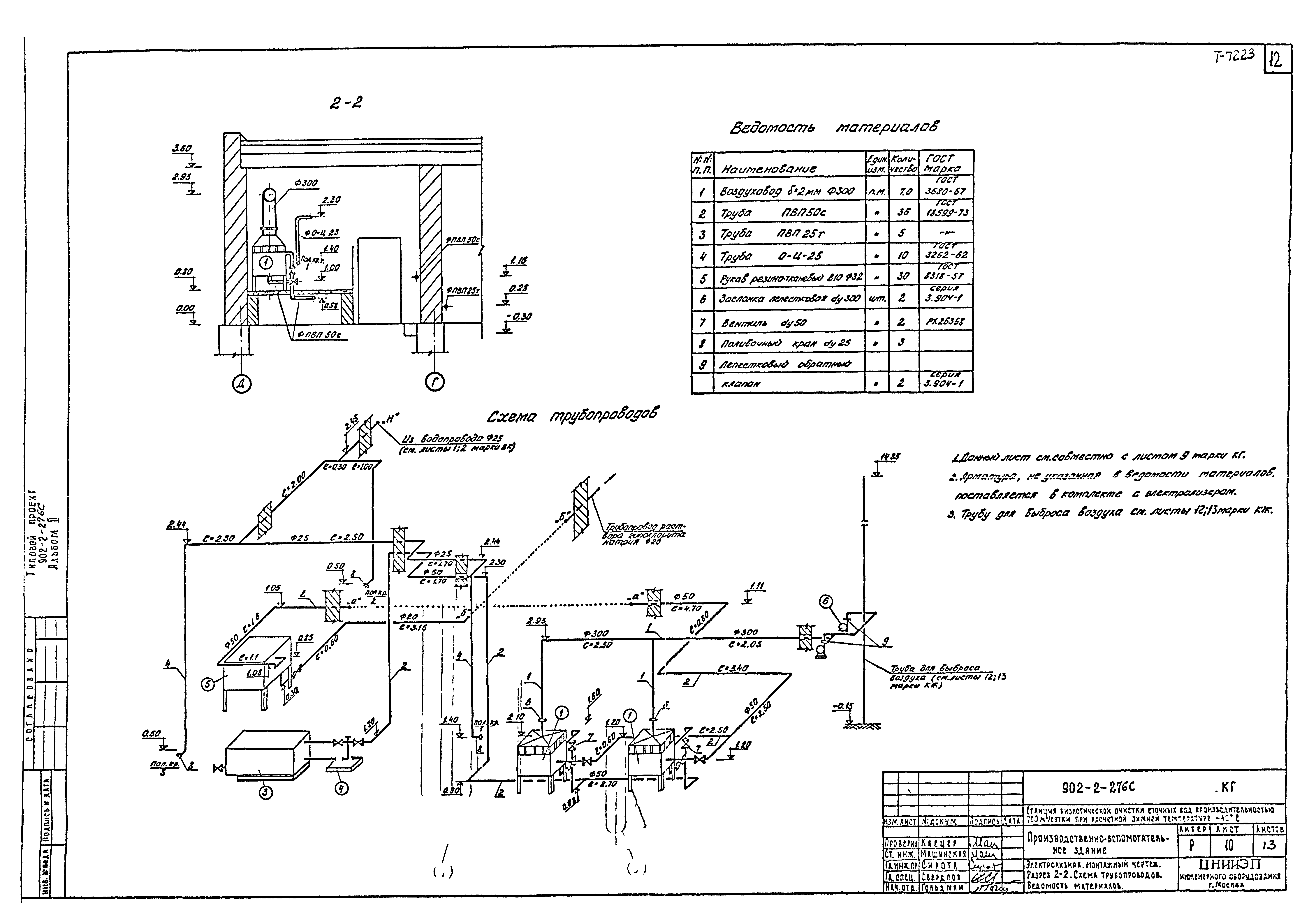
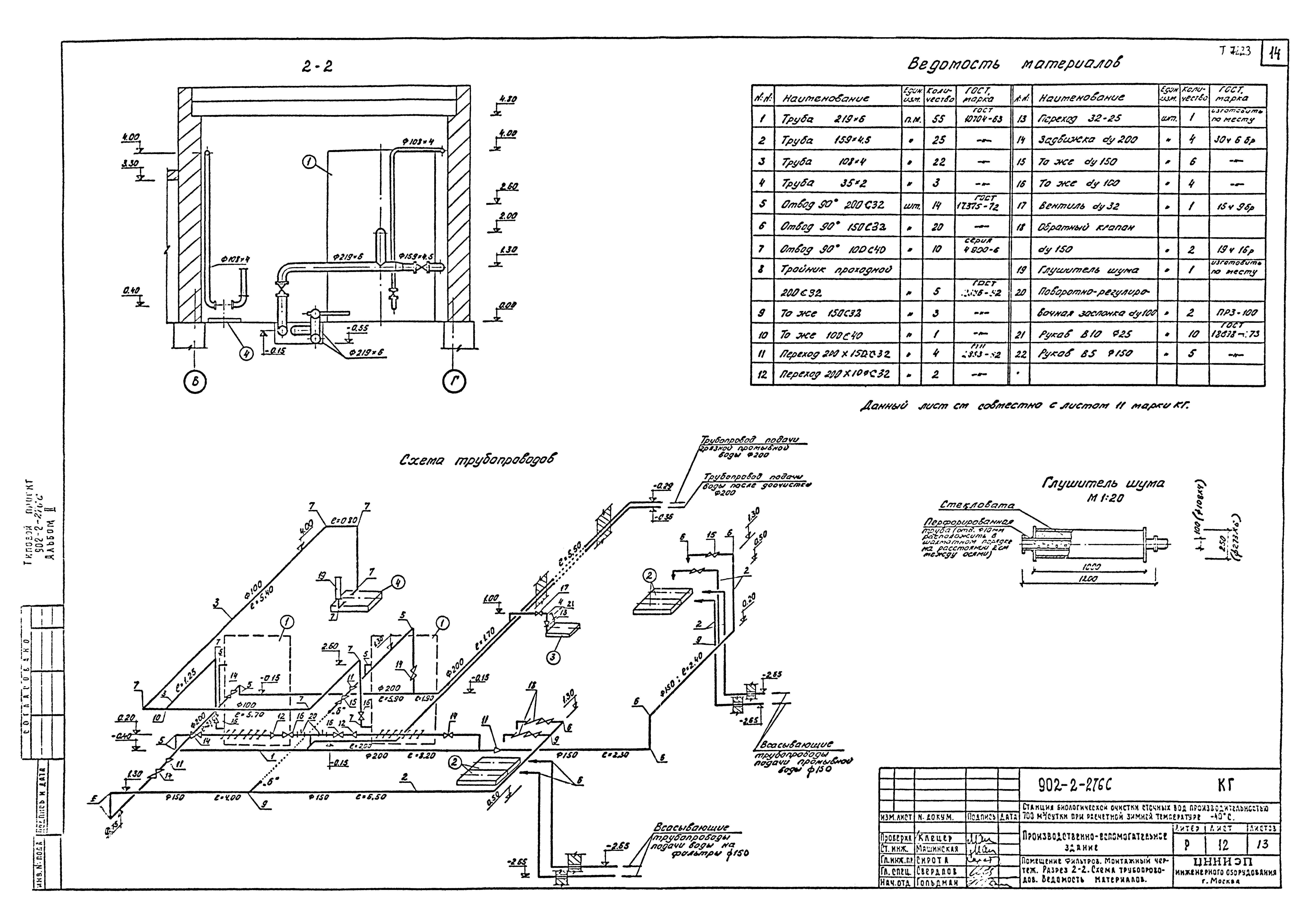
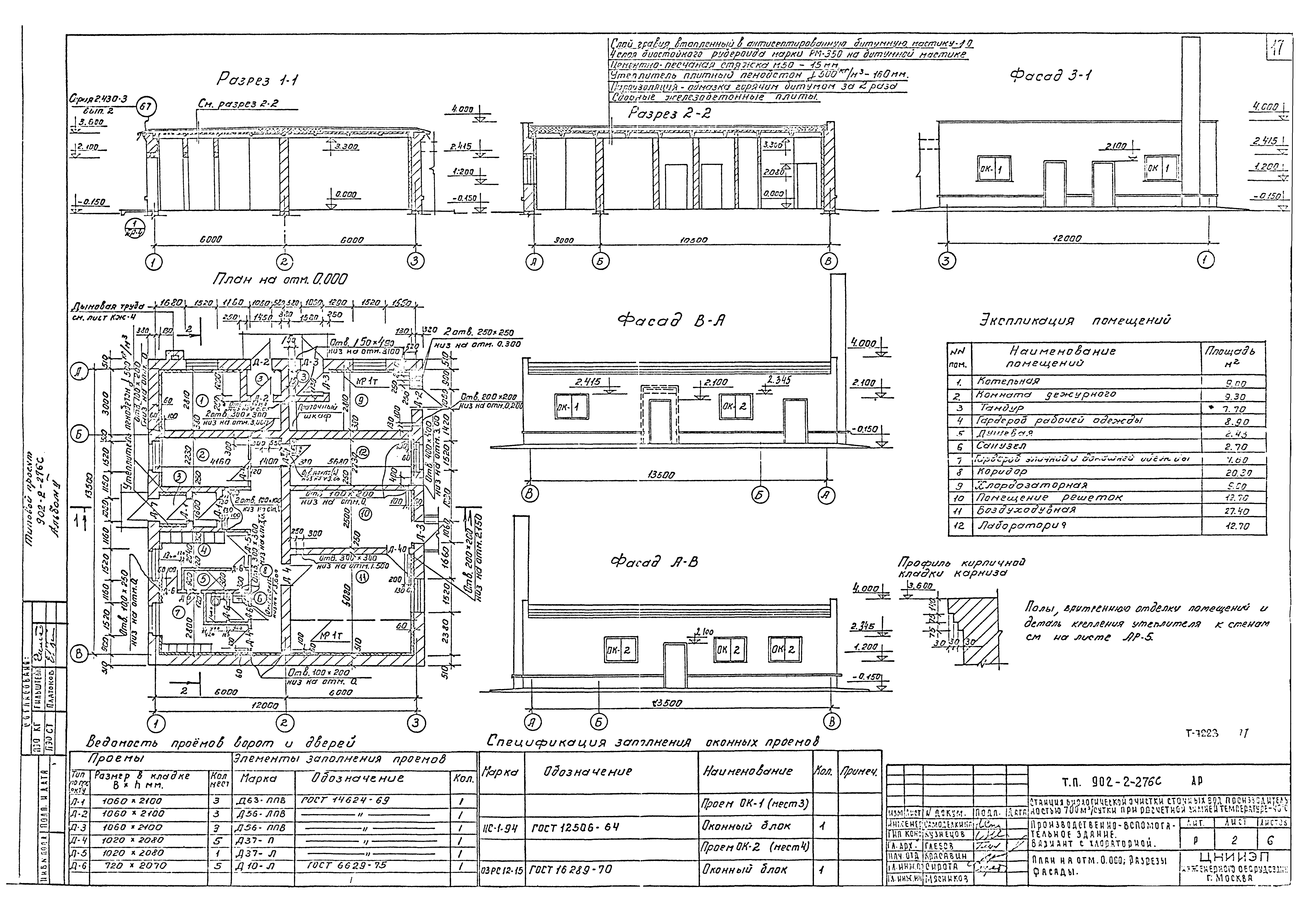
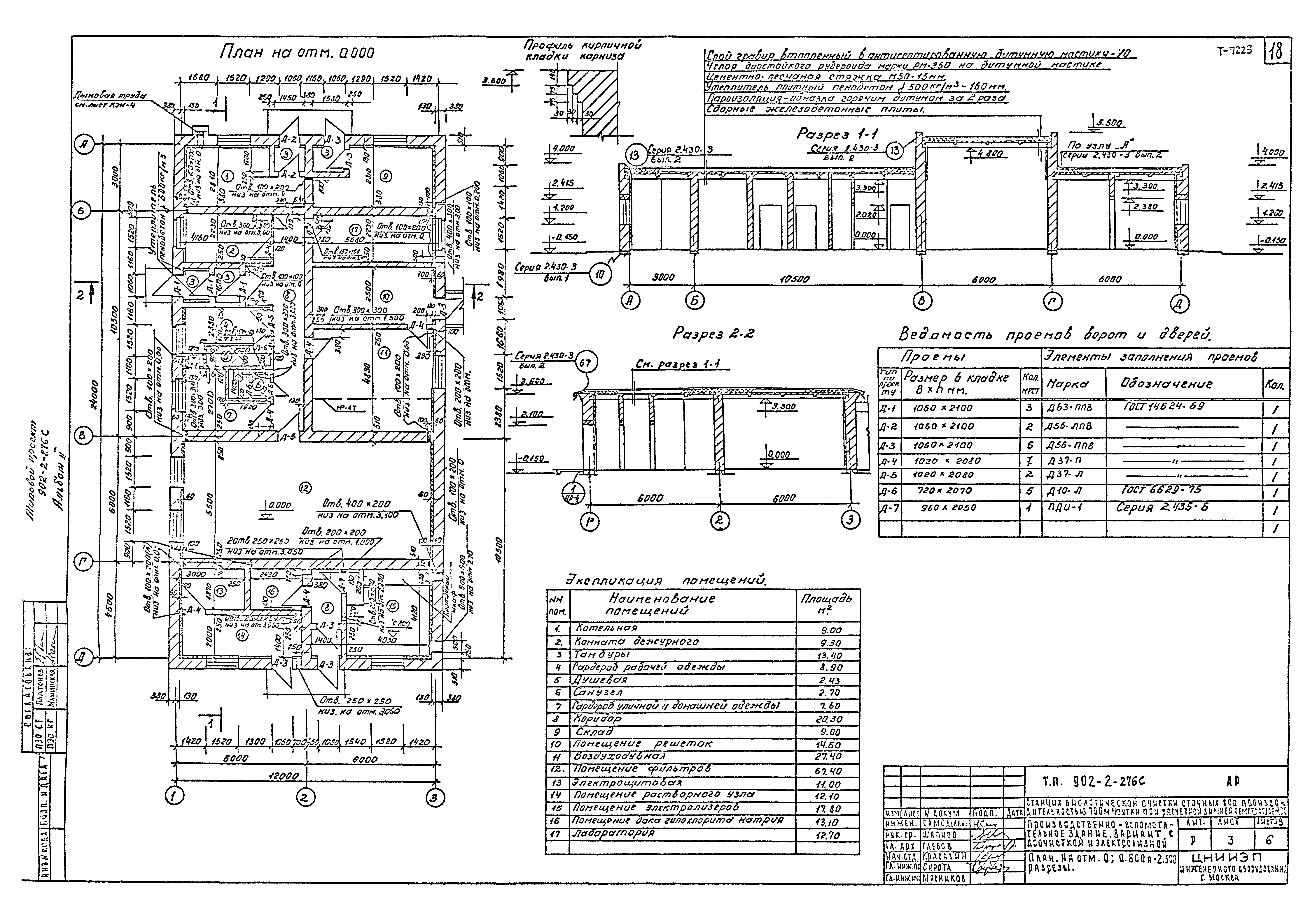
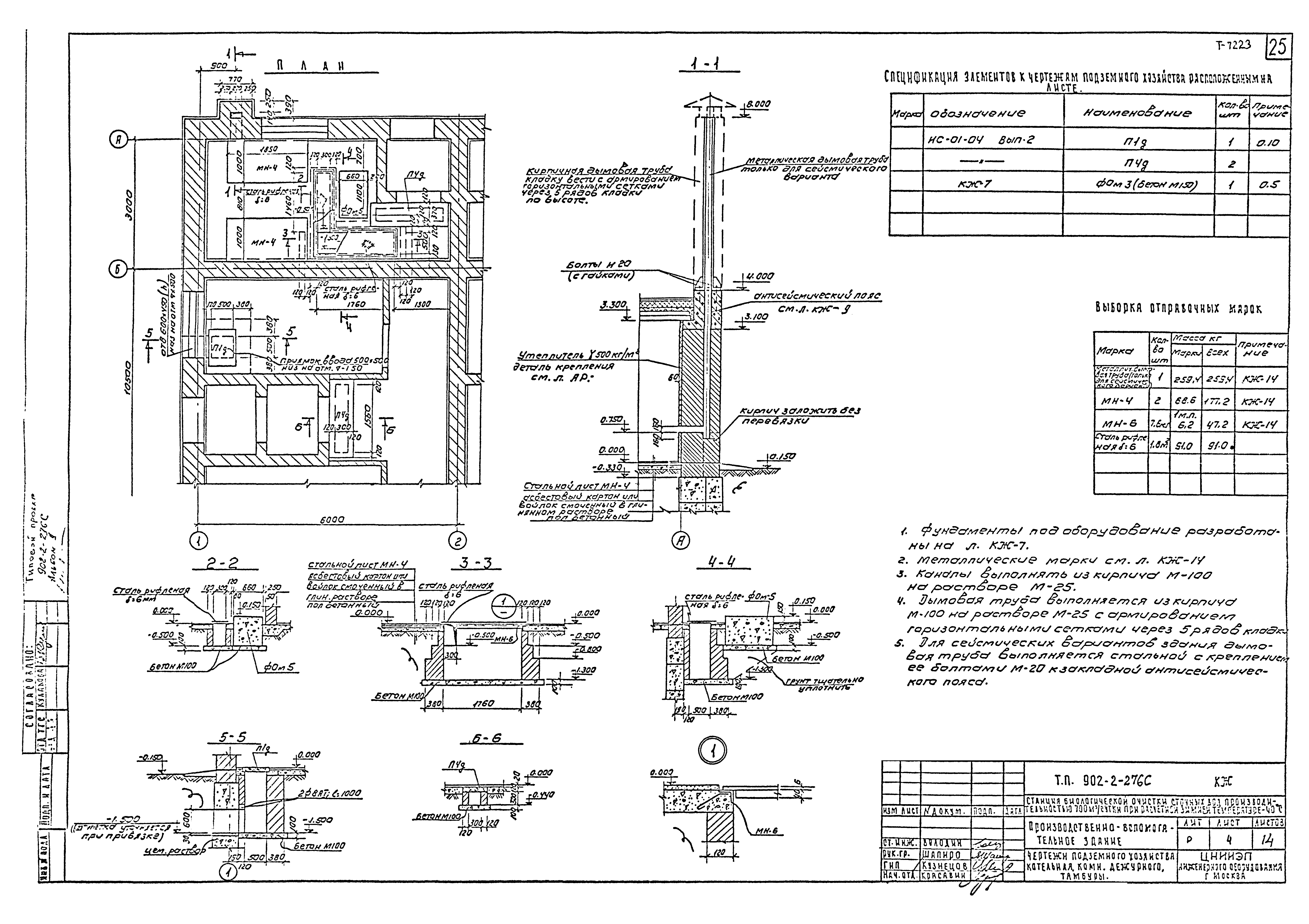
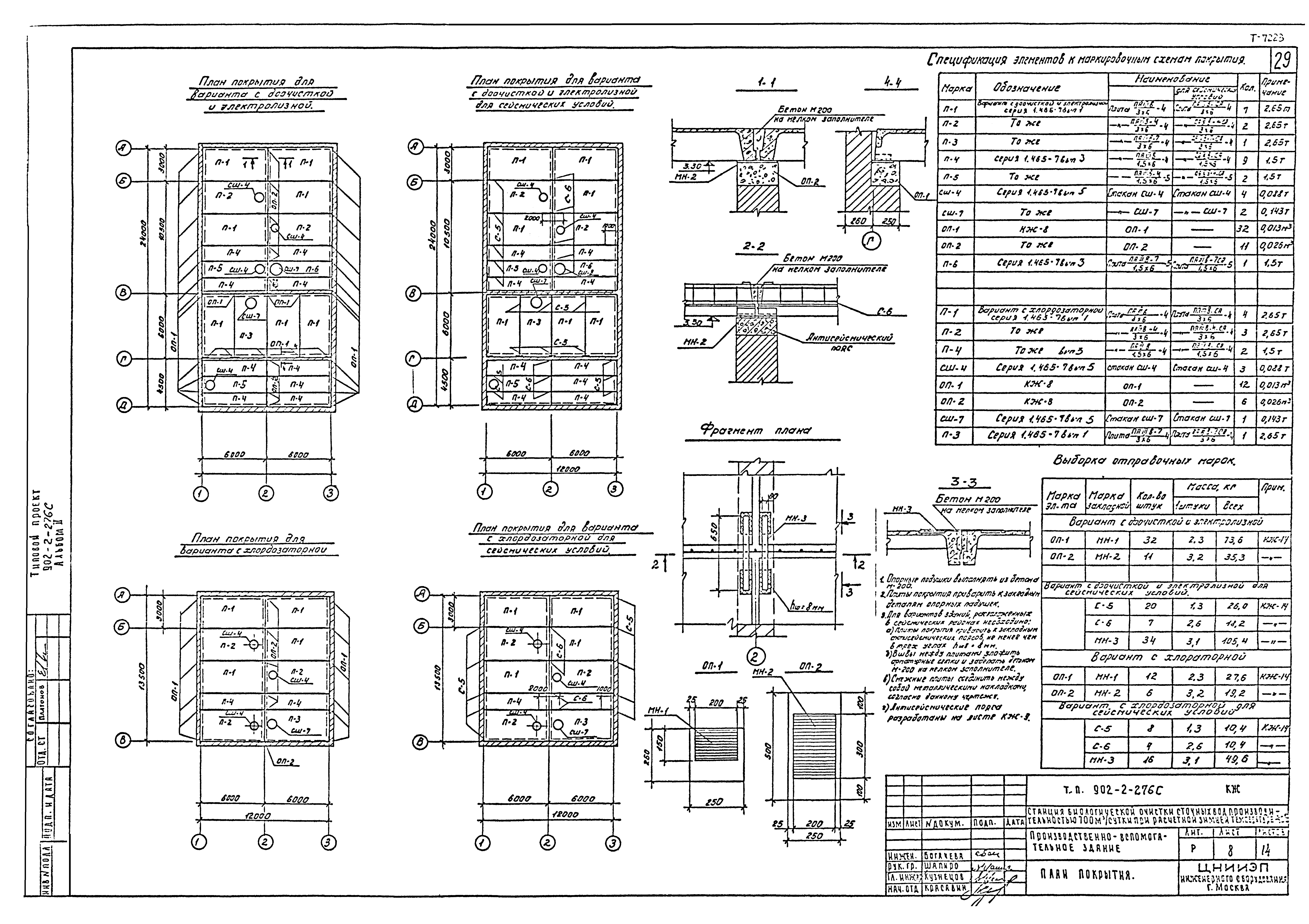
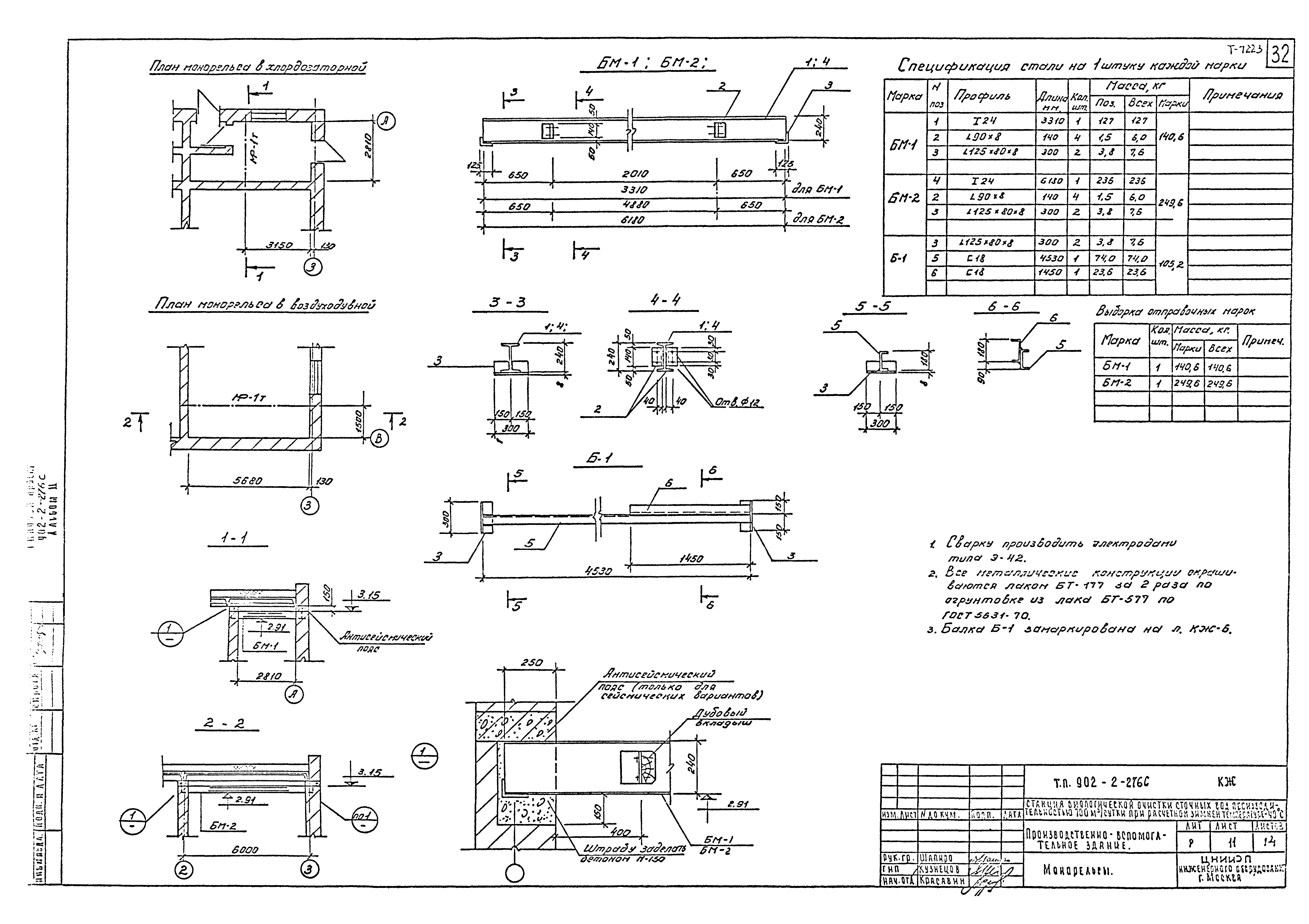
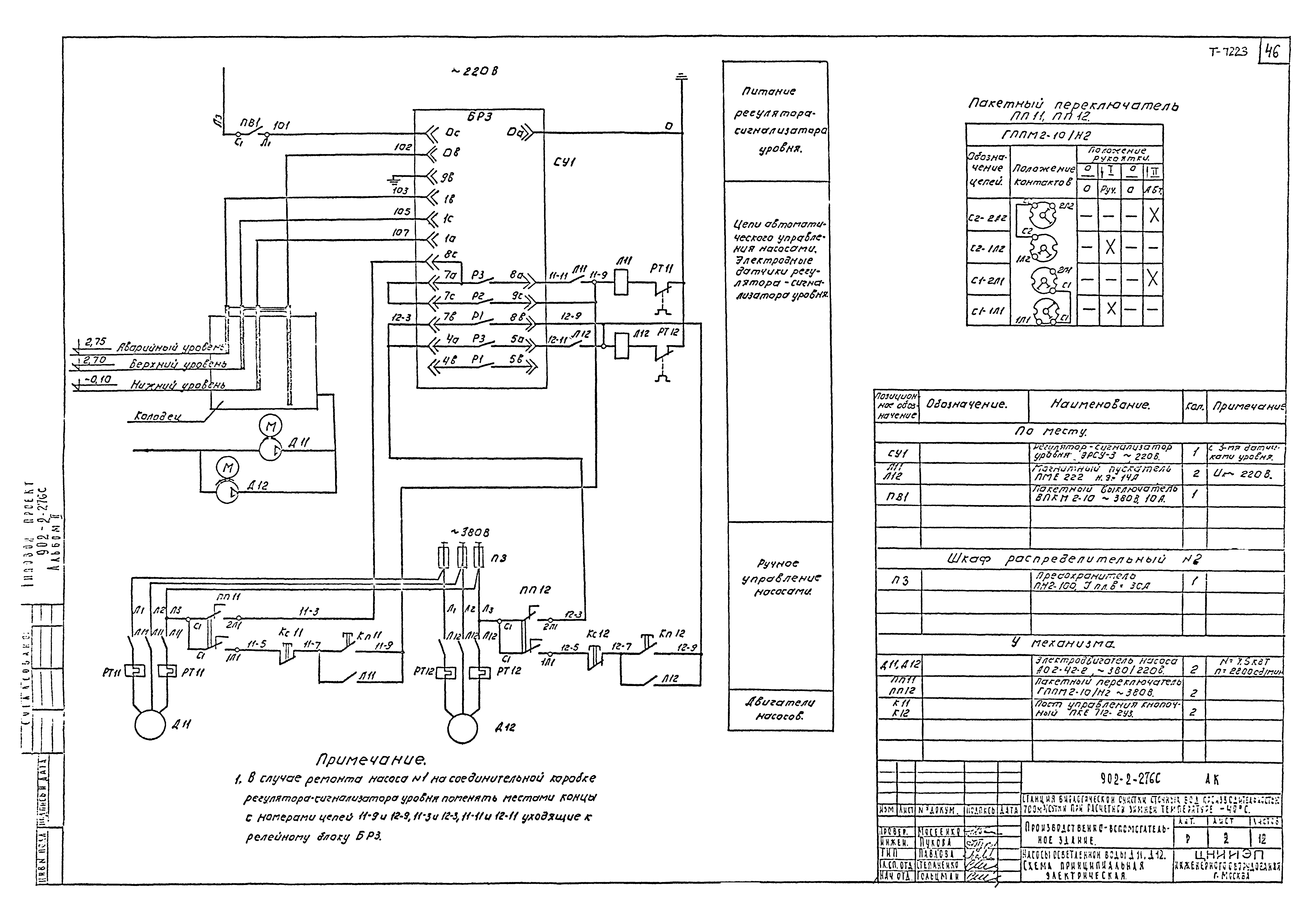
| Оглавление: | Содержание альбома Технологические чертежи КГ-1 Заглавный лист КГ-2 Примерный генплан. Профили. Экспликация сооружений КГ-3 Производственно-вспомогательное здание. Планы размещения основного оборудования. Экспликация помещений. Экспликация оборудования КГ-4 Помещение решеток. Монтажный чертеж План. Разрез 1-1. Вариант с самотечной подачей сточных вод. Элемент плана. Разрез 2-2. Экспликация оборудования. Ведомость материалов КГ-5 Воздуходувная (2й габарит). Монтажный чертеж. План. Разрез 1-1. Экспликация оборудования. Ведомость материалов КГ-6 Воздуходувная (3й габарит). Монтажный чертеж. План. Разрез 1-1. Экспликация оборудования. Ведомость материалов КГ-7 Хлордозаторная. Монтажный чертеж. План. Разрезы 1-1,2-2. Экспликация оборудования. Ведомость материалов КГ-8 Хлордозаторная. Схема трубопроводов КГ-9 Электролизная. Монтажный чертеж. План. Разрез 1-1. Экспликация оборудования КГ-10 Электролизная. Монтажный чертеж. Разрез 2-2. Схема трубопроводов. Ведомость материалов КГ-11 Помещение фильтров. Монтажный чертеж. План. Разрез 1-1. Экспликация оборудования КГ-12 Помещение фильтров. Монтажный чертеж. Разрез 2-2. Схема трубопроводов. Ведомость материалов КГ-13 Колодцы. Планы. Разрезы Архитектурно-строительные чертежи АР-1 Заглавный лист АР-2 Вариант с хлордозаторной. План на отм. 0.00. Разрезы. Фасады АР-3 Вариант с доочисткой и электролизной. План на отм. 0. Разрезы АР-4 Вариант с доочисткой и электролизной. Фасады АР-5 Вариант с доочисткой и электролизной. План кровли. План полов. Экспликация полов. Ведомость отделки помещений АР-6 Вариант с доочисткой и электролизной. Схемы планов КЖ-1 Заглавный лист КЖ-2 Маркировочные схемы фундаментов. Спецификации КЖ-3 Маркировочные схемы фундаментов. Чертежи антисейсмических мероприятий. Спецификации КЖ-4 Чертежи подземного хозяйства. Котельная. Комната дежурного. Тамбуры КЖ-5 Чертежи подземного хозяйства. Хлордозаторная КЖ-5 Помещение решеток. Воздуходувная КЖ-6 Чертежи подземного хозяйства. Помещение фильтров и электролизная КЖ-7 Фундаменты Ф-1,ФОМ-1 КЖ-8 План покрытия КЖ-9 Антисейсмические пояса. Опалубка. Армирование КЖ-10 Монтажный план перемычек КЖ-11 Монорельсы КЖ-12 Монтажные схемы вентиляционной трубы КЖ-13 Вентиляционная и дымовая труба КЖ-14 Металлические марки Санитарно-технические чертежи ОВ-1 Заглавный лист ОВ-2 План на отм. 0.00. Схемы отопления и вентиляции. Тепловой узел. Расширительный бак ОВ-3 План на отм. 0.00. Схемы отопления и вентиляции. Тепловой узел. Расширительный бак ОВ-4 Приточный шкаф № 1 (в хлордозаторной) ОВ-5 Приточный шкаф № 2 (в хлордозаторной) ОВ-6 Сводная спецификация систем отопления и вентиляции ТК-1 Котельная. Монтажный чертеж. Компоновка оборудования и трубопроводов. Тепловая схема) ВК-1 План. Схема трубопроводов канализации ВК-2 Схема трубопроводов холодной и горячей воды. Экспликация оборудования. Ведомость материалов АК-1 Электротехнические чертежи. Питание электрооборудования. Схема принципиальная электрическая АК-2 Насосы осветленной воды Д11,Д12. Схема принципиальная электрическая АК-3 Дренажный насос Д14, насос "ГНОМ" Д6. Схема принципиальная электрическая АК-4 Схема подключения электрооборудования АК-5 Схема подключения электрооборудования АК-6 Кабельный журнал АК-7 Размещения электрооборудования и прокладка кабеля АК-8 Вариант с хлордозаторной. Заземление. План на отм. 0.000 АК-9 Вариант с доочисткой и электролизной. Заземление. План на отм. 0.000 АК-10 Вариант с хлордозаторной. Электрическое освещение. План на отм. 0.000 АК-11 Вариант с доочисткой и электролизной. Электрическое освещение. План на отм. 0.000 АК-12 Вариант с доочисткой и электролизной. Молниезащита. План Чертежи нестандартизированного оборудования 45.00.00.000 ВО Грязевик для хлора. Чертеж общего вида 36.00.00.000 ВО Нейтрализатор. Чертеж общего вида 38.00.00.000 ВО Подставка на весах для 3х баллонов. Чертеж общего вида 38.00.00.000 ВО Подставка на весах для 3х баллонов. Чертеж общего вида. Футляр для поврежденных баллонов 46.00.00.000 ВО Футляр для поврежденных баллонов. Чертеж общего вида 505.00.00.000 ВО Лоток с ручной решеткой. Чертеж общего вида |
| Разработан: | ЦНИИЭП |
| Утверждён: | 27.05.1975 Госгражданстрой (Gosgrazhdanstroy 116) |





























































