Скачать Типовой проект 902-2-275с Альбом IV. Блок емкостей. Монолитный вариантДата актуализации: 01.01.2021
|
| Обозначение: | Типовой проект 902-2-275с |
| Обозначение англ: | 902-2-275с |
| Статус: | действует |
| Название рус.: | Альбом IV. Блок емкостей. Монолитный вариант |
| Дата добавления в базу: | 01.09.2013 |
| Дата актуализации: | 01.01.2021 |
| Дата введения: | 01.08.1976 |
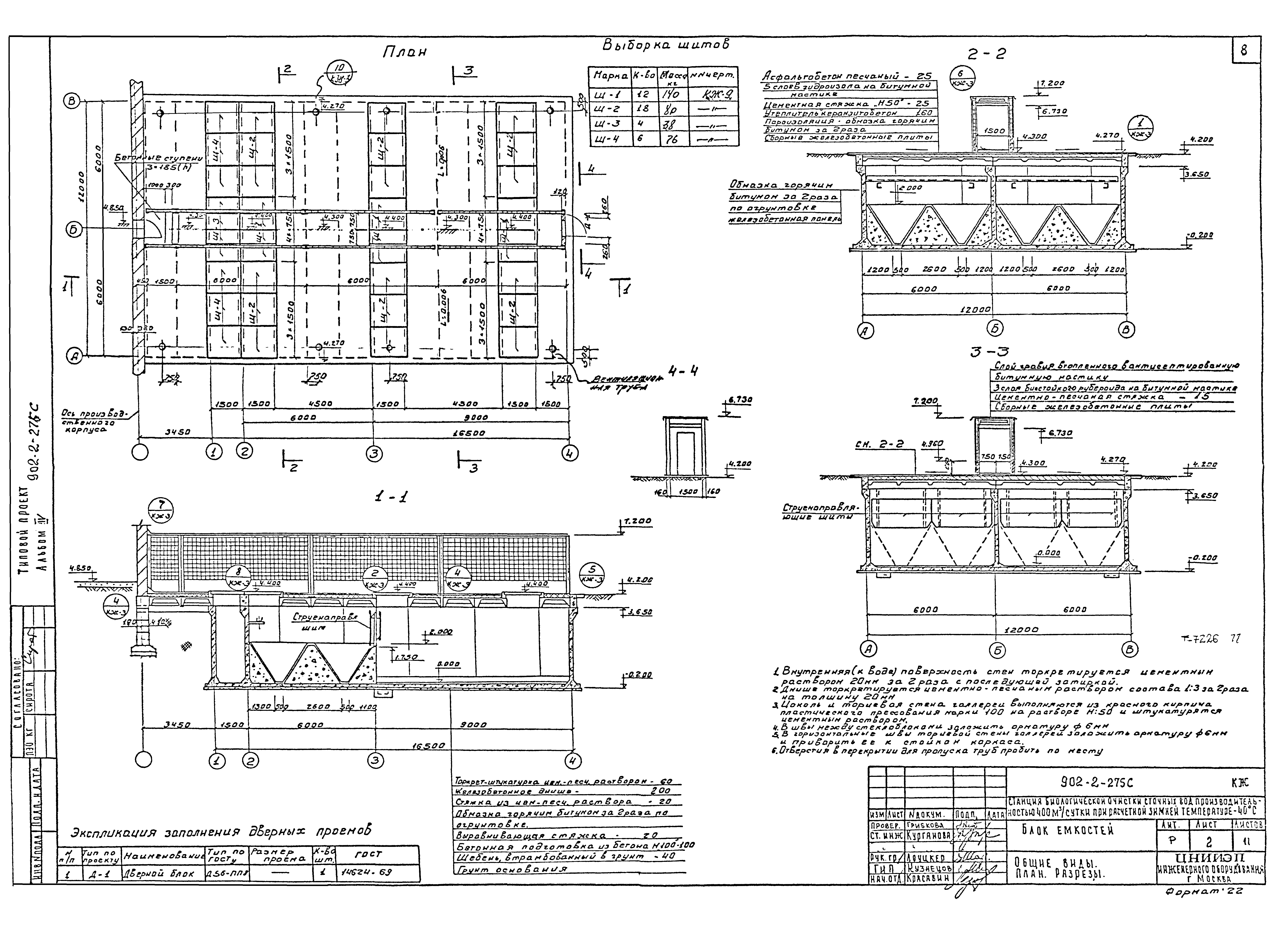
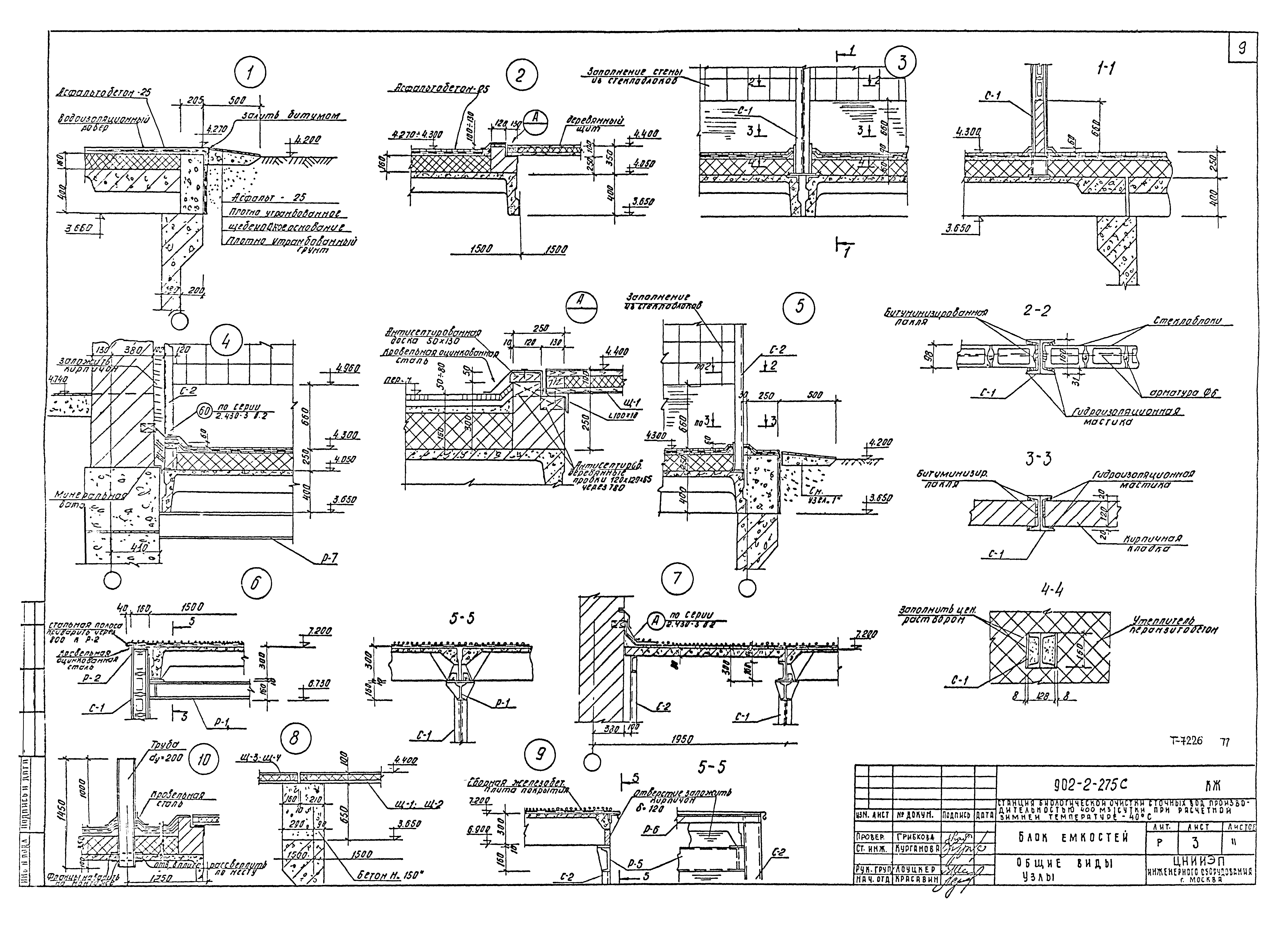
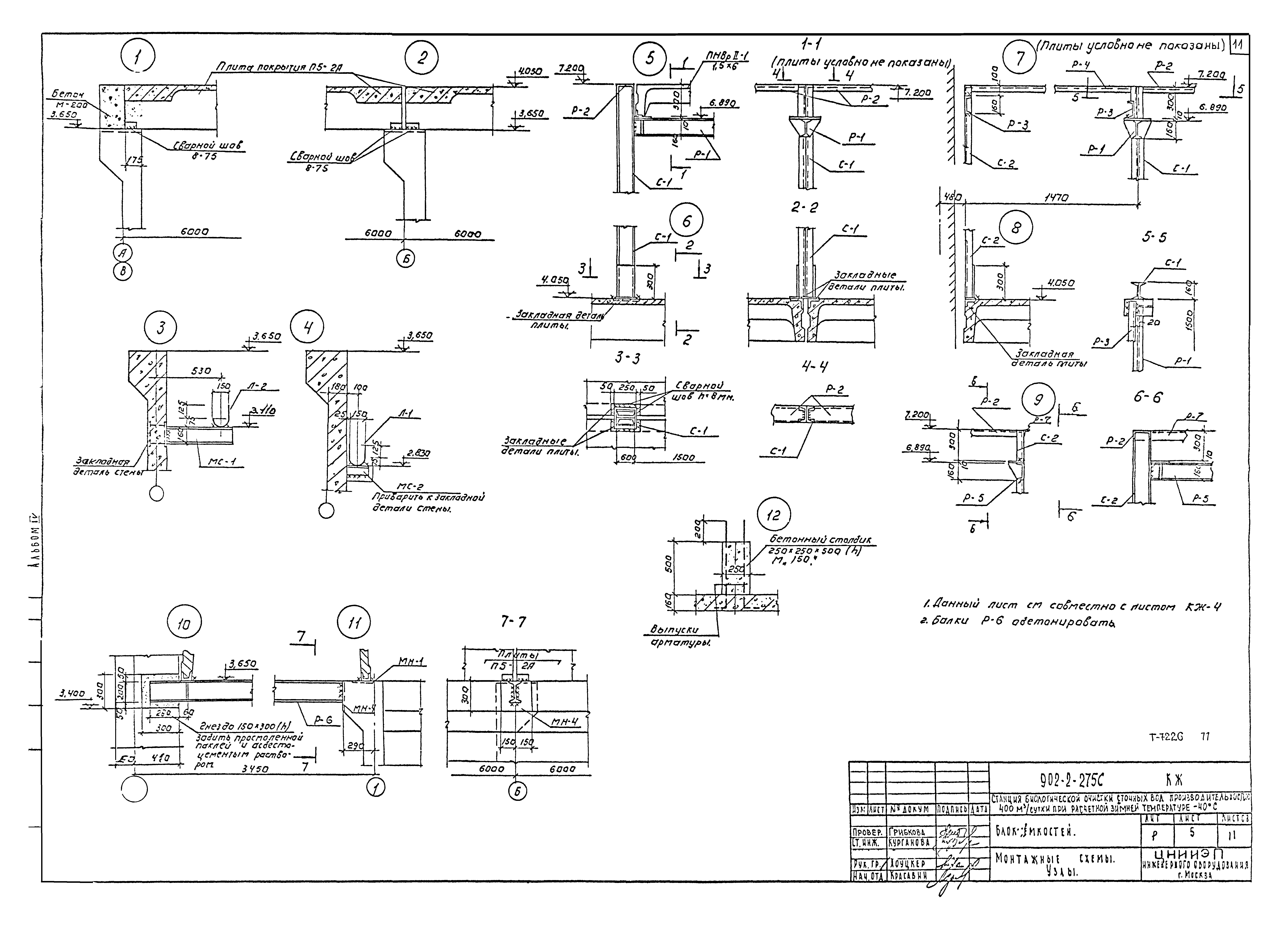
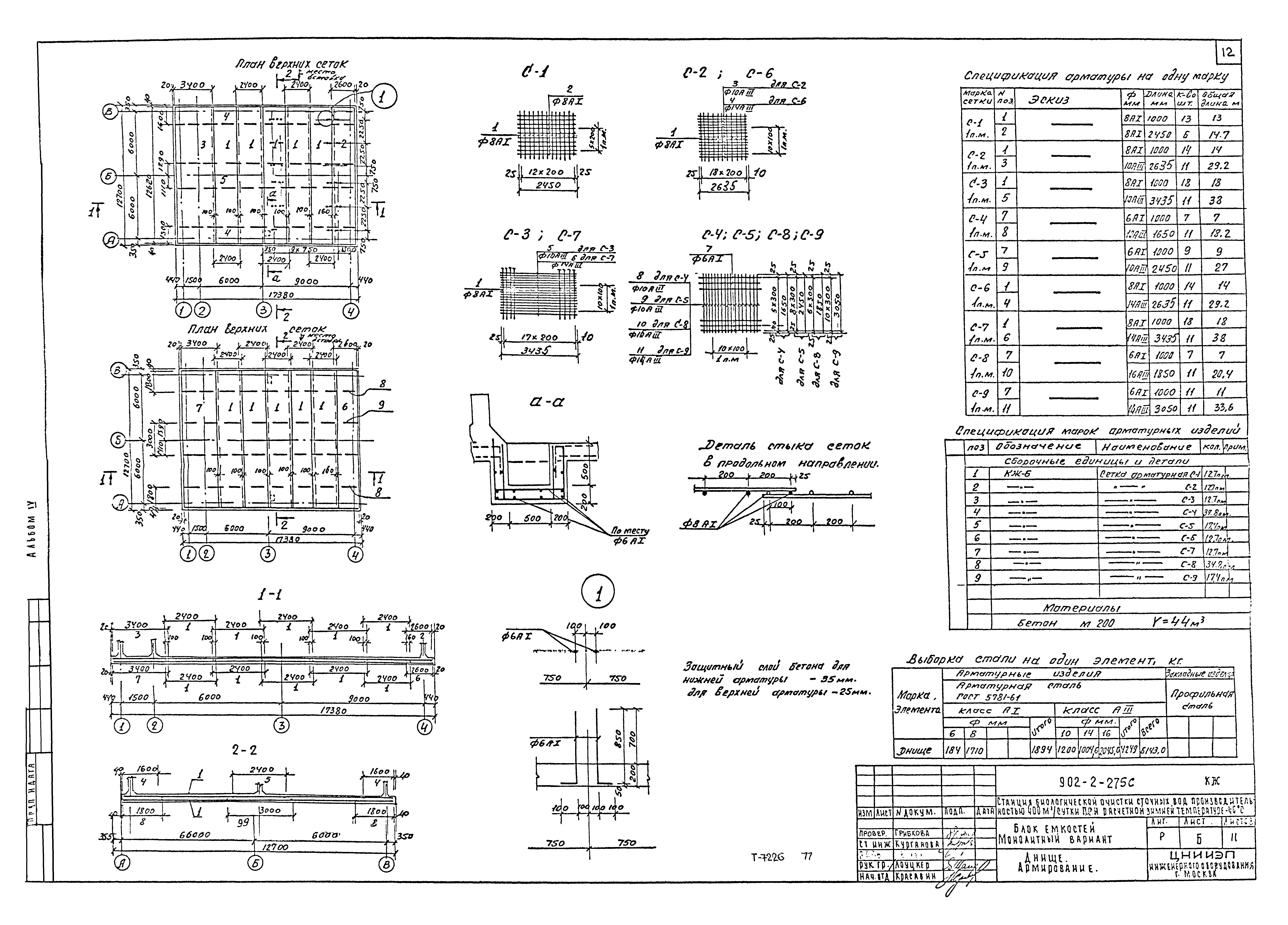
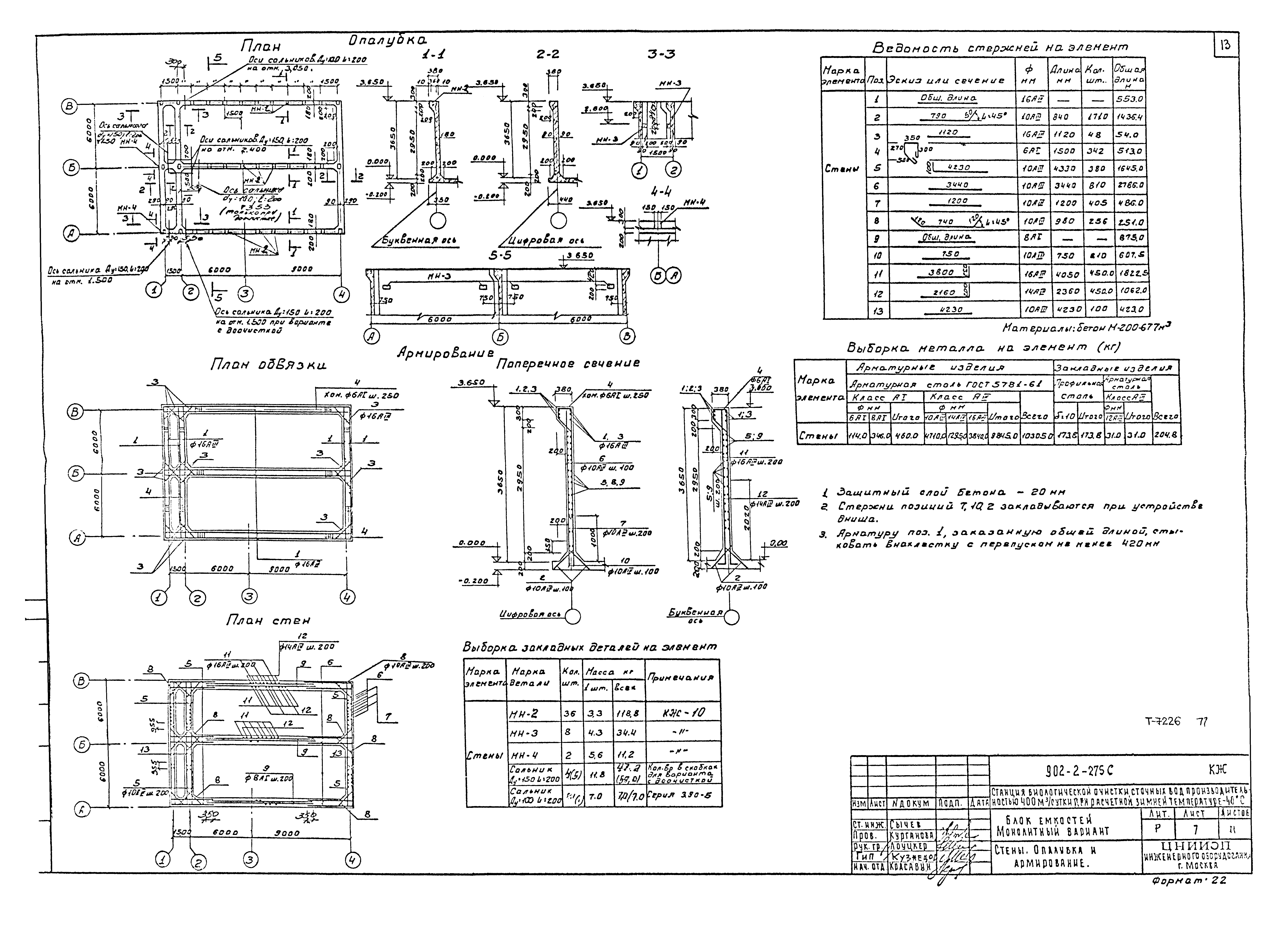
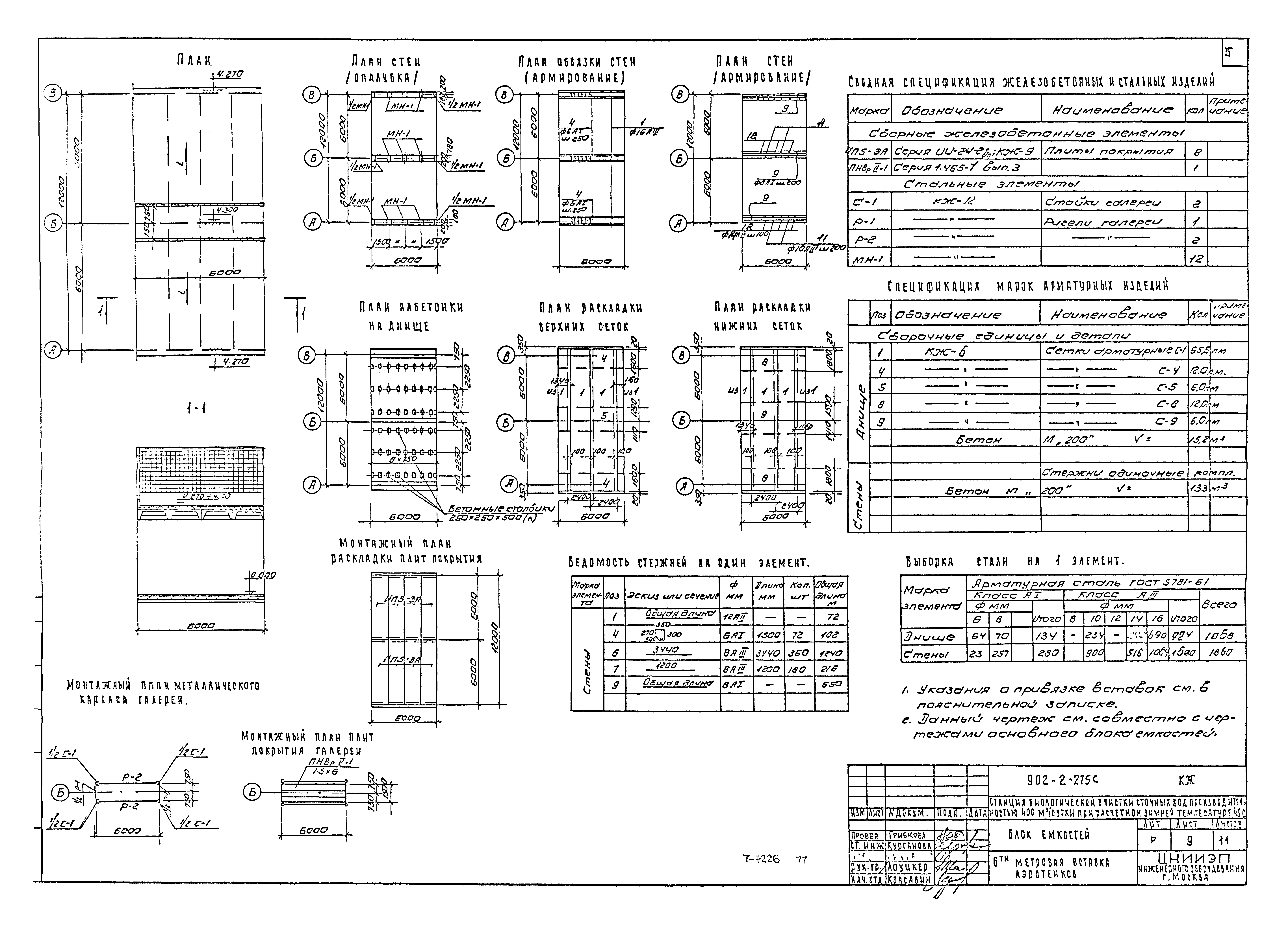
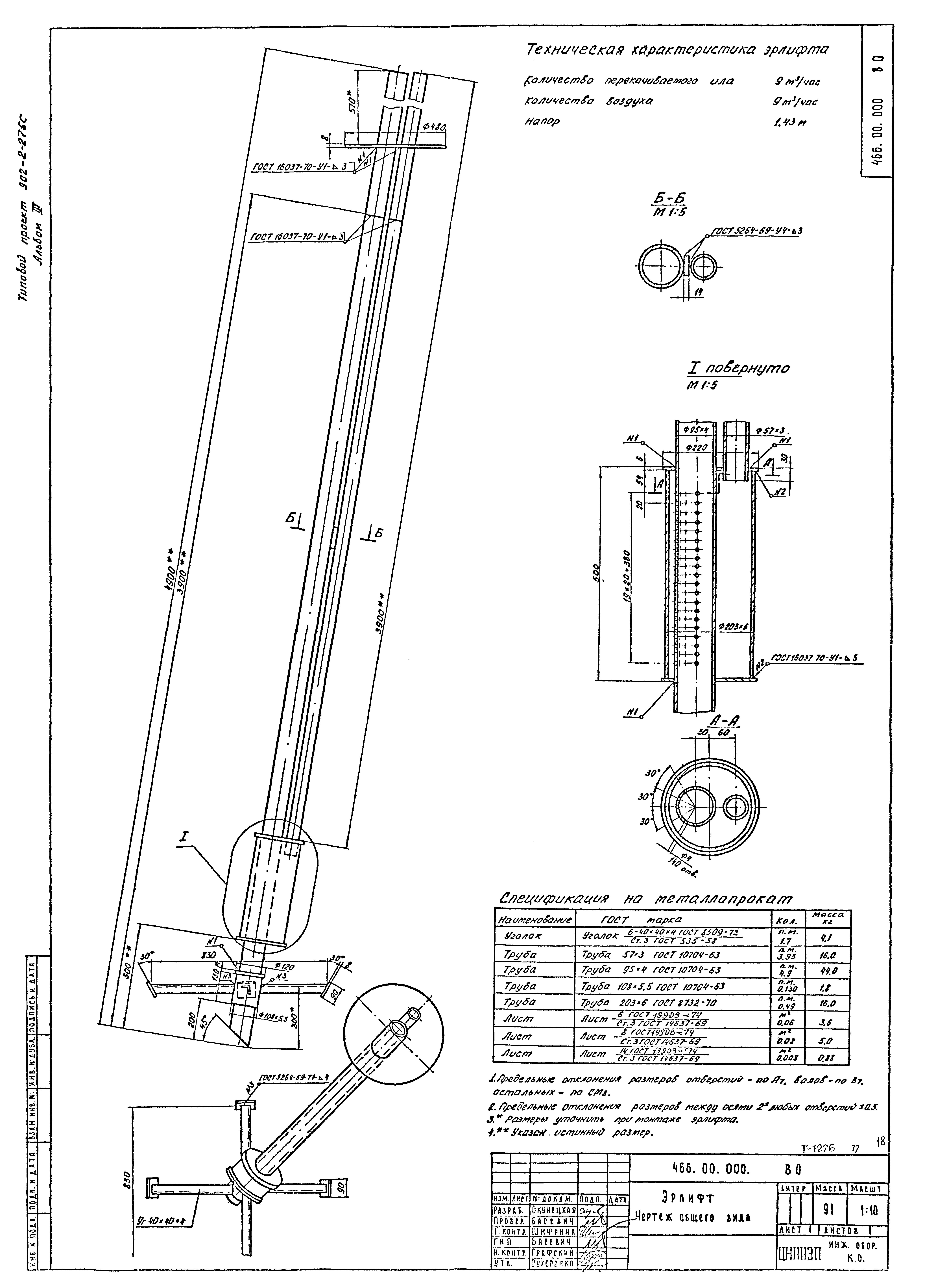
| Оглавление: | ТП 902-2-275С-КГ Технологические чертежи ТП 902-2-275С-КГ-1 Заглавный лист ТП 902-2-275С-КГ-2 Вариант без доочистки. Монтажный чертеж. План ТП 902-2-275С-КГ-4 Разрез 1-1. Деталь зубчатого водослива. Деталь аэратора. Экспликация сооружений. Экспликация оборудования ТП 902-2-275С-КГ-3 Разрезы 2-2;3-3. Деталь входа эрлифта в илопровод. Ведомость материалов ТП 902-2-275С-КГ-4 Вариант доочистки. Монтажный чертеж ТП 902-2-275С-КГ-5 Элемент плана. Разрезы 1-1;2-2 ТП 902-2-275С-КЖ Строительные чертежи ТП 902-2-275С-КЖ-1 Заглавный лист ТП 902-2-275С-КЖ-2 Общие виды. План. Разрезы ТП 902-2-275С-КЖ-3 Общие виды. Узлы ТП 902-2-275С-КЖ-4 Монтажные схемы. Планы. Разрезы ТП 902-2-275С-КЖ-5 Монтажные схемы. Узлы ТП 902-2-275С-КЖ-6 Днище. Армирование ТП 902-2-275С-КЖ-7 Стены. Опалубка и армирование ТП 902-2-275С-КЖ-8 Плита КП5-2А. Опалубка ТП 902-2-275С-КЖ-10 6ти метровая вставка аэротенков ТП 902-2-275С-КЖ-11 Деревянные щиты. Струенаправляющие щиты ТП 902-2-275С-КЖ-9 Металлические марки. Чертежи нестандартизированного оборудования ТП 902-2-275С Чертежи нестандартизированного оборудования ТП 902-2-275С-466.00.000.ВО Эрлифт. Чертеж общего вида ТП 902-2-275С-АК Электротехнические чертежи ТП 902-2-275С-АК-1 Электрическое освещение. План |
| Разработан: | ЦНИИЭП инженерного оборудования |
| Утверждён: | 27.05.1975 Госгражданстрой (Gosgrazhdanstroy 116) |


















