Скачать Типовой проект 902-2-385.85 Альбом IX. Конструкторская документация флотатора производительностью 20 куб. м в часДата актуализации: 01.01.2021
|
| Обозначение: | Типовой проект 902-2-385.85 |
| Обозначение англ: | 902-2-385.85 |
| Статус: | действует |
| Название рус.: | Альбом IX. Конструкторская документация флотатора производительностью 20 куб. м в час |
| Дата добавления в базу: | 01.09.2013 |
| Дата актуализации: | 01.01.2021 |
| Дата введения: | 01.06.1985 |
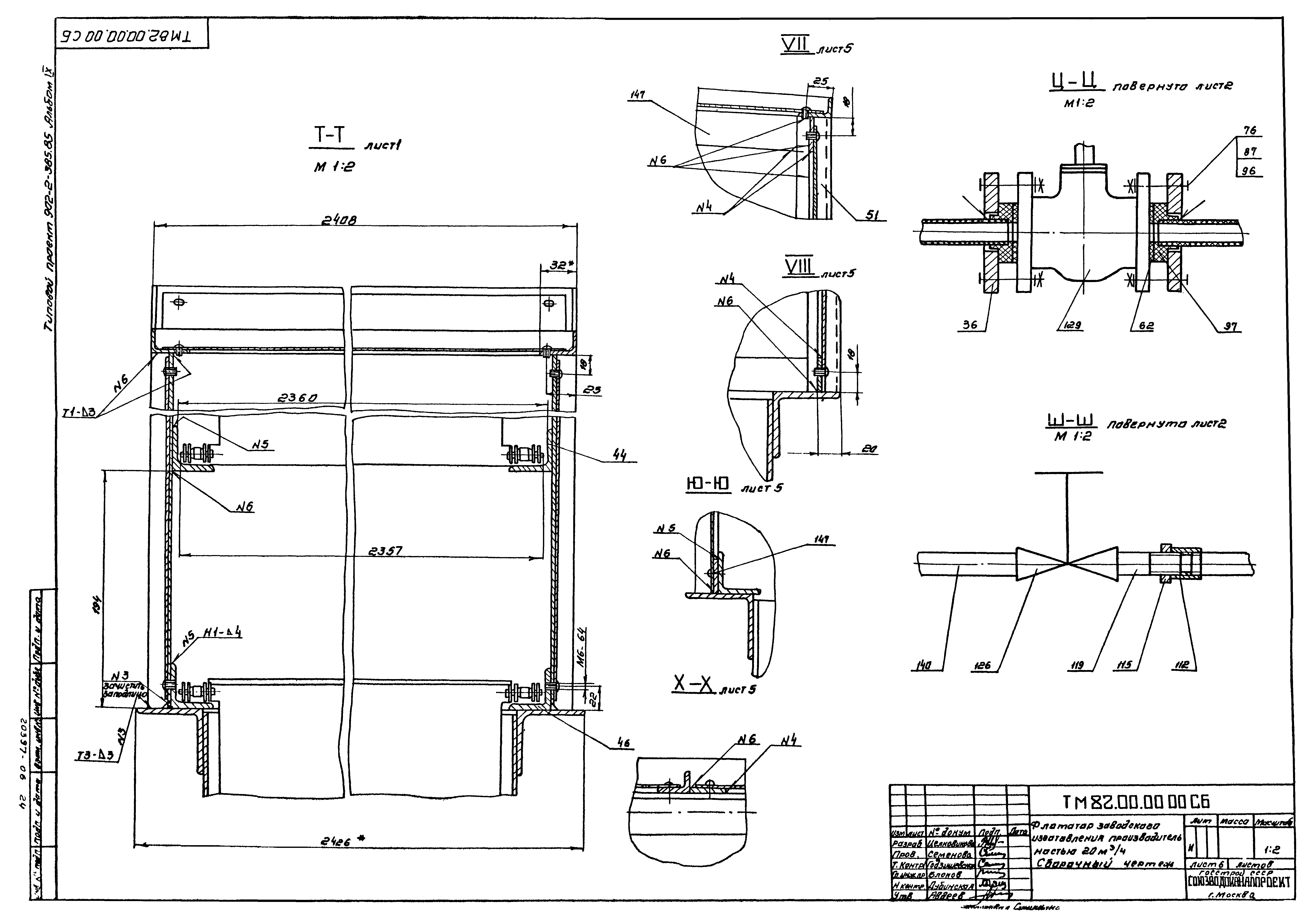
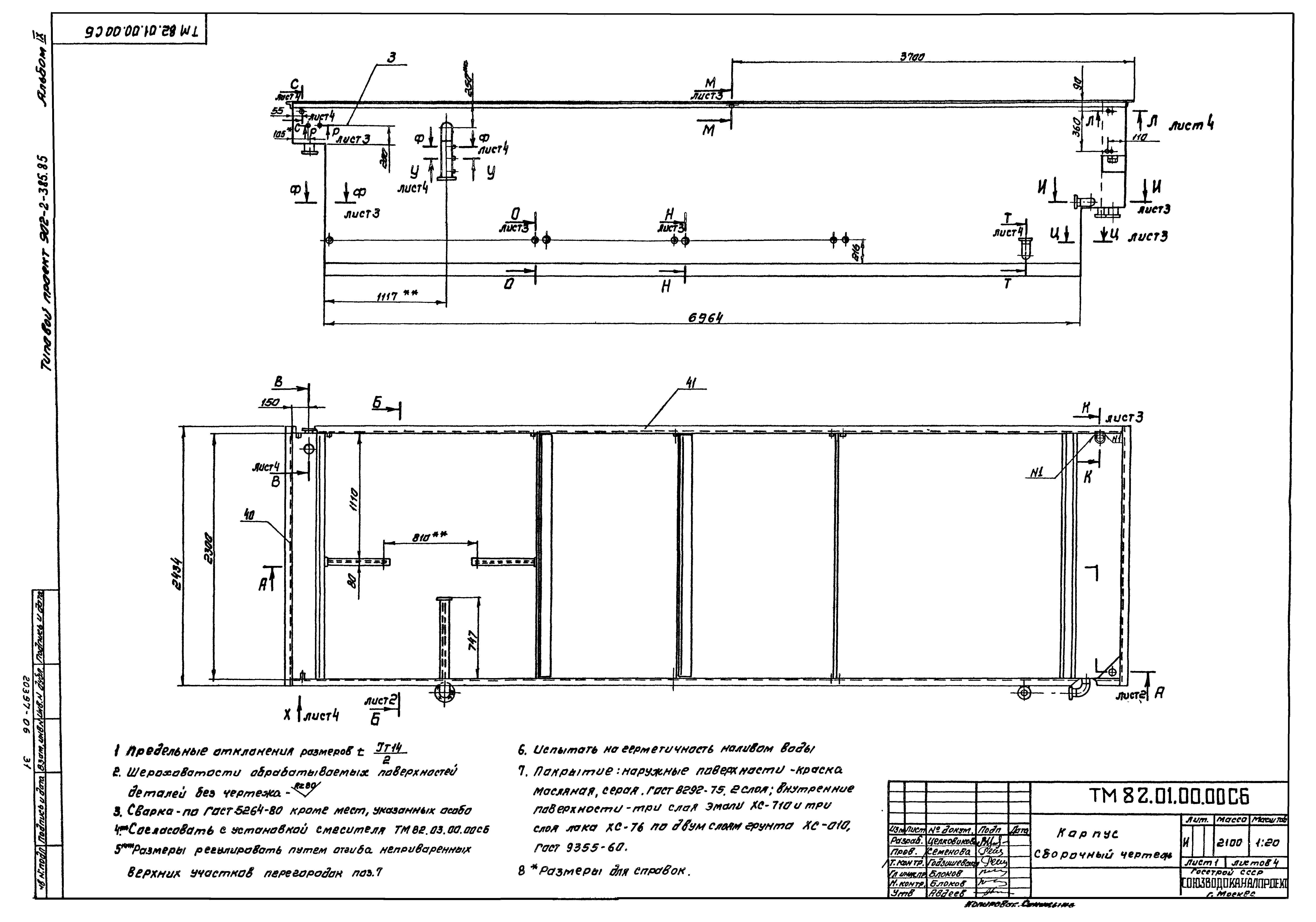
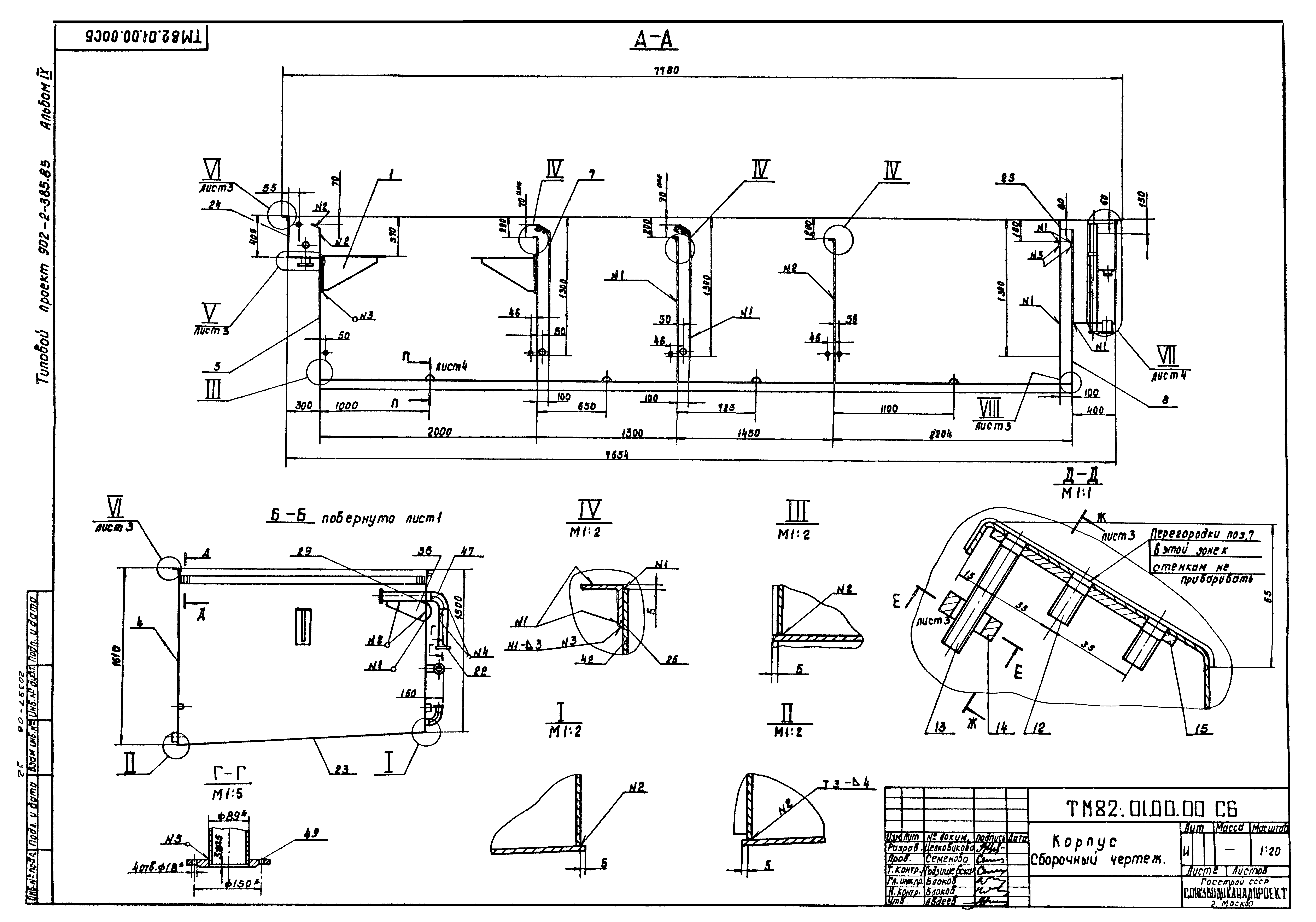
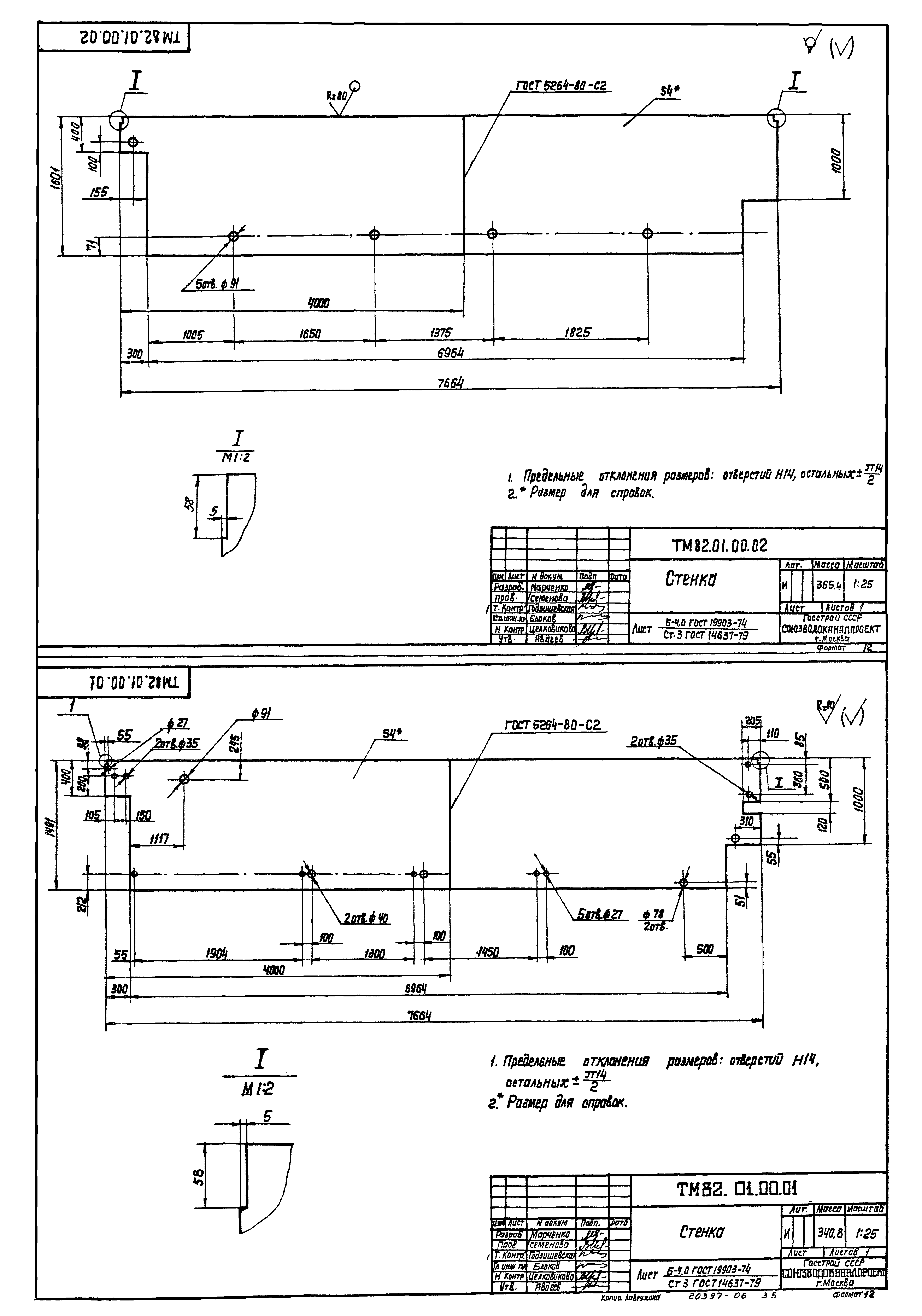
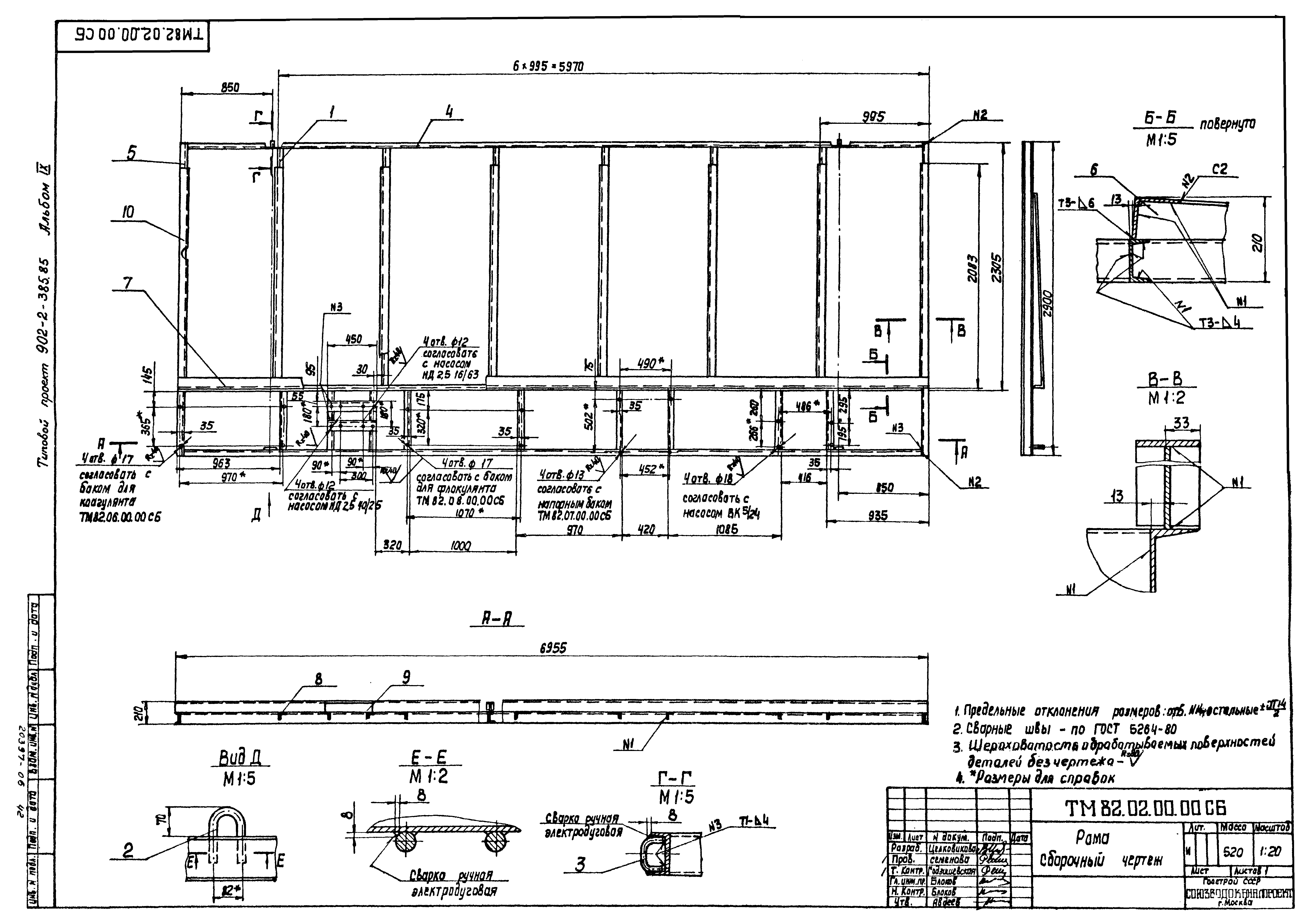
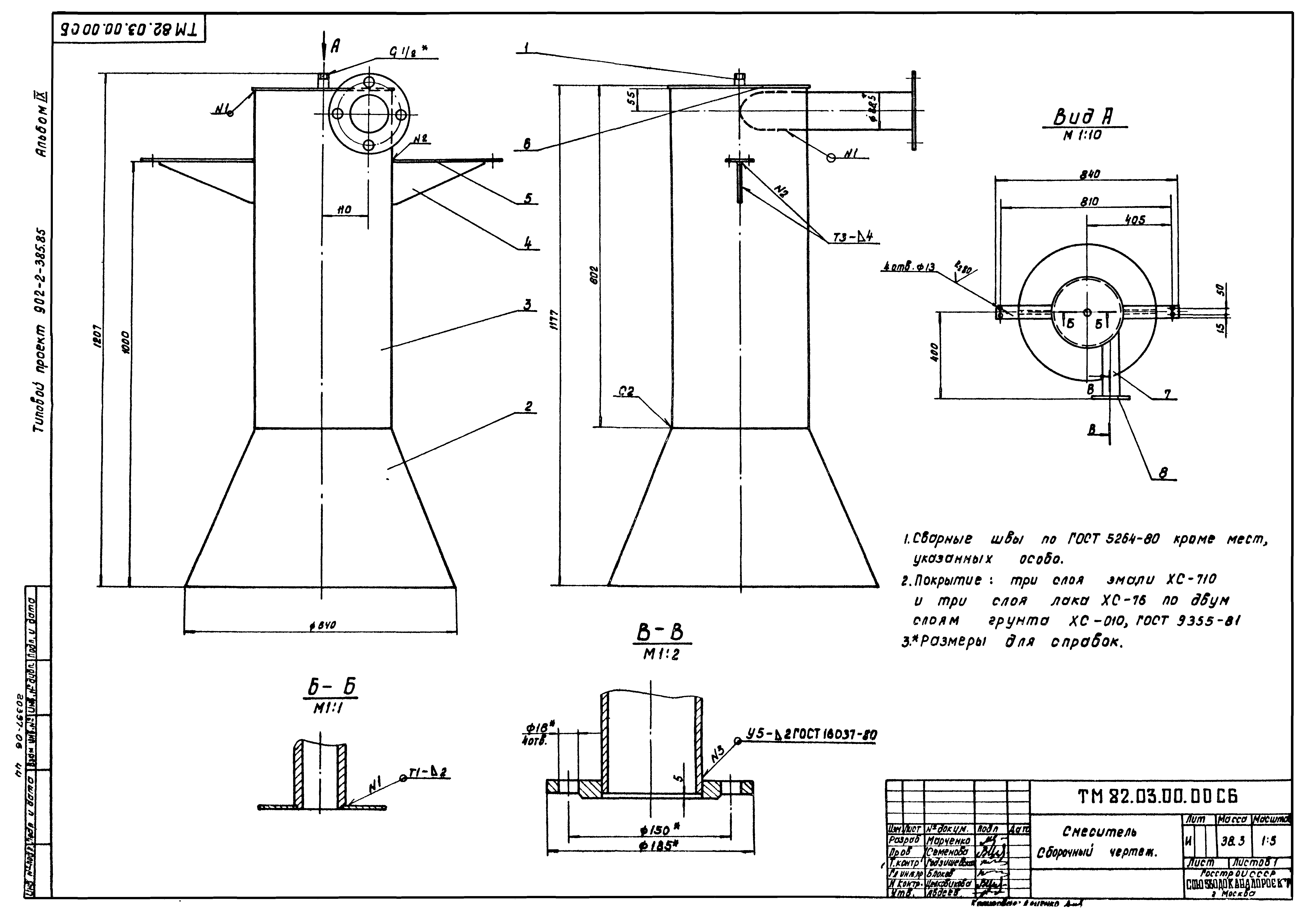
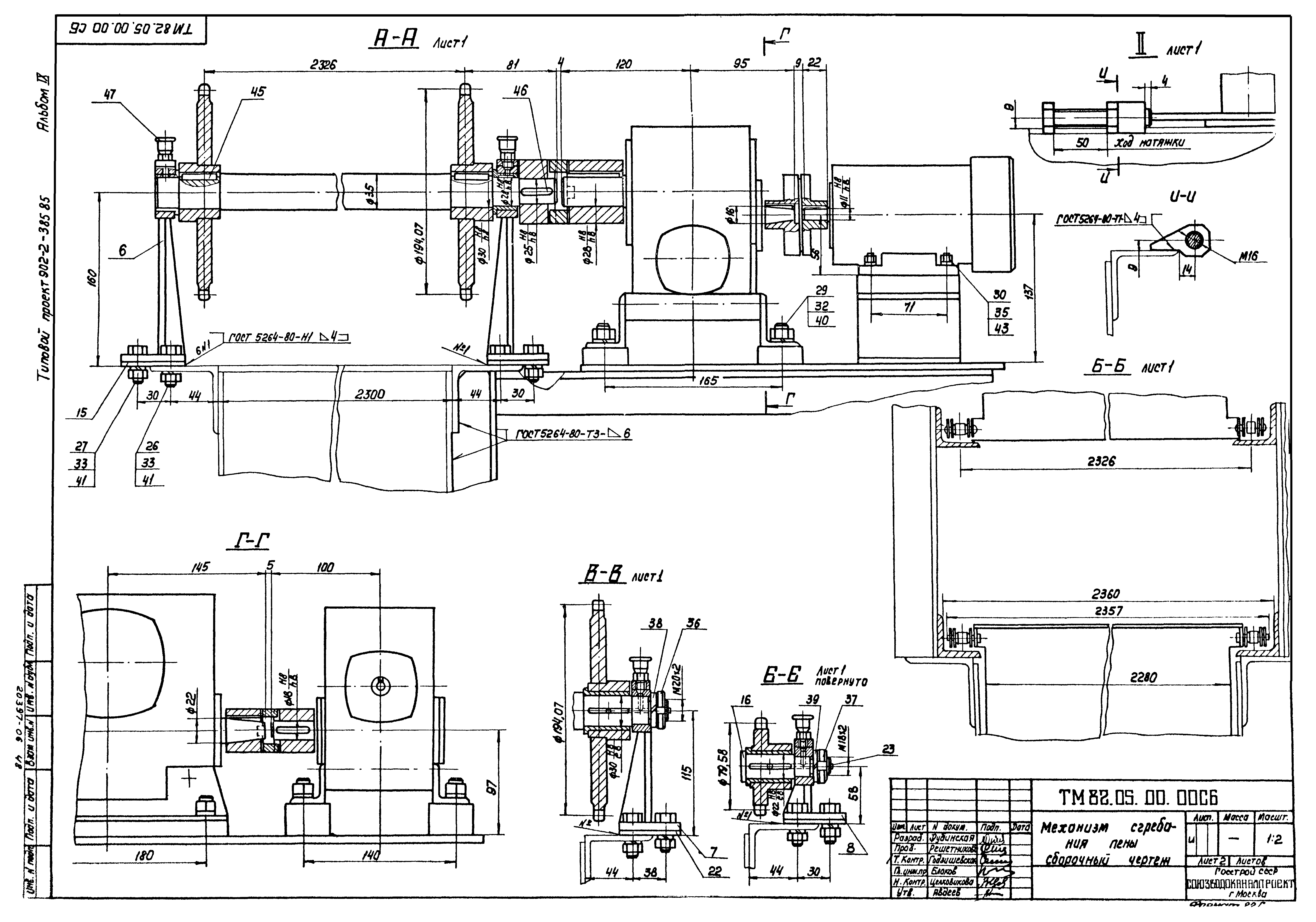
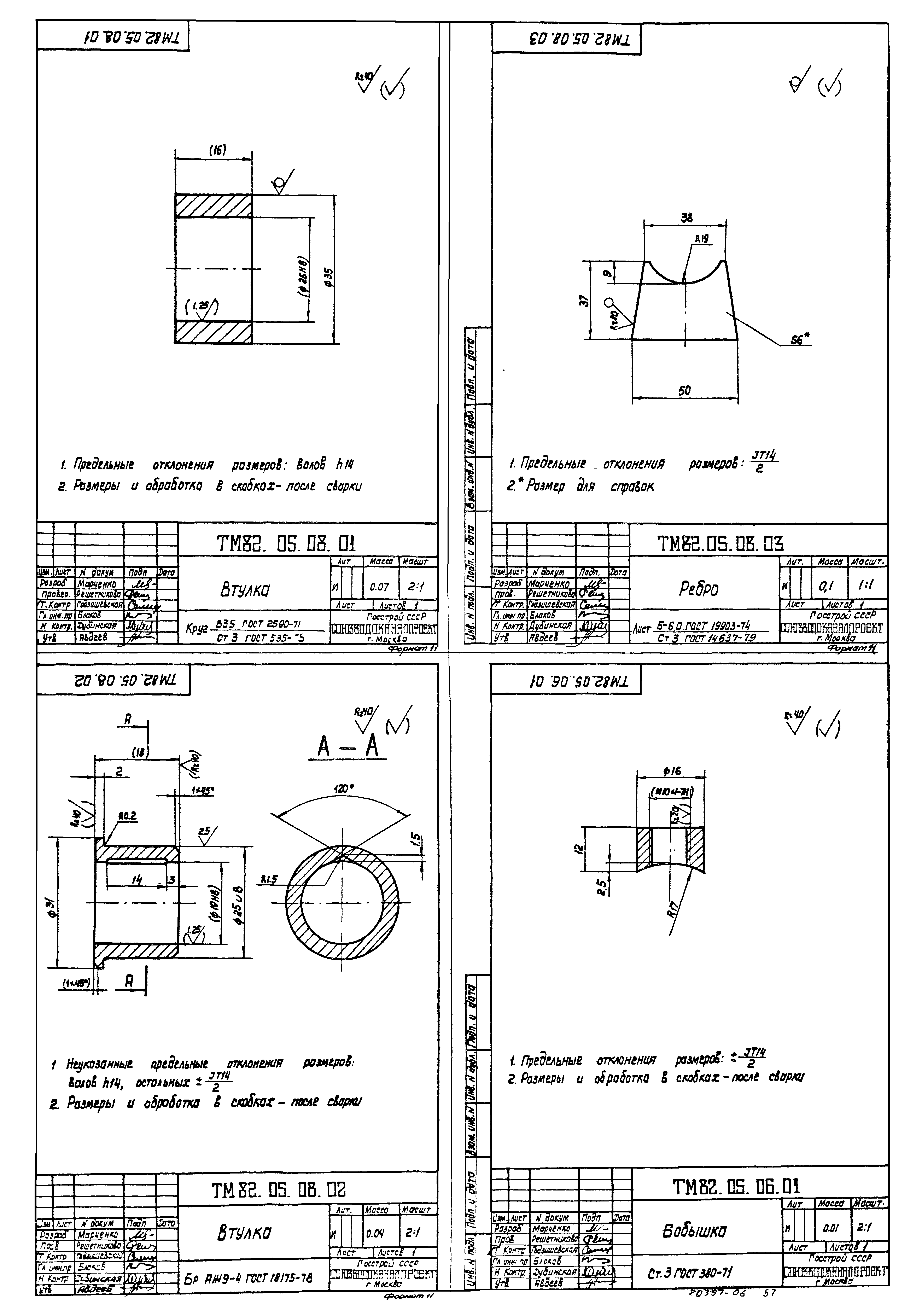
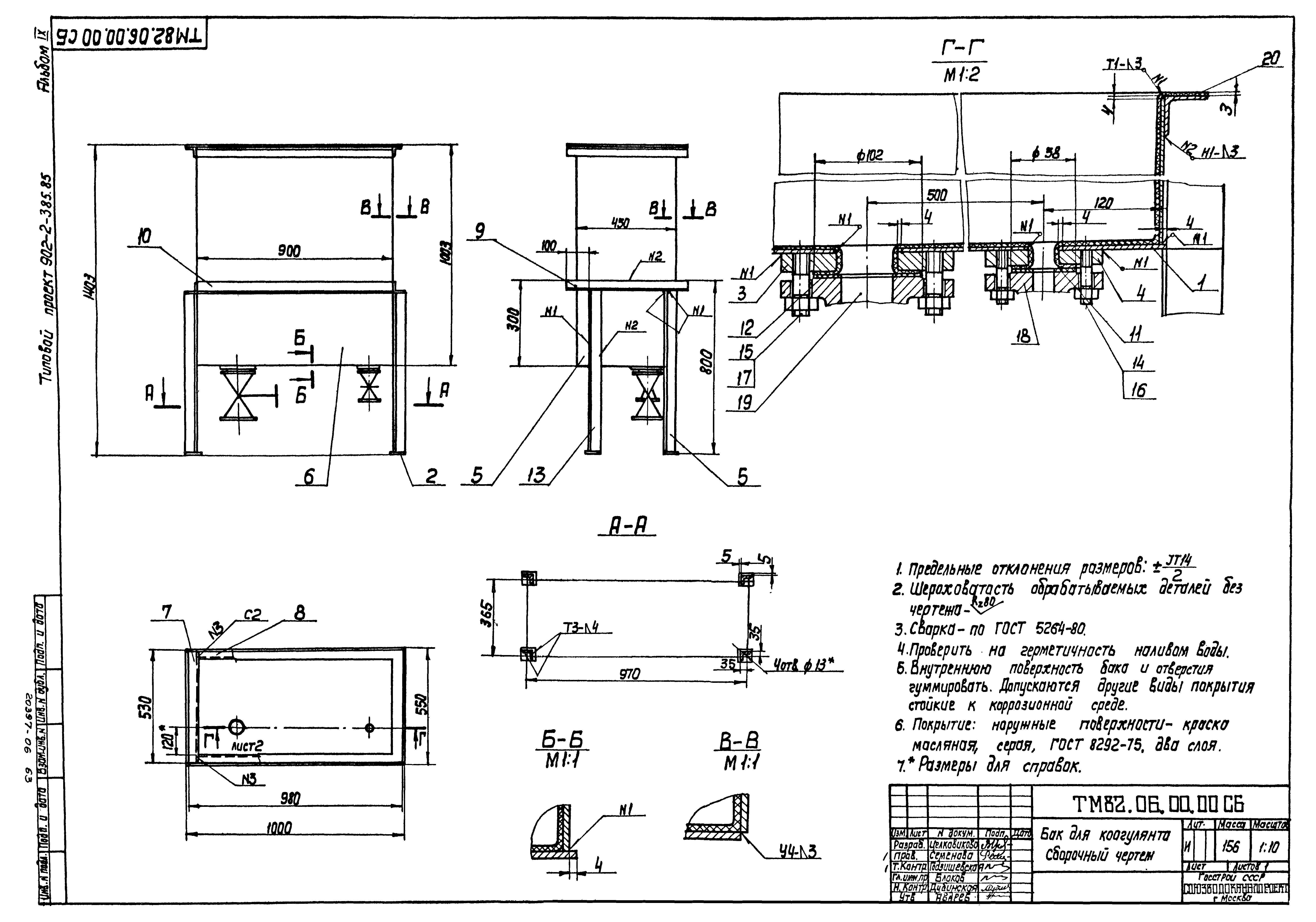
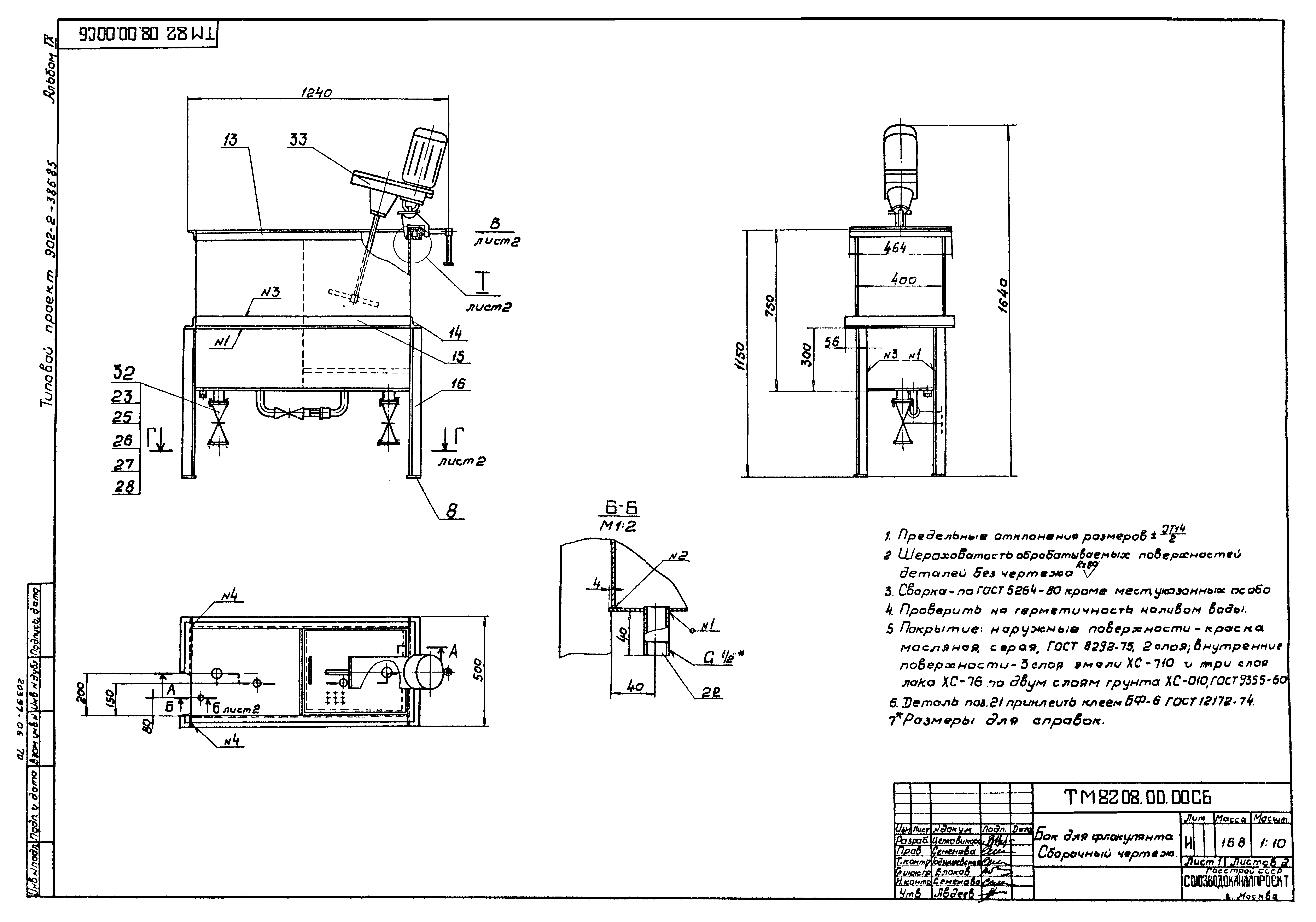
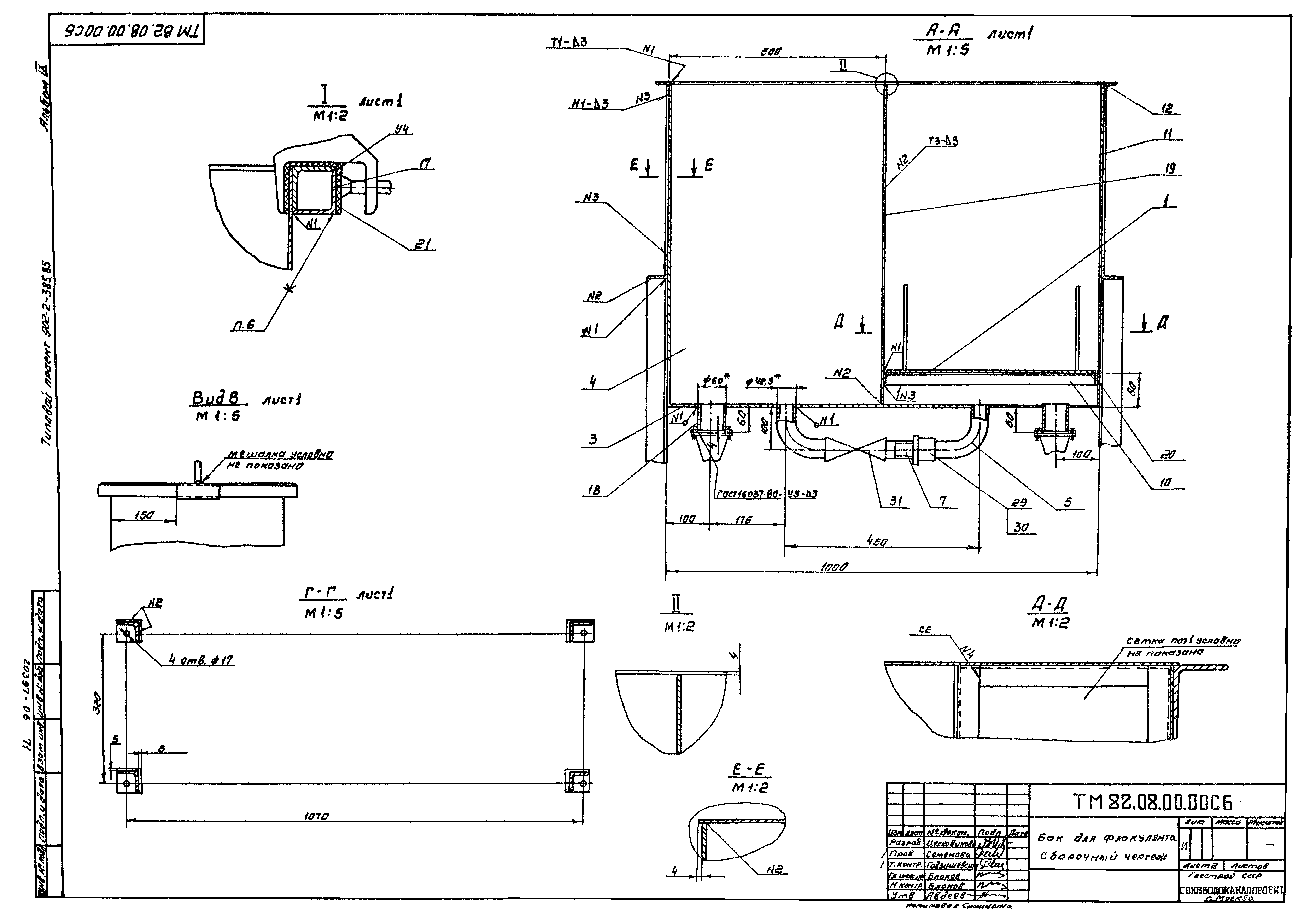
| Оглавление: | ТП 902-2-385.85 Содержание альбома ТП 902-2-385.85 ТМ81.00.00.00 Флотатор заводского изготовления производительностью 20 м³/ч ТП 902-2-385.85 ТМ81.01.00.00 Корпус ТП 902-2-385.85 ТМ81.01.01.00 Кронштейн ТП 902-2-385.85 ТМ81.02.00.00 Рама ТП 902-2-385.85 ТМ81.03.00.00 Смеситель ТП 902-2-385.85 ТМ81.04.00.00 Змеевик ТП 902-2-385.85 ТМ81.05.00.00 Механизм сгребания пены ТП 902-2-385.85 ТМ81.05.01.00 Звездочка Z=32 t=19.05 ТП 902-2-385.85 ТМ81.05.02.00 Звездочка Z=32 t=19.05 ТП 902-2-385.85 ТМ81.05.03.00 Звездочка Z=13 t=19.05 ТП 902-2-385.85 ТМ81.05.04.00 Скребок ТП 902-2-385.85 ТМ81.05.05.00 Кронштейн ТП 902-2-385.85 ТМ81.05.06.00 Кронштейн ТП 902-2-385.85 ТМ81.05.07.00 Кронштейн ТП 902-2-385.85 ТМ81.05.08.00 Кронштейн ТП 902-2-385.85 ТМ81.05.09.00 Муфта ТП 902-2-385.85 ТМ81.05.10.00 Муфта ТП 902-2-385.85 ТМ81.06.00.00 Бак для коагулянта ТП 902-2-385.85 ТМ81.07.00.00 Бак напорный емк. 0.4 м³ ТП 902-2-385.85 ТМ81.07.01.00 Цилиндр ТП 902-2-385.85 ТМ81.07.02.00 Вставка ТП 902-2-385.85 ТМ81.08.00.00 Бак для флокулянта ТП 902-2-385.85 ТМ81.08.01.00 Сетка ТП 902-2-385.85 ТМ81.09.00.00 Эжектор ТП 902-2-385.85 ТМ81.10.00.00 Коллектор ТП 902-2-385.85 ТМ81.11.00.00 Щит ТП 902-2-385.85 ТМ81.12.00.00 Щит ТП 902-2-385.85 ТМ81.13.00.00 Щит ТП 902-2-385.85 ТМ81.14.00.00 Щит ТП 902-2-385.85 ТМ81.15.00.00 Щит ТП 902-2-385.85 ТМ81.16.00.00 Щит ТП 902-2-385.85 ТМ81.17.00.00 Щит ТП 902-2-385.85 ТМ81.18.00.00 Боковина ТП 902-2-385.85 ТМ81.19.00.00 Перекрытие ТП 902-2-385.85 ТМ81.20.00.00 Труба ТП 902-2-385.85 ТМ81.21.00.00 Труба ТП 902-2-385.85 ТМ81.00.00.00 СБ Флотатор заводского изготовления производительностью 10 м³/ч. Сборочный чертеж ТП 902-2-385.85 ТМ81.00.00.01 Гайка нажимная ТП 902-2-385.85 ТМ81.00.00.02 Диафрагма ТП 902-2-385.85 ТМ81.00.00.03 Кронштейн ТП 902-2-385.85 ТМ81.00.00.04 Кронштейн ТП 902-2-385.85 ТМ81.00.00.05 Штуцер ТП 902-2-385.85 ТМ81.00.00.06 Переход ТП 902-2-385.85 ТМ81.00.00.07 Фланец ТП 902-2-385.85 ТМ81.00.00.08 Диафрагма ТП 902-2-385.85 ТМ81.00.00.09 Штуцер ТП 902-2-385.85 ТМ81.00.00.11 Сгон ТП 902-2-385.85 ТМ81.00.00.12 Сгон ТП 902-2-385.85 ТМ81.00.00.13 Линейка ТП 902-2-385.85 ТМ81.00.00.14 Щиток ТП 902-2-385.85 ТМ81.00.00.15 Направляющая ТП 902-2-385.85 ТМ81.00.00.18 Уплотнение ТП 902-2-385.85 ТМ81.00.00.21 Перемычка ТП 902-2-385.85 ТМ81.00.00.22 Стойка ТП 902-2-385.85 ТМ81.00.00.23 Стойка ТП 902-2-385.85 ТМ81.00.00.24 Стойка ТП 902-2-385.85 ТМ81.00.00.25 Стойка ТП 902-2-385.85 ТМ81.00.00.27 Прокладка ТП 902-2-385.85 ТМ81.00.00.28 Планка ТП 902-2-385.85 ТМ81.04.00.00 СБ Змеевик. Сборочный чертеж ТП 902-2-385.85 ТМ81.09.00.04 Сопло ТП 902-2-385.85 ТМ81.01.00.00 СБ Корпус. Сборочный чертеж ТП 902-2-385.85 ТМ81.01.00.01 Стенка ТП 902-2-385.85 ТМ81.01.00.02 Стенка ТП 902-2-385.85 ТМ81.01.00.03 Стенка ТП 902-2-385.85 ТМ81.01.00.04 Дно ТП 902-2-385.85 ТМ81.01.01.00 СБ Кронштейн. Сборочный чертеж ТП 902-2-385.85 ТМ81.01.01.01 Ребро ТП 902-2-385.85 ТМ81.01.00.05 Перегородка ТП 902-2-385.85 ТМ81.01.00.06 Стенка ТП 902-2-385.85 ТМ81.01.00.07 Дно ТП 902-2-385.85 ТМ81.01.00.08 Дно ТП 902-2-385.85 ТМ81.01.00.09 Стенка ТП 902-2-385.85 ТМ81.01.00.11 Шпилька ТП 902-2-385.85 ТМ81.01.00.12 Ушко ТП 902-2-385.85 ТМ81.01.00.13 Планка ТП 902-2-385.85 ТМ81.01.00.14 Бобышка ТП 902-2-385.85 ТМ81.01.00.16 Бобышка ТП 902-2-385.85 ТМ81.01.00.17 Бобышка ТП 902-2-385.85 ТМ81.05.04.02 Стойка ТП 902-2-385.85 ТМ81.01.00.18 Сгон ТП 902-2-385.85 ТМ81.01.00.19 Хомут ТП 902-2-385.85 ТМ81.01.00.21 Патрубок ТП 902-2-385.85 ТМ81.01.00.18 Сгон ТП 902-2-385.85 ТМ81.01.00.38 Косынка ТП 902-2-385.85 ТМ81.01.00.39 Бобышка ТП 902-2-385.85 ТМ81.01.00.43 Перегородка ТП 902-2-385.85 ТМ81.01.00.44 Штуцер ТП 902-2-385.85 ТМ81.01.00.45 Отвод ТП 902-2-385.85 ТМ81.02.00.00 СБ Рама. Сборочный чертеж ТП 902-2-385.85 ТМ81.02.00.01 Перекладина ТП 902-2-385.85 ТМ81.02.00.02 Петля ТП 902-2-385.85 ТМ81.02.00.03 Петля ТП 902-2-385.85 ТМ81.02.00.06 Ребро ТП 902-2-385.85 ТМ81.03.00.00 СБ Смеситель. Сборочный чертеж ТП 902-2-385.85 ТМ81.03.00.01 Патрубок ТП 902-2-385.85 ТМ81.03.00.02 Конус ТП 902-2-385.85 ТМ81.03.00.03 Цилиндр ТП 902-2-385.85 ТМ81.03.00.04 Косынка ТП 902-2-385.85 ТМ81.03.00.05 Лапа ТП 902-2-385.85 ТМ81.03.00.06 Дно ТП 902-2-385.85 ТМ81.03.00.07 Патрубок ТП 902-2-385.85 ТМ81.05.00.00 СБ Механизм сгребания пены. Сборочный чертеж ТП 902-2-385.85 ТМ81.05.00.01 Вал ТП 902-2-385.85 ТМ81.05.00.02 Вал ТП 902-2-385.85 ТМ81.05.00.03 Платик ТП 902-2-385.85 ТМ81.05.00.04 Валик ТП 902-2-385.85 ТМ81.05.00.05 Упор ТП 902-2-385.85 ТМ81.05.04.01 Щека ТП 902-2-385.85 ТМ81.05.00.07 Лист ТП 902-2-385.85 ТМ81.05.00.08 Пластина ТП 902-2-385.85 ТМ81.05.04.00 СБ Скребок. Сборочный чертеж ТП 902-2-385.85 ТМ81.05.02.00 СБ Звездочка Z=32 t=19.05. Сборочный чертеж ТП 902-2-385.85 ТМ81.05.07.00 СБ Кронштейн. Сборочный чертеж ТП 902-2-385.85 ТМ81.05.00.11 Платик ТП 902-2-385.85 ТМ81.05.02.01 Ступица ТП 902-2-385.85 ТМ81.05.02.02 Втулка ТП 902-2-385.85 ТМ81.05.03.01 Втулка ТП 902-2-385.85 ТМ81.05.05.00 СБ Кронштейн. Сборочный чертеж ТП 902-2-385.85 ТМ81.05.05.01 Лист ТП 902-2-385.85 ТМ81.05.05.02 Уголок ТП 902-2-385.85 ТМ81.05.05.03 Уголок ТП 902-2-385.85 ТМ81.05.05.04 Уголок ТП 902-2-385.85 ТМ81.05.06.00 СБ Кронштейн. Сборочный чертеж ТП 902-2-385.85 ТМ81.05.08.00 СБ Кронштейн. Сборочный чертеж ТП 902-2-385.85 ТМ81.05.06.01 Бобышка ТП 902-2-385.85 ТМ81.05.08.01 Втулка ТП 902-2-385.85 ТМ81.05.08.02 Втулка ТП 902-2-385.85 ТМ81.05.08.03 Ребро ТП 902-2-385.85 ТМ81.05.06.02 Втулка ТП 902-2-385.85 ТМ81.05.06.03 Втулка ТП 902-2-385.85 ТМ81.05.06.04 Ребро ТП 902-2-385.85 ТМ81.05.06.05 Ребро ТП 902-2-385.85 ТМ81.05.01.01 Ступица ТП 902-2-385.85 ТМ81.05.01.02 Диск ТП 902-2-385.85 ТМ81.05.06.06 Основание ТП 902-2-385.85 ТМ81.05.08.04 Ребро ТП 902-2-385.85 ТМ81.05.07.01 Втулка ТП 902-2-385.85 ТМ81.05.07.02 Ребро ТП 902-2-385.85 ТМ81.05.07.03 Ребро ТП 902-2-385.85 ТМ81.05.07.04 Основание ТП 902-2-385.85 ТМ81.05.09.00 СБ Муфта. Сборочный чертеж ТП 902-2-385.85 ТМ81.05.10.00 СБ Муфта. Сборочный чертеж ТП 902-2-385.85 ТМ81.05.10.01 Полумуфта ТП 902-2-385.85 ТМ81.05.10.02 Крестовина ТП 902-2-385.85 ТМ81.05.10.03 Полумуфта ТП 902-2-385.85 ТМ81.05.09.01 Полумуфта ТП 902-2-385.85 ТМ81.05.09.02 Крестовина ТП 902-2-385.85 ТМ81.05.09.03 Полумуфта ТП 902-2-385.85 ТМ81.06.00.00 СБ Бак для коагулянта. Сборочный чертеж ТП 902-2-385.85 ТМ81.06.00.01 Дно ТП 902-2-385.85 ТМ81.06.00.02 Платик ТП 902-2-385.85 ТМ81.06.00.03 Фланец ТП 902-2-385.85 ТМ81.06.00.04 Фланец ТП 902-2-385.85 ТМ81.07.00.00 СБ Бак напорный емк. 0.4 м³. Сборочный чертеж ТП 902-2-385.85 ТМ81.07.00.01 Днище ТП 902-2-385.85 ТМ81.07.00.03 Днище ТП 902-2-385.85 ТМ81.07.01.00 СБ Цилиндр. Сборочный чертеж ТП 902-2-385.85 ТМ81.07.01.01 Цилиндр ТП 902-2-385.85 ТМ81.07.00.02 Цилиндр ТП 902-2-385.85 ТМ81.07.00.04 Сопло ТП 902-2-385.85 ТМ81.07.00.05 Пятка ТП 902-2-385.85 ТМ81.07.00.06 Патрубок ТП 902-2-385.85 ТМ81.07.00.07 Патрубок ТП 902-2-385.85 ТМ81.07.00.08 Штуцер ТП 902-2-385.85 ТМ81.07.02.00 СБ Вставка. Сборочный чертеж ТП 902-2-385.85 ТМ81.07.02.01 Труба ТП 902-2-385.85 ТМ81.07.02.02 Фланец ТП 902-2-385.85 ТМ81.08.01.00 СБ Сетка. Сборочный чертеж ТП 902-2-385.85 ТМ81.08.00.00 СБ Бак для флокулянта. Сборочный чертеж ТП 902-2-385.85 ТМ81.08.00.01 Дно ТП 902-2-385.85 ТМ81.08.00.02 Боковина ТП 902-2-385.85 ТМ81.08.00.03 Колено ТП 902-2-385.85 ТМ81.08.00.04 Сгон ТП 902-2-385.85 ТМ81.08.00.05 Платик ТП 902-2-385.85 ТМ81.08.00.07 Перекладина ТП 902-2-385.85 ТМ81.08.00.21 Патрубок ТП 902-2-385.85 ТМ81.09.00.03 Конус выходной ТП 902-2-385.85 ТМ81.09.00.00 СБ Эжектор. Сборочный чертеж ТП 902-2-385.85 ТМ81.09.00.01 Конус входной ТП 902-2-385.85 ТМ81.09.00.02 Корпус ТП 902-2-385.85 ТМ81.10.00.00 СБ Коллектор. Сборочный чертеж ТП 902-2-385.85 ТМ81.10.00.05 Патрубок ТП 902-2-385.85 ТМ81.10.00.06 Патрубок ТП 902-2-385.85 ТМ81.10.00.01 Труба ТП 902-2-385.85 ТМ81.10.00.02 Труба ТП 902-2-385.85 ТМ81.10.00.03 Труба ТП 902-2-385.85 ТМ81.10.00.04 Труба ТП 902-2-385.85 ТМ81.11.00.00 СБ Щит. Сборочный чертеж ТП 902-2-385.85 ТМ81.12.00.00 СБ Щит. Сборочный чертеж ТП 902-2-385.85 ТМ81.11.00.01 Лист ТП 902-2-385.85 ТМ81.11.00.02 Ручка ТП 902-2-385.85 ТМ81.16.00.00 СБ Щит. Сборочный чертеж ТП 902-2-385.85 ТМ81.16.00.01 Накладка ТП 902-2-385.85 ТМ81.13.00.00 СБ Щит. Сборочный чертеж ТП 902-2-385.85 ТМ81.14.00.00 СБ Щит. Сборочный чертеж ТП 902-2-385.85 ТМ81.15.00.00 СБ Щит. Сборочный чертеж ТП 902-2-385.85 ТМ81.17.00.00 СБ Щит. Сборочный чертеж ТП 902-2-385.85 ТМ81.18.00.00 СБ Боковина. Сборочный чертеж ТП 902-2-385.85 ТМ81.19.00.00 СБ Перекрытие. Сборочный чертеж ТП 902-2-385.85 ТМ81.05.00.06 Ось ТП 902-2-385.85 ТМ81.05.00.09 Болт ТП 902-2-385.85 ТМ81.20.00.00 СБ Труба. Сборочный чертеж ТП 902-2-385.85 ТМ81.21.00.00 СБ Труба. Сборочный чертеж ТП 902-2-385.85 ТМ81.00.00.00 ТУ Технические условия ТП 902-2-385.85 ТМ81.00.00.00 ВП Ведомость покупных изделий |
| Разработан: | Союзводоканалпроект |
| Утверждён: | 28.12.1984 Госстрой СССР (Государственный комитет Совета Министров СССР по делам строительства) (USSR Gosstroy 40) |
| Издан: | ЦИТП Госстроя СССР (CITP, Gosstroy (USSR) 1985 г. ) |






















































































