Скачать Типовой проект 902-2-402.86 Альбом II. Технология производства. Внутренние водопровод и канализация (из ТП 902-2-401.86)Дата актуализации: 01.01.2021
|
| Обозначение: | Типовой проект 902-2-402.86 |
| Обозначение англ: | 902-2-402.86 |
| Статус: | заменен |
| Название рус.: | Альбом II. Технология производства. Внутренние водопровод и канализация (из ТП 902-2-401.86) |
| Дата добавления в базу: | 01.09.2013 |
| Дата актуализации: | 01.01.2021 |
| Дата введения: | 27.03.1985 |
| Дата окончания срока действия: | 01.10.1987 |
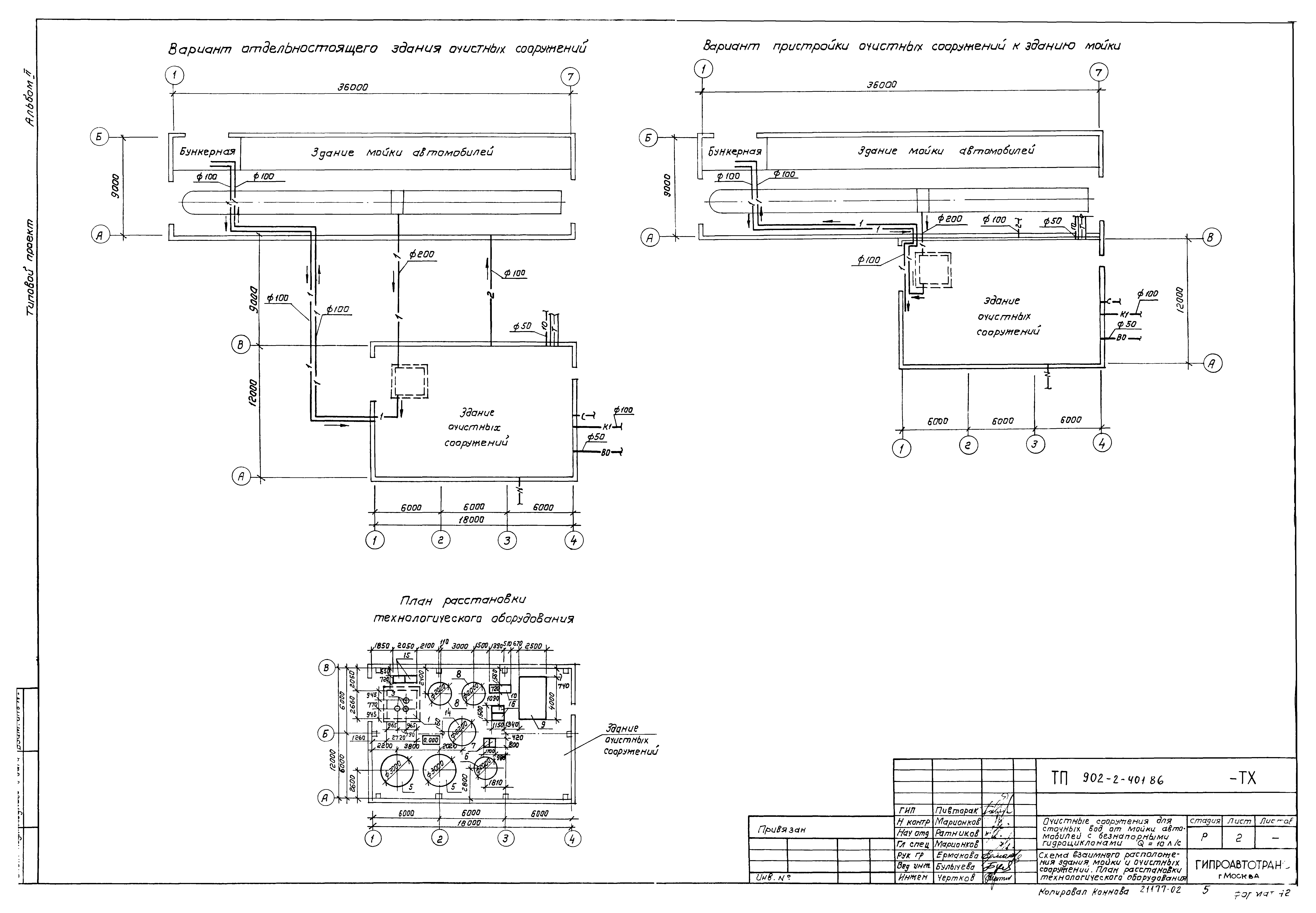
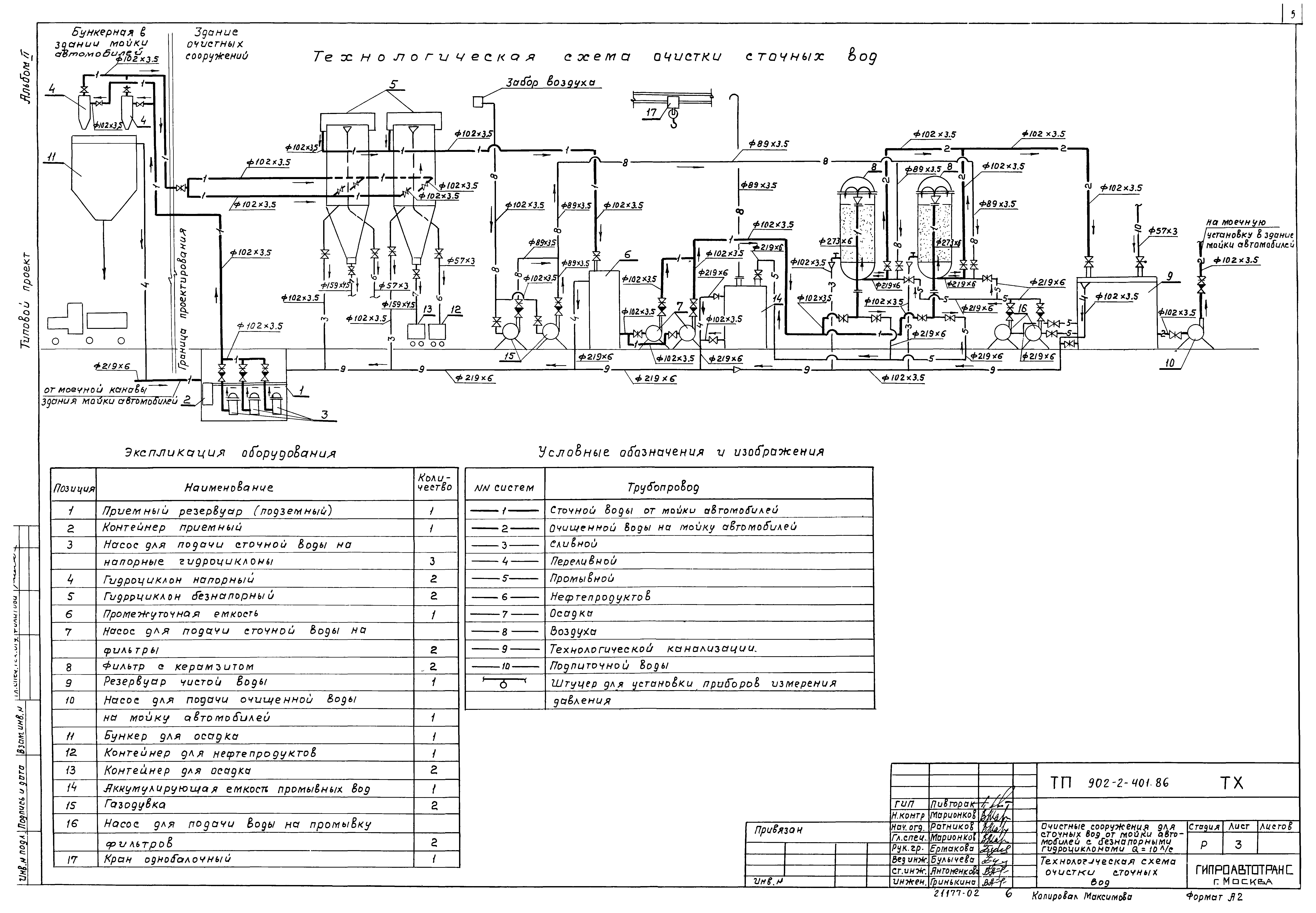
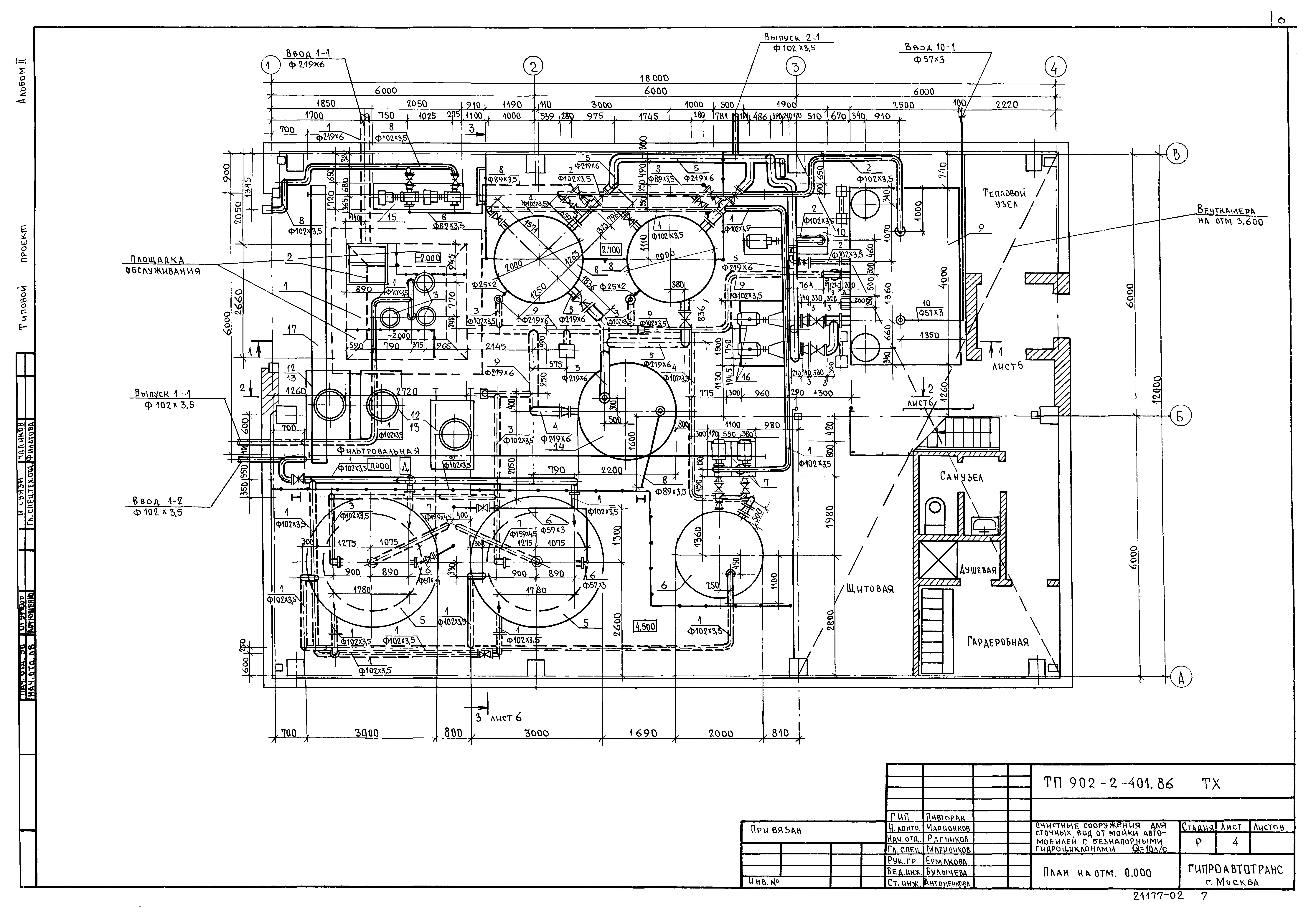
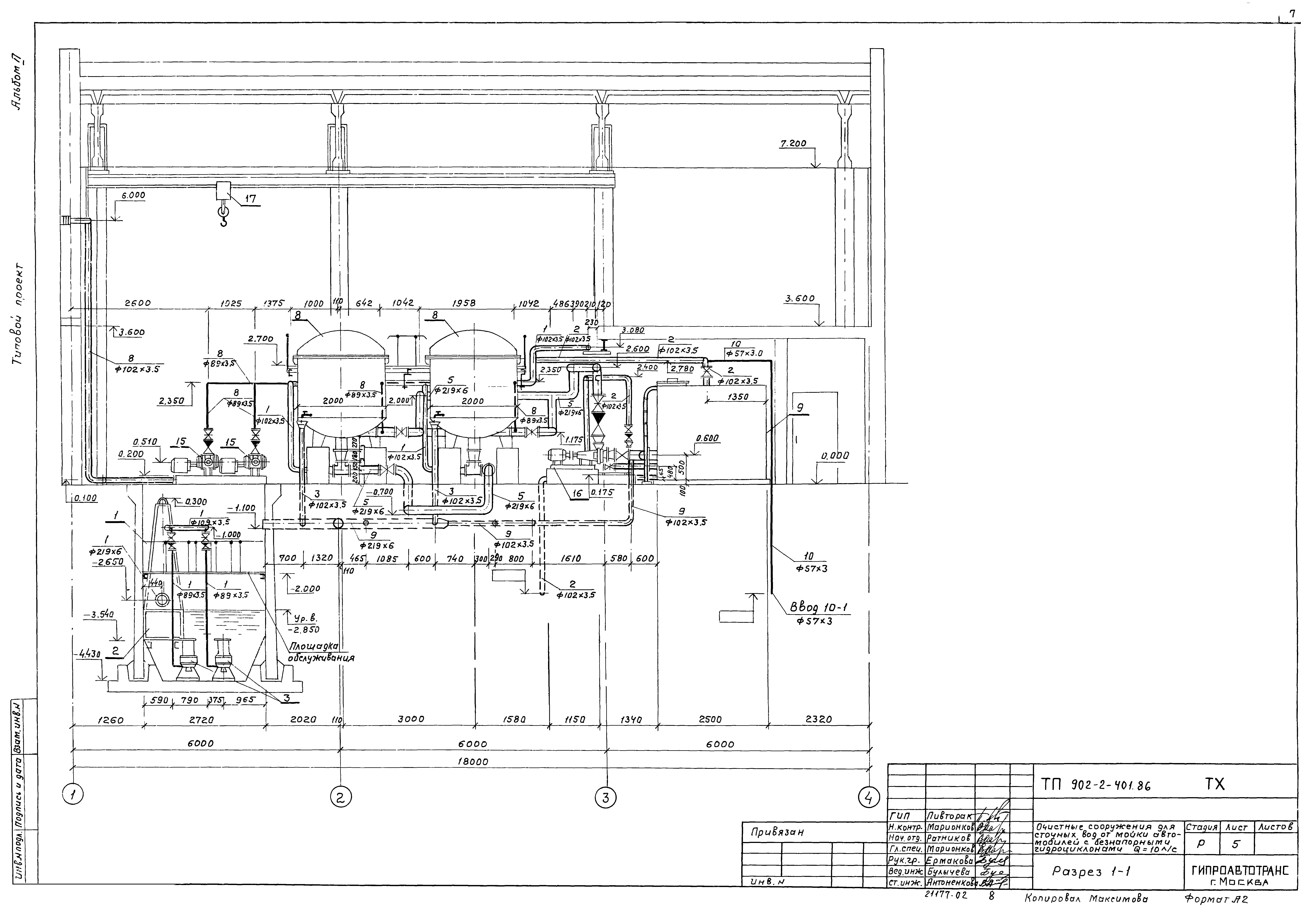
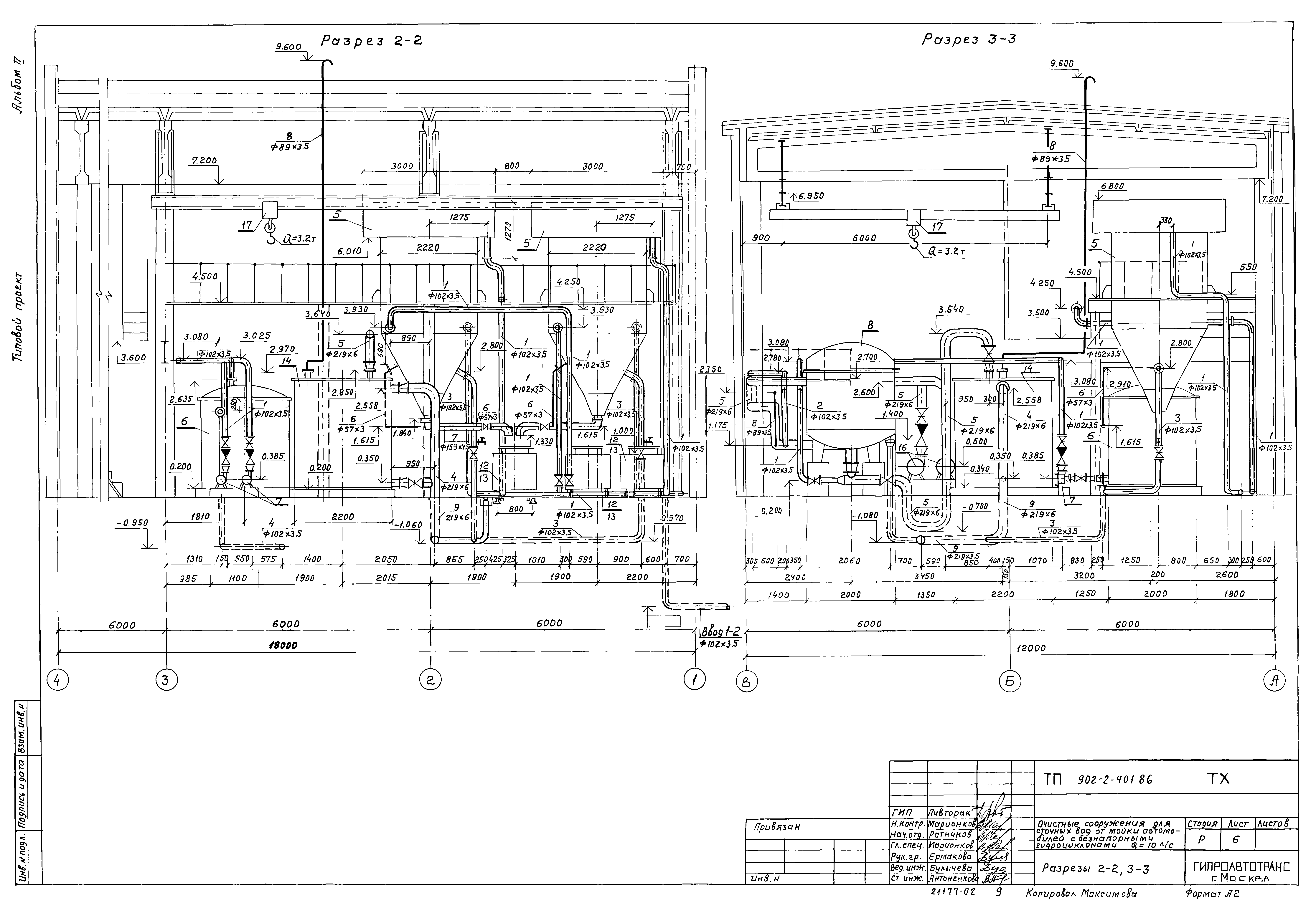
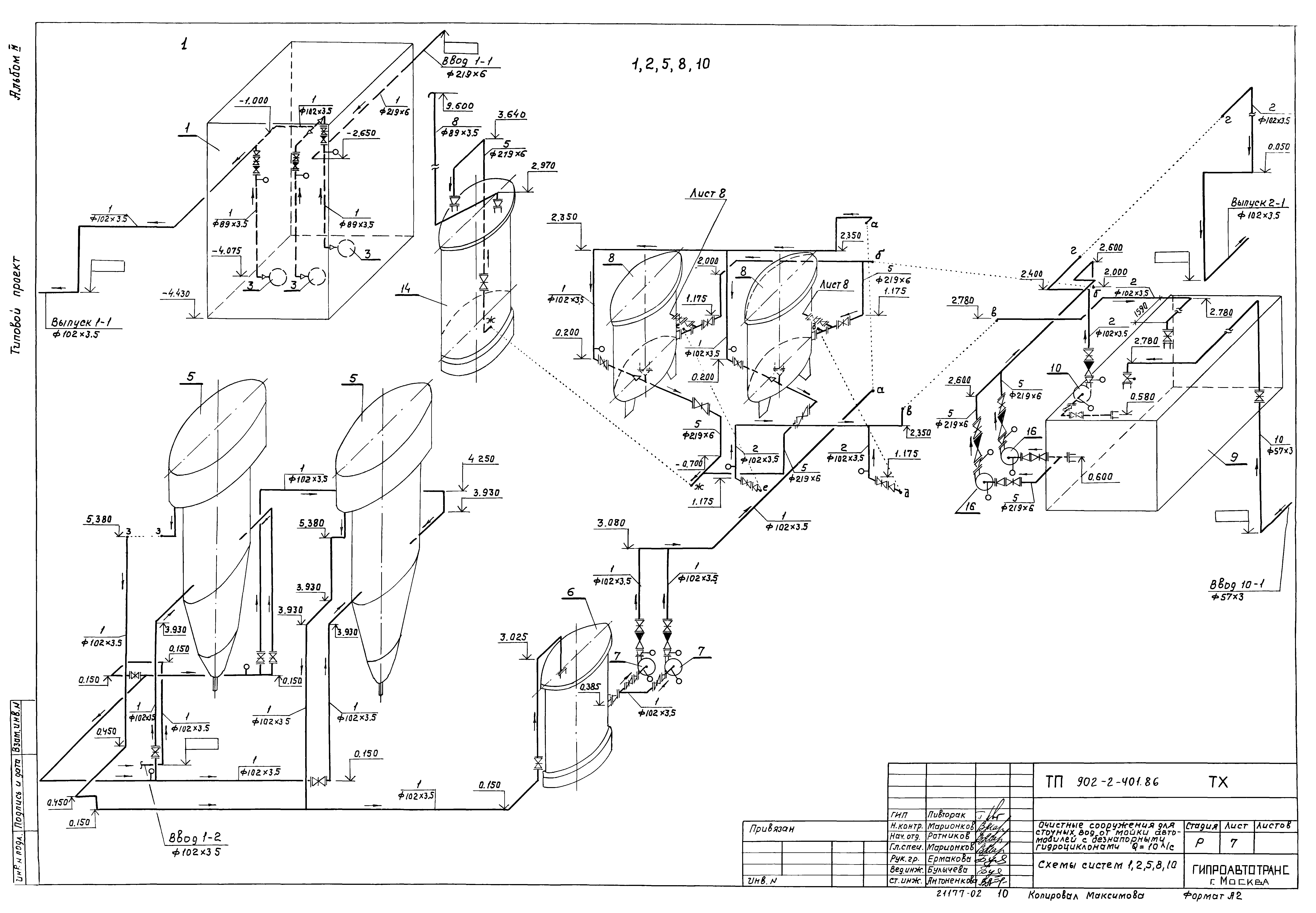
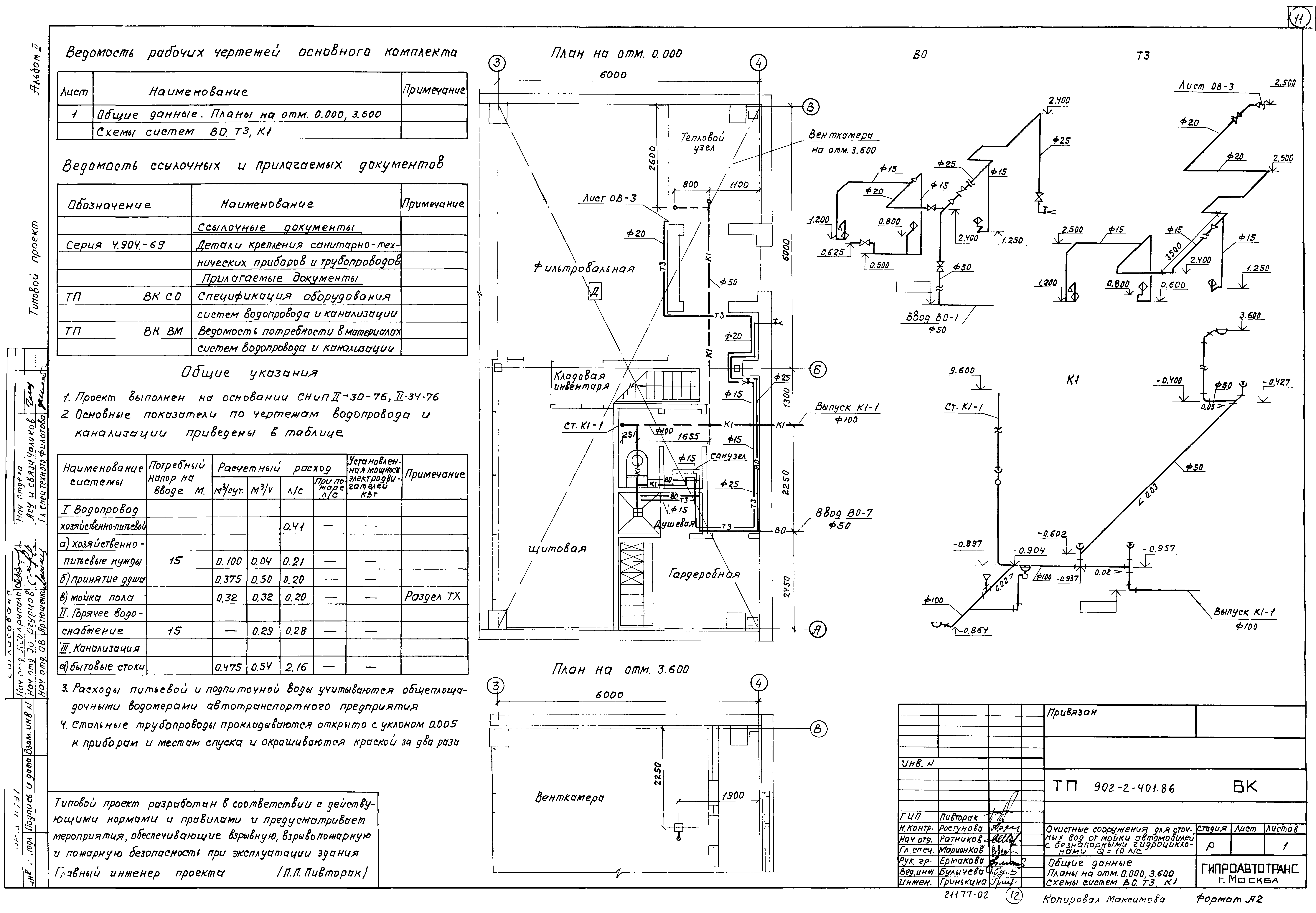
| Оглавление: | ТП 902-2-401.86 Титульный лист ТП 902-2-401.86 Содержание альбома ТП 902-2-401.86-ТХ Технология производства ТХ ТП 902-2-401.86-ТХ-1 Общие данные ТП 902-2-401.86-ТХ-2 Схема взаимного расположения здания мойки и очистных сооружений. План расстановки технологического оборудования ТП 902-2-401.86-ТХ-3 Технологическая схема очистки сточных вод ТП 902-2-401.86-ТХ-4 План на отм. 0.000 ТП 902-2-401.86-ТХ-5 Разрез 1-1 ТП 902-2-401.86-ТХ-6 Разрезы 2-2;3-3 ТП 902-2-401.86-ТХ-7 Схемы систем 1,2,5,8,10 ТП 902-2-401.86-ТХ-8 Схемы систем 3,4,6,7,8,9 ТП 902-2-401.86-ВК Внутренние водопровод и канализация ВК ТП 902-2-401.86-ВК-1 Общие данные. План на отм. 0.000;3.600. Схемы систем ВО;Т3;К1 |
| Разработан: | Гипроавтотранс |
| Утверждён: | 27.03.1985 Минавтотранс РСФСР (Russian Federation Minavtotrans 55) |
| Издан: | ЦИТП Госстроя СССР (CITP, Gosstroy (USSR) 1984 г. ) |
| Чем заменён: |












