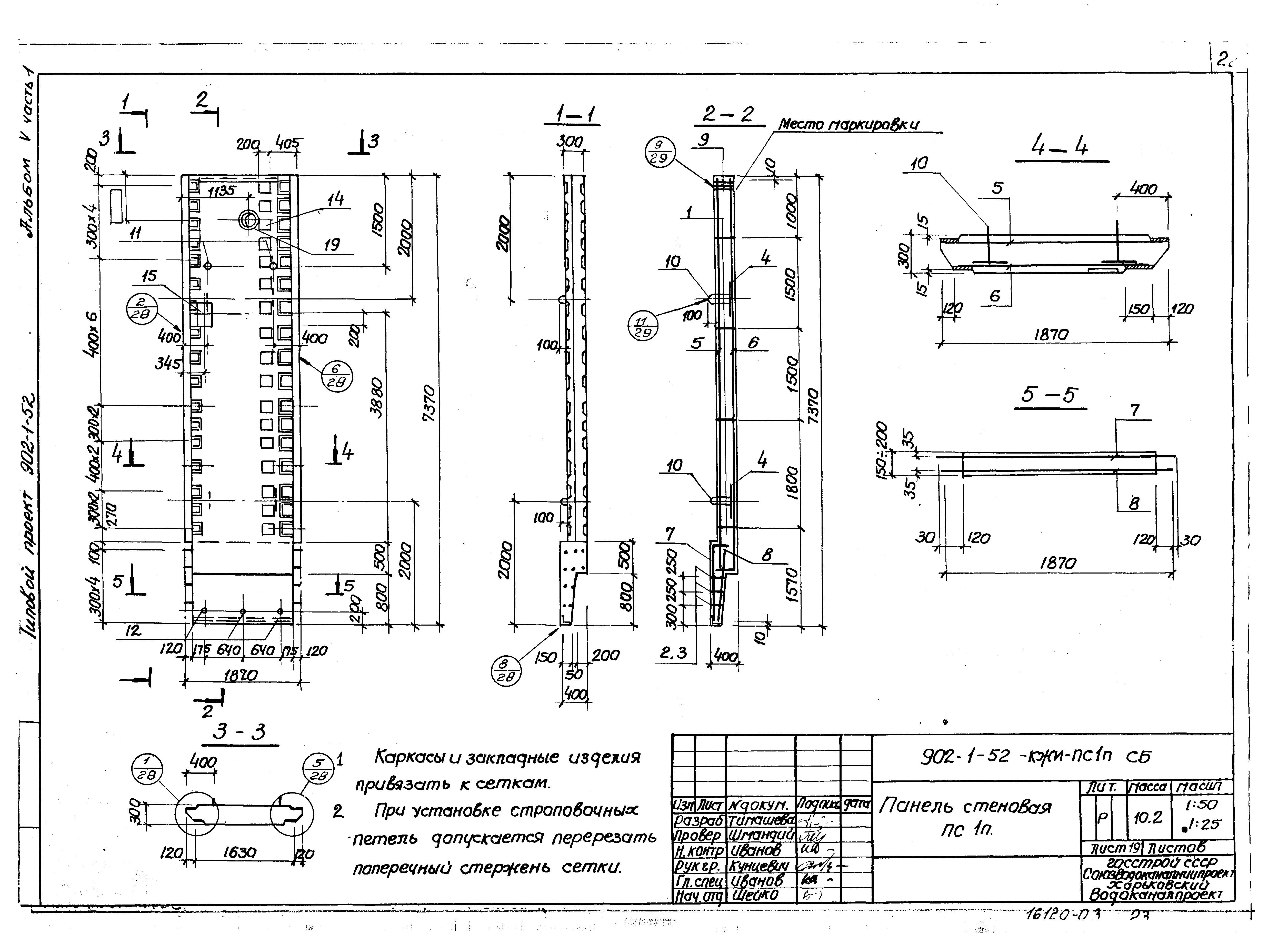
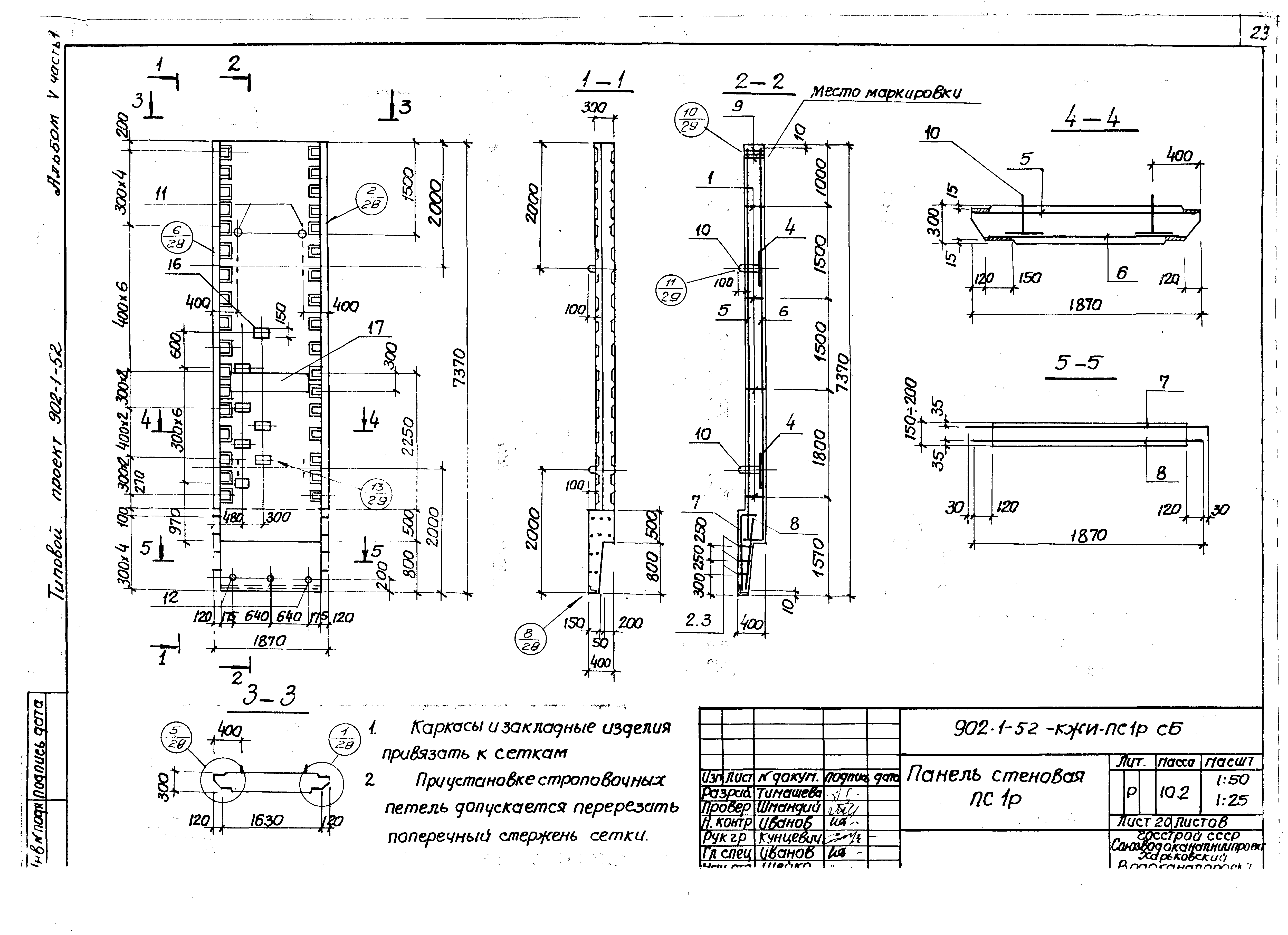
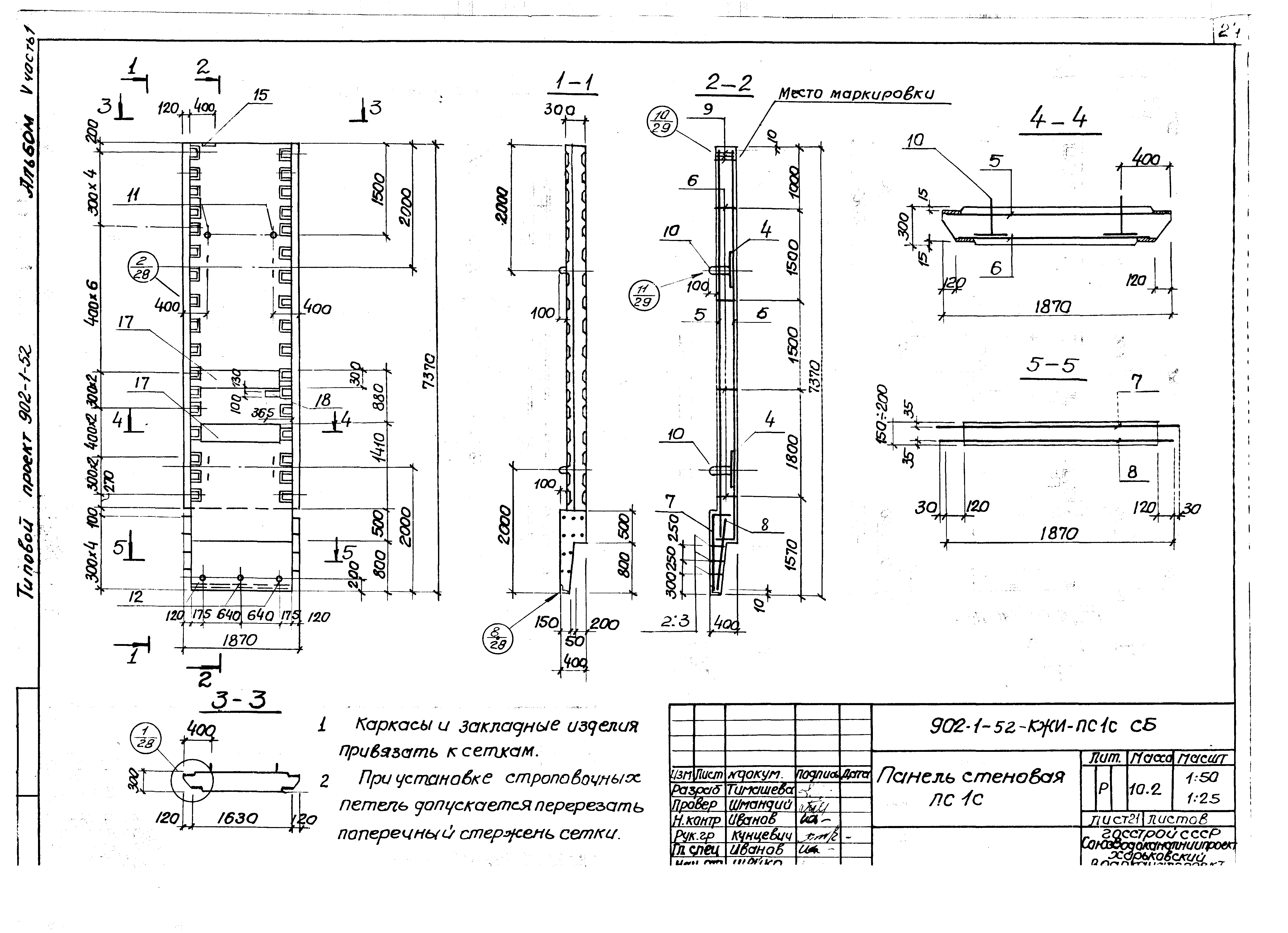
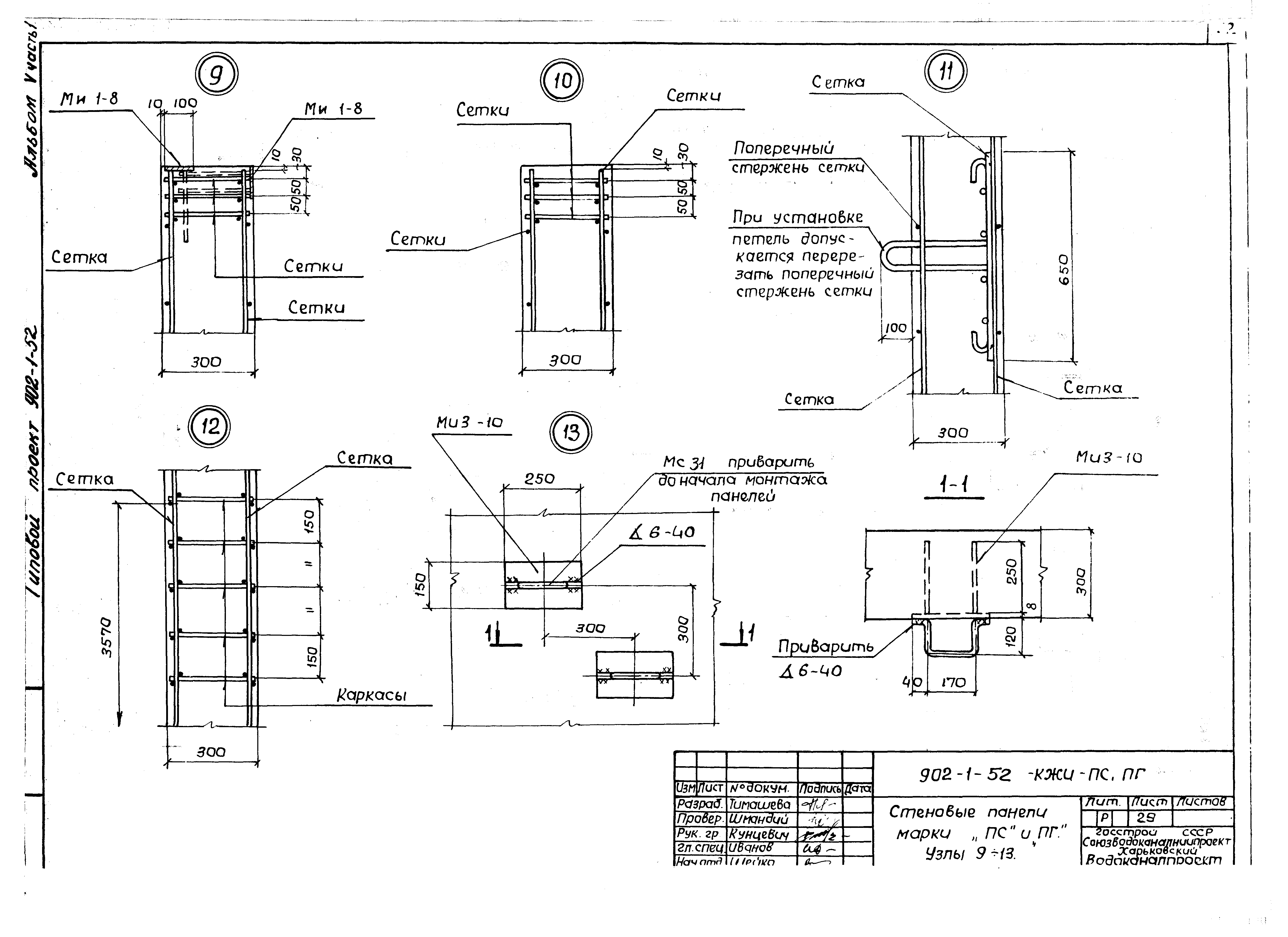
Скачать Типовой проект 902-1-52 Альбом V. Часть 1. Сборные железобетонные изделия (глубина заложения подводящего коллектора 5,5 м). Подземная частьДата актуализации: 01.01.2021 Типовой проект 902-1-52
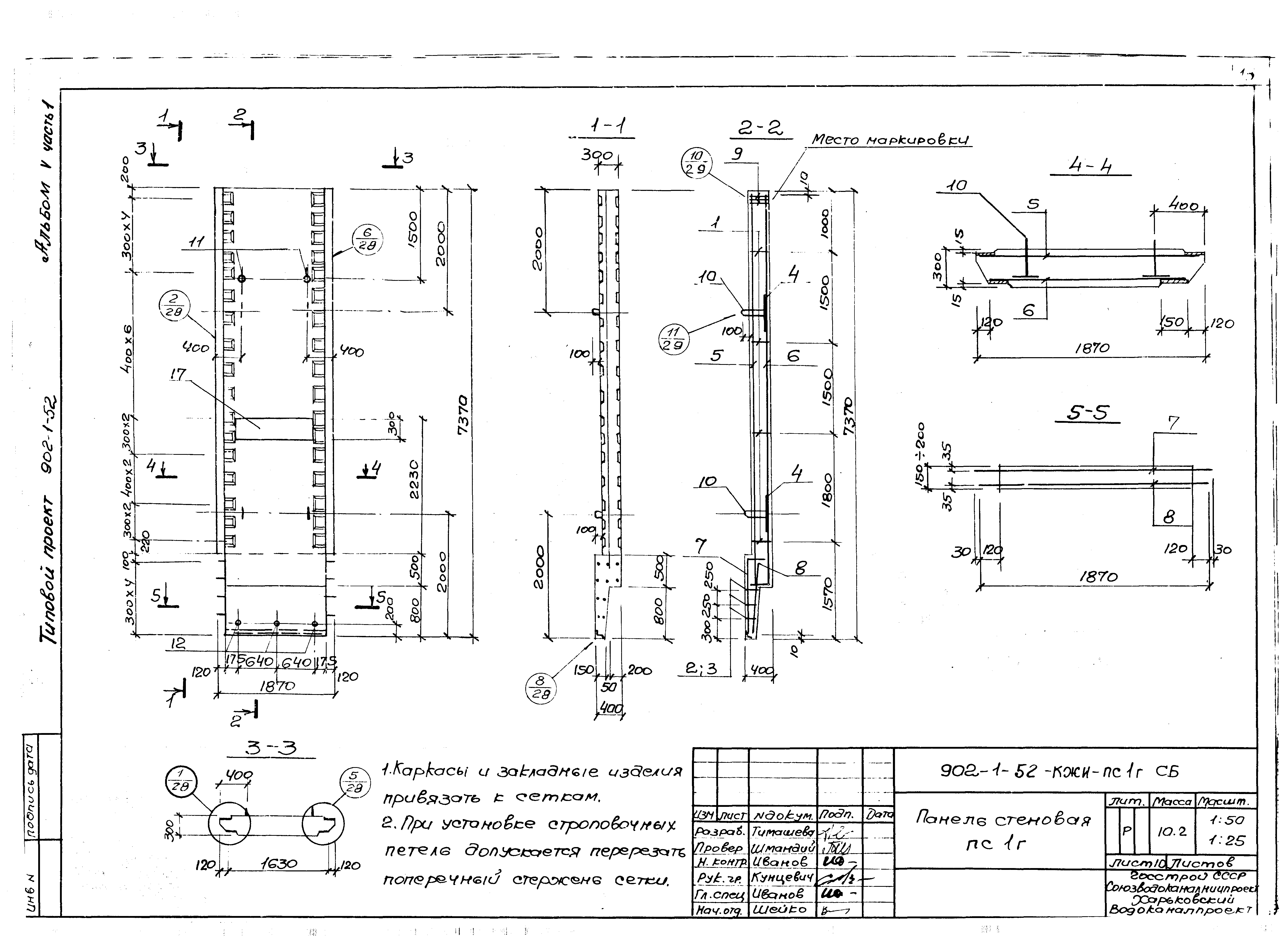
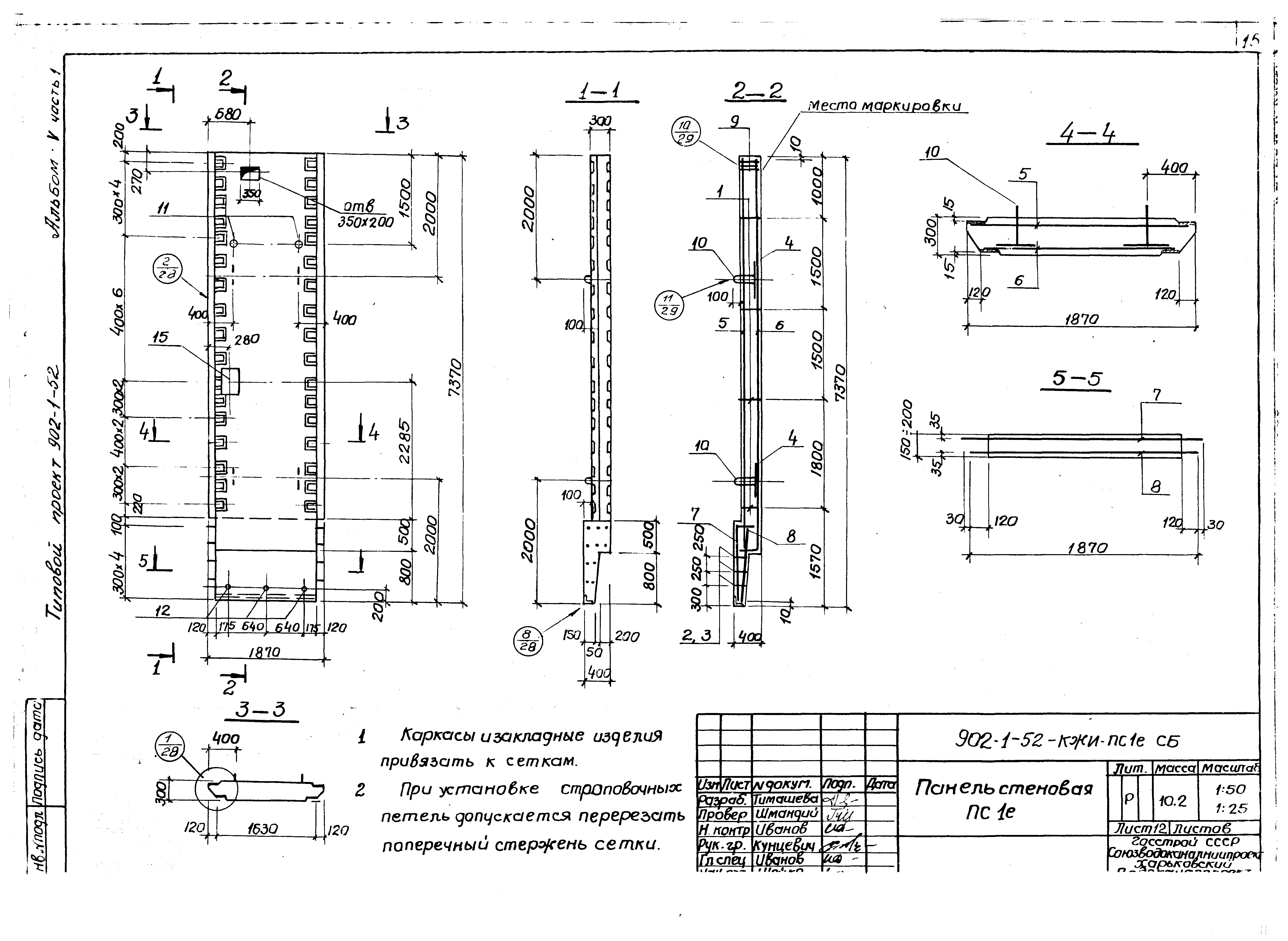
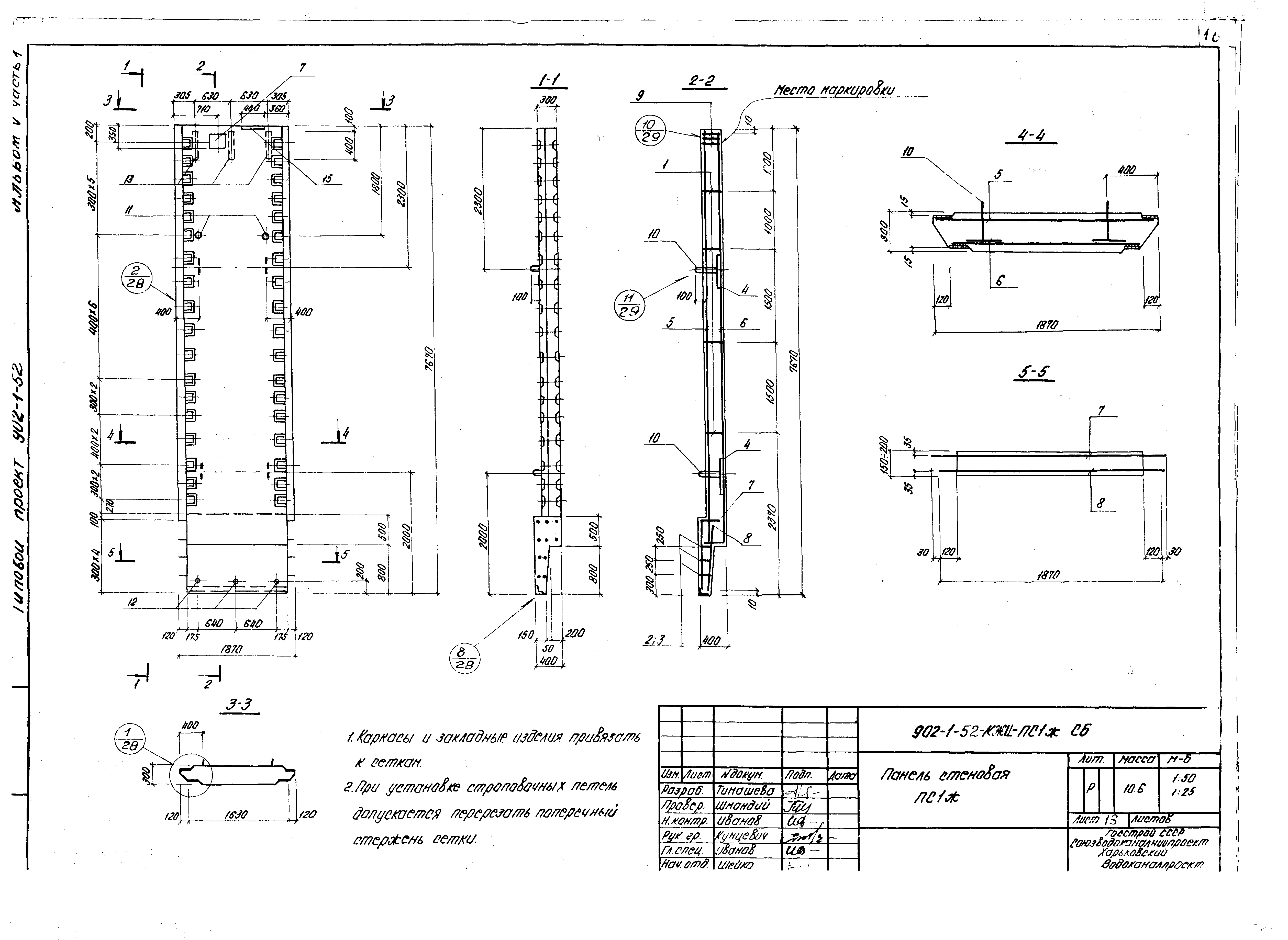
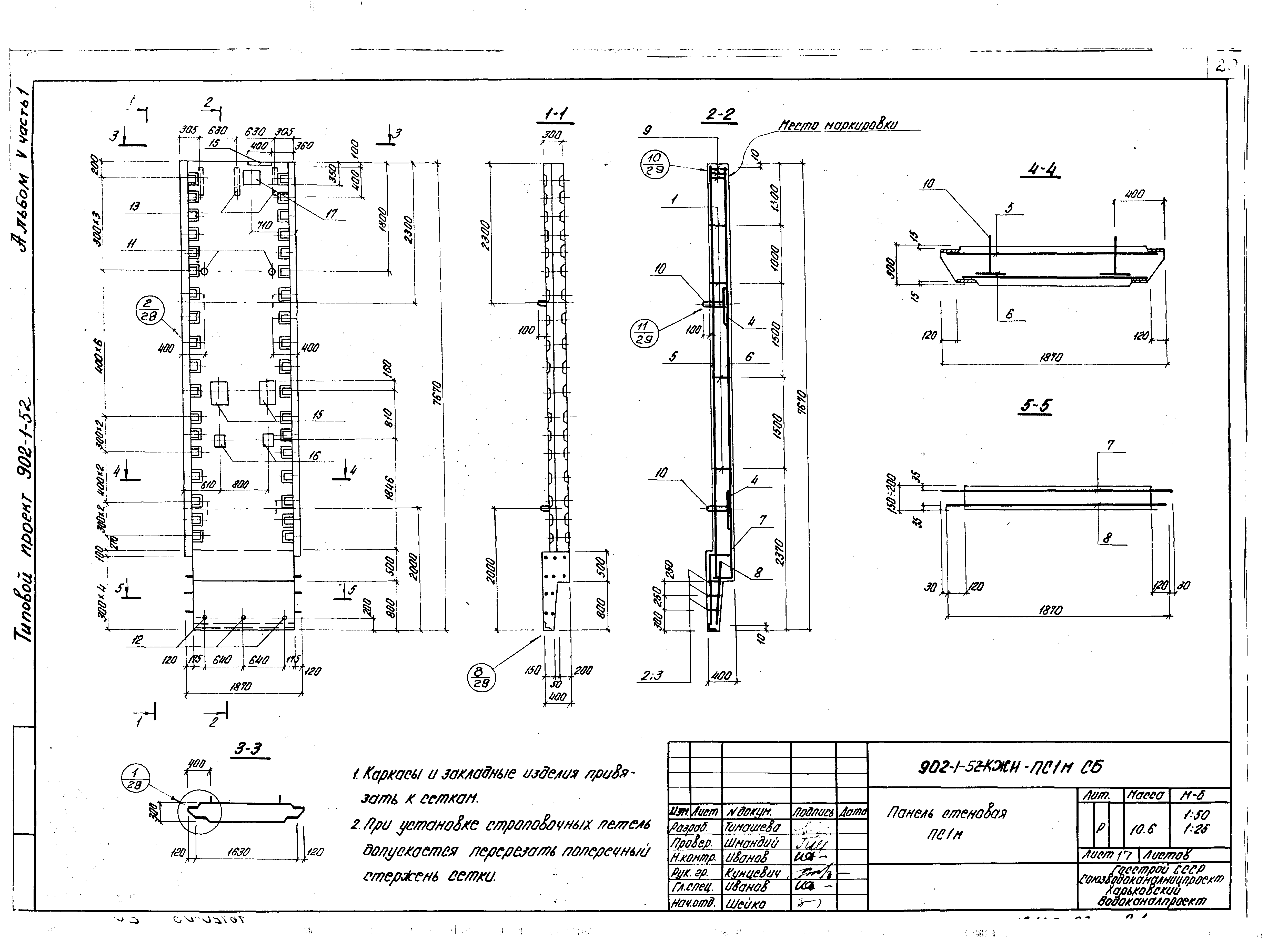
Альбом V. Часть 1. Сборные железобетонные изделия (глубина заложения подводящего коллектора 5,5 м). Подземная часть| Обозначение: | Типовой проект 902-1-52 | | Обозначение англ: | 902-1-52 | | Статус: | действует | | Название рус.: | Альбом V. Часть 1. Сборные железобетонные изделия (глубина заложения подводящего коллектора 5,5 м). Подземная часть | | Дата добавления в базу: | 01.09.2013 | | Дата актуализации: | 01.01.2021 | | Дата введения: | 15.05.1979 | | Разработан: | Харьковский Водоканалпроект
| | Утверждён: | 22.12.1978 Союзводоканалпроект (Soyuzvodokanalproject 96)
|
                                                                                     
|