Скачать Типовой проект 902-2-17 Альбом I. Технологическая частьДата актуализации: 01.01.2021
|
| Обозначение: | Типовой проект 902-2-17 |
| Обозначение англ: | 902-2-17 |
| Статус: | не действует |
| Название рус.: | Альбом I. Технологическая часть |
| Дата добавления в базу: | 01.09.2013 |
| Дата актуализации: | 01.01.2021 |
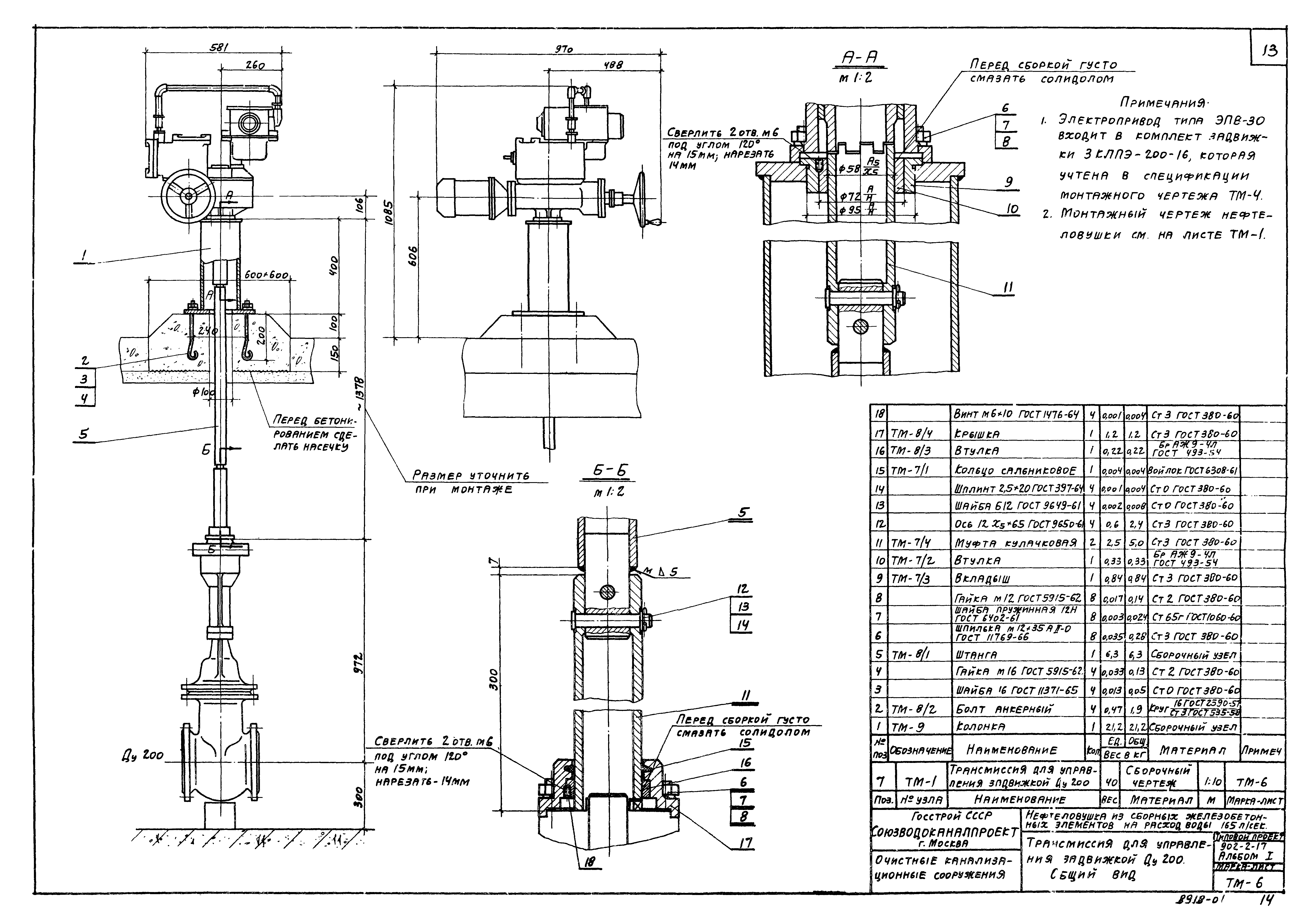
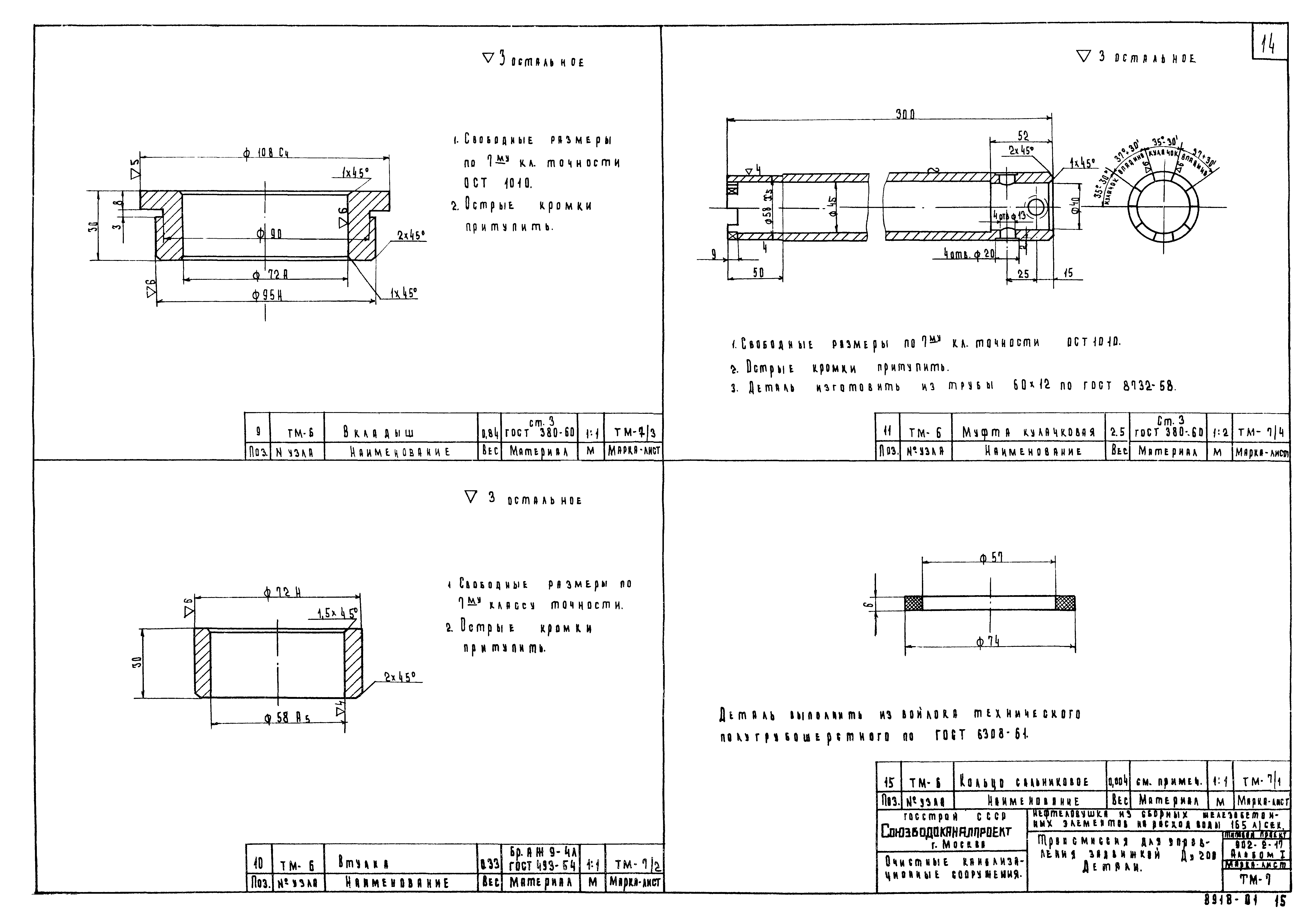
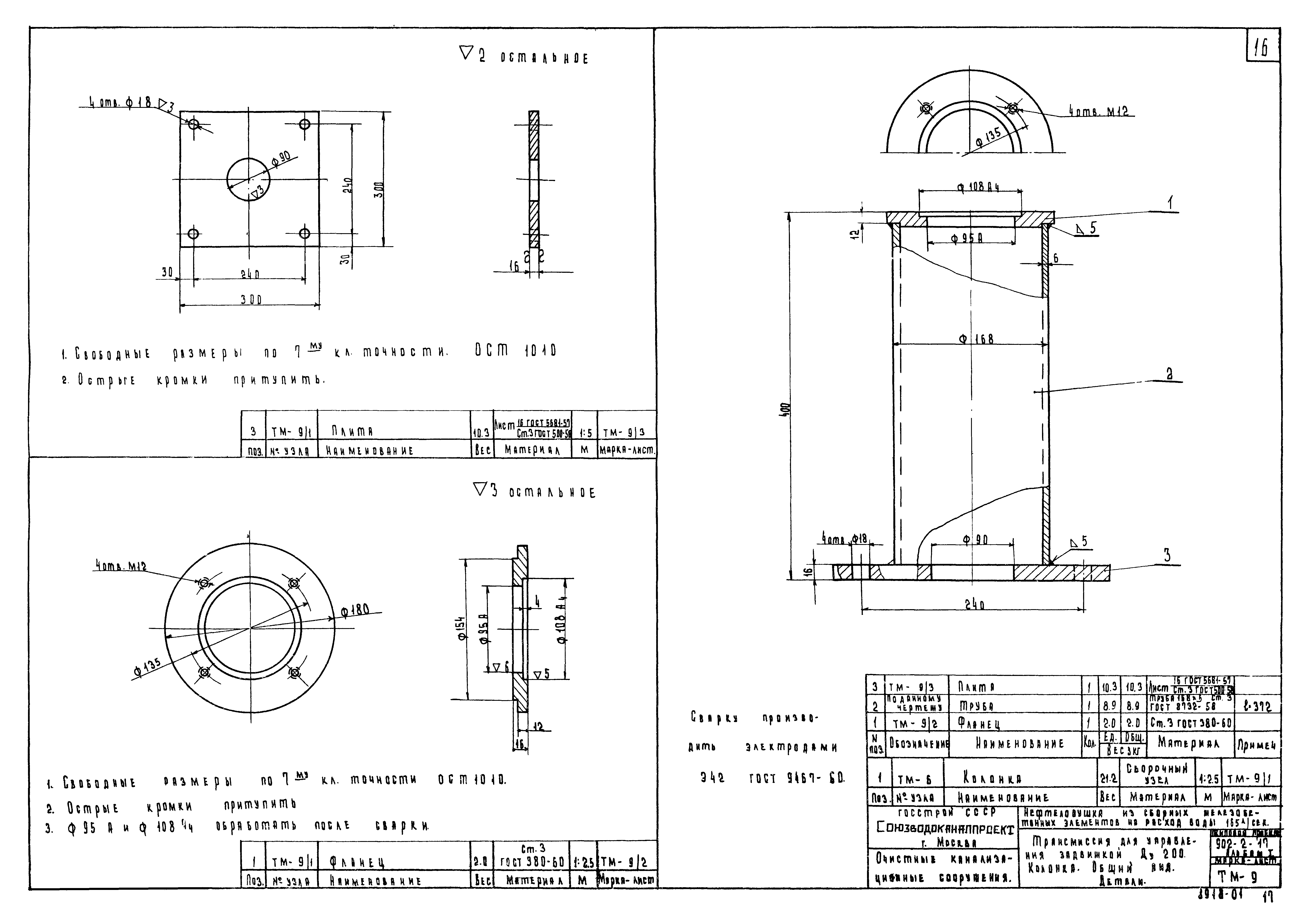
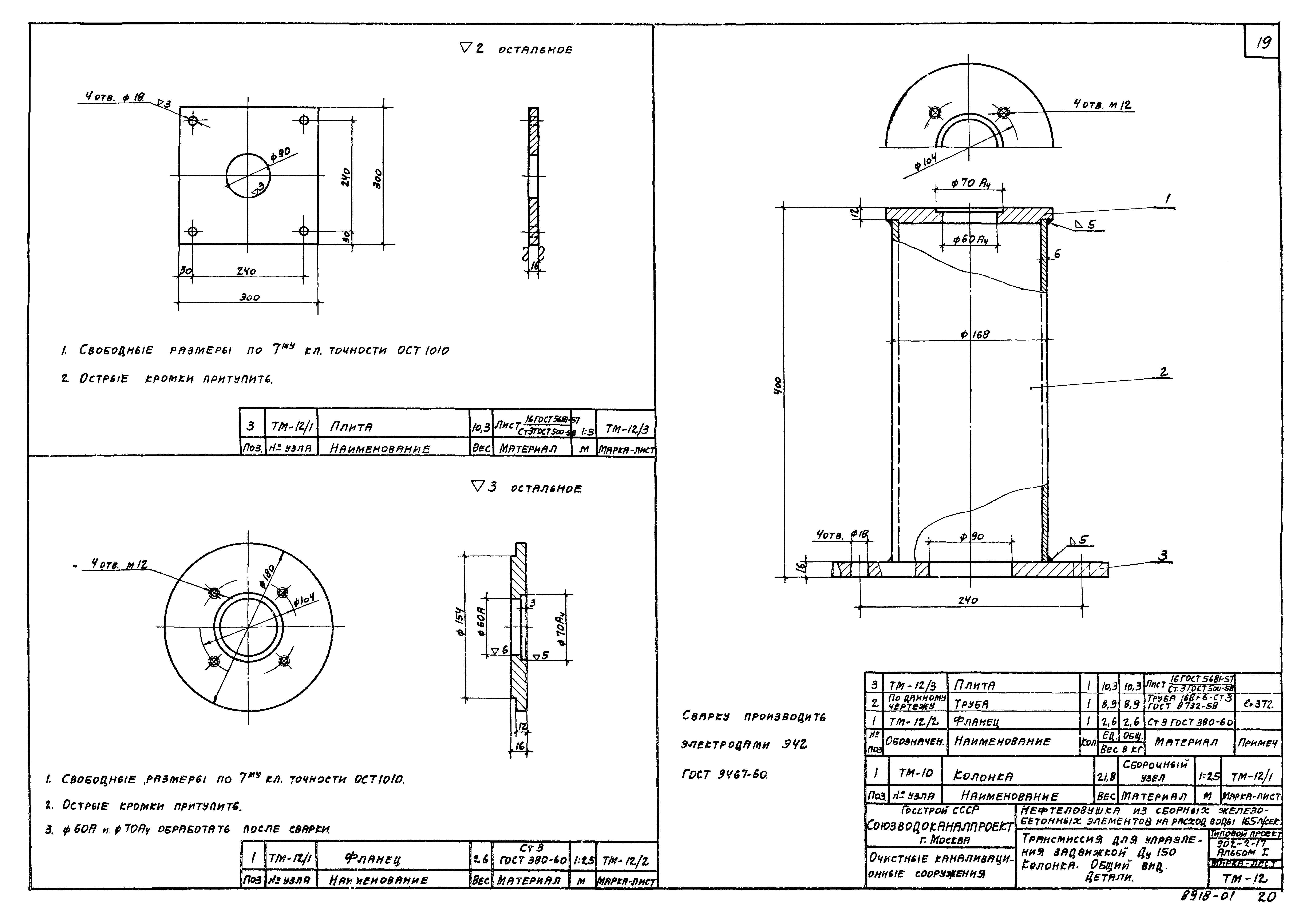
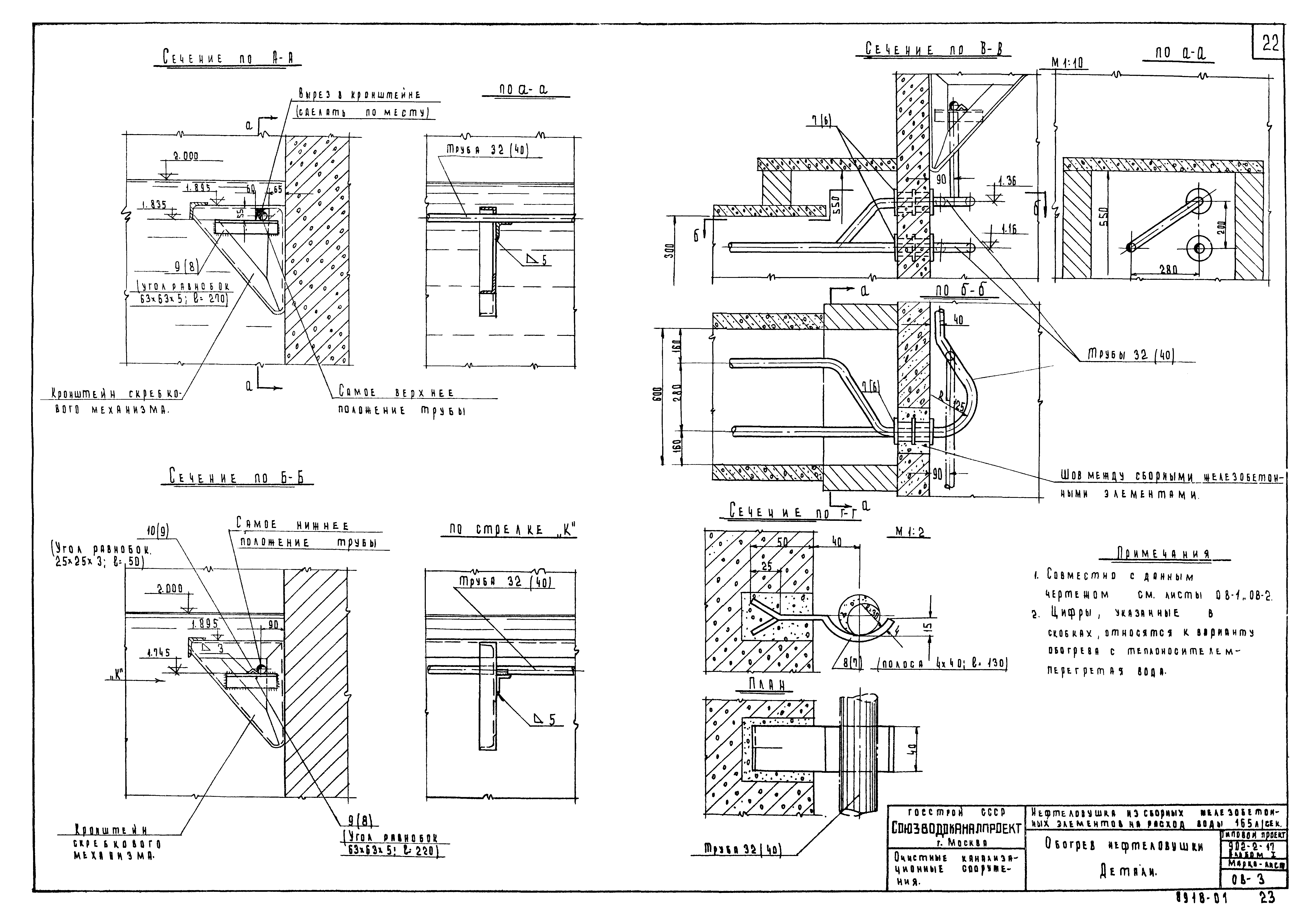
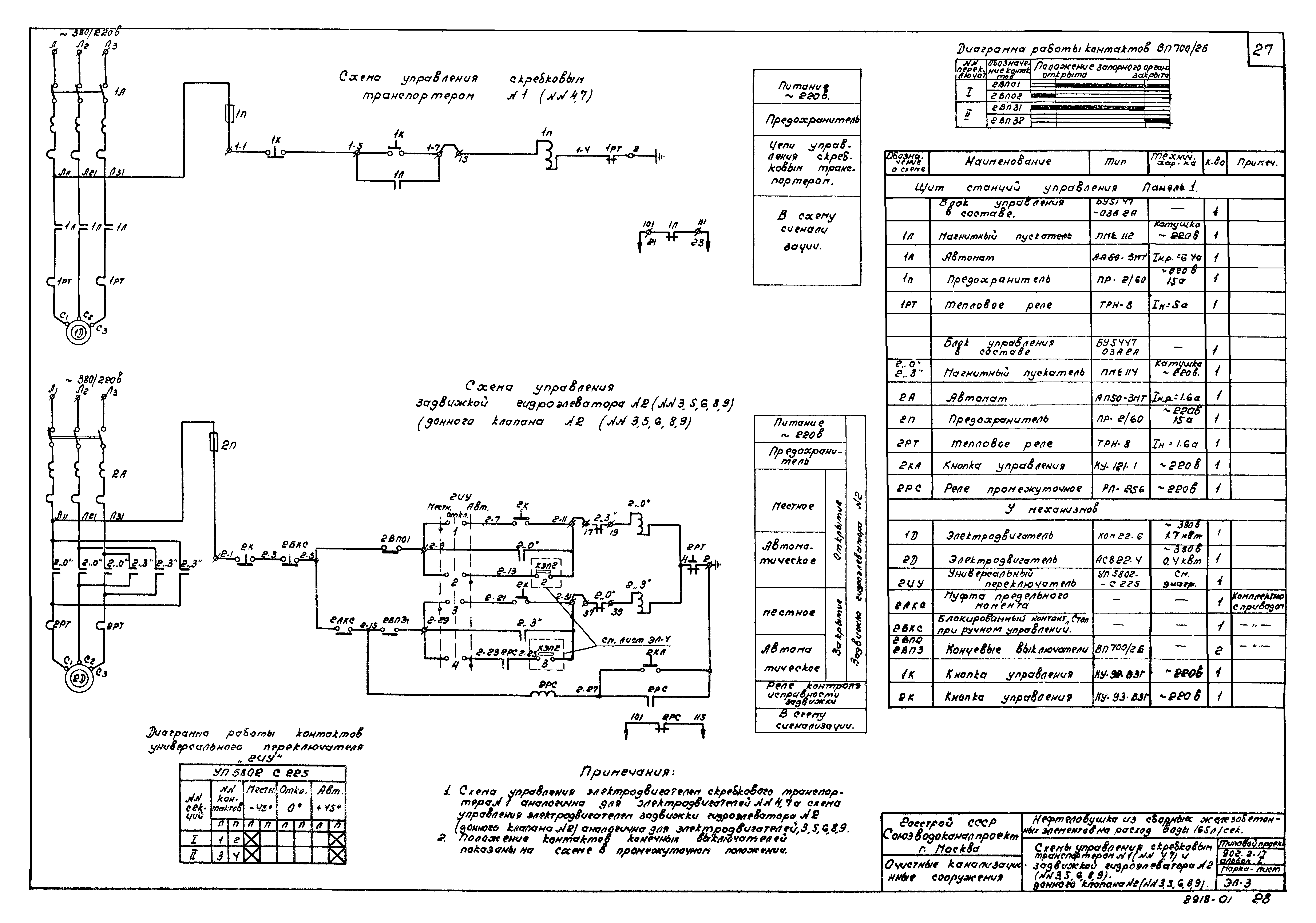
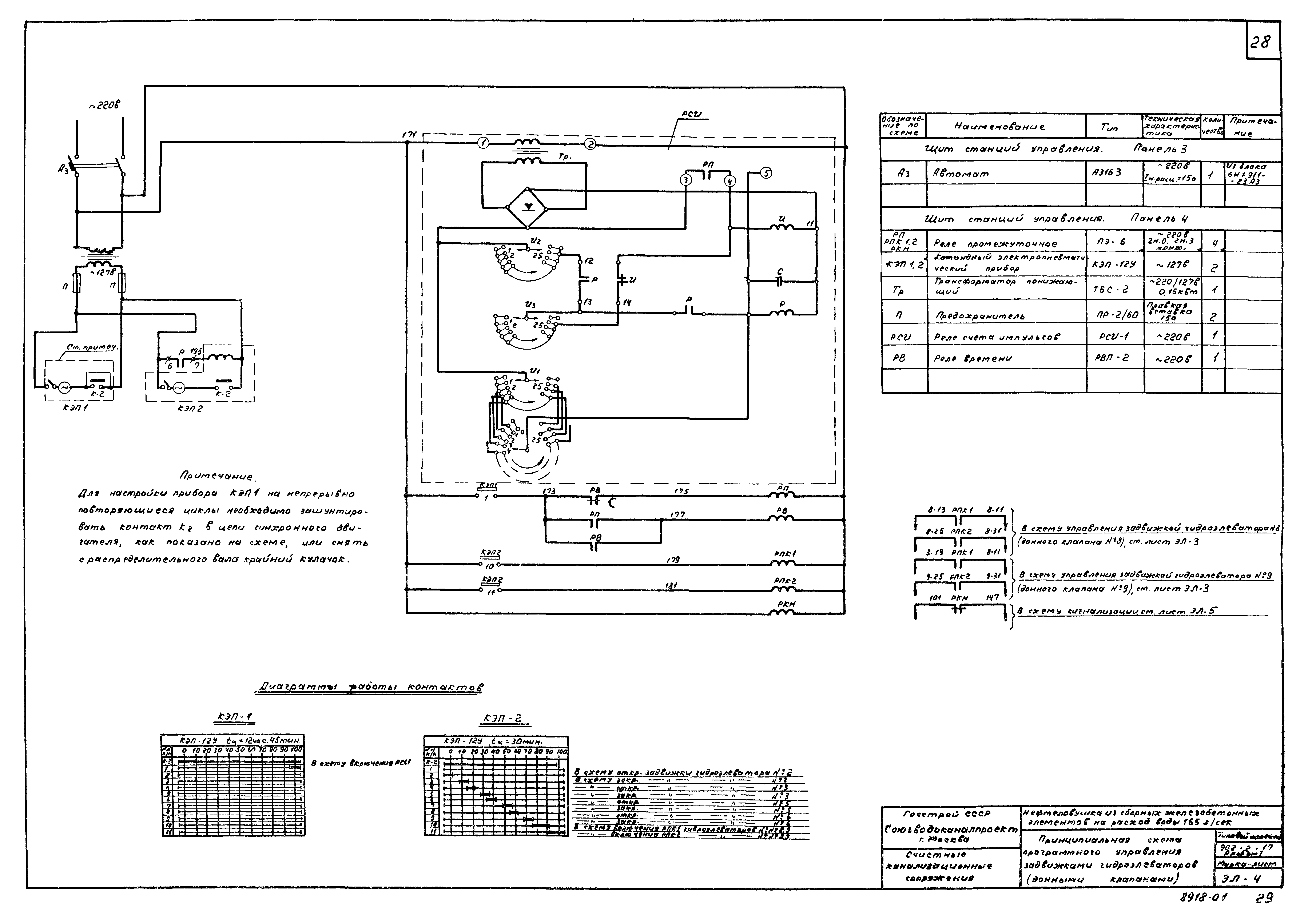
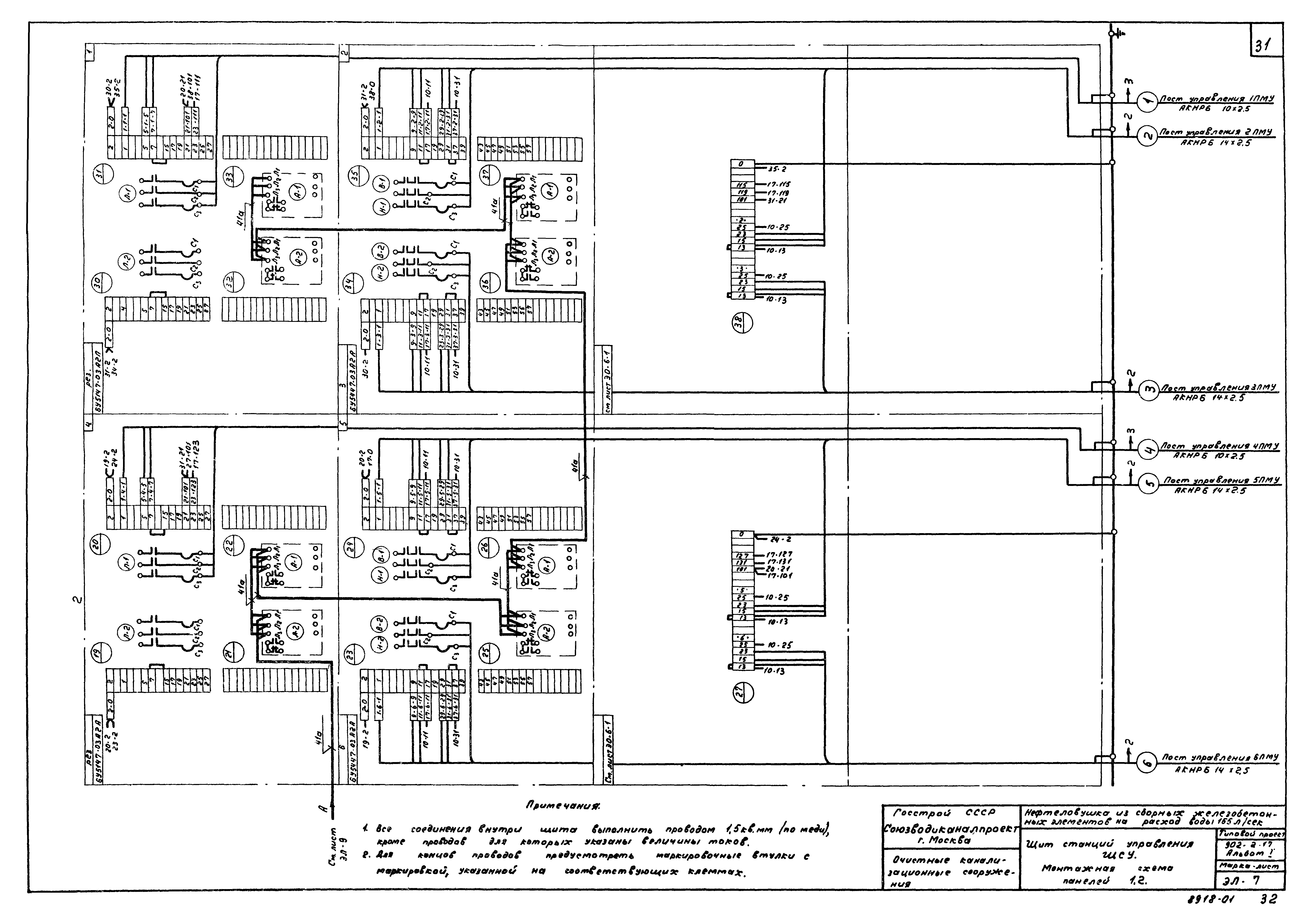
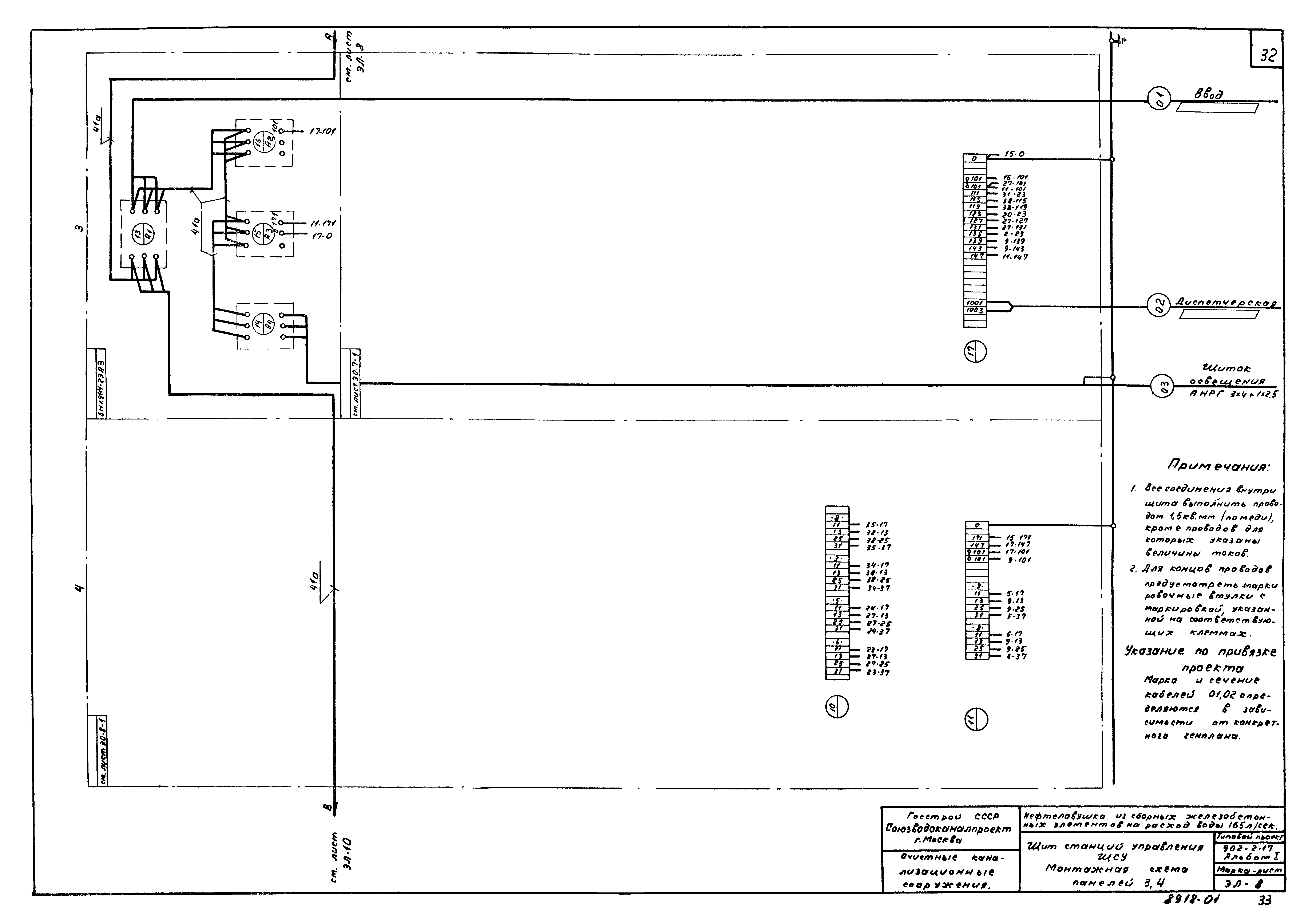
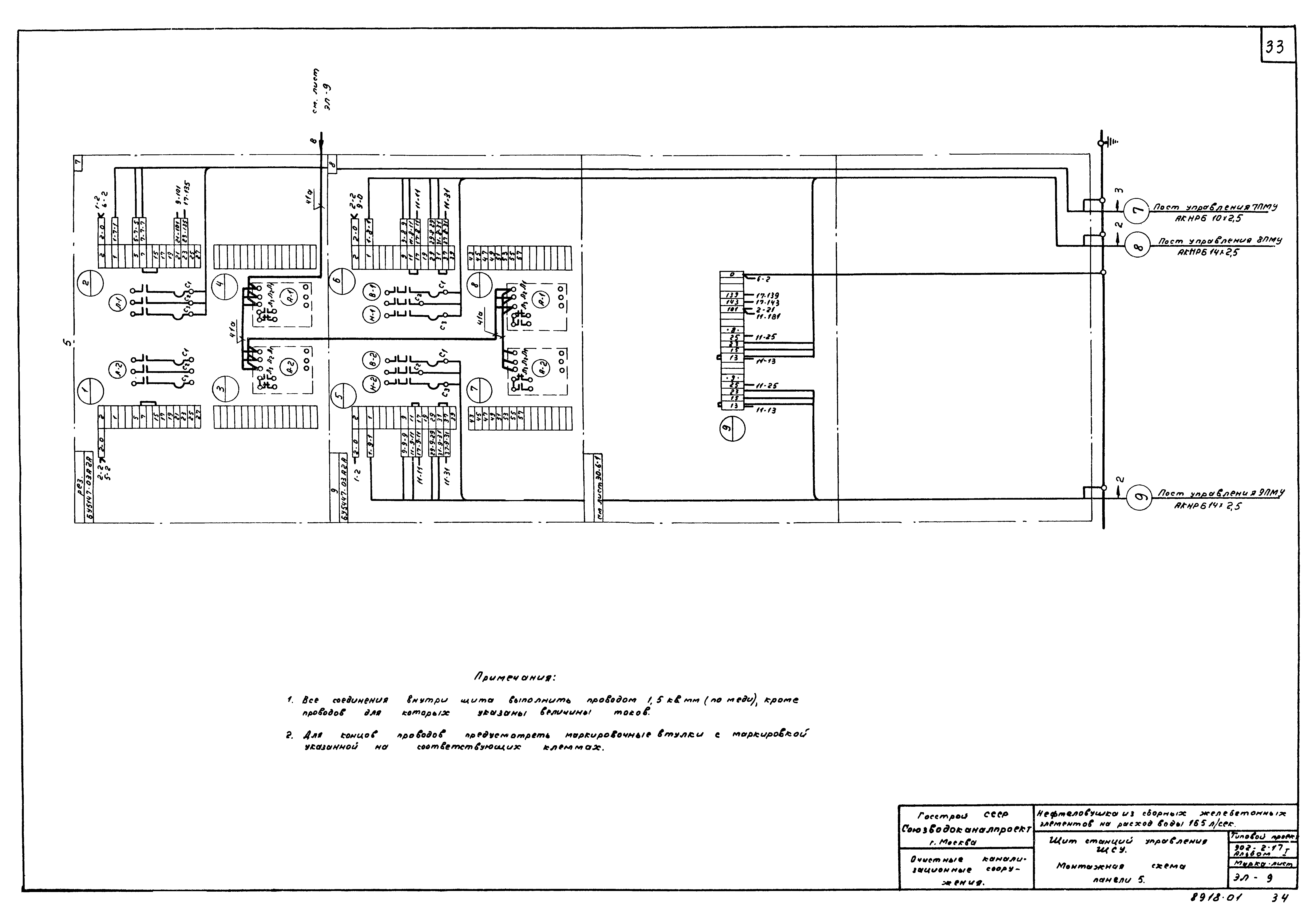
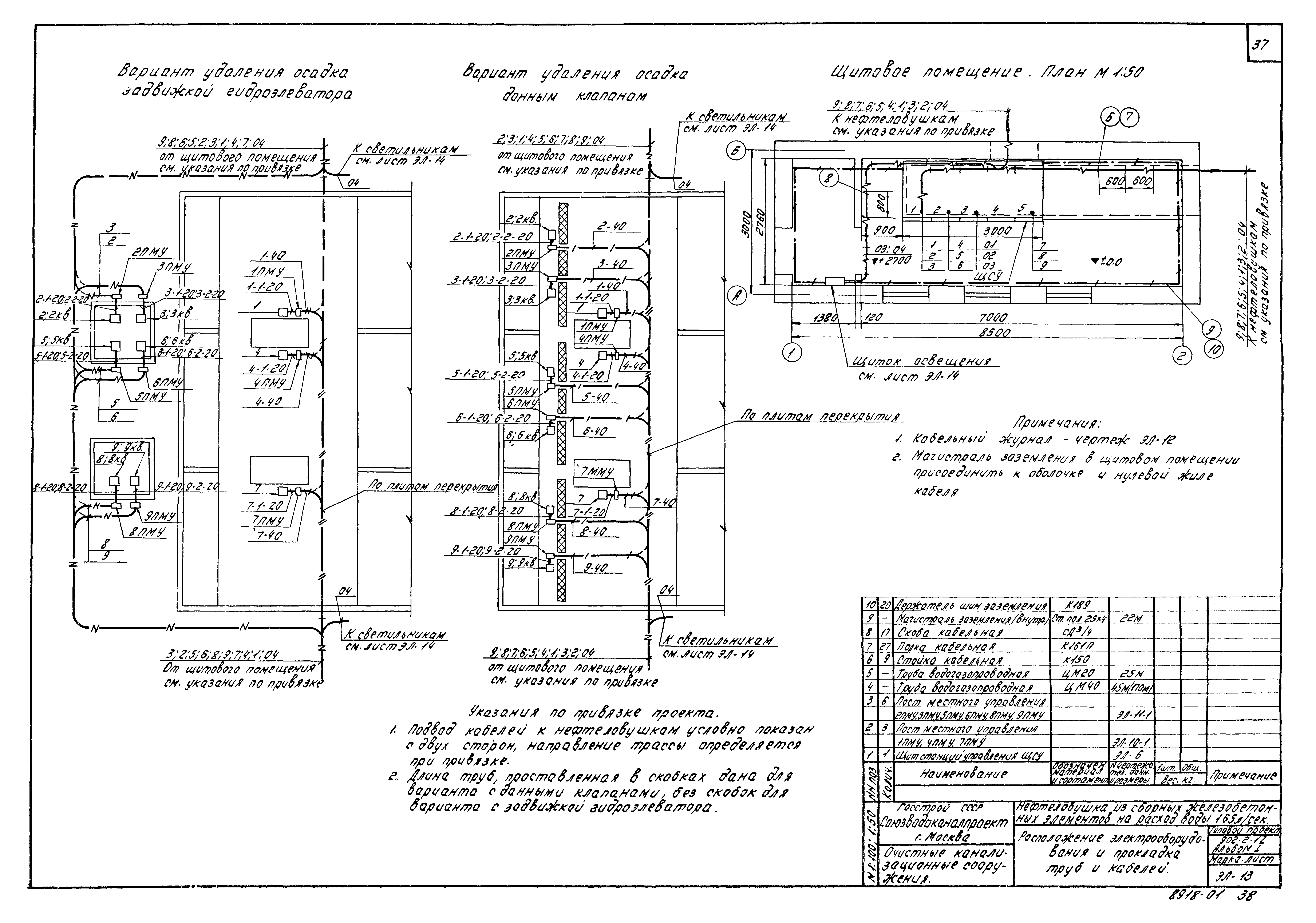
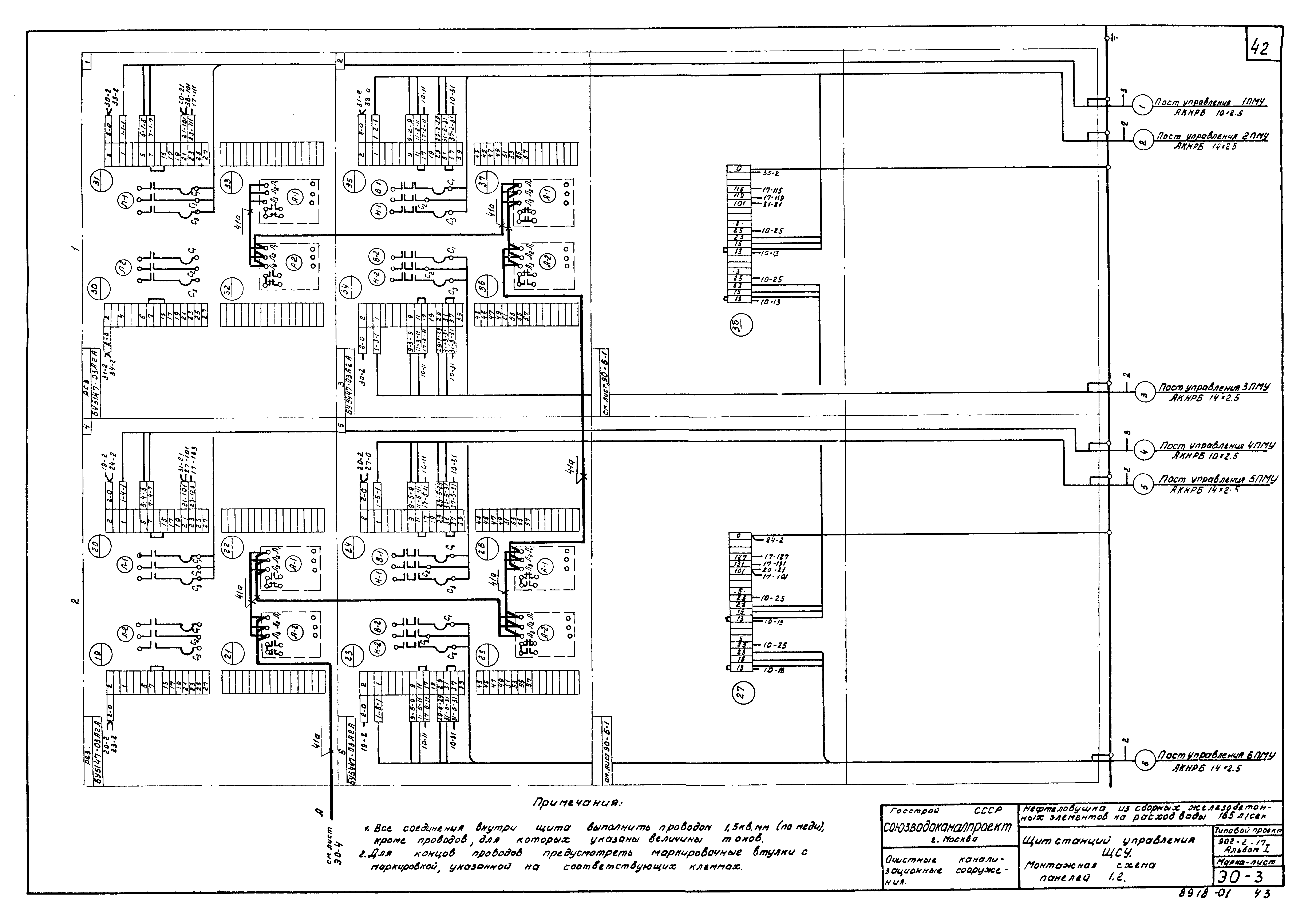
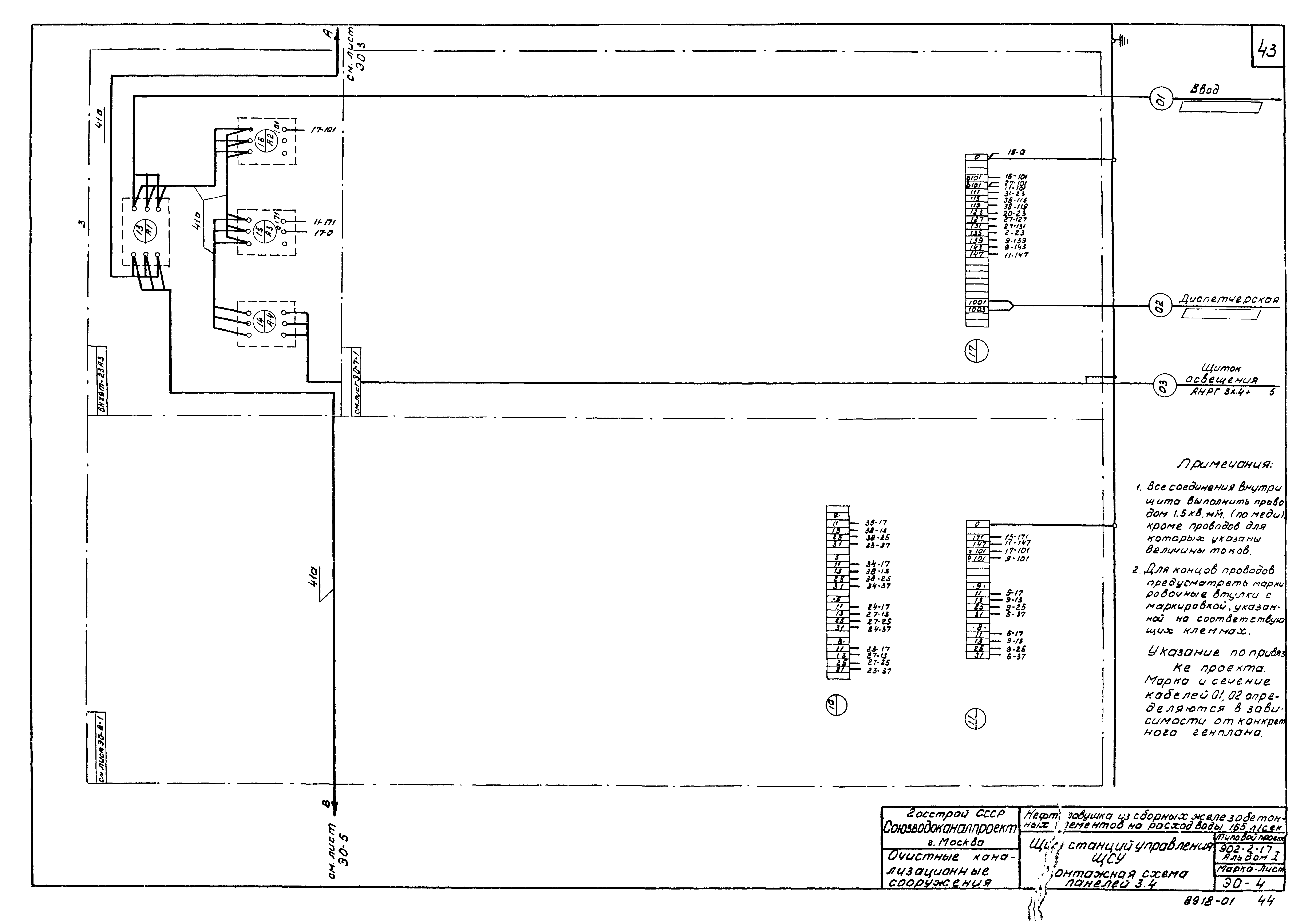
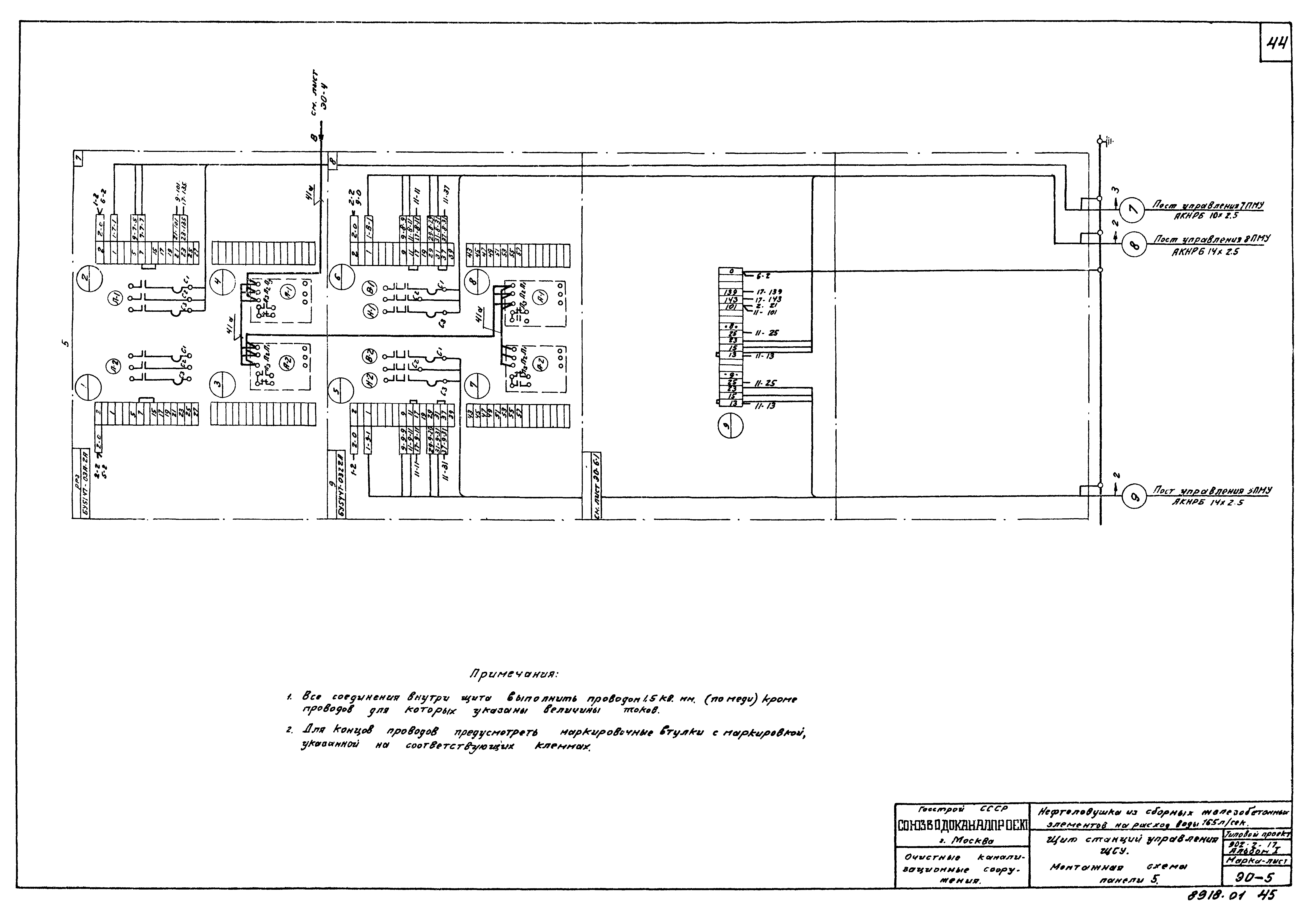
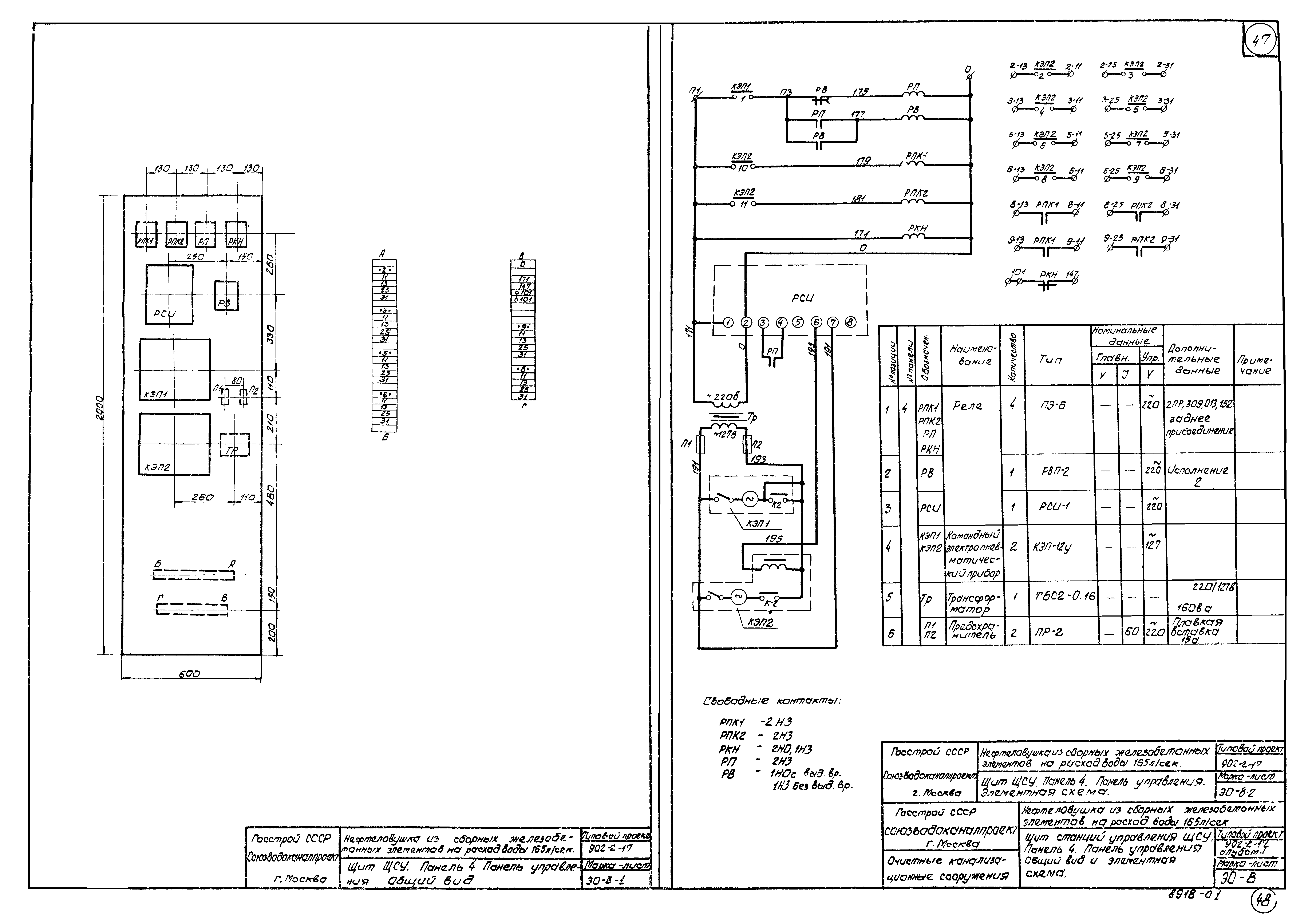
| Оглавление: | ТП 902-2-17-ПЗ-1-6 Пояснительная записка ТП 902-2-17-ТМ-1 Монтажный чертеж. Удаление осадка гидроэлеваторами ТП 902-2-17-ТМ-2 Монтажный чертеж. Удаление осадка через данные клапаны ТП 902-2-17-ТМ-3 Установочный чертеж гидроэлеватора. Общий вид и узлы ТП 902-2-17-ТМ-4 Спецификации ТП 902-2-17-ТМ-5 Распределительная труба ТП 902-2-17-ТМ-6 Трансмиссия для управления задвижкой Ду200. Общий вид ТП 902-2-17-ТМ-7 Трансмиссия для управления задвижкой Ду200. Детали ТП 902-2-17-ТМ-8 Трансмиссия для управления задвижкой Ду200. Узлы. Детали ТП 902-2-17-ТМ-9 Трансмиссия для управления задвижкой Ду200. Колонка. Общий вид. Детали ТП 902-2-17-ТМ-10 Трансмиссия для управления задвижкой Ду150. Общий вид ТП 902-2-17-ТМ-11 Трансмиссия для управления задвижкой Ду150. Детали ТП 902-2-17-ТМ-12 Трансмиссия для управления задвижкой Ду150. Колонка. Общий вид. Детали ТП 902-2-17-ОВ-1 Обогрев нефтеловушки. План, разрезы, схема. Теплоноситель-пар Р=4-5 ати ТП 902-2-17-ОВ-2 Обогрев нефтеловушки. План, разрезы, схема. Теплоноситель-перегретая вода 150º-70º ТП 902-2-17-ОВ-3 Обогрев нефтеловушки. Детали ТП 902-2-17-ОВ-4 Обогрев нефтеловушки. Детали ТП 902-2-17-ОВ-5 Щитовое помещение при нефтеловушке. Отопление. Планы и схемы. Теплоносители: пар 1.5-2 ати и перегретая вода 150º-70º ТП 902-2-17-ЭЛ-1 Спецификация ТП 902-2-17-ЭЛ-2 Схема соединений 380/220 В ТП 902-2-17-ЭЛ-3 Схемы управления скребковым транспортером №1(№№4,7) и задвижкой гидроэлеватора №2(№№3,5,6,8,9) данного клапана №2(№№3,5,6,8,9) ТП 902-2-17-ЭЛ-4 Принципиальная схема программного управления задвижками гидроэлеваторов (данными клапанами) ТП 902-2-17-ЭЛ-5 Схема сигнализации ТП 902-2-17-ЭЛ-6 Щит станций управления ЩСУ. Общий вид ТП 902-2-17-ЭЛ-7 Щит станций управления ЩСУ. Монтажная схема панелей 1,2 ТП 902-2-17-ЭЛ-8 Щит станций управления ЩСУ. Монтажная схема панелей 3,4 ТП 902-2-17-ЭЛ-9 Щит станций управления ЩСУ. Монтажная схема. Панели 5 ТП 902-2-17-ЭЛ-10 Пост местного управления 1ПМУ(4,7ПМУ). Общий вид и монтажная схема ТП 902-2-17-ЭЛ-11 Пост местного управления 2ПМУ(3,5,6,8,9ПМУ). Общий вид и монтажная схема ТП 902-2-17-ЭЛ-12 Кабельный журнал ТП 902-2-17-ЭЛ-13 Расположение электрооборудования и прокладка труб и кабелей ТП 902-2-17-ЭЛ-14 Электрическое освещение ТП 902-2-17-ЭО-1-8 Задание заводу-изготовителю на щит станций управления ЩСУ |
| Разработан: | Союзводоканалпроект |
| Утверждён: | 30.12.1966 Союзводоканалпроект (Soyuzvodokanalproject 192) |
















































