Скачать Типовой проект 902-2-17 Альбом II. Строительная частьДата актуализации: 01.01.2021
|
| Обозначение: | Типовой проект 902-2-17 |
| Обозначение англ: | 902-2-17 |
| Статус: | не действует |
| Название рус.: | Альбом II. Строительная часть |
| Дата добавления в базу: | 01.09.2013 |
| Дата актуализации: | 01.01.2021 |
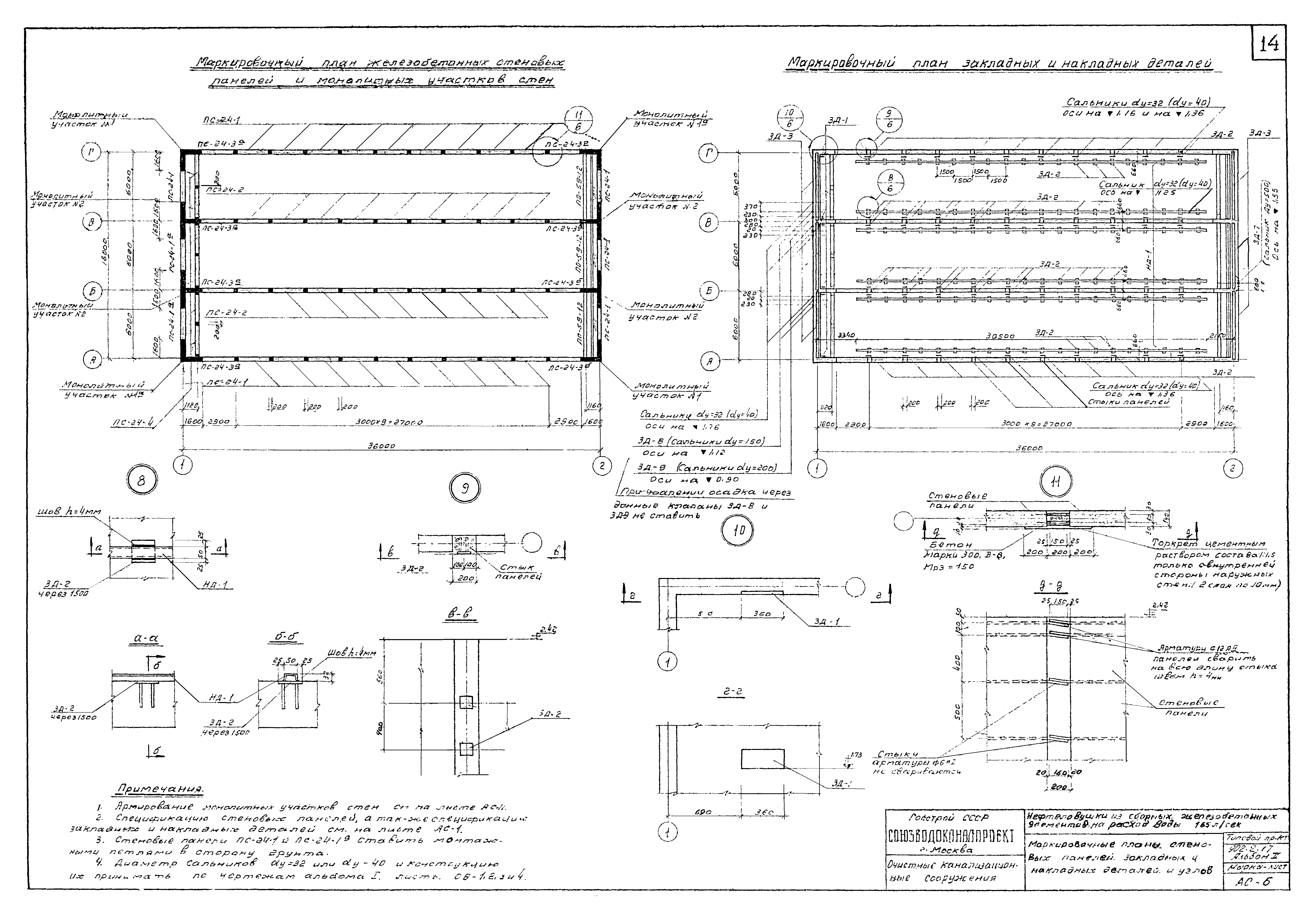
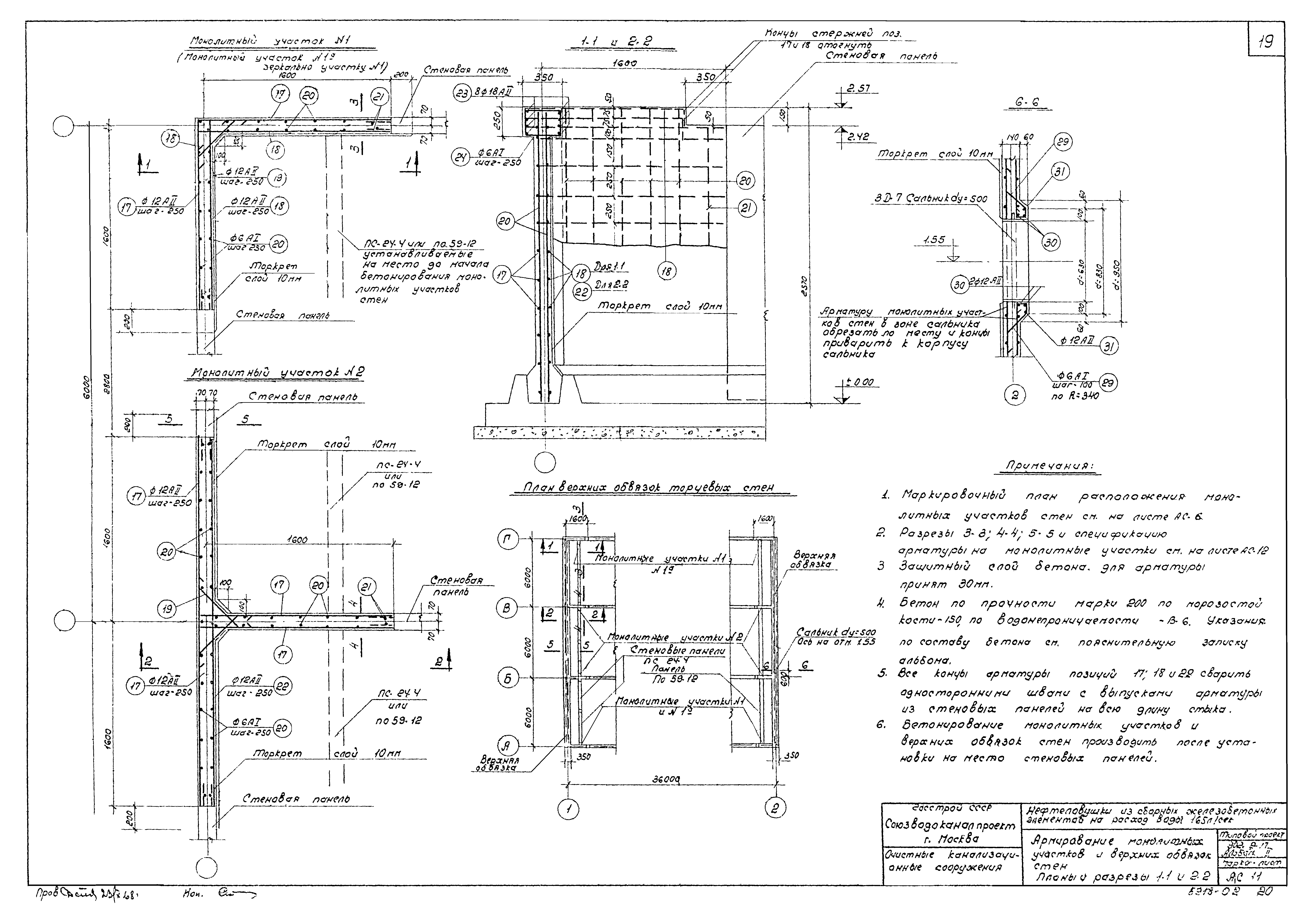
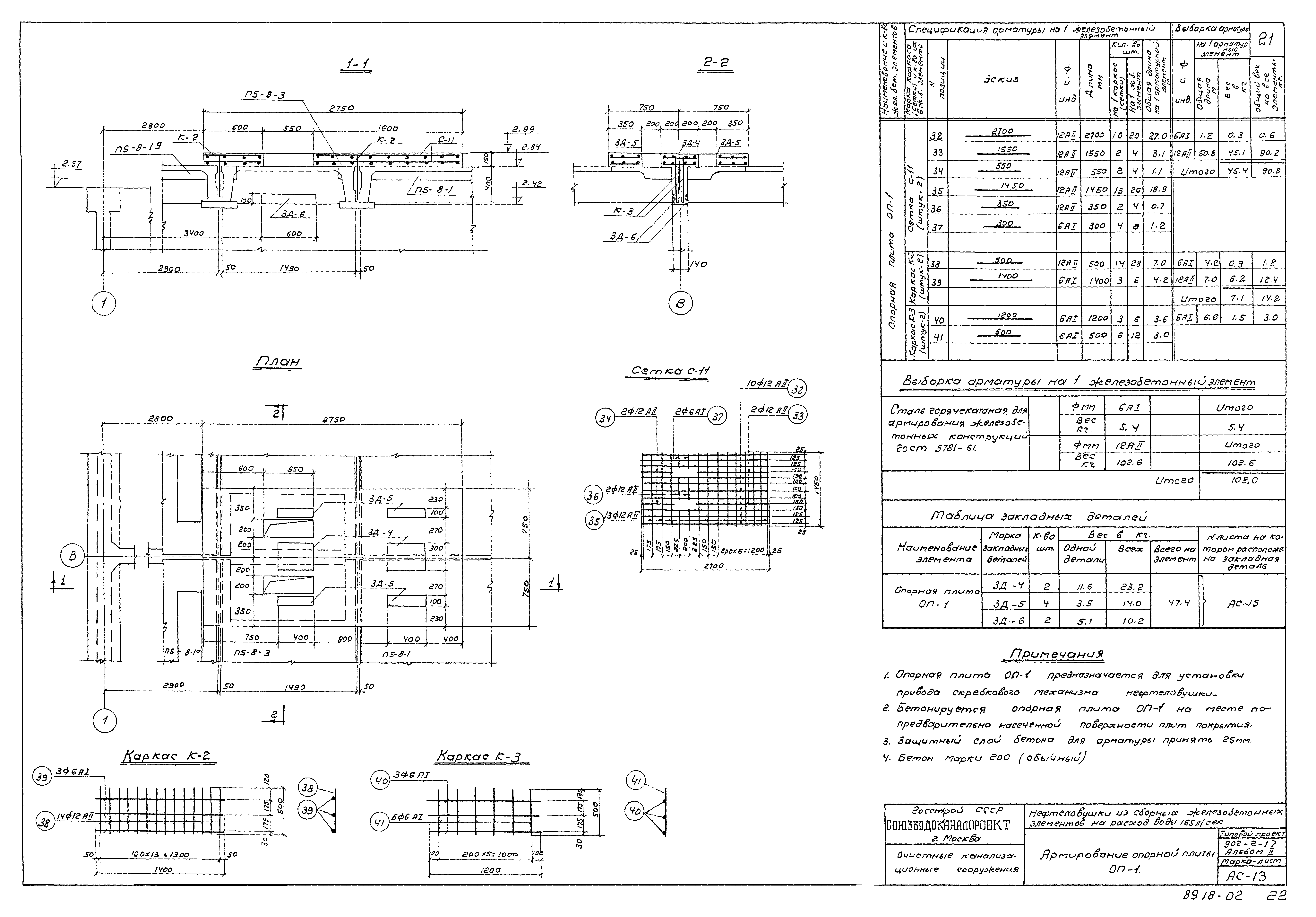
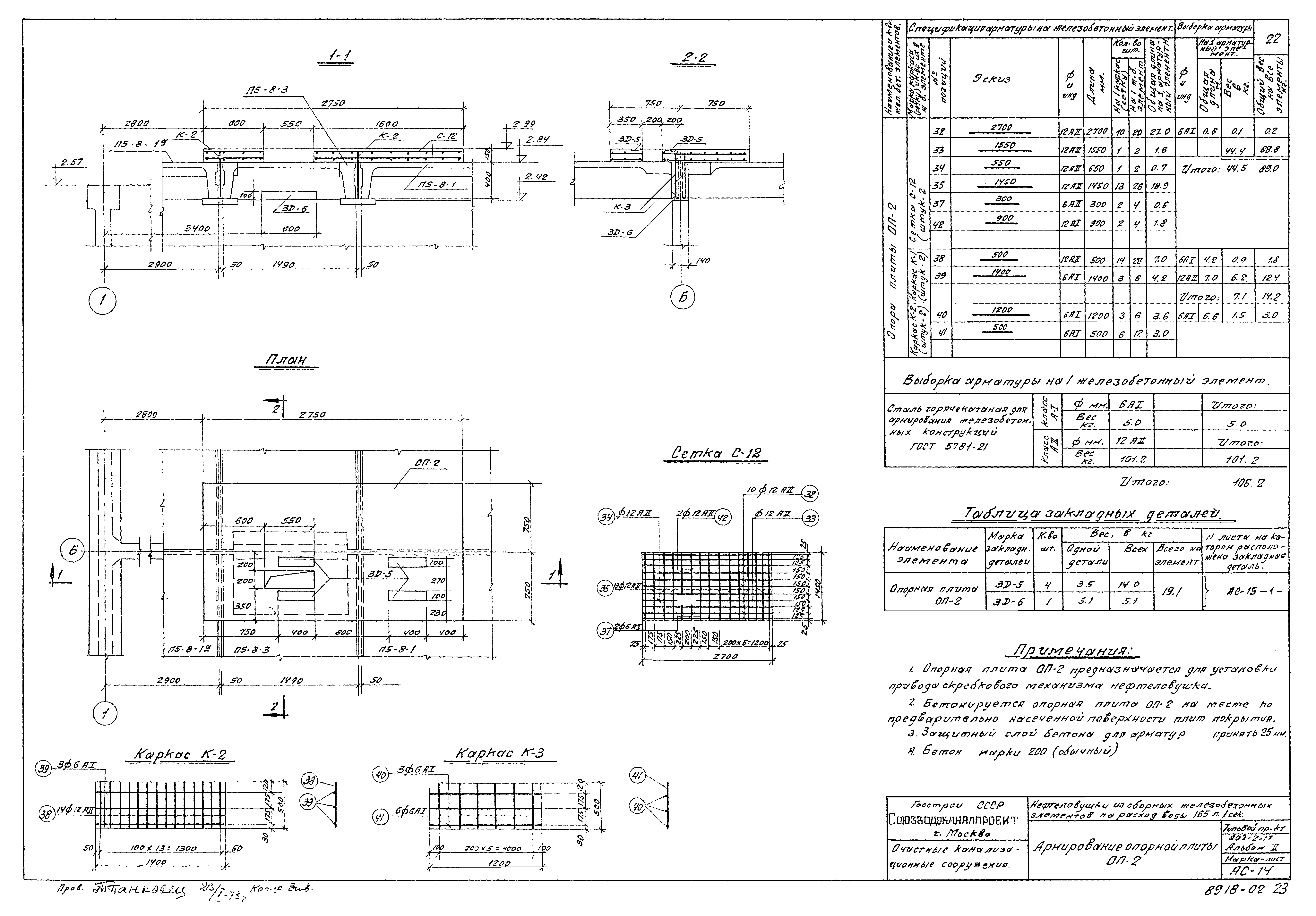
| Оглавление: | ТП 902-2-17-С-1 Содержание альбома ТП 902-2-17-ПЗ-1-6 Пояснительная записка ТП 902-2-17 Чертежи нефтеловушки ТП 902-2-17-АС-1 Заглавный лист ТП 902-2-17-АС-2 Заказ стали ТП 902-2-17-АС-3 Общие виды. План ТП 902-2-17-АС-4 Общие виды. Разрезы 1-1,2-2 и 3-3 ТП 902-2-17-АС-5 Узлы ТП 902-2-17-АС-6 Маркировочные планы стеновых панелей, закладных и накладных деталей и узлы ТП 902-2-17-АС-7 Армирование днища. Планы раскладки арматурных сеток и каркасов ТП 902-2-17-АС-8 Армирование днища. Разрез 1-1 ТП 902-2-17-АС-9 Армирование днища. Разрез 2-2 и 3-3 ТП 902-2-17-АС-10 Армирование днища. Спецификация арматурных сеток и каркасов ТП 902-2-17-АС-11 Армирование монолитных участков и верхних обвязок стен. Планы, разрезы 1-1 и 2-2 ТП 902-2-17-АС-12 Армирование монолитных участков и верхних обвязок стен. Разрезы 3-3,4-4,5-5 и спецификация ТП 902-2-17-АС-13 Армирование опорной плиты ОП-1 ТП 902-2-17-АС-14 Армирование опорной плиты ОП-2 ТП 902-2-17-АС-15 Стальные детали ТП 902-2-17 Чертежи колодцев при нефтеловушке ТП 902-2-17-АС-16 Колодцы при удалении осадка из нефтеловушки гидроэлеваторами. Общие виды и спецификации ТП 902-2-17-АС-17 Колодцы при удалении осадка из нефтеловушки через данные клапаны. Общие виды и спецификации ТП 902-2-17 Чертежи электрощитовой при нефтеловушке ТП 902-2-17-АС-18 Общие виды ТП 902-2-17-АС-19 Подземная часть ТП 902-2-17-АС-20 Ведомость сборных бетонных и железобетонных элементов, заказ стали |
| Разработан: | Союзводоканалпроект |
| Утверждён: | 30.12.1966 Союзводоканалпроект (Soyuzvodokanalproject 192) |




























