Скачать Типовой проект 902-2-149 Альбом I. Общая пояснительная записка. Технологическая и санитарно-техническая частиДата актуализации: 01.01.2021
|
| Обозначение: | Типовой проект 902-2-149 |
| Обозначение англ: | 902-2-149 |
| Статус: | не действует |
| Название рус.: | Альбом I. Общая пояснительная записка. Технологическая и санитарно-техническая части |
| Дата добавления в базу: | 01.09.2013 |
| Дата актуализации: | 01.01.2021 |
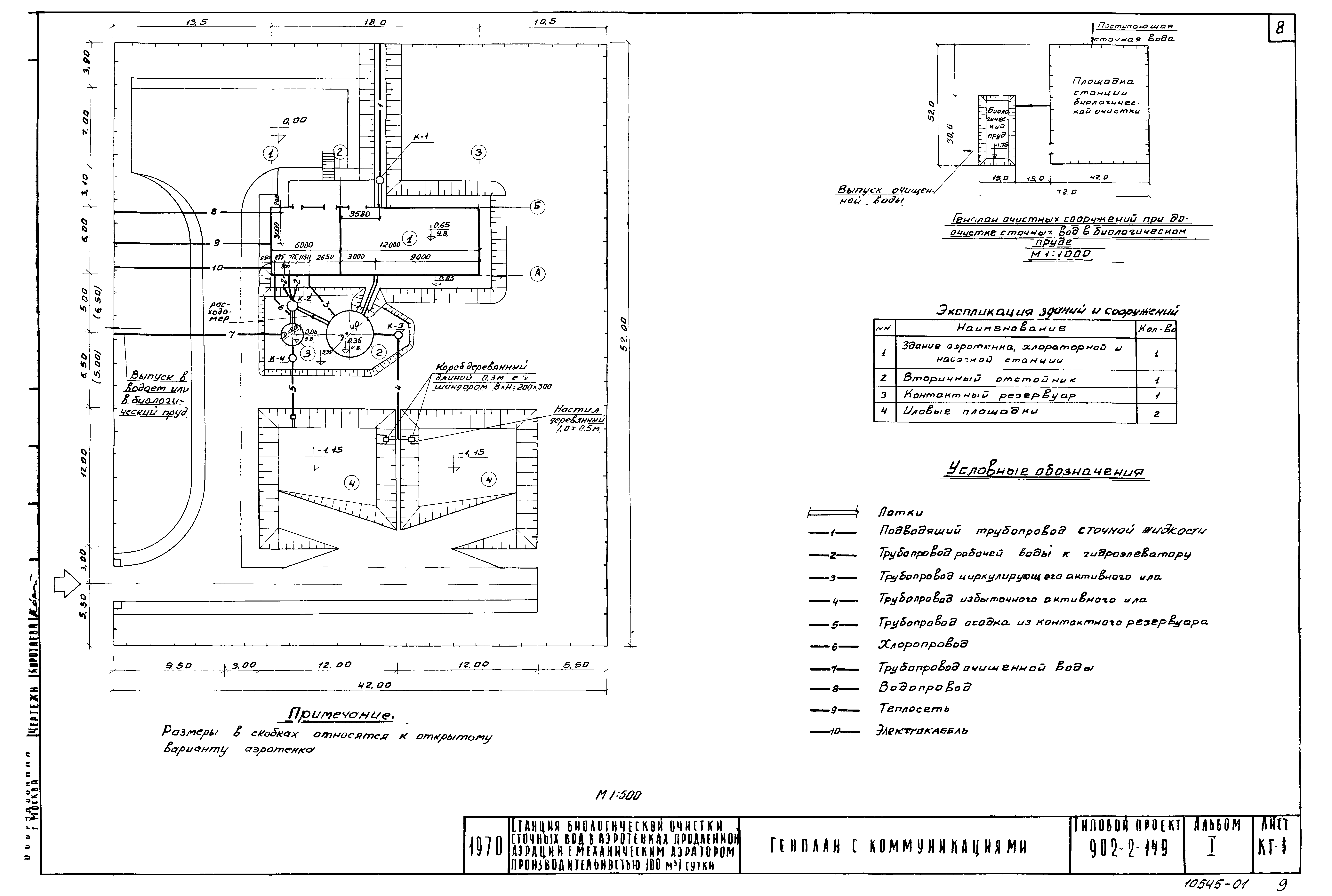
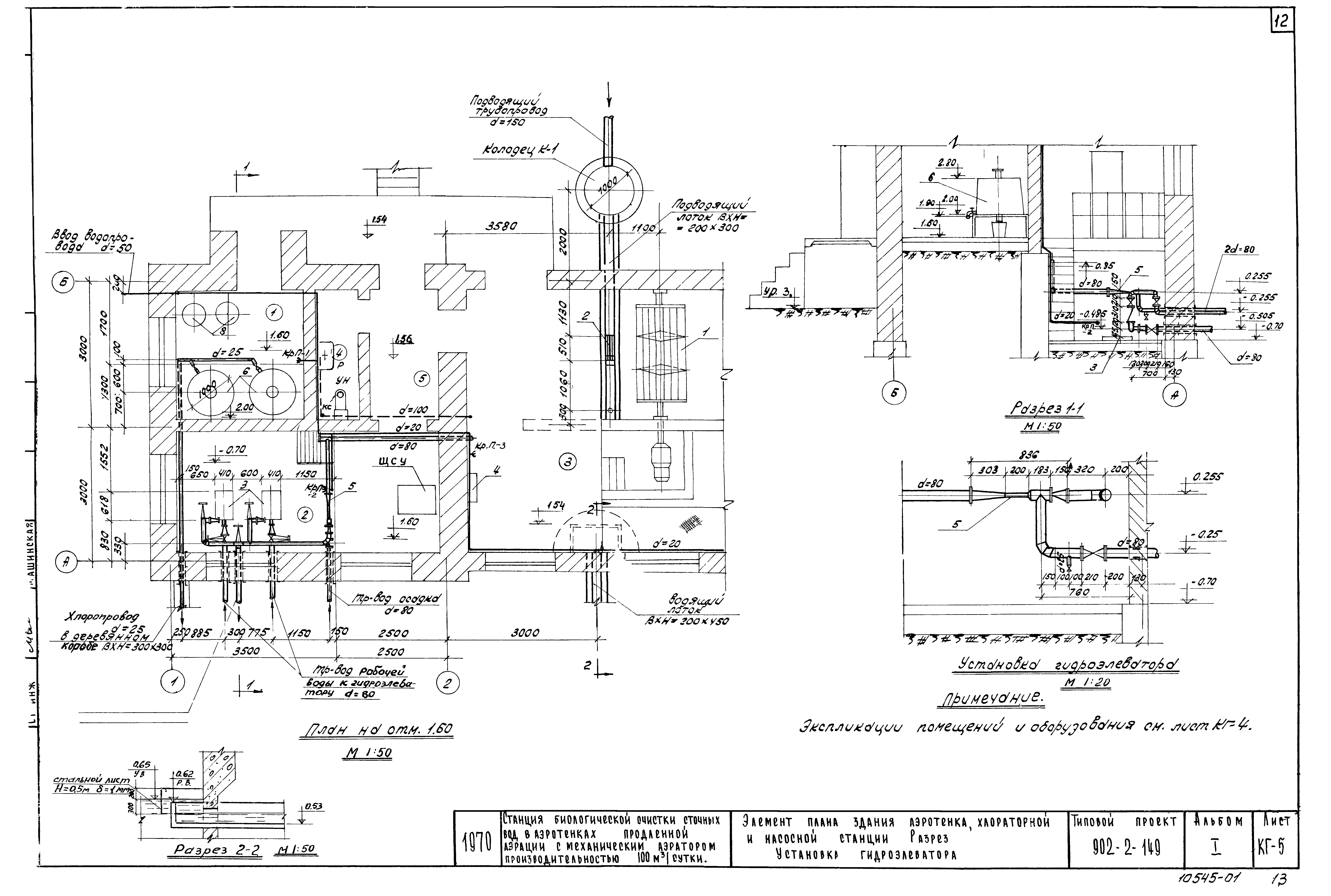
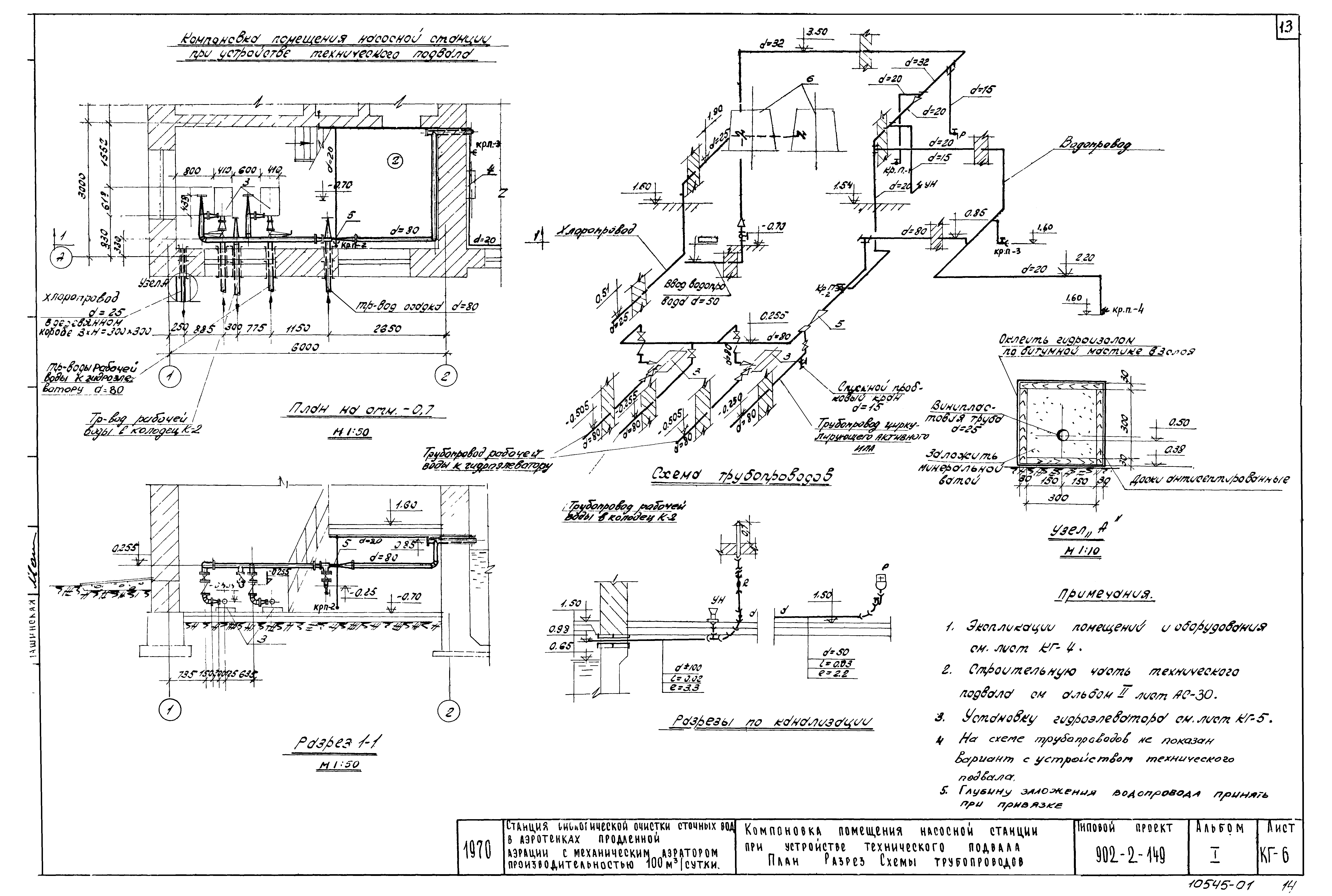
| Оглавление: | ТП 902-2-149 Содержание альбома. Общая пояснительная записка ТП 902-2-149 Общая пояснительная записка ТП 902-2-149 Технологическая часть ТП 902-2-149 Перечень чертежей. Пояснительная записка ТП 902-2-149 Пояснительная записка ТП 902-2-149-КГ-1 Генплан с коммуникациями ТП 902-2-149-КГ-2 Профиль движения воды. Профиль трубопровода избыточного активного ила ТП 902-2-149-КГ-3 Профили трубопроводов осадка из контактного резервуара, рабочей воды гидроэлеватора, циркулирующего активного ила и хлоропровода ТП 902-2-149-КГ-4 Здание аэротенка, хлораторной и насосной станции. План. Разрезы. Экспликации помещений и оборудования ТП 902-2-149-КГ-5 Элемент плана здания аэротенка, хлораторной и насосной станции. Разрез. Установка гидроэлеватора ТП 902-2-149-КГ-6 Компоновка помещения насосной станции при устройстве технического подвала. План. Разрез. Схемы трубопроводов ТП 902-2-149-КГ-7 Отстойник ТП 902-2-149-КГ-8 Контактный резервуар. Колодцы К-1,К-2,К-3,К-4 ТП 902-2-149-КГ-9 Спецификации ТП 902-2-149-ОВ Санитарно-техническая часть ТП 902-2-149-ОВ-1 Заглавный лист ТП 902-2-149-ОВ-2 Спецификация материалов ТП 902-2-149-ОВ-3 Планы с нанесение систем отопления и вентиляции. Схемы систем отопления и вентиляции |
| Разработан: | ЦНИИЭП инженерного оборудования Госгражданстроя |
| Утверждён: | 21.07.1970 ЦНИИЭП инженерного оборудования (TsNIIEP of Building Service Equipment 96) |
| Издан: | ЦИТП Госстроя СССР (CITP, Gosstroy (USSR) 1975 г. ) |




















