Скачать Типовой проект 902-2-149 Альбом II. Архитектурно-строительная частьДата актуализации: 01.01.2021
|
| Обозначение: | Типовой проект 902-2-149 |
| Обозначение англ: | 902-2-149 |
| Статус: | не действует |
| Название рус.: | Альбом II. Архитектурно-строительная часть |
| Дата добавления в базу: | 01.09.2013 |
| Дата актуализации: | 01.01.2021 |
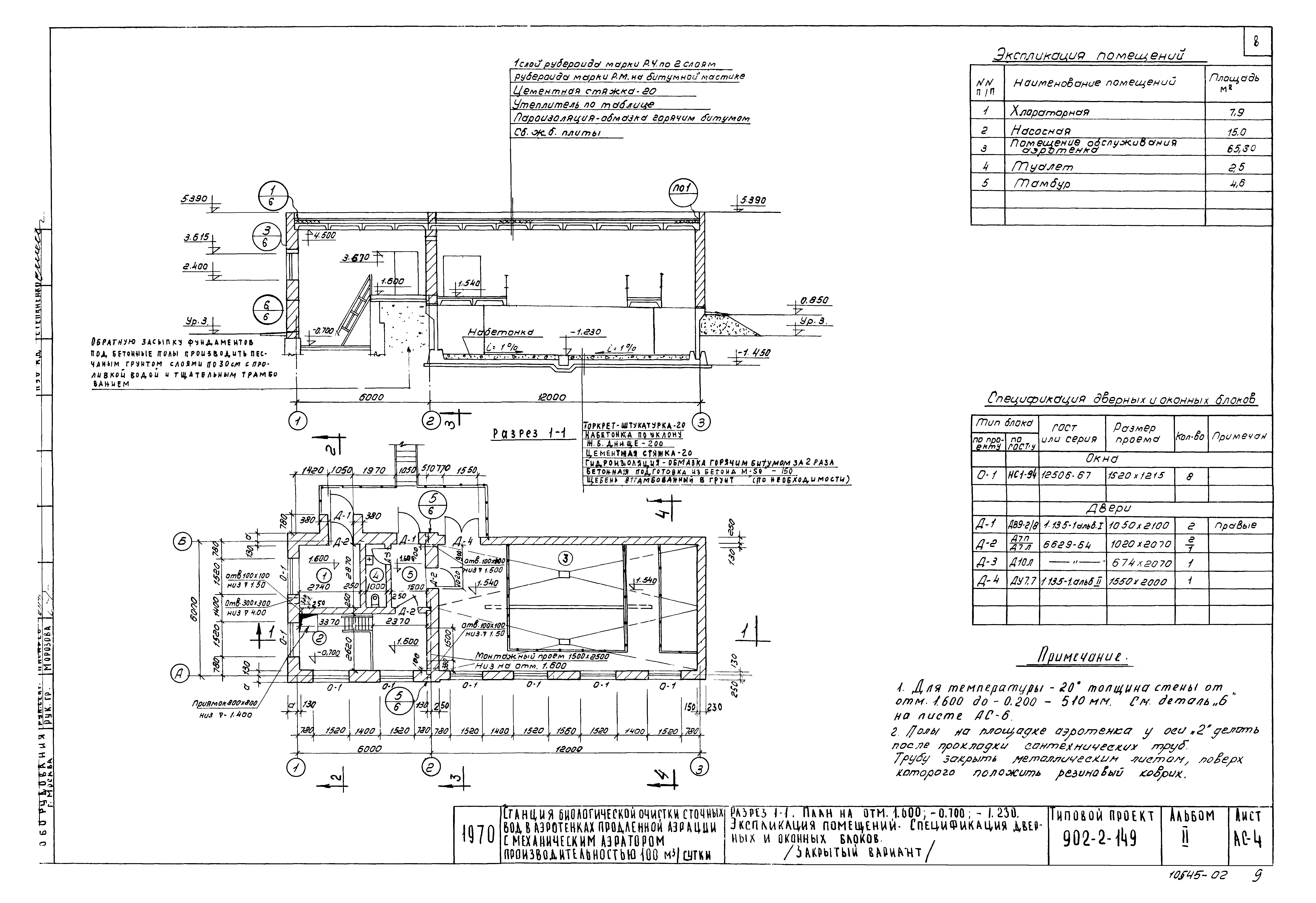
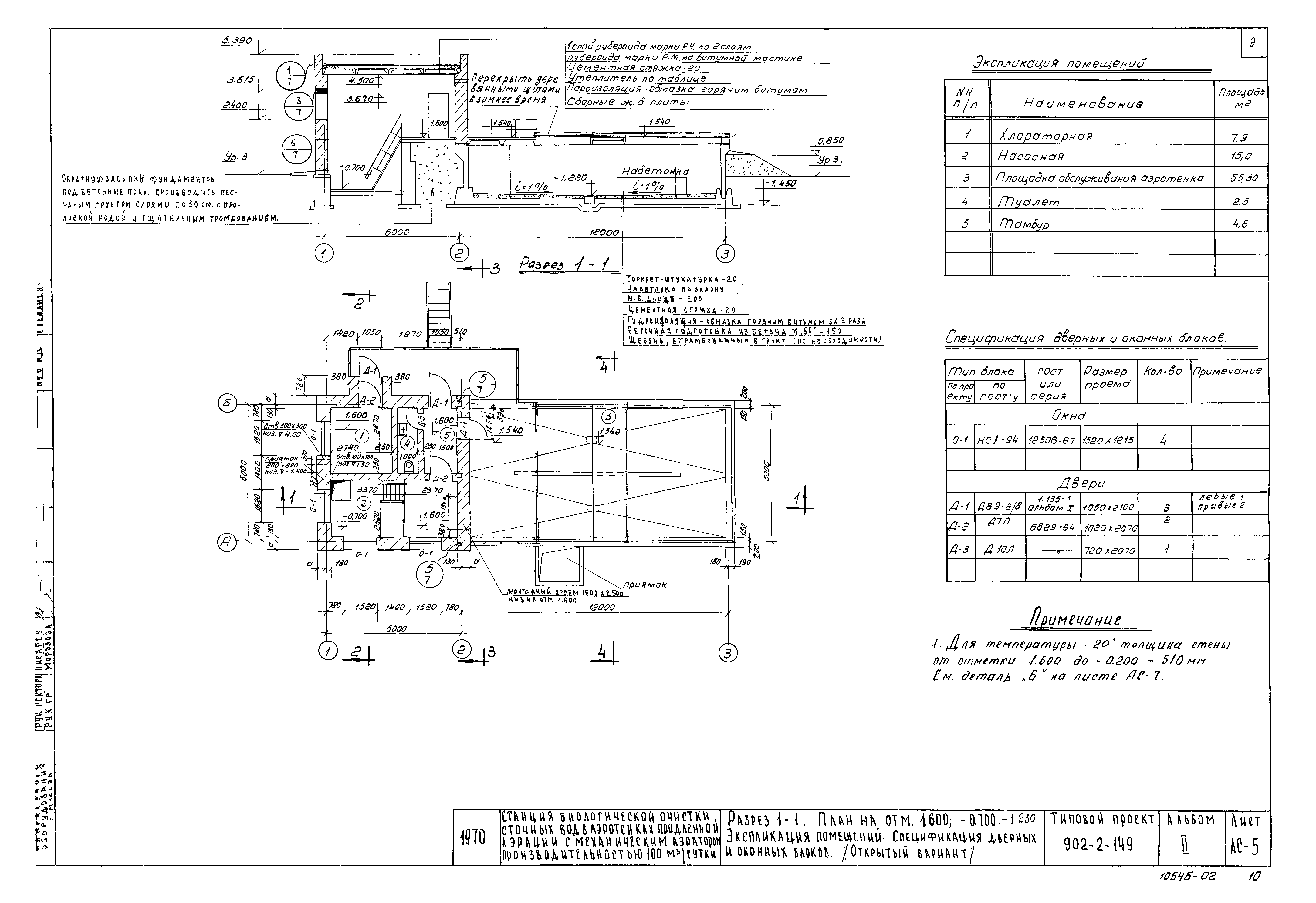
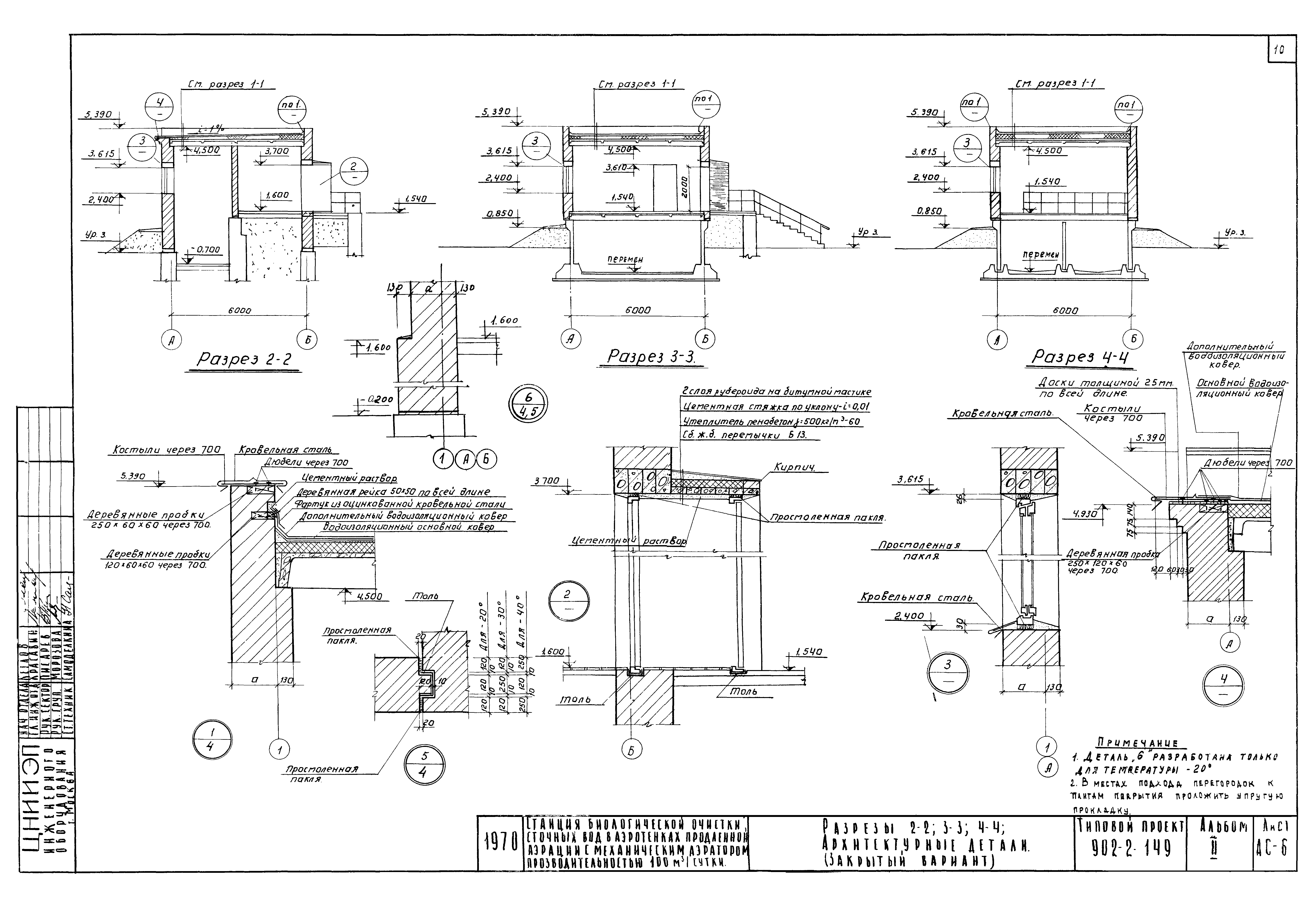
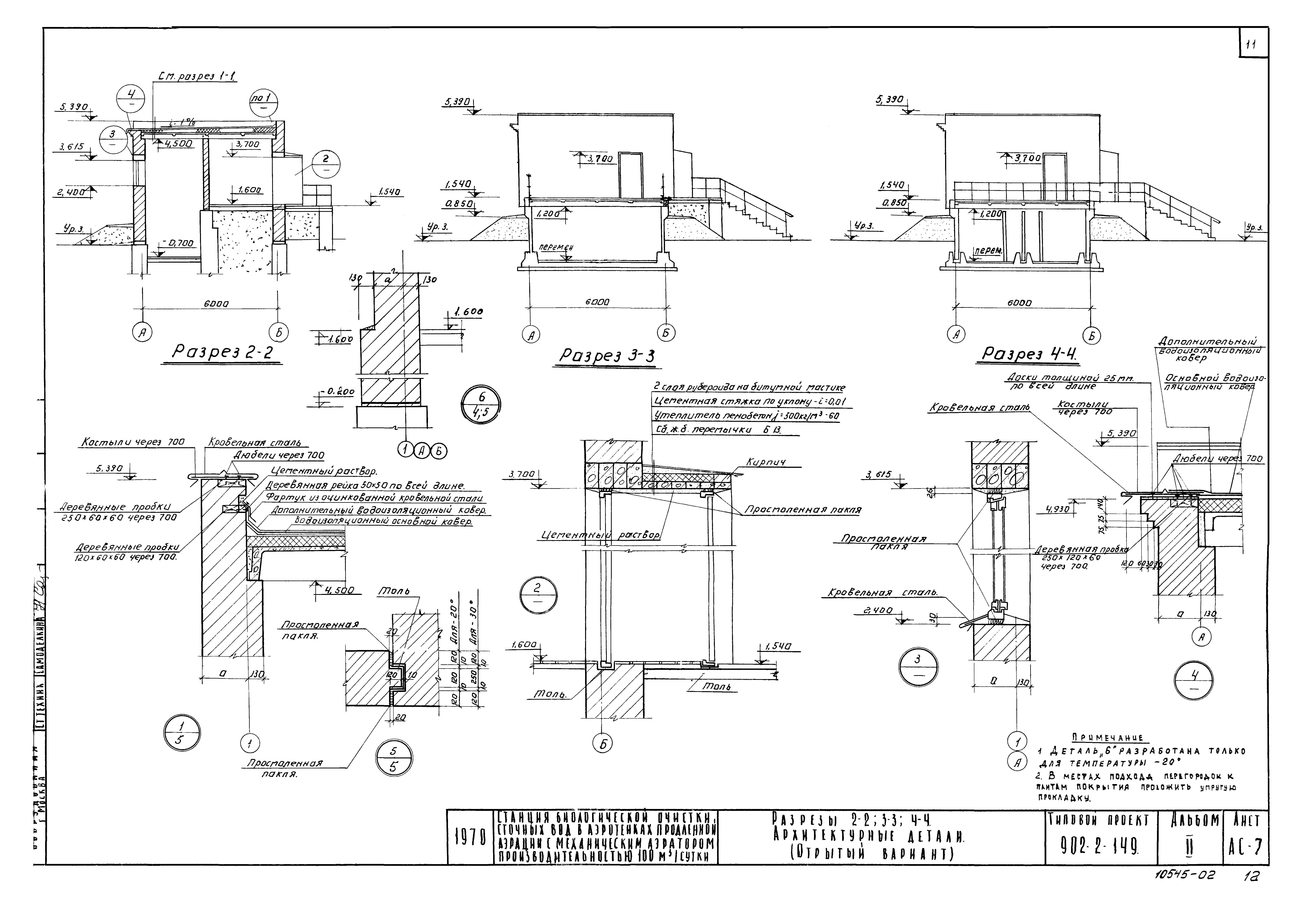
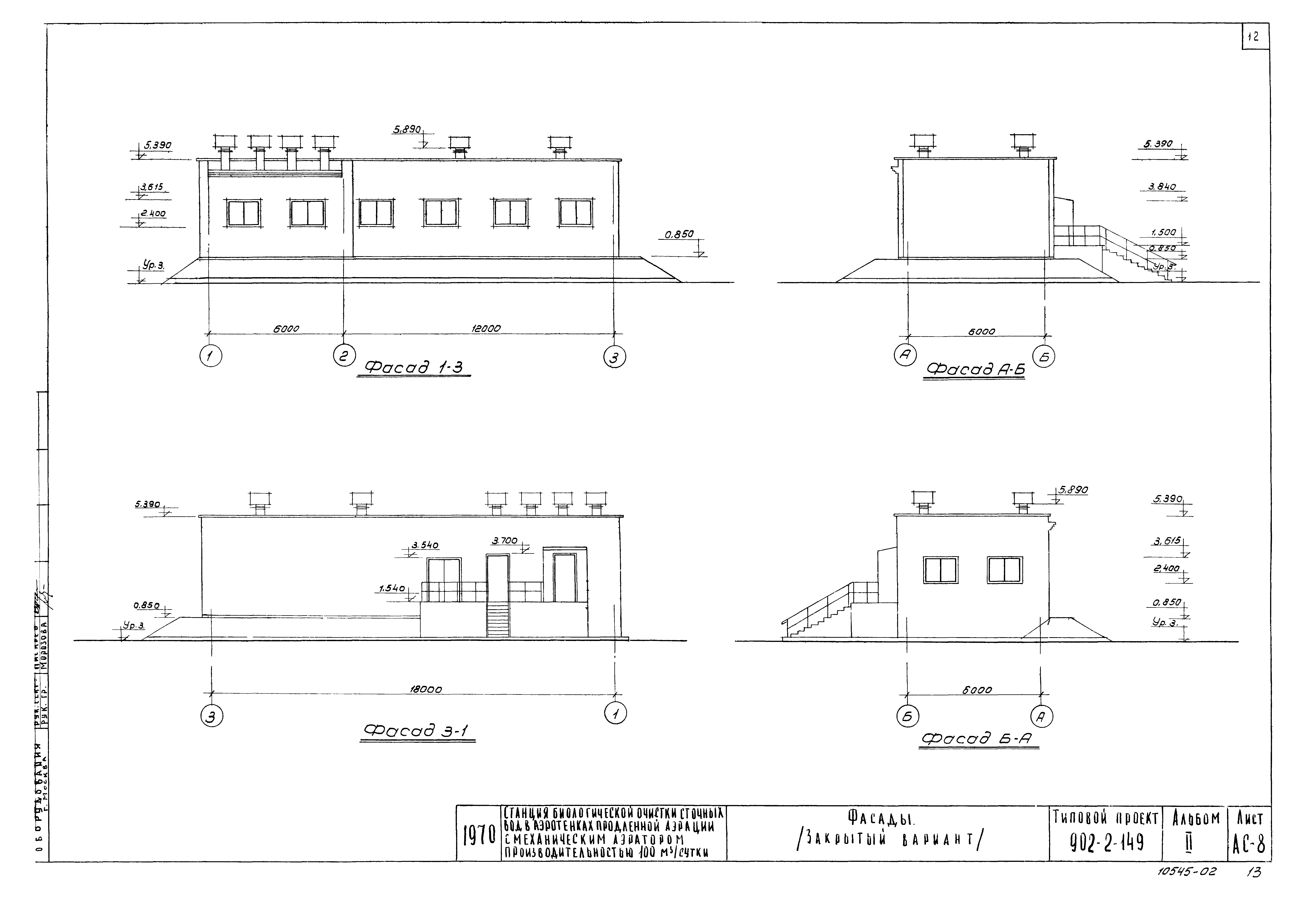
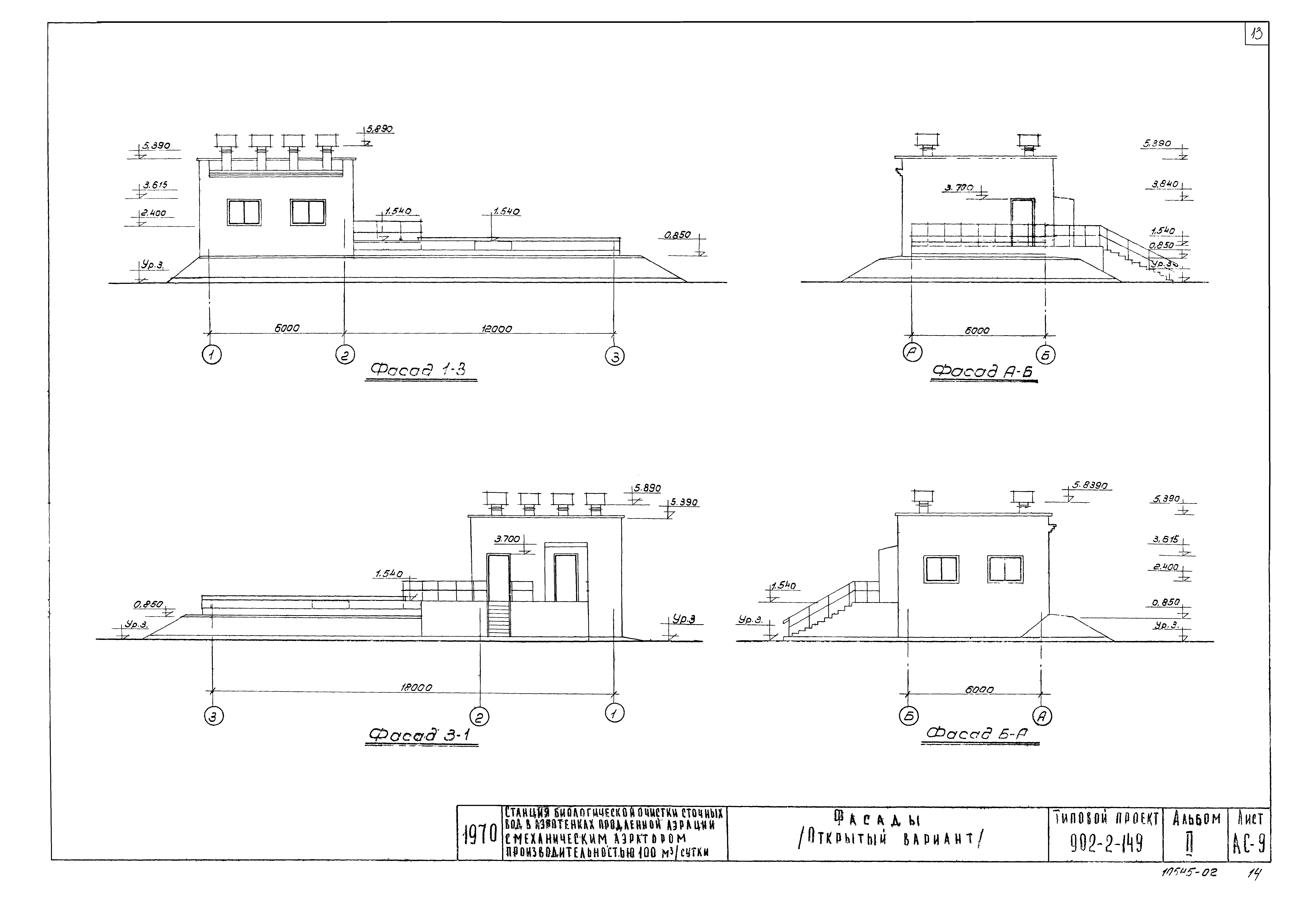
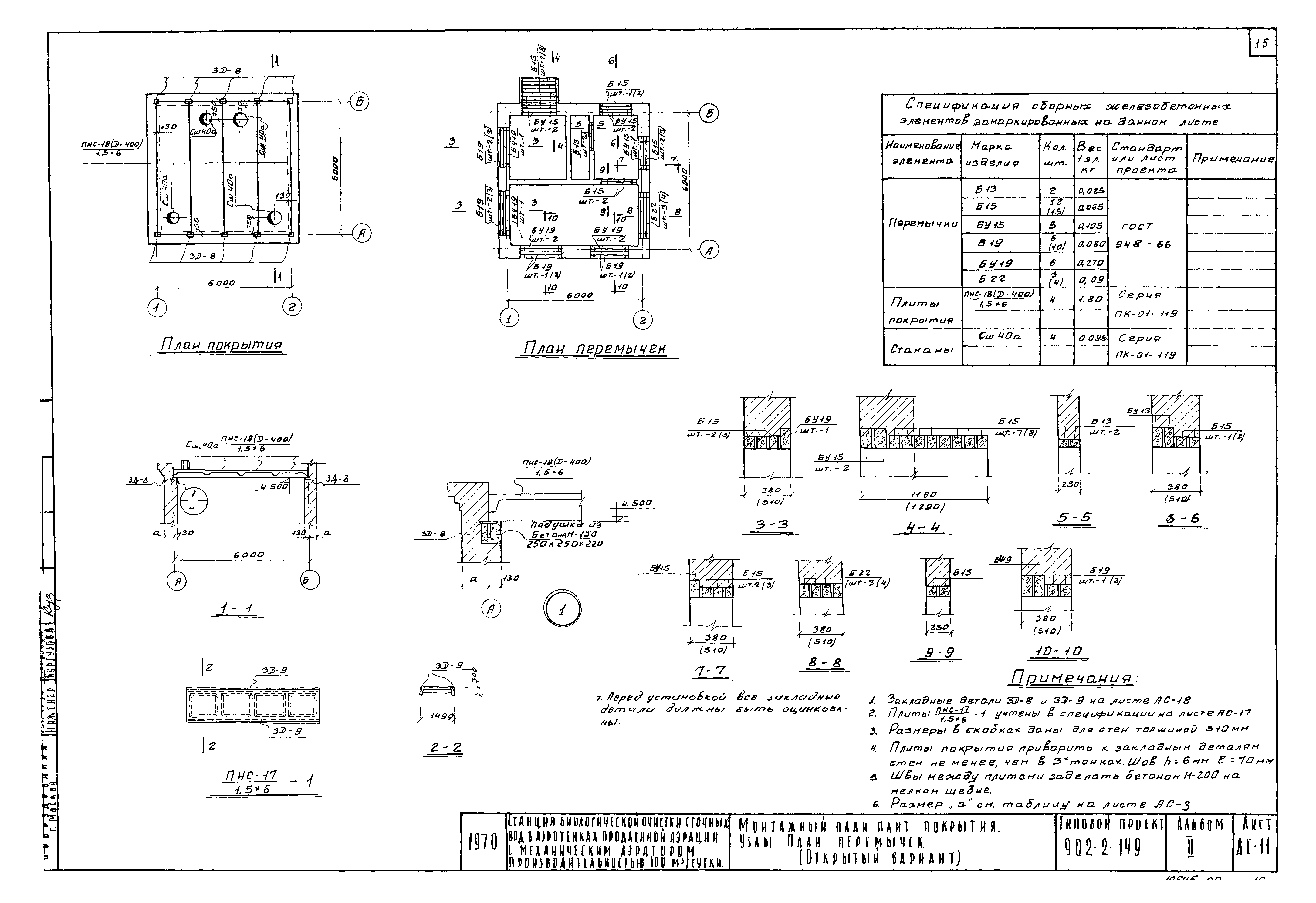
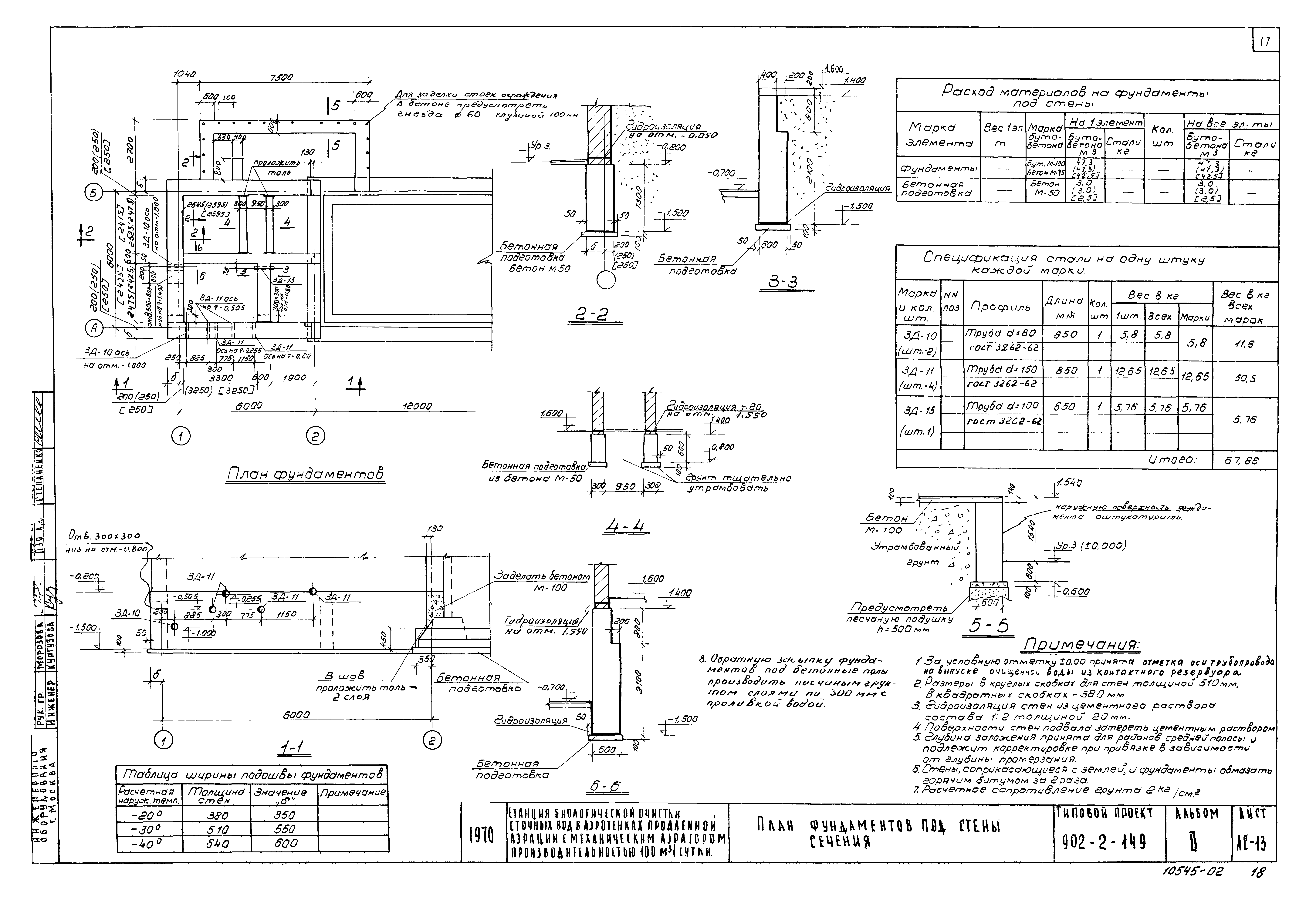
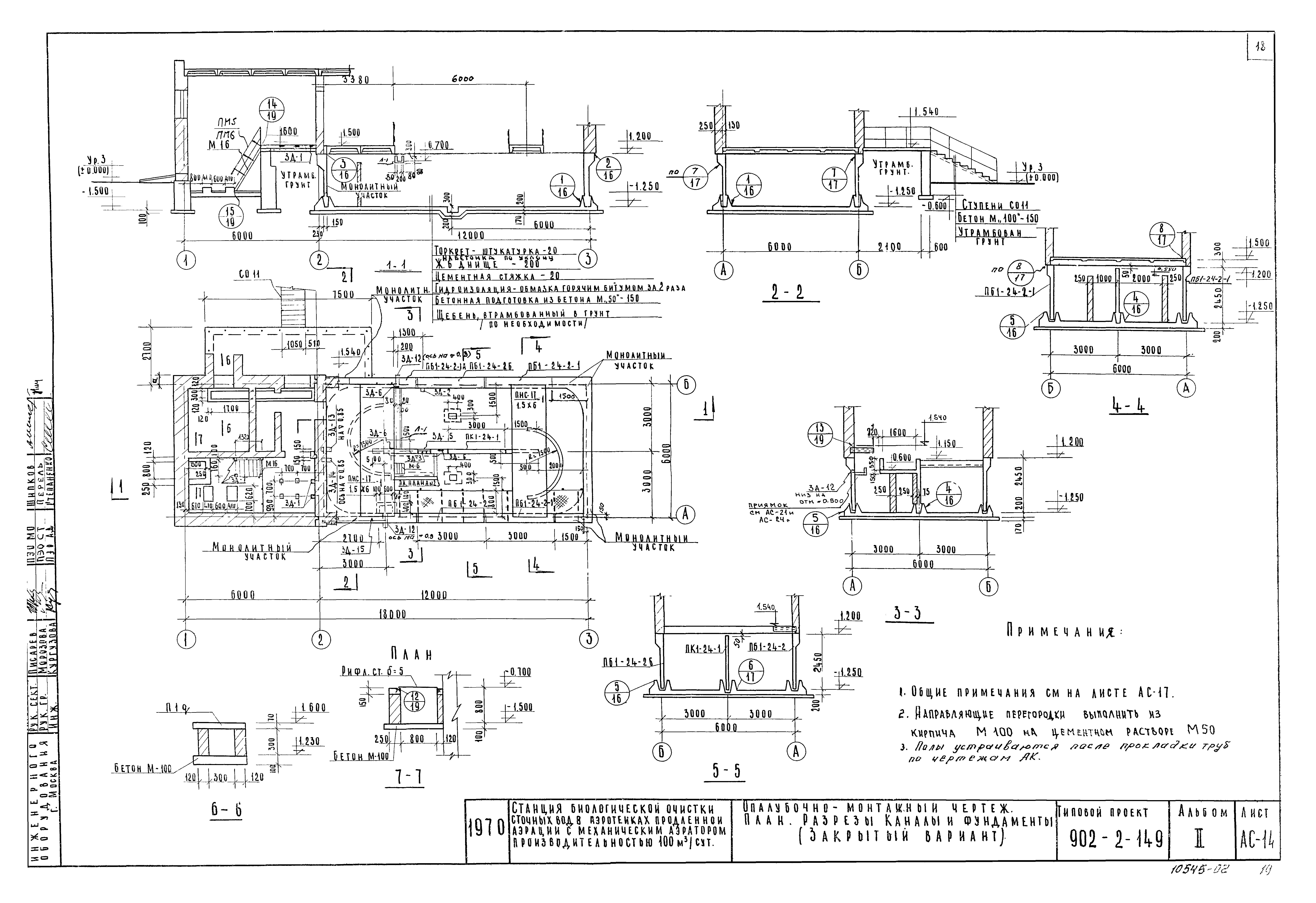
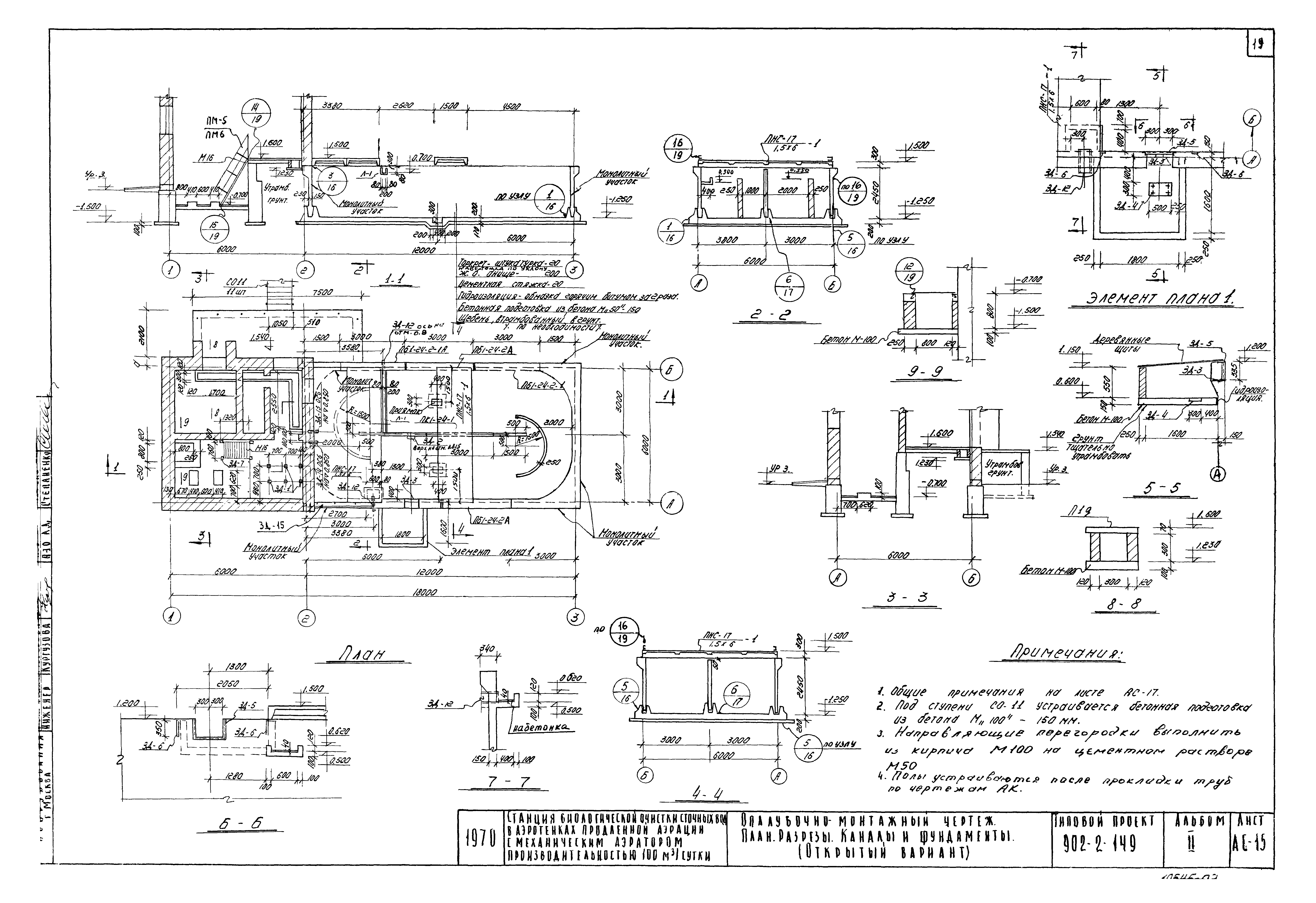
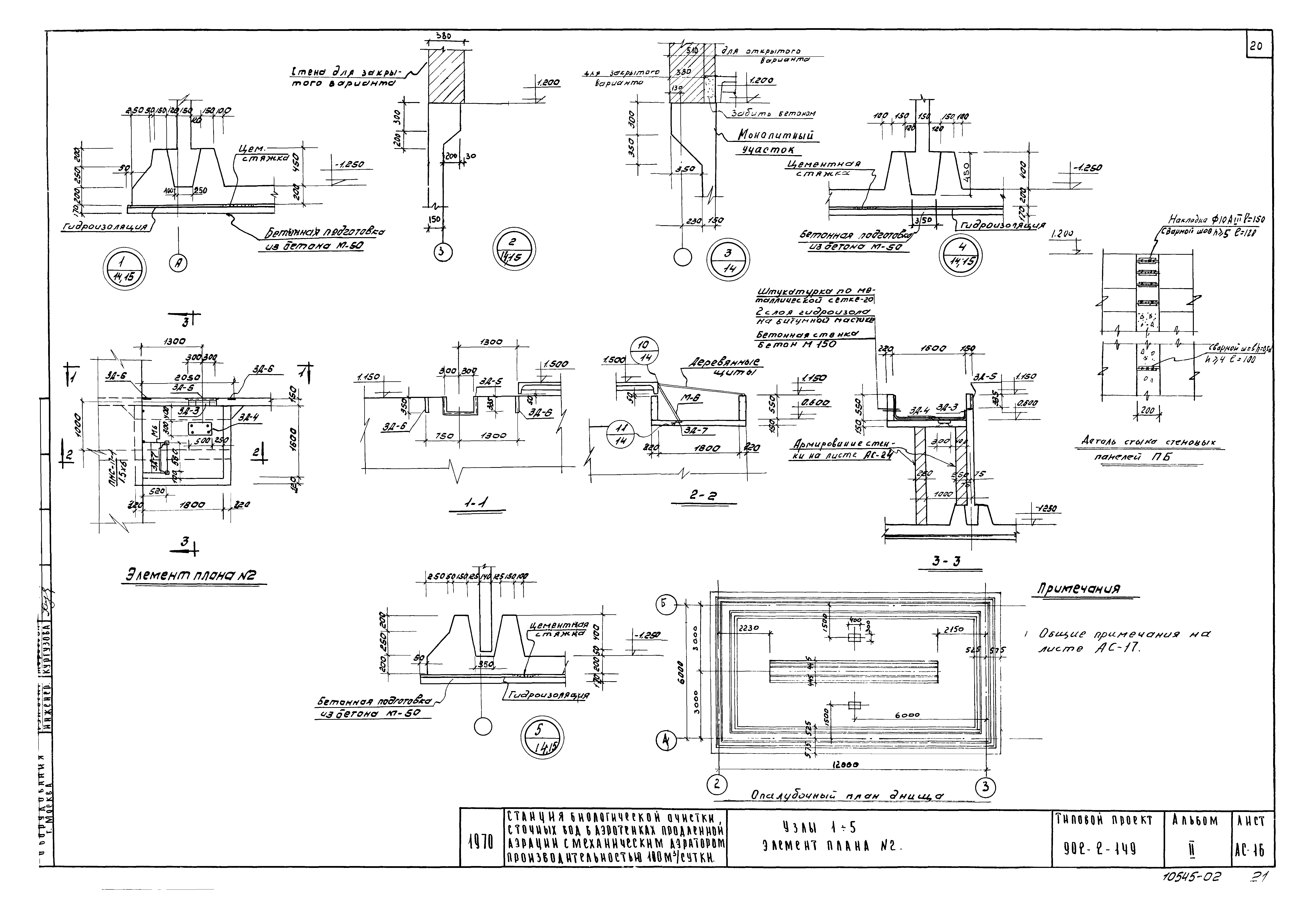
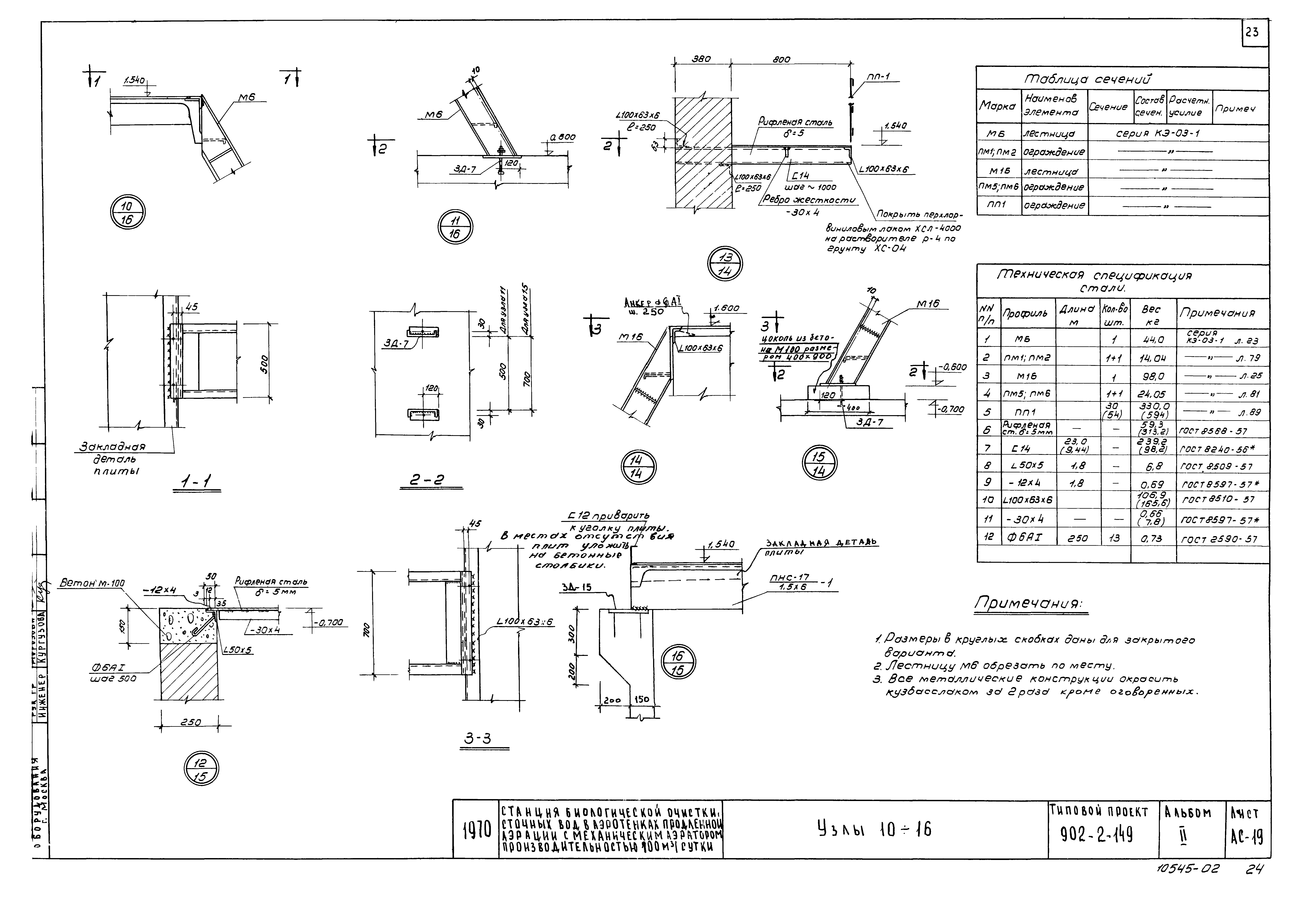
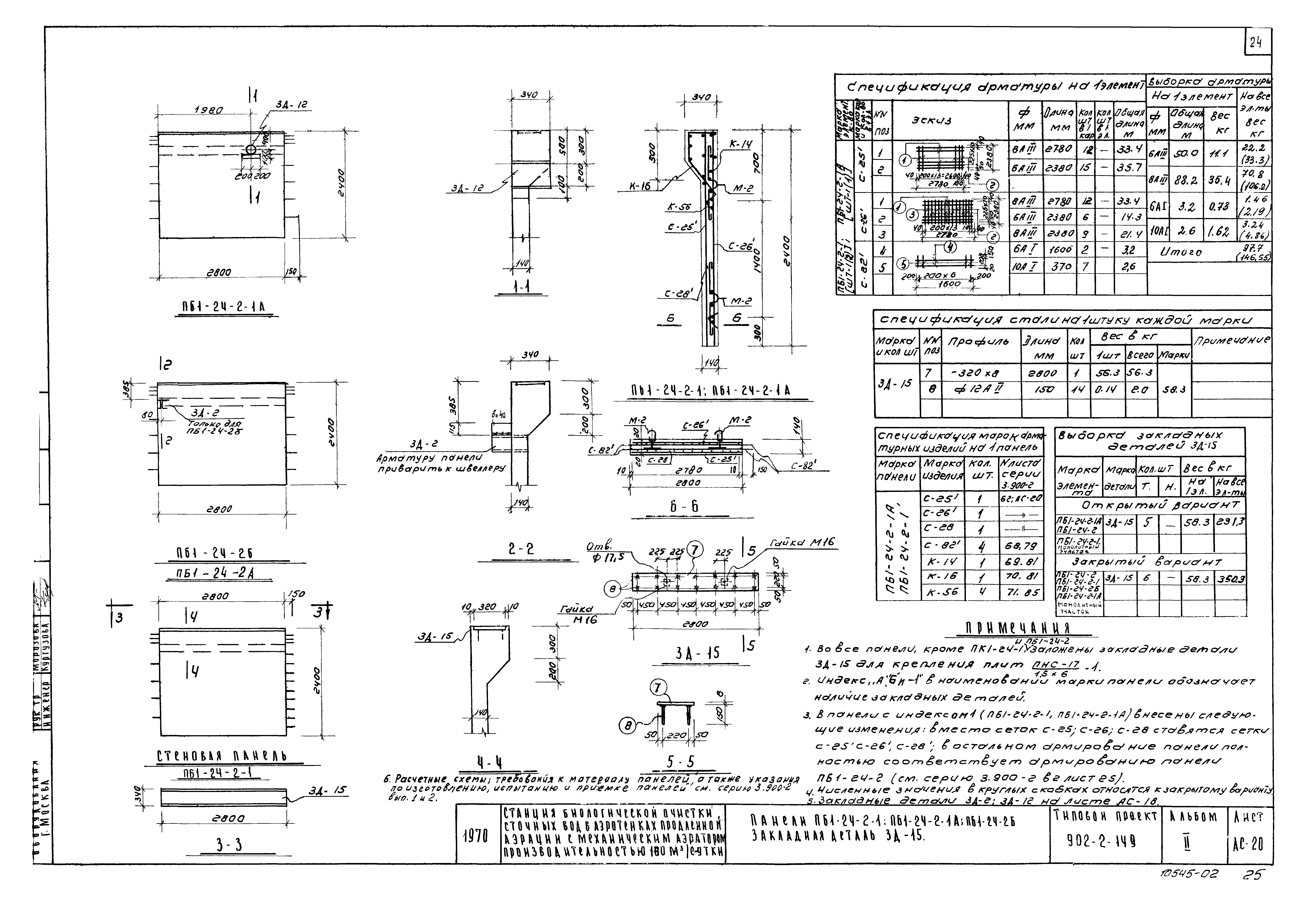
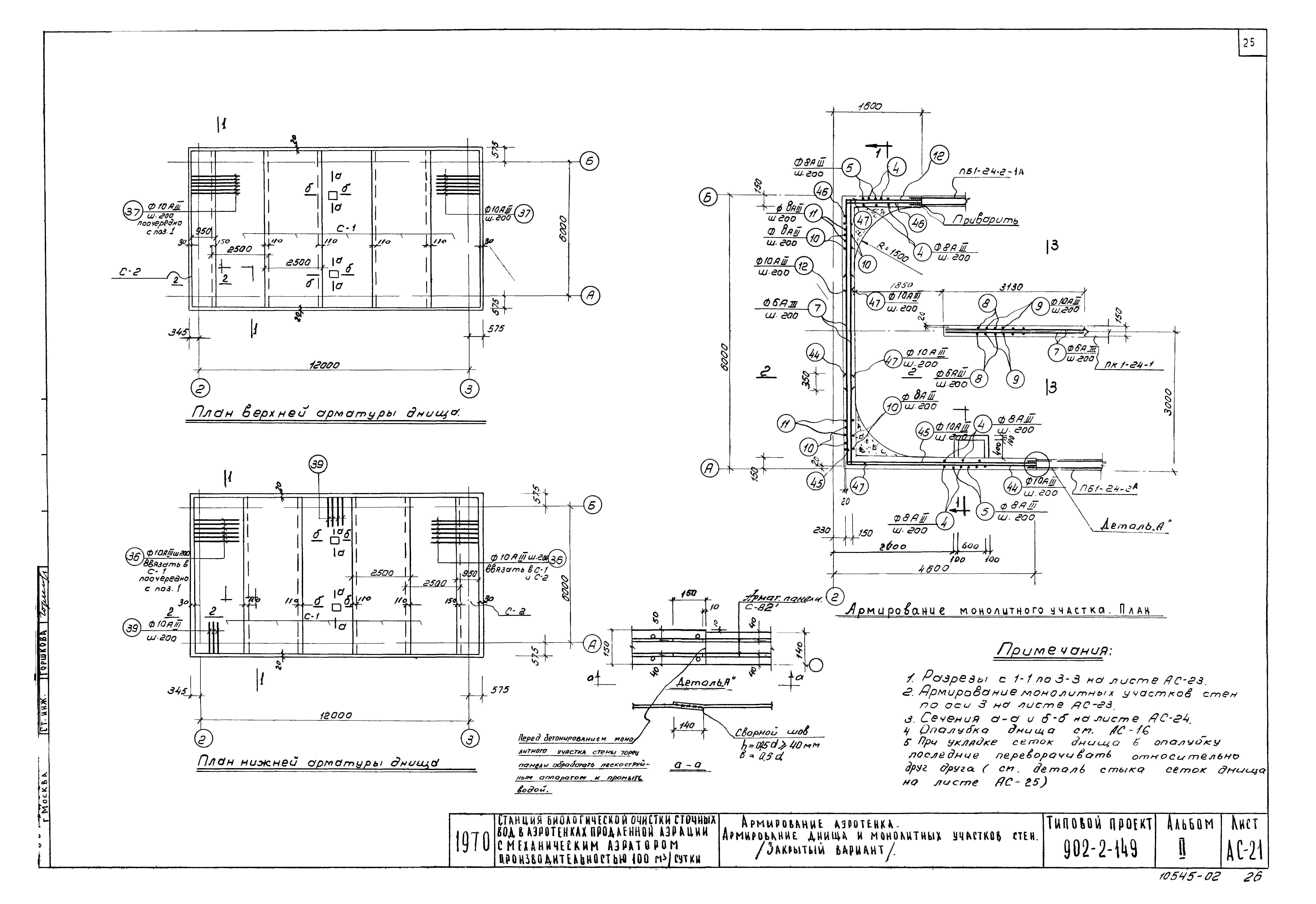
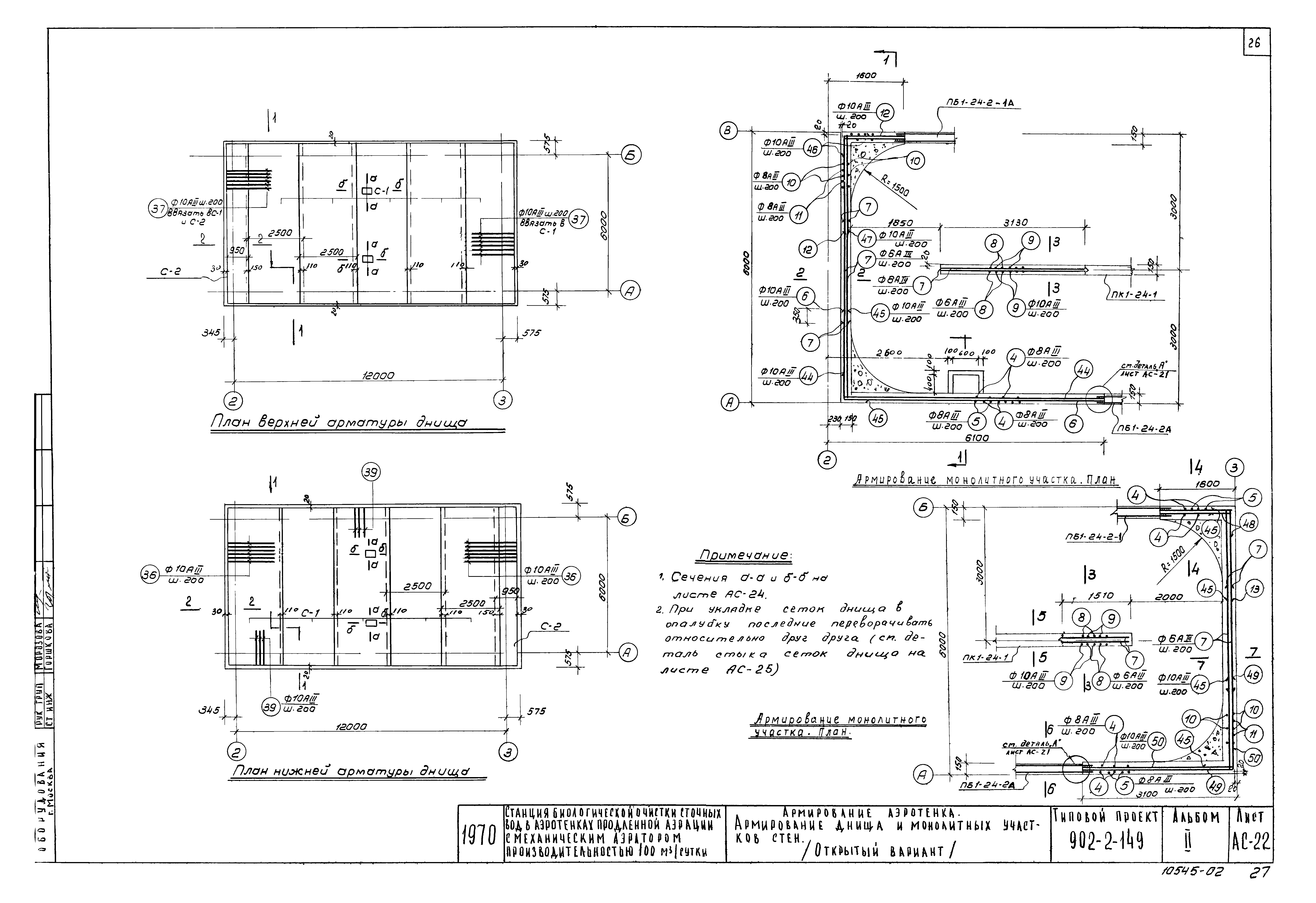
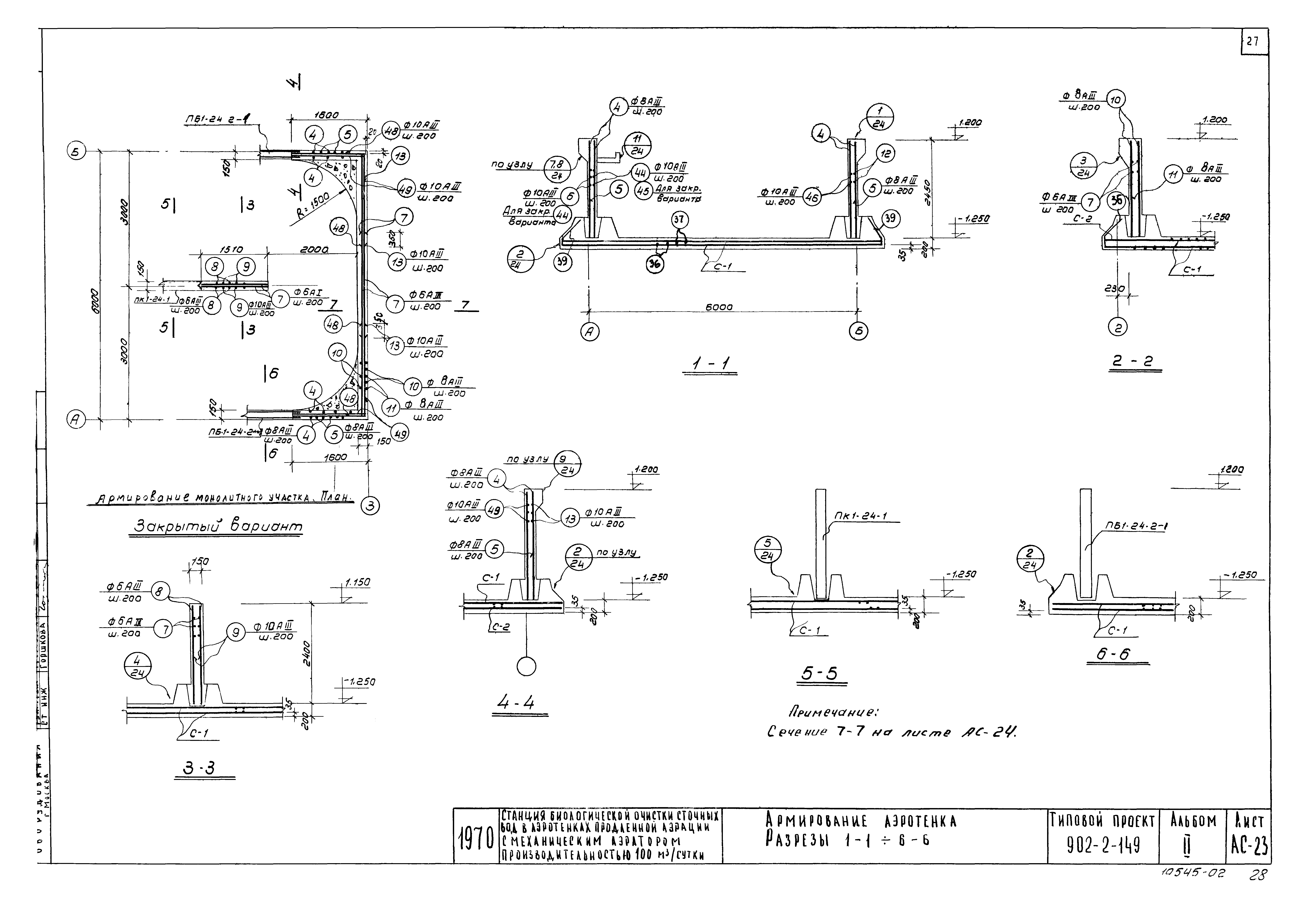
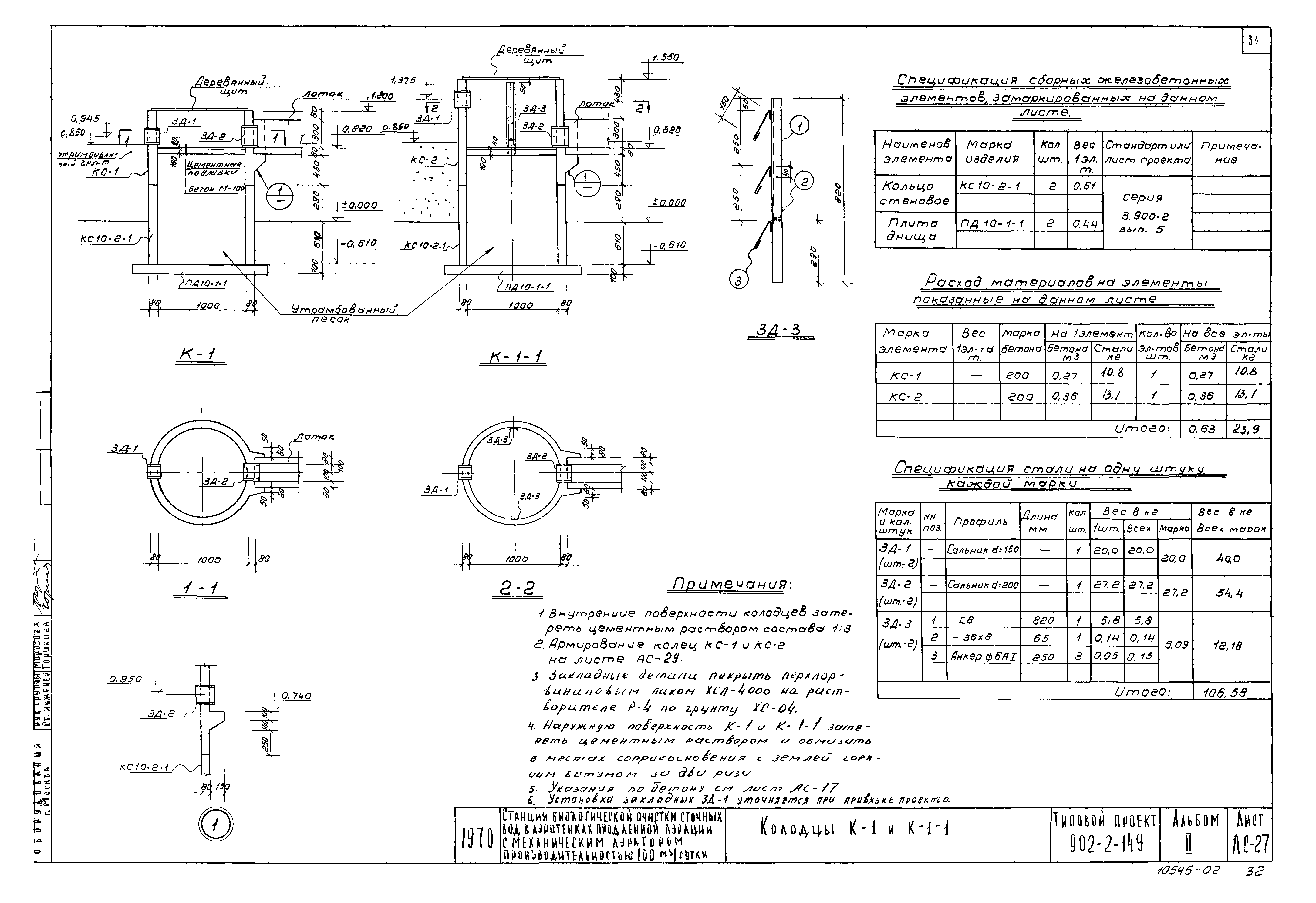
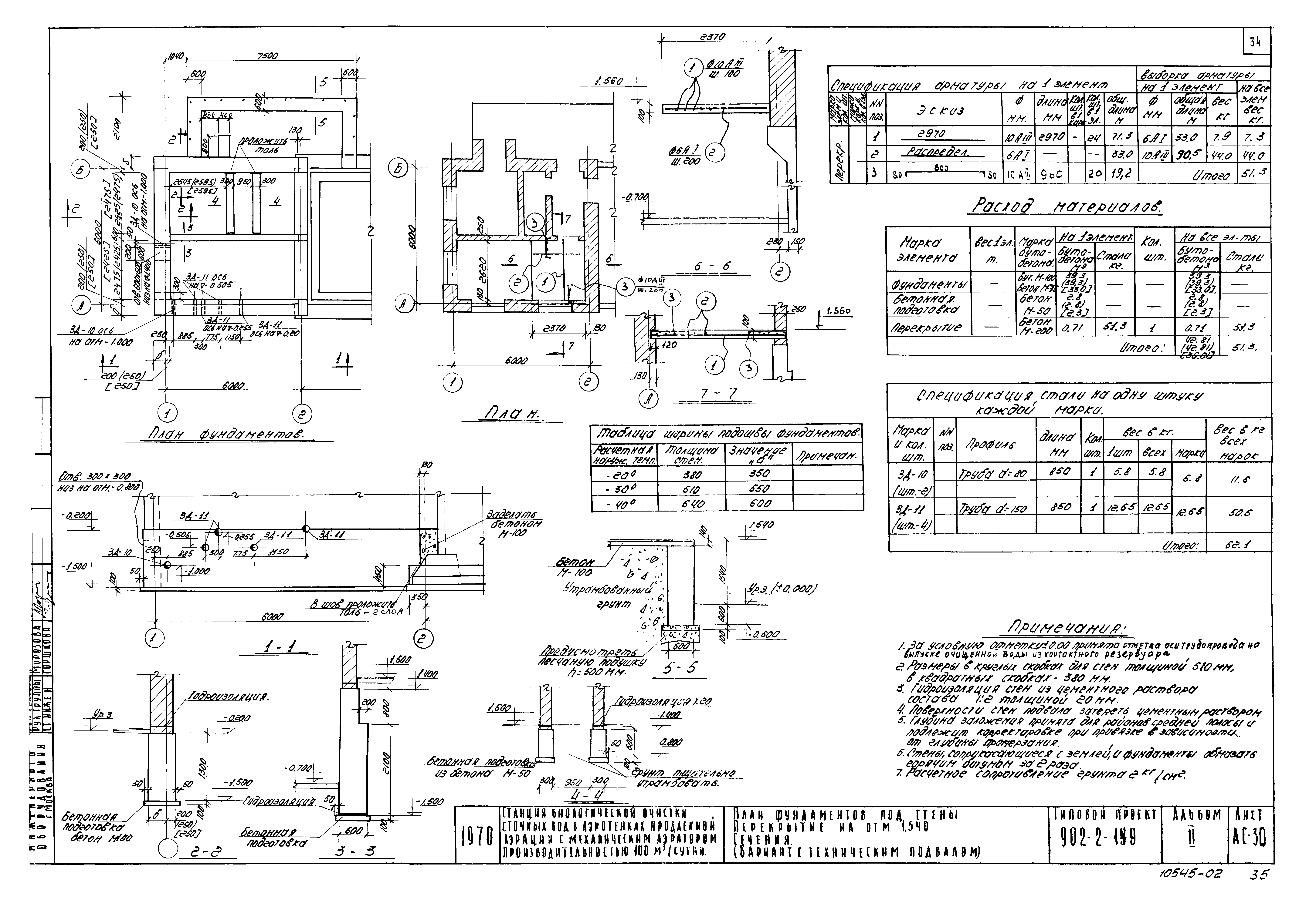
| Оглавление: | ТП 902-2-149 Содержание альбома ТП 902-2-149 Пояснительная записка ТП 902-2-149-АС-1 Примерный генплан ТП 902-2-149-АС-2 Ведомость внутренней отделки помещений. Экспликация полов. Перечень стандартов и типовых чертежей. Таблица толщин стен и кровельного утеплителя. Общие указания. План кровли. (Закрытый вариант) ТП 902-2-149-АС-3 Ведомость внутренней отделки помещений. Экспликация полов. Перечень стандартов и типовых чертежей. Таблица толщин стен и кровельного утеплителя. Общие указания. План кровли. (Открытый вариант) ТП 902-2-149-АС-4 Разрез 1-1. План на отм. 1.600. Экспликация помещений. Спецификация дверных и оконных блоков (Закрытый вариант) ТП 902-2-149-АС-5 Разрез 1-1. План на отм. 1.600. Экспликация помещений. Спецификация дверных и оконных блоков (Открытый вариант) ТП 902-2-149-АС-6 Разрезы 2-2;3-3;4-4. Архитектурные детали. (Закрытый вариант) ТП 902-2-149-АС-7 Разрезы 2-2;3-3;4-4. Архитектурные детали. (Открытый вариант) ТП 902-2-149-АС-8 Фасады (Закрытый вариант) ТП 902-2-149-АС-9 Фасады (Открытый вариант) ТП 902-2-149-АС-10 Монтажный план плит покрытия. Узлы. (Закрытый вариант) ТП 902-2-149-АС-11 Монтажный план плит покрытия. Узлы. План перемычек. (Открытый вариант) ТП 902-2-149-АС-12 План перемычек. (Закрытый вариант) ТП 902-2-149-АС-13 План фундаментов под стены. Сечения ТП 902-2-149-АС-14 Опалубочный монтажный чертеж. План. Разрезы. Каналы и фундаменты. (Закрытый вариант) ТП 902-2-149-АС-15 Опалубочный монтажный чертеж. План. Разрезы. Каналы и фундаменты. (Открытый вариант) ТП 902-2-149-АС-16 Узлы 1-5. Элемент плана №2 ТП 902-2-149-АС-17 Узлы 6-9. Спецификация сборных железобетонных элементов ТП 902-2-149-АС-18 Закладные детали ЗД-1÷ЗД-9;ЗД-12÷ЗЛ-14 ТП 902-2-149-АС-19 Узлы 10-16 ТП 902-2-149-АС-20 Панели ПБ1-24-2-1;ПБ1-24-2-1А;ПБ1-24-2Б. Закладная деталь 3Д-15 ТП 902-2-149-АС-21 Армирование аэротенка. Армирование днища и монолитных участков стен. (Закрытый вариант) ТП 902-2-149-АС-22 Армирование аэротенка. Армирование днища и монолитных участков стен. (Открытый вариант) ТП 902-2-149-АС-23 Армирование аэротенка. Разрезы с 1-1 по 6-6 ТП 902-2-149-АС-24 Армирование аэротенка. Узлы с 1 по 11. Разрез 7-7. Армирование лотка и площадки на отм. 0.600 ТП 902-2-149-АС-25 Армирование аэротенка. Спецификация арматуры. (Закрытый вариант) ТП 902-2-149-АС-26 Армирование аэротенка. Спецификация арматуры. (Открытый вариант) ТП 902-2-149-АС-27 Колодцы К-1 и К-1-1 ТП 902-2-149-АС-28 Контактный резервуар. Колодцы К-3 и К-4 ТП 902-2-149-АС-29 Армирование КС-1;КС-2 и КС-4. Спецификация арматуры ТП 902-2-149-АС-30 План фундаментов под стены. Перекрытие на отм. 1.540. Сечения. (Вариант с техническим подвалом) ТП 902-2-149-АС-31 Колодец К-2 |
| Разработан: | ЦНИИЭП инженерного оборудования Госгражданстроя |
| Утверждён: | 21.07.1970 ЦНИИЭП инженерного оборудования (TsNIIEP of Building Service Equipment 96) |
| Издан: | ЦИТП Госстроя СССР (CITP, Gosstroy (USSR) 1975 г. ) |




































