Скачать Типовой проект 902-2-149 Альбом III. Электротехническая частьДата актуализации: 01.01.2021
|
| Обозначение: | Типовой проект 902-2-149 |
| Обозначение англ: | 902-2-149 |
| Статус: | не действует |
| Название рус.: | Альбом III. Электротехническая часть |
| Дата добавления в базу: | 01.09.2013 |
| Дата актуализации: | 01.01.2021 |
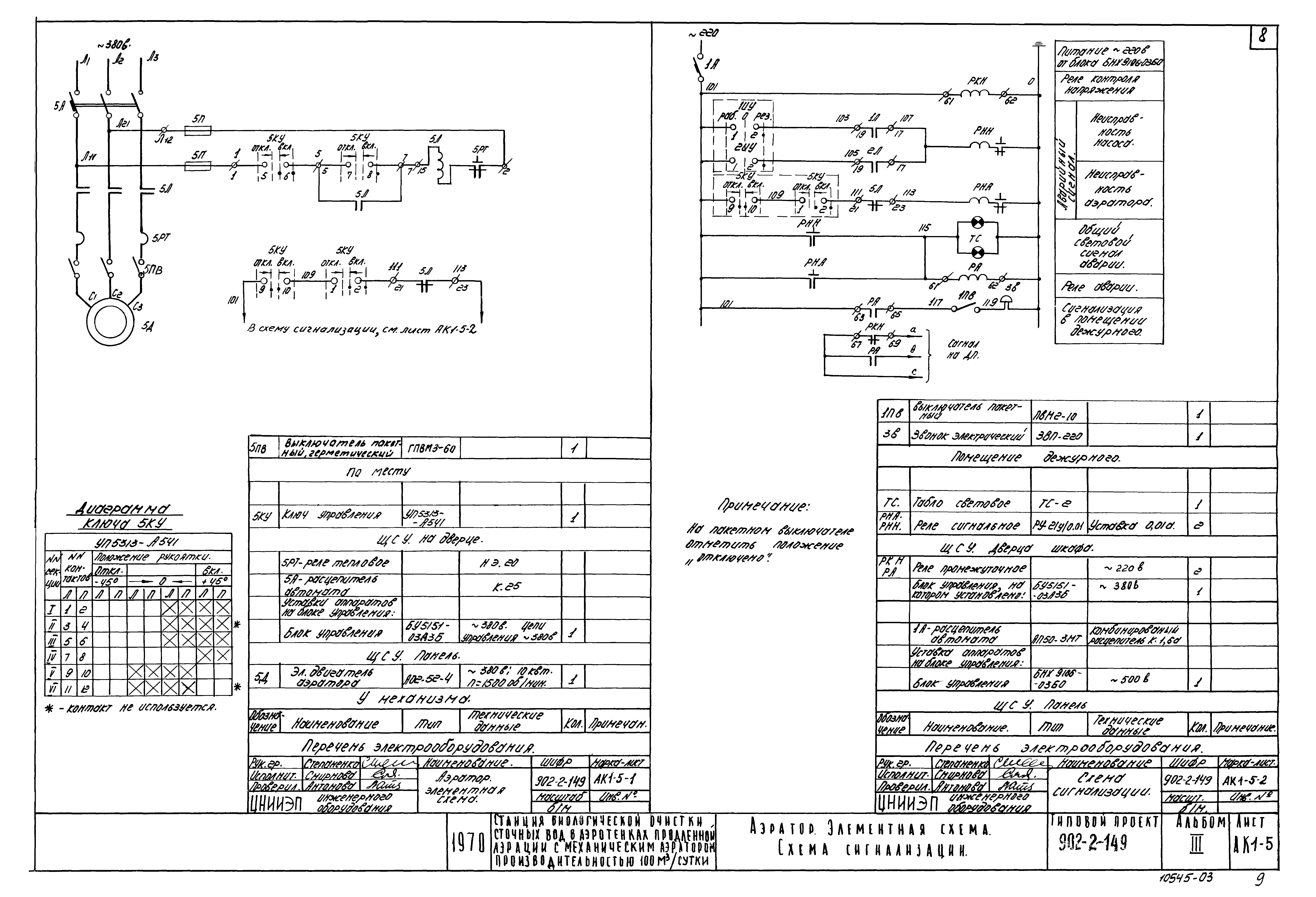
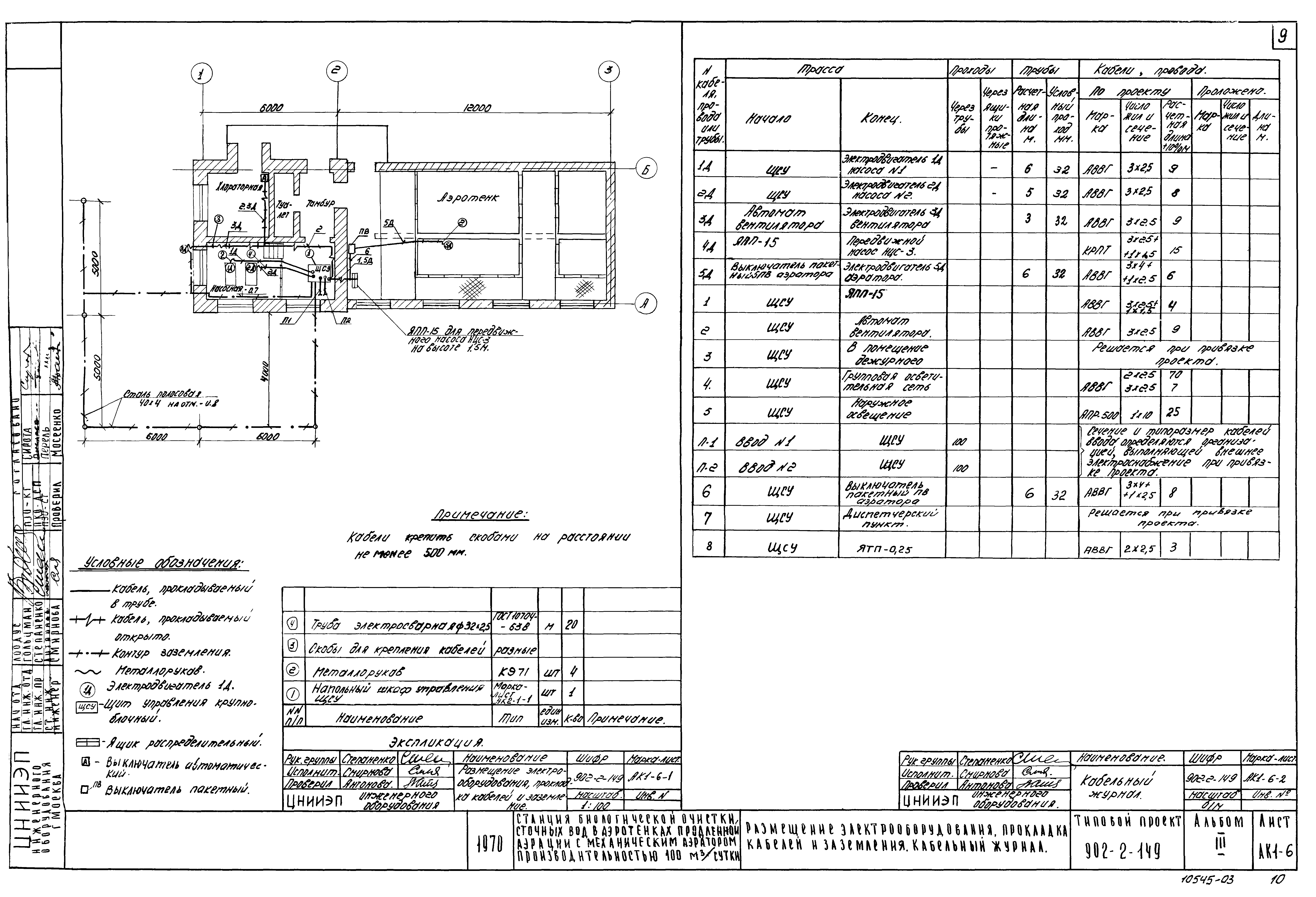
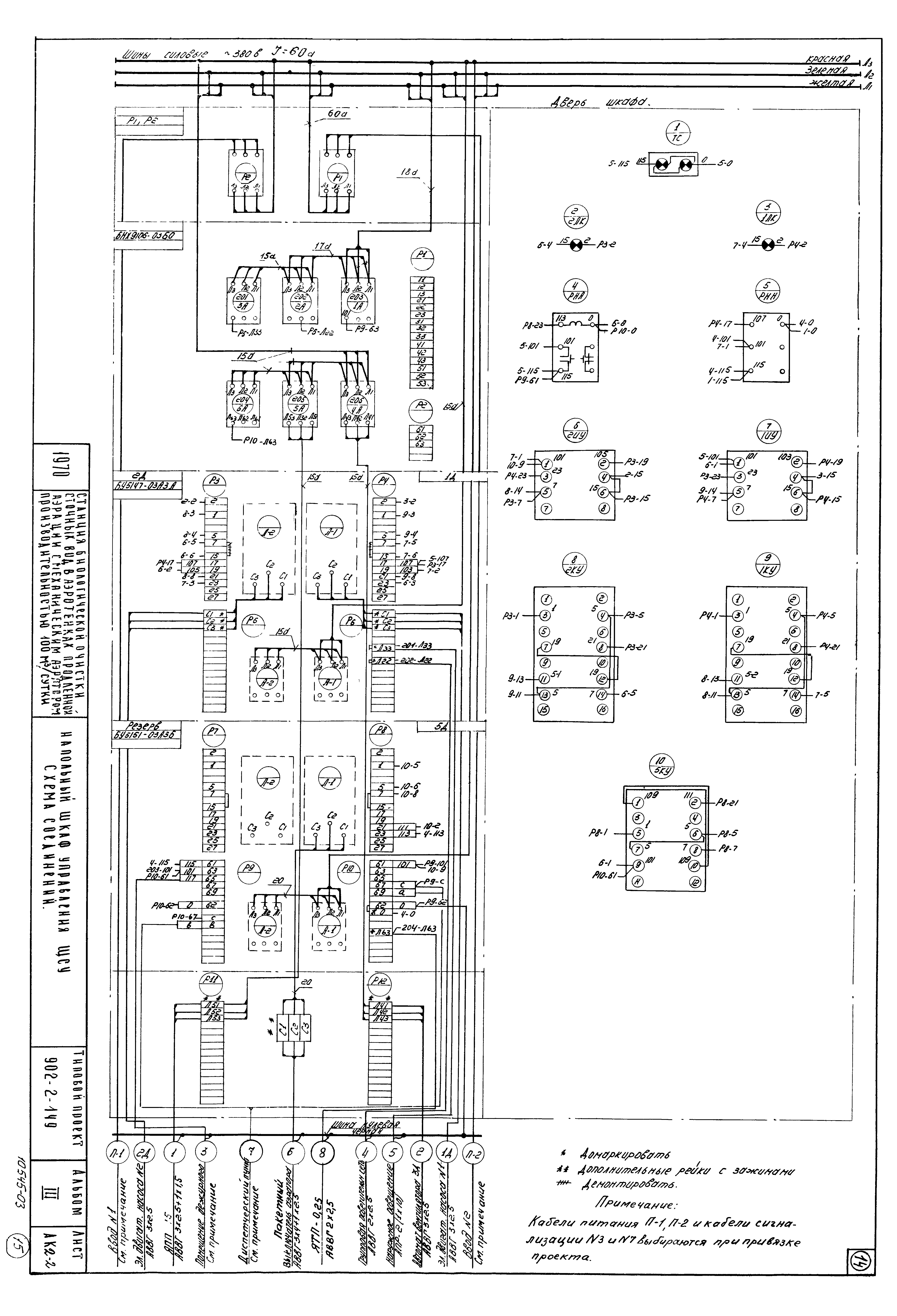
| Оглавление: | ТП 902-2-149 Раздел 1. Чертежи монтажной зоны и заготовительного участка ТП 902-2-149 Содержание альбома ТП 902-2-149 Пояснительная записка ТП 902-2-149-АК1-1 Спецификации силового электрооборудования, комплектных устройств, электрического освещения и изделий монтажно-изготовительного участка ТП 902-2-149-АК1-2 Спецификация приборов. Сводная спецификация материалов. Строительное задание ТП 902-2-149-АК1-2-1 Спецификация приборов. Сводная спецификация материалов ТП 902-2-149-АК1-2-2 Строительная задание ТП 902-2-149-АК1-3 Схема питания ТП 902-2-149-АК1-4 Насосы очищенной воды. Элементная схема ТП 902-2-149-АК1-5 Аэратор. Элементная схема. Схема сигнализации ТП 902-2-149-АК1-5-1 Аэратор. Элементная схема ТП 902-2-149-АК1-5-2 Схема сигнализации ТП 902-2-149-АК1-6 Размещение электрооборудования, прокладка кабелей и заземления. Кабельный журнал ТП 902-2-149-АК1-6-1 Размещение электрооборудования, прокладка кабелей и заземление ТП 902-2-149-АК1-6-2 Кабельный журнал ТП 902-2-149-АК1-7 Электрическое освещение. (Закрытый вариант) ТП 902-2-149-АК1-8 Электрическое освещение. (Открытый вариант) ТП 902-2-149-АК1-9 Наружное освещение ТП 902-2-149 Раздел 2. Задание заводу-изготовителю ТП 902-2-149-АК2-1 Напольный шкаф управления ЩСУ. Общий вид. Перечень надписей. Таблица. Технические данные электрооборудования. Таблица ТП 902-2-149-АК2-1-1 Напольный шкаф управления ЩСУ. Общий вид ТП 902-2-149-АК2-1-2 ЩСУ. Перечень надписей. Таблица ТП 902-2-149-АК2-1-3 ЩСУ. Технические данные электрооборудования. Таблица ТП 902-2-149-АК2-2 Напольный шкаф управления ЩСУ. Схема соединений |
| Разработан: | ЦНИИЭП инженерного оборудования Госгражданстроя |
| Утверждён: | 21.07.1970 ЦНИИЭП инженерного оборудования (TsNIIEP of Building Service Equipment 96) |
| Издан: | ЦИТП Госстроя СССР (CITP, Gosstroy (USSR) 1975 г. ) |















