Скачать Серия 1.436-6 Выпуск 2. Механизмы открывания рычажныеДата актуализации: 01.01.2021
|
| Обозначение: | Серия 1.436-6 |
| Обозначение англ: | Series 1.436-6 |
| Статус: | не действует |
| Название рус.: | Выпуск 2. Механизмы открывания рычажные |
| Дата добавления в базу: | 01.09.2013 |
| Дата актуализации: | 01.01.2021 |
| Дата окончания срока действия: | 01.09.1981 |
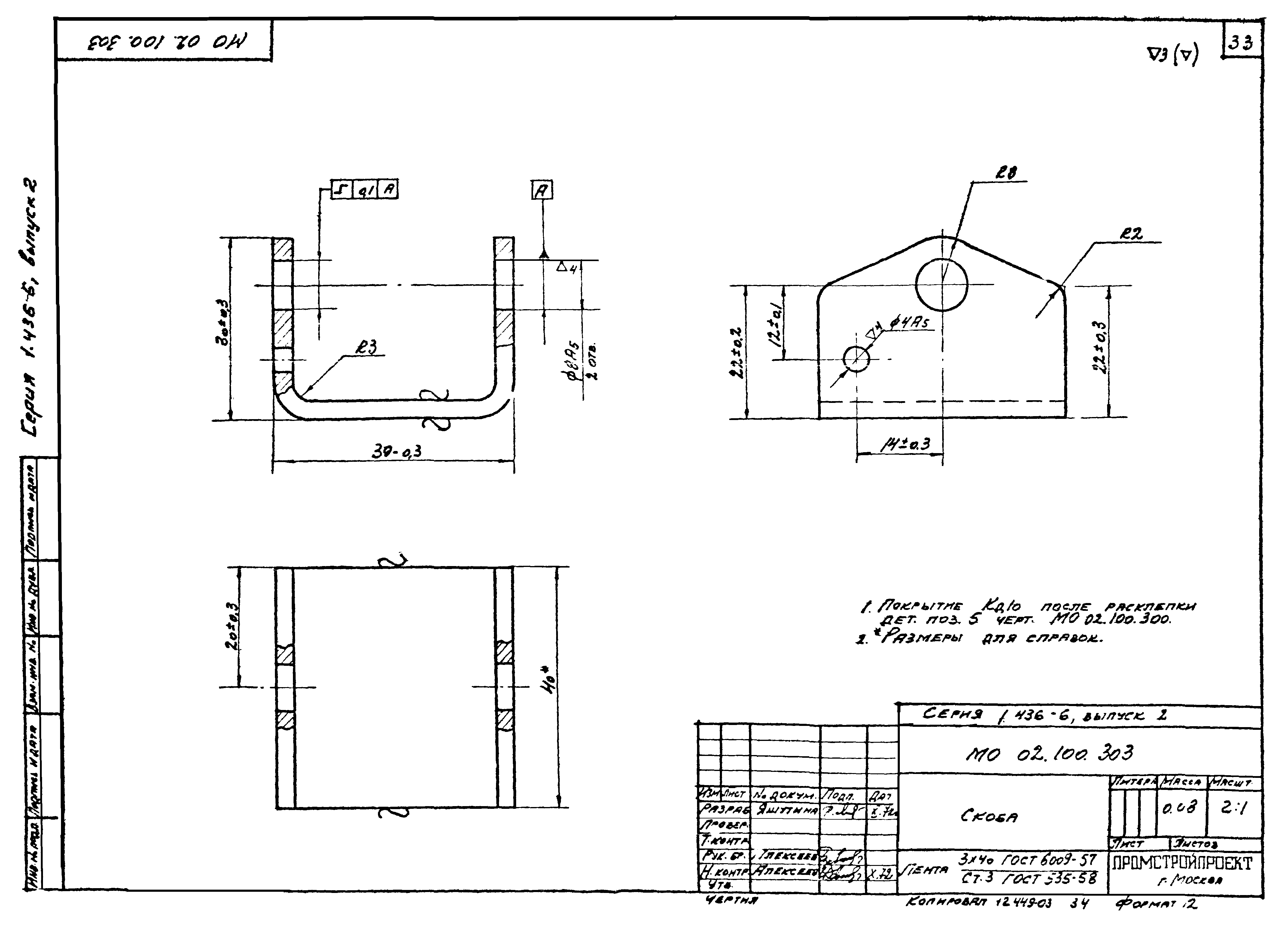
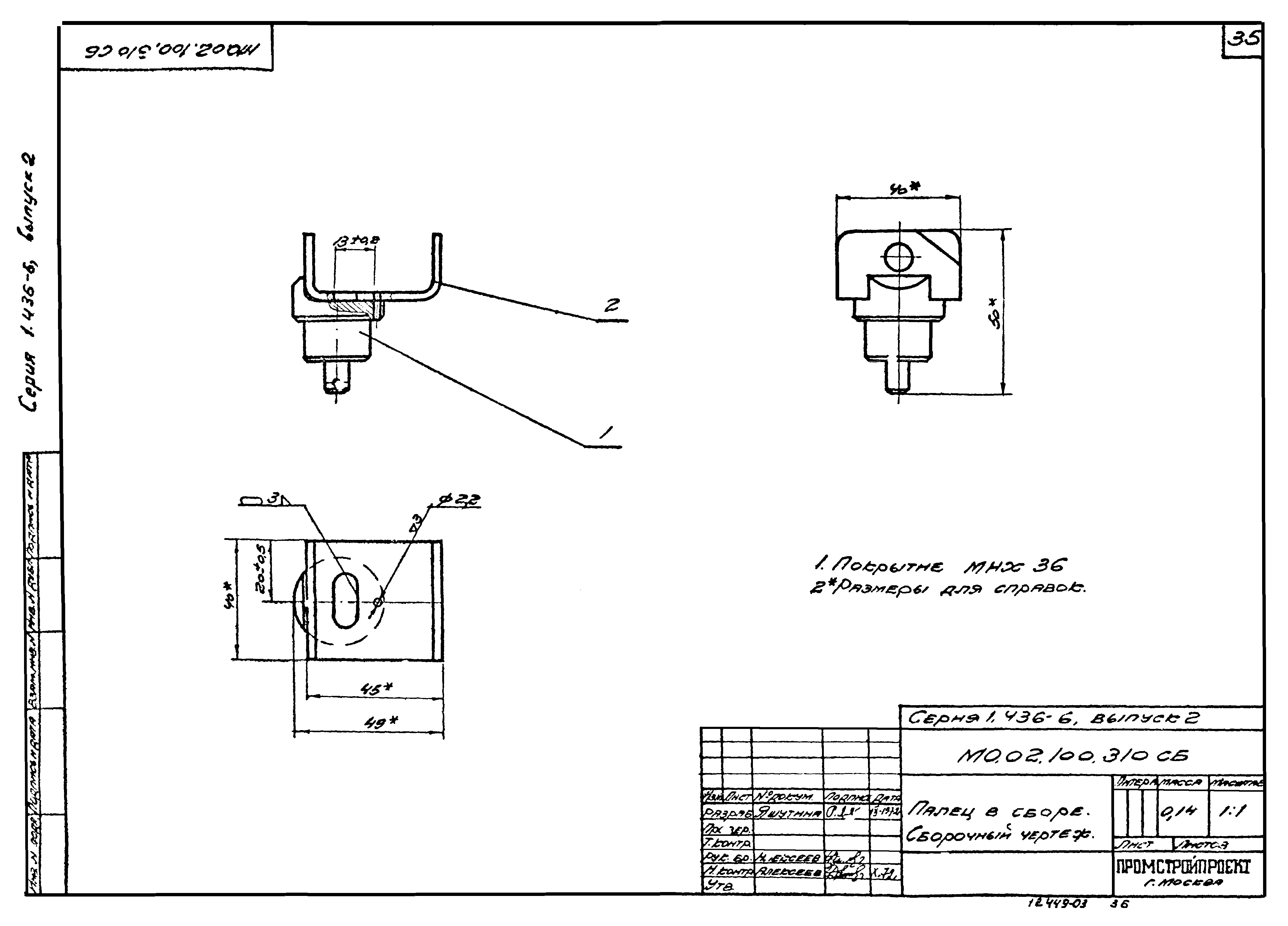
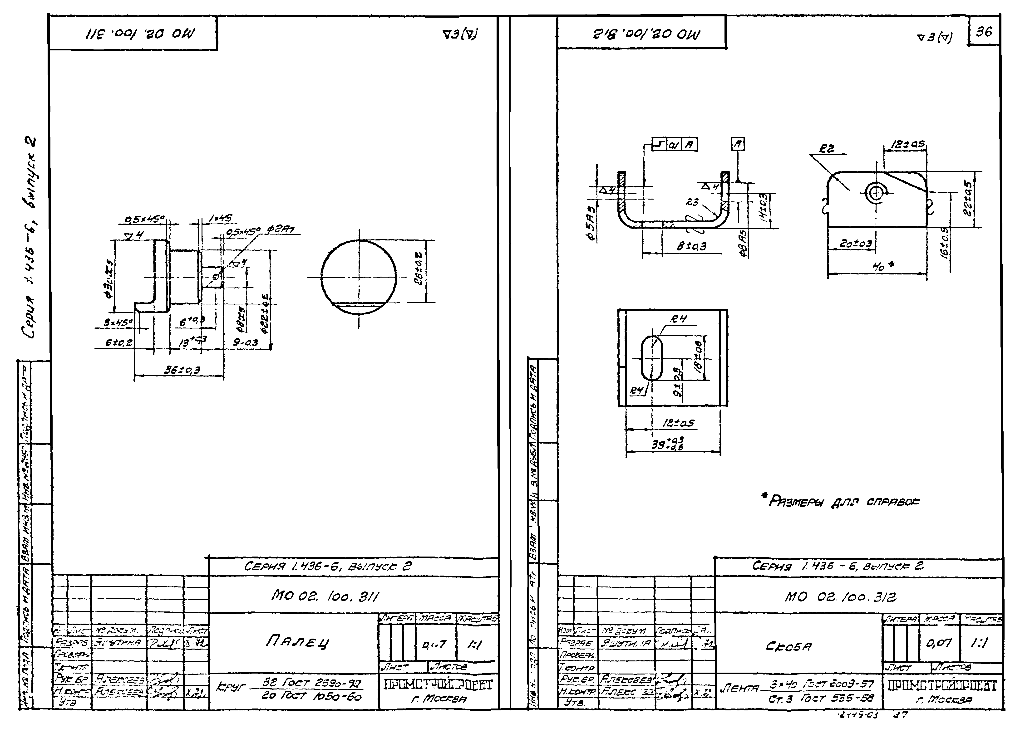
| Оглавление: | 1.436-6 Титульный лист 1.436-6 МО 02.000.000 ОП Механизмы открывания. Опись (Лист 1) 1.436-6 МО 02.000.000 ОП Механизмы открывания. Опись (Лист 2) 1.436-6 МО 02.000.000 ОП Механизмы открывания. Опись (Лист 3) 1.436-6 МО 02.000.000 ОП Механизмы открывания. Опись (Лист 4) 1.436-6 МО 02.000.000 ОП Механизмы открывания. Опись (Лист 5) 1.436-6 МО 02.000.000 ОП Механизмы открывания. Опись (Лист 6) 1.436-6 МО 02.000.000 ТУ Механизмы открывания. Технические условия (Лист 1) 1.436-6 МО 02.000.000 ТУ Механизмы открывания. Технические условия (Лист 2) 1.436-6 МО 02.000.000 ТУ Механизмы открывания. Технические условия (Лист 3) 1.436-6 МО 02.000.000 ТУ Механизмы открывания. Технические условия (Лист 4) 1.436-6 МО 02.000.000 ТУ Механизмы открывания. Технические условия (Лист 5) 1.436-6 МО 02.000.000 ТУ Механизмы открывания. Технические условия (Лист 6) 1.436-6 МО 02.000.000 ТУ Механизмы открывания. Технические условия (Лист 7) 1.436-6 МО 02.000.000 ТУ Механизмы открывания. Технические условия (Лист 8) 1.436-6 МО 02.000.000 ПМ Механизмы открывания. Программа и методика испытаний (Лист 1) 1.436-6 МО 02.000.000 ПМ Механизмы открывания. Программа и методика испытаний (Лист 2) 1.436-6 МО 02.100.000 Механизмы открывания рычажный (Лист 1) 1.436-6 МО 02.100.000 Механизмы открывания рычажный (Лист 2) 1.436-6 МО 02.100.100 Вилка в сборе 1.436-6 МО 02.100.200 Коробка 1.436-6 МО 02.100.300 Скоба в сборе 1.436-6 МО 02.100.310 Палец в сборе 1.436-6 МО 02.100.400 Кронштейн 1.436-6 МО 02.200.000 Механизмы открывания рычажный (Лист 1) 1.436-6 МО 02.200.000 Механизмы открывания рычажный (Лист 2) 1.436-6 МО 02.200.000 Механизмы открывания рычажный (Лист 3) 1.436-6 МО 02.300.000 Механизмы открывания рычажный (Лист 1) 1.436-6 МО 02.300.000 Механизмы открывания рычажный (Лист 2) 1.436-6 МО 02.100.000 СР Механизм открывания рычажный. Схема расположения 1.436-6 МО 02.100.000 СБ Механизм открывания рычажный. Сборочный чертеж (Лист 1) 1.436-6 МО 02.200.000 СБ Механизм открывания рычажный. Сборочный чертеж (Лист 1) 1.436-6 МО 02.300.000 СБ Механизм открывания рычажный. Сборочный чертеж (Лист 1) 1.436-6 МО 02.100.000 СБ Механизм открывания рычажный. Сборочный чертеж (Лист 2) 1.436-6 МО 02.200.000 СБ Механизм открывания рычажный. Сборочный чертеж (Лист 2) 1.436-6 МО 02.300.000 СБ Механизм открывания рычажный. Сборочный чертеж (Лист 2) 1.436-6 МО 02.100.001 Рычаг 1.436-6 МО 02.200.001 Рычаг 1.436-6 МО 02.300.001 Рычаг 1.436-6 МО 02.100.002 Платик 1.436-6 МО 02.100.003 Платик 1.436-6 МО 02.100.004 Ручка 1.436-6 МО 02.100.005 Втулка 1.436-6 МО 02.100.006 Палец 1.436-6 МО 02.100.007 Штифт 1.436-6 МО 02.100.008 Пружина 1.436-6 МО 02.100.100 СБ Вилка в сборе. Сборочный чертеж 1.436-6 МО 02.100.101 Болт 1.436-6 МО 02.100.102 Штифт 1.436-6 МО 02.100.103 Вилка 1.436-6 МО 02.200.100 СБ Коробка. Сборочный чертеж 1.436-6 МО 02.100.201 Пластина 1.436-6 МО 02.100.202 Скоба 1.436-6 МО 02.100.203 Пластина 1.436-6 МО 02.100.204 Пластина 1.436-6 МО 02.100.300 СБ Скоба в сборе. Сборочный чертеж 1.436-6 МО 02.100.301 Палец 1.436-6 МО 02.100.302 Шайба 1.436-6 МО 02.100.303 Скоба 1.436-6 МО 02.100.304 Фиксатор 1.436-6 МО 02.100.305 Втулка 1.436-6 МО 02.100.310 СБ Палец в сборе. Сборочный чертеж 1.436-6 МО 02.100.311 Палец 1.436-6 МО 02.100.312 Скоба 1.436-6 МО 02.100.400 СБ Кронштейн. Сборочный чертеж 1.436-6 МО 02.100.401 Пластина 1.436-6 МО 02.100.402 Зацеп 1.436-6 МО 03.100.000 Механизм открывания стяжной 1.436-6 МО 03.100.100 Кронштейн 1.436-6 МО 03.100.200 Головка стяжки 1.436-6 МО 03.100.300 Труба в сборе 1.436-6 МО 03.200.000 Механизм открывания стяжной 1.436-6 МО 03.200.100 Труба в сборе 1.436-6 МО 03.100.000 СР Механизм открывания стяжной. Схема расположения (Лист 1) 1.436-6 МО 03.100.000 СР Механизм открывания стяжной. Схема расположения (Лист 2) 1.436-6 МО 03.200.000 СР Механизм открывания стяжной. Схема расположения 1.436-6 МО 03.100.000 СБ Механизм открывания стяжной. Сборочный чертеж 1.436-6 МО 03.200.000 СБ Механизм открывания стяжной. Сборочный чертеж 1.436-6 МО 03.100.001 Пробка 1.436-6 МО 03.100.002 Штифт 1.436-6 МО 03.100.100 СБ Кронштейн. Сборочный чертеж 1.436-6 МО 03.100.101 Щека 1.436-6 МО 03.100.102 Пластина 1.436-6 МО 03.100.200 СБ Головка стяжки. Сборочный чертеж 1.436-6 МО 03.100.201 Болт регулировочный 1.436-6 МО 03.100.202 Полувтулка 1.436-6 МО 03.100.300 СБ Труба в сборе. Сборочный чертеж 1.436-6 МО 03.200.100 СБ Труба в сборе. Сборочный чертеж 1.436-6 МО 03.100.301 Бобышка 1.436-6 МО 03.100.302 Труба 1.436-6 МО 03.200.101 Труба |
| Разработан: | ГПИ Промстройпроект |
| Утверждён: | 02.07.1973 Госстрой СССР (Государственный комитет Совета Министров СССР по делам строительства) (USSR Gosstroy 111) |
| Чем заменён: |
|




















































