Скачать Серия 1.436-6 Выпуск 3. Механизмы открывания пневматическиеДата актуализации: 01.01.2021
|
| Обозначение: | Серия 1.436-6 |
| Обозначение англ: | Series 1.436-6 |
| Статус: | не действует |
| Название рус.: | Выпуск 3. Механизмы открывания пневматические |
| Дата добавления в базу: | 01.09.2013 |
| Дата актуализации: | 01.01.2021 |
| Дата окончания срока действия: | 01.09.1981 |
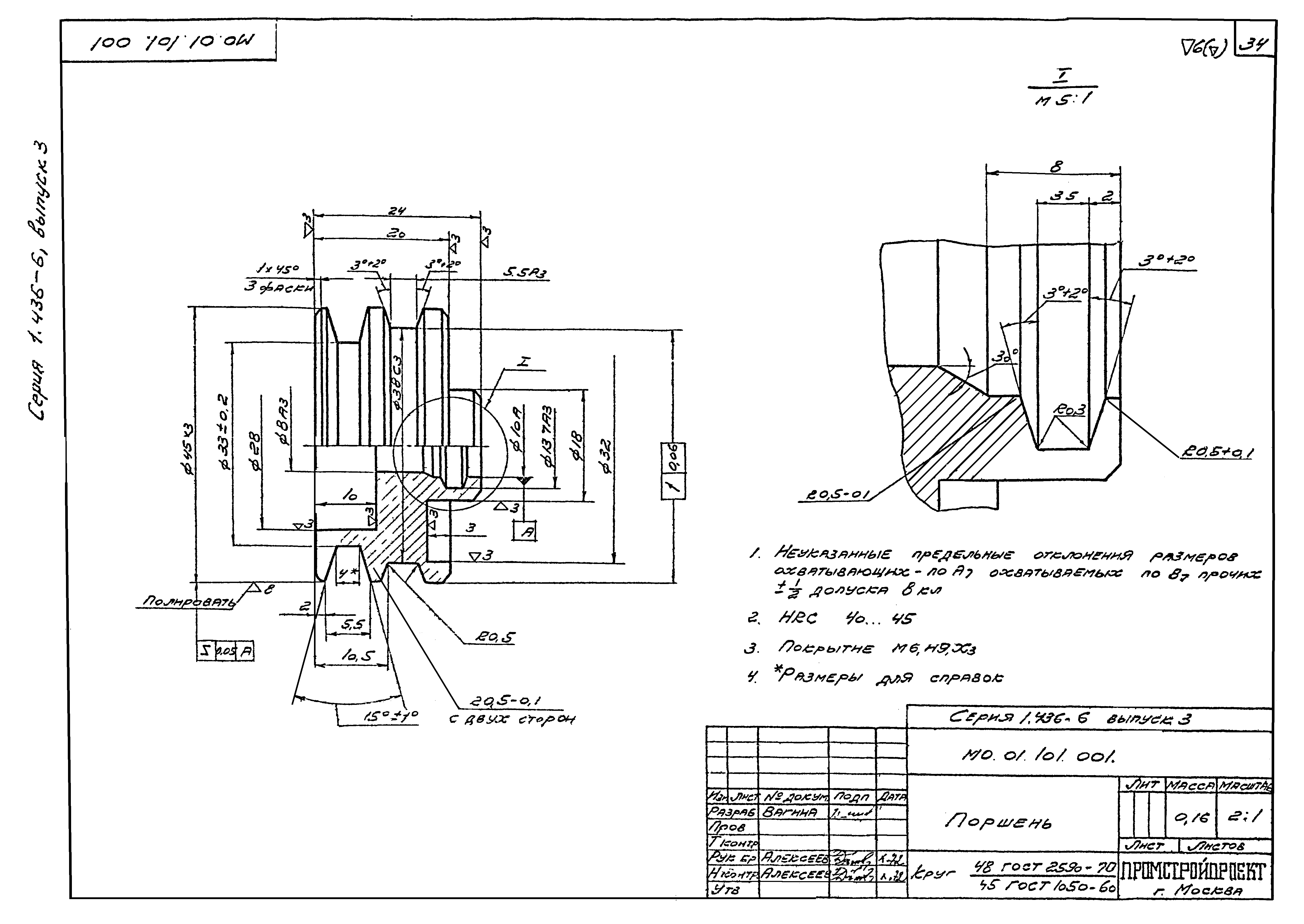
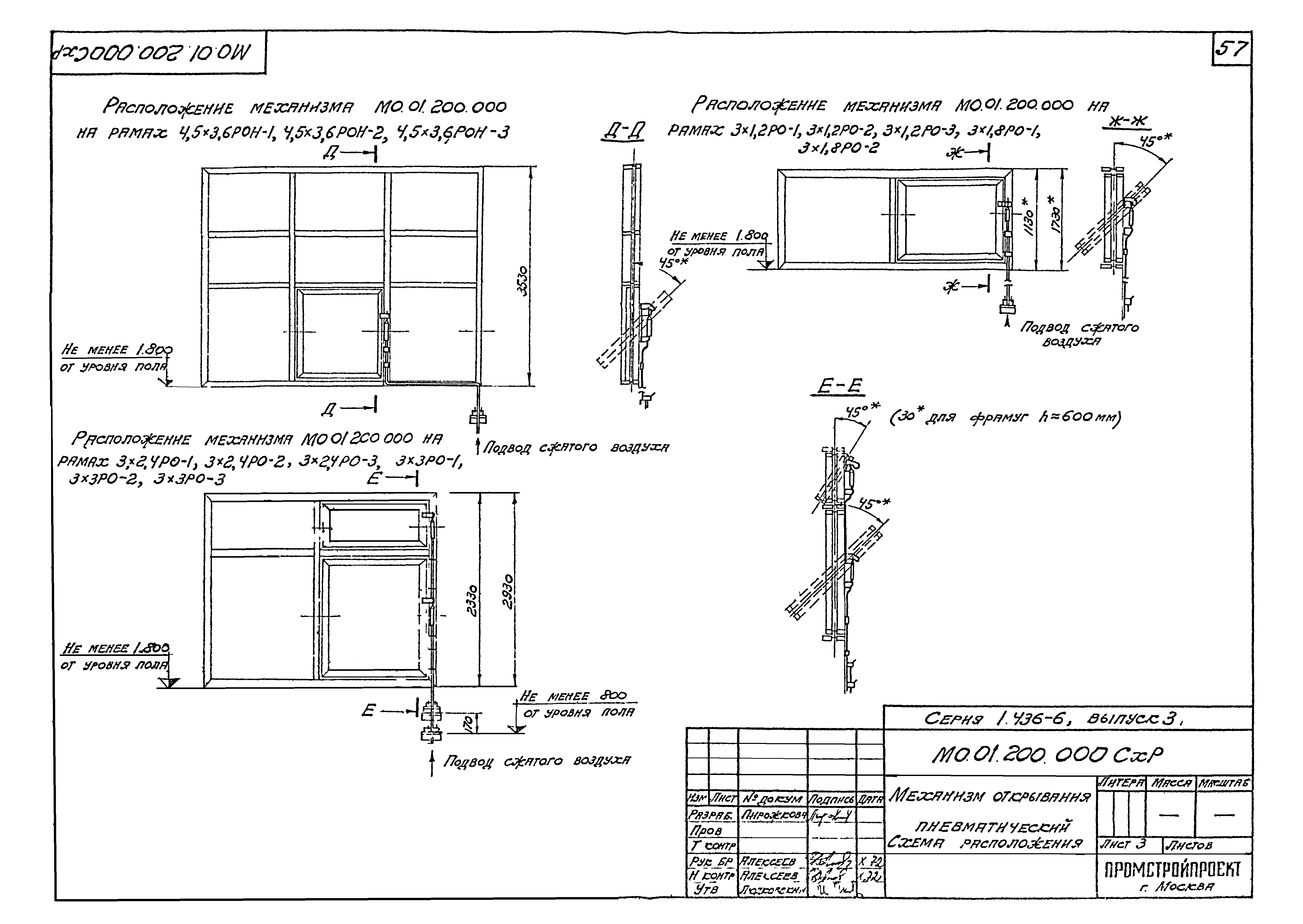
| Оглавление: | 1.436-6 Титульный лист 1.436-6 МО.01.000.000.ОП Механизмы открывания пневматические. Опись (Лист 1) 1.436-6 МО.01.000.000.ОП Механизмы открывания пневматические. Опись (Лист 2) 1.436-6 МО.01.000.000.ОП Механизмы открывания пневматические. Опись (Лист 3) 1.436-6 МО.01.000.000.ОП Механизмы открывания пневматические. Опись (Лист 4) 1.436-6 МО.01.000.000.ОП Механизмы открывания пневматические. Опись (Лист 5) 1.436-6 МО.01.000.000.ОП Механизмы открывания пневматические. Опись (Лист 6) 1.436-6 МО.01.000.000.ТУ Механизмы открывания пневматические. Технические условия (Лист 1) 1.436-6 МО.01.000.000.ТУ Механизмы открывания пневматические. Технические условия (Лист 2) 1.436-6 МО.01.000.000.ТУ Механизмы открывания пневматические. Технические условия (Лист 3) 1.436-6 МО.01.000.000.ТУ Механизмы открывания пневматические. Технические условия (Лист 4) 1.436-6 МО.01.000.000.ТУ Механизмы открывания пневматические. Технические условия (Лист 5) 1.436-6 МО.01.000.000.ТУ Механизмы открывания пневматические. Технические условия (Лист 6) 1.436-6 МО.01.000.000.ПМ Механизмы открывания пневматические. Программа и методика испытаний (Лист 1) 1.436-6 МО.01.000.000.ПМ Механизмы открывания пневматические. Программа и методика испытаний (Лист 2) 1.436-6 МО.01.100.000 Механизм открывания пневматический (Лист 1) 1.436-6 МО.01.100.000 Механизм открывания пневматический (Лист 2) 1.436-6 МО.01.101.000 Пневмоцилиндр (Лист 1) 1.436-6 МО.01.101.000 Пневмоцилиндр (Лист 2) 1.436-6 МО.01.101.000 Цилиндр 1.436-6 МО.01.102.000 Кронштейн верхний 1.436-6 МО.01.103.000 Кронштейн нижний 1.436-6 МО.01.104.000 Тройник 1.436-6 МО.01.105.000 Плита 1.436-6 МО.01.106.000 Крестовина 1.436-6 МО.01.100.000 СР Механизм открывания пневматический. Схема расположения (Лист 1) 1.436-6 МО.01.100.000 СР Механизм открывания пневматический. Схема расположения (Лист 2) 1.436-6 МО.01.100.000 СР Механизм открывания пневматический. Схема расположения (Лист 3) 1.436-6 МО.01.100.000 СР Механизм открывания пневматический. Схема расположения (Лист 4) 1.436-6 МО.01.100.000 СБ Механизм открывания пневматический. Сборочный чертеж (Лист 1) 1.436-6 МО.01.100.000 СБ Механизм открывания пневматический. Сборочный чертеж (Лист 2) 1.436-6 МО.01.100.000 СБ Механизм открывания пневматический. Сборочный чертеж (Лист 3) 1.436-6 МО.01.100.000 СБ Механизм открывания пневматический. Сборочный чертеж (Лист 4) 1.436-6 МО.01.100.000 СБ Механизм открывания пневматический. Сборочный чертеж (Лист 5) 1.436-6 МО.01.100.000 СБ Механизм открывания пневматический. Сборочный чертеж (Лист 6) 1.436-6 МО.01.100.000 СБ Механизм открывания пневматический. Сборочный чертеж (Лист 7) 1.436-6 МО.01.100.000 СБ Механизм открывания пневматический. Сборочный чертеж (Лист 8) 1.436-6 МО.01.100.001 Скоба крепежная 1.436-6 МО.01.100.002 Захват клиновой 1.436-6 МО.01.100.003 Штуцер проходной 1.436-6 МО.01.100.004 Прокладка стопорная 1.436-6 МО.01.100.005 Платик 1.436-6 МО.01.100.006 Платик 1.436-6 МО.01.100.007 Прокладка 1.436-6 МО.01.100.008 Уголок 1.436-6 МО.01.100.009 Ось фигурная 1.436-6 МО.01.100.011 Ось 1.436-6 МО.01.100.012 Прокладка 1.436-6 МО.01.100.013 Штуцер 1.436-6 МО.01.101.000 СБ Пневмоцилиндр. Сборочный чертеж 1.436-6 МО.01.101.001 Поршень 1.436-6 МО.01.101.002 Шток 1.436-6 МО.01.101.003 Пробка 1.436-6 МО.01.101.004 Фиксатор 1.436-6 МО.01.101.005 Пружина 1.436-6 МО.01.101.006 Прокладка 1.436-6 МО.01.101.007 Крышка 1.436-6 МО.01.101.008 Чехол 1.436-6 МО.01.101.009 Втулка 1.436-6 МО.01.101.100 СБ Цилиндр. Сборочный чертеж 1.436-6 МО.01.101.101 Гильза 1.436-6 МО.01.101.102 Планка 1.436-6 МО.01.101.103 Бобышка 1.436-6 МО.01.101.104 Вилка 1.436-6 МО.01.101.105 Крышка 1.436-6 МО.01.102.000 СБ Кронштейн верхний. Сборочный чертеж 1.436-6 МО.01.102.001 Щека 1.436-6 МО.01.102.002 Ребро 1.436-6 МО.01.103.000 СБ Кронштейн нижний. Сборочный чертеж 1.436-6 МО.01.103.001 Щека 1.436-6 МО.01.103.002 Опора 1.436-6 МО.01.104.000 СБ Тройник. Сборочный чертеж 1.436-6 МО.01.104.001 Головка 1.436-6 МО.01.104.002 Труба 1.436-6 МО.01.105.000 СБ Плита. Сборочный чертеж 1.436-6 МО.01.106.000 СБ Крестовина. Сборочный чертеж 1.436-6 МО.01.106.001 Головка 1.436-6 МО.01.201.001 Ребро 1.436-6 МО.01.200.000 Механизм открывания пневматический (Лист 1) 1.436-6 МО.01.200.000 Механизм открывания пневматический (Лист 2) 1.436-6 МО.01.200.000 Механизм открывания пневматический (Лист 3) 1.436-6 МО.01.201.000 Кронштейн верхний 1.436-6 МО.01.200.000 СР Механизм открывания пневматический. Схема расположения (Лист 1) 1.436-6 МО.01.200.000 СР Механизм открывания пневматический. Схема расположения (Лист 2) 1.436-6 МО.01.200.000 СР Механизм открывания пневматический. Схема расположения (Лист 3) 1.436-6 МО.01.200.000 СР Механизм открывания пневматический. Схема расположения (Лист 4) 1.436-6 МО.01.200.000 СР Механизм открывания пневматический. Схема расположения (Лист 5) 1.436-6 МО.01.200.000 СБ Механизм открывания пневматический. Сборочный чертеж (Лист 1) 1.436-6 МО.01.200.000 СБ Механизм открывания пневматический. Сборочный чертеж (Лист 2) 1.436-6 МО.01.200.000 СБ Механизм открывания пневматический. Сборочный чертеж (Лист 3) 1.436-6 МО.01.200.000 СБ Механизм открывания пневматический. Сборочный чертеж (Лист 4) 1.436-6 МО.01.200.001 Прокладка 1.436-6 МО.01.200.002 Ушко 1.436-6 МО.01.201.000 СБ Кронштейн верхний. Сборочный чертеж |
| Разработан: | ГПИ Промстройпроект |
| Утверждён: | 02.07.1973 Госстрой СССР (Государственный комитет Совета Министров СССР по делам строительства) (USSR Gosstroy 111) |
| Чем заменён: |
|

































































