Скачать Серия 3.820-3 Альбом 1. Пояснительная записка, чертежиДата актуализации: 01.01.2021
|
| Обозначение: | Серия 3.820-3 |
| Обозначение англ: | Series 3.820-3 |
| Статус: | не действует |
| Название рус.: | Альбом 1. Пояснительная записка, чертежи |
| Дата добавления в базу: | 01.09.2013 |
| Дата актуализации: | 01.01.2021 |
| Дата введения: | 18.06.1973 |
| Дата окончания срока действия: | 01.11.1982 |
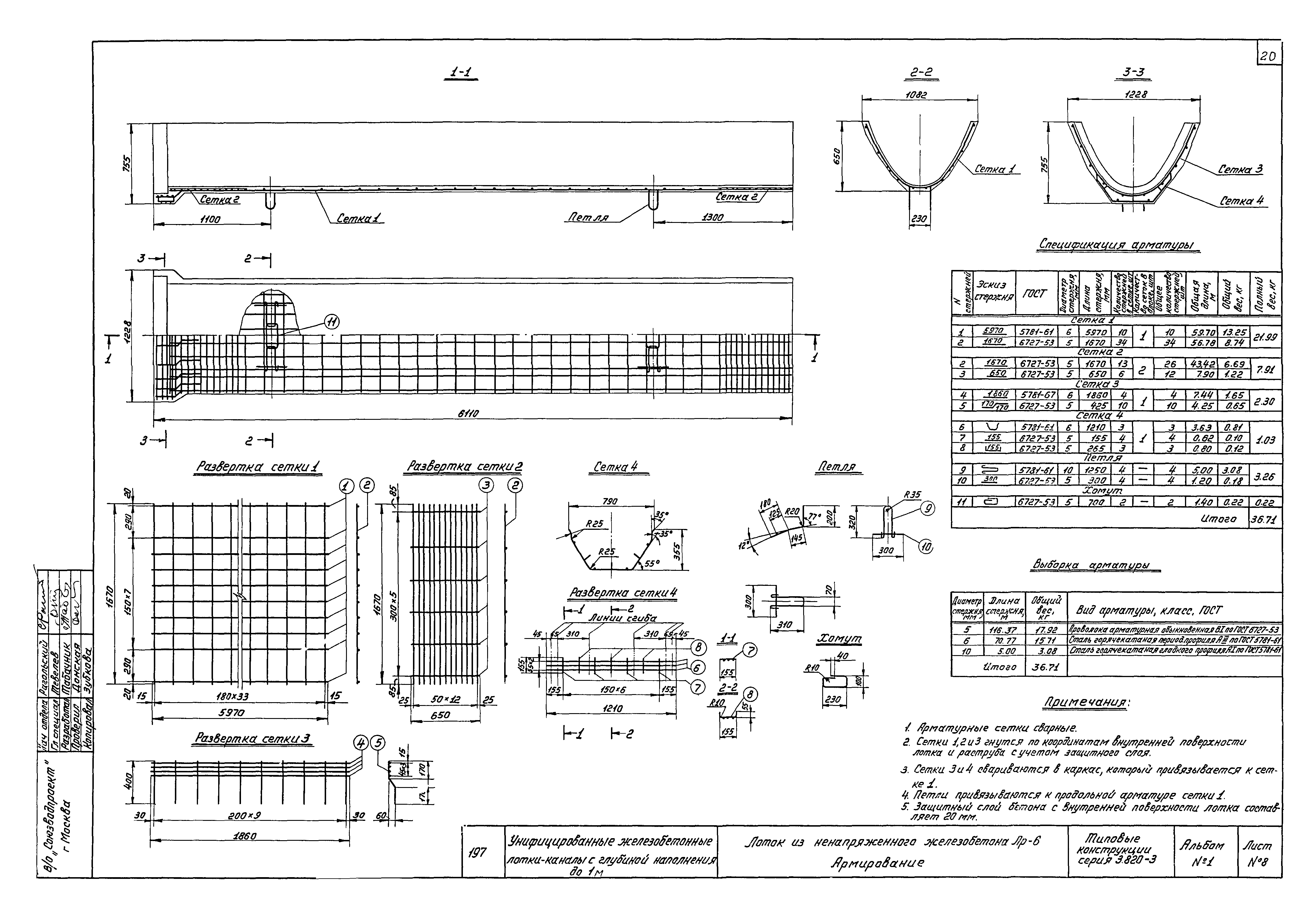
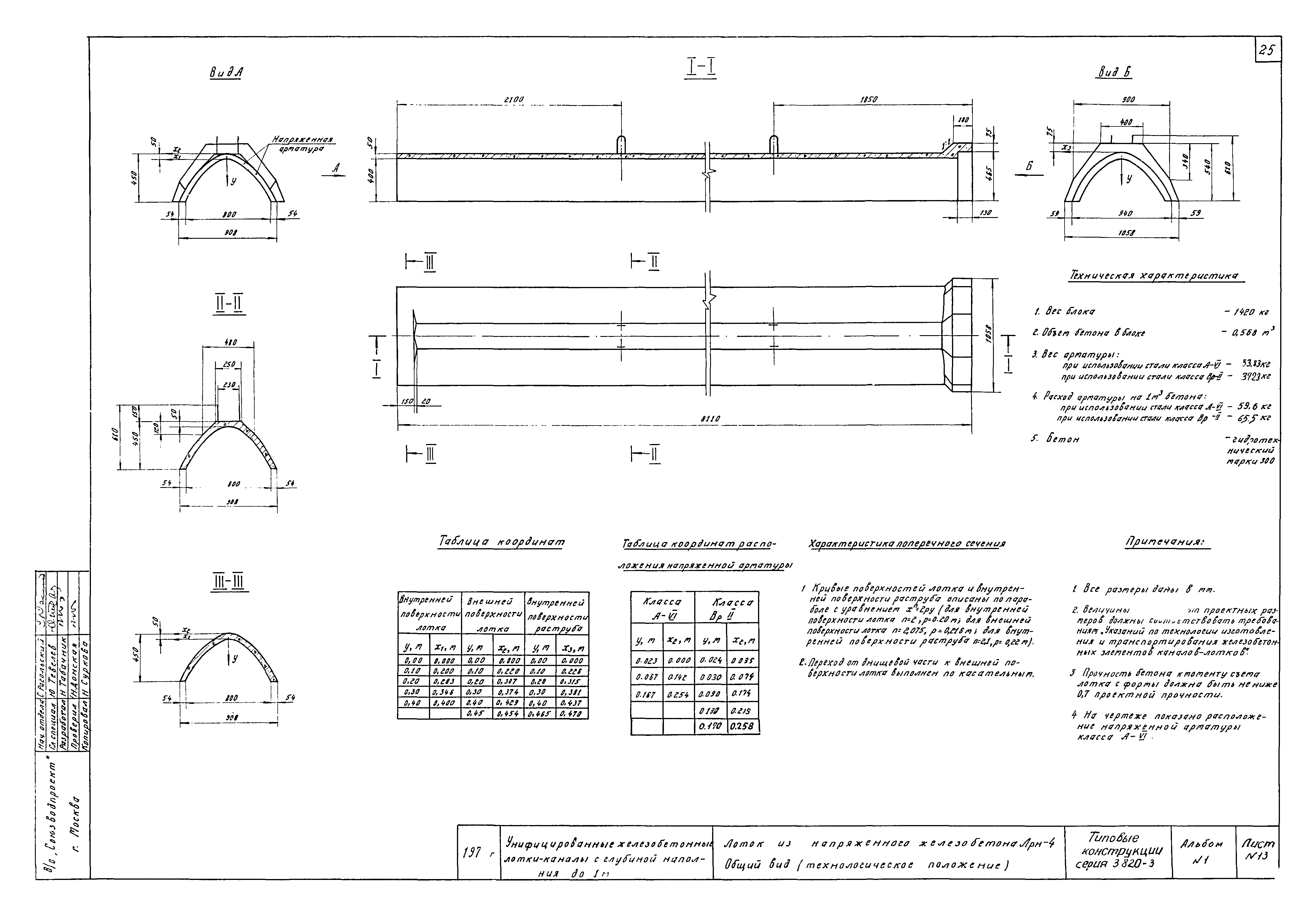
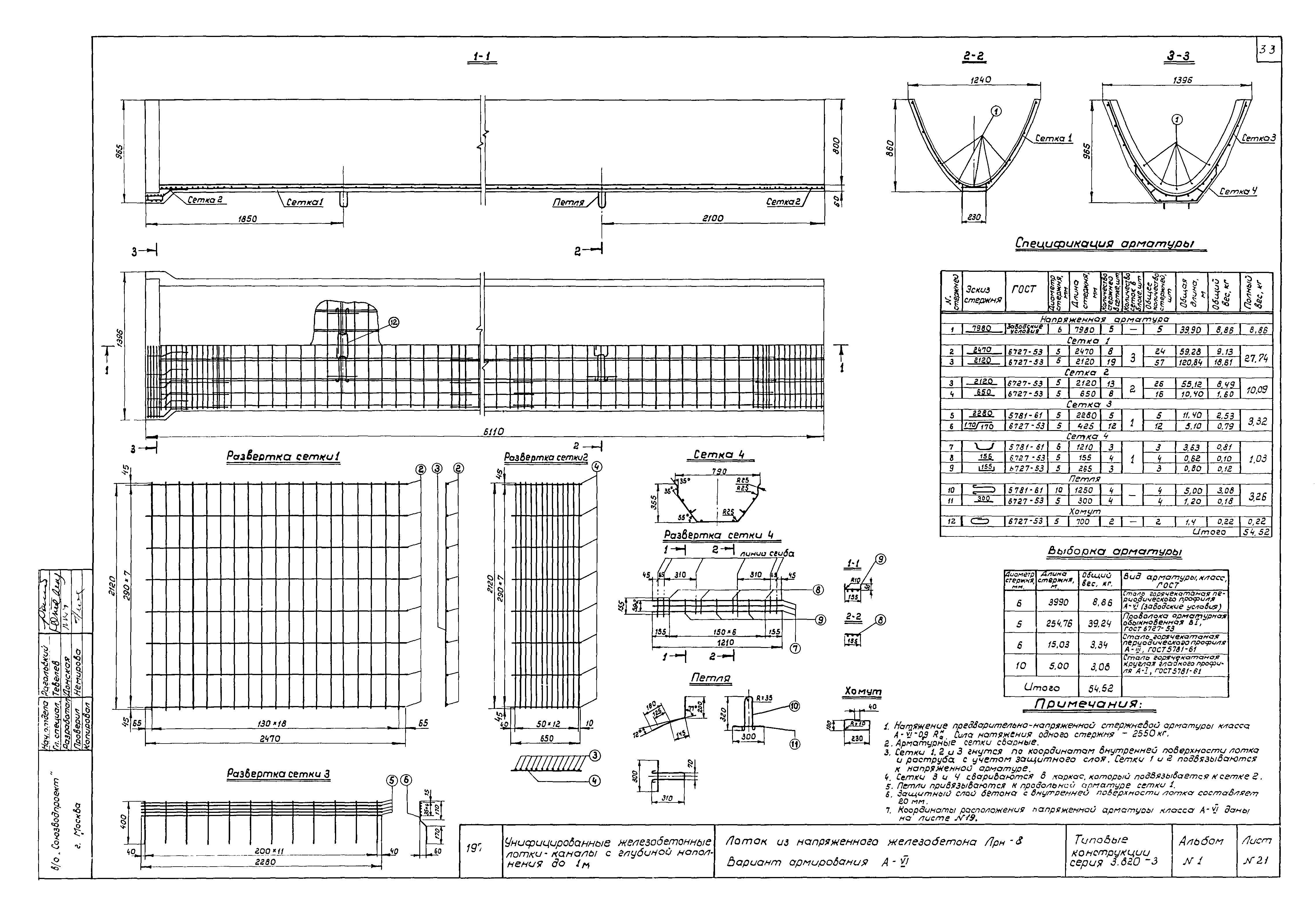
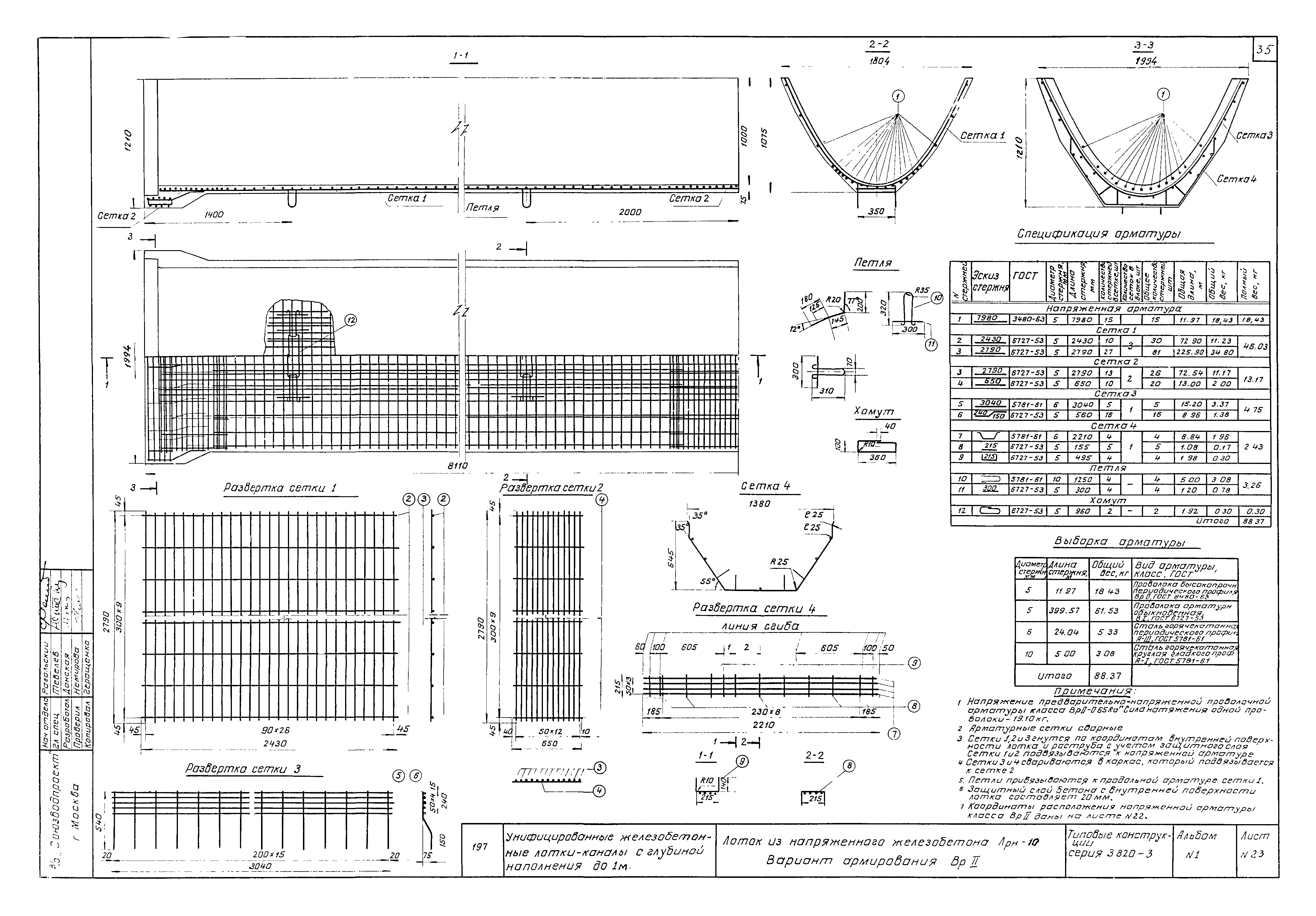
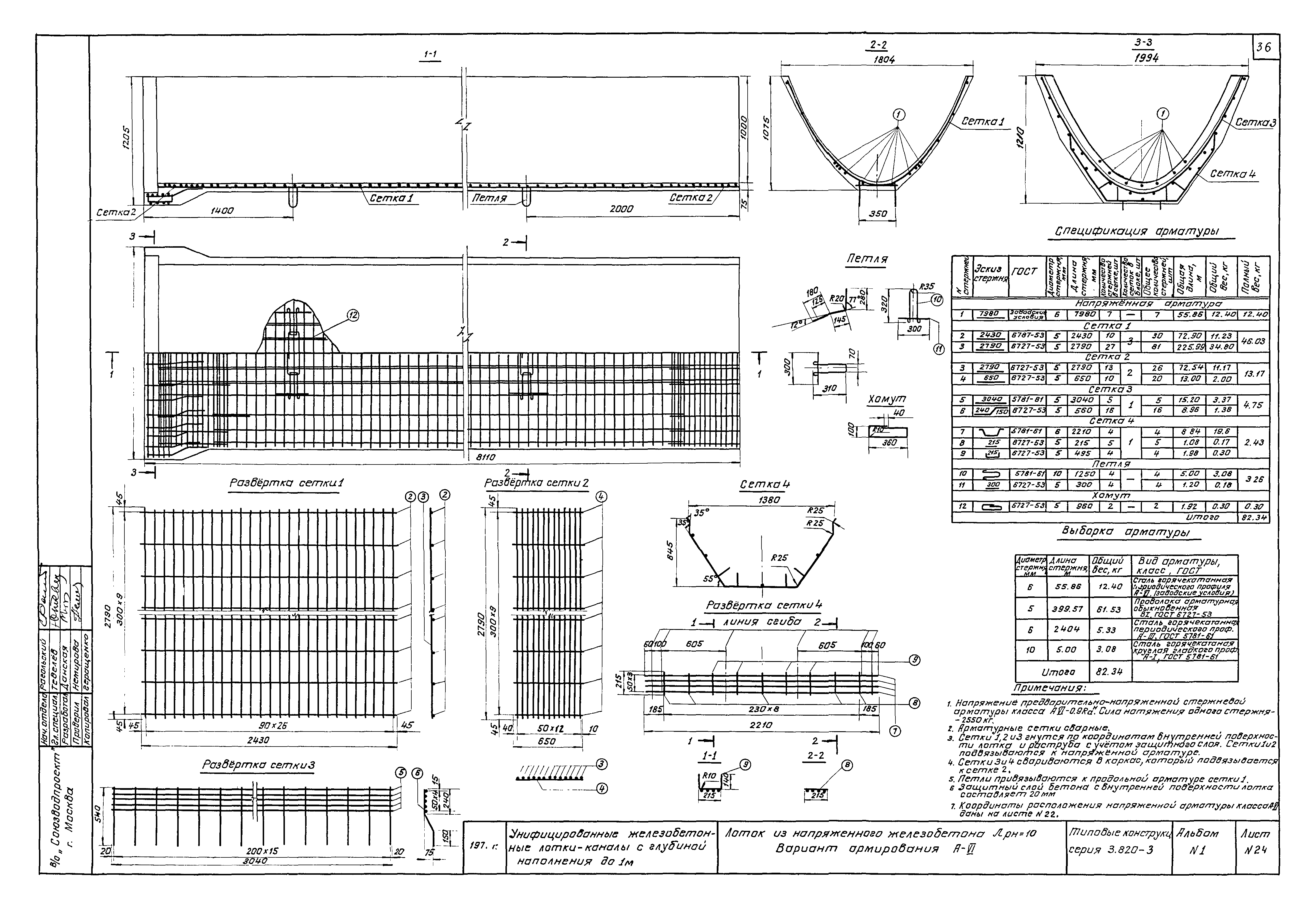
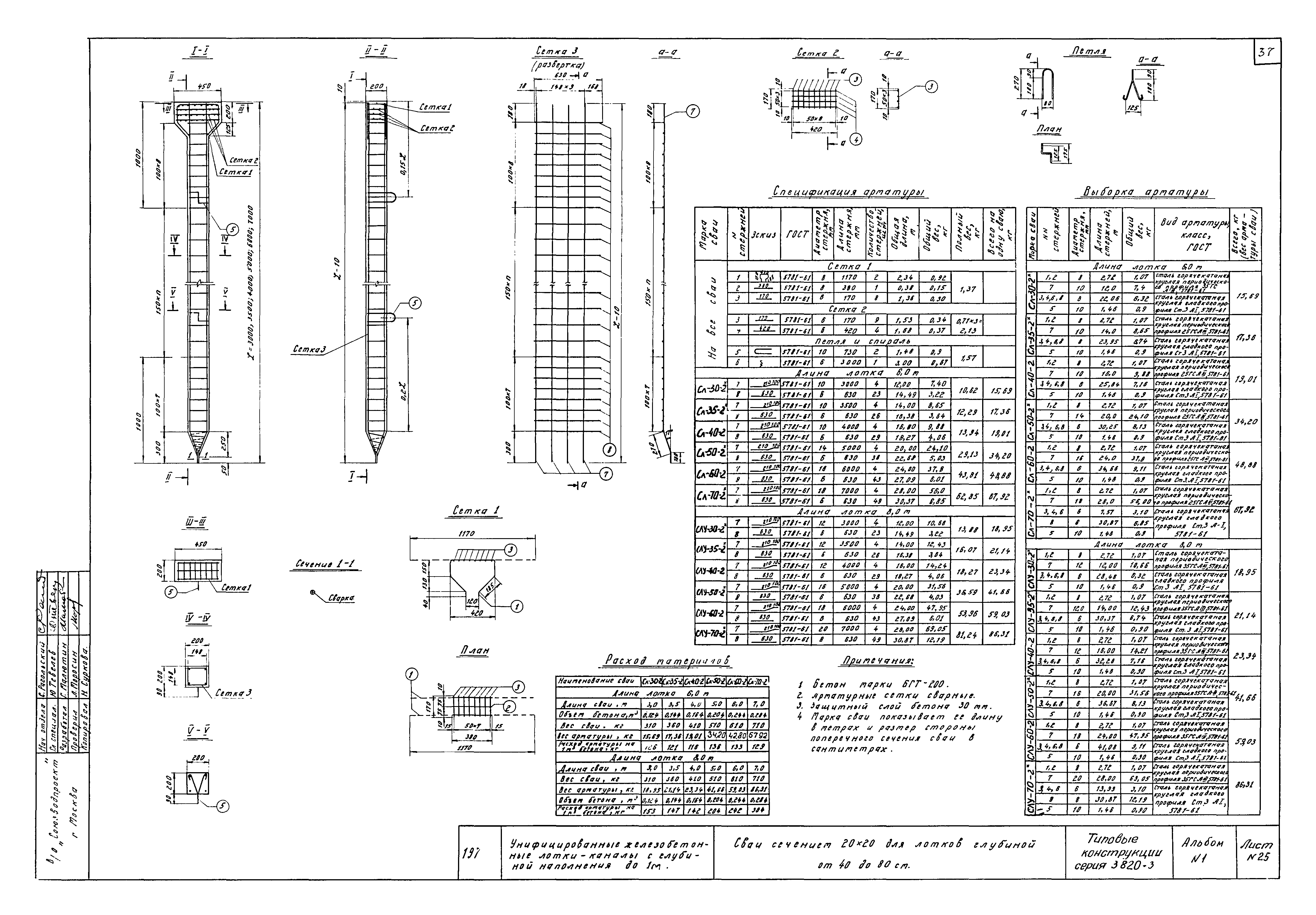
| Оглавление: | 3.820-3 Пояснительная записка 3.820-3 Графики подбора гидравлических показателей лотков 3.820-3 Сборочный чертеж лотков с глубиной наполнения до 1 м, уложенных на свайные опоры. Таблицы объемов работ 3.820-3 Сборочный чертеж лотков с глубиной наполнения до 1 м, уложенных на стоечные опоры. Таблицы объемов работ 3.820-3 Сборочный чертеж лотков с глубиной наполнения до 1 м, уложенных на грунт. Таблицы объемов работ. Детали 3.820-3 Лоток из ненапряженного железобетона Лр-4. Общий вид (технологическое положение) 3.820-3 Лоток из ненапряженного железобетона Лр-4. Армирование 3.820-3 Лоток из ненапряженного железобетона Лр-6. Общий вид (технологическое положение) 3.820-3 Лоток из ненапряженного железобетона Лр-6. Армирование 3.820-3 Лоток из ненапряженного железобетона Лр-8. Общий вид (технологическое положение) 3.820-3 Лоток из ненапряженного железобетона Лр-8. Армирование 3.820-3 Лоток из ненапряженного железобетона Лр-10. Общий вид (технологическое положение) 3.820-3 Лоток из ненапряженного железобетона Лр-10. Армирование 3.820-3 Лоток из напряженного железобетона Лрн-4. Общий вид (технологическое положение) 3.820-3 Лоток из напряженного железобетона Лрн-4. Вариант армирования Вр-II 3.820-3 Лоток из напряженного железобетона Лрн-4. Вариант армирования А-VI 3.820-3 Лоток из напряженного железобетона Лрн-6. Общий вид (технологическое положение) 3.820-3 Лоток из напряженного железобетона Лрн-6. Вариант армирования Вр-II 3.820-3 Лоток из напряженного железобетона Лрн-6. Вариант армирования А-VI 3.820-3 Лоток из напряженного железобетона Лрн-8. Общий вид (технологическое положение) 3.820-3 Лоток из напряженного железобетона Лрн-8. Вариант армирования Вр-II 3.820-3 Лоток из напряженного железобетона Лрн-8. Вариант армирования А-VI 3.820-3 Лоток из напряженного железобетона Лрн-10. Общий вид (технологическое положение) 3.820-3 Лоток из напряженного железобетона Лрн-10. Вариант армирования Вр-II 3.820-3 Лоток из напряженного железобетона Лрн-10. Вариант армирования А-VI 3.820-3 Сваи сечением 200x200 для лотков глубиной от 400 до 800 мм 3.820-3 Сваи сечением 250x250 для лотков глубиной 1000 мм 3.820-3 Стойки опор для лотков глубиной от 400 до 800 мм 3.820-3 Фундаменты для лотков глубиной от 400 до 800 мм 3.820-3 Стойки опор для лотков глубиной 1000 мм 3.820-3 Фундаменты для лотков глубиной 1000 мм 3.820-3 Опорные плиты 3.820-3 Технологическая схема изготовления лотков по агрегатно-поточной технологии 3.820-3 Технологическая схема изготовления арматурных элементов предварительно-напряженных лотков 3.820-3 Технологические схемы изготовления опор для лотков по поточно-агрегатной технологии 3.820-3 Организация строительства лоткового канала с автомашины 3.820-3 Организация строительства лоткового канала при монтаже с земли 3.820-3 Организация строительства лоткового канала. Вариант лоткового канала на стойках и в земляном русле |
| Разработан: | Союзводоканалпроект |
| Утверждён: | 05.04.1973 Минводхоз СССР (USSR Minvodkhoz 19) |
| Чем заменён: |
|
















































