Скачать Типовой проект 902-2-23 Альбом I. Пояснительная записка и чертежиДата актуализации: 01.01.2021
|
| Обозначение: | Типовой проект 902-2-23 |
| Обозначение англ: | 902-2-23 |
| Статус: | действует |
| Название рус.: | Альбом I. Пояснительная записка и чертежи |
| Дата добавления в базу: | 01.09.2013 |
| Дата актуализации: | 01.01.2021 |
| Дата введения: | 30.12.1966 |
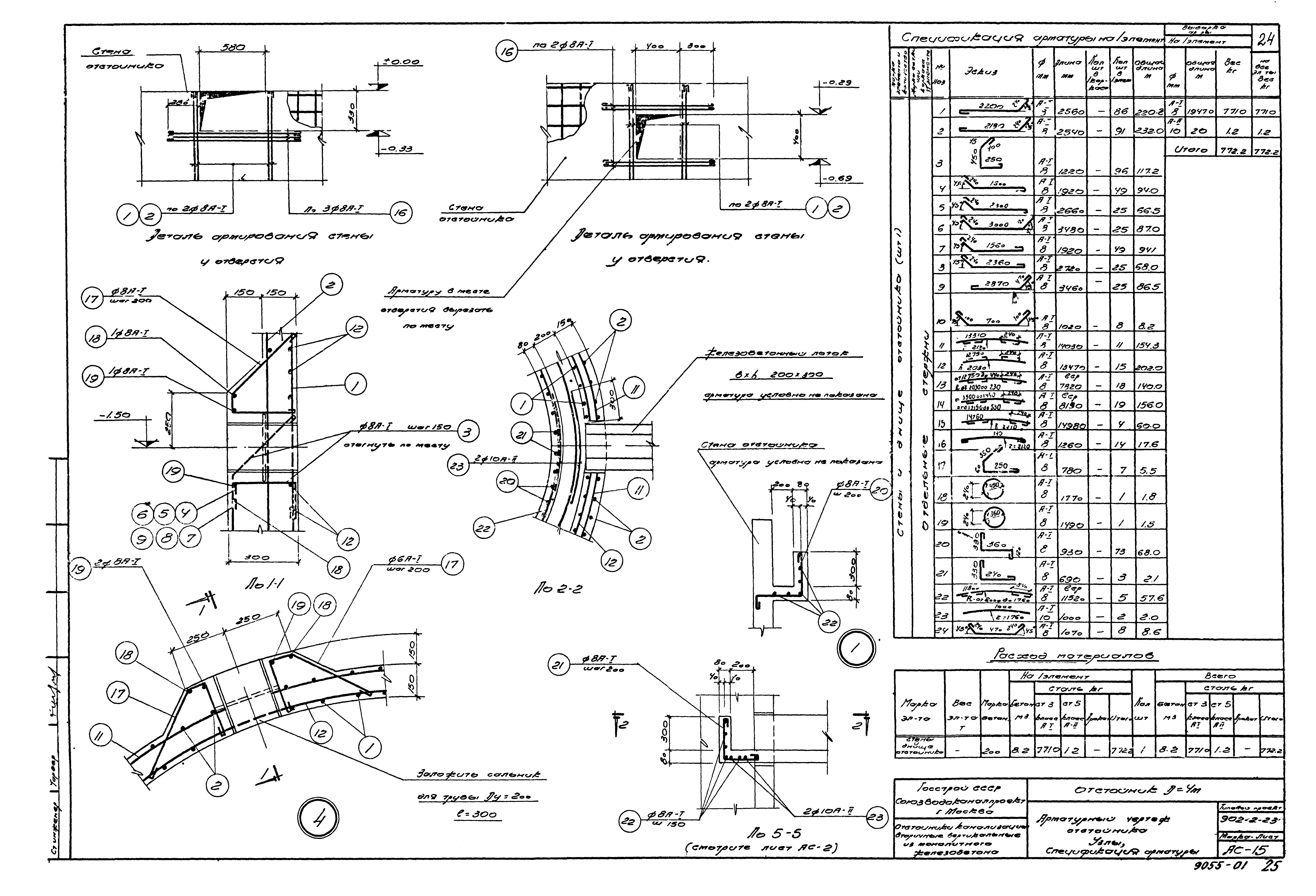
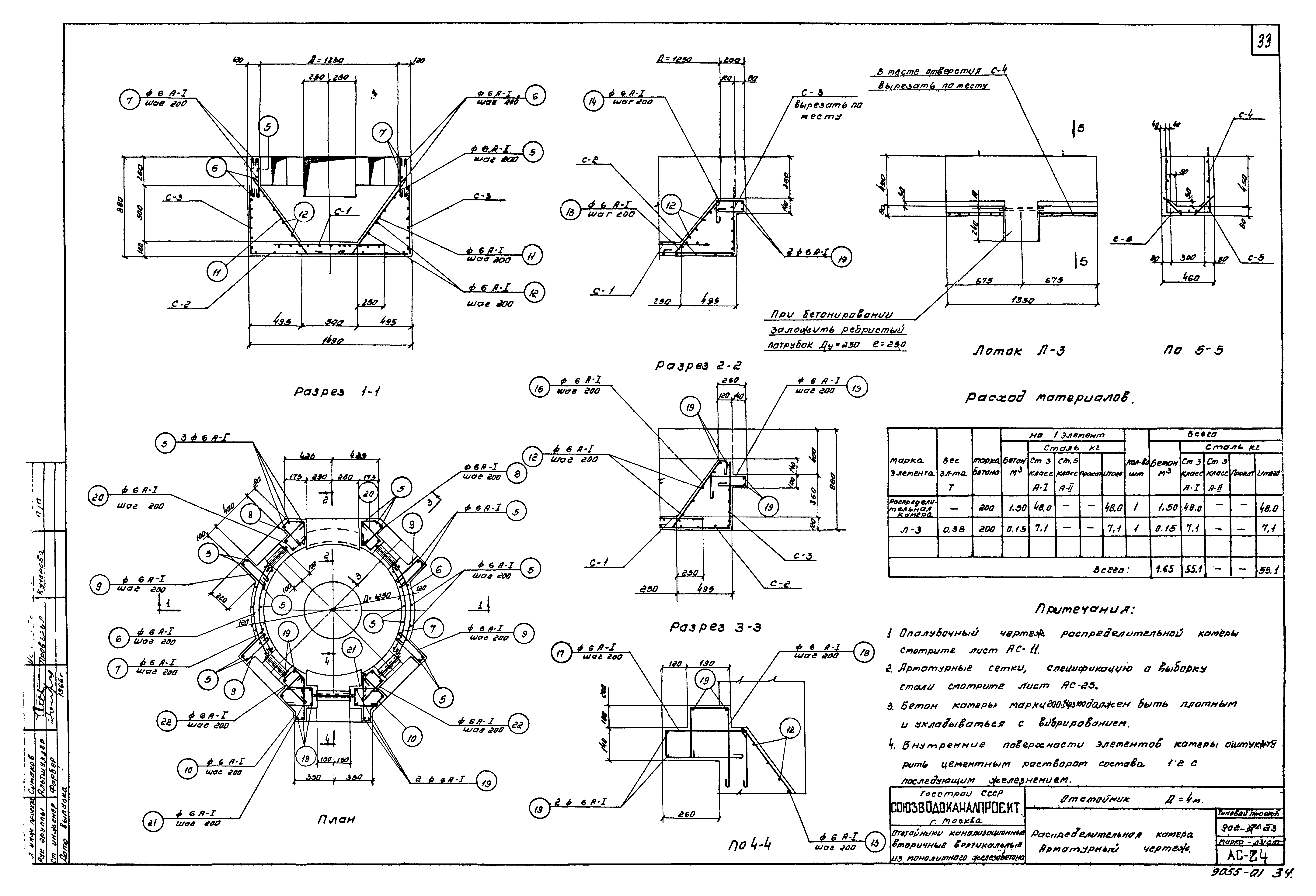
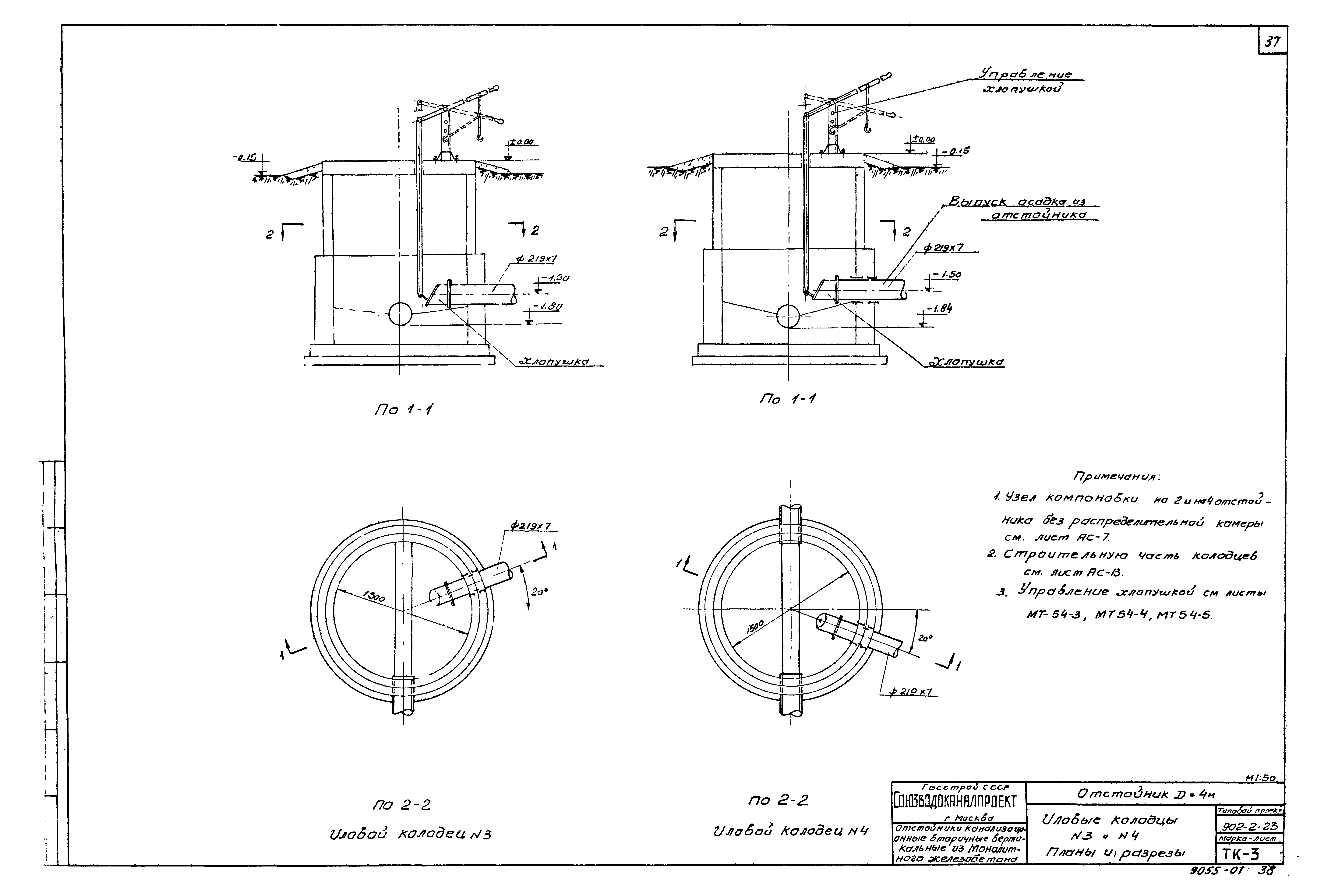
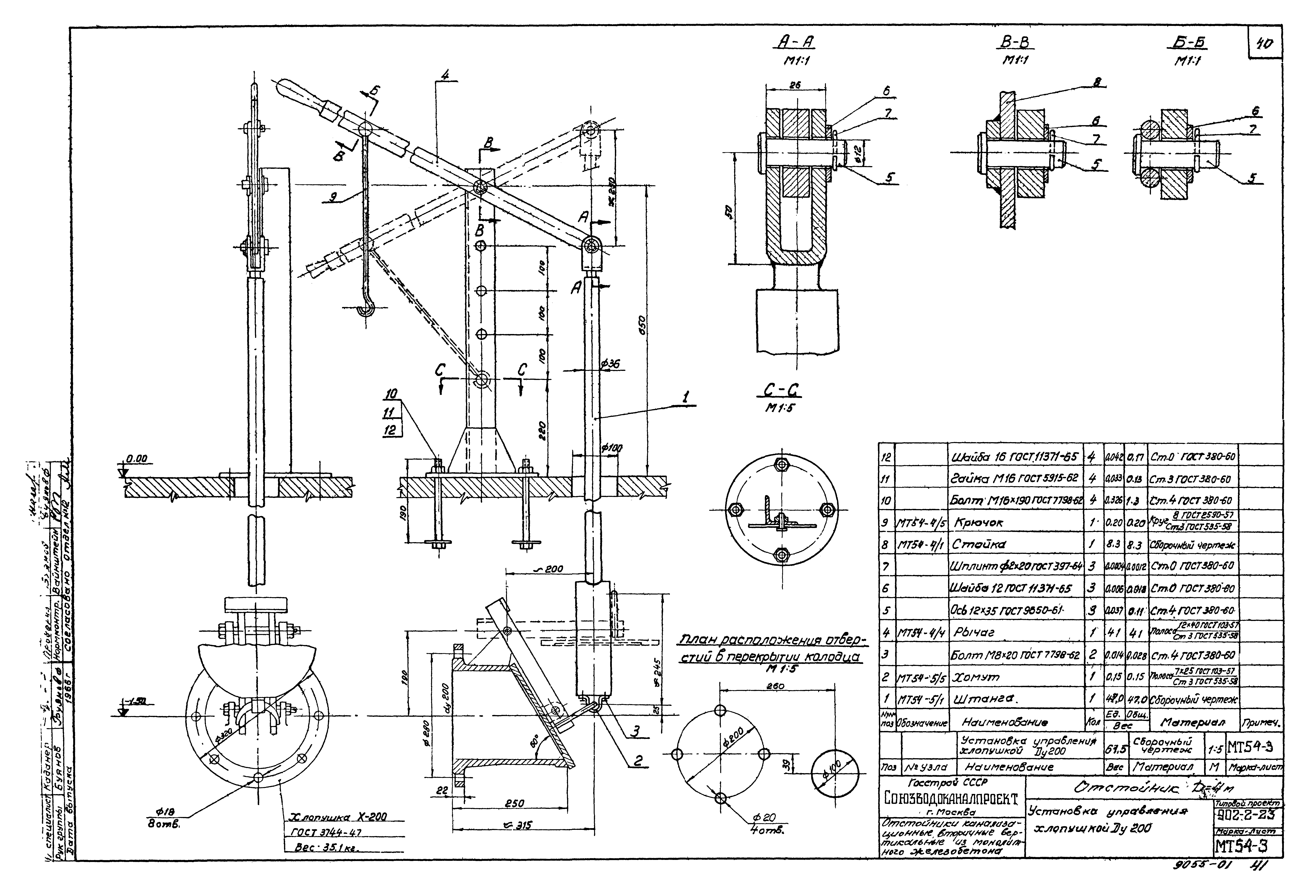
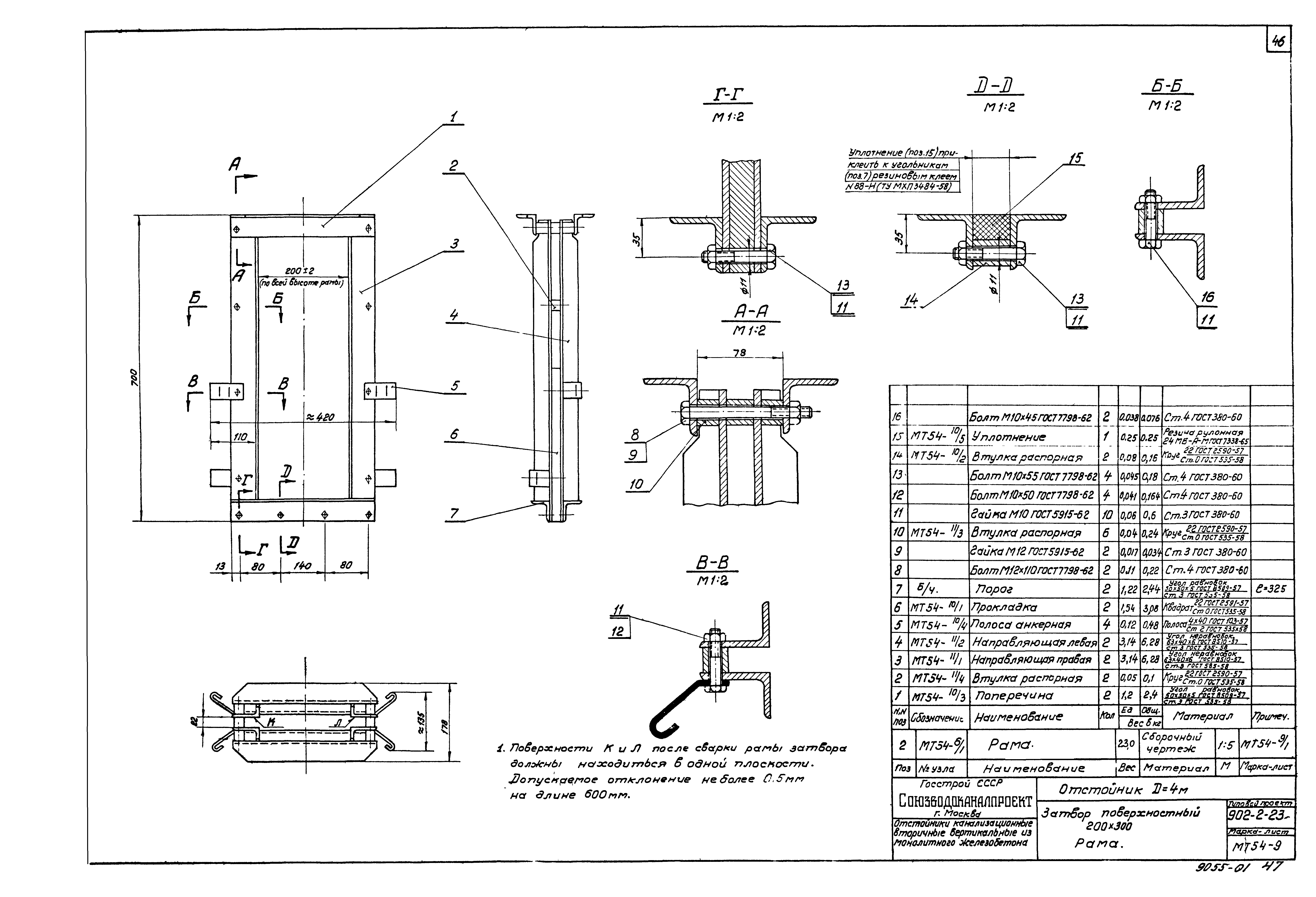
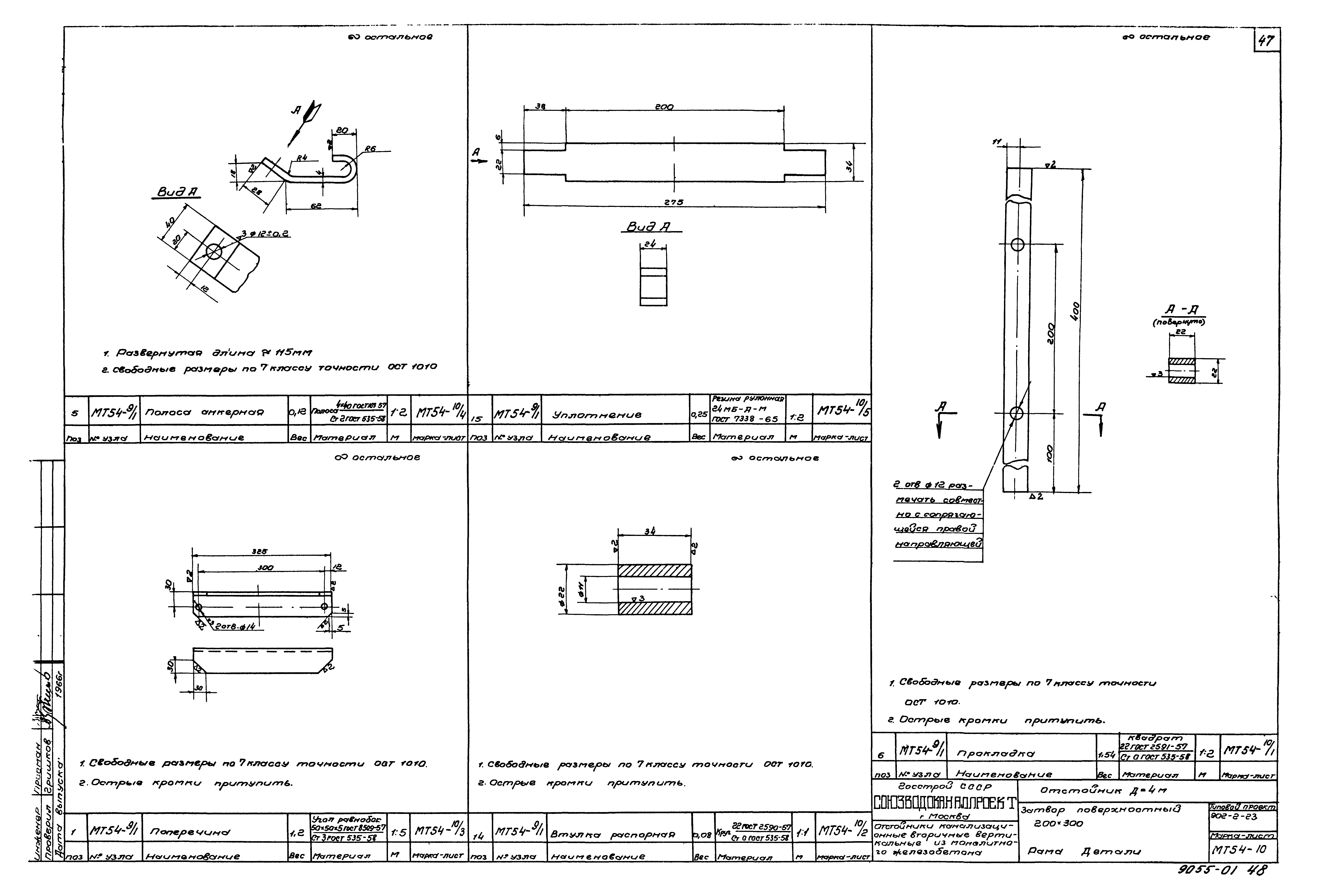
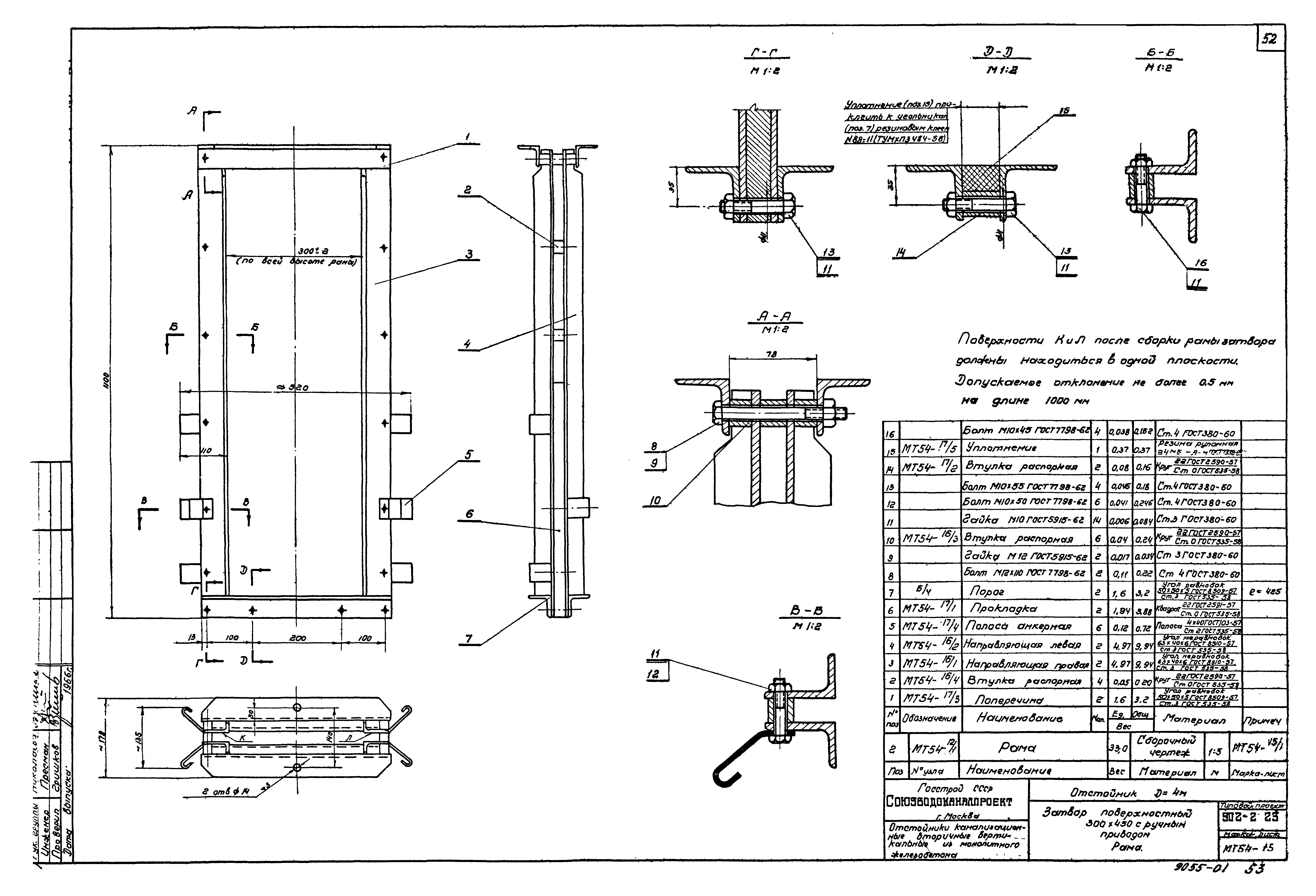
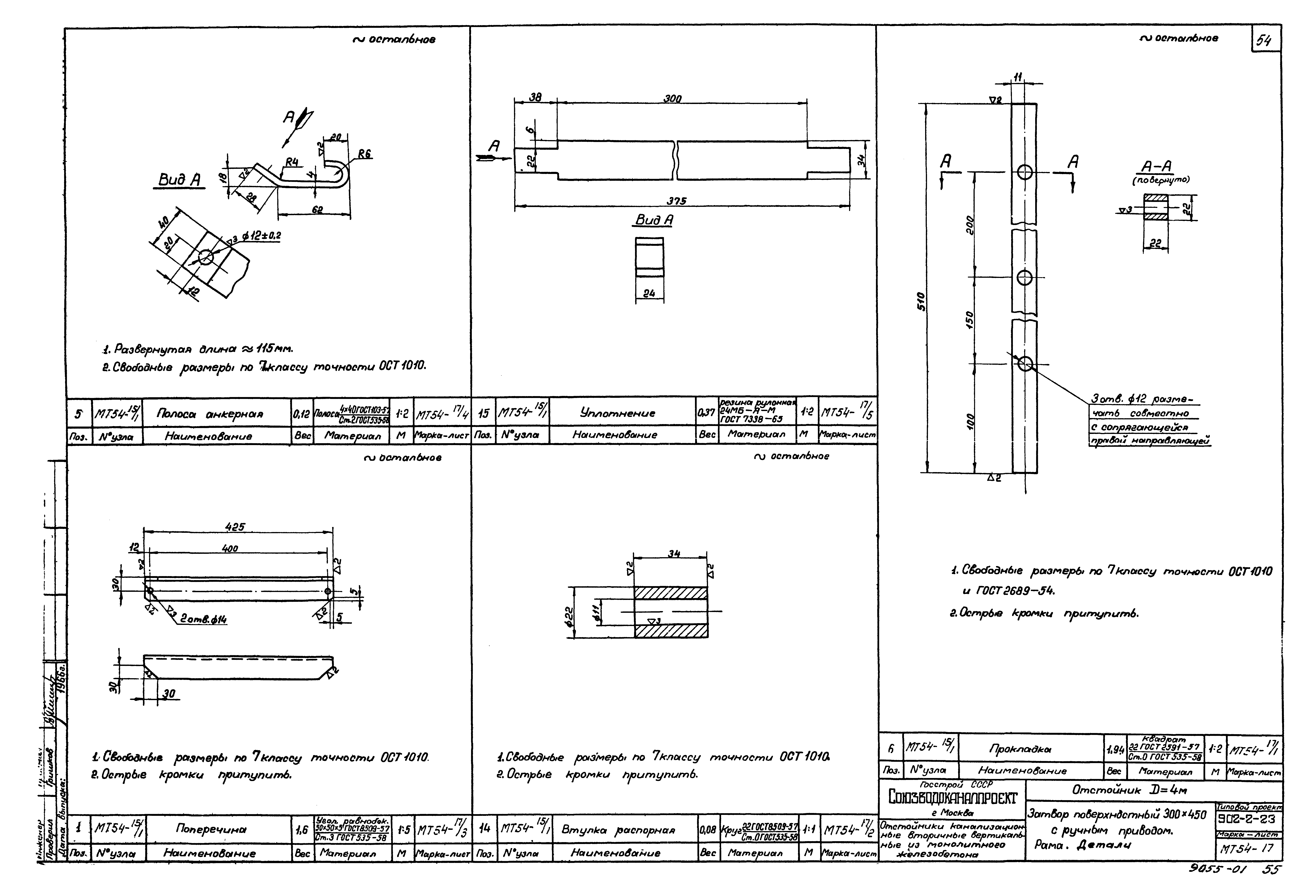
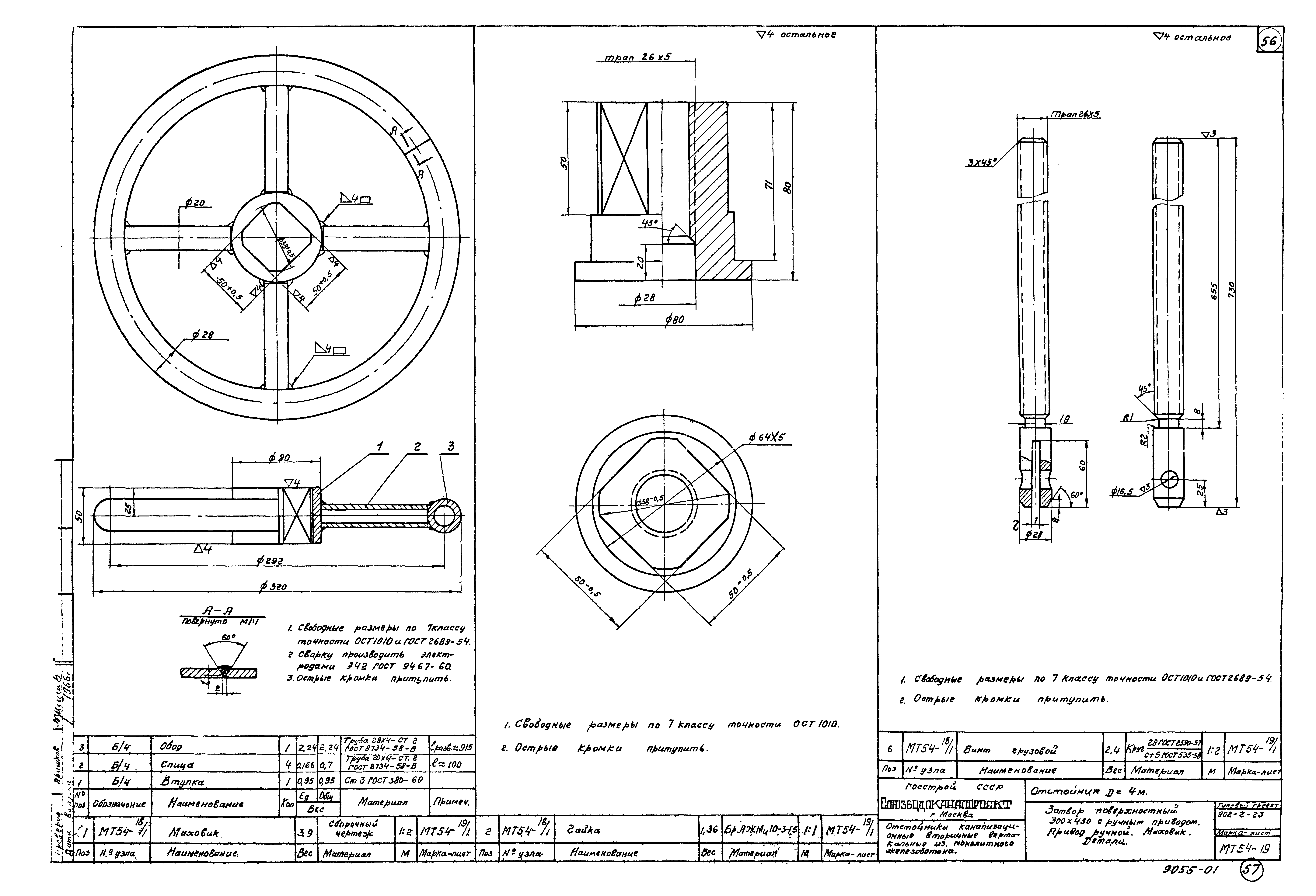
| Оглавление: | ТП 902-2-23-ПЗ-1 Содержание альбома ТП 902-2-23-ПЗ-2 Заглавный лист ТП 902-2-23-ПЗ-3 Пояснительная записка ТП 902-2-23-АС А. Архитектурно-строительные чертежи ТП 902-2-23-АС-1 Опалубочный чертеж отстойника. План. Разрез ТП 902-2-23-АС-2 Опалубочный чертеж. Узлы. Сечения ТП 902-2-23-АС-3 Опалубочный чертеж. Сечения. Закладные элементы М-1÷М-5 ТП 902-2-23-АС-4 Лестница ЛС-1. Спецификация и выборка стали ТП 902-2-23-АС-5 Компоновка из 4х отстойников. Спецификация железобетонных и стальных элементов ТП 902-2-23-АС-6 Компоновка из 2х отстойников. Спецификация железобетонных и стальных элементов ТП 902-2-23-АС-7 Компоновка из 2х отстойников. Спецификация железобетонных и стальных элементов ТП 902-2-23-АС-8 Опалубочный чертеж ЛМ-1. План, разрез, сечения ТП 902-2-23-АС-9 Опалубочный чертеж ЛМ-2. План, сечения ТП 902-2-23-АС-10 Опалубочный чертеж ЛМ-3. План, разрез, сечения ТП 902-2-23-АС-11 Распределительная камера. План, сечения ТП 902-2-23-АС-12 Иловые колодцы №1,№2 ТП 902-2-23-АС-13 Иловые колодцы №3,№4 ТП 902-2-23-АС-14 Арматурный чертеж отстойника. План и разрез ТП 902-2-23-АС-15 Арматурный чертеж отстойника. Узлы, спецификация арматуры ТП 902-2-23-АС-16 Арматурно-опалубочный чертеж. Балка Б-1. Муфта МЛ-1 ТП 902-2-23-АС-17 Арматурно-опалубочный чертеж лотков Л-1,Л-2. Армирование колец К-1÷К-4 ТП 902-2-23-АС-18 Армирование лотка ЛМ-1. Сечения ТП 902-2-23-АС-19 Армирование лотка ЛМ-2. Сечения ТП 902-2-23-АС-20 Армирование лотка ЛМ-3. Сечения ТП 902-2-23-АС-21 Армирование лотка ЛМ-1. Разрез. Спецификация арматуры ТП 902-2-23-АС-22 Армирование лотка ЛМ-2. Разрезы. Спецификация арматуры ТП 902-2-23-АС-23 Армирование лотка ЛМ-3. Разрезы. Спецификация арматуры ТП 902-2-23-АС-24 Распределительная камера. Арматурный чертеж ТП 902-2-23-АС-25 Распределительная камера. Арматурные сетки и выборка стали ТП 902-2-23-ТХ Б. Технологические чертежи ТП 902-2-23-ТХ-1 Общий вид отстойника ТП 902-2-23-ТХ-2 Иловые колодцы №1 и №2. Планы и разрезы ТП 902-2-23-ТХ-3 Иловые колодцы №3 и №4. Планы и разрезы ТП 902-2-23-МТ-54 В. Чертежи нестандартного оборудования ТП 902-2-23-МТ-54-1 Труба центральная. Общий вид и детали ТП 902-2-23-МТ-54-2 Труба иловая. Общий вид и детали ТП 902-2-23-МТ-54-3 Установка управления хлопушкой Ду=200 ТП 902-2-23-МТ-54-4 Установка управления хлопушкой Ду=200. Узел и детали ТП 902-2-23-МТ-54-5 Установка управления хлопушкой Ду=200. Узел и детали ТП 902-2-23-МТ-54-6 Затвор поверхностный 200х300. Общий вид ТП 902-2-23-МТ-54-7 Затвор поверхностный 200х300. Щит ТП 902-2-23-МТ-54-8 Затвор поверхностный 200х300. Щит. Детали. Узлы ТП 902-2-23-МТ-54-9 Затвор поверхностный 200х300. Рамы ТП 902-2-23-МТ-54-10 Затвор поверхностный 200х300. Рамы. Детали ТП 902-2-23-МТ-54-11 Затвор поверхностный 200х300. Рамы. Детали ТП 902-2-23-МТ-54-12 Затвор поверхностный 300х450 с ручным приводом. Общий вид ТП 902-2-23-МТ-54-13 Затвор поверхностный 300х450 с ручным приводом. Щит ТП 902-2-23-МТ-54-14 Затвор поверхностный 300х450 с ручным приводом. Детали ТП 902-2-23-МТ-54-15 Затвор поверхностный 300х450 с ручным приводом. Рама ТП 902-2-23-МТ-54-16 Затвор поверхностный 300х450 с ручным приводом. Рама. Детали ТП 902-2-23-МТ-54-17 Затвор поверхностный 300х450 с ручным приводом. Рама. Детали ТП 902-2-23-МТ-54-18 Затвор поверхностный 300х450 с ручным приводом. Привод ручной ТП 902-2-23-МТ-54-19 Затвор поверхностный 300х450 с ручным приводом. Привод ручной. Маховик. Детали |
| Разработан: | Союзводоканалпроект |
| Утверждён: | 30.12.1966 Союзводоканалпроект (Soyuzvodokanalproject 194) |

























































