Скачать Типовой проект 902-2-4 Альбом I. Пояснительная записка и чертежиДата актуализации: 01.01.2021
|
| Обозначение: | Типовой проект 902-2-4 |
| Обозначение англ: | 902-2-4 |
| Статус: | заменен |
| Название рус.: | Альбом I. Пояснительная записка и чертежи |
| Дата добавления в базу: | 01.09.2013 |
| Дата актуализации: | 01.01.2021 |
| Дата введения: | 01.03.1966 |
| Дата окончания срока действия: | 01.02.1988 |
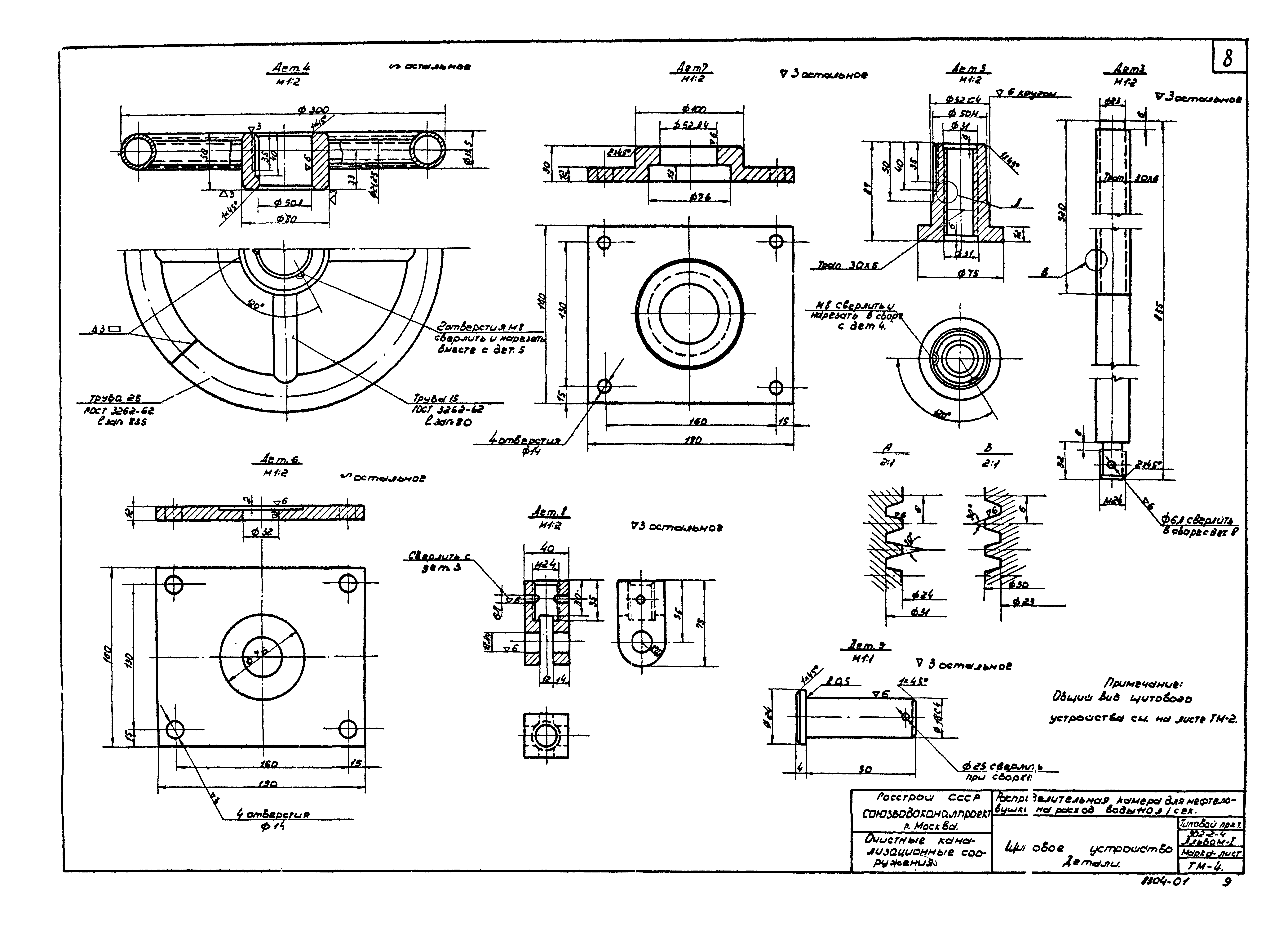
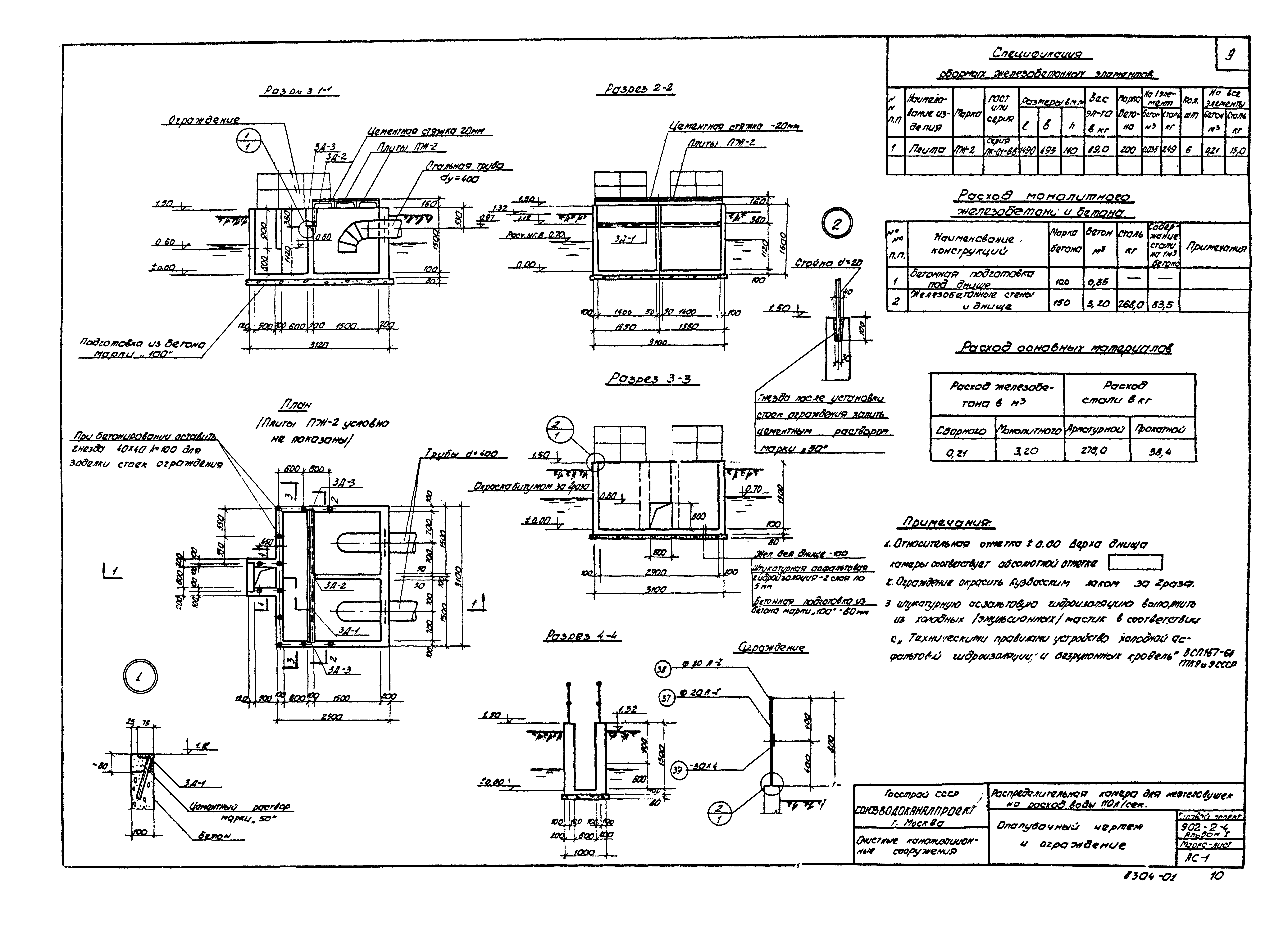
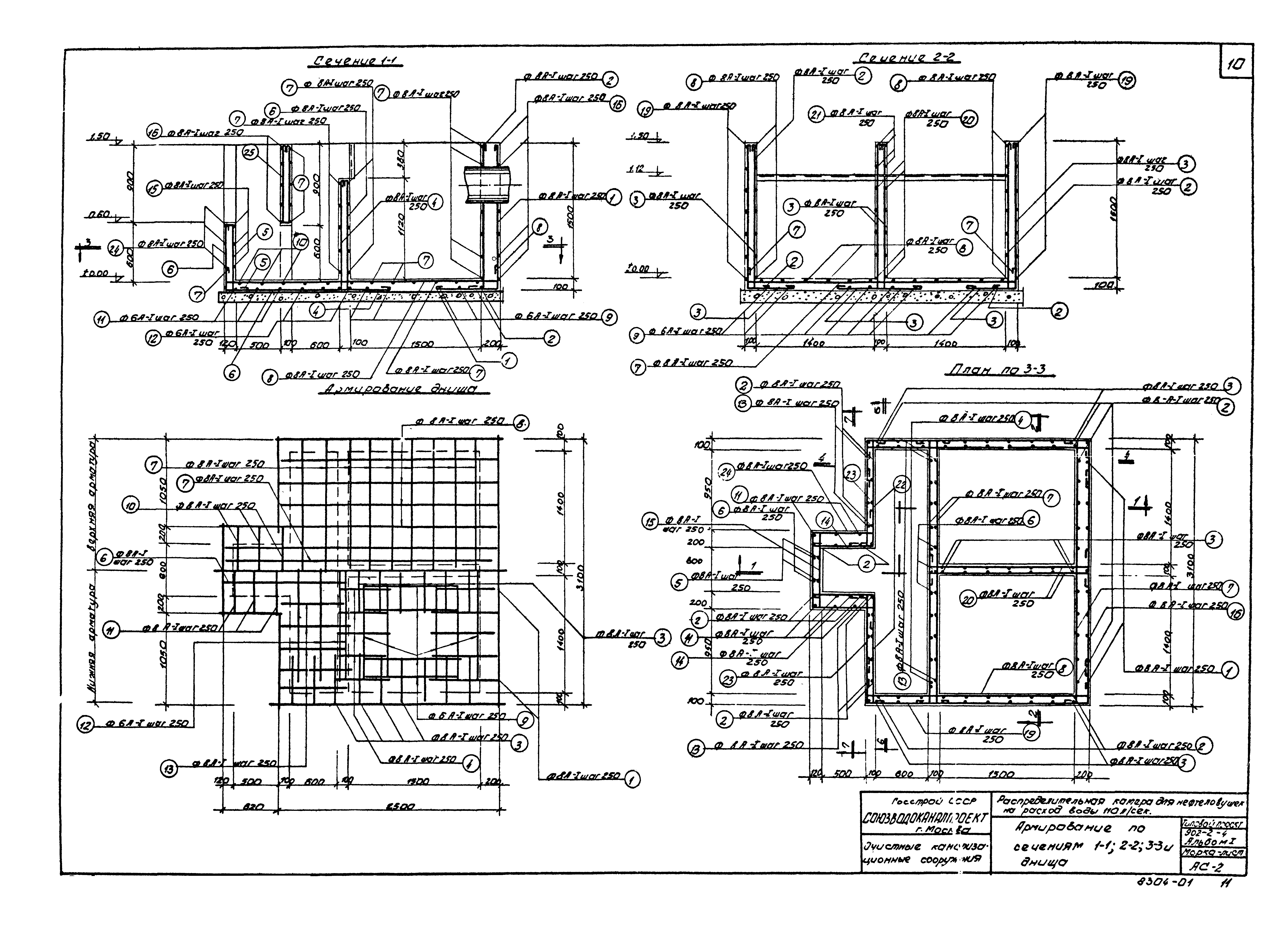
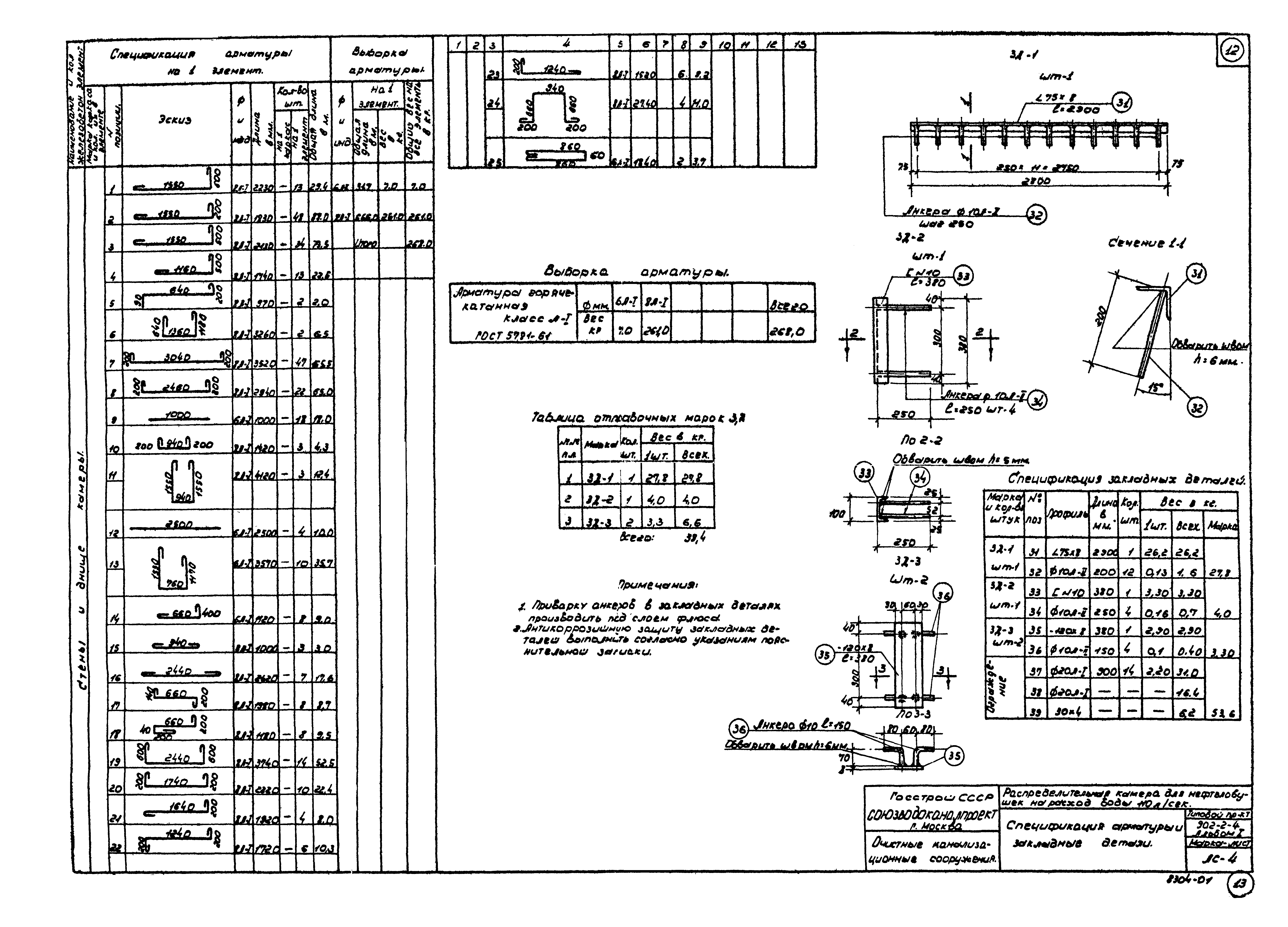
| Оглавление: | ТП 902-2-4-ПЗ Пояснительная записка ТП 902-2-4-ТМ-1 Монтажный чертеж ТП 902-2-4-ТМ-2 Щитовое устройство. Общий вид. Рама ТП 902-2-4-ТМ-3 Щитовое устройство. Щит ТП 902-2-4-ТМ-4 Щитовое устройство. Детали ТП 902-2-4-АС-1 Опалубочный чертеж и ограждение ТП 902-2-4-АС-2 Армирование по сечениям 1-1,2-2,3-3 и днища ТП 902-2-4-АС-3 Армирование по сечениям 4-4,5-5,6-6 и 7-7 ТП 902-2-4-АС-4 Спецификация арматуры и закладные детали |
| Разработан: | Союзводоканалпроект |
| Утверждён: | 30.11.1965 Союзводоканалпроект (Soyuzvodokanalproject 192) |
| Чем заменён: |












