Скачать Типовой проект 902-2-384.85 Альбом II. Технологическая и электротехническая части. Отопление и вентиляцияДата актуализации: 01.01.2021
|
| Обозначение: | Типовой проект 902-2-384.85 |
| Обозначение англ: | 902-2-384.85 |
| Статус: | действует |
| Название рус.: | Альбом II. Технологическая и электротехническая части. Отопление и вентиляция |
| Дата добавления в базу: | 01.09.2013 |
| Дата актуализации: | 01.01.2021 |
| Дата введения: | 01.06.1985 |
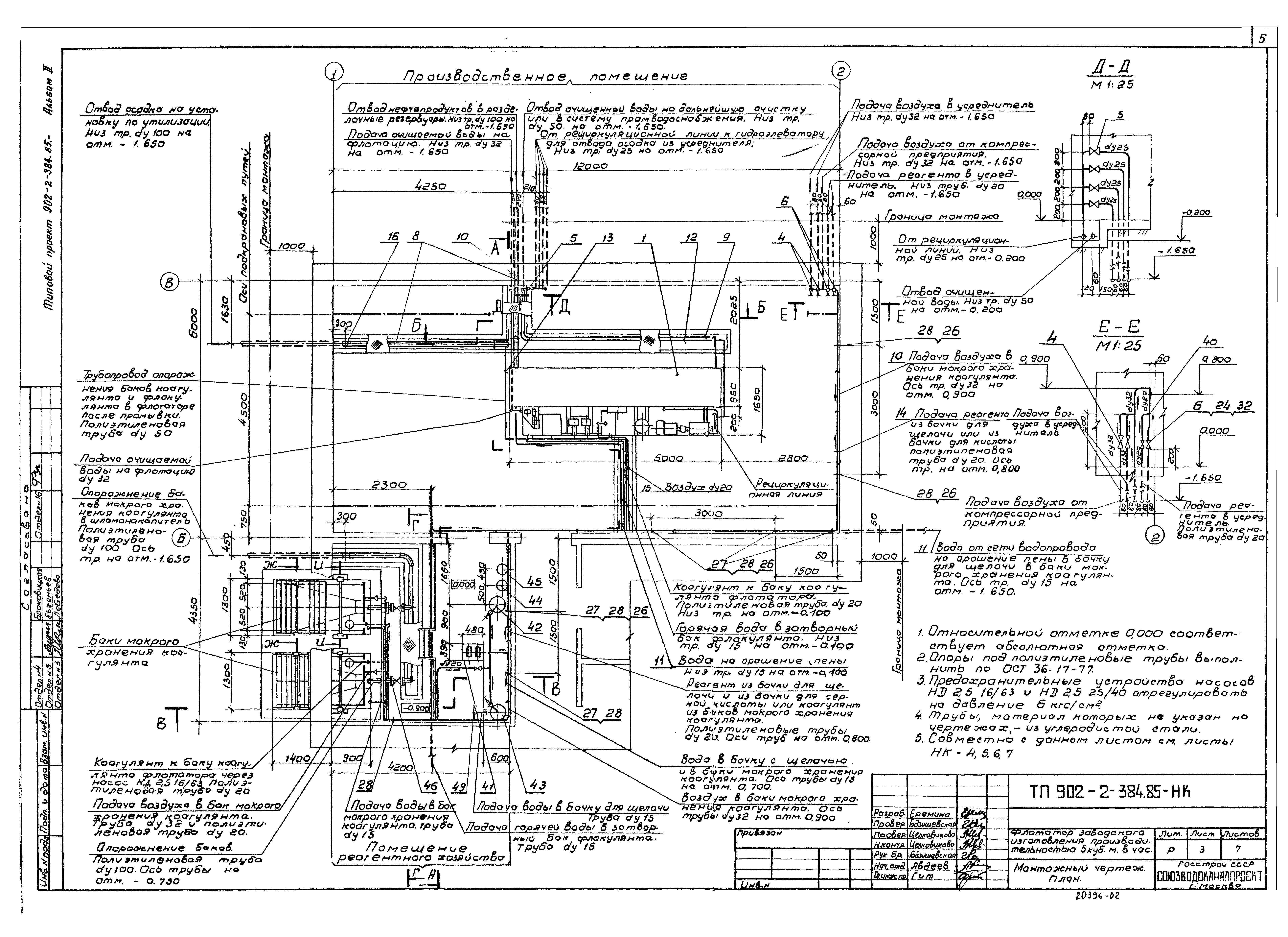
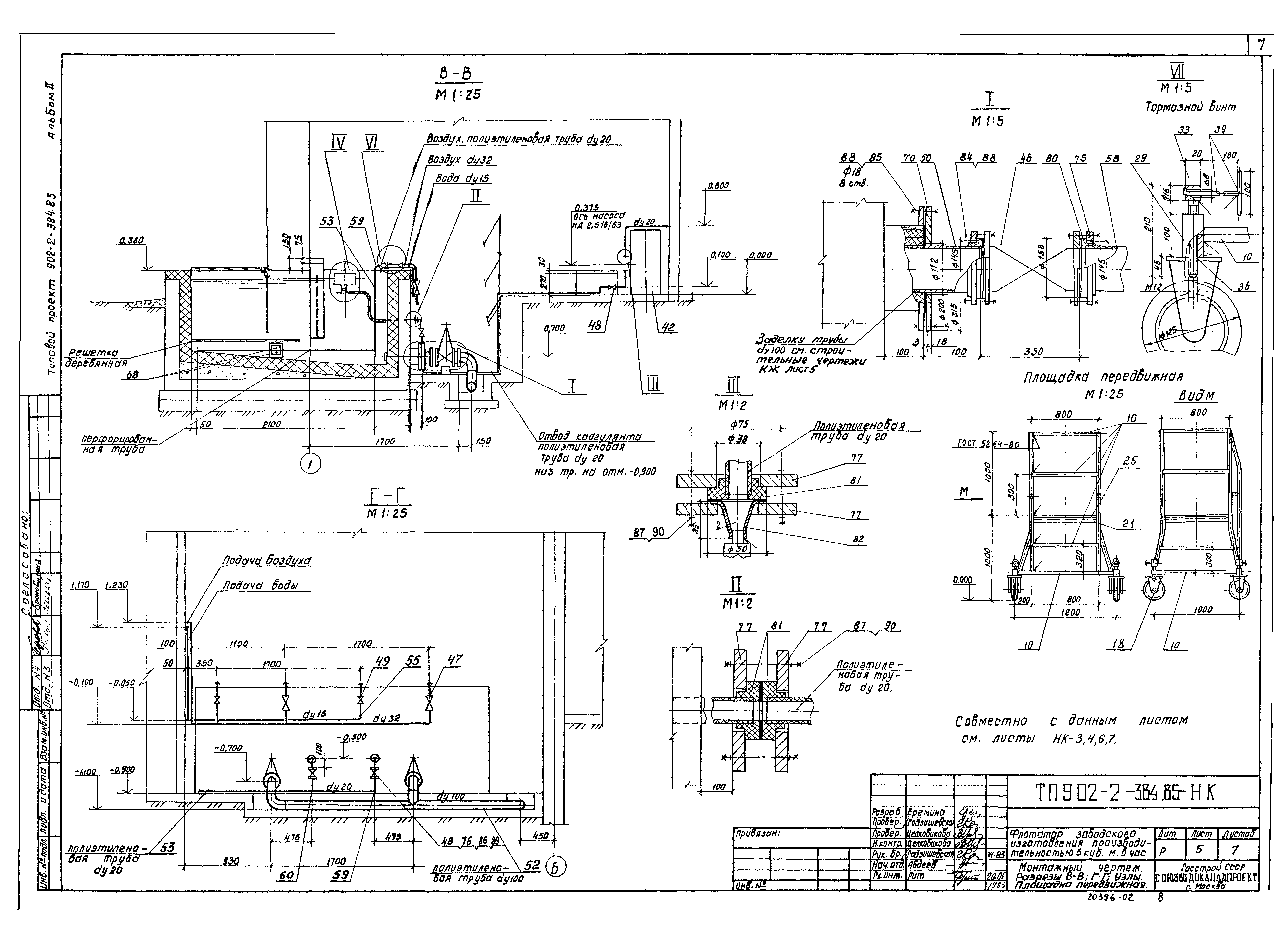
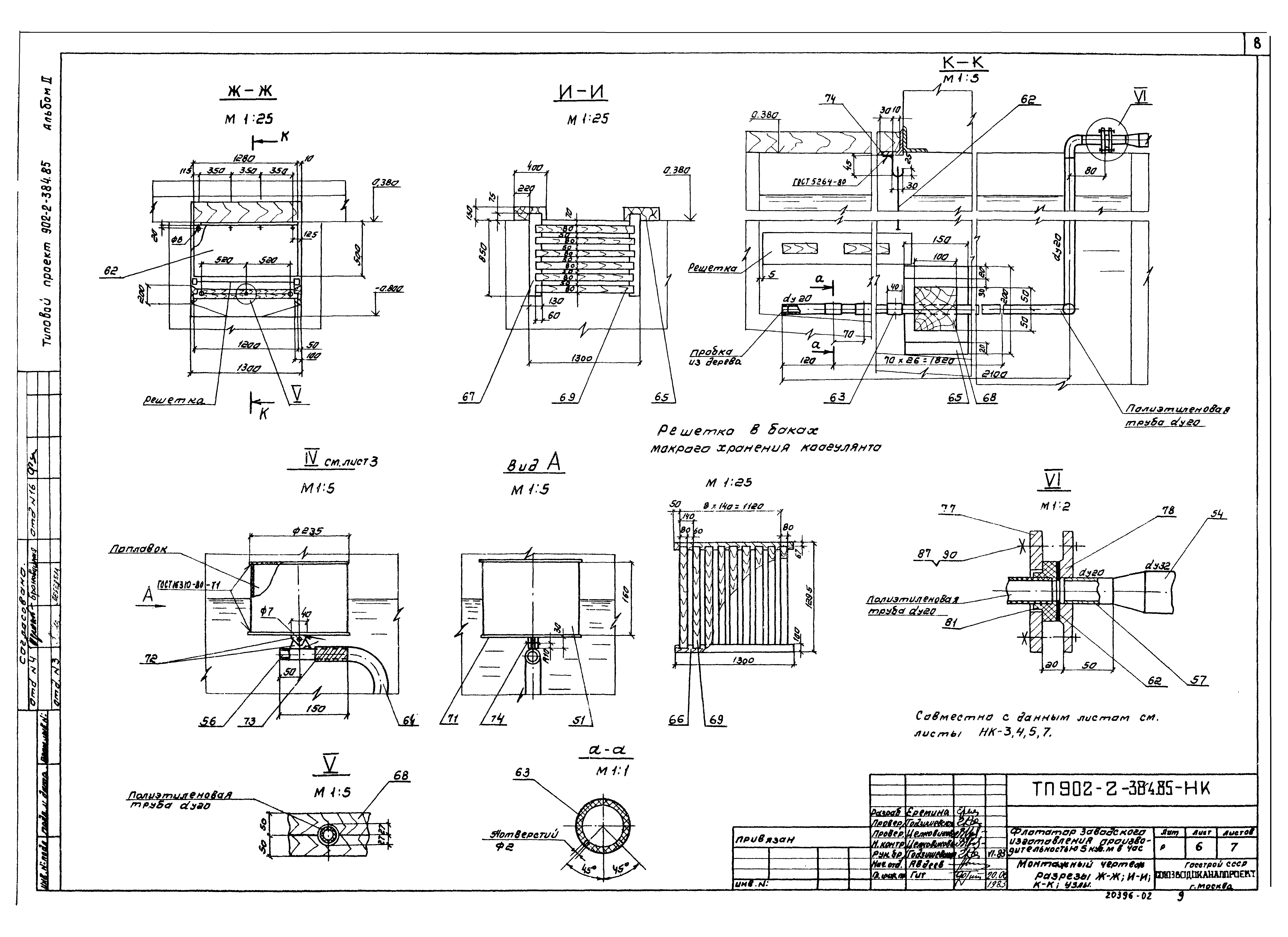
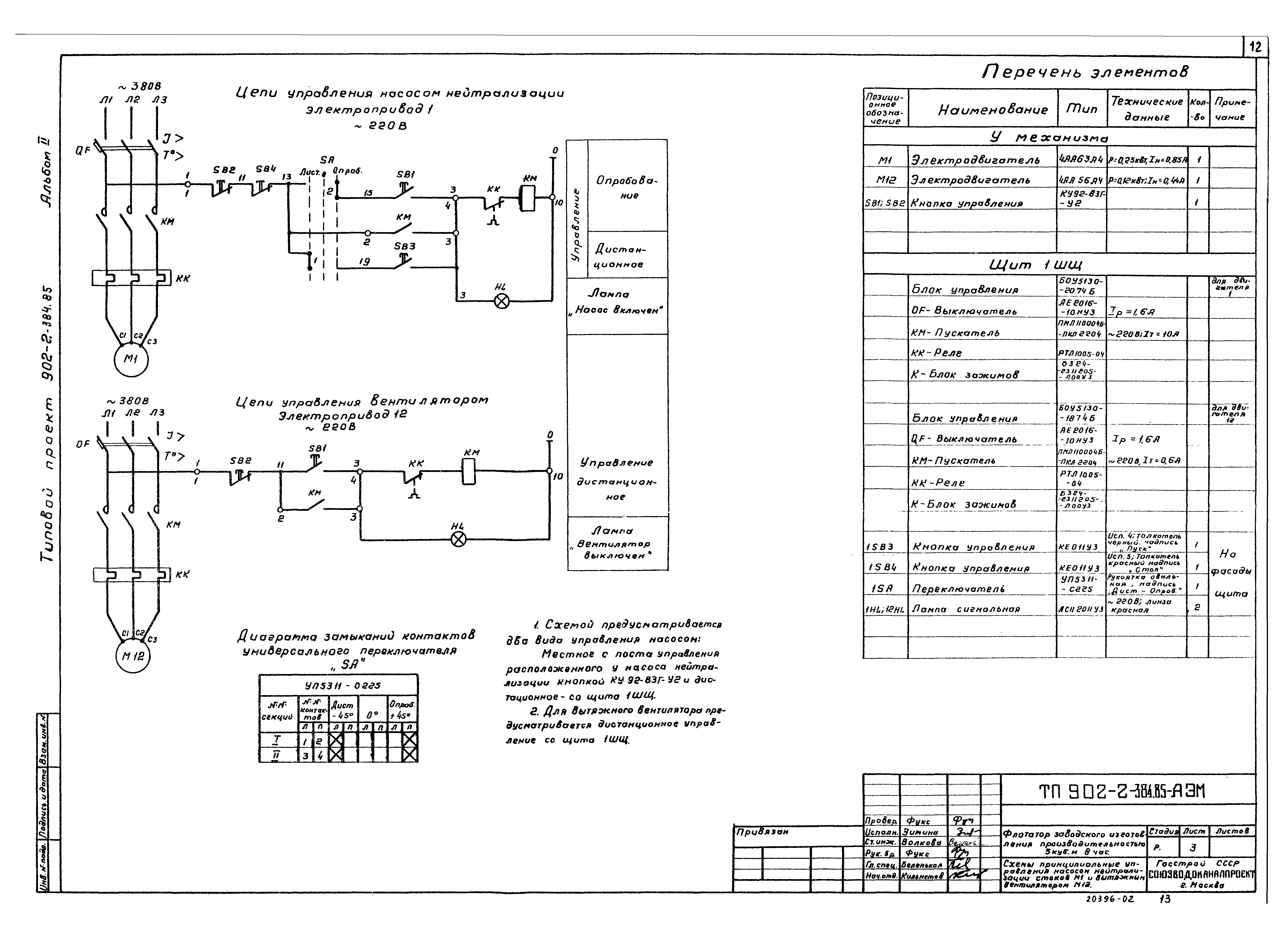
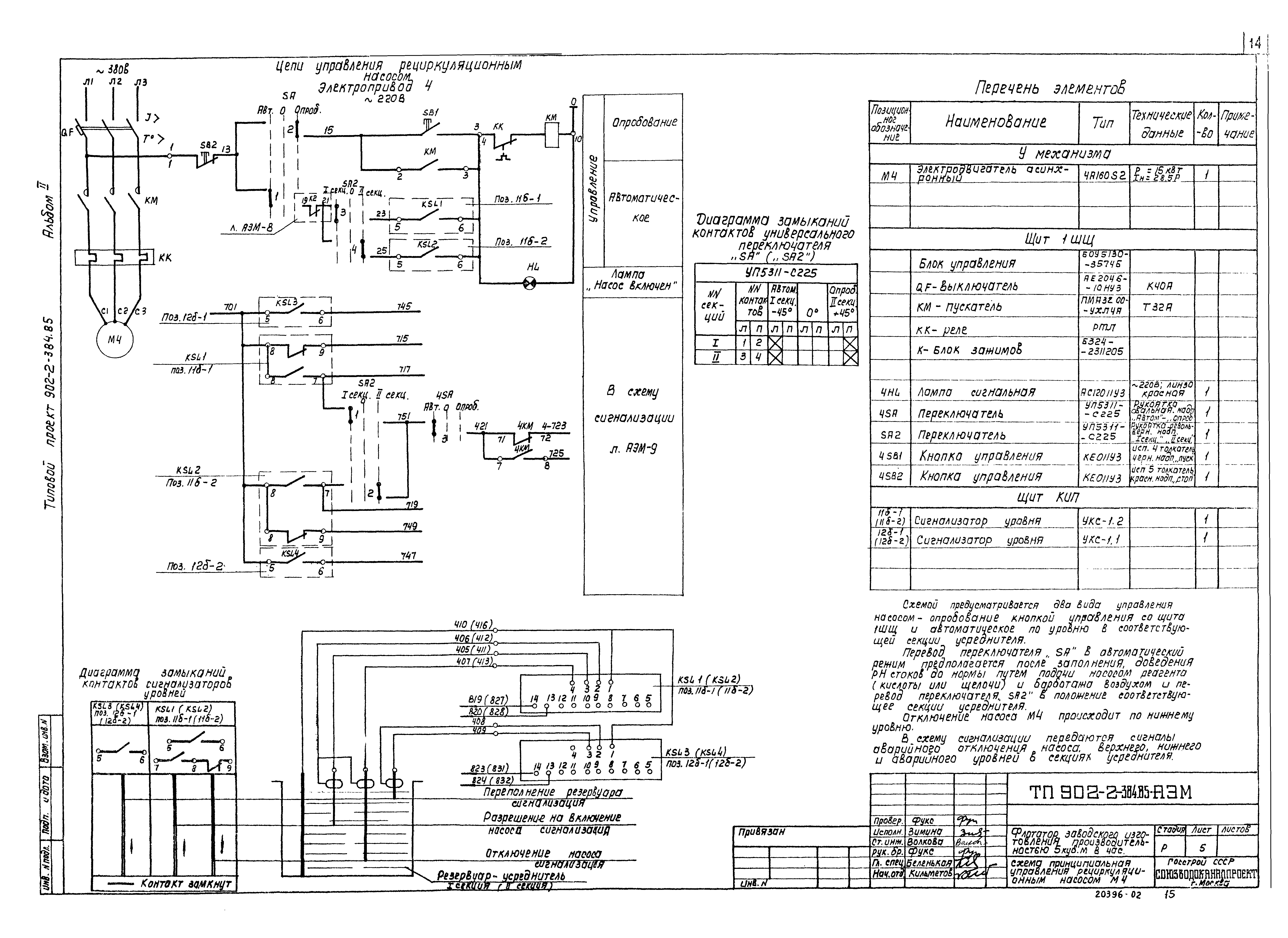
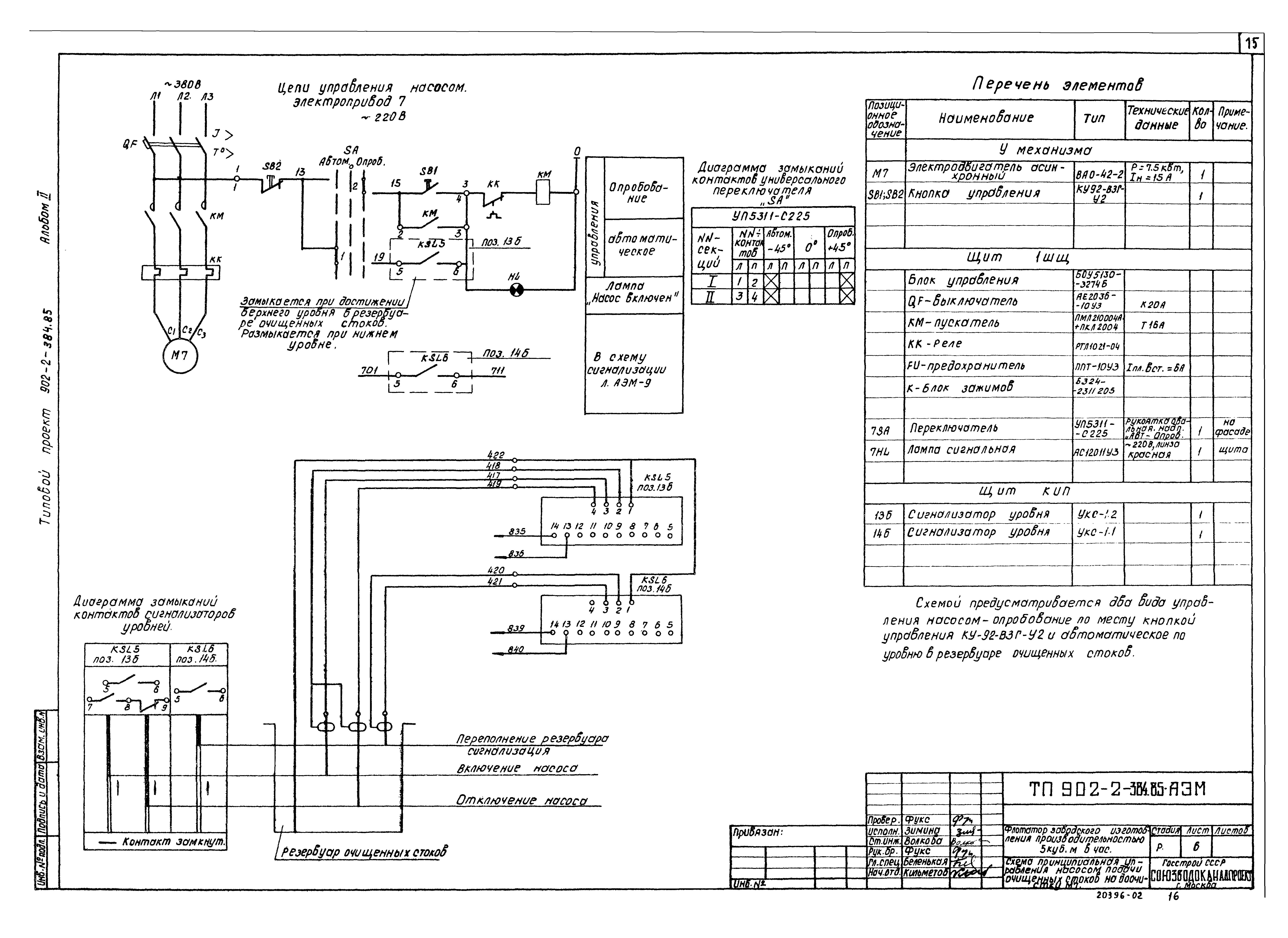
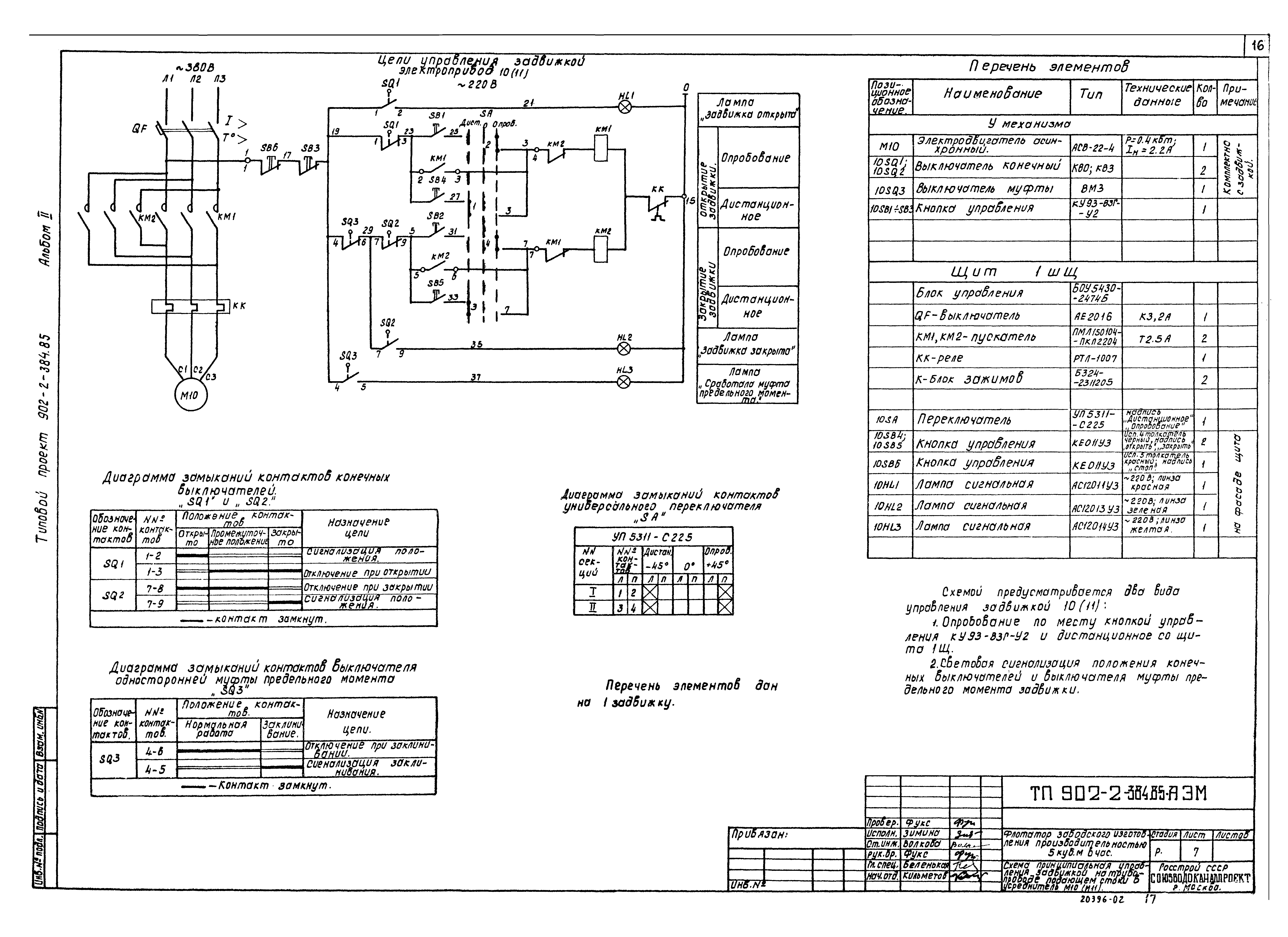
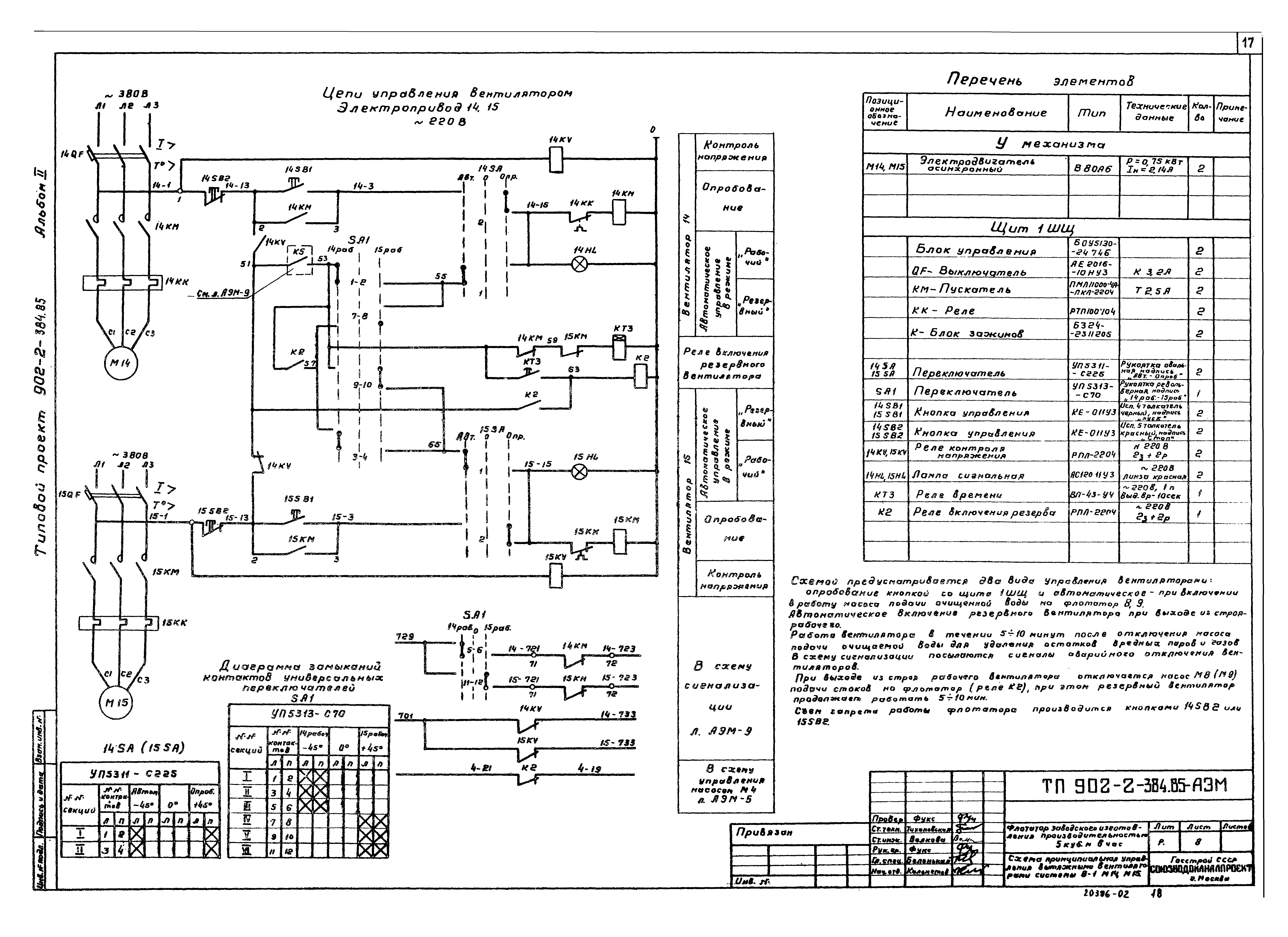
| Оглавление: | ТП 902-2-384.85 Титульный лист ТП 902-2-384.85 Содержание альбома ТП 902-2-384.85-НК Технологическая часть ТП 902-2-384.85-НК-1 Общие данные. Примерное решение генерального плана ТП 902-2-384.85-НК-2 Размещение элементов флотационной установки по технологической схема очистки воды ТП 902-2-384.85-НК-3 Монтажный чертеж. План ТП 902-2-384.85-НК-4 Монтажный чертеж. Разрезы А-А,Б-Б ТП 902-2-384.85-НК-5 Монтажный чертеж. Разрезы В-В,Г-Г, Узлы, площадка передвижная ТП 902-2-384.85-НК-6 Монтажный чертеж. Разрезы Ж-Ж,И-И,К-К. Узлы ТП 902-2-384.85-НК-7 Монтажный чертеж. Спецификация ТП 902-2-384.85-АЭМ Электротехническая часть ТП 902-2-384.85-АЭМ Электрооборудование и автоматика ТП 902-2-384.85-АЭМ-1 Общие данные ТП 902-2-384.85-АЭМ-2 Схема принципиальная однолинейная сети 380/220 В ТП 902-2-384.85-АЭМ-3 Схемы принципиальные управления насосом нейтрализации стоков № 1 и вытяжным вентилятором № 2 ТП 902-2-384.85-АЭМ-4 Схемы принципиальные управления насосом подачи коагулянта М2, флокулянта М3, скребком М5 ТП 902-2-384.85-АЭМ-5 Схемы принципиальные управления рециркуляционным насосом М4 ТП 902-2-384.85-АЭМ-6 Схемы принципиальные управления насосом подачи очищенных стоков на доочистку М7 ТП 902-2-384.85-АЭМ-7 Схемы принципиальные управления задвижкой на трубопроводе, подающем стоки в усреднитель М10 (М11) ТП 902-2-384.85-АЭМ-8 Схемы принципиальные управления вытяжными вентиляторами системы В-1,М-14 и М-15 ТП 902-2-384.85-АЭМ-9 Схема принципиальная сигнализации ТП 902-2-384.85-АЭМ-10 Схема подключения электрооборудования ТП 902-2-384.85-АЭМ-11 Кабельный журнал ТП 902-2-384.85-АЭМ-12 Расположение электрооборудования. Прокладка кабелей и труб ТП 902-2-384.85-АЭМ-13 Электроосвещение ТП 902-2-384.85-ЭК Технологический контроль ТП 902-2-384.85-ЭК-1 Общие данные ТП 902-2-384.85-ЭК-2 Схема принципиальная технологического контроля ТП 902-2-384.85-ЭК-3 Схема электрическая принципиальная приборов ТП 902-2-384.85-ЭК-4 Схема внешних проводов расположения оборудования, прокладка кабелей и труб ТП 902-2-384.85-ОВ Отопление и вентиляция ТП 902-2-384.85-ОВ-1 Общие данные ТП 902-2-384.85-ОВ-2 План, разрез, схемы отопления и вентиляции ТП 902-2-384.85-ОВ-3 Приточная П1 и вытяжные В1,В2 установки, узлы ввода № 1,2 ТП 902-2-384.85-ОВ-4 Спецификация отопительно-вентиляционных установок (начало) ТП 902-2-384.85-ОВ-5 Спецификация отопительно-вентиляционных установок (продолжение) ТП 902-2-384.85-ОВН-1,2,3 Эскизные чертежи общих видов нетиповых конструкций марки ОВН |
| Разработан: | Союзводоканалпроект |
| Утверждён: | 26.12.1984 Госстрой СССР (Государственный комитет Совета Министров СССР по делам строительства) (USSR Gosstroy 40) |
































