Скачать Типовой проект 902-2-384.85 Альбом III. Архитектурно-строительные решения. Конструкции железобетонные и металлические. Внутренние водопровод и канализацияДата актуализации: 01.01.2021
|
| Обозначение: | Типовой проект 902-2-384.85 |
| Обозначение англ: | 902-2-384.85 |
| Статус: | действует |
| Название рус.: | Альбом III. Архитектурно-строительные решения. Конструкции железобетонные и металлические. Внутренние водопровод и канализация |
| Дата добавления в базу: | 01.09.2013 |
| Дата актуализации: | 01.01.2021 |
| Дата введения: | 01.06.1985 |
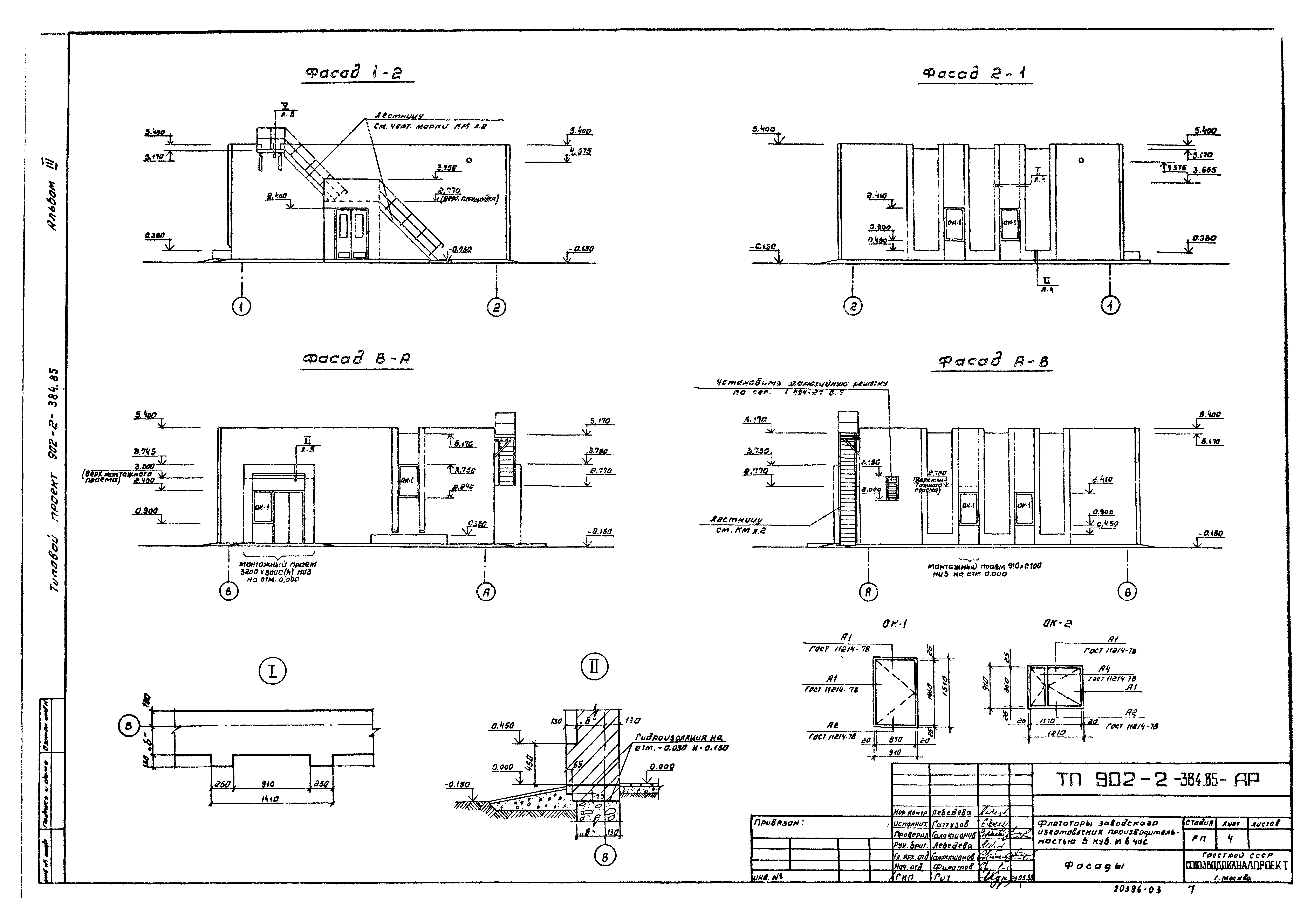
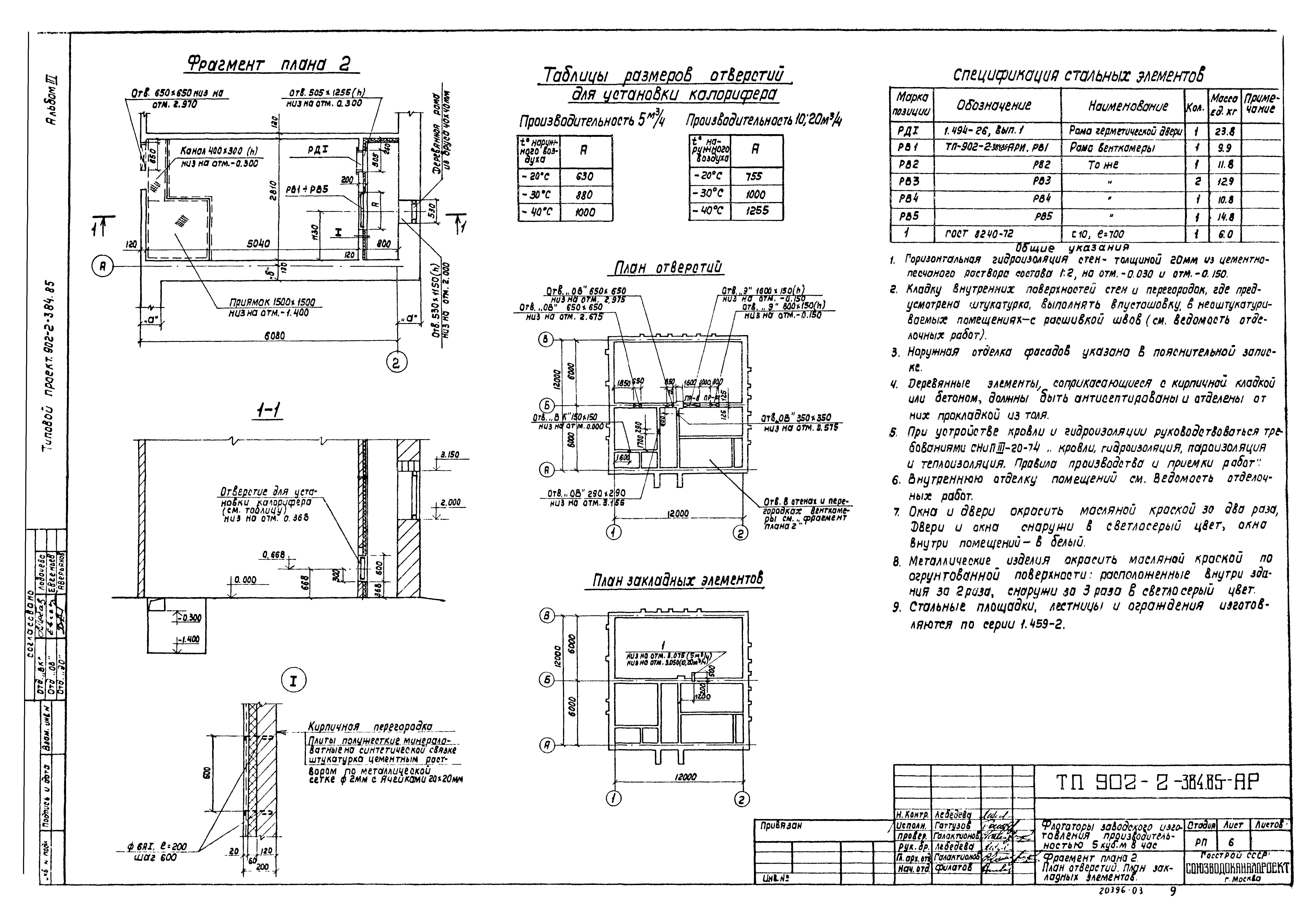
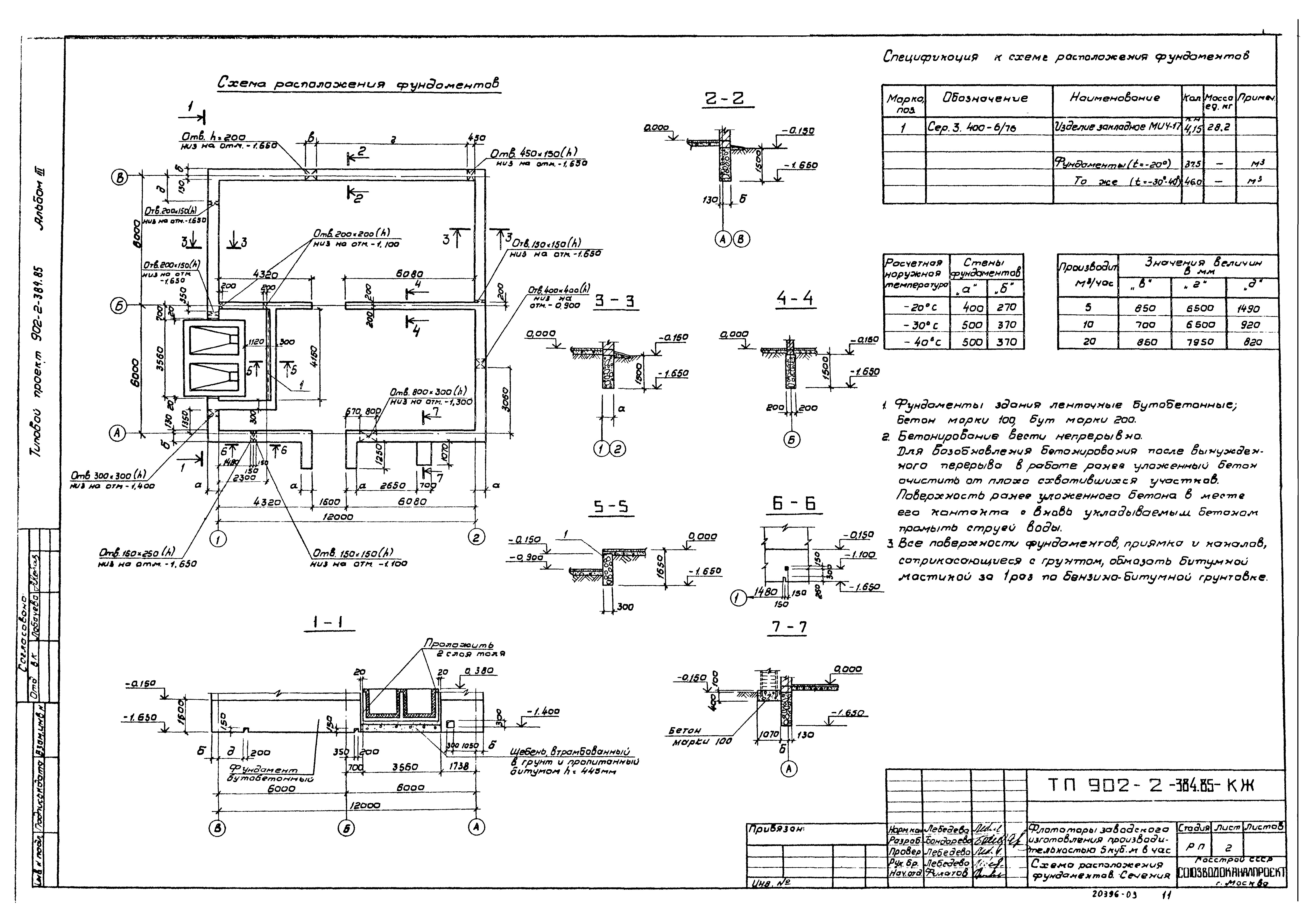
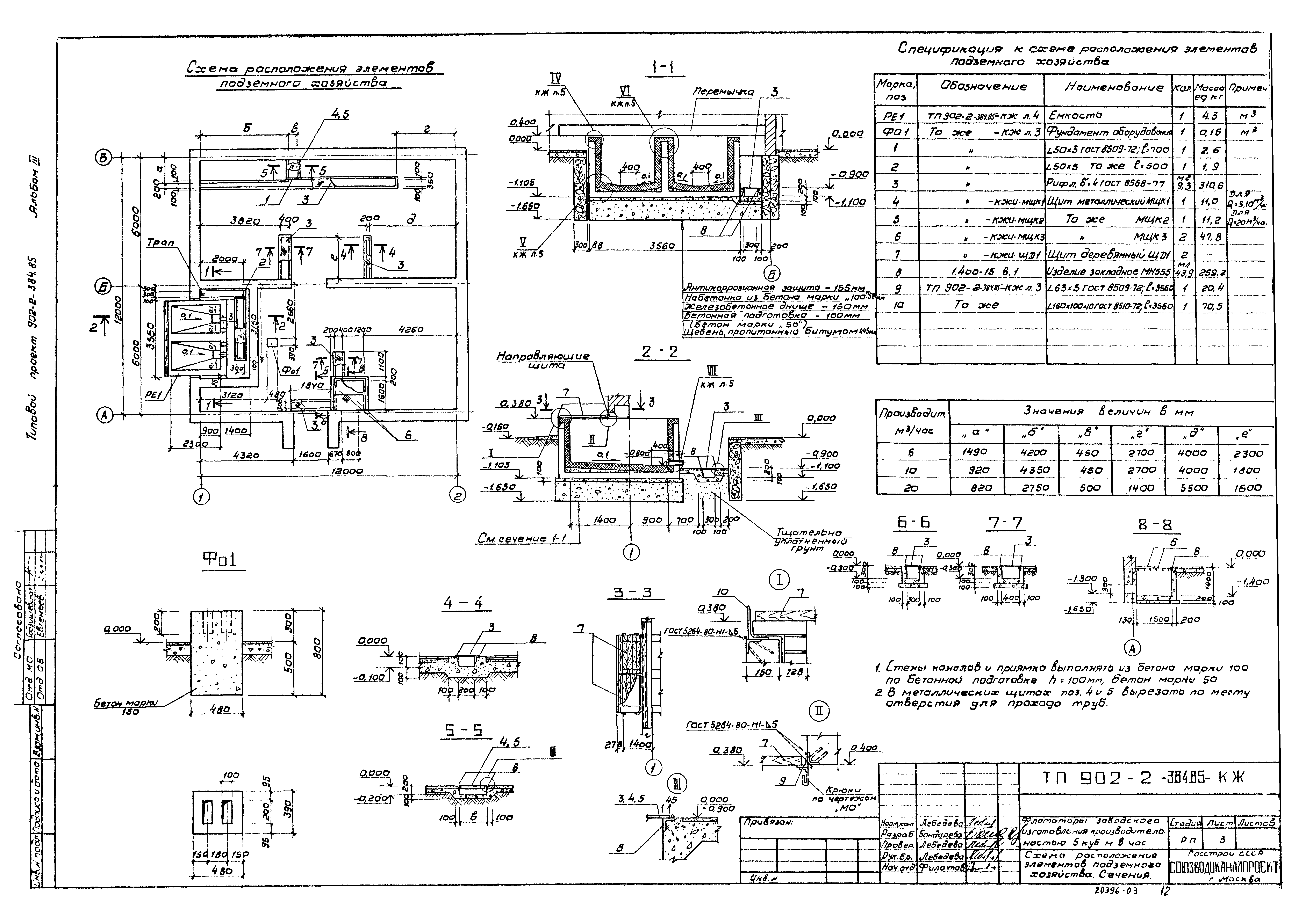
| Оглавление: | ТП 902-2-384.85 Титульный лист ТП 902-2-384.85 Содержание альбома ТП 902-2-384.85-АР Архитектурно-строительные решения ТП 902-2-384.85-АР-1 Общие данные ТП 902-2-384.85-АР-2 Общие данные ТП 902-2-384.85-АР-3 План, разрезы ТП 902-2-384.85-АР-4 Фасады ТП 902-2-384.85-АР-5 Фрагмент плана 1. Узлы 1-5 ТП 902-2-384.85-АР-6 Фрагмент плана 2. План отверстий. План закладных элементов ТП 902-2-384.85 Конструкции железобетонные и металлические ТП 902-2-384.85-КЖ-1 Общие данные. Схема расположения плит покрытия ТП 902-2-384.85-КЖ-2 Схема расположения фундаментов. Сечения ТП 902-2-384.85-КЖ-3 Схема расположения элементов подземного хозяйства. Сечения ТП 902-2-384.85-КЖ-4 Емкость РЕ1. Общий вид и схемы армирования ТП 902-2-384.85-КЖ-5 Антикоррозионная защита емкости РЕ1. Узлы 4-8 ТП 902-2-384.85-КМ-1 Общие данные. Схема расположения пути подвесного крана ТП 902-2-384.85-КМ-2 Схемы расположения стальных лестниц ТП 902-2-384.85-ВК Внутренние водопровод и канализация ТП 902-2-384.85-ВК-1 Общие данные. План. Схемы систем К1,К2,В1,Т3 |
| Разработан: | Союзводоканалпроект |
| Утверждён: | 26.12.1984 Госстрой СССР (Государственный комитет Совета Министров СССР по делам строительства) (USSR Gosstroy 40) |
















